Pamela Lemus

2023-Actual
2018-2023
2021 - 2023
2021 - 2021
GENSLER Mexico
Arquitectura 911
Arquitecto Lider de Proyecto
Contacto con el cliente y participación de ingenierías y consultores durante el proceso del proyecto, seguimiento a requerimientos y necesidades del proyecto. Generación y desarrollo de propuestas de proyecto.
Arquitecto Senior
Generación de presentaciones para proceso, documentación de investigaciones, generación y desarrollo de propuestas de proyectos, coordinación con ingenierías y proveedores externos.
SOFTWARE
2021 - 2018
Arquitecto Junior
Trabajos de documentación de investigaciones, generación y desarrollo de propuestas conceptuales, presentaciones para proceso comercial.
2017 - 2018 CC Arquitectos “Manuel Cervantes Estudio”
Trabajo en el área de difusión, proyectos conceptuales y concursos, así como dibujo de planos de anteproyecto.
Comunicación
Liderazo y motivación
Orden
Compromiso
Trabajo en equipo
Negociación
Relaciones interpersonales y gestión de personal
Resolución de problemas
AutoCad
REVIT
Photoshop
Illustrator
Indesign
Sketchup
Enscape for Sketchup
Microsoft Office
2021 - 2023
2021 - 2021
2013 - 2018
Español
Inglés
Diplomado en Habitabilidad, Espacio Público y Ciudades
Seguras y Resilientes desde una perspectiva interdisciplinaria.
Facultad de Arquitectura. UNAM
Diplomado en Emprendimiento en Proyectos de Diseño
Facultad de Arquitectura. UNAM
Egresada de la Facultad de Arquitectura. UNAM
En el Taller “Jorge González Reyna”
1. Plan Maestro Bucerias
2. Antigua Pedrera
3. Residencias + Talleres
4. Proyecto en Baja
5. Salon Lounge
6. GGI Taxqueña
7. Pino 592
8. Mercado Chetumal
9. Plan Maestro Minería
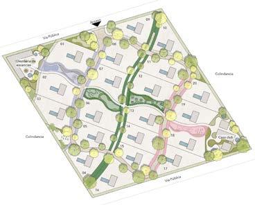
Residencial usos mixtos
Bucerías, Nayarit. 2022
Sup. predio: 8 ha
Construido: 76,700 m2
El plan maestro comprende de 8 torres de departamentos, 18 viviendas unifamiliares, 24 townhouses, una casa club y un edificio de uso comercial y será desarrollado en 8 fases.
El predio cuenta con una ubicación privilegiada por su cercanía con el mar y presenta una topografía bastante pronunciada.
Algunas de las premisas a considerar para el diseño fueron, la priorización de las vistas y orientaciones hacia el mar, la preservación e integración de la vegetación existente, vialidades de bajo impacto y la generación de amenidades exteriores como sistemas de espacios abiertos.
En colaboración con Arquitectura 911
Áreas verdes condominios
Parques y jardines
Vialidades
Banquetas
Vivienda vertical
Vivienda unifamiliar
Vivienda townhouse
Hotel
Hospital
Lote comercial
Vivienda vertical
Townhouses
Casas
Simbología
Vivienda unifamiliar
Vivienda townhouse
Vegetación alta
Cubresuelos
Prado
Vegetación alta Cubresuelos
Prado existente
Vegetación
Vegetación existente
Arbolado
Palmeras N
Arbolado existente
Arbolado propuesto
Palmeras
Arbolado propuesto
VIVIENDA TOWNHOUSE
COMERCIO
Residencial usos mixtos
La Pedrera, Guatemala. 2021
Sup. predio: 5,337 m2
Construido: 20,574 m2
El proyecto se desarrolla en el Lote II-4 de la Fase 1 del Plan Maestro de Antigua Pedrera. La tipología del lote es de bloque de manzana con un patio central y edificios perimetrales; esta ubicado frente a la plaza y la capilla del conjunto por lo cual se tenía que generar una transición en la escala teniendo los edificios más bajos hacia ese frente.
Para el diseño del proyecto se tomaron en cuenta los principios de diseño establecidos en el Plan
Regulador del plan maestro, los cuales buscan garantizar la compatibilidad entre los diferentes edificios y al mismo tiempo generar una arquitectura diversa, con materiales nativos, proporciones, jerarquías,etc.
En colaboración con Arquitectura 911
Uso mixto
Baja California. 2024
Sup. predio: 1,000 m2
Construido: 2,000 m2
Este proyecto integra un conjunto de residencias con talleres en un entorno vibrante de Baja California, combinando espacios de vivienda y trabajo en un desarrollo de 2,000 m² construidos. Con una propuesta arquitectónica que fomenta la creatividad y la interacción, la planta baja activa cuenta con frente comercial que dinamiza el espacio urbano, promoviendo una comunidad productiva y conectada. Diseñado para emprendedores, artistas y creadores, el proyecto equilibra funcionalidad y diseño, integrando materiales locales y una estética contemporánea que dialoga con el paisaje de la región.
En colaboración con GENSLER Mexico
Conjunto residencial
Baja California. 2024
Sup. predio: 3.8 ha
Construido: 23,000 m2
Este proyecto de lotificación abarca 3.8 hectáreas en Baja California, concebido como un refugio sensorial donde la naturaleza y la arquitectura coexisten en armonía. Inspirado en la riqueza de los jardines aromáticos, cada lote está inmerso en paisajes de lavanda, romero, jazmín y salvia, creando un ambiente envolvente que estimula los sentidos y promueve el bienestar. La distribución del desarrollo sigue un diseño orgánico que respeta la topografía natural, integrando senderos perfumados y espacios abiertos que invitan a la conexión con el entorno. Un concepto que redefine la vida residencial, fusionando confort, sustentabilidad y el poder evocador de la naturaleza.
En colaboración con GENSLER Mexico
CONCEPTO Franjas Aromáticas
1. Sendero de Lavanda y Salvia
2. Sendero de Romero y Damiana
3. Sendero de Rosa y Limoncillo
4. El Jardin Secreto
Interiores
CDMX. 2024
Este proyecto de interiores fusiona elegancia y versatilidad en un salón lounge que integra zonas diferenciadas para distintas experiencias. El diseño incluye un área de comedor con buffet, un bar sofisticado, una acogedora zona lounge y un espacio de concentración, logrando un equilibrio entre socialización y privacidad. Materiales cálidos, iluminación ambiental y mobiliario ergonómico crean una atmósfera envolvente que invita al encuentro y la relajación. Un concepto diseñado para brindar confort y fluidez, adaptándose a diferentes momentos del día y necesidades del usuario.
Comercial y residencial
Ciudad de México. 2022
Sup. predio: 37,500 m2
Construido: 150,000 m2
El predio colinda con la vialidad principal de Calzada de tlalpan, la estación del metro, el paradero de autobuses y la central camionera. El proyecto consta de 3 niveles de comercio y 5 torres de departamentos que se desarrollarán en fases posteriores. El partido arquitectónico responde a un patio central que sirve como áreas verdes y al mismo tiempo genera un nuevo paso de conexión, invitando a los usuarios del transporte público y la zona a transitar por zonas más seguras y controladas que los resguardan del caos inmediato del exterior.
En colaboración con Arquitectura 911
Residencial
Ciudad de México, 2022h
Sup. predio: 3,029 m2
Construido: 25,500 m2
El proyecto se encuentra ubicado dentro de la colonia El Arenal.
La fachada del edificio se compone de 3 partes; basamento (PB - N6), cuerpo (N7 – N13) y remate (N14 – N17). Siendo el basamento y cuerpo más sólidos, teniendo una modulación regular que corresponde con los espacios interiores de las viviendas y a base de prefabricados de concreto. Finalmente, el remate corresponde con la misma modulación de las viviendas, sin embargo, contempla una proporción mucho más abierta con elementos sólidos mucho más esbeltos.
Al interior del predio y como parte del área libre se genera un patio interior que funcionará como parte de amenidad y encuentro de la comunidad, además de permitir la ventilación e iluminación de las unidades de vivienda.
En colaboración con Arquitectura 911
Ciprés
Infraestructura y comercio
Othón Puerto Blanco, Chetumal. 2021
Sup. predio: 12,990 m2
Construido: 8,732 m2
El proyecto forma parte del Programa de mejoramiento urbano de SEDATU en Othón Puerto Blanco. El cual consistía en un nuevo proyecto para el Mercado Lázaro Cárdenas.
La estructura del edificio fue parte importante del diseño, el cual surgió a partir de un módulo que se replicaba y respondía a las dimensiones requeridas por los locales comerciales.
Dicha estructura es a base de concreto aparente, con armaduras de acero y parteluces. La materialidad de la fachada se componía en dos partes, usando tabique cerámico en la parte inferior y concreto enduelado aparente en la superior con algunas perforaciones para ventilación natural. En la propuesta también se contemplo un nivel tipo mezzanine destinado a salones de eventos y servicios para los locatarios.
En colaboración con Arquitectura 911
Isla de local tipo 1
Programa de Mejoramiento Urbano | Othón P. Blanco
Residencial usos mixtos
Ciudad de México, 2019
Sup. predio: 14,962 m2
Construido: 106,540 m2
El proyecto esta ubicado en la colonia Escandón en las antiguas oficinas de ICA, construidas por el Arq. José Villagrán, por lo que se buscaba preservar e integrar al diseño 3 de los edificios existentes por su valor histórico.
Se diseñó un proyecto de usos mixtos, teniendo vivienda, comercio, oficinas, hospital y hotel. El proyecto responde al contexto haciendo una transición por medio de variaciones de alturas que van cambiando, teniendo los edificios más altos hacia las vialidades principales y los edificios más bajos hacia las secundarias.
En colaboración con Arquitectura 911 y Jsa