Creche escola do Pedregulho

Page 1


ProjetoderevitalizaçãoerestauraçãodopostodesaúdedoPedregulho

ProjetoCrecheEscola
GabrielCabral|GabriellyLoureiro|PamelaGomes

Oprojetopropostoestálocalizado nobairrodeSãoCristóvão-Benfica,especificamentecompõeoConjuntoHabitacionaldoPedregulho.

postodesaúde+ áreaimediatadapraça

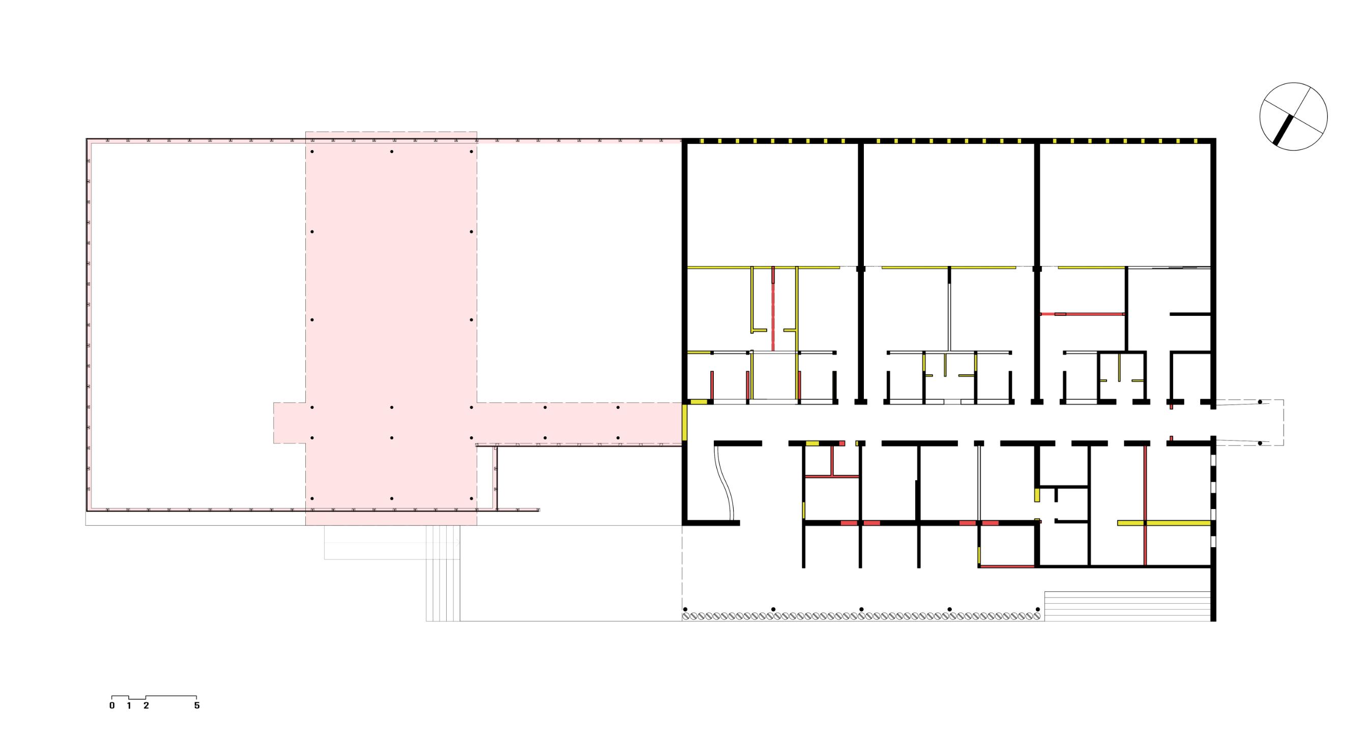
Projetooriginal-1950

ImagensdoatualestadodoPostodeSaúde Abril/2023

AescolhadoConjuntodoPedregulhoparaRestauraçãoeRevitalizaçãopartedodesejodemantervivaahistóriadeumprojetosocialdedestaque,quefoi pensadopara proporcionar qualidadedevidaaosseushabitantes.

Olocalescolhidoparaoprojetoéooriginal Posto deSaúdeesuaáreaimediataquejáfoi umapraça,mashojeseencontradegradadaesemuso. Apropostaétransformaressa áreaemuma Creche quepoderáatender90 criançasde0-5anosemturnointegral.

ConjuntoPrefeito MendesdeMoraes

Oconjuntooriginalmentecontavacom umacreche,masnãofoiconstruída. O projetodoConjuntovisavaproporcionaràsfamíliastodaaestrutura necessáriaparahabitaçãodequalidade,serviçosdesaúde,educação,elazer. Comporta3blocosdehabitaçãounifamiliares,umaescoladeensinofundamental, umginásio,umpostodesaúde,umalavanderiacoletivaeummercado.

Todooprojetofuncionoubemporvoltade 20anos,apósessetempo,opostodesaúde,alavanderiaeomercadotiveramseus serviçoscomausênciademanutenção, quecomotempolevouàsuadeterioração.

HabitaçãoPopular

Projeto:AffonsoEduardoReidy

CarmemPortinho

Ano: entre1946e1950

Local: Benfica,SãoCristóvão

Aescolhadoprojetodecreche surgedepoisdaanálisedogrupo sobreoprojeto,ondesepercebeuanecessidadedeumlocal educacionalparacriançasde0 a5anosdentrodoconjunto, principalmentevisandoohoráriocomercial,queatendaos paiseresponsáveisquetrabalhamehabitamestelocal.

Pensandonodeslocamentoenalogísticadasfamíliasquetrabalham, fizemosumlevantamentodascrechesexistentesnobairroemumraio de1km,edentrodessapesquisa, cadacrecheatendeatécertafaixa etária,nãoabrangendoàsidadesentre0e5anose11meses.

Todasasintervençõessãomarcadaspelacor,elementolúdicoquefazpartedodesenvolvimentodacriançaequeremetemàscoresutilizadasnaobradoConjuntodoPedregulho.

ProjetodeRestauração: intervençõesquerespeitemeremetamaoprojetooriginalcom elementoscontemporâneos.

ProjetodeRevitalização: novadinâmicadoespaçopréexistente transformando-oemcreche,trazendovitalidadenovamenteaolocal.

Fachadaem2023
Fachadaem2004

Modulaçãodosazulejos 0,15mx0,15m.

Usode3volumetriaseespessurasdiferentesparagerarrelevo.

Modulaçãode0,25x0,25m.

O painelcerâmico originalnãoexistemais,dessaforma, oprojetopropõeumnovopainel, comumareleituradaformaquadrada,gerandodesenhoslúdicos,dinâmicosecoloridos.

Os brises verticaisnãoexistemmais,dessaforma,apropostaétrazerdevolta esseelemento,principalmente,paraoconfortotérmicointeriordestaárea. Estruturametálicadeperfil4cmx4cm.

Painelcom1cmdeespessura.

Os painéisperfurados sãocriadosdeformaqueconversemcomopainelperfuradooriginaldafachadaposterior.

Painelcompósitoconstituídoporumamistura departículasdemadeiraecimentodesignado deCementBondedParticleBoard(CBPB).

Encaixeporestruturasmetálicasparafusadas nochãoeentreospainéis.

Modulaçãodospainéis:2,10mx1,20m

CrecheEscola

Aintervençãodacrecheserelacionadiretamentecomapraça, ondenosapropriamoscomoextensãodoespaçoconstruído. Interior,vistadocorredor-2023

Essaintervençãoémarcadapelocorredorinternodacrechequeseconfiguracomoumeixoqueatravessatodo projeto,esseeixoseprolongadeformaainteragirdiretamentecomoespaçoexterno,gerandoumespaçoaberto.

Creche |Áreaexterna

Alémdochão,acoberturapotencializaoeixoeconformaoespaçoexterno,gerandoespaçosdesombra.

Coberturadeconcretoarmado,sustentadaporpilaresde15cm.

Aáreaexternapropõeainteraçãodas criançascomochão,comanaturezae formaslúdicasdebrincar.

grama granilitefosco

emborrachadomonolítico

cobertura

Amaterialidadedochãoédivididaem momentos,comdiferentesmaterialidades; grama,granilitefosco, monolítico emborrachado.

Esguichos,elementoderecreação

Suaáreaégeradacompisosdrenantespermeáveis,moduladosemplacasde1,00x1,20,epossuiacasademáquinasqueabrigatodoofuncionamentodosesguichosembaixodessaárea.

OprojetoprevêumturnointegraldeCrecheePréEscola,contandocom:

- 1berçário para10bebêsde0a1anodeidade - 2salas deaula para20criançasde2a3anosdeidadeemcadasala - 2salas deaula para20criançasde4a5anosdeidadeemcadasala

Totalizando 90alunos

Áreaexterna Pátios

Salasdeaula Serviços

Oprogramadacrechefoiadaptadoaoespaçopré existente,compoucasmodificaçõesconstrutivas.

Aintervençãonassalasocorreudemodoa potencializaraqualidadedeiluminação, ventilaçãoeintegração comoespaçoexterno.

Cadasaladeaulaleva paraumespaçointernodeinteração,vedadospelarestauração daparedeperfurada.

Assalassãoconectadaspormeiodeumaporta decorrerquepodeserabertadeformaajuntar asduasturmas.

Internamente,nassalas,asparedesqueforam construídassãoemalvenariaepintadas,destacandoaintervenção.

GabriellyLoureirodosSantos
GabrielCabraldaCruzRodrigues
PamelaGomesdeSouza

Turn static files into dynamic content formats.

Create a flipbook
Issuu converts static files into: digital portfolios, online yearbooks, online catalogs, digital photo albums and more. Sign up and create your flipbook.
Creche escola do Pedregulho by Pamela Gomes - Issuu