FACULTAD DE ARQUITECTURA

PAMELA DUNNIE MORAN RAMIREZ
CONTACTO
Código UPC:
Correo electrónico:
Correo electrónico:
Teléfono:
Pamela Dunnie Moran Ramirez
Estudiante de Arquitectura
PERSONAL
Fecha de nacimiento:
Lugar de nacimiento:
Edad:
21 de noviembre de 2002
Lima, Perú 20 años
Soy estudiante de la carrera de arquitectura que cursa su 8vo ciclo en la Universidad Peruana de Ciencias Aplicadas.
Con capacidad de liderazgo y trabajo en equipo, con proposicion de soluciones eficientes y eficasez con el fin de desarrollar un buen proyecto arquitectonico.
202010758
u202010758@upc.edu.pe
pamela21moran@gmail.com
968 194 771
SketchUp
Lumion
AutoCad
V-Ray
Photoshop Revit Rhinoceros
Twinmotion
Básica:
AbrahamValdelomar (YMCA)
Trilce San Isidro
Superior: UPC Facultad de Arquitectura
100% 90% 10% Español Ingles Otros
Elevaciones
Este proyecto consisti en 4 espacios tectnicos y espacios estereoticos reacionaos entre si con un espacio jerarquizao y toos ubicaos a istinto nive inscritos en un cubo virtua.
Se busco eiante e uso e ineas ograr un equiibrio en toas a fachaas.
E inicio e este proyecto consisti en crear un hbitat y acceso para e artista Roy Lichtenstein en un terreno e 12x24 en one e artista tuviera un rea socia, un rea e servicio y un rea ntia.
Para e trabajo fina se aai una gaera que se intercounicara con e hbitat eiante un nexo. es a gaera cuenta con saas e exposicin 2, , ha y recepcin.
Elevaciones
Este proyecto consisti en a creacin e un espacio e eitacin en un terreno rocoso iviio por un vaco e 2 etros con reacin a ar.
Este en isear un coercio una zona e coo transicin proteccin inspirao e os a a zona
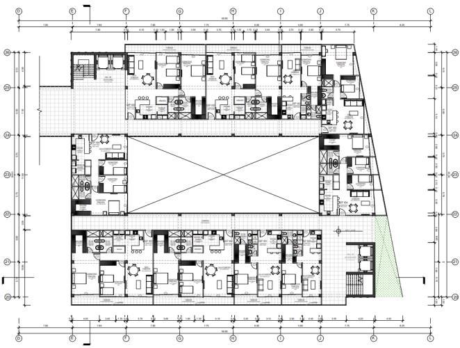
Este proyecto consisti en isear una eiateca que cuente con un rea servia y un rea serviora unia a travs e un rea intereiaria, tenieno toas as circuaciones verticaes en e espacio servior
Esta eiateca se epaza en Pachacaac tenieno coo
pbico objetivo a os nios y aoescentes con concepto e conexion e fujos a traves e curvas.
Render
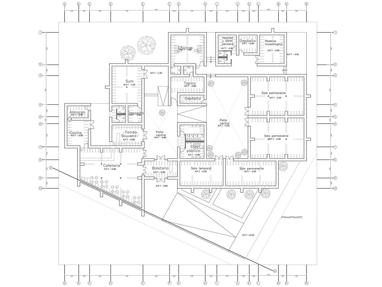
Este proyecto consistio en e iseo e un Museo e Sitio ubicao en Cahuachi-Nazca, cuya finaia es a puesta en vaor e centro cereonia e Cahuachi conocia coo a antigua capita econica y potica e a cutura Nazca. Se busco a apitu e espacios para saas e exposicin y cafetera. Tenieno 2 patios centraes coo nceos organizaores
Elevaciones
Detalles constructivos
es, se busca esarroar un proyecto que se integre con e paisaje y que no copita con e entorno, brinano vistas priviegiaas e entorno a as zonas as concurrias coo a cafetera.
Cortes
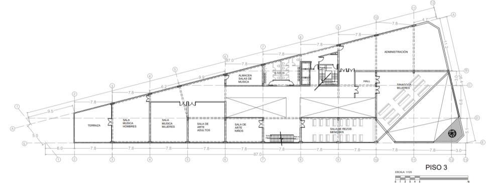
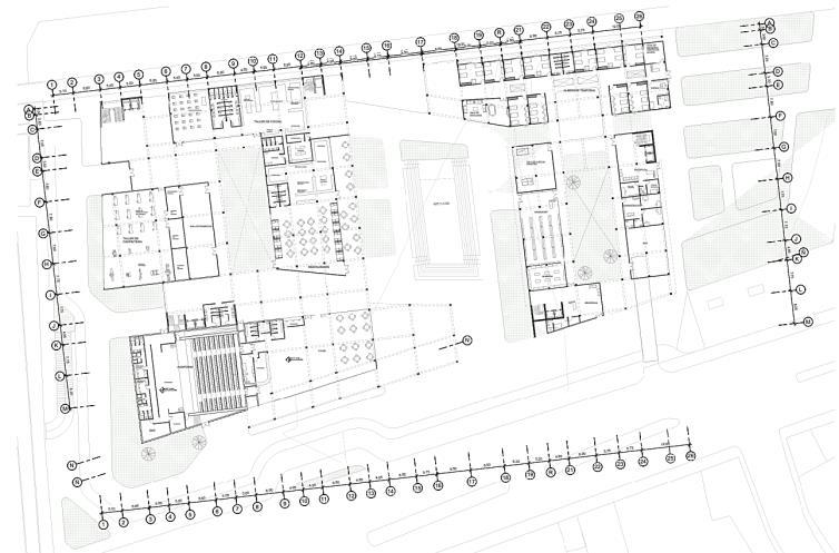
E proyecto consisti en un centro reigioso juo, un ugar socia y e cuto en e que se busca acoger a 50 personas creyentes e juaso. Esta eificacin cuenta con iversas reas para e esarroo fsico, enta y espiritua e os usuarios. Brinano un rea reigiosa principa (Sinagoga) coo eje funaenta
Plano de ubicación
E proyecto se ubica e as avenias Universitaria y La Mar one actuaente esta ubicao un centro coercia
Elevaciones Coo concepto se tuvo un escaonaiento y a caneabro e enorah
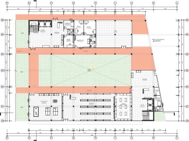
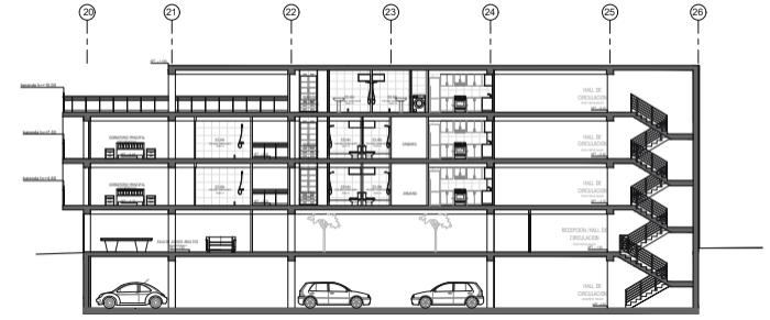
E prograa esta copuesto por un paquete socia, cutura, ritua, e servicios y viviena, buscano una iferenciacin e estos por pisos y ubicacin. istribuyeno os abientes con ayor agoeracin en as zonas s accesibes y os abientes s privaos en os tios pisos.
E proyecto consisti en un centro cutura ( pisos) y en una resiencia (4 pisos) con un concepto e conectivia eiante fujos que buscaban reacionarse eiante un anfiteatro centra.
esarroano a ayor escaa e auitorio y a viviena.
Corte escantillon
bos cuentan con reas veres entro e os eificios sieno este un espacio e conexin que busca invoucrar a usuario con e entorno.
Corte
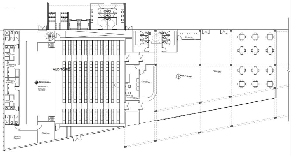
E auitorio fue iseao con capacia
e 265 personas en e eificio cutura. Este se estaca con un acabao texturizao e concreto
Elevaciones
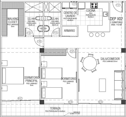
VIVIEN
Viviendas tipo 1 y 2
E sector e viviena cuenta con reas e recreacin en e prier nive y con 2 tipos e epartaentos buscano responer as principaes necesiaes e usuario