Skip to main content

Pablo Kaprielian Architecture/Urban Design Portfolio

Page 1


portfolio.

pablo kaprielian

EDUCATION

Master of Science: Architecture

California State Polytechnic University

EXPERIENCE

Apr. 2025 - Present Oakland, CA

Nov. 2022 - Nov. 2024

San Francisco, CA

Jun. 2022 - Sep. 2022

Seattle, WA

Mar. 2021 - Sep. 2021

La Habra, CA

SKILLS

MS Office

CONTACT

Phone: 619 398 5464

Email: pablokap14@gmail.com

San Francisco, CA

Bachelor of Arts: Urban Studies

San Diego State University

Planning Associate

KTGY Group

Designer I

RRM Design Group

Architectural Intern

MG2 Design

Permit Technician I City of La Habra

Word | Powerpoint | Excel

Spanish Adobe CC

Photshop | InDesign | Illustrator

Sketchup | Revit | Rhino 3D | AutoCad | Lumion | Enscape

LANGUAGES

English LEED Green Associate

Urban Land Institute (ULI)

Native

French CAD/Render Native

Intermediate

content.

PLATFORM X

Adaptive re-use project of an abandoned oil rig in Santa Barbara, CA

MISSION BAY DRIVE TOD

Transit oriented development along San Diego's new blue line trolley extention

SANTA MARIA AIRPORT OFFICE PARK

Office park masterplan in Santa Maria, CA

CLEARVIEW

HOUSING DEVELOPMENT

Redevelopment of the existing GoPro Headquarters at 3000

Clearview Way in San Mateo, San Mateo County.

02

05 01 04

03

TRINITY MIXED-USE

Mixed-use development with ground floor retail and 23 3-Bed units.

359 W GRAND, GROVER BEACH CA

60 unit mixed use building in Grover Beach, CA

06

FOLSOM RIVER DISTRICT MASTERPLAN

Riverfront revitalization project in Folsom, CA

SDSU INFILL DEVELOPMENT VISION

A sustainable vision to prioritize development closer to the SDSU Transit Center

01.

Academic Work

Adaptive Reuse Gallery/ Research Center

Santa Barbara, CA

PLATFORM X

Located on decommissioned Platform Holly, an oil Rig off the coast of Santa Barbara, California. Inspired by the formations of seashells and barnacles’ natural growth, Platform X is a proposed biological marine research center for the adaptive reuse project. The immersive research center offers wet and dry laboratories, micro-living units for the researchers, a large atrium/ gallery space for visitors to admire, and much more.

02.

Professional Work

Vision/Masterplan

Santa Maria, CA

SANTA MARIA AIRPORT SPECIFIC PLAN

Specific plan to transform a 675.2-acre area into an innovative district for entities in research and development, aerospace technologies, etc.

Project Buildout: 3.26 Million SF

Business Park Services – Combination of Business Park and Service

Commercial zone categories.

Airport Commercial – More of a general retail and services zoning category.

CLEARVIEW HOUSING DEVELOPMENT

Redevelopment of the existing GoPro Headquarters at 3000 Clearview Way in San Mateo, San Mateo County. The master plan is looking to produce around 633,800 square feet of housing spanning across 95 structures, including 73 detached homes and 22 multiplexes.

Professional Work

Residential Santa Maria, CA

The full build-out will produce 222 for-sale units, averaging around 2,146 square feet per unit. Parking will be included for 485 vehicles, including 32 guest spots. In addition 33 units will be affordable to moderate-income households.

Second Floor Plan 1"=32-0"

Fourth Floor Plan 1"=32'-0"

Ground Floor Plan 1"=32'-0"

Third Floor Plan 1"=32'-0"

04.

Professional Work

Mixed-use

Grover Beach, CA

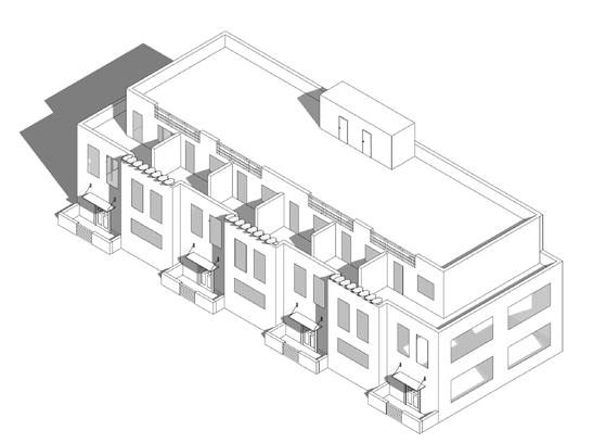
Trinity Mixed-use

New construction of a proposed four-story mixed-use building at 197 Grand Ave. in Grover Beach, CA. The ground floor contains 2,077 SF of commercial/restaurant space, along W Grand Ave., as well residential units only on the non grand frontage. There are 57 total parking spaces provided, 11 of which are on the street. 23 3-Bedroom units.

Role: Putting together entitlement package, gathering site and building stats, plan check comments, early sketches. Note: Renderings were outsourced by the client

05.

Competition

Masterplan

San Diego, CA

MISSION BAY DRIVE TOD

The city of San Diego has opened a new light rail line connecting UCSD to downtown stopping by Pacific Beach, one of San Diego's most popular neighborhoods due its active bars, restaurants and outdoor activities. The area located near the Balboa Ave station mostly consists of car dealerships making it less likely to increase ridership by large numbers. This project plans to bring housing, retail, office spaces and ample open green space all within walking distance.

Food and Culture (Blue)

1. Mission Plaza

Housing and Transportation (Orange)

1. Balboa Lofts
2. Scooter Rental
3. Balboa MTS Trolley Staion 4. Bike Path 5. Pedestrain Bridge
6. Magnolia Village
Bank 8. School
2. Grocery Store
3. Art Gallery
4. Health and Fitness Facility 5. Roof Garden 6. Library 7. Community Garden 8. Pool 9. Cafe/Restaurant 10. Brewery
11. Skatepark

Active Frontages Shared spaces Connectivity Breezeways

Cross Section Through the Neighborhood

The design of the neighborhood combines density and public space at a human scale to provide enough services and social interaction. Contrary to popular belief, most people shun wide-open spaces. We may occasionally enjoy hiking open fields, visiting the beach, or viewing an expansive landscape from a car, but the outdoor spaces we choose to inhabit in a civic context have a high degree of definition of enclosure.

"Eyes on the Street"

With ground floor retail spaces, the greater number of people using and observing a space, and the more diverse they are in their interests, the safer the space will tend to be.

FOLSOM CA, RIVER REVITALIZATION

The Folsom River District Revitalization is a masterplan to reconnect people to the Folsom river by increasing public spaces through economic development and recreation opportunities. Some objectives include providing city gateway enhancements, commit to high quality design,and enhance Folsom's heritage. RRM Design executed a feasibilty study of an opportunity site to design a a boutique hotel with a plaza and retail opportunities along Traders Lane.

Professional Work

Masterplan

Folsom, CA

Beach Front Plaza

New construction of a proposed fourstory mixed-use podium building at 295 W Grand. The building will will have ground floor retail space, and 13 garage spaces with 60 1-2 bedroom residential units above. On site is 30 surface level parking spaces and 14 on street parking spaces.

Fractional Desnity Units

As this project is anticipated to advance key economic development goals, it also implements important housing element policies that reflect the City’s updated Development Code. The updated code adopted a concept known as fractional density, which provides an incentive to develop smaller units. Fractional density is permitted in all medium and highdensity zones throughout the City and within commercial zones that allow mixed-use projects, such as West Grand Avenue.

Ground Floor Plan

Second Floor Plan

PROJECT NAME

PROJECT ADDRESS

Third Floor Plan

Fourth Floor Plan

Roof Top Deck

PROJECT NAME PROJECT

A5 ROOF DECK

Personal work

San Diego, CA

SDSU MAIN CAMPUS INFILL DEVELOPMENT (IN PROGRESS)

SDSU has recently proposed five 13-story towers and one 9 story tower that will house 5,170 students at the end of 55th ave. A recently built apartment complex adjacent to this proposed project and an existing dorm together house another 1,000 students. The site is located on a severe fire risk zone. All within a two block area, there is only one way in and out on a two lane residential street.

This project proposes the much needed housing to be developed closer to the SDSU trolley station and distributed throughout the area where there are plenty of opportunities for infill development in close proximity to the trolley station. By developing in this area, it will promote trolley ridership and strategically elevate College area's urban fabric.

College Ave. (Before)
Infill Development

STREET TRANSFORMATIONS

Proposed

Outdoor Dinning

Planter/seating

Bike rack
Bike lane
Pavers
Bioswale

(619) 398-5464

pablokap14@gmail.com

www.linkedin.com/in/pablokaprielian

@urbanismby_pk

Turn static files into dynamic content formats.

Create a flipbook