Do AGN. Office

Page 1

30

AR05MeetingInterior Elevation 3/12/2022Mohannad A.Ullah1 : 25

AR06OfficeInterior Elevation 3/12/2022Mohannad A.Ullah1 : 25

AR07Work

AR08Board RoomInterior Elevation 3/12/2022Mohannad A.Ullah1 : 25

AR09reception

AR10Flooring planPlan3/12/2022Mohannad A.Ullah1 : 30

AR11Doors & Windows Details5/12/2022Mohannad A.UllahAs indicated

AR12Curtain WallDetails5/12/2022Mohannad A.Ullah1 : 25

AR13DetailsDetails4/12/2022Mohannad A.UllahAs indicated

AR14Schedulesdocuments4/12/2022Mohannad A.Ullah---

General notes:

A. All work performed per these drawings must conform with the latest Edition of state building code, local ordinances, and the ada. Local building Inspector to have jurisdiction.

B. The contractor shall be fully familiar with appropriate documents. Contractor shall review contract documents and notify architect of any Discrepancies in writing before starting work

C. The contractor shall verify existing conditions and dimensions of existing work in field before . Starting work. The contractor shall coordinate all discrepancies with this work, and notify the architect in writing of any discrepancies. Work includes coordination with existing conditions.

Contractor is responsible for informing all inspecting and approval officials of relevant clarifications or changes to the work.

D. Do not scale drawings. Contractor shall review documents and identify in writing to the architect additional dimensions or clarifications required before starting work.

E. Work not by M.A designs, inc. To be included as part of the work:

-Structure work

-Plumbing systems -Acoustic systems -Fire protection systems -Electrical systems -Mechanical systems

-Emergency power systems

F. Mechanical, electrical, plumbing and fire protection symbols reflect desired locations.

G. Repair and finish all existing surfaces as required by new construction.

H. These drawings show design intent only. Means and methods of construction are the responsibility of the contractor. Requests for clarification of the design intent shall be made in writing to the architect.

Project Information

Project

Description :

Do AGN. digital marketing agency, the agency wants to design a new workspace, to contribute to increasing productivity.

W 1 1i Room Name 101 View Name Sheet No. A101 View Name View Name View NameView Name ATR1 1t 1t 1 A101 Material Lighting Fixture Drowing Symbols Interior Elevation Wall Section Callout Level Material Tag Lighting Fixture Tag Room Tag Door Tag Window Tag Curtain Wall Tag Furniture Tag Air Terminal Tag Architectural Abbreviations A ACM ASBESTOS CONTAINING MATERIAL ACP ACOUSTICAL CEILING PANEL ADA AMERICANS WITH DISABILITIES ACT AFF ABOVE FINISH FLOOR AL ALUMINUM ALT ALTERNATE C CJ CONTROL JOINT CMU CONCRETE MASONRY UNIT COL COLUMN CONC CONCRETE CPT CARPET CT CERAMIC TILE CONT CONTINUOUS D DIA DIAMETER DIM DIMENSION(S) DR DOOR DWG DRAWING E EA EACH EL ELEVATION EQ EQUAL EWC ELECTRIC WATER COOLER EX EXISTING EXP EXISTING, PAINT EXIST EXISTING F FD FLOOR DRAIN FE FIRE EXTINGUISHER FEC FIRE EXTINGUISHER CABINET FFE FINISH FLOOR ELEVATION FV FIELD VERIFY G GA GAUGE GALV GALVANIZED GSF GROSS SQUARE FEET GWB GYPSUM WALLBOARD H HM HOLLOW METAL HOR HORIZONTAL HR HOUR(S) I INS INSULATED L LAV LAVATORY M MAX MAXIMUM MIN MINIMUM MIN MINUTES MFG MANUFACTURER MTL METAL N NIC NOT IN CONTACT NO NUMBER NOM NOMINAL NTS NOT TO SCALE O OC ON CENTER OD OUTSIDE DIAMETER OPP OPPOSITE P PF PREFINISHED PT PAINT S SCH SCHEDULE SF SQUARE FEET SIM SIMILAR STC SOUND TRANSMISSION CLASS STL STEEL T TYP TYPICAL U UON UNLESS OTHERWISE NOTED UL UNDERWRITERS LABORATORY V VCB VINYL COVE BASE VCT VINYL COMPOSITION TILE VERT VERTICAL W W/ WITH WC WATER CLOSET WD WOOD
Total area : 166 m ² Owner : Do AGN. Project Name : Do AGN. Office Work Type : Working Drowings Project Type : Interior Design Project Address : New damietta, financial district, Land No. 196/12 Project Issue Date : 5/12/2022 Start Date : 1/12/2022 Building Name : 196+ Sheet List Sheet Number Sheet Name Type Sheet Issue Date Drawn ByScale AR01Original PlanPlan2/12/2022Mohannad A.Ullah1 : 50 AR02Unit Floor Plan Plan2/12/2022Mohannad A.Ullah1 : 50 AR03Reflected Ceiling Plan Plan4/12/2022Mohannad A.Ullah1 : 50 AR04Furniture plan Plan5/12/2022Mohannad A.Ullah1 :
spaceInterior Elevation 3/12/2022Mohannad A.Ullah1 : 25
desk Interior Elevation 3/12/2022Mohannad A.Ullah1 : 25
publishing version *This version does not contain a complete project and documentation, and this version is intended for publishing and marketing only.
online
If you are using your mobile phone, rotate it please.

3.47 4.16 4.94 0.200.10 3.18 0.50 3.55 0.50 4.34

3.29 5.50

9.15

3.68

5.50

1.17

2.91

9.15 1.42

12.87 3.47 4.16 4.94 D2

0.00

0.86 2.070.54 7.94 3.47 9.39

' 1 : 50 Original Plan

0.00

B
C
1 2 3 4 A A
B
C
1 2 3 4 D D 1' 2'
5.50 0.15 14.62 1.020.44 W 1 W 1 W 1 D1 Notes Scale : 1 : 50 Project : Do AGN. Office Owner : Do AGN. Date : 2/12/2022 No : AR01 Sheet : Original Plan Designed By : Mohannad A.Ullah Drawn By : Mohannad A.Ullah
0.300.20 4.99 0.51 0.54 0.51 0.61 0.51 6.95 2.64 0.65 2.97 0.72
-These drawings are revit files. should not be altered by any softwares without prior notice. -All levels are in meters. -All dimensions shown are in millimeters, unless otherwise specified. -All dimensions used to be verified on site. any discrepancies shouldbenotified. -For structure elements refer to str. Drawings. -For pluming and drainage elements refer to mechanical drawings -For hvac elements refer to mechanical drawings. -For lighting fixture refer to electricaldrawings. Sheet Key
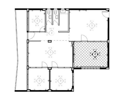
C C C AR05 2 -A 2 -C 2 -B 2 -D AR06 4 -A 4 -B 4 -D 4 -C AR07 3 -A AR07 3 -B-1 3 -C 3 -D 3 -B AR06 5 -A 5 -B 5 -D 5 -C Meeting Room 1 1 2 3 4 A A B B C C office 2 office 3 Work space 4 corridor 5 5.50 3.68 3.29 5.50 9.15 1.42 2.91 1.17 9.15 3.47 4.16 0.200.10 3.18 0.50 3.55 0.50 12.87 3.47 4.16 0.86 2.070.54 7.94 3.47 9.39 1.12 2.91 1.13 0.10 3.04 1.011.01 0.09 0.160.79 2.30 0.80 0.79 2.30 0.59 1.04 0.94 3.09 0.08 0.20 1.85 0.82 0.07 0.60 0.05 0.88 0.51 3.55 0.28 3.18 0.20 3.09 0.23 0.290.33 2.07 0.29 3.32 2.71 0.21 0.11 3.14 0.17 2.03 0.84 0.07 0.22 0.10 2.11 0.050.93 0.22 1.82 1.16 0.51 3.18 0.800.240.750.07 0.14 2.66 0.140.05 0.071.07 D2 D2 D2 D2' CW 8 CW 7 CW 4 CW 5 CW 9 CW 3 CW 1 CW 2 CWD1 W 2 W 2 W 2 W 2 WS1 AR12 WS4 AR13 WS5 AR13 WS6 AR13 1 : 50 Unit Floor Plan

-These drawings are revit files. should not be altered by any softwares without prior notice.

-All levels are in meters.

-All dimensions shown are in millimeters, unless otherwise specified.

-All dimensions used to be verified on site. any discrepancies shouldbenotified.

-For structure elements refer to str. Drawings.

-For pluming and drainage elements refer to mechanical drawings

-For hvac elements refer to mechanical drawings.

-For lighting fixture refer to electricaldrawings.

Rooms Finish Schedule

No.Name Floor Finish skirting Finish Wall Finish Ceiling Finish

1Meeting Room ceramic tiles MarbleWood & PVC cladding

White board & wood grille

2officeceramic tiles Marblepaint & PVC cladding White board

3officeceramic tiles Marblepaint & PVC cladding White board

4Work space ceramic tiles Marblepaint & PVC cladding White & dark board

5corridorceramic tiles Marblepaint & PVC cladding wood grille

6Board Room ceramic tiles lighting skirting paint, Wood & cladding White board

7Kitchenceramic tiles -ceramic tiles-

8WCceramic tiles -ceramic tiles-

9WCceramic tiles -ceramic tiles-

10reception desk ceramic tiles Marblepaint, Wood & cladding White & wood board

Sheet Key

C AR09 1 -A 1 -D 1 -C 1 -B AR08 6 -A 3 -A1 6 -C 6 -B 6 -D 1 2 3 4 D D Board Room 6 Kitchen 7 WC 8 WC 9 reception desk 10 1' 2' 4.94 4.34 0.300.20 4.99 0.51 0.54 0.51 0.61 0.51 6.95 2.64 0.65 2.97 0.72 5.50 0.15 14.62 4.94 1.020.44 3.39 1.020.24 3.01 0.30 2.50 0.02 0.91 1.78 0.63 3.31 1.36 0.600.13 0.800.04 2.20 W 1 W 1 W 1 D1 D3 D3 O1 CW 6 D2 W 2 WS3 AR11 WS7 AR13 Notes Scale : 1 : 50 Project : Do AGN. Office Owner : Do AGN. Date : 2/12/2022 No : AR02 Sheet : Unit Floor Plan Designed By : Mohannad A.Ullah Drawn By : Mohannad A.Ullah
1 2 3 4 A A B B C C 5.50 3.68 3.29 5.50 9.15 1.42 2.91 1.17 9.15 3.47 4.16 4.94 0.200.10 3.18 0.50 3.55 0.50 4.34 12.87 3.47 4.16 4.94 0.86 2.070.54 3.47 9.39 CWH1 CWH1 CWH1 CWH1 CWH1 GMP-WGT CWH1 CWH1 WP1 LBK1 CWH CRP1 CRP1 CRP1 UWH CRP1 FQW 1 SL1 LT4 SP1 SP1 SP1 SP1 SL2 LT5 LT5 LT7 LT7 SP1 LT10 LT9 LT10 LT9 LT10 LT10 ATR1 ATS1 ATS2 ATR2 ATS1 ATR1 ATS1 ATR3 2.74 2.74 2.76 2.78 2.60 2.79 2.60 3.25 2.60 2.76 2.77 1 : 50 Reflected Ceiling Plan
1 2 3 4 D D 1' 2' 0.300.20 4.99 0.51 0.54 0.51 0.61 0.51 6.95 2.64 0.65 2.97 0.72 5.50 0.15 14.62 1 UWH1 UWH1 UWH2 LT2 LT1 LT3 SL1 SL1 LT6 LT6 LT8 LT8 ATE1 ATR1 ATS3 2.60 2.60 2.60 ATE2 Notes Scale : 1 : 50 Project : Do AGN. Office Owner : Do AGN. Date : 4/12/2022 No : AR03 Sheet : Reflected Ceiling Plan Designed By : Designer Drawn By : Mohannad A.Ullah -These drawings are revit files. should not be altered by any softwares without prior notice. -All levels are in meters. -All dimensions shown are in meters, unless otherwise specified. -All dimensions used to be verified on site. any discrepancies shouldbenotified. -For structure elements refer to str. Drawings. -For pluming and drainage elements refer to mechanical drawings -For hvac elements refer to mechanical drawings. -For lighting fixture refer to electricaldrawings. Sheet Key Schedules in separate sheet.
C C C ST1 ST2 ST2 TB1 ST1 ST2 ST2 TB4 ST1 ST2 ST2 TB4 SG1 SG1 ST1 ST1 ST1 ST1 ST1 ST1 ST1 ST1 TB2 ST3 ST3 ST3 ST ST4 ST4 ST5 ST5 ST1 TB2 ST2 ST2 ST2 ST2 ST2 ST2 TB3 TB3 1 : 30 furniture plan

Furniture Schedule

Type Mark DescriptionCountManufacturer

RD1 receiption disk Full specifications attached to the sheets

SG1Storage backdesk full specifications attached to the sheets

6

1 custom made

2 custom made

ST1Office chair LANCASTER Low back, green blue 13 Steelcase

ST2Crossover modern executive supported by a casted aluminium base, Base 5 star powder coated black ral 9005, fabric colline

ST3FIRKANT medium size, shape of the poufs are a hybrid between a square and a circle, Fabric Twill Weave

ST4The DROP 88.5*45.5*54.5 cm 3110, Not Upholstered Salsa 3 Textile / Black

11 Fritz Hansen

ST5pluto stool, Handle in leather, golden sand color 3 inoff

1 AUDREY

TB1Conference table audrey 320 x 120 x 72 cm,thickness table surface:2.2 cm black frame, dark grey top, with 5 electrical_outlets, Seating 10-12

TB2KOKUYO Office Table Workstation WORK FIT 2

TB3Manager set desk : W160 x D70 x H72 cm. Side cabinet : W160 x D40 x H64.5 cm.

TB4Manager set coffee table : W110 x D56 x H60 cm. Side cabinet : W160 x D40 x H64.5 cm.

TB5Woodstock round table diameter 160 h 74 cm table top — linoleum spring green base oak black lacquer feet — metal powder coated black ral 9005 edge — finish white lacquered mdf edge — shape bevelled lacquered mdf

Sheet Key

2 COSMOS

2 COSMOS

C ST1 RD1 TB5 ST4 ST4 ST4 ST4 ST4 ST4 ST4 ST4 ST5 4 Notes Scale : 1 : 30 Project : Do AGN. Office Owner : Do AGN. Date : 5/12/2022 No : AR04 Sheet : Furniture plan Designed By : Designer Drawn By : Mohannad A.Ullah -These drawings are revit files. should not be altered by any softwares without prior notice. -All levels are in meters. -All dimensions shown are in millimeters, unless otherwise specified. -All dimensions used to be verified on site. any discrepancies shouldbenotified.
12 icons of denmark
3 icons of denmark
1 icons of denmark
Level 7 (base) 0.00 Level 8 3.30 3 4 0.46 0.39 2.39 0.17 1.09 1.01 1.01 1.01 0.960.15 0.10 5.41 0.47 2.77 Electric Outlet 0.00 3.25 2.76 SP1 C 0.230.390.21 Level 7 (base) 0.00 Level 8 3.30 3 4 0.49 0.36 1.66 0.44 0.11 0.19 2.56 0.64 4.05 0.46 0.49 2.76 electric Outlet WW 2 WW 2 SP1 0.00 2.76 LT4 3.25 WS4 AR13 2 AR13 B 1 : 25 2 -A 1 : 25 2 -B 1 : 25 2 -C 1 : 25 2 -D

WA1alcobond REVEAL WALL PANELS

WP2GLCessence -N0300- Paper cream

WP3ahmed elsallabpvc marble ML-210 size 122*280cm

WSK1Marmocasa For Marble And Granite

marble London Grey 80cm Ovolo profile 14.5mm Width

WW1custom madeWood - bamboo finished semigloss

WW2modecorNature texture Size : 25.0mm x 120mm x 2440mmNT-701-ANTIQUE COFFEE

Level 7 (base) 0.00 Level 8 3.30 B 0.230.390.21 1.24 1.06 0.790.16 0.96 1.12 1.18 0.59 0.120.630.49 1.51 0.02 0.47 0.00 2.77 3.25 2.76 0.20 0.10 2.55 0.40 WSK1 LT4 SP1 WW 2 WW 2 grass box WP3 Level 7 (base) 0.00 Level 8 3.30 C 0.49 0.20 1.82 0.11 0.33 0.10 0.20 0.21 0.24 0.94 0.94 0.18 0.79 0.16 WW 2 WW 2 WP3 WSK1 0.00 2.54 2.77 3.25 WS5 AR13 Notes Scale : 1 : 25 Project : Do AGN. Office Owner : Do AGN. Date : 3/12/2022 No : AR05 Sheet : Meeting Designed By : Mohannad A.Ullah Drawn By : Mohannad A.Ullah 25 -B 25 -D -These drawings are revit files. should not be altered by any softwares without prior notice. -All levels are in meters. -All dimensions shown are in millimeters, unless otherwise specified. -All dimensions used to be verified on site. any discrepancies shouldbenotified. -For structure elements refer to str. Drawings. -For pluming and drainage elements refer to mechanical drawings -For hvac elements refer to mechanical drawings. -For lighting fixture refer to electricaldrawings. Key plan Sheet Key Walls Materials MarkManufacturerDescription
Level 7 (base) 0.00 Level 8 3.30 A B 0.51 0.30 0.12 0.12 0.58 0.62 0.70 0.18 0.12 0.82 0.74 0.05 0.77 0.75 0.14 0.51 2.74 WSK1 WP2 0.00 2.74 3.25 LT9 WS1 AR12 Level 7 (base) Level 1 2 0.40 0.11 2.44 0.18 0.12 0.51 2.74 0.30 0.91 0.91 0.760.160.21 3.26 LT9 WSK1 WP2 0.00 electric outlet 2.74 3.25 Level 7 (base) 0.00 Level 8 3.30 1 2 0.51 0.62 0.22 0.33 0.20 0.22 0.05 0.05 0.29 0.64 0.12 0.12 0.27 0.44 0.38 0.16 0.05 0.29 0.76 0.250.150.640.200.360.220.620.380.44 3.25 WSK1 WP6 STL2 LT9 WW 2 0.00 2.74 3.25 Level A B 0.51 0.30 0.12 0.87 0.35 0.97 0.13 0.51 2.74 0.23 1.58 1.01 0.240.07 0.10 0.12 2.74 3.25 WW 2 WSK1 WP2 WP6 LT9 WS6 AR13 Level 7 (base) 0.00 Level 8 3.30 A B 0.180.52 1.38 0.170.340.55 2.74 0.51 0.33 0.93 0.44 0.44 0.60 0.29 0.00 0.30 2.74 3.25 WP2 WW 2 WSK1 WP2 Level 2 3 0.51 0.62 0.22 0.33 0.20 0.33 0.28 0.46 0.18 0.12 0.12 0.15 0.55 0.06 0.33 0.16 1.10 0.16 0.180.200.120.450.280.370.740.120.440.13 0.08 0.17 0.51 2.62 1.10 1.64 0.51 3.45 WW 2 WP6 0.30 0.00 2.74 3.25 LT9 STL2 WSK1 WW 2 1 : 25 4 -A 1 : 25 4 -B 1 : 25 4 -D 1 : 25 5 -A 1 : 25 5 -C 1 : 25 5 -D

WP2GLCessence

WP5GLCessence -R84040- Ancient Blue

WP6GLC Bloom -Y21050- Morning sun

WW2modecorNature texture Size : 25.0mm x 120mm x 2440mmNT-701-ANTIQUE COFFEE

(base) 0.00 Level 8 3.30 3 AR13 Level 7 (base) 0.00 Level 8 3.30 A B 1.35 0.10 1.29 0.51 2.74 0.51 1.51 1.08 0.270.14 WW 2 WSK1 LT9 0.12 2.74 3.25 WS6 AR13 Level 7 (base) 0.00 Level 8 3.30 Level 7 (base) 0.00 Level 8 3.30 2 3 0.51 2.74 0.51 0.04 0.50 1.90 0.18 0.12 electric outlet WSK1 WW 2 WP2 WW 2 LT9 0.00 2.74 3.25 7 (base) 0.00 Level 8 3.30 Notes Scale : 1 : 25 Project : Do AGN. Office Owner : Do AGN. Date : 3/12/2022 No : AR06 Sheet : Office Designed By : Mohannad A.Ullah Drawn By : Mohannad A.Ullah 1 : 25 4 -C 1 : 25 5 -B -These drawings are revit files. should not be altered by any softwares without prior notice. -All levels are in meters. -All dimensions shown are in millimeters, unless otherwise specified. -All dimensions used to be verified on site. any discrepancies shouldbenotified. -For structure elements refer to str. Drawings. -For pluming and drainage elements refer to mechanical drawings -For hvac elements refer to mechanical drawings. -For lighting fixture refer to electricaldrawings. Key plan Walls Materials MarkManufacturerDescription
-N0300- Paper cream
WP4GLCessence -B10050- Warm water
14.5mm Width
WSK1Marmocasa For Marble And Granite marble London Grey 80cm Ovolo profile
Sheet Key
Level 7 (base) 0.00 Level 8 3.30 1 2 3 1' 2' 0.10 1.82 1.15 0.54 2.72 0.420.10 6.86 0.49 0.16 2.48 0.12 WP2 WSK1 WP2 WW 1 WP2 0.00 2.60 3.25 2.76 SP1 SP1 0.49 1.59 1.04 0.13 LT5 C 0.13 1.05 0.13 0.10 0.10 1.25 0.23 0.31 2.76 0.260.220.580.24 87.51 ° 2.79 WP2 Level 7 (base) 0.00 Level 8 3.30 1 2 3 0.29 0.98 0.98 0.98 0.600.150.69 1.01 0.840.250.10 6.86 0.49 0.56 2.08 0.12 0.49 2.76 0.00 2.60 2.77 3.25 WP2 WSK1 0.30 2.46 0.090.40 B 0.71 0.24 0.49 0.16 2.25 0.05 0.10 0.07 0.13 0.49 2.76 SP1 Level 7 (base) 0.00 Level 8 3.30 1 2 1' 2' 0.89 0.89 0.890.210.800.100.100.80 1.69 0.03 2.00 0.14 0.98 0.12 2.20 0.590.46 0.46 2.79 2.80 1.91 1.74 WC sign WW 1 WP2 2.79 3.25 0.00 WP4 WP2 LT7 WS3 AR11 WS7 AR13 C 1.19 0.08 0.240.08 0.46 2.66 0.13 9445° 1.27 printed wall WW 1 SP1 2.76 1 : 25 3 -A 1 : 25 3 -B 1 : 25 3 -C 1 : 25 3 -D 1 : 25 3 -A-1 1 : 25 3 -B-1

Walls Materials

MarkManufacturerDescription

WP2GLCessence -N0300- Paper cream

WP3ahmed elsallabpvc marble ML-210 size 122*280cm

WP4GLCessence -B10050- Warm water

WP5GLCessence -R84040- Ancient Blue

WP6GLC Bloom -Y21050- Morning sun

WSK1Marmocasa For Marble And Granite

marble London Grey 80cm Ovolo profile 14.5mm Width

WV1BAUXBAUX Tiles Hexagon Clouds Grey size 25*28.9*14.4cm

WV2BAUXBAUX Tiles Hexagon Clouds White size 25*28.9*14.4cm

WV3BAUXBAUX Tiles Hexagon Earth Brown size 25*28.9*14.4cm

WV4 -Hexagon Wood with Artificial green & grass size 25*28.9*14.4cm

WW1custom madeWood - bamboo finished semigloss

WW2modecorNature texture Size : 25.0mm x 120mm x 2440mmNT-701-ANTIQUE COFFEE

Level 7 (base) 0.00 Level 8 3.30 B 3.32 3.86 0.480.400.18 7500° 10500 ° R052 R052 0.290.230.740.23 0.40 0.95 0.52 WP2 WP4 WP5 0.00 1.17 2.76 2.61 WSK1 WS5 AR13 Level 7 (base) 0.00 Level 8 3.30 C 0.10 0.73 0.66 0.21 0.53 0.71 3.84 LT5 WSK1 Level 7 (base) 0.00 Level 8 3.30 1.15 1.15 0.97 1.69 0.59 wall paper LT7 0.00 3.25 2.79 Notes Scale : 1 : 25 Project : Do AGN. Office Owner : Do AGN. Date : 3/12/2022 No : AR07 Sheet : Work space Designed By : Mohannad A.Ullah Drawn By : Mohannad A.Ullah -These drawings are revit files. should not be altered by any softwares without prior notice. -All levels are in meters. -All dimensions shown are in millimeters, unless otherwise specified. -All dimensions used to be verified on site. any discrepancies shouldbenotified. -For structure elements refer to str. Drawings. -For pluming and drainage elements refer to mechanical drawings -For hvac elements refer to mechanical drawings. -For lighting fixture refer to electricaldrawings. Key plan Sheet
Key
D 0.100.55 1.10 0.15 0.150.56 0.65 2.60 0.65 WP6 Level 7 (base) 0.00 Level 8 3.30 1 1' 2.09 0.110.400.65 1.32 0.65 2.60 2.64 0.10 0.10 0.00 2.60 3.25 0.65 0.07 0.44 1.79 0.20 0.10 0.65 2.60 3.25 Level 7 (base) 0.00 Level 8 3.30 1 1' 0.65 0.52 0.69 0.25 0.14 0.36 0.45 0.10 0.10 2.66 0.80 0.80 0.73 0.14 0.090.43 1.28 0.260.46 WP6 LT8 WW 1 0.00 2.18 2.61 3.25 WS7 AR13 1 : 25 6 -A 1 : 25 6 -B 1 : 25 6 -C 1 : 25 6 -D

MarkManufa.Description

WA1alcobondREVEAL WALL PANELS

WP2GLCessence -N0300- Paper cream

WP4GLCessence -B10050- Warm water

WP6GLCBloom -Y21050- Morning sun

WSK1Marmocasa For Marble And Granite

marble London Grey 80cm Ovolo profile 14.5mm Width

WV1BAUXBAUX Tiles Hexagon Clouds Grey size 25*28.9*14.4cm

WV2BAUXBAUX Tiles Hexagon Clouds White size 25*28.9*14.4cm

WV3BAUXBAUX Tiles Hexagon Earth Brown size 25*28.9*14.4cm

WV4 -Hexagon Wood with Artificial green & grass size 25*28.9*14.4cm

WW1custom madeWood - bamboo finished semigloss

Level 7 (base) 0.00 Level 8 3.30 0.51 0.65 WP2 WW 1 WV1 WV2 WV3 WV4 LT8 0.00 0.10 2.60 3.25 decoration Level 7 (base) 0.00 Level 8 3.30 D 0.300.01 0.42 0.89 0.89 3.01 0.25 0.15 0.10 135.00° WW 1 WP2 Grass box LT8 WP2 2.60 0.00 0.20 Notes Scale : 1 : 25 Project : Do AGN. Office Owner : Do AGN. Date : 3/12/2022 No : AR08 Sheet : Board Room Designed By : Mohannad A.Ullah Drawn By : Mohannad A.Ullah -These drawings are revit files. should not be altered by any softwares without prior notice. -All levels are in meters. -All dimensions shown are in millimeters, unless otherwise specified. -All dimensions used to be verified on site. any discrepancies shouldbenotified. -For structure elements refer to str. Drawings. -For hvac elements refer to mechanical drawings. -For lighting fixture refer to electricaldrawings. Key plan Sheet Key
Walls_Materials
Level 7 (base) 0.00 Level 8 3.30 3 4 2' 0.49 0.56 2.08 0.12 0.49 2.76 0.080.990.050.960.050.960.050.960.050.940.050.85 -0.01 2.76 2.79 3.25 WP2 WSK1 LT2 LT3 LT1 C Level 7 (base) 0.00 Level 8 3.30 3 4 2' 0.48 2.64 0.12 0.49 2.76 1.79 0.65 0.04 2.62 0.26 0.450.010.390.010.390.010.40 116.99° 63.01° 10580 ° 1.62 1.02 3.37 LT2 LT3 LT1 WW 1 WA1 WP2 WSK1 WSK1 -0.01 2.81 2.76 3.25 D 0.100.14 1 : 25 1 -A 1 : 25 1 -B 1 : 25 1 -C 1 : 25 1 -D

WA1alcobond REVEAL WALL PANELS

WP2GLCessence -N0300- Paper cream

WP3ahmed elsallabpvc marble ML-210 size 122*280cm

WP4GLCessence -B10050- Warm water

WSK1Marmocasa For Marble And Granite

marble London Grey 80cm Ovolo profile

WW1custom madeWood - bamboo finished semigloss

WW2modecorNature texture Size : 25.0mm x 120mm x 2440mmNT-701-ANTIQUE COFFEE

Level 7 (base) 0.00 Level 8 3.30 D 1.37 0.58 2.51 0.37 0.48 1.21 0.45 0.40 0.58 0.12 5624 ° 1.70 1.71 0.06 WP2 WW 1 WA1 LT2 LT3 SP1 WSK1 -0.01 1.10 2.76 3.25 Level 7 (base) 0.00 Level 8 3.30 C 0.120.580.50 1.62 0.43 2.13 0.100.520.49 2.76 0.49 0.18 1.90 1.49 1.02 4.82 60 .00° 120.00° 0.98 WW 1 WP2 WSK1 LT1 LT3 2.76 3.25 -0.01 Notes Scale : 1 : 25 Project : Do AGN. Office Owner : Do AGN. Date : 3/12/2022 No : AR09 Sheet : reception desk Designed By : Mohannad A.Ullah Drawn By : Mohannad A.Ullah -These drawings are revit files. should not be altered by any softwares without prior notice. -All levels are in meters. -All dimensions shown are in millimeters, unless otherwise specified. -All dimensions used to be verified on site. any discrepancies shouldbenotified. -For structure elements refer to str. Drawings. -For pluming and drainage elements refer to mechanical drawings -For hvac elements refer to mechanical drawings. -For lighting fixture refer to electricaldrawings. Key plan Sheet Key Walls Materials MarkManufacturerDescription
14.5mm Width
C C C FL1 FL FL3 FL FL8 FL7 FL5 FL4 FL4 FL4 FL6 FL9 FL9 FL4 1 : 30 Flooring plan

Floors Materials

MarkMaterialDescrip.Manuf.Area

FL1Avalon14*86 cm Beige, 1 of 6 Listello Beige II, Herringbone pattern

FL2Corfu15*143 cm Anthracite liner pattern

GEMMA17 m²

GEMMA3 m²

FL3Ego50*50 cm Dark Beige GEMMA12 m²

FL4Orlando14*115 cm BeigeGEMMA108 m²

FL5Avalon(1)14*86 cm Listello Brown I, GEMMA4 m²

FL6Ranch60*60 cm Ivory Stripe & Brown Stripe

GEMMA58 m²

FL7Glory50*50 cm Anthracite GEMMA9 m²

FL8Terra50*50 cm IvoryGEMMA8 m² FL9Escape60*60 cm GreyGEMMA43 m²

C FL2 FL8 8 Notes Scale : 1 : 30 Project : Do AGN. Office Owner : Do AGN. Date : 3/12/2022 No : AR10 Sheet : Flooring plan Designed By : Designer Drawn By : Mohannad A.Ullah -These drawings are revit files. should not be altered by any softwares without prior notice. -All levels are in meters. -All dimensions shown are in meters, unless otherwise specified. -All dimensions used to be verified on site. any discrepancies shouldbenotified. -For structure elements refer to str. Drawings. -For pluming and drainage elements refer to mechanical drawings -For hvac elements refer to mechanical drawings. -For lighting fixture refer to electricaldrawings.
Sheet Key
Avalon Listello Beige II Beige Listello Beige II Corfu Anthracite Ego Dark Beige Orlando Beige Ranch Brown Stripe Ivory Stripe Glory Anthracite Terra Ivory Escape Grey
0.10
0.05
1 : 10 W 1 1 : 15 W 1 3D
2.24 2.13
0.05 0.91 0.05 inside Outside D1 inside Outside 2.25
2.20 0.05 0.70 0.05 0.80 0.04 0.040.580.04 0.04 0.04 0.38 0.42 0.130.330.13 D2 1 : 10 D1 1 : 10 D3
RC Lintel 5 cm 12.5 cm thick brick wall Neoprene noise seal Wood frame Fastener Hard Wood Door seal kit MDF Skirting Hard Wood Nc-2 sponge neoprene Floor layers RC Lintel 5 cm RC Lintel 5 cm Fastener 12.5 cm thick brick wall 12.5 cm thick brick wall framing profile outer profile inner profile outer profile inner profile Glass Notes Scale : As indicated Project : Do AGN. Office Owner : Do AGN. Date : 5/12/2022 No : AR11 Sheet : Doors & Windows Designed By : Designer Drawn By : Mohannad A.Ullah
Schedule Type Mark HeightWidthDescription D12.130.91 custom made D32.200.70 custom made O12.200.91Internal Cased Opening -These drawings are revit files. should not be altered by any softwares without prior notice. -All dimensions shown are in meters, unless otherwise specified. -All dimensions used to be verified on site. any discrepancies shouldbenotified. -For structure elements refer to str. Drawings. -For pluming and drainage elements refer to mechanical drawings -For hvac elements refer to mechanical drawings. -For lighting fixture refer to electricaldrawings. -Doors & windows in Curtain walls are varies, So drawings placed on Curtain walls sheets.
Schedule
Mark Sill Height HeightWidthDescription W11.660.800.60Pvc window, white color, double hinges directions, double glass layers clear glazing, handle stainless steel 1 : 5 Bottom & Top Door detail D1 1 : 5 Bottom & Top window detail D2
Door
Window
Type
D2 3.25 0.052.130.050.97 1.55 0.05 1.55 5.07 0.94 0.05 0.96 0.05 0.96 0.05 0.96 0.05 0.94 0.00 3.25 0.50 0.93 0.93 0.45 2.91 1.20 1.25 2.55 0.681.15 0.05 0.58 0.41 0.13 0.73 0.13 0.41 W 2 0.30 2.85 D2 0.81 0.05 0 . 2 . D2 0.00 3.25 3.25 0.97 0.05 2.13 2.93 0.90 0.05 0.93 0.05 0.90 2.23 1.040.051.04 3.01 0.93 0.05 0.95 0.05 0.93 0.440.131.000.130.44 W 2 0.30 2.53 3.55 0.63 0.05 0.66 0.05 0.66 0.05 0.66 00.05 .63 0.88 0.13 0.76 0.13 0.56 W 2 D2 3.25 0.00 2.74 0.84 0.05 0.86 0.05 0.84 3.25 0.97 0.05 2.13 2.85 0.58 0.10 1.98 1.19 1.09 D2' 0.00 2.85 8mm + 16mm CW 1 CW 2 CW 3 CW 5 CW 6 CW 7 CW 9 CWD1 1 Curtain

MarkLengthDescription

CW15.07aluminum mullion, glazed panel

CW22.91aluminum mullion, glazed panel

CW32.83aluminum mullion, glazed panel

CW42.07aluminum mullion, glazed panel

CW52.93aluminum mullion, glazed panel

CW63.01aluminum mullion, glazed panel

CW73.55aluminum mullion, glazed panel

CW83.18aluminum mullion, glazed panel

CW92.74aluminum mullion, glazed panel

CWD11.19aluminum mullion, glazed panel

2.40 0.491.33 0.05 0.43 2.07 0.96 0.05 0.96 0.53 0.13 0.67 0.13 0.53 W 2 0.30 2.70 0.00 3.25 3.25 0.97 0.05 2.13 84 0.05 0.81 66 5 63 1.20 0.05 1.20 2.55 0.30 2.85 3.18 0.72 0.05 0.74 0.05 0.74 0.05 0.72 2.55 1.240.051.16 0.630.131.000.130.58 W 2 0.30 2.85 covering profile EPDM Gasket Tempered Clear Glass (Sısecam) mm Air Double Glass Galvanized Steel Anchor Vertical Profile Line Aluminium profile Notes Project : Do AGN. Office Owner : Do AGN. Date : 5/12/2022 No : AR12 Sheet : Curtain Wall Designed By : Designer Drawn By : Mohannad A.Ullah Scale : 1 : 25 CW 4 CW 8
Curtain Wall Schedule
Sheet Key -These drawings are revit files. should not be altered by any softwares without prior notice. -All levels are in meters. -All dimensions shown are in meters, unless otherwise specified. -All dimensions used to be verified on site. any discrepancies shouldbenotified. -For structure elements refer to str. Drawings. -For lighting fixture refer to electricaldrawings. -All levels relative base to finish level. Curtain Walls Key plan Door Schedule CW Type Mark Height Description D22.13aluminum frame, glazed panel, chrome handle D2'2.13aluminum frame, glazed panel, chrome handle Window Schedule CW Type Mark Description W2Pvc window, white color, double hinges directions, double glass layers clear glazing, handle stainless steel 1 : 5 Curtain Wall Detail
5 AR13 6 AR13 7 AR13 8 AR13 9 AR13 Countersunk Screw 7.5 cm wooden box wood block Gravel wooden nose artificial grass LED profile bracket PVC Marble 5mm with UV VARNISH Double adhesive layer on base surface & back of the Marble sheet Brick wall Cement Skirting Gypsum board panel Prelude Suspension System AR Bracket Self Tapping Fixing 40 mm adjustment nut 1 : 20 Wall Section 4 1 : 20 Wall Section 5 1 : 20 Wall Section 6 1 : 20 Wall Section 7 1 : 5 Wall Section 4 -Callout 1 5 1 : 5 Wall Section 5 -Callout 1 6 1 : 5 Wall Section 7 1 : 5 Wall 9

Tack Nail 75 mm

Double adhesive layer on base surface & back of the wood wool

Wood Wool

Dryline Screw 25mm bracket profile aluminum Bottom No.3200

Metal Stud Layer Gypsum Wall Board

Dryline Screw 25mm bracket profile aluminum Gap 10mm No.3202

View Name Title on Sheet Target

WS4Callout 1 Wall Section 4 -Callout 1 artificial grass boxwood

WS5Callout 1 Wall Section 5 -Callout 1 pvc marble sheet installation

WS6Callout 1 Wall Section 6 -Callout 1 Ceiling Board installation

WS6Callout 2 Wall Section 6 -Callout 2 wood panels installation

WS7Callout 1 Wall Section 7 -Callout 1 -Indicate LED lighting -Wood wool installation -Wood panels installation

wood panel

Scale

LED profile LED profile
Gap 10mm
Notes
: As indicated Project : Do AGN. Office
: Do AGN. Date : 4/12/2022 No : AR13 Sheet : Details
Section 6 -Callout 1
Dryline Screw 25mm bracket profile aluminum Bottom No.3200 7 -Callout 1
Owner
Designed By : Mohannad A.Ullah Drawn By : Mohannad A.Ullah
Section
1 : 5 Wall Section 6 -Callout 2 8
-These drawings are revit files. should not be altered by any softwares without prior notice. -All levels are in meters. -All dimensions shown are in millimeters, unless otherwise specified. -All dimensions used to be verified on site. any discrepancies shouldbenotified. -For structure elements refer to str. Drawings. -For hvac elements refer to mechanical drawings. -For lighting fixture refer to electricaldrawings.
Callout View List

Ceiling Material

MarkNameManuf.Model Description

CGR1Gray ACOUSTIB UILT

CRP1Red Painted lyra

armstrongACOUSTIBUILT® Item No.2604

armstrongLYRA® PB Concealed Item No.8432PB

CWH1White lyraarmstrongLYRA® PB Concealed Item No.8432PB

FQW1Grille –Forté Quartered Walnut

GMP-WG T Maple grille tegular

armstrongWOODWORKS® Grille – Forté Item No.6336L _ S14

armstrongWoodworks grille tegular Item No.663008

LBK1Lyra BlackarmstrongLYRA® PB CAPZ Item No.8856PBBK

UWH1ULTIMA®W hite

UWH2ULTIMA®W hite 48"

armstrongULTIMA® High NRC Item No.1940

Material : Wet-formed mineral fiber.

Surface Finish : Acoustically transparent membrane with factory-applied latex paint

Material : Fiberglass with acoustically transparent membrane.

Surface Finish : Acoustically transparent membrane with Metallic paint - red with flakes

Material : Fiberglass with acoustically transparent membrane.

Surface Finish : Acoustically transparent membrane with factory-applied latex paint

Material : Fire-rated particle board (FRPB) with real wood veneers. Vertical Grain Fir (NVF) is FRPB with a reconstituted veneer

Surface Finish : Tinted semi-gloss SUSPENSION SYSTEMS : Heavy-duty PRELUDE® XL® HD Main Beam & Cross Tee

Material : Solid Poplar (yellow or hybrid) (RA-COC-003601)

Total Area

6 m²

4 m²

Mark ManufacturerModel

87 m²

22 m²

armstrongULTIMA® High NRC Item No.1943

WP1Bamboo dark custom made

Surface Finish : Tinted semi-gloss 11 m²

Material : Fiberglass with acoustically transparent membrane.

Surface Finish : Acoustically transparent membrane with factory-applied latex paint

Material : Wet-formed mineral fiber with DuraBrite® acoustically transparent membrane

Surface Finish : Acoustically transparent membrane with factory-applied latex paint SUSPENSION SYSTEMS : Prelude® Blizzard White

Material : Wet-formed mineral fiber with DuraBrite® acoustically transparent membrane

Surface Finish : Acoustically transparent membrane with factory-applied latex paint SUSPENSION SYSTEMS : Prelude® Blizzard White

4 m²

4 m²

4 m²

Wood - bamboo finished semigloss 3 m²

Air Terminal Schedule

LIGHTING

Type

Mark ManufacturerModelDescription System Classification

ATE1 Anjos Ventilation BEIP Exhaust Air

ATE2 Anjos Ventilation BEIP Exhaust Air

ATR1 Metalaire ® Reference "Selected Model" in Construction Tab

ATR2 AIRZONE INVALID –Type not loaded via type catalog

ATR3 Metalaire ® Reference "Selected Model" in Construction Tab

ATS1 Metalaire ® Reference "Selected Model" in Construction Tab

ATS2 AIRZONE INVALID –Type not loaded via type catalog

ATS3 Metalaire ® Reference "Selected Model" in Construction Tab

Architectural Linear Diffusers Formations, Linear Concealed Mounting Return Air

Swirl diffuser for modular ceiling Return Air

Adjustable Linear Slot Diffuser - Supply Return Air

Architectural Linear Diffusers Formations, Linear Concealed Mounting Supply Air

Swirl diffuser for modular ceiling Supply Air

Adjustable Linear Slot Diffuser - Supply Supply Air

LT1
LT2
LT3
LT4
LT5
LT6
LT7LENA
LT8
LT9
LT10
SL1
SL2
Type
VIBIA
Vibia
LumenwerxHex
Molto Luce
L&E
LENA LIGHTING
Örsjö
EAE
L&E
L&E
L&E SP1 L&L Luce&LightBitpop

Lighting Fixture

ManufacturerModel DescriptionCount

VIBIA HALO 2341-03HALO is a hanging lamp with three intertwined, straight pieces, which creates subtle, By combining different pieces you can show off hanging lights, matt white lacquer.

Vibia STRUCTURAL, CEILING, TRIPLE Ceiling light where different cubic volumes meet or expand to provide flexible solutions, maintaining spatial order.

LumenwerxHex Pendant - 3 Cells Indirect matte white side reflectors combined with High-Efficiency Lambertian Optic (HLO), SIZE: 2" X 3 7/16" HEXAGON, LED, Pendant with 3 direct cells, CHROMATICITY: STATIC WHITE

Luce Ride Pendant Cubic Ride Ring, . With a profile of only 35x35 mm, LED lighting systems, 750 mm and The converter built into the body creates a minimalist ceiling base, black color in a system,

1

1

-These drawings are revit files. should not be altered by any softwares without prior notice.

-All levels are in meters.

-All dimensions shown are in millimeters, unless otherwise specified.

-All dimensions used to be verified on site. any discrepancies shouldbenotified.

-For structure elements refer to str. Drawings.

-For hvac elements refer to mechanical drawings.

-For lighting fixture refer to electricaldrawings. Full data sheets for any element, attached in family information.

1

1

RLPL105-1 LED RECESSED FLUORESCENT 7

LIGHTING SQ600SQ 600 LED 2900LM PLX DALI I KL. 592X592MM 830 (29W) 2

LIGHTING S. A.Doblo LEDLED, 4000K, OPAL, suspended, Decorative lighting fitting with the effect of indirect light constituting 30% of the total light output of the luminaire.

Örsjö

Baklava Ceiling Lamp M White textile cord. Triple layer shade in off-white textile. The shade changes colour when the light is on. meduim size.

YODAAluminum extrusion housing, Opal diffuser, SMD LED, Natural White Temperature, Installation Pendant, Color RAL 9005.

2

3

4

RLPL109-4 LED RECESSED FLUORESCENT 8 RLPL203-4 LED RECESSED FLUORESCENT 1 RLPL003-1 Thick LED RECESSED FLUORESCENT 2

Luce&LightBitpop C 2.2Indoor ceiling mounted cubic lighting, White aluminium41

Project : Do AGN. Office

Owner : Do AGN.

Designed By : Designer Drawn By : Mohannad A.Ullah

Sheet : Schedules

No : AR14

Scale :

Date : 4/12/2022

Notes

Thank You

Mohannad Rabea Abdullah www.linkedin.com/in/p-mohannad m.abdullah.architect@gmail.com +20155 865 7734 For contact

Turn static files into dynamic content formats.

Create a flipbook
Issuu converts static files into: digital portfolios, online yearbooks, online catalogs, digital photo albums and more. Sign up and create your flipbook.
Do AGN. Office by Mohannad Abdullah - Issuu