
Πανεπιστήμιο Θεσσαλίας Τμήμα Αρχιτεκτόνων Μηχανικών Διπλωματική εργασία Ιούνιος 2022 Φοιτητής: Παναγιώτης Κραβαρίτης Επιβλέπων: Nicolas Remy Σύμβουλος: Ασπασία Κουζούπη
η σφύρα. επανάχρηση του Μηχανουργείου «H Σφύρα» των Γκλαβάνη και Καζάζη
περιεχόμενα
εισαγωγή
ο σύγχρονος τρόπος ζωής αισθήσεις κατανάλωση-υπόλειμμα
τα ελληνικά πάρκα δημόσιος χώρος χρήστες αστικό πράσινο τα εγκαταλελειμμενα
Βόλος ομαδική έρευνα περιοχή ενδιαφέροντος ηχοτοποίο δίκτυο πτηνών
μηχανουργείο Γκλαβάνη-Καζάζη ιστορία του μηχανουργείο εσωτερική εξερεύνηση αποτύπωση κτιρίου πρόταση βασικές αρχές πρότασης δομές τα πατάρια της περιβαλλοντικής εκπαίδευσης
9-23 10-17 11 12-17 18-21 19 20 21 22-23 24-49 25-26 27 28-29 30-31 32-45 34-35 36-39 40-45 46-71 50-61
κτίριο διαμονής
46-49 50-51 52-53 54 55 56-57 58-59 60-61 62-63 62 63 64-67 68 69 70-71 73

Μετά το ξέσπασμα του κορονοϊού στην Ελλάδα (26 Φεβρουαρίου του 2021) μία καινούρια πραγματικότητα άρχισε να αναδύεται, όχι μόνο παγκόσμια αλλά πλέον και στη χώρα, η οποία χαρακτηρίστηκε από προσωπική απομόνωση, τηλεργασία, περιορισμένες μετακινήσεις και φόβο. Οι οθόνες αντικατέστησαν τις ανθρώπινες επαφές και η όραση κυριάρχησε των υπόλοιπων αισθήσεων χρίζοντας την εικόνα ως μια αδιάψευστη πηγή πληροφορίας. Ωστόσο εξ αιτίας της στάσης της κυβέρνησης σε συνδυασμό με τον έντονο πολιτικό προσανατολισμό των ειδήσεων, αλλά και των κοινωνικών αντιδράσεων που ακολούθησαν η αξιοπιστία των μέσων μαζικής ενημέρωσης άρχισε να φθείρεται. Η δύναμη της εικόνας παρόλα αυτά συνέχισε την κλιμακούμενη κυριαρχία της σε μία εποχή που αδιαμφισβήτητα τη χαρακτηρίζει. Σύμφωνα με τον Michel de Certeau, από την τηλεόραση μέχρι τις εφημερίδες, από τις διαφημίσεις μέχρι την επιφανειακή εμπορευματοποίηση όλων των ειδών, η κοινωνία μας χαρακτηρίζεται από μια καρκινική ανάπτυξη της εικόνας, αξιολογώντας το οτιδήποτε από την ικανότητά του να δείξει ή να δειχθεί και μεταμορφώνοντας την επικοινωνία σε ένα οπτικό ταξίδι (1). Η στέρηση του πολυαισθητηριακού βιώματος στα πλαίσια της πόλης εμφάνησε την ανάγκη για τον επαναπροσδιορισμό του σύγχρονου αισθητηριακού διπόλου, αυτού της εικόνας και των αισθήσεων, ένα δίπολο το οποίο χρησίμευσε σαν έναυσμα για αρκετά προσωπικά και συλλογικά ερωτήματα σχετικά με την ιδιωτική και δημόσια μνήμη, την εθνική ταυτότητα τη δειγματοληπτική διαχείριση του παρελθόντος και το σύγχρονο αστικό βίωμα. Τα παραπάνω ερωτήματα ενσαρκώνονται τόσο στα μεταπολεμικά μνημεία όσο και στους απομείναντες δημόσιους χώρους. Το βίωμα είναι άμεσα συνδεδεμένο με το χώρο και με τις προσωπικές εμπειρίες του καθένα, καθώς είναι μια ανάγνωση του χώρου μέσω των αισθήσεων· μία σύνθετη ανάγνωση η οποία εγγράφεται στη μνήμη του ατόμου και διαφέρει από άτομο σε άτομο εξαιτίας της μοναδικότητας του. Ο Edmund Husserl αναφέρεται σε αυτό το θέμα ως διυποκειμενική αντικειμενικότητα εξηγώ-
κατανάλωση και υπόλειμμα
Τα μέσα κοινωνικής δικτύωσης, ειδικά στην εποχή της καραντίνας, έπαιξαν τον ρόλο του κοινοτικού χώρου αντικαθιστώντας τους κατακερματισμένους δημόσιους χώρους της πόλης. Ωστόσο δεν θα μπορούσε ποτέ κάτι τέτοιο να αντικαταστήσει εξ ολοκλήρου την ανθρώπινη επαφή και την ανάγκη, ιδικά των νέων, για την απόκτηση εμπειριών εκτός του σπιτιού. Τα μέσα κοινωνική δικτύωσης, αν και αποτελούν σημαντικά εργαλεία της εποχής μας, στερούνται κάποια βασικά χαρακτηριστικά της ανθρώπινης επικοινωνίας και ταυτόχρονα χαρακτηρίζονται από μια έντονη εμπορευματοποίηση. Τα τελευταία χρόνια οι καταναλωτικές συνήθειες των νέων γενεών φαίνεται πως έχουν ενισχυθεί, κάτι που μπορούμε να παρατηρήσουμε έντονα στην σύγχρονη pop μουσική, η οποία δεν εκφράζει μόνο τις ανάγκες των νέων αλλά και τη στάση του κράτους, το οποίο πάντα είχε ως φετίχ τη δύναμη και τα λεφτά, ένα φετίχ όμως που δεν είχε καταφέρει ποτέ ξανά να εκφραστεί τόσο έντονα, πόσο μάλλον σε ένα είδος μουσικής προερχόμενο από τις χαμηλότερες κοινωνικές τάξεις. Η ελπίδα, παρόλα αυτά πως οι επόμενες γενιές θα έχουν την ανάγκη να έρθουν σε αντιπαράθεση με τις παλαιότερες, δεν αρκεί.
Η καταναλωτικές συνήθειες της εποχής μας είναι βαθιά ριζωμένες στο αστικό-pop life style καθώς δεν ενσαρκώνουν μόνο την προσωρινή ικανοποίηση των πλαστών αναγκών αλλά και την επίδειξη του πλούτου και της δύναμης μέσα από αντικείμενα συμβολισμούς.
Θα μπορούσαμε σε αυτό το σημείο να μιλήσουμε για τη σημερινή κατάσταση των καθημερινών πρακτικών, όμως ίσως να υπάρχει ένα σημαντικότερο ζήτημα το οποίο σχετίζεται έμμεσα με αυτές : η κατανάλωση και το υπόλειμμα. Κάποιες πρακτικές οι οποίες προσπαθούν να ισορροπήσουν τη σχέση μεταξύ της κατανάλωσης και του υπολείμματος θα μπορούσαν να είναι το diy, τα second hand ρούχα και η γενικότερη επανάχρηση του υπολείμματος, είτε αυτό είναι μια ηλεκτρική συσκευή, είτε είναι απλά ένα υλικό όπως πλαστικό, ξύλο, μέταλλο, πέτρα, ύφασμα κ.λ.π.. Αν και αυτή η πρακτική φαίνεται εκ πρώτης όψεως επαναστατική και νέα αξίζει να αναφερθεί πως παρατηρείται από την αρχαιότητα με έμφαση στην αρχιτεκτονική. Ήταν συχνό φαινόμενο για μια πόλη το να πρέπει να ανακατασκευαστεί μετά από τις καταστροφές των πολέμων ή απλά να επαναχρησιμοποιήσει τα υλικά των παλαιών κτιρίων στα νεώτερα.
ανθρώπινη επαφή και μέσα κοινωνικής δικτύωσης νεοσυντηρητισμός
pop lifestyle d.i.y. αναβιώνοντας το ιστορικό αυτονόητο

Η επαναχρησιμοποίηση λίθων αρχαίων ναών (σπόλια) σε μεταγενέστερους ναούς μετέτρεπε τα δημιουργήματα τις ιστορικής αρχιτεκτονικής σε προϊόντα ανακύκλωσης και τα παραδείγματα θα μπορούσαν να γεμίσουν πάρα πολλές σελίδες.
Ένα παράδειγμα που βρίσκετε στο κέντρο της Αθήνας, συγκεκριμένα στη πλατεία Μητροπόλεως, είναι ο ιερός ναός της Γοργοεπικόου ή αλλιώς του αγίου Ελευθερίου. Μέχρι και σήμερα δεν είναι σίγουρο το πότε χτίστηκε ακριβώς, αλλά οι περισσότερες έρευνες αναφέρονται στο δεύτερο μισό του 12ου αιώνα. Είναι ημισύνθετος τετρακίονος σταυροειδής εγγεγραμμένος με τρούλο αθηναϊκού τύπου και η εξωτερική τοιχοποιία αποτελείται από πειραϊκό πωρόλιθο ( με πορτοκαλί) και από μάρμαρο (με κίτρινο)ενώ παρατηρούνται δείγματα διαφορετικών εποχών (Αρχαϊκών, Ρωμαϊκών, πρωτοχριστιανικών χρόνων) (3).Αυτό το παράδειγμα μας φανερώνει την πρακτική της οικοδομικής επανάχρησης, όμως αναφέρεται συγκεκριμένα στην επαναχρησιμοποίηση λίθινων και μαρμάρινων αρχιτεκτονικών μελών, υλικών που μπορούν να ανασυντεθούν εύκολα, χωρίς να προκαλέσουν νέα υπολείμματα. Στην περίπτωση των οικοδομικών υπολειμμάτων της εποχής μας η επανάχρηση των υλικών δεν είναι τόσο εύκολη και μπορεί να προκαλέσει νέα θραύσματα στην περίπτωση που τα υλικά είναι συνδεδεμένα με κονίαμα συναρμογής ή αποτελούνται από σκυρόδεμα. Παρόλα αυτά τα νέα θραύσματα μπορούν να έχουν και νέες χρήσεις. Τα σπασμένα κεραμίδια για παράδειγμα μπορούν να χρησιμοποιηθούν σαν φίλτρα καθαρισμού του βρόχινου νερού , οι πέτρινοι τοίχοι μπορούν να αποδομηθούν και να αναδομηθούν ενώ τα θραύσματα που θα προκληθούν μπορούν επίσης να χρησιμοποιηθούν σαν φίλτρα. Σε κάποιες περιπτώσεις τσιμεντένιων υλικών, όπως είναι τα τσιμεντότουβλα μπορεί να πραγματοποιηθεί κοπή μιας επιφάνειας με τη χρήση των κατάλληλων μηχανημάτων, η οποία αν δεν εμφανίζει ρωγμές μπορεί να ξαναχρησιμοποιηθεί πληρώντας τον ίδιο σκοπό που πληρούσε. Όλα τα παραπάνω υλικά αν μεταφραστούν σε θραύσματα μπορούν να χρησιμοποιηθούν και για πλακοστρώσεις στην περίπτωση της πέτρας και του κεραμιδιού ή και για οδοποιία στην περίπτωση του σκυροδέματος. Στην
σπόλια ο ιερός ναός του αγίου Ελευθερίου
τα σπόλια της εποχής μας





Το βασικότερο πρόβλημα παρόλα αυτά είναι οι καταναλωτικές συνήθειες του πολιτισμού μας οι οποίες δεν θα αλλάξουν μόνο μέσω της τεχνογνωσίας των κατασκευαστών και των επιστημόνων, αλλά και μέσω της εκπαίδευσης και της επικοινωνίας. Οι κατάλληλες υποδομές για την παραγωγή θεωρητικής και πρακτικής γνώσης σε συνδυασμό με δημόσιους χώρους για την επικοινωνιακή εξάπλωση ιδεών, ίσως να μπορούν βοηθήσουν στο πρόβλημα.














Η δικαιοδοσία των περισσότερων οργανισμών χωροθετείται στις φυσικές εγκαταστάσεις που διαθέτουν, σε χώρους δηλαδή που μπορεί να επιβληθεί η θεσμική εξουσία. Η επικοινωνία του χώρου με το ευρύτερο δίκτυο επικοινωνίας και μεταφοράς μπορεί παρόλα αυτά να θολώσει τα όρια της θεσμικής εδαφικοποίησης μέσα από τα υπάρχοντα διαπροσωπικά δίκτια, αλλά και από τα νέα που μπορούν να παραχθούν από αυθόρμητες χρήσεις των δημοσίων χώρων εσωτερικά, αλλά και εξωτερικά των οργανισμών εδαφικοποιώντας έτσι τη λαϊκή εξουσία δίπλα στην κρατική. «Η παραγωγή του κοινωνικού χώρου είναι ταυτόχρονα προϋπόθεση και αποτέλεσμα των κοινωνικών υπερδομών.»(4). Σύμφωνα με τον Lefebvre_Henri Το κράτος και οι θεσμοί που το απαρτίζουν ζητούν χώρους τους οποίους μπορούν στη συνέχεια να οργανώσουν σύμφωνα με τις ιδιαίτερες απαιτήσεις τους. Ο κοινωνικός χώρος δεν μπορεί να αντιμετωπιστεί αποκλειστικά ως εκ των προτέρων προϋπόθεση αυτών των θεσμών και του κράτους. Ο κοινωνικός χώρος ορίζει κοινωνικές σχέσεις εξαιτίας των σχέσεων ιδιοκτησίας (ιδιαίτερα της ιδιοκτησίας της γης) και επίσης είναι στενά συνδεδεμένος με τις δυνάμεις της παραγωγής (που επιβάλλουν μια μορφή στη γη ). Ένα προϊόν προς χρήση και προς κατανάλωση, είναι επίσης και ένα μέσο παραγωγής. Έτσι, το προϊόν, δεν μπορεί να διαχωριστεί ούτε από τις παραγωγικές δυνάμεις, συμπεριλαμβανομένης της τεχνολογίας και της γνώσης, ούτε από τον κοινωνικό καταμερισμό της εργασίας που το διαμορφώνει, ούτε από το κράτος και τις υπερδομές της κοινωνίας. Όταν ένας κοινωνικός χώρος ως ένα συνεχόμενα μεταβαλλόμενο προϊόν το οποίο ταυτόχρονα παράγει προϊόντα σε μορφή τροφής, εμπειρίας, γνώσης και απασχόλησης η κοινωνία στα πλαίσια της κοινότητας μπορεί να παίξει καθοριστικό ρόλο στην ενεργοποίηση του δημόσιου χώρου πόσο μάλλον όταν αυτός ο χώρος περικλείεται από τις κοινότητες αλλά και από την κρατική εξουσία αναπόφευκτα. Με τους κατάληλους χειρισμούς ίσως να μπορούμε να επανενεργοποιήσουμε τα αστικά πάρκα και να τα παραδώσουμε σε μια πληθώρα κοινωνικών ομάδων συνδυάζοντας εργαζομένους, κατοίκους, και επισκέπτες στον ίδιο πολυχώρο μετατρέποντας τον έτσι σε κοινοτικό.
χρήστες
Κρίνοντας από προσωπικές παρατηρήσεις οι χρήστες των ελληνικών πάρκων ποικίλουν και αλλάζουν βάρδιες ανάλογα με τη θέση του ήλιου και όχι τόσο ανάλογα με τις ώρες καθώς τον χειμώνα νυχτώνει νωρίτερα και μάλλον οι χρήστες είναι λιγότεροι εξαιτίας του κρύου. Τις πρωινές ώρες μπορούμε να παρατηρήσουμε κυρίως ηλικιωμένα άτομα, όπως είναι οι γιαγιάδες που ταΐζουν τα περιστέρια, οι παππούδες που μιλάν για πολιτικά και παίζουν τυχερά παιχνίδια, αλλά και οι ιδιοκτήτες των ζώων συντροφιάς που βγάζουν βόλτα τα σκυλιά τους. Τις μεσημβρινές ώρες, ειδικά στα πάρκα τα οποία είναι κοντά στα σχολεία εμφανίζονται νεότερες ηλικίες μαθητών λυκείου, γυμνασίου και δημοτικού οι οποίες δεν έχουν τόσο σκοπό το παιχνίδι που μπορεί να προκύψει αλλά το "άραγμα", δηλαδή την καθιστική επικοινωνία μεταξύ τους. Όταν ο ήλιος πέφτει τα πάρκα μετατρέπονται σε νησίδες συνάθροισης, διασκέδασης αλλά και σε χώρους με περιορισμένη ορατότητα, μια συνθήκη ιδανική για κατανάλωση αλκοόλ και ελαφρών ναρκωτικών. Το βράδυ σε αυτά τα πάρκα μπορεί μετατραπεί πολλές φορές σε πεδίο μάχης και να προκληθούν τσακωμοί που πολύ συχνά θα αρχίσουν με ένα «τι κοιτάς;» και μπορεί να καταλήξουν στο πίσω μέρος ενός ασθενοφόρου. Το φαινόμενο αυτό είναι πολύ συχνό για να μην αναφερθεί και οφείλεται κατά κύριο λόγο στην κατανάλωση ουσιών, στην έλλειψη φωτισμού, στο zoning αλλά και στο ξενόφερτο life style του αμερικάνικου ghetto μεταφρασμένο στην ελληνική πραγματικότητα με συστατικά όπως είναι τα οπαδικά, ο τζόγος, τα ακριβά ρούχα και αμάξια, η πώληση ναρκωτικών και η επίδειξη. Οι λεγόμενοι φιγουρατζήδες, όπως έχουν αναφερθεί και στα ρεμπέτικα, ή αλλιώς κάγκουρες όπως αναφέρονται σήμερα, αποτελούν την πλειοψηφία των παραπάνω ατόμων χωρίς να σημαίνει πως "οι κάγκουρες μαχαιρώνουν" αλλά πως, επειδή οι κάγκουρες βρίσκονται σε μόνιμη κατάσταση βιοπάλης και πίεσης οι εκρήξεις τείνουν να είναι συχνές και να έχουν κανονικοποιηθεί στο γενικότερο pop life style. Μία υποθετική λύση στο πρόβλημα της βίας μεταξύ των κοινωνικών ή και των οπαδικών ομάδων θα μπορούσε να είναι η φουσκωτή μπάλα καθώς έχω παρατηρήσει πως σε αρκετά πάρκα και πλατείες η ύπαρξη μιας μπασκέτας ή ενός τέρματος μπορεί να προκαλέσει το αίσθημα της συλλογικότητας μεταξύ αγνώστων όπως συνέβαινε και στην πλατεία Εξαρχείων.
πρωί μεσημέρι βράδυ η φουσκωτή μπάλα
Μια πρόσφατη δημοσίευση του Ευρωπαϊκού Οργανισμού Περιβάλλοντος την 1η Φεβρουαρίου του 2022 (5)(https://www.eea.europa.eu/publications/who-benefitsfrom-nature-in) κατατάσσει την πόλη του Βόλου στη χαμηλότερη θέση όσον αφορά τα ποσοστά κάλυψης πρασίνου σε σχέσει με τα αντίστοιχα των υπόλοιπων ελληνικών πόλεων. Σε εξίσου χαμηλή θέση βρίσκονται η Αθήνα τα Ιωάννινα και η Θεσσαλονίκη. Ισως όμως στην περίπτωση του Βόλου να υπάρχει ακόμα μεγαλύτερη ανάγκη για δημόσιους χώρους πρασίνου επειδή η συγκεκριμένη πόλη έχει σοβαρό πρόβλημα, όσον αφορά την ποιότητα του αέρα, καθώς η ατμοσφαιρική ρύπανση πολλαπλασιάζεται εξαιτίας της καύσης σκουπιδιών που πραγματοποιείται στην ΑΓΕΤ. Το παραπάνω πρόβλημα σε συνδιασμό με την έλλειψη αστικού πρασίνου βάζουν τον Βόλο στην πρωταγωνιστική θέση της παρούσας μελέτης.


τα εγκαταλελειμμένα
Τα εγκαταλελειμμένα θυμίζουν γεύματα που διακόπηκαν και περιμένουν τους αποικοδομητές, ή απλά πεινασμένους, με νέες νομοτεχνικές (6) να αλλοιώσουν την μικροοικονομία του τόπου. Ο Michel Serres (7) μιλάει για τους ποντικούς της πόλης οι οποίοι εισβάλλουν σε γεύματα ευγενών ,όταν απουσιάζουν, και τρώνε τα αποφάγια . Υπάρχει μια ιεραρχία παρόλα αυτά μεταξύ των παρασίτων, καθώς υπάρχουν και οι ποντικοί των αγρών οι οποίοι προσκαλούνται από τους ποντικούς της πόλης και αν δεν μοιάσουν σε αυτούς γυρνάνε πίσω στους αγρούς. Αν μοιάσουν όμως με τους ποντικούς της πόλης συνεχίζουν πράττοντας αναλόγως (όπως ένας ποντικός της πόλης). Όμως υπάρχει και η συνθήκη του θορύβου, ο οποίος σε περίπτωση που γίνει αντιληπτός από τα ποντίκια, τα τρέπει σε φυγή. Αυτές οι σχέσεις αν γίνουν αντιληπτές ως αλληγορίες, γίνονται φανερές σε χώρους καταλήψεων αλλά και κοινοτήτων, που δεν χρειάζεται απαραίτητα, οι κάτοικοι -παράσιτα, να υποστηρίζουν με λόγια και πράξεις της ιδεολογίες, που κάποιοι προτείνουν. Οι πρώτοι ποντικοί είναι αυτοί που μπήκαν πρώτοι στο χώρο, ως ποντικοί της πόλης, προσκαλώντας ομοϊδεάτες ή απλά φίλους (ποντικοί των αγρών). Ο θόρυβος για αυτούς προφανώς και δεν είναι το τρίξιμο του ξύλου από το ανθρώπινο περπάτημα, όπως πιθανό να είναι για τους ποντικούς, αλλά οι τοπικές αρχές. Ο συνδυασμός του παράνομου και του ασύλου, που έχει ένα εγκαταλελειμμένο και "άσχημο" , σχεδόν αιρετικό, κτίριο το κάνει αρκετά ελκυστικό για τους περίεργους (περί + έργον). Για να κατανοήσουμε καλύτερα αυτούς τους περίεργους, θα πρέπει να συνειδητοποιήσουμε τις φάσεις, ή μάλλον τα κύματα της κατοίκησης, που δέχεται ένα κτίριο πριν και μετά την εγκατάλειψή του. Οι εσωτερικοί χώροι αυτών των κτιρίων σύμφωνα με τις επι τόπου σημειώσεις πιθανότατα δέχονται τέσσερα κύματα κατοίκησης, χωρίς να σημαίνει πως αυτά δεν μπορούν να συνυπάρξουν. Το πρώτο κύμα αναφέρεται στους ιδιοκτήτες ή στους νόμιμους κατοίκους-χρήστες του κτιρίου, το δεύτερο στους κλέφτες οι οποίοι αποσπούν από το κτίριο ό,τι έχει χρηματική αξία, το τρίτο σε άπορους ή τοξικομανείς, οι οποίοι αναζητούν στέγη δίχως θέαση από "τους γύρω" και το τέταρτο σε αρχαιολόγους, μελετητές, ρακοσυλλέκτες ή και καλλιτέχνες που ψάχνουν κάποιο μέρος για να ερευνήσουν ή κάποιο μέρος με αρκετό χώρο για να βελτιωθούν παράγοντας μέσα σε ένα νοητό άσυλο.
οι ποντικοί της πόλης κύματα κατοίκησης
ιδιωτική - δημόσια μνήμη

Όσο

ανακαλύπταμε αυτούς του χώρους τόσο συνδέονταν οι έννοιες της εγκατάλειψης και της διατήρησης. Το σύνολο των αναμνήσεων και των εμπειριών των ανθρώπων, σε περίπτωση που δεν οργανωθεί και συνεχίζεται να διαβάζεται χωρίς την εξαναγκασμένη κατηγοριοποίηση των συνηθειών και των συμπεριφορών ίσως να λειτουργεί αντίθετα από την δημόσια μνήμη ενός τόπου, που έχει σκοπό την ομοιομορφία σε εποχές που η εθνική ενότητα φαίνεται αναγκαία. «Η εφεύρεση της παράδοσης είναι μια μέθοδος επιλεκτικής χρήσης της συλλογικής μνήμης με χειρισμό ορισμένων κομματιών του εθνικού παρελθόντος, καταστολή των άλλων, ανύψωση ακόμα άλλων με έναν εντελώς λειτουργικό τρόπο. Έτσι, η μνήμη δεν είναι απαραίτητα αυθεντική, αλλά μάλλον χρήσιμη. » (8).


ο σκοπός της έρευνας
ομαδική έρευνα
Το 2019 μαζευτήκαμε κάποιοι φοιτητές του Πανεπιστημίου Θεσσαλίας με σκοπό να πραγματοποιήσουμε έρευνα σχετικά με τους κενούς χώρους του Βόλου στου οποίους εμπεριέχονται εγκαταλελειμμένα κτίρια (βιομηχανικά, εμπορικά, δημόσια και κατοικίες), κενά οικόπεδα, γιαπιά και κτίρια, τα οποία δεν μπορέσαμε να τα προσδιορίσουμε όσον αφορά την παρελθοντική του χρήση, και τα σημειώσαμε σαν "άλλα".

πρώτες παρατηρήσεις
μεθοδολογία
Μπαίνοντας σε τέτοιους χώρους, γνωρίζαμε μέσα από τις αισθήσεις μας την παλιά ζωή τους αλλά και την παρούσα ιστορία τους. Είναι ταυτόχρονα άδεια από ανθρώπους και γεμάτα από το αποτέλεσμα της απουσίας τους. Μερικές φορές το ύψος της πόρτας δεν ξεπερνούσε το 1.70 κάτι που προδίδει το ύψος του κατοίκου αλλά και την ηλικία του. Σπίτια απλά μερικές φορές με τον χώρο της τουαλέτας έξω. Οι φωτογραφίες συνήθως σκορπισμένες σαν να έψαχνε κάποιος μια ταφική εικόνα. Φθαρμένοι τοίχοι από τούβλα και πέτρες δείχνουν την εισχώρηση της φύσης στην κτιριακή ύλη. Ο ήλιος είναι ψηλά και αδέσποτα παίζουν στα χορτάρια. Η μεθοδολογία της ομαδικής έρευνας δεν αποτελείται μόνο από την καταγραφή των προσωρινά εγκαταλελειμμένων κτιρίων του Βόλου (χρήση εκτυπωμένης φόρμας για εξοικονόμηση χρόνου, βόλτες, εξερευνήσεις, επί τόπου έρευνα κ.α.), αλλά από συζητήσεις πάνω στα ζητήματα που μας ενδιέφεραν κάτι που κατέληξε στην διατύπωση ερωτημάτων που κληθήκαμε να απαντήσουμε για τον ευκολότερο προσανατολισμό μας. Η συμμετοχική παρατήρηση, οι ελεύθερες συζητήσεις, οι συνεντεύξεις και η χρήση υλικών σπαραγμάτων-δειγμάτων, αποτελούν στοιχεία της αρχαιολογικής εθνογραφίας, σύμφωνα με τον Γ. Χαμιλάκη και στοιχεία της αυθόρμητης προσέγγισής μας. «Όσον αφορά τη μεθοδολογία και την πρακτική της αρχαιολογικής εθνογραφίας, αυτές περιλαμβάνουν όλο το ρεπερτόριο της εθνογραφίας (συμμετοχική παρατήρηση, ελεύθερες συζητήσεις και συνεντεύξεις κ.α.), προσαρμοσμένες στις υλικές πραγματικότητες της αρχαιολογίας, με τη χρήση, για παράδειγμα, των υλικών καταλοίπων ως βιογραφικών αντικειμένων που μπορούν να ανακαλέσουν μνήμες, ιστορίες και βιώματα.»(9).
χάρτης ομάδας

(εργοστάσιο Γκλαβάνη-Καζάζη), ε2(τεχνικό γραφείο), ε3(παραδοσιακά κάγκελα),ε4(καπναποθήκη Αδαμοπούλου,ε5(κίτρινη αποθήκη), ε6(κατάστημα ψηγείων), ε7(συνεργείο αυτοκινήτων), ε8(Ανώνυμη Θεσσαλική Οινοπνευματική Εταιρεία), ε9(κτίριο τρένων), ε10(αναψυκτικά Ερμής), ε11(ανταλακτικά αυτοκινήτων), ε12(άγνωστη), ε13(μηχανουργείο Πλατανιώτη), ε14(κλωστοϋφαντουργεία Τζίμας), ε15(πλινθοκεραμοποιία Αφοι Βάκατου), ε16(ηλιακά sigma)

π1(πλατεία Ρήγα Φεραίου), π2(πλατεία πανεπιστημίου), π3(πλατεία εκκλησίας Αγίου Νικολάου), π4(πλατεία Ελευθρίας), π5(pocket park), π6(πάρκο ΙΕΚ Βόλου), π7(παιδική χαρά), π8(πλατεία Νεολαίας), π9(παρκο Γρ. Λαμπράκη)





μ1(σιδηροδρομικό μουσείο), μ2(μουσείο της πόλης του Βόλου), μ3(απομεινάρια του κάστρου), μ4(μουσείο πλινθοκεραμοποιίας), μ5(μουσείο φυσικής ιστορίας) α1(Πανεπιστήμιο Θεσσαλίας), α2(φοιτητική εστία και λέσχη), α3(ορφανοτροφείο)


ηχοτοπίο θόρυβος Η περιοχή μελέτης βρίσκεται πολύ κοντά σε 3 διαφορετικές πηγές θορύβου, τα τρένα, την οδό Παπαδιαμάντη και τη 2ας Νοεμβρίου. Ο θόρυβος, σύμφωνα με τον χάρτη του συνολικού θορύβου του Κώστα Στεφανάκη, κυμαίνεται από τα 65 μέχρι τα 80 db, κάτι που σημαίνει πως είναι αδύνατον να μην ακούγεται καθόλου στο εσωτερικό του οικοπέδου, στους εσωτερικούς χώρους του οικοπέδου και στην ευρύτερη περιοχή γενικότερα. ηχογραφήσεις Για την καλύτερη κατανόηση αυτού του θορύβου ηχογραφούσα ανά τακτά χρονικά διαστήματα εσωτερικά αλλά και εξωτερικά του κελύφους. Τα σπεκτογράμματα των ηχογραφήσεων, μας δείχνουν πως οι ήχοι των αυτοκινήτων είναι οι δυνατότεροι σε ένταση, καθώς ακούγονται από όλες τι πλευρές του οικοπέδου με έμφαση στα σημεία 1, 2, και 6. Τα σπεκτογράμματα μας φανερώνουν και ένα άλλο ηχητικό στοιχείο. Στο υπόβαθρο ακούγονται κελαϊδίσματα δεκαοχτούρας και σπουργιτιών μαζί με τους ανθρωπογενείς ήχους της γειτονιάς όπως ομιλίες, μουσική, γέλια φωνές κ.α.. (σημεία 2,3,4,5). κελαϊδίσματα Το μπάσο, δηλαδή ο ήχος των αυτοκινήτων, υπερέχει όλων των υπόλοιπων ήχων της υπαρούσας σύνθεσης. Παρόλα αυτά οι ήχοι των πουλιών συνεχίζουν να υπάρχουν και να μάχονται κατά κάποιο τρόπο τους δυνατότερους ήχους. Σύμφωνα με τον Ρούπερτ Μάρσαλ(10) διαφορετικά είδη πτηνών κελαηδούν σε υψηλότερους τόνους στις πολύβουες περιοχές των πόλεων, επειδή προσπαθούν να ακουστούν πάνω από τους ανθρωπογενείς θορύβους που κατακλύζουν τις αστικές περιοχές. Από τις ηχογραφήσεις στις οδούς Γάτσου (σημείο 2), Θρακών (σημείο3) και Γλάδστωνος (σημείο 4) συμπεραίνουμε πως τα κελαϊδίσματα κυμαίνονται μεταξύ των 3.000 και 5.000 Hz και δεν ξεπερνούν τα 3 db. Οι συχνότητες των κελαϊδισμάτων που προαναφέρθηκαν, αν παρατηρηθούν σε ένα μουσικό κομμάτι αντιπροσωπεύουν συνήθως τα πιατίνια, τη φωνή και τη μελωδία. Τα κελαϊδίσματα, που ηχογραφήθηκαν περιμετρικά του κτιρίου, παίζουν τον ρόλο του ρυθμού και της μελωδίας στην παρούσα σύνθεση του ηχοτοπίου. μετασχηματισμός του ηχοτοπίου Υπάρχουν πολλοί τρόποι διαχείρισης του αυτοκινητιστικού θορύβου, όμως στη περίπτωση του μηχανουργείου δεν μπορούν να λειτουργήσουν όλοι. Η πιο κλασική μέθοδος είναι η κατασκευή φραγμάτων ήχου με τη μορφή τοίχου ή μιας επιφάνειας, η οποία απωθεί τα ηχητικά κύματα και τα οδηγεί προς την αντίθετη κατεύθυνση. Η συγκεκριμένη διαχείριση όμως θα μπλοκάρει την όψη στην οδό Παπαδιαμάντη. Τα φράγματα ήχου δεν γίνεται να έχουν κενά (εισόδους)







φορίας, όπως είναι η 2ας Νοεμβρίου κοντά στο μηχανουργείο. Όμως ούτε εκεί μπορεί να λειτουργήσει πετυχημένα διότι θα κλίσει τις όψεις των πολυκατοικιών επί του δρόμου αυτού. Μία άλλη μέθοδος μείωσης του αυτοκινητιστικού θορύβου είναι η πυκνές δενδροφυτεύσεις κατά μήκος μίας κλίσης παράλληλης στον δρόμο, μία μέθοδος πιο φιλική για το κτίριο μελέτης καθώς μπορεί να μην αλλοιώσει τις εξωτερικές όψεις. Παρόλα αυτά οι πυκνές δεντροφυτεύεις μαζί με τρεχούμενο νερ θα μπορέσουν να αφενός να μειώσουν τον αυτοκινητιστικό θόρυβο και αφετέρου να προσθέσουν έναν χαλαρωτικό ήχο ο οποίος σε συνδυασμό με τα κελαϊδίσματα συνθέτει ένα "φυσικότερο" ηχοτοπίο. Όσον αφορά τους ήχους των κελαϊδισμάτων, κρίνεται σκόπιμη ή αύξηση των ήχων με την αύξηση του αριθμού των πτηνών μέσω τις προσέλκυσης περισσότερων. Αυτό μπορεί να γίνει με την τόνωση του ήδη υπάρχοντος δικτύου επικοινωνίας των πτηνών από τις γειτονικές εστίες τους προς το κτίριο Γκλαβάνη με τις κατάλληλες φυτεύσεις κατά μήκος των γραμμών επικοινωνίας. Το δίκτυο που προαναφέρθηκε όπως και τα είδη των πτηνών που παρουσιάζουν ενδιαφέρον στον αστικό ιστό, αναλύονται στις επόμενες σελίδες.
ΥΠΟΔΟΜΗ ΓΕΩΧΩΡΙΚΩΝ ΠΛΗΡΟΦΟΡΙΩΝ Υ.Π.ΕΝ. Συνολικός θόρυβος, Βόλος
40 db(A) 40-45 db(A) 50-55 db(A) 55-60 db(A) 60-65 db(A) 65-70 db(A) 70-75 db(A) 75-80 db(A) 80-85 db(A)







αγριοκρανιά άρκευθος αρκουδοπούρναρο βατομουργιά ευώνημος
τύπος Α τύπος Β τύπος Γ








ιστορία του μηχανουργείου
1895 ο Κωστής Γκλαβάνης και ο Μιχάλης Καζάζης συνεργάζονται και ιδρύουν το μηχανουργείο “Η Σφύρα”. Ο Κωστής Γκλαβάνης προερχόταν από το Πήλιο και είχε αναπτύξει εμπορικές σχέσεις με την Σμύρνη και την Οδησσό και χρηματοδότησε την κατασκευή του εργοστασίου. Ο Μιχάλης Καζάζης προερχόταν από τη Μυτιλήνη, είχε εργαστεί σε σιδηροβιομηχανίες της Αγγλίας και της Αμερικής, αλλά και στο Λαύριο και έτσι είχε τις απαραίτητες γνώσεις για την κατασκευή του μηχανουργείου, το οποίο χτίστηκε βάση ευρωπαϊκών προδιαγραφών. Το εργοστάσιο κατασκεύαζε κυρίως γεωργικά μηχανήματα (άροτρα, σβάρνες, εκκοκκιστικές μηχανές) αλλά και τις τουλούμπες με τις οποίες υδρευόταν ο Βόλος μέχρι την περίοδο των σεισμών (1954-1957) (11) Το 1924 η εταιρία μετατράπηκε σε ανώνυμη «Ανώνυμος Βιομηχανική εταιρεία Γκλαβάνης Α.Ε.» με ιδρυτές τους Κωσταντίνο, Ευάγγελο, Αθανάσιο Γκλαβάνη και Μιχαήλ Καζάζη. Το 1935, μετά την κρίση του 1929, το εργοστάσιο Γκλαβάνη εγκατέστησε χυτήριο χυτοχάλυβα και βιδοποιείο και άνοιξε άλλα δύο εργοστάσια, ένα στην οδό 2ας Νοεμβρίου και ένα στην οδό Αναπαύσεως, τα οποία όμως λεηλατήθηκαν από του Γερμανούς στην περίοδο της Κατοχής . Το 1940-1941 το μηχανουργείο προμήθευσε την αλυσίδα βομβών του Ελληνικού Πυριτιδοποιείου και Καλυκοποιείου με εξαρτήματα οβίδων για τον πόλεμο. Από το 1942 μέχρι το 1952 το μηχανουργείο έκανε μεγάλες εξαγωγές γεωργικών μηχανημάτων στην Τουρκία, μέχρι το 1952 που η Τουρκία ανέστειλε τις εισαγωγές από την Ελλάδα. Η βιομηχανία αναγκάστηκε να αναστείλει τη λειτουργεία της μέχρι το 1958. Το 1960 απασχολούσε 200 περίπου άτομα, όμως μέσα σε δύο δεκαετίες έκλεισε οριστικά.





να φύγω χωρίς να με καταλάβουν. Στην κεντρική είσοδο είχαν τοποθετήσει ταμπέλες που έγράφαν : «ΠΡΟΣΟΧΗ ΑΜΙΑΝΤΟΣ» και «ΑΠΑΓΟΡΕΥΕΤΑΙ Η ΕΙΣΟΔΟΣ ΣΤΟΥΣ ΜΗ ΕΧΟΝΤΕΣ ΕΡΓΑΣΙΑ» . Τα επόμενα πρωϊνά πήγαινα με το ποδήλατο και έκανα βόλτες γύρω από το κτίριο μήπως και πετύχω κάποιον εργαζόμενο, για να αποσπάσω πληροφορίες για το τι συμβαίνει εκεί μέσα. Μετά από μια εβδομάδα συνεχόμενων επισκέψεων συγχρονίστηκα με τους εργάτες την στιγμή που ανήγαν την κύρια είσοδο και φόρτωναν τις πλάκες αμιάντου στα κατάλληλα οχήματα μεταφοράς. Ήρθα σε επαφή με έναν μεταφορέα και άρχισα να κάνω ερωτήσεις. Μου είπε πως συνεργαζόταν με μια Γερμανική εταιρία η οποία θα έκαιγε τον αμίαντο που συλλέχθηκε. Ακόμα είπε πως μάλλον το κτίριο θα γκρεμιστεί κάτι που δεν έχω σιγουρευτεί πως ισχύει. Το μεγαλύτερο μέρος των στεγών έχει πλέον αφαιρεθεί καθώς αποτελούταν από πλάκες αμιάντου. Τα αρχεία του κτιρίου, τα οποία παρουσίαζαν ενδιαφέρον και είχαν συμμαζευτεί από τον Βαγγέλη Ξενοδοχίδη (μέλος της ομάδας), σε συνδιασμό με κατασκευές, οι οποίες μαζί με τα αρχεία αποτέλεσαν μέρος της διπλωματικής του εργασίας «αποικοδομές», δυστιχώς αντιμετωπίστηκαν σαν σκουπίδια και πετάχτηκαν.




Οι κάτοικοι περιμετρικά του οικοπέδου ήταν αρκετά καχύποπτοι και οι περισσότεροι από αυτούς δεν μου άνοιγαν ή δεν ήθελαν να ακουμπήσουν καν τα ερωτηματολόγια και μου είπαν να τα συμπληρώνω αφότου άκουγαν τις ερωτήσεις προφορικά. Τα αποτελέσματα των ερωτηματολογίων κρίνονται ακατάλληλα για στατιστική επεξεργασία επειδή οι περισσότεροι κάτοικοι δεν μου άνοιξαν . Παρ ’όλα αυτά συμπέρανα την εσωστρέφεια της γειτονιάς και την στάση της προς το κτίριο “Γκλαβάνη”. Μου άνοιξαν 3 σπίτια από αυτά στην οδό Θρακών και την οδό Γλάδστωνος και οι κάτοικοι ήταν πολύ γρήγοροι και σίγουροι για την απάντηση «να γκρεμιστεί όλο». Η εγκατάλειψη του κτιρίου και στην συνέχεια το κλείσιμο του, εμφάνισε ένα κενό στη καρδιά της γειτονιάς, ενώ η αφαίρεση της λαμαρίνας και το άνοιγμα του χώρου μπορεί να τον κάνει επικίνδυνο και να κάνει τη γειτονιά ακόμα πιο εσωστρεφή στην περίπτωση που παραμείνει ερείπιο. Τον Φεβρουάριο του 2022 αφαιρέθηκε ένα τμήμα της λαμαρίνας στην οδό Θρακών, ενώ μία είσοδος από την οδό Παπαδιαμάντη ήταν ανοιχτή. Έτσι μπορούσε να μπει στο κτίριο όποιος ήθελε. Η αρχική υπόθεση περί γκετοποίησης και επικινδυνότητας σε περίπτωση που αφαιρεθεί η λαμαρίνα επαληθεύτηκε όταν ξαναμπήκα στο κτίριο τις τελευταίες μέρες του Φεβρουαρίου.

Ένας ηλικιωμένος άστεγος και μάλλον τοξικομανής άνδρας ήρθε για να μου μιλήσει. Στην αρχή πίστευα πως θα μου μίλαγε για την εμπειρία του στο κτίριο και για το πώς επιβιώνει μέσα στο ερείπιο. Αυτό όμως που μου ζήτησε ήταν να παίξουμε σαν να το ζητούσε από κάποιο παιδί, όμως αυτό που μου ζήτησε τελικά ήταν να μου δείξει κάτι και να του δείξω κάτι. Εκεί κατάλαβα πως οι βλέψεις του ήταν διαφορετικές από αυτές που ήλπιζα και του ζήτησα να φύγει. Δεν έχω κανένα δικαίωμα να κρίνω τη σεξουαλικότητα του κάθε ανθρώπου, όμως κρίνοντας από τον τρόπο που μου μίλησε μάλλον θα μπορούσε να γίνει παραβιαστικός σε ένα ανήλικο άτομο επειδή με ρώτησε αρκετές φορές για το αν είμαι μόνος. Αυτή η εμπειρία με βοήθησε να καταλάβω το πόσο σημαντικό είναι να ντυθεί το κτίριο με ένα πρόγραμμα, που θα προσφέρει το αίσθημα της ασφάλειας και την επανασύνδεση της γειτο-


κεραμύδι
ξύλινος σκελετός
μεταλλικός σκελετός


διαδρομή του 2019 και σημειώσεις στην κάτοψη του 1948

πριν και μετα το σεισμό του 50
το παλίμψηστο
Το συγκρότημα του εργοστασίου αποτελούταν από ένα σύνολο διώροφων κτισμάτων αλλά και ενός τριώροφου το οποίο λειτουργούσε ως αποθήκη υλικών και μηχανημάτων. Τα κτίρια πριν το σεισμό αποτελούνταν από εξωτερικούς φέροντες πέτρινους τοίχους και εσωτερικά ξύλινες κολόνες (12). Η επικάλυψη γινόταν με ξύλινες κεραμοσκεπές οι οποίες στους μεγαλύτερους χώρους ήταν υπερυψωμένες με περσίδες για καλύτερο εξαερισμό. Μετασεισμικά πραγματοποιήθηκαν επισκευές και αντικαταστάσεις από φέροντα οργανισμό οπλισμένου σκυροδέματος, περιμετρικούς τοίχους από τσιμεντότουβλο ή τούβλο και σκεπές από αμίαντο. Σήμερα το συγκρότημα του μηχανουργείου συνδυάζει κτιριακούς τύπους κατοικιών με έμφαση στον νεοκλασσικισμό αλλά και στον μοντερνισμό με τις μετασεισμικές προσθήκες. Ίσως να μπορούσαμε να μιλήσουμε για ένα παράδοξο το οποίο συνδυάζει τα διακοσμητικά στοιχεία της αρχιτεκτονικής της νέας Ελλάδας, αλλά και τα στοιχεία μιας παγκοσμιοποιμένης και απλής αρχιτεκτονικής γλώσσας, αυτής του μοντερνισμού. Φαίνεται πως η παραπάνω αποφάσεις πάρθηκαν για λόγους ευκολίας και ασφάλειας και όχι για την σύγκριση δύο αρχιτεκτονικών αντιλήψεων που διαμόρφωσαν τη σύγχρονη αρχιτεκτονική της χώρας. Ενδεχομένως η συνύπαρξη των παραπάνω μορφολογιών να μπορούσε να χαρακτηριστεί από κάποιους αταίριαστη. Κοιτώντας από ένα άλλο πρίσμα θα μπορούσαμε να θεωρήσουμε πως έχουμε την συνύπαρξη του παλιού και του νέου σαν κάποιος να έχει ήδη κάνει κάποια επανάχρηση προσθέτοντας σύγχρονα δείγματα πάνω σε παλαιότερα.
φάσεις στεγών και τοιχοποιών 1930-2021


στέγες 1930 στέγες 2014 στέγες 2021
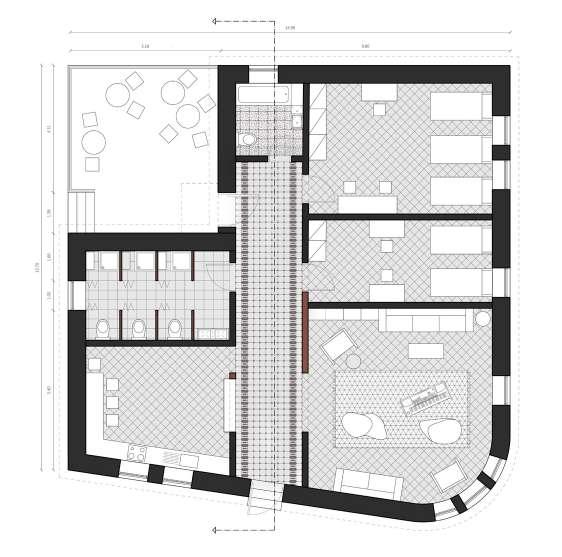
κάτοψη1 (από σχέδιο του 1948)
κάτοψη2 (από σχέδιο του 1970)
κάτοψη3 (αποτύπωση του 2021)


οδός Παπαδιαμάντη
οδός Βερναρδάκη
οδός Θρακών


