Architectural Portfolio

Page 1

Selected Works

2020-2023

PORTFOLIO ARCHITECTURE
CONTENT Selected works 01. 02. 03. 04. ROGA HOUSE BRICK HOUSE LAFAYETTE UNIT GOTERA RETIALS Residential Residential Residential Commercial pg. pg. pg. pg. 4 10 16 22

ROGA HOUSE

Location: Brgy. Tabuc Suba Jaro, Iloilo City, Philippines

Area: 88.84 sq.m

Building Type: Residential

Year: 2020

Project Status: Completed

Located in Jaro, Iloilo city. A house design for a 5 family members. Roga House provides several living facilities with tropical concepts such as cross ventilitation plan, natural lighting, inner courtyard for the cooling of spaces and large overhangs of roof for sun & rain protection.

4
01. U D L A A 4 T A L A A 7 3 SQM P 2 6 5 4 ROAD ROAD JULY AM JULY PM PREVAILINGWIND PROPOSED RESIDENCE
5 Selected Works
6 UP U P 1 A 2 3 B C D E 1' F CABINET 6 3 2 1 4 1 2 FIREWALL FIREWALL SEPTIC TANK E N T R Y
1. PORCH 4. KITCHEN 7. AIR WELL 10. CARPARK
GROUND FLOOR PLAN 1 2 3 4 12 10 11 9 8 7 6 5 1 A 2 3 B C D E 1' F VOID DN 16 17 15 14 12 13 11 10 9 8 7 6 5 3 2 4 FIREWALL FIREWALL
2. LIVING 5. MASTER BEDROOM 8. POWDER ROOM 11. SERVICE AREA 3. DINING 6. T&B 9. MAID’S ROOM 12. LANAI 1. FAMILY AREA 4. BEDROOM 3 2. BEDROOM 1 5. BALCONY
1 2 3 4 6 6 5 5 SECOND FLOOR PLAN
3. BEDROOM 2 6. T&B
7 Selected Works
ROAD +6.30M. TOP OF BEAM +3.30M. 2/F +0.30M. +7.70M. APEX OF ROOF
Selected Works

BRICK HOUSE

Location: Barotac Nuevo, Iloilo, Philippines

Area: 132.00 sq.m

Building Type: Residential Year: 2021

Located in Barotac Nuevo, Iloilo. A house design for a 4 family members. Brick House is an old storage that will convert to a home that provides several living facilities with tropical concept such as cross ventilitation plan, natural lighting, inner courtyard for the cooling of spaces and large overhangs of roof for sun & rain protection. The front of the house accomodates the guest space. Reuse of bricks from the old sugar central of the town.

10
02.
11 Selected Works
12
13 Selected Works
14
15 Selected Works DN 1 A B C 2 3 4 5 E X I S T I N G F E N C E GARDEN* CLOSET 3 4 1 2
1. PORCH 4. DINING 7. T&B 10. BEDROOM 3 2. FOYER 5. KITCHEN 8. BEDROOM 1
1 2 4 6 3 5 7 8 10 9 +0 60M GROUND FLOOR +3 60M TOP OF BEAM +0 00M NGL +5 43M APEX OF ROOF
3. LIVING 6. OFFICE 9. BEDROOM 2

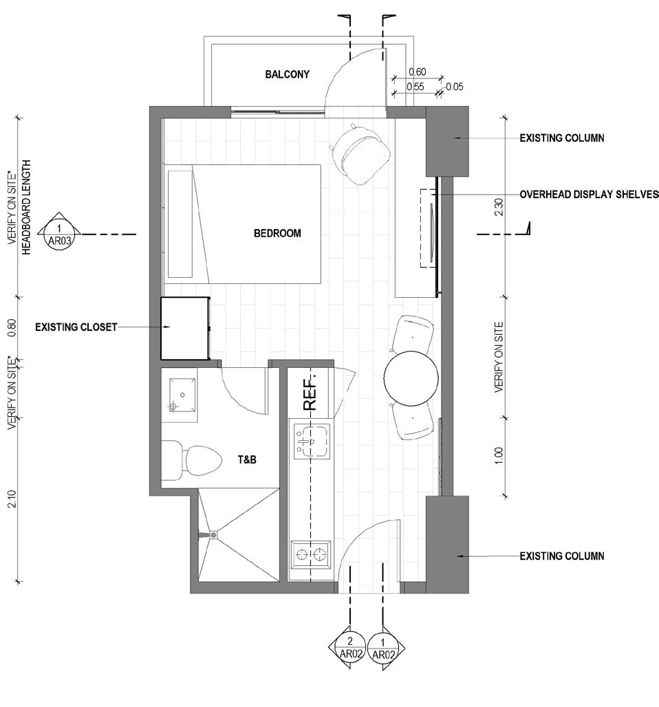
LAFAYETTE UNIT

Location: Mandurriao, Iloilo city, Philippines

Area: 17.00 sq.m

Building Type: Residential Year: 2022

Located in Mandurriao, Iloilo city. Renovation of studio unit with an area of 17 sq.m. incorporating luxury design. Gold accents are highlighted in this project to match the clean white base of the design.

16
03.
17 Selected Works
18
19 Selected Works
20
21 Selected Works
22 Selected
Works

GOTERA RETAILS

Location: Guimbal, Iloilo, Philippines

Area: 47.00 sq.m

Building Type: Retail

Year: 2023

Located in the province of Guimbal, Iloilo. The intent was to create a connection from two different types of retail thru design. The two types of retail are bakeshop & tea/bar. Each on has a different design. Tea shop with industrial design & bakeshop with bold colors of red & yellow.

23
04.
24 OVEN STORE CHILLER SPACE 4.52 0.38 4.85 4.85 4.85 4.90 0.18 4.49 0.18 0.18
KITCHEN OVERHEAD SHELVES
GLASS DISPLAY
25 Selected Works 4.85 4.52 0.38 3.46 1.39 4.85 4.90 0.18 4.49 0.18 LOGO SIGNAGE FRIDGE SPACE KITCHEN PREPARATION AREA CASHIER MILK TEA STATION O/H CHILLER SPACE
26
27 Selected Works

Turn static files into dynamic content formats.

Create a flipbook
Issuu converts static files into: digital portfolios, online yearbooks, online catalogs, digital photo albums and more. Sign up and create your flipbook.