o sharode

Architectural Portfolio
![]()

Architectural Portfolio
In this portfolio are selected projects undertaken during my degree to highlight my progression through the architectural landscape. They feautre careful consideration towards meeting targets set by well-tailored briefs created by lecturers at UQ. The briefs being responded to feature real world challenges and thought-provoking case studies. This has prompted the creation of architectural responses that seek to alleviate this issues through research, analysis, ideation and creativity to develop solutions that resonate with the client and further the implementation of best practices to positively impact the industry as a whole.



Vertrek

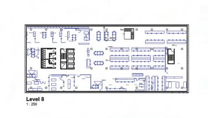
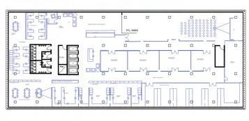
Duhig Library Extension


This project focused on the improvements that could be made to an existing proposal considering analyses of climate, acoustics and lighting. It dealt with certain areas of due diligence to ensure the proposal was compliant with local building codes and Australian Standards. It also sought to improve energy efficiency through enhancements made to the passive cooling of the building in hot summer months such as with the inclusion of openable louvers.



Climactic considerations led to the design of a horizontal solar shading device on the North and South facades while the East and West facades featured vertical mullions for shading.
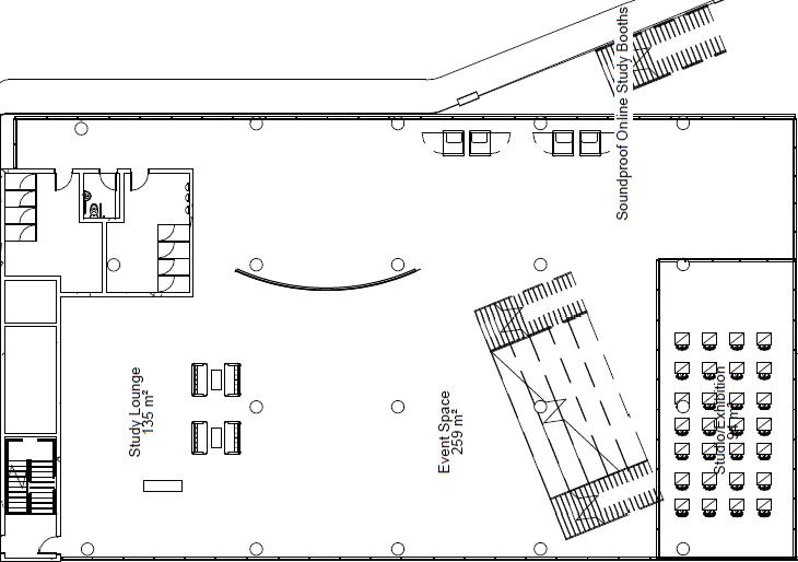
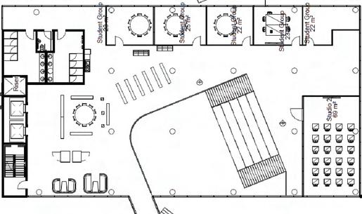
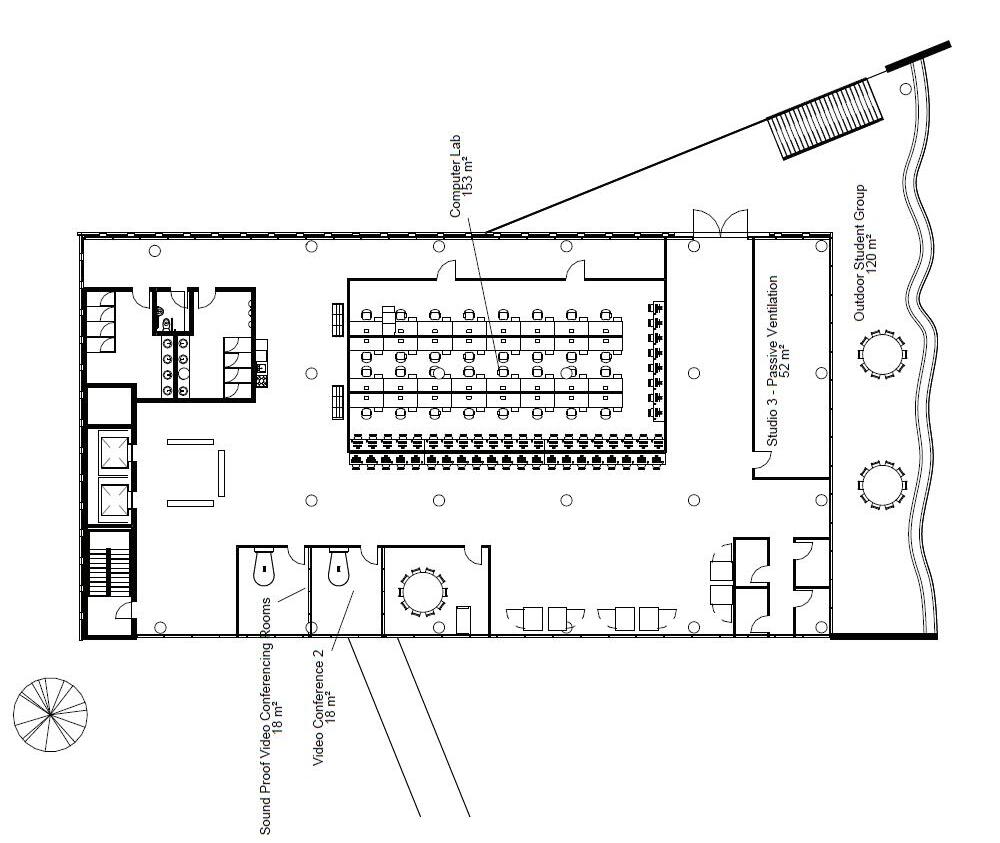
The task included an office fitout which required the reorganisation of various departments to meet compliance with Australian Standards. The building form was also changed to meet certain setbacks as well to facilitate cross-ventilation and maximise natural light while minimising acoustic disturbance from the street.



The Mirndiyan Gununa Art Centre project saw a thorough analysis of client needs to create a design that was culturally and contextually sensitive. Building is oriented in-line with the prevailing North-East and South West winds in Gununa while allowing East winds to blow through and cool the structure in the summer. It is well-equipped to meet the needs of a productive gallery that is sensitive to cultural aspects and gives a space for community members of all ages to interact with indigenous art and knowledge








A collaborative group project that involved the creation of a management plan featuring agendas and assigned roles. This project saw the analysis and development of an existing proposal for the UQ Business School. Our group made use of an interplay between Archicad and Revit, communicating through Microsoft Teams to create a set of construction drawings that were concise and featured sustainable considerations.


A first year pavilion-turned cafe as part of a progressive design development using Rhino 3D, Photoshop, Illustrator and Twinmotion.

Meaning ‘departures’ in Dutch, it is a conceptual exploration of verticality & the way a building ‘meets the sky’.





The Duhig Library Extension features a reconsideration of the existing Duhig Central Library of the UQ Campus. This response was created using Revit and Enscape
It also proposes the inclusion of several artefacts currently in storage at the UQ Anthropological Museum to promote exposure to Indigenous culture in a space that is open and popular on campus.
The project covered a thorough brief meant to transform this space in preparation for future means of education that embrace technological advancements.




THANK YOU