Portfolio Oscar Rodriguez

Page 1


oscar rodriguez alvarez PORTFOLIO

EDUCATION

Master degree in Architecture (M. Arch.)

2016

Escuela Técnica Superior de Arquitectura de Coruña (Spain)

SA ESTUDIO [A Coruña]

Architectural Assistant | Sep 2016 - Nov 2016 [3 months]

ïDeveloped and executed urban design and competitions.

ïCreated detailed drawings and diagrams for residential and restaurant projects.

ïKnowledge improvement on Autocad, Photoshop and Illustrator

Architecture and urban studies (Erasmus)

2014 Universidad de Coimbra (Portugal)

SAEstudio

Architectural Assistant (3 months)

Mauro Lomba

Architects

BIM Architect/ Architectural Assistant (1 year y 10 months)

MAURO LOMBA ARCHITECTS. [Pontevedra]

Architect | Sep 2017 - Nov 2018 [19 months]

Architectural Assistant | Feb 2017 - Aug 2017 [3 months]

ïSuccessfully delivered multiple mixed-use and residential projects with budgets up to €2M, encompassing all RIBA stages 1-4.

ïSuccessfully transitioned the office to a Revit-based BIM environment.

ïEffectively liaised with clients, consultants, and contractors to ensure project success.

ïManaged planning application submissions and produced detailed drawings for design and tender packages.

ïCoordinated the input of structural, civil, and M&E consultants to ensure project integration.

ïExpanded my knowledge of Revit , Autocad, 3ds max, SketchUp, Illustrator and Indesign.

PROJECTS

XYZ Visualiser. Founder | June

ïProactively created bespoke infographics to meet diverse

ïBuilt a strong personal brand and web development.

ïBuilt strong client relationships service and a commitment solutions.

COURSES

ïRevit A1. Digital modeling

ïRevit A2. Documentation and management

ï3ds Max Modeling and animation

ïRevit MEP. Building services with BIM [Autodesk Certificate]

ïRevit collaborative work [Autodesk Certificate]

ïIllustrator, Indesign and Photoshop

ïUrban and territorial regeneration (UDC)

ïReal-time architectural visualization (Unreal Engine 4 for architecture)

ïAnimation and interactivity (Unreal Engine 4 for architecture)

PROJECTS

Visualiser. Founder

2018 - Present

bespoke architectural diverse client needs.

brand through graphic design

relationships through personalized commitment to delivering high-quality

RIA Foundation

David Chipperfield

Workshop Architect (1month)

RIA FOUNDATION. DAVID CHIPPERFIELD [Ribeira]

Workshop. Architect | Nov 2018 - Dec 2018 [1 month]

ïDeveloped a urban design concept for a small existing coastal town.

ïIn-depth urban analysis to identify opportunities and constraints.

ïProduced a comprehensive range of graphic materials, including drawings, diagrams, and infographics.

ïEffectively communicated the design concept to the public through presentations and media outreach.

PIXEL FLAKES

Visualiser. | September 2020 - Present [4 years]

ïDeveloped images for Marketing and Commercial projects

ï Collaboration with the worlds most respected architects such as Foster and Partners, BIG, ZahaHadid, OMA, Renzo Piano, Unstudio, KPF and Heatherwick Studio amongst others on world-class projects and competitions

ïLed small teams in creating high-quality images for master plans

ïPioneered the use of parametric modeling with Railclone, building a custom component library and spearheading software implementation.

ïSignificantly improved my ability to create high-quality renderings using 3ds Max, Photoshop, Vray, Railclone and Rhino.

PUERTA DEL TECLA SOCIAL CENTER

Mauro Lomba Architects

Mauro Lomba Architects

PETROL STATION HOUSE IN MARIN

Mauro Lomba Architects

Mauro Lomba Architects

ESPINA PROJECT

RIA Foundation

David Chipperfieldd

THE MARKET SQUARE MUSIC EDUCATION CENTRE VISUALISATION WORKS

SA EstudioAcademic WorkPixel Flakes

PUERTA DEL TECLA 01

MAURO LOMBA ARCHITECTS

New build | 2016 | La Guardia, Spain

My roles | Project coordination, Meeting with clients, Concept and developed design, Graphic representation, 3d infographics, Technical documentation, Constructive details.

Software | Autocad, 3ds Max, VRay, Photoshop, Illustrator, Indesign RIBA 1-4 [equivalence]

We create a piece that serves as a symbolic and physical gateway to the Santa Tecla archaeological complex. A series of cubic structures house the functions. These are aligned longitudinally and interconnected at their tops by a pergola, evoking the concept of a door, unifying the intervention and harmonizing with the environment. The level difference permits the adaptation of heights for different functions, with the pedestrian zone situated in the lower area and the vehicular access in the higher area.

Project Role

My role on this project was Project Lead throughout Stages 0-4, delivering the scheme from the initial concept to the tender stages. Working in a small team on a public project allowed me to be involved in all aspects of the design, coordinate with several different consultants, and address environmental and landscape challenges through collaboration with public organisations.

1| The concept of a gateway through the construction of a pergola.

5| The pergola is deliberately separated from the building volumes to enhance the clarity and simplicity of the design.

2| Exhibition and information volume, and vehicle pay point volume, connected by the pergola.

6| Both the supporting columns and the pergola itself blend seamlessly into the surrounding trees within the woods.

3| Pedestrian and vehicle zones. The larger volume is divided into two sections and houses the toilets.

4| The variation in ground level of the terrain enables each area to have an appropriate height, with the higher level designated for vehicle passage.

7| A continuous horizontal line runs the length of the building, dividing it into two materials: wood and concrete.

SOCIAL CENTER 02

MAURO LOMBA ARCHITECTS

Complete refurbishment | 2018 | Meaño, SPAIN

My roles | Project coordination, Graphic representation, 3d infographics, Technical documentation, Constructive details, Structural details, Meeting with clients

Software |Revit, 3ds Max, VRay, Photoshop.

RIBA 1-4 [equivalence]

In the courtyard positioned between the rectory and a ruined volume, we build a lightweight building that envelopes the courtyard with a glass enclosure. This allows for visual transparency and maximum light penetration. We aim to avoid competition with the existing stone structures. The gable roof, also composed of glass, harmonizes with the neighboring buildings and is fitted with a metal mesh to filter sunlight. Consequently, a versatile space emerges, fulfilling the community’s need for a gathering and social area

Project Role

My role in this project was Project Lead for Stages 0-3. Working within a small team, we collaborated directly with the city council as the final client. It was a project with a very short deadline, which compelled me to streamline processes and manage the diverse consultants with precision.

PETROL STATION 03

MAURO LOMBA ARCHITECTS

New build | 2017 | Meis, Spain

My roles | Project lead, Concept and developed design, Graphic representation, 3d infographics,Technical documentation, Constructive details,

Software | Autocad, 3ds Max, VRay, Photoshop. RIBA 0-3 [equivalence]

A volume divides the plot into two distinct zones: one for supplies and another for parking and washing area. The building comprises a spacious pergola with an open metal structure and a volume accommodating the shop and restaurant.

A succession of metal frames supports the pergola, traversing the facade and unifying the entire program. Embedded within these frames, stone elements contribute to the interior’s solar control.

Project Role

Project lead in Stages 0-3.

My role encompassed conceptual design from initial studies, leading a multidisciplinary team through planning stages.

I headed a team of civil, structural, and MEP engineers in producing the planning design. This involved managing expectations with a complex stakeholder group, including the client, local planning authority, and highways authority.

HOUSE IN MARIN 04

MAURO LOMBA

ARCHITECTS

New build | 2017 | WPontevedra, Spain

My roles | Concept and developed design, Graphic representation, 3d infographics, Technical documentation, Constructive details, Structural details

Software | Revit, 3ds Max, VRay, Unreal Engine, Photoshop. RIBA 1-4 [equivalence]

The brief for this project was to design a bespoke summer house for a former football player .

The site presented a significant challenge due to its steep slope. To address this, we developed distinct spaces zoned by storey, responding to the contours of the landscape . The project plot is surrounded by housing. The openings in the house are conditioned by the position of neighbour properties and the views, ensuring privacy while providing structural support.

Project Role

Stages 1-4.

My role on this project was to deliver the scheme from its initial concept through to tender stages. Working within a small team on a bespoke project allowed me to be involved in all aspects of the design and coordinate with various consultants and stakeholders.

ESPINA PROJECT 05

RIA FOUNDATION. DAVID CHIPPERFIELD

Workshop | 2018 | Ribeira, Spain

My roles | Concept Urban design, Graphic representation, 3d infographics, Public presentation

Software | Autocad, 3ds Max, Photoshop, Illustrator, InDesign

A territorial analysis of the municipality of Ribeira allows us to identify three distinct areas: the green verge, the town center, and the port. By connecting various squares and public spaces, an axis can be established linking these three areas. A series of interventions at specific points within this axis can create a model replicable throughout the municipality, prioritizing pedestrian connectivity and the connection to the port.

My Role

As part of a workshop directed by David Chipperfield and his team from the RIA Foundation, my role encompassed urban analysis, data collection and research, community engagement through interviews with local residents, and a public consultation to present our findings and potential solutions for the city’s urban fabric challenges.

Port Area Intervention.

We propose a dual-use development incorporating both public and industrial functions. A series of significant sites will be restored, including the former fish market, while new structures will be erected to revitalize the area. The port is envisioned as the central axis for a pedestrian spine that traverses the study zones, supporting multiple public spaces and squares within the urban context

Urban Core Intervention. Proposal for the urban core of the city. Model intervention on green areas within the blocks are enhanced.

a building complex enclosing the public space. Several of the

THE MARKET SQUARE

Competition | 2016 | A Coruña, Spain

My roles | Concept design, Graphic representation

Software | Illustrator, Indesign, Autocad. RIBA 1-2 [equivalence] SA ESTUDIO

Action is taken to revitalize a deteriorated square. Concealed beneath it lies the municipal market. Our goal was to enhance the market’s visibility while addressing issues within the infant school, also hidden below the square. We introduced a series of courtyards to illuminate the lower level and connect it to the square. A green grid and urban vegetable gardens infuse the square with life and greenery.

My Role

For this competition, I assisted one director in creating the drawings and diagrams for the proposal.

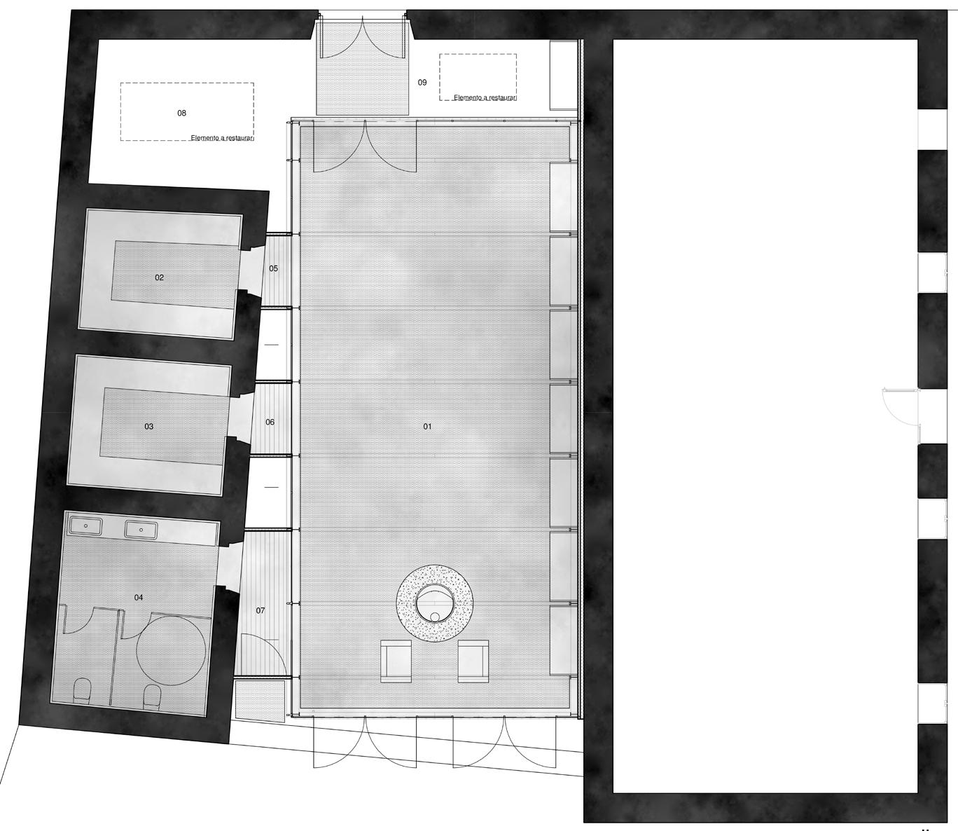
MUSIC EDUCATION CENTRE

FINAL PROJECT

Academic work | 2016 | A Coruña

Academic director: Carlos Quintáns

My choice was to intervene in the ruined building that once housed the old city prison. I selected a program for the development of a music interpretation center.

I eliminated all elements of scant architectural interest from the existing building and opened the envelope of the architectural complex to its surroundings. The main walls of the original structure support our new volume, conceived as a large cube resting upon them. On an urban level, the old perimeter wall of the facility is marked by a pathway composed of stone slabs.

Actual state

Adapted geometry

Alternating between full and empty

Permeable space

Volume between walls

Light input

Mark the limit

Lines and routes

VISUALISATIONS

PIXELFLAKES

Architects | 10 Design

Aisfor

Beta Realities

BIG

Foster + partners

HOK

KPF

MXA Architects

OMA

Renzo Piano

UNstudio

AEDAS | Neom Magna Southern Golf Community
10_DESIGN | Neom Northern Gateway
HOK | Fleet House
OMA | Morden Wharf
KPF | Changi_Airport
MXA ARCHITECTS | Corinthia Hotels Malta
AISFOR | Folkstone

Turn static files into dynamic content formats.

Create a flipbook
Issuu converts static files into: digital portfolios, online yearbooks, online catalogs, digital photo albums and more. Sign up and create your flipbook.