

2D DETAILING PORTFOLIO
| DAMIAN DURAN |
ARCHITECT |



This portfolio presents 2D details of aluminum architectural elements, highlighting expertise with tools like Rhinoceros 3D and AutoCAD. Explore these works to see the craftsmanship behind each design.
LinkedIn: linkedin.com/in/damian-duranc/ Instagram: instagram.com/d.duran.c/
INTRODUCTION
Welcome to my 2D detailing portfolio, showcasing my expertise in architectural visualization and detailed drafting. As an architect, I focus on creating precise, high-quality representations of aluminum elements such as trellises, canopies, railings, and custom architectural components.
This portfolio highlights a range of projects that demonstrate my ability to combine technical accuracy with artistic visualization. Each project reflects my dedication to delivering efficient, well-structured designs that adhere to industry standards and client specifications. Throughout the following pages, you will find a selection of CAD conversions, and technical details that showcase my skills and commitment to precision and creativity.


TRELLISES
Aluminum trellises offer a stylish and functional solution for enhancing outdoor spaces. Their lightweight yet durable construction ensures long-lasting performance while resisting rust and corrosion.
Designed to support climbing plants, these trellises provide both shade and visual interest, creating a beautiful focal point in gardens, patios, or walkways. The sleek lines and modern aesthetic of aluminum trellises complement various architectural styles, making them an ideal choice for contemporary landscapes. With minimal maintenance, they retain their appearance over time, making them a practical and attractive addition to any outdoor setting.
Detailed 2D drawings, including elevations and specific connection details, are essential for the accurate construction of an aluminum trellis. Proper detailing is key to achieving both structural integrity and aesthetic quality.


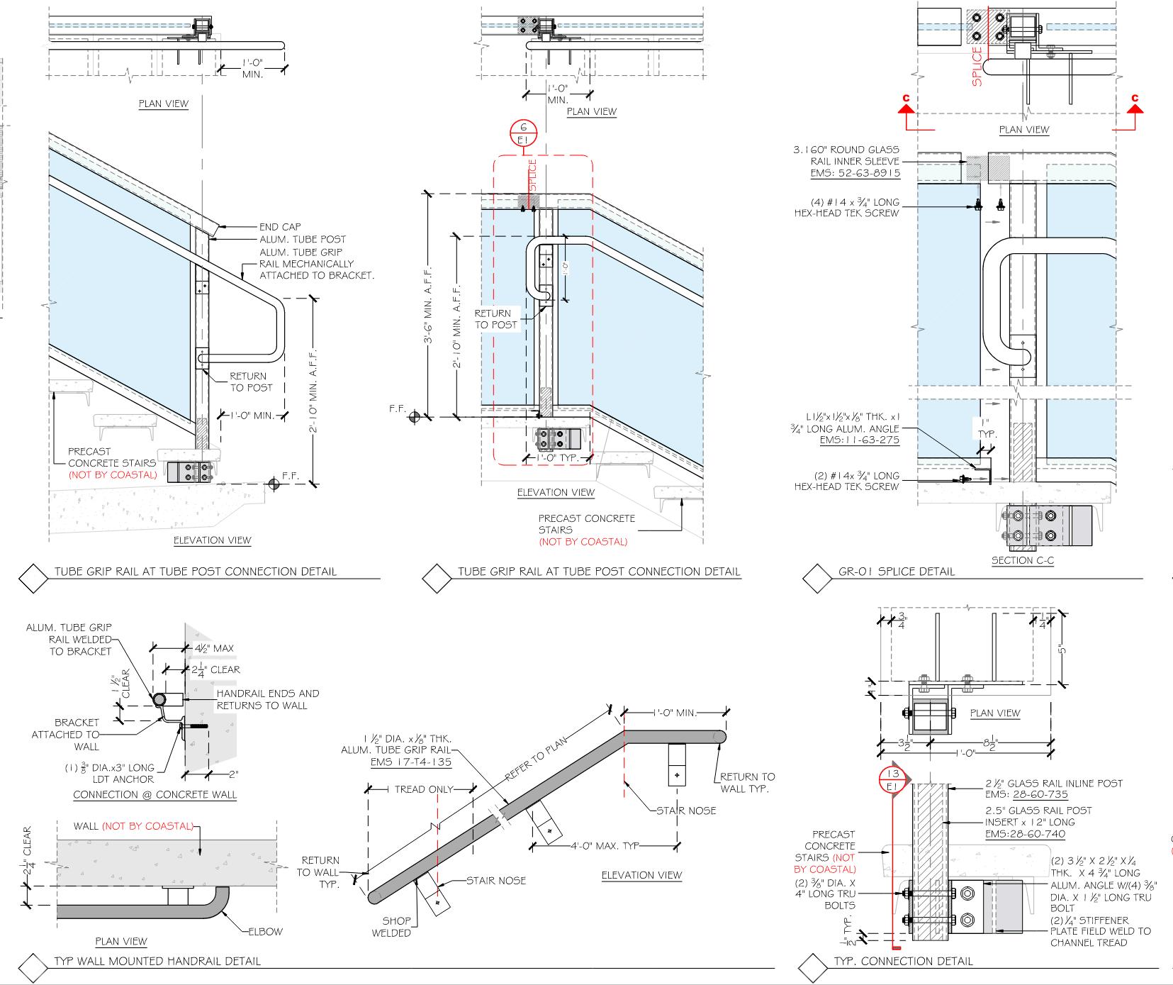
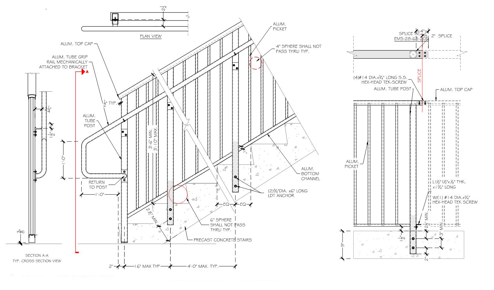
RAILINGS
This aluminum railing features a sleek design with glass panels, seamlessly integrated into a steel structure embedded in concrete.

The lightweight aluminum railing ensures durability and a modern aesthetic, enhancing the staircase’s overall look. The glass panels provide transparency and natural light while maintaining safety, creating a sophisticated balance of strength and elegance ideal for contemporary designs.
Detailed plans are crucial for assembling railings. They offer a clear visual representation of components, aiding in understanding connections and assembly. This helps identify potential challenges before construction, optimizing processes and minimizing errors.
CANOPIES
Aluminum canopies provide an elegant solution for protecting outdoor spaces while enhancing architectural design.
Their lightweight and robust construction ensures durability against the elements, making them ideal for both residential and commercial applications. These canopies offer shelter from rain and sun, creating comfortable areas for outdoor activities, entryways, or patios. With a sleek, modern aesthetic, aluminum canopies can be customized to fit various styles and sizes, providing versatility in design. Additionally, their low maintenance requirements make them a practical choice for long-lasting functionality and beauty.
Detailed plans of a canopy project provide clarity on design and assembly. This representation helps clients, engineers, and builders understand the spatial relationships between elements, facilitating discussions on materials and construction techniques. It enhances collaboration and reduces errors during fabrication and installation, while also serving as a marketing tool to showcase the design’s complexity and appeal.






BALCONY USING BASE PLATES
The base plate is a flat, often rectangular component fixed to the balcony’s vertical posts, distributing loads evenly across the surface below.

BALCONY USING EMBED PLATES
A balcony with an embed plate utilizes a robust anchoring system that is integrated directly into the concrete structure.
BALCONIES
Aluminum balconies featuring pickets enhance the safety and aesthetic appeal of outdoor spaces. The lightweight nature of aluminum ensures durability while minimizing maintenance efforts. These balconies are designed not only for style but also for stability.
Balconies serve as essential extensions of living spaces, providing outdoor areas for relaxation and enjoyment. Made from lightweight and durable aluminum, these structures are designed to withstand various environmental conditions while requiring minimal maintenance.
Incorporating features like railings and pickets enhances both safety and aesthetics. Aluminum pickets offer a contemporary look while ensuring visibility and airflow. The integration of effective anchoring systems, such as base plates and embed plates, is crucial for ensuring stability and compliance with safety standards. These systems distribute loads evenly and secure the balcony to the building structure, preventing movement and enhancing overall safety.
Plans and elevations of an aluminum balcony are essential to visually communicate design intent and highlighting key element. It ensures accuracy and aids in aligning the design with safety standards before construction.

CABANAS
Aluminum cabanas offer a robust and versatile option for outdoor spaces, designed to withstand the elements while maintaining a clean, modern appearance.
These cabanas are primarily constructed using mechanical methods, with angles and tek screws for assembly. However, some models may come pre-welded from the shop for added stability. Customizable in dimensions and configurations, they can meet different functional and aesthetic needs. Whether for private residences, hotels, or public areas, aluminum cabanas provide shade, comfort, and a refined outdoor experience, blending practicality with contemporary design.
2D architectural detail is the immediate solution for any design problem. This detail helps those involved to resolve potential issues before execution.

OTHER PROJECTS
Typically placed above windows or other areas where its function is purely decorative. It doesn’t provide protection from the elements, but enhances the aesthetics of the façade.
Name of Project: Faux Canopy
Year of Project: 2024

Given the complexity of this project, it was necessary to create a set of plans and details to clarify the construction and its fastening system. With a series of LDTs, the structure would be secured to the wall. The entire system is mechanical, so different parts come into play to assemble the final piece.

A glass railing system relies heavily on the project specifications and client requirements for proper installation. Occasionally, when the system does not require a base plate or an embed plate, a concrete curb can be used to mechanically secure the panels with angles, by drilling into the concrete curb and fastening them with screws.
Name of Project: Glass Railing
Year of Project: 2024

The following 2d detail illustrates how the panels should be secured to the concrete curb. The pieces are shown separately so that when comparing them with a final render, the involved parts of the system are clear, thus minimizing any errors in their placement.

A perforated metal railing system utilizes panels that provide both safety and aesthetic appeal. The structure is supported by vertical posts that feature a splice connection, allowing for seamless continuation of the railing along its length.
Name of Project: Alum Metal Screen Railing
Year of Project: 2024

To secure the panels to the posts, a flat bar is employed, which acts as a mechanical connection. This flat bar is bolted to the posts, creating a robust framework that holds the perforated panels firmly in place. The perforations in the metal not only enhance visibility and airflow but also contribute to a lightweight design. Overall, this combination of splicing and mechanical fastening provides a reliable and visually striking solution for railings in various architectural applications.

An aluminum emergency gate is an essential component in emergency staircases, providing safe and controlled access to evacuation routes. This gate is designed to open easily allowing for a quick exit from the building.
Name of Project: Gate & Stair Railing
Year of Project: 2024

The aluminum railing in these staircases includes several key parts to ensure safety and functionality. The handrail, which runs along the railing, offers additional support for users when ascending or descending the stairs.
Vertical posts of the railing are installed at regular intervals and support the horizontal sections of the railing. These posts may include integrated anchors to secure the system to the stair structure. The railings, connected to the posts, form the safety boundary and prevent falls. Additionally, in some designs, vertical panels or mesh may be incorporated to complement the railing system, further enhancing safety.

THE ARCHITECT
As an architect with a focus on precision, I am dedicated to creating high-quality visual representations that bring clarity to complex design concepts.
My experience in 2d detailing and drafting, combined with a deep understanding of construction techniques, allows me to bridge the gap between vision and execution. Through each project, my goal is to enhance functionality and aesthetics.” while ensuring that every detail aligns with the intended purpose.

Passionate about innovative design, committed to precision.
LinkedIn: linkedin.com/in/damian-duranc/ Instagram: instagram.com/d.duran.c/
Puebla/México, 72000 +52 2228831438
LinkedIn: linkedin.com/in/damian-duranc/ Instagram: instagram.com/d.duran.c/