230617_20Portfolio-compressed

Page 1


01

Coningsby Phase 5

A redesigned Masterplan of the city of Lincoln, highlighting the High Street and the Brayford pool.

02 House Type

A redesigned Masterplan of the city of Lincoln, highlighting the High Street and the Brayford pool.

03 Cities Module

A redesigned Masterplan of the city of Lincoln, highlighting the High Street and the Brayford pool.

06 Elements of Architecture

Windows as an element of architecture for confinement.

04 Building Module

A proposal for a “Hackerspace” for the previously designed Masterplan.

05 Offices

An office building proposal with presenatation and working drawings.

07

Enclosed Nature & the City

Creating a link between the built space and the unbuilt enclosed one.

08 HOV Jetty

A proposal for a waterside restaurant built using repurposed shipping containers.

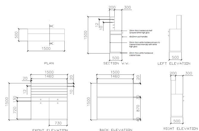
09 Hallmark Store

A proposal for a Hallmark store within a shopping mall (also includes store furniture).

Coningsby (Phase 5)

LOCATION: Coninsby, Lincolnshire

PROJECT DUTIES: Concept Formation, Design Planning, Master Planning, Visualization

PROJECT WORKFLOW: Conceptual Sketches - AutoCAD

The project was the fifth phase of the Kings Manor development project in Coningsby, Lincolnshire. The major project duty was the masterplan development using pre-established design plans for the houses.

A layout of the final masterplan proposal higlighting the proposed areas for development.

Traffic Management Plan

Indicates

Indicates the level of connnectivity and integration of the site.

These sectional views across the site highlight the information obtained from the topographical survey and drainage feasibility report.

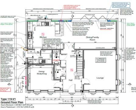
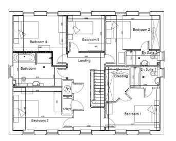
House Type

LOCATION: Lincolnshire, U.K.

PROJECT DUTIES: Concept Formation, Design Planning

PROJECT WORKFLOW: Conceptual Sketches - AutoCAD

In the development of this house type, I worked on developing the floor plans, sectional views, elevations, electrical layouts, and tiling layouts; some of which are included below.

Ground Floor Plan

Section B.B.
Electrical Layout
First Floor Plan
First Floor Tiling Layout
Ensuite Elevation A
Bathroom Elevation A
Bathroom Layout
Ensuite Layout
Ensuite Elevation B

Cities Module (2020 - 2021) - Group Project

LOCATION: Brayford Pool and High Street, Lincoln, U.K.

PROJECT DUTIES: Concept Formation, Design Planning, Visualization

PROJECT WORKFLOW: Conceptual Sketches - AutoCAD - SketchUp - Photoshop - Twinmotion

The brief asked to present a narrative of Lincoln, and in the second step to produce a masterplan for a chosen area in Lincoln. The masterplan was required to express an idea that would address complex social, cultural, political or philosophical issues which was found important, such as social cohesion, sustainability, food production in the city, or any other issue considered to be relevant and important. Directed analyses were conducted and presented in an attractive and communicative way.

Lincoln

A layout of the final masterplan proposal higlighting the re-designed areas. Due to the impact COVID-19 has had on the built environment and societies new appreciation of quality outdoor green spaces, the project aimed to address these aspects through the incorporation of Biophilic elements. The analysis carried out within this project emphasizes that Brayford Pool fails to maximize its full potential as a destination.

This proposal aims to rectify this by creating a focal point for the city and waterways while re-connecting multiple-generations with nature.

Linking

Space Syntax Analysis

Indicates the level of connnectivity and integration of the site.

This section highlights Cherry Park on the site layout.
Cherry Park

3D Visualizations

Sections of the entire site.

Building Module

LOCATION: Brayford Pool and High Street, Lincoln, U.K.

PROJECT DUTIES: Concept Formation, Design Planning, Visualization

PROJECT WORKFLOW: Conceptual Sketches - AutoCAD - SketchUp -

Photoshop - Twinmotion

The brief required a design of a medium-sized but complex building within the masterplan developed during the City Module. The brief was developed by the designer using a clear rationale.

Exterior Visualization

Site Plan

Ground Floor Plan

First Floor Plan

Sed ea audae. Et optaspedi aut prorepei nest, necti archita quissitOrem am auts peribus magnam sequ
Sed ea audae. Et optaspedi aut prorepei nest, necti archita quissitOrem am auts peribus magnam sequ
Sed ea audae. Et optaspedi aut prorepei nest, necti archita quissitOrem am auts peribus magnam sequ
Axonometric Conceptualization
Axonometric Section
Roof Plan
Ground Floor detailing
Front (West) Elevation Concept Development
Right South Elevation

LOCATION: Brayford Pool and High Street, Lincoln, U.K.

PROJECT DUTIES: Concept Formation, Design Planning, Visualization

PROJECT WORKFLOW: Conceptual Sketches - Revit - NavisWorks

The requirement was to model a virtual building (offices) using Revit as a BIM tool. Then use the model to extract construction drawings and perform energy analysis, quantification and clash detection.

South (Front) Elevation

Living Room

A personal project. The brief was from a client who wanted an interior re-design of her living room.

Elements of Architecture

WINDOWS

Rem Koolhaas’ “Elements of Architecture” consisted of a massive recollection of information about the evolution of selected fragments of building details of architecture. The aim of the workshop was to complete the book. One of the elements of architecture (doors, stairs, roofs etc.) was chosen to develop during this workshop for confinement.

Rear Window

The chosen element of architecture for this workshop was Windows. Inspiration was drawn from the 1954 Alfred Hitchcock movie “Rear Window” in which the movies protagonists mobility was limited due to a broken leg and his view of the rest of the world was from his living room window. He begins to observe, and eventually spy, on his neighbours and helps solve a crime.

Proposed Visualization

PROJECT DUTIES: Concept Formation, Design Planning, Visualization

PROJECT WORKFLOW: Conceptual Sketches - SketchUp - Twinmotion

Rear Window
Conceptual Floor Plan
Conceptual Sectional View
Conceptual Visualizations

Enclosed Nature and the City

PROJECT DUTIES: Concept Formation, Design Planning, Visualization

PROJECT WORKFLOW: Conceptual Sketches - AutoCAD - SketchUp - Twinmotion

The brief focused on the dwelling buildings, because these were the spaces in which we were captured during the pandemic. How do we, the neighbours, create the city through the activities we carry out?

Participants were assigned diffenert islands and required to search, find, investigate and identify the

patterns of events in an enclosed garden. A link was created between the built space and the unbuilt enclosed one. A hypothesis was formulated about the influence of nature on this closed space.

The brief required illustrations in any way considerd appropriate, to show both the garden, along with the façades that border it, and how the garden reaches the streets of the city.

North Elevation
East Elevation
West Elevation

Restaurant (HOV Jetty)

LOCATION: Ikoyi, Lagos

PROJECT DUTIES: Concept Formation, Design Planning, Visualization

PROJECT WORKFLOW: Conceptual Sketches - AutoCAD - SketchUp - Revit

The brief required a two-storey restaurant using re-purposed shipping containers. The site was located by a water body and also included a dock for boats.

Ground Floor Plan

3D Visualization

Hallmark Store

LOCATION: Lekki, Lagos

PROJECT DUTIES: Concept Formation, Design Planning, Visualization

PROJECT WORKFLOW: Conceptual Sketches - AutoCADSketchUp - Revit

The brief required a proposed layout of a Hallmark store within the Palms Shopping mall (Shop 12) located in Lekki, Lagos in Nigeria. The interior fittings and furniture of the store were also included within the proposal.

Front Elevation
3D Visulizations

Turn static files into dynamic content formats.

Create a flipbook
Issuu converts static files into: digital portfolios, online yearbooks, online catalogs, digital photo albums and more. Sign up and create your flipbook.