

![]()


FinchxOostwestpresenterenmettrots: Zorginhout
Zorginhoutiseenduurzaam,gezond,betekenisvol,inclusiefenbetaalbaarconceptvoorhetmodulair bouwenvan(woon)zorggebouweninhout.Hiervoorzijndekrachtenvanbeidepartnersvermenigvuldigd ommetditconceptintegraalantwoordtegevenopdiversemaatschappelijkevraagstukken.
Telangisduurzaamheidinhetbouwenvoordezorgslechtseenambitiegeweest.Velezorgpartijen hebbendeGreendealDuurzameZorgondertekendmaarkunnenmethunvastgoedslechtskleine stappenzettenomdedoelentebereiken.MetZorginhoutvergrotenwedezestappenophetgebiedvan deGreendeal-thema’s:Gezondheidsbevordering,CO2-reductie,CirculariteitenKlimaatneutraliteit.
FinchxOostwestkunnenZorginhoutgebouwenrealiserenbinnendeNHC-budgettendie zorgorganisatiesvoorvastgoedbeschikbaarhebben.OokbijScheidenvanWonenenZorgblijft
Zorginhoutbetaalbaar,voororganisatiesenbewoners.
Met40jaarervaringinmaatschappelijkeprojecten,inclusieveconceptontwikkelingenbetekenisvolle, toekomstbestendigezorg
Waarduurzaamheidtotlevenkomtmetflexibele,duurzameengezondehouten constructies.

Houtengebouwenzijnbewezengezonder,voorbewonersenmedewerkers.
OnzehoutengebouwenzijnCO2negatief,circulair,biobasedenklimaatneutraal.
Werealisereneenaangenameleefomgevingdiedezintuigenpositiefprikkelt:Licht–Kleur–Akoestiek–Tactiliteit–Temperatuur–Frisselucht
Weleggenverbindingmetdenatuurlijkeomgeving:natuurlijkematerialen, biodiversiteit,veeldaglicht,buitenruimte,uitzichtvoororiëntatie,eneengezond binnenklimaat.
Vooriedereenenvooralvoormensendiezorgnodighebbeniseenrijke woonomgevingmetbetekenisvolleplekkenvangrotewaarde.Inonzegebouwen vindenbewonersvanzelfsprekendhunwegnaaraangename,huiselijkeruimtesdie bijdragenaaneenwaardevolledag.
ZorginhoutwerktdoorophetslimmebouwsysteemvanFinchopbasisvanhouten kolommenenbalken.Demoduleszijnvollediglosmaakbaareneenvoudigomte zettentoteen2-kamerappartementvan50m2.
Hiermeeishetbouweninhoutvoorzorg,gecombineerdmetandere duurzaamheidsambities,betaalbaargewordenvoororganisatiesenevt.huurders.
Oostwestisalbijna40jaareenlandelijkwerkend bureauindemaatschappelijkesector,vanuitonze locatiesinArnhemenAmsterdam.Wewerken aanopgavenvoorwonen,onderwijsenzorg, meestalmeteenachterliggendmaatschappelijk vraagstukwatinonzegebouwentotuitdrukking komt.Ditvraagtomeenhelderevisieenambitie: hetbegintmeteengezamenlijke toekomstdroom.Onzemaniervanwerkenis dichtbijdeorganisatievanonzeopdracht-gevers.
Wedompelenonsvolledigondertijdenseen projectzodatwedeomgevingkennenalsonze achtertuin,deorganisatievanonze opdrachtgeversbegrijpen,kunnen vertegenwoordigenensamenkomentotde besteleef-enwerkomgeving.
8overtuigingen
InprojectenvervullenwevaakderolvanTotal Engineer,waarbijweverantwoordelijkzijnvoor hetgeheleontwerpvangebouwtotterrein,van constructietotinterieur,vanschetstotuitvoering, enalleadviseursdiehierbijhoren.Dezerolpast onsgoedenwehebbenhetteam,de infrastructuurenhetnetwerkdieerbijpassen.
Wezijnovertuigdvandemeerwaardevancocreatie,enbeheersendiversetechniekenomhet besteuitdekennisenervaringvangebruikers, professionalsenanderebetrokkenentehalen. Doorhetheleontwerpprocesheen
Wijzijnervanovertuigddatgoedearchitectuurbijdraagtaandebestekwaliteitvanlevenvoorieder mens.
Wijwetendateenoptimaalgebouwalleenontstaatdoorhetsamenmetdegebruikerste ontwerpen.Samenwerkenzitonsinhetbloed.
Wijgelovendatsterkearchitectuurnietstoptbijhetgebouw.Ookdeomgevingdraagtbijaaneen gezondebiotoop.Zehebbenelkaarnodig.
Wijsnappendathetrealiserenvaneengebouweenmarathonisengeensprint.Alshetnietkanmaar welmoetlatenwijonsnietuithetveldslaan.
Wijervarendatkant-en-klareoplossingenvrijwelnooitpassenbijbuitengewoneopgaven.Flexibiliteit enmaatwerkdoendatwel.
Wijdenkendathetaltijdduurzamerkanenzullendaarookaltijdopaansturen.
Wijzienonsvaknietalseenvaststaandgegeven.Voelsprietenindemaatschappij,onderzoeken eeninventievehoudingbrengenonsconstantnieuweperspectieven.
Wijvindendatcomplexeopgavenmeerverdienendaneentraditionelewerkwijze.Wijstaan vooreigenaarschapenontwikkelkracht.




Wijzijnarchitecten,onderzoekers, conceptontwikkelaarsenbouwkundigen.
Wezijnverbinders,idealisten,doorvragers, vooruitdenkers,samenwerkers,creatievegeesten, verderbrengers,oplossersenmogelijkmakers. Wijzijnoostwest.
Hoogwaardigemodulairegebouwen voorelkedoelgroep.
Wehebbeneenbouwsysteemontwikkeld bestaandeuitgeprefabriceerdemodules,dievoor elkedoelgroepentoepassinggeschiktzijn.Als studio,twee-ofdriekamerappartement,kantoor, zorgappartementofhotel.Kwalitatief hoogwaardig,circulairensnel.
Eenwereldmetduurzameen milieuvriendelijkegebouwen.
Wijzieneenwereldvooronswaaringebouwen bijdragenaanhetoplossenvanhet klimaatprobleem,duurzaamgemaaktzijnen milieuvriendelijkgebruiktworden.Wijwillen wonen,werkenenverblijvenopdelaagst mogelijkeCO₂ ‘footprint’mogelijkmaken.Alleen danzijnweinstaatomdegrootstmogelijke impacttemaken:hetomlaagbrengenvande hoeveelheidCO₂ inonzeatmosfeer,daarmee bijdragendaanhetherstelvandebalansoponze planeet.
90%hergebruikvanmaterialen
12tonopgeslagenCO₂ inmodule 28tonCO₂ uitstootvermeden
EnkelgebruikvanFSC/PEFChout
OnzeFinchmoduleshebbeneen gezondleefklimaat.
Nietalleendeinvloedvangebouwenopde planeet,maarookdeinvloedopdemensis belangrijk.Ookdaarombouwenwijmethout.Een gezondencomfortabelklimaatisgegarandeerdin eengebouwvanhout,doorhetvochtregulerende effectvanhetmateriaal.Houtgarandeerteen stabielevochtbalans,meteenlaagrisicoop infecties,stof,mijt,schimmelenbacteriënhet laagst.Houtheefteenpositieveinvloedopde mentalegesteldheid,blijktookuitZwitsers onderzoekvanhetHumanResearchInstituteuit 2009.



Voorelke3gebruikte bomenplantenwe5 nieuwebomen terug.
Houtengebouwenzijnbewezengezonder,voorbewonersenmedewerkers.
WeontwerpenBiofilisch.Indezeontwerpfilosofiewordthetcontacttussenmensennatuurversterktdoor elementenvandenatuurteverwerkenindegebouwdeomgeving.Onderzoekenophetgebiedvande neurowetenschappenenmilieupsychologielatenziendatomgevingenmetbiophilicdesignleidentot minderstress,beterwaarnemingsvermogeneneenpositieveregemoedstoestand.Bijonsontwerpstreven wenaareennaadlozeintegratievannatuurlijkematerialen,overvloedigdaglicht,buitenruimtesen uitzichtenomeenbiologischevenwichttebereikenenhetwelzijnvanbewonerstebevorderen.
Onzemoduleszijnontworpenmethetoogop een(positief)gezondleef-enwerkklimaat.We hebbenzorgvuldignatuurlijkematerialen geselecteerd,waarbijhouteenprominenterol speeltvanwegezijnvochtregulerende,isolerende engeestelijkstimulerendeeigenschappen.Door alleengebruiktemakenvanemissievrije bouwmaterialenvermijdenweschadelijkestoffen enzorgenwevooreengezondebinnenomgeving vrijvanbouwvocht,radongasenschimmels
Houtstaatbekendomzijnvermogenomvochtte reguleren,watessentieelisvooreengezond binnenklimaat.Hetabsorbeertvochtuitde omgevingengeefthetweerafwanneerdat nodigis,watresulteertineenstabiele vochtbalans.Ditverminderthetrisicoopinfecties, allergenenenschimmels,waardoorheteenzeer geschiktmateriaalisvoorkwetsbaremensen, specifiekdiemetademhalingsproblemenzoals astmaofallergieën.
Hetgebruikvanhoutheeftnietalleenfysieke voordelen,maarookeenpositiefeffectopde geestelijkegezondheid.Studiestonenaandat houtstressverlagendwerkteneenkalmerende invloedheeftopdepsyche.Hierdoorcreërenwe eenomgevingdiebevorderlijkisvoorrust, ontspanningenwelzijn,watbijdraagtaaneen echte'healingenvironment'voordebewoners. Debijdrageaandepositievegezondheidvan bewonersenmedewerkersisgroot.Hetcontact metdenatuurennatuurlijkematerialenleidt bewezentotmindermedicijngebruikindezorg enminderziekteverzuimbijmedewerkers.

EenhoutengebouwisCO2negatief,circulair,biobasedentoekomstgericht.
Bouweninhoutisbouwenvoordetoekomst.Demoduleszijnontworpenmetlangdurigcirculairgebruik ingedachten.Ditbetekentdatzegeneratieslanggebruiktkunnenblijvenworden,zowelinontwerpalsin materialisering.Dankzijdemodulaireopbouwkunnendeafzonderlijkemodulesnagebruik gedemonteerdwordentotherbruikbareelementen.Hiermeewordtsloopeenbegripuithetverledenen wordtbijgedragenaaneencirculaireeconomie.
Hetbouwenmethoutheeftaanzienlijke voordelenvoorhetmilieu.Inelkemodulevanons gebouwismaarliefst12tonCO2opgeslagen, onttrokkenuitdeatmosfeertijdensdegroeivan deboom.Ditdraagtbijaaneenverminderingvan deCO2-uitstootenmaaktonzegebouwenCO2negatief.Bovendienmakenweuitsluitend gebruikvanmilieuvriendelijkeenhergroeibare materialen.Voorelkedriebomendieworden gebruikt,wordenervijfteruggeplant,wat resulteertineennettogroeivanbossenbijde realisatievanonzegebouwen.
Naastduurzaamheidbiedenonzegebouwenook praktischevoordelen.Doordatwedemodulesin defabriekvervaardigen,verloopthetbouwproces totdriekeersnellerdantraditionelemethoden. Ditkomtdeefficiëntietengoedezonderdathet tenkostegaatvandekostprijs.Zodragenweniet alleenbijaaneengroeneretoekomst,maarook aaneensnellereeneffectieverebouwsector.

Voorelke3gebruikte bomenplantenwe5 nieuwebomen terug.
Eenaangenameleefomgevingdieeenpositieveaanspraakmaaktopdezintuigen Licht–Kleur–Akoestiek–Tactiliteit–Temperatuur–Frisselucht
Eencomfortabeleleefomgevingisessentieelvoorhetwelzijnvanbewonersenmedewerkers.Bijons ontwerpstaatcomfortcentraal,waarbijwestrevennaareenharmonieuzecombinatievanlicht,kleur, akoestiek,tactiliteit,temperatuurenfrisselucht.Hieronderbelichtenwevierbelangrijkeaspectendie bijdragenaanhetcomfortinonzegebouwen.
Bijhetgebruikvannatuurlijkematerialenzoals houtstrevenwenaarminimaleafwerkingenom deluchtkwaliteittewaarborgen.Indiennodig, gevenwedevoorkeuraanolieafwerkingendie hethoutnietafsluiten,zodathetmateriaalvocht kanabsorberenenafgeven.Onzegebouwen voldoenaandestrengstenormenvoor binnenluchtkwaliteit,metmeetbareresultaten vóóroplevering.Ventilatiespeelteencrucialerol inhetcreërenvaneengezondbinnenmilieu.
Weontwerpenonzegebouwenmetgroteramen opstrategischeplaatsenomnatuurlijklichtdiep inderuimtestelatendoordringen.Bewoners hebbencontroleoverzonweringviahandmatig bedienbarescreens,waardoorzezelfderegie hebbenoverdehoeveelheidlicht.
Natuurlijklichtstimuleertactiviteitenwelzijn, terwijlwestrevennaarbiodynamischeverlichting voorkunstlicht,watbelangrijkisvoorbewoners metbeperktzicht.
Goedegeluidsisolatiezowelbinnenalsbuiten zorgtvooreenrustigeomgeving.Prefab-bouw draagtbijaaneengecontroleerdeuitvoering,wat resulteertinminimalegeluidsoverlast.Strakke uitvoeringvandetailsiscruciaalom geluidsoverdrachtteminimaliserenenzoeen comfortabeleleefomgevingtecreëren.
Onzegebouwenbiedenindividuele temperatuurregelingtussen21en25graden Celsiusinalleruimtes,waardoorbewonershun eigencomfortniveaukunneninstellen.Domotica maaktcentraleregelingvandebadkamers mogelijk,terwijlhetgebruikvanmoderne verwarmings-enkoelingssystemenzorgtvoor eenaangenaambinnenklimaatzondertocht,wat voldoetaandehoogstecomfortnormen

Vooriedereenenvooralvoorkwetsbaremensen(zoalsmensenmetdementie)iseenrijkewoonomgeving metbetekenisvolleplekkenvangrotewaarde.Inditgebouwvindenbewonersvanzelfsprekendhunweg naaraangenamehuiselijkeruimtesdiebijdragenaaneenwaardevolledag.Westrevennaarhuiselijke ruimtesdienietalleencomfortabelzijn,maarookbijdragenaaneenwaardevolledagvoorelkebewoner.
Contactenontmoetingzijnessentieelvoorhet welzijnvanbewoners.Onzeontwerpfilosofiericht zichophetcreërenvangemeenschappelijke ruimtesmetuitzichtoplevendigestratenof rustigetuinen,afhankelijkvandelocatie.Grote ramenenveiligebalkonsbiedenmogelijkheden voorrustigobserverenofhetmakenvaneen praatje.Binnenruimteszoalsdebinnenstraaten gemeenschappelijkeruimtesmoedigeninteractie aantussenbewonersenbezoekers,waardooreen gevoelvanverbondenheidontstaa
Hetverpleeghuisvandetoekomstismeerdan alleeneenzorghuis;hetiseenlevendige gemeenschapwaarbewonersdeelblijven uitmakenvanhunbuurt.Westrevennaar inclusiviteitdoorbewonersdevrijheidtegeven omgebruiktemakenvanlokalevoorzieningenen interactietehebbenmetdebuurt.Hetpleintje aandeentreenodigtbuurtbewonersuitom samentekomenencontactteleggen,waardoor eenondersteunendeomgevingontstaatvoor mensenmetdementie
Bewonerswordenaangemoedigdomhunleven teleidenvolgenshuneigenwensen,ongeacht hunzorgbehoeften.Hetgebouwkanworden voorzienvanleefcirkelsendwaaldetectie-en preventiesystemen,waardoorbewonersde vrijheidhebbenomtebewegenbinneneen veiligeomgeving.Deopenstructuurvanhet gebouwmetzichtlijnenenrustplekkenzaleen gevoelvanveiligheidenoriëntatiebieden,terwijl denabijheidvanverschillendegroepenbewoners onderlingcontacteninteractiezalstimuleren.

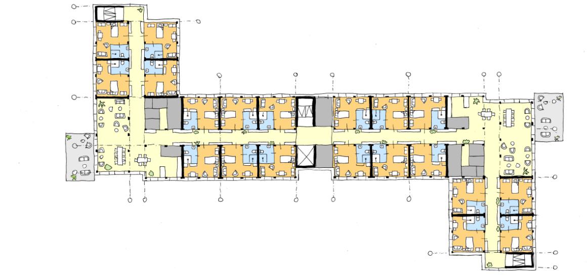
DekrachtvanZorginhoutconceptisdatwenietalleenduurzamerengezondermaar ookefficiënterontwerpenmetmeerruimtelijkekwaliteitdande‘zorgstandaard’.
DeDuplexUnitbestaatuitéénmodulevan5 meterbij11,8meterwaartweevolwaardige zorgstudio’svannetto25m2inclusief zorgbadkamerinzijnopgenomen.Doordatdeze studio’sindebreedtezijngelegdraaktgeen oppervlakverlorenaan‘gang’enhebbenwe evenveelnuttigeruimtealseenstandaard zorgstudiovan30m2.Daarbijcreërenwemeer lichtenzichtvanwegedebrederegevelen meerdere
inrichtingsmogelijkhedenvoor(zorg)bedenevt. pantry/keukentje.
Debadkamerisvoorzienvaneenschuifdeurenis afgestemdoprolstoelgebruikenevt.gebruikvan douchestoelene.d.Delayoutisefficiënt ontworpenvanuitdepraktischeervaringen feedbackvandiversezorgorganisaties.
Destructuurvandemodulebestaatuiteen systeemvankolommenenbalkeninCross LaminatedTimber(CLT)enGlulam,waardooreen robuuste,duurzameensterkeconstructie ontstaat.Devloeren,plafondseneendeelvande wandenwordenookinCLTuitgevoerd.Daarbij wordendeunitsvolledigafgewerkt:vloeren, wanden,badkamer,verlichting,installatieetc.

DitiseenbasisunitvandezelfdeafmetingenalsdeDuplexUnitenkanvrijwordeningezetvoor huiskamers,ontmoetingsruimten,buurtkamersetc.DeBuurtkamerUnitheeftvolledigeindelingsvrijheid eneenlangegevelmetveellichtenzicht.
OokdezeunitheeftweerdezelfdeafmetingenenisevenalsdeDuplexunitintweedelengesplitst.Een vandezedelenbevateenzorgstudio,hetanderedeelbevatfacilitaireruimtendiedoordeorganisatie ingevuldkunnenwordenzoals:berging,spoelruimte,werkkast,miva-toilet,medicijnruimtee.d.Ditdeel wordtoverhetalgemeenindebinnenhoekenvandeplattegrondgeplaatstwaargeendaglichtnodigis.
DezeunitishetzelfdeopgebouwdalsdeFacilitaireUnitallenwordendefacilitaireruimtenvervangen dooreenopenofgeslotenkeuken.DezeunitzalmeestalaandeBuurtkamerUnitwordengelegd.
DeDuplexUnit

DeBuurtkamerUnit
DeFacilitaireUnit DeKeukenUnit


Eenplattegrondkanwordenopgebouwduitverschillendemodulesbestaandeuitwoningen, facilitaireruimtes,woonkeukenenhuiskamers.Wezettenhiermeemaximaalinoponsslimme ensnellebouwsysteem,maarwekunnenmetdezeʻbouwstenenʼnogallerleiverschillende plattegrondenrealiseren,helemaalafgestemdopgewensteaantallen,beschikbaarkavel,en specifiekezorgprocessenenlogistiek.Inalleplattegrondenzorgenweervoordatde woonkwaliteitenbelevingvoorbewonersvooropstaat:ruimtevoorontmoeting,privacy,een heldereoriëntatie,enbetekenisvolleplekkendiedezintuigenprikkelen,opeenmanierdiepast bijdezespecifiekebewoners.Individuelewoningen engemeenschappelijkeruimteswisselenelkaaraf, zodathethuiskleinschaligenoverzichtelijk aanvoelt.Dehoutenmoduleskunnenopeen eindelozehoeveelheidmanierenworden geconfigureerd.Detrappenhuizenenliftenzijn traditioneelgebouwdenzorgenvoordestabiliteit vandeconstructie
Opelkeplekeninelkeopgavezaleenandere schakelingvanonderdeleneenanderperspectief bieden:eenzithoekwaareenmooiuitzichtis,een huiskamerverbondenmeteentuinofpark-met onzeflexibeleingrediëntenkunnenweopelke plekinspelenoplokalekwaliteiten,enhetgebouw zoinpassendathetbesteuitdeplekwordt gehaald.Elkezorgorganisatieheeftnetweereen anderzorgprocesenmaniervanwerken.Metdit modulairesysteemkunnenwemaatwerkbieden metoogvoorinzetvanmedewerkersenslimme logistiek.Wewerkenalsontwerpteamincocreatiemetdeorganisatie,omdeideale samenstellingsamenvormtegeven.




Natuurinclusief










Buitengenietenopalle etages,inalleseizoenen
Mensenmeteenzwarezorgvraag,metnamemensen meteenmentalebeperkingofeenvormvandementie, zijnaangewezenophunzintuigenomzichhun omgevingeigentekunnenmaken.Zijmoetenelkedag opnieuwkunnenvoelen,zien,horen,ruikenenproeven datzeveiligzijn,datzeopeenfijneplekzijn,daterwat tebelevenisofjuistrustkanwordengezocht,endatze hierthuiskunnenzijn.Datzitinrijkematerialen, texturenenkleuren,eenfijneakoestiekenveel gelijkmatig(dag)licht,enhetbiedenvanverschillende huiselijkesferenlangseenoverzichtelijkelooproute.De bewonerkanvrijbewegenlangsrustenreuring,binnen enbuiten,enzelfkiezenwelkesfeerofplekhem/haar aanspreektopdatmoment.
Vanmensenmeteenzwarezorgvraagwordtgezegd datzeʻnietmeerthuiskunnenwonenʼ-maarwateen raarideeomergenstemoetengaanwonenwaarje NIETthuisbent!Wijgelovendatwevooriedereeneen thuiskunnencreëren,ongeachtlichamelijkeof geestelijkezorgvraag.Hetgevoelvanjeeigen vertrouwdestoel,dezonopjegezichtindetuin,de geborgenheidvaneenfijnzithoekje,jeeigenspulletjes omjeheen-veelthuisgevoelzitinoeroudezintuiglijke ervaringendiewekunnenontwerpen,ookvoor bewonersdiebijvoorbeeldeenvormvandementie hebben.Behalveheteigenappartementbiedenwe verschillendewoonsferenindevormvanhuiskamers, zithoekjesofbuitenruimte,dieallemaalbijdragenaan deassociatievewereldvanherkenningenʻthuisʼ.






Triasenergetica
Comfort,duurzaamheiden energiezuinigheid.
Hetinstallatieontwerpvanhetgebouwsluitaan bijdeprincipesvandeTriasEnergeticaDitisde meesttoegepastestrategieom energiebesparendemaatregelentenemen,zodat zeopeenefficiëntemaniersamenwerken. Efficiëntindezinvan:zoduurzaammogelijk,dus zoenergiezuinigmogelijkenmetzoveelmogelijk gebruikvanenergieuithernieuwbarebronnen. Maarookindezinvankosteneffectiviteit:erwordt meerenergiebespaardperbestedeeuro.
Hierbijwordendevolgendeuitgangspunten geoptimaliseerd:Comfort,Duurzaamheiden Energiezuinigheid.Dekeuzevooreennieuw gebouwiseenkeuzevooreencomfortabel binnenklimaat.Daarverstaanweonder:een goedeakoestiek,geenhindervanbuitengeluiden, prettigeleef-enwerkomgeving,eenlageCO2uitstooteneencontroleerbare binnentemperatuur.Ditbereikenwedoorhet creërenvaneenoptimaleverhoudingtussen bouwkundigeschil,isolerendvermogenende technischeinstallaties.
Ventilatieluchtalsduurzame warmteopwekker.
Comfort,duurzaamheidenenergiezuinigheid vormendekernvanonsinstallatieontwerp.Het voorbeeldgebouwmaaktgebruikvaneen gecentraliseerdewarmtepompofWKO.
DaarnaastiselkeunituitgerustmetdeClimaRad Ventura,eeninnovatiefventilatiesysteemdatniet alleenzorgtvoorventilatie,maarookvoor verwarmingenkoelingvanderuimte.Dit systeemhergebruiktdewarmtevoordathetde luchtnaarbuitenafvoert,waardoorenergiewordt bespaard.
Debadkamerwordtgeventileerdviade ventilatieschachtenmeteengekoppelde ClimaRadB-fan,watzorgtvooreenefficiënte luchtafvoerzonderaparteventilatie-units.Dit draagtbijaaneengezondbinnenklimaaten minimaliseerthetenergieverbruik.

Hiermeeishetbouweninhoutvoorzorg,gecombineerdmetandere duurzaamheidsambities,betaalbaargewordenvoororganisatiesenevt.huurders.
UitgangspuntvoorZorginhoutisaltijdgeweest:Hetmoetbetaalbaarzijnvoorzorgorganisatiesbinnende NHCenvoororganisatieenhuurdersinScheidenvanWonenenZorg.Deresultatenlateneenzeer kansrijkebusinesscasezien.
Eriseenrealistischplandoorgerekend,dooreen gerenommeerdekostendeskundige,opbasisvan onsconcept.Daarbijzijnweuitgegaanvaneen projectmet60zorgstudio’sgebouwdindrie bouwlagen.Opiederebouwlaagworden2 groepswoningenvanieder10zorgstudio’s gerealiseerd,aangevuldmetgemeenschappelijke ruimten.
Hettotalegebouwheefteenoppervlaktevanca. 3.765m²bvo.
Omhetgebouwterealiseren,inclusiefeen gemeenschappelijketuin,deontsluitingen parkeerplaatseneneenfietsenstalling,iseen kavelnodigvanongeveer3.500m². Indezecasebrengtdezorgorganisatiezelfde grondin,isrisicodragendindeontwikkelingen regeltdefinanciering.FinchxOostwest ontwikkeltsamenmetdezorgorganisatieenhaar adviseurshetverdereplan.
Destichtingskostenbestaangrofweguitde kostenvoordegrond,debouwkostenen bijkomendekosten.Debouwkostenmakenhet grootstedeeluitvandestichtingskosten, ongeveer80%.
Voordegrondkostengaanweuitvan‘normatieve’ grondkosten.Dezecomponentmaaktongeveer 10%vandetotalestichtingskostenuit.
Debijkomendekostenhebbenbetrekkingopde adviseurs,projectmanagement, financieringskosten,prkosteneneenpost onvoorzien.Dezepostmaaktintotaalongeveer 10%vandestichtingskostenuit.
DetotalestichtingskosteninclusiefBTWzijnvoor dezeconfiguratiegeraamdop€14.500.000,-.
VoordeopbrengstenisuitgegaanvandeNHC vergoedingopbasisvandemeestactuele beleidsregelvandeNza.Wehebbengerekend meteengemiddeldedagvergoedingvanZZP5–8,eenbezettingsgraadvan97%eenafdrachtvan 3%voordeoverheadvandezorginstellingeneen indextotaandestartvandeexploitatie.De jaarlijkseopbrengstbedraagtinhetaanvangsjaar vandeexploitatieopbasisvangenoemde uitgangspuntenca.€765.000,-.
Hetbrutoaanvangsrendement(BAR)bedraagt opgrondvandestichtingskostenende opbrengsten5,3%.
NaastdeBARhebbenweeenbedrijfswaarde berekeninguitgevoerdvolgensdediscountcash flowmethode(DCFmethode).Bijeen bedrijfswaardedienaeenexploitatieperiodevan 40jaargelijkisaandeinitiëleinvesteringkomtde IRR(InternalRateofReturn)uitop5,3%.Het jaarlijkseexploitatieresultaatvande vastgoedexploitatieisvoldoendeomrenteen aflossingvaneenlineaireleningtekunnen betalen.

Wijzijnervanovertuigddatonsplanendedoorrekeningdiewehebbengemaakt(gebaseerdop reëleaannames)voorzorgorganisatiestoteendekkendevastgoedexploitatieeneenverantwoorde investeringleidt.
Bijhetscheidenvanwonenenzorgwordenalle studio’suitgevoerdalszelfstandigewoningmet eeneigenadresenhuisnummer.Debewoner huurtdandewoningenbetaalthuur(metrecht ophuurtoeslag)enmaaktgebruikvaneenVPT. MethetWWSsysteemiseenhuurvan€770per maandmet€100servicekostenredelijk.Metde opbrengstenvoordagbestedingingebrachtis hiereenzelfdeBARtebehalenalsbijdeNHC.Bij toepassingvandesubsidievooreenzorgwoning eneenhogerehuuriseenBARvan5,8%mogelijk
Inbeidevariantenzijndevoordelenm.b.t. energiekostennietverrekend.Dezekosten wordenvanuitdezorgexploitatiebetaald.De extrainvesteringopvastgoedgebiedzoumetdit voordeelruimgecompenseerdkunnenworden. Hetisaandezorgorganisatie,hoehiermeeomte gaan.
Variantenwaarbijheteigendomvanhetvastgoed terechtkomtbijexternebeleggersofcorporaties wordenopditmomentnaderonderzocht.Tevens wordentijdelijkesituatiesonderzochtvoor gebruikvan10tot20jaar.

Doorhetflexibeleenlosmaakbarebouwsysteemopbasisvankolommenenbalken zijndeZorginhoutDuplexUnitsnietalleessneleneenvoudigtebouwenmaarook makkelijkomtezettennaareen2-kamer(zorg)appartement.
Degebouwenwordenzoveelenzoefficiënt mogelijkopgebouwduitdeeerderbeschreven standaardmodules.Hetvoorbeeldgebouwvan60 studio’sin3lagenvan2x10studio’smet buurtkamers,keukensenfacilitaireruimtes bestaatvoormeerdan80%uitmodules.De aanvullenderuimteszijn:deverkeersruimten,het entreeenliftblokmetevt.multifunctionele ruimtes,techniekruimtenofkantoren,de vluchttrappenendebalkons.
Demoduleszijnonderlingdusdaniggekoppeld datdezeeenvoudigweerlostekoppelenzijnen evt.inzijngeheelverplaatstkunnenworden mochthetgebouwmaartijdelijkopeenbepaalde locatienodigzijn.
Tijdenveranderensnel,enzekerindewereldvan zorgenwonen.Vaakwordeneraan zorggebouwenvoorafeisengesteldm.b.t. ombouwbaarheidindetoekomst.Zeldenisdit echteenvoudig,efficiëntenbetaalbaarte realiserenengebeurtditdanooknauwelijks.
DeZorginhoutDuplexUnitisechtermeteen beperktaantalingrepenomtezettenineenfijn 2-kamerappartementmetallevoordelendiede origineleunitsalhadden.Hetappartementisnog steedsvollediggeschiktvoorhetverlenenvanalle benodigdezorgenheeftnogsteedsde ruimtelijkekwaliteitencomfort.Hierdoorisook hetwonen/logerenenverzorgenvanstellen mogelijk.Dematevanaanpassingwordtmetde organisatiebepaald.
Eenzorgstudiowordtgrotetweepersoons slaapkamermet(zorg)badkamer.Evt.kandeze eeneigenentreehoudenmochtditvoorzorg belangrijkzijn.Deanderestudiowordteen woonkamer.Debadkameruitdiestudiowordt omgezettotkeukenenberging/wasruimte.Er kaneenvoudigeenopeninggemaaktworden tussendestudio’swaarmeedeverbindingtussen beideruimtesgemaaktkanworden.

1unit-2studio’s 1unit-1twee-kamerappartement


Elke5seconden groeiterinEuropa genoeghoutbijvoor eennieuwemodule.

Oostwest
+31(0)206222065
+31(0)263779797
www.oost-west.nl bureau@oost-west.nl
Fotografie:KeesHummel
FinchBuildingsB.V. +31(0)20-8943431
www.finchbuildings.com info@finchbuildings.com
Grafischontwerp:SimonSitanala
Deinformatieindezeproductfolderismetzorginelkaargezetenwordt regelmatigvannieuweinformatievoorzien.Aandeverstrekteinformatieen gebruikt(beeld)materiaalindezeproductfolderkunnengeenrechten wordenontleend.Deinhoud(teksten,beelden,etc.)iseigendomvan OostwestB.V.enFinchBuildingsB.V.enmagnietwordengebruiktzonder schriftelijketoestemming. Voorarchitectenwerkzaamhedenhanterenwij devoorwaardenuitdeDNR2011.