Product Guide v.1

Page 1


4920 Northpark Loop Colorado Springs, CO 80918 (719)272-8043

3 Colors

Door Styles 4 Cabinet Box/Drawer Box 5 Specifications 5 Installation Guides

Custom Order

Policies

Dealers

Closets

21-24 Cabinet List 40 Addendum

One Source Cabinets began out of the desire to want to uncomplicate the custom cabinet buying experience for our customers. We began in 2014 offering stock cabinets with custom options but soon discovered we wanted to be able to offer more. With the landscape changing in the stock cabinet industry as new anti-dumping legislation and tariffs began plus the greater lead time length to get the boxes we decided to make a change. We took this uncertainty as an opportunity to pivot and have more control over the process by manufacturing our own cabinets.

By using quality materials and overseeing the workmanship of the cabinets, we are giving our customers a better product with more customization at a better price.

You’re going to love the design opportunities & the seemingly endless options that we offer with our new in-house cabinet manufacturing technology. Expect nothing less than the look and feel of the highest quality of wood grain definition. In fact, once you see and feel our materials, you’ll prefer it over real wood.

Each & every cabinet is made to order in our two state of the art local cabinet-making factories in Mesa, AZ & Colorado Springs, CO. We don’t stock kitchen units like others, so we can offer a multitude of cabinet combinations to make your designs and dreams come true.

OSC Colorado Springs Facility

At One Source Cabinets, we take pride in utilizing the most current technology and machinery available to manufacture some of the finest cabinets on the market. Our cabinets are custom made to your specifications. The height, width and depth of your cabinets can virtualy be any size unlike most of our competitiors. Because our cabinets are made in Colorado Springs, this typically results in faster leadtimes to our Colorado customers. In the event of missing parts or potential warrany items, we gaurantee replacements in less than two weeks - in most cases it's much faster.

The current model of in stock cabinet companies is and will continue to change drastically as the new anti-dumping legislation and tariffs begin and continue to take their toll. We tool the uncertainty of this and now manufacture our own products with complete control over the quality of materials, workmanship and price.

Door Styles/Cabinet Configurations

Door and drawer fronts are available in either shaker or slab. See below for configurations.

Standard slab doors are vertical grain

Standard slab drawer fronts are horizontal grain.

Clear glass doors-glass is built into the door as the center panel. Only available as a shaker door.

**Wall cabinets can be ordered without a bottom.

Standard Base and Wall Cabinet

5/8" or 3/4" cabinet box. Exposed edges of box, fixed shelves and partitions will be edgebanded to finished color. See box construction for options.

SALICE-FUTURA SMOVE 7555-Clip version. Full extension, soft close runner. Laod capacity:100 lbs static/75 lbs dynamic.

34-

Standard drawer box is 5" high. 5/8" or 3/4" melamine drawer box. See box construction for options.

All drawer fronts come with drawer front adjusters*. Shaker or Slab Drawer fronts. 1/16" reveal all sides. ***AWI testing standards

SALICE-SILENTIA+ Series 100. 105 degree opening. Hinges with adjustable integrated softclose mechanism operated by twin silicone-oil

6- Leg Levelers or integrated toe kick.

Interior shelves will match color and thickness of cabinet box.

Shaker or slab door. 1/16" reveal all sides.

Standard roll out is 5" high. Roll out will match drawer box. See box construction for options. Roll outs on hinge side of cabinet will have stand off to allow roll out to clear hinge.

*Each drawer front will have 4 drawer front adjusters in each drawer face.

(719)272-8043

5/8" or 3/4" cabinet box. Exposed edges of box, fixed shelves and partitions will be edge banded to finished color. See box construction for options.

SALICE-FUTURA SMOVE 7555-Clip version. Full extension, soft close runner. Load capacity:100 lbs static/75 lbs dynamic.

Standard drawer box is 5" high. 5/8" or 3/4" melamine drawer box. See box construction for options.

SALICE-SILENTIA+ Series 100. 105 degree opening. Hinges with adjustable integrated soft-close mechanism operated by twin silicone-oil dampers

Leg Levelers or integrated toe kick.

Tall cabinets with roll outs. Standard are 5" high and spaced equally at 4 1/2". Roll outs are not adjustable. For other size rollouts and custom spacing submit a custom cabinet form.

7- Roll outs on hinges side of cabinet will have a stand off to allow roll out to clear hinges.

(719)272-8043

For appliances in base cabinets. Use a DB1-1 drawer base and WO-wall open cabinet.

Size the wall open cabinet to fit the appliance then adjust the height and width of the 1 drawer base.

Use a BFD for sink base. A BFD will not have a fixed apron behind the doors and will ship with a full top to support the sink.

Use a BEP left and right of the sink to capture the sink. Panels can either be full-height as shown or 30" high.

Apron Front Sink

(719)272-8043

Toe Kick with Leg Levelers

End panel will ship with drawer front adjusters and toe kick return.

Cabinet will ship with predrilled locator holes that align with end panels drawer front adjusters.

Front toe kick will be captured by toe kick return

The sockets for the legs will already be installed on the bottom of the cabinet. Simply insert the leg into the socket.

Once the legs are 100% leveled, cut the toe kick to length. Lay the toe kick down in front of the legs and mark a center line where the toe kick clip will be screwed to the toe kick material. Attach toe kick to clips. The toe kick clips have side to side adjustment if needed.

Note: Some customers prefer not to use the rear leg levelers . In this case, the customer will install a leveled ledger board up against the wall to hang the back of the cabinet on. By doing so, the back plane of the cabinets will be 100% level, and now you will only need to adjust the height of the front cabinet legs. This can greatly reduce your cabinet leveling time. No shims required!

Legs and toe kick clips will shipped with the cabinet.

Tall Appliance

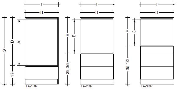
A: Cut out height (with top stretcher) = cabinet height -18 1/2"

B: Cut out height (with top stetcher) = cabinet height - 29 7/8"

C: Cut out height (with top stretcher) = cabinet height - 36 1/2"

D: Bottom of cut out to top of cabinet = cabinet height - 17"

E: Bottom of cut out to top of cabinet = cabinet height - 28 3/8"

F: Bottom of cut out to top of cabinet = cabinet height - 35 1/2"

G: Cabinet height

H: Cut out width = cabinet width - 1 1/2"

I: Cabinet width

A: Cut out height (with top stretcher) = cabinet height -18 1/16"

B: Cut out height (with top stetcher) = cabinet height - 29 5/16"

C: Cut out height (with top stretcher) = cabinet height - 36 9/16"

D: Bottom of cut out to top of cabinet = cabinet height - 16 13/16"

E: Bottom of cut out to top of cabinet = cabinet height - 28 1/16"

F: Bottom of cut out to top of cabinet = cabinet height - 35 5/16"

G: Cabinet height

H: Cut out width = cabinet width - 1 1/4"

I: Cabinet width

5/8" Cabinet box construction
3/4"

(719)272-8043

Panel will ship loose with the blind base cabinet. Install the panel 1/16” from door to keep consistent reveals.

Base Filler: leg attached to adjacent cabinet, see filler installation.

Base Blind Corner Minimum Pull 3”.
Base Blind Corner

(719)272-8043

Panel will ship loose with the blind base cabinet. Install the panel 1/16” from door to keep consistent reveals.

Wall filler. See filler installation.

Wall Blind Corner Minimum Pull 1”
Wall Blind Corner

(719)272-8043

Flat Crown (CDF)– Install horizontal leg 1/8” out from face of cabinet. This will allow ¾” face to be flush with doors. For a stepped/stacked crown, use CF as second layer.

Flat Crown

(719)272-8043

Wall Cabinet with Doors Down

Cabinet doors will hang down ¾” and cabinet height will decrease by ¾”. Ex: If using a 42” wall cabinet, the cabinet box will be 41 ¼” high and door will be 42”. Please take this into consideration when installing. With a typical install the wall cabinet is 54” AFF, adjust this to 54 ¾”.

Use LR or full panel on bottom.

Standard end panel is used. ¾” material will end against panel

Island End and Back Panels

¾” End Panels. Adjust depth to equal ¾” back panel and cabinet. When using a back panel, it can be ordered long and trimmed on site.

EX: Base cabinet and ¾” back panel: 24 7/8”+3/4” = 25 5/8”

Or: 24” deep cabinet one side and 12” cabinet other side: 24 7/8” + 12 7/8” = 37 ¾”.

End Panel

Back Panel

4920 Northpark Loop

Colorado Springs, CO 80918

(719)272-8043

Custom Cabinet Worksheet

Date:

Custom Cabinet Worksheet

If there is a cabinet that is not listed in the product guide, please fill out this form and submit it to your OSC point of contact. We will review the request and either approve or decline. All custom cabinet requests are specific to the current project and are not reusable unless OSC adds the cabinet to the product list. All information must be filled out for request to be processed.

Custom Cabinet Request for:

Project:

Color:

Edge Banding

Door Style/Grain Direction

Drawer Style/Grain Direction

Cabinet Box Material

Toe Kick

Please provide a sketch Request Approved Request Declined

Comment: Cost of Cabinet

4920 Northpark Loop Colorado Springs, CO 80918

(719)272-8043

Price Policy: Price quotes are valid for 30 days. OSC reserves the right to modify pricing at any time.

Freight Policy: Customer is responsible to pay freight which will be included in the cabinet/component quote.

Deliveries: OSC will deliver via our trucks to the Colorado Springs/El Paso County area as well as the greater Denver Metro area.

Any deliveries outside of these ranges will need to have freight quoted by a third party. Customer orders can always be picked up at the OSC Colorado Springs facility.

Cabinets will be delivered only to the curbside/garage. Delivery area must be free of snow and debris.

Orders: All orders are subject to acceptance by OSC. All orders and all quotations are subject to approval by OSC.

Sign-offs:

Once an order (quote and drawings) have been signed off, they cannot be modified. A new order must be placed where possible. Otherwise, a change order fee may apply.

Lead times: Check with your Sales Rep for the current lead-times based on current orders.

Installation OSC does not provide installation services.

Scheduling: Cabinets must be delivered on agreed upon date. Delivery delays causing cabinets to be stored at OSC may incur additional storage fees.

Payment Policy: OSC requires 100% of the total project cost due at time of acceptance.

Return Policy: Each cabinet or component that OSC manufactures is custom. Therefore, OSC does not accept any returns of any kind. All OSC sales are final.

Warranty: OSC offers a limited lifetime warranty. For warranty, missing or damaged parts email coservice@onsourcecabinets.com.

(719)272-8043

Showroom displays Contact sales manager for details.

Dealer Program

Samples OSC will typically provide and initial set of color samples. Samples/selling cabinet upon request. Additional showroom samples or project specific samples by request.

Pricing OSC will provide the dealer with a multiplier linked to our design software. OSC does not offer promotions or discounts.

Payment and Ordering OSC requires 100% payment and approved cabinet drawings to begin production. If an OSC designer creates cabinet drawings or does a review of the dealers' drawings, a signed copy of the drawings is required to process the order. If the dealer produces the drawings and does not need a review, then OSC will process the order.

Branding Contact sales manager for details

Training OSC will provide in-person or virtual training on cabinet layout and design software.

Design Software OSC has partnered with cloud-based design software that will be free to use. It will include an up-to-date catalog and pricing. If you prefer to use a different software for layout and design, OSC will draw and price the project using our machine software. These drawings will need to be approved before production.

Custom closet systems – Coming soon

Custom Closets can easily be created using our current cabinet selections, see one of our designs for tips on how to create the perfect custom closet.

FLOATING BASE

39

(719)272-8043

(719)272-8043

(719)272-8043

(719)272-8043

(719)272-8043

(719)272-8043

(719)272-8043

(719)272-8043

(719)272-8043

(719)272-8043

PANELS

4920 Northpark Loop

(719)272-8043

BEP - BASE END PANEL

** The maximum width and height of a slab panel is based on the material size

See the color chart for material sizes

WEP - WALL END PANEL

** The maximum width and height of a slab panel is based on the material size

See the color chart for material sizes

TEP - TALL END PANEL

** The maximum width and height of a slab panel is based on the material size

See the color chart for material sizes

DWR L/R - BASE PANEL WITH FACE

*DWR will ship with a 3" face. Specify any width above 3"

RRP L/R - TALL PANEL WITH FACE

*RRP will ship with a 3" face. Specify any width above 3"

** Maximum height is based on material size, see the color chart for material sizes

FILLERS AND TRIM

4920 Northpark Loop Colorado Springs, CO 80918

(719)272-8043

BDF L/R - BASE DOWELED L FILLER

*Doweled fillers will ship with a 3" face. Specify any width above 3"

TDF L/R - TALL DOWELED FILLER

*Doweled fillers will ship with a 3" face. Specify any width above 3"

** Maximum height is based on material size, see the color chart for material sizes

WDF L/R - WALL DOWELED FILLER

*Doweled fillers will ship with a 3" face. Specify any width above 3"

** Maximum height is based on material size, see the color chart for material sizes

CDF - FLAT CROWN WITH FACE

*Doweled flat crown will ship with a 3" face. Specify any width above 3"

** Maximum length is based on material size, see the color chart for material sizes

CF - FLAT CROWN

*Specifiy height of flat crown

** Maximum length is based on material size, see the color chart for material sizes

LR - LIGHT RAIL

*Specifiy width

** Maximum length is based on material size, see the color chart for material sizes

TK.25/TK.75 - TOE KICK

*Toe kick will ship 4 1/2" high. Specify height above 4 1/2"

**Toe kick will ship 96" long. See color chart for material above 96"

SM8 - SCRIBE

Turn static files into dynamic content formats.

Create a flipbook
Issuu converts static files into: digital portfolios, online yearbooks, online catalogs, digital photo albums and more. Sign up and create your flipbook.
Product Guide v.1 by onesourcecabinets.com - Issuu