1104 Greer Street Fort Worth 76102 Condominium Development Project

Page 1

1104 GREER ST FORT WORTH Site Plan Review NOMAD BUILD ONE LLC

Site Location Map

1 1104 Greer Street

Site Location Map

2 1104 Greer Street

Lot Frontage

3 1104 Greer Street

Retreat Condominium Project

Core Features

Wonderful 6 unit condominium project.

• 6 guest parking.

• 2 community parks with BBQ pit and benches.

• Exterior elevations are mix of bricks and stucco.

o Level 1

▪ 2 covered car garage with fenced backyard

o Level 2

▪ One Full bath

▪ One bedroom

▪ Living room

▪ Kitchen

▪ Dining

▪ Balcony access from common area and bedroom toward neighboring lot.

o Level 3

▪ Two Bedrooms

▪ Two full baths

▪ Laundry area

▪ Master bedroom with balcony access toward shared driveway

▪ Decorative balcony toward neighboring lot.

o Level 4

▪ Open roof deck with scenic view

4 1104 Greer Street

Retreat Condominium Project

Core Features

Street Front Elevations

• 5 Feet setback for flowerbed that will include flowers, bushes.

• Units facing street has large windows to improve curb appeal

• Units facing street on Level 3 balcony facing the street to improve curb appeal.

5 1104 Greer Street

Site Plan

6 1104 Greer Street

Landscape Plan

7 1104 Greer Street

Landscape Plan

8 1104 Greer Street

Landscape Plan

9 1104 Greer Street

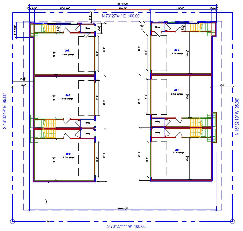
Level 1 Plan

10 1104 Greer Street

Level 2 Plan

11 1104 Greer Street

Level 3 Plan

12 1104 Greer Street

Level 4 Plan

13 1104 Greer Street

Elevation facing from shared driveway

14 1104 Greer Street
Elevations

Building Side Elevation

15 1104 Greer Street Elevations

Street Facing Elevation

16 1104 Greer Street
Elevations

Building Rear Side Elevation

17 1104 Greer Street
Elevations
18 1104 Greer Street
Level 2 Balcony

Turn static files into dynamic content formats.

Create a flipbook
Issuu converts static files into: digital portfolios, online yearbooks, online catalogs, digital photo albums and more. Sign up and create your flipbook.