Diagnostico Urbano Villa el Salvador

Page 1

DISTRITO VILLAELSALVADOR

TALLERDEDISEÑOVI GRUPO5

INTEGRANTES:

SotoCarrion,Criseida 100%

RivasRengifo,Renzzo 100%

QuirozGonzales,Omar 100%

BecerraOtoya,Laury 100%

SaavedraLuna,Jair 50%

CÁTEDRA:

Mag.Arq.OmarAngeloWinchoChilquillo

Mag.Arq.GiovannaMarieleeRosadoDaviran

FACULTADDEARQUITECTURAYDISEÑO SEDECOMAS

2023-1

ÍNDICE

CONDICIONESNATURALESY

INTRODUCCIÓN

OBEJTIVOS

GENERALIDADES 1

2 3 4 5

MARCOHISTORICO

MARCONORMATIVO

DEMOGRAFIA

SOCIAL

EDUCACIÓN

MARCOCONCEPTUAL ECONOMICÓ

SALUD

TRAMAURBANA

EVOLUCIÓN

OBEJTIVOS

TIPOLOGIAS

SISTEMAVIAL

TIPOSDEVIAS

MEDIOSDETRANSPORTES

FLUJOS

SERVICIOSBASICOS

SERVICIOS

6 7 8 9 10

MEDIOAMBIENTALES

TOPOGRAFIA

TIPOSDESUELO

CLIMA

EQUIPAMIENTOURBANO

RESIDENCIAL COMERCIO EDUCACIÓN RECREATIVO

SALUD CULTURAL INDUSTRIA RELIGIOSO

REGLAMENTACIÓN

ZONIFICACIÓN

DIAGNOSTICO

DIAGNOSTICOGENERAL

DIAGNOSTICOPARTICULAR

TIPOLOGÍADEPROYECTOS

REFERENTESARQUITECTONICOS

PROPUESTAURBANA/EQUIPAMIENTO

PLANODEUBICACION

CRITERIODESELECCIÓNDETERRENO

PROPUESTAELEGIDA

PROGRAMAARQUITECTONICO

CRITERIODEDISEÑO

INTEGRANTES

Meconsiderounapersona pacienteydetallista,me desenvuelvoconprogramas comoAutoCAD,sketchy Photoshop

Meconsiderounapersona responsableyempática.Soy muymeticulosoconlos trabajosyhastaavecesmuy perfeccionista.

Meconsiderounapersona perseveranteconmis objetivosyconganasde aprender.Tratodedarlo mejordemienloqueme propongo.

Meconsiderounapersona responsableyempática.Soy

perseveranteconloqueme propongoytratodedarun pocomásdeloquepuedo dar,paracumplir.

Meconsiderounapersona trabajadora,responsablecon sustrabajosyalgo perfeccionistas

QUIROZ ARQUITECTURA Y URBANISMO ARQUITECTURA Y URBANISMO ARQUITECTURA Y INTERIORES ARQUITECTURA Y INTERIORES ARQUITECTURA Y URBANISMO RENZZO RIVAS CRISEIDA SOTO LAURY BECERRA JAIR SAAVEDRA N00238917 N00253091 N00210084 N00147908 N00246721
OMAR

DIAGNÓSTICO DEL DISTRITO

DIAGNOSTICOGENERAL

SOCIAL

LA POBLACIÓN ASCENDIO EN LOS ULTIMOS AÑOSPORELCRECIMIENTODEMOGRAFICO.

TRANSPORTE

LA CONFIGURACION VIAL DEL DISTRITO NO SE ENCUENTRA CORRECTAMENTE INTEGRADO, LAS VIAS ALTERNAS COMO LOS CRUCES O INTERCAMBIOSSONINEFICIENTES

NODOSDECONGESTION

HUMO Y MALOS OLORES EXPEDIDOS DEL CREMATORIO "EL MANATIAL"

VILLA EL SALVADOR ES EL TERCER DISTRITOCONMAYORGENERACIÓN DERESIDUOS(300TONELADAS)

HUMOYMALOS OLORES

PROBLEMASAMBIENTALES GENERACIONDE RESIDUOS

FLORAYFAUNA

TIENE DEFICIT DE AREAS CON ARBORIZACION, PERO CUENTA CON PAISAJE NATURAL QUE SE PUEDE REVITALIZAR.

LEYENDA

C.ATMOSFERICA G.RESIDUOS INFORMALIDAD

COMERCIO

EL INDICE DE INFORMALIDAD ES DE GRADOMEDIO,GENERANDOUNCAOS YDESORDENURBANISTICO.

CONGESTION

R
NODOSDE
INFORMALIDAD CONTAMINACION
- QUIROZ GONZALES OMAR - SAAVEDRA LUNA, JAIR - RIVAS RENGIFO, RENZZO - SOTO CARRIÓN, CRISEIDA - BECERRA OTOYA, LAURY SELENE DOCENTES: ALUMNOS: L-28 TEMA: DIAGNOSTICO DEL DISTRITO TALLER DE PROYECTOS ARQUITECTÓNICOS VI
CURSO: G R U P O 5
FACULTADDEARQUITECTURAYDISEÑO
MG ARQ OMAR ANGELO WINCHO CHILQUILLO MG ARQ GIOVANNA MARIELEE ROSADO DAVIRAN

DIAGNOSTICOPARTICULAR

FACULTADDEARQUITECTURAYDISEÑO

DOCENTES:

PROYECCIONALDISTRITO

SE GENERARIAN PUESTOS DE TRABAJO EN EL SECTOR INDUSTRIAL QUE PREDOMINA EN EL DISTRITO Y ESTO ASUVEZREDUCIRIALATASADEDESEMPLEO.

ZONAINDUSTRIAL

SE HA IDENTIFICADO QUE LAS ZONAS INDUSTRIALES DEL DISTRITO ESTÁNALEJADOS DEL SECTOR DONDE HAY DÉFICIT DE INSTITUTOS EDUCATIVOS SUPERIROES

TEMA:

CURSO:

FALTADEINSTITUTOS SUPERIORES

SE HA IDENTIFICADO UNA DEFICIENCIA DE INSTITUTOS SUPERIORESENLAZONASURDEL DISTRITO

SE CUBRIRIA PUESTOS DE TRABAJO PARA DISTINTOS SECTORES : ADMINISTRACION, TEXTILERIA , METALMECANICA,ETC.

ALUMNOS:

DIAGNOSTICO DEL DISTRITO

TALLER DE PROYECTOS ARQUITECTÓNICOS VI

SE PRODUCIRIA UNA REDUCCION EN LA TASA DE JOVENES QUE NO ACUDEN A UNA INSTITUCION EDUCATIVAYAQUELAMAYORPARTEDELAPOBLACION SEENCUENTRAENLAEDADDE20-29AÑOS.

- QUIROZ GONZALES OMAR

- SAAVEDRA LUNA, JAIR

- RIVAS RENGIFO, RENZZO

- SOTO CARRIÓN, CRISEIDA

- BECERRA OTOYA, LAURY SELENE

L-29
G R U P O 5
MG ARQ OMAR ANGELO WINCHO CHILQUILLO MG ARQ GIOVANNA MARIELEE ROSADO DAVIRAN

INSTITUTO SUPERIOR TECNOLOGICO

FORMARPERSONASENLOSCAMPOSDELACIENCIA, TECNOLOGIA PARAASIPODERCONTRIBUIRCONSU DESARROLLO INDIVIDUAL, SOCIAL Y SU ADECUADO DESENVOLVIMIENTO EN EL ENTORNO LABORAL NACIONALEINTERNACIONAL.

13 000 M² PROPUESTA

PROMUEVE A LOS ESTUDIANTES ADQUIERIR CAPACIDADES COMPETITIVAS, A BASE DE INVESTIGACION,ANALISISOBJETIVO QUE LE SERVIRAN EN EL MEDIO LABORAL.

12 000 M² PROPUESTA

ENTRE SUS ESPECIALIDADES ES LA CARRERA INDUSTRIAL DEBIDO AL SECTOR ECONOMICO DEL LUAGR ES MAS RENTABLE, FORMARAN PROFESIONALES COMPETENTESPARALABORAREN ELMERCADO.

PROFESIONALES ALTAMENTE CALIFICADOS PARA LIDERAR, Y EJERCERSUSCARRERAS.

ENTRE LAS CARRERAS QUE OFRECEN SON, ADMINISTRACION INDUSTRIAL, ELECTRICISTA INDUSTRIAL, MECANICO AUTOMOTRIZ, DESARROLLADOR DE SOFTWARE, ADMINISTRADOR DE EMPRESAS,ENTREENTROS

LOSESTUDIANTESESTARANENLA FACULTAD DE DESARROLLAR SUS CAPACIDADESADQUIRIDAS.

LAS INSTALACIONES, AULAS, INFRAESTRUCTURA, CUENTA CON LOS EQUIPOS NECESARIOS, BRINDANDO UNA BUENA EDUCACION.

PARA QUE LOS ESTUDIANTES PUEDAN SER ADMINITIDOS DEBEN HABER PRIMERO CULMINADO SU SECUNDARIAESTUDIANTIL

FACULTADDEARQUITECTURAYDISEÑO

PROMUEVE A LOS ESTUDIANTES ADQUIERIR CAPACIDADES COMPETITIVAS, A BASE DE INVESTIGACION, ANALISIS OBJETIVOQUELESERVIRANENEL MEDIOLABORAL.

SU FINALIDAD ES PRESENTAR A PROFESIONALES LIDERES, CAPACES DE EJERCER Y SOLUCIONAR CUALQUIEN ADVERSIDADQUESEANFRENTEN.

SENATI 3AÑOS INSTITUTOSUPERIOR
PARAELCASODE DURACIÓN
- QUIROZ GONZALES OMAR - SAAVEDRA LUNA, JAIR - RIVAS RENGIFO, RENZZO - SOTO CARRIÓN, CRISEIDA - BECERRA OTOYA, LAURY SELENE DOCENTES: ALUMNOS: L-30 TEMA: DIAGNOSTICO DEL DISTRITO TALLER DE PROYECTOS ARQUITECTÓNICOS VI
TECNOLOGICO
TIPOLOGIA
CURSO: G R U P O 5 MG ARQ OMAR ANGELO WINCHO CHILQUILLO MG ARQ GIOVANNA MARIELEE ROSADO DAVIRAN

REFERENTES

EDIFICIO DE QUÍMICA E INGENERÍA

Esta construcción pertenece a la Universidad Nacional de Colombia, concretamente al laboratorio de Ingeniería Química y Química.

Cuenta con un sistema de ahorro energético, ventilación e iluminación natural, accesibilidad e incluso aprovechamiento de la luz solar.

Clima

Localización Arquitectos

P anning y construcción

Verón ca Henríquez Ardi a John Jairo Cardona

Función

La edificación se encuentra, en el centro de Manizales, Colombia, teniendo ello en cuenta se piensa en una composición orgánica, con el entorno. Además hay bastante presencia del paisajismo y mucha vegetación, hacen un gran papel en el proyecto.

Forma

La forma de los ed f cios son horizontales en donde tiene la facu tad de abarcar gran cant dad de estud antes, además de su buena c rculac ón La imp ementación de usar os techos para usar paneles solares o conv erte en una arqu ectura sosten b e y sustentable

Manizales, Caldas, Colombia

Estructura

Sistema Aporticado

Concreto Armado

Ladrillo

Vegetación

Formada por arboes como e Ombu, Cardo Caña de cobre acinto de agua comun

Situación

Localizacióndentrodeurbanizado

Unáreade7.226m2

FACULTADDEARQUITECTURAYDISEÑO

DOCENTES:

CURSO:

ALUMNOS:

- RIVAS RENGIFO, RENZZO

- SOTO CARRIÓN, CRISEIDA

2 1 2 3 4 6 7 9 1 1 1 3 1 5 7 1 9 2 2 3 2 2 2 7 2 0 2 1 1 2 3 4 5 6 Acso aaMu pe O na doene LabCadaddeaua Lbaua A a P o Amacnameno m es a S acaed tco 7 8 9 10 11 12 Pe aacónmue as Amaenm e a s Amacn ea v s Rec o 3 14 15 abQumca Cun c LabQumc Oga c 1 17 18 19 20 a dem r s LbM r boog B qumc Ce r de a e o Cen ade ae Apoehameno dersduo T e mcn o e c o B deg p na epoeos Bodga 22 23 24 25 26 27 Bodgarsduo pegoo u os om rsbe S a emquns abTan een d c o 28 29 30 P nad poeos podu os abF oQumc 31 La Mneode Sodo LbQum aBá a 21 1 2 3 4 5 6 8 9 10 11 12 13 14 15 16 17 18 19 20 22 21 19 7 PRIMER NIVEL SEGUNDO NIVEL
REFERENTEN°1
Verano
Otoño:15º/19º nvierno:8º/15º
COLOMBIA N
Primavera:18º/25º
19º/29º
COLOMBIA BMANIZALES-
- QUIROZ GONZALES OMAR - SAAVEDRA LUNA, JAIR
- BECERRA OTOYA, LAURY SELENE
L-31
TEMA: REFERENTES
TALLER DE PROYECTOS ARQUITECTÓNICOS VI
G R U P O 5
MG.ARQ. OMAR ANGELO WINCHO CHILQUILLO MG.ARQ. GIOVANNA MARIELEE ROSADO DAVIRAN

REFERENTEN°2

TEMPOALMAFUERTE

Clima

Primavera: 18º/25º

Verano: 19º/29º

Otoño: 15º/19º

Invierno: 8º/15º

ARGENTINABUENOS AIRES

BUENOS AIRESBUENOS AIRES

Este terreno se encuentra en el barrio 9 de Abril, en la provincia de Buenos Aires, Argentina. El proyecto tiene la intención de habiliar espacios con buena circulación en las instalaciones, es un centro educativo dispuesto para niños y adolecentes.

Arquitectos Vegetación

Situación

FACULTADDEARQUITECTURAYDISEÑO

DOCENTES:

Localización

Ademas Arquitectura

Leandro A. Gallo

Formada por arboles como el Ombu, Cardo, Caña de cobre, Jacinto de agua comun Usuario

Niños(as)yjóvenes Edad:6a17años

Dr E Restelli 1555, B1839CJS 9 de Abril, Provincia de Buenos Aires, Argentina

Forma Estructura

La forma de las dos partes en sí son cuadriculada irregular conectada, donde recibe una dinamica e innovadora circulación exterior, a base de rampas largas, en donde se le incluye toboganes. para que el usuario pueda prticipar en ello.

Función

Permite que diferentes espacios se relacionen en forma lógica y racional satisfaciendo las necesidades internas y externas del espacio de comunicación e interacción, así como las necesidades psicológicas, como el tobogan ya que cumple función de conexión, como también ser dinamico para el usuario que son niños.

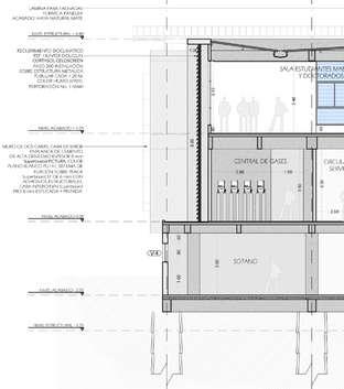
CORTE ARQUITECTONICO

TEMA: REFERENTES

CURSO:

TALLER DE PROYECTOS ARQUITECTÓNICOS VI

ALUMNOS:

- QUIROZ GONZALES OMAR

- SAAVEDRA LUNA, JAIR

- RIVAS RENGIFO, RENZZO

- SOTO CARRIÓN, CRISEIDA

- BECERRA OTOYA, LAURY SELENE

DrEResteli SanAntonio Colón HermanosPinzón HernanCortés VaMoni LaPinta LaSta María LaRabida Cam deCintura Cam deCintura N 1 2 3 4 5 6 7 8 Reep on Auadeesudo S ón ompu có Cocna Come or Bboea Aceop n p Aceosseunda s 9 Sa mu uso Canhadeueos paansño nñs Se coshgen os 2 1 8 6 3 2 2 6 3 3 3 7 7 7 7 7 2 2 2 2 2 6 8
L-32
G R U P O 5
Localización dentro de un área de urbanizacion 143 m2
Sistema Mixto Concreto Armado Ladrillo
MG ARQ OMAR ANGELO WINCHO CHILQUILLO MG ARQ GIOVANNA MARIELEE ROSADO DAVIRAN

REFERENTEN°3

Instituto Goethe

Clima

Primavera: 9º/23º

Verano: 19º/30º

Otoño: 15º/17º

Invierno: 3º/16º

Situación

FACULTADDEARQUITECTURAYDISEÑO

Esunespaciocaracterizadoporsugraninnovaciónenlamaterialidad,comotambiénsusdiseños.La disposiciónradialdelasinstalaciones,alavistaydecolores,hacehincapiéenlafuerzacentrifugade ellayout.ElInstitutopuedeserdivertidamentereconfiguradoatravésdediferentesactividadesy necesidadeseneltranscursodeldía.Materialesysuperficiesemisoresdeluzañadenotramisteriosa capaespacialenlanoche

Arquitectos Vegetación

FAR frohn y rojas Formada por flores como el azulillo, el lirio del campo y el clavel del campo

Usuario

Función

Adultos

Edad:18a50años

Localización

Holanda100,Providencia, SantiagoMetropolitan Region,Chile

La función de esta arquitectura propone ambientar espacios bien distribuidos y además que cuenten un material de aislante sonoro, lo cual es logrado

Forma

El ed f cio presenta una forma para epipedo rectabngular, pero en e interior desarrol a una distr bucion rad al, complementando e juego de a mater alidades diversas para a función del espacio

Estructura

Hormigon armado

Sistema Aporticado

Acero Estructural

AVPROVIDENCIA AV VITACURA TOBALADA AV. HERNANDO DE AGUIRRE AV. LUIS THAYER OJEADA HOLANDA AV. LOS LEONES
Localización dentro de una urbazacion Un área de 1024 m2 Filtros 1 2 3 4 5 Pramdesabsorbentes 2 3 4 5 Cortnaacustca Barreradesegurdad Recintodelaua Bordefuorescen e 1 Redeect ca Nodsde d econ e um Rdd o doe ams r ecne n o e erso Aom a gr - QUIROZ GONZALES OMAR - SAAVEDRA LUNA, JAIR - RIVAS RENGIFO, RENZZO - SOTO CARRIÓN, CRISEIDA - BECERRA OTOYA, LAURY SELENE DOCENTES: ALUMNOS: L-33 TEMA: REFERENTES TALLER DE PROYECTOS ARQUITECTÓNICOS VI
CURSO: G R U P O 5
SANTIAGO METROLITAN - CHILE CHILE
MG ARQ OMAR ANGELO WINCHO CHILQUILLO MG ARQ GIOVANNA MARIELEE ROSADO DAVIRAN 1 Materiales 2 3 4 5

PROPUESTAS DE TERRENOS

VISTA 3D DEL TERRENO ACCESIBILIDAD

BUEN ESTADO DE LAS CALLES

ACCESIBLE EN TRANSPORTE PÚBLICO

PRESENTA TRAFICO MODERADO PRESENTA TRAFICO MODERADO

PRESENTA TRAFICO MODERADO

DOCENTES: FACULTADDE
ACCESIBILIDAD
VISTA DESDE AV 200 MILLAS VISTA DESDE AV 200 MILLAS
AV. 200 MILLAS AV. SEP.INDUSTRIAL AV. PACHACUTEC AV.200MILLAS AV.200MILLAS AV.PACHACUTEC AV.PACHACUTEC AV .SEPARADORAINDUSTRIAL AV .SEPARADORAINDUSTRIAL
VISTA DESDE AV PACHACUTEC VISTA DESDE AV. PACHACUTEC
PERIMETRO: ÁREA: HECTAREA: I M A G E N E S D E L T E R R E N O I M A G E N E S A L R E D E D O R D E L T E R R E N O 450.67 m 12 962 48 m² 1,30 ha
MG ARQ OMAR ANGELO WINCHO CHILQUILLO MG ARQ GIOVANNA MARIELEE ROSADO DAVIRAN
PROPUESTAN°1

ZONIFICACIÓN

DE

ZONAS

- QUIROZ GONZALES OMAR

- SAAVEDRA LUNA, JAIR

- RIVAS RENGIFO, RENZZO

- SOTO CARRIÓN, CRISEIDA

- BECERRA OTOYA, LAURY SELENE

L-35
DOCENTES: ALUMNOS:
TEMA: PROPUESTA
TERRENO TALLER DE PROYECTOS ARQUITECTÓNICOS VI
G R U P O 5 TOPOGRAFIA EQUIPAMIENTO URBANO CENTRO MEDICO COMERCIO RESTAURANTE COLEGIOS PARQUES IGLESIA 1 11 4 5 2 2
FACULTADDEARQUITECTURAYDISEÑO CURSO:
DE EQUIPAMIENTO E1 EDUCACIÓN BÁSICA
HOSPITAL CENTRAL RDM RESIDENCIAL DE DENSIDAD MEDIA E3 EDUCACIÓN SUPERIOR UNIVERSITARIA CV COMERCIO VECIANAL OU OTROS USOS E2 EDUCACIÓN SUPERIOR TECNICA H3 HOSPITAL ESPECIALIZADO ZRP ZONA DE RECREACIÓN PÚBLICA H1 CENTRO DE SALUD CZ COMERCIO ZONAL CORTE TRANSVERSAL CORTE LONGITUDINAL 160 156 157 161
H2
LA TOPOGRAFIA PRESENTA 108.10 METROS TRANSVERSALMENTE Y 120 38 METROS LONGITUDINALMENTE
MG ARQ OMAR ANGELO WINCHO CHILQUILLO MG ARQ GIOVANNA MARIELEE ROSADO DAVIRAN AV.200MILLAS AV .SEPARADORAINDUSTRIAL AV.PACHACUTEC
AV200MILLASYAVPACHACUTEC

PROPUESTAN°2

VISTA 3D DEL TERRENO ACCESIBILIDAD

RIMETRO: AV .MARIANOPASTORSEVILLA

AV.UNIVERSITARIA AV .AMRIANOP . SEVILLA

AV .REVOLUCIÓN AV.UNIVERSITARIA VISTA DESDE AV PERUANO CANADIENSE VISTA DESDE CALLE 117

FACULTADDEARQUITECTURAYDISEÑO

DOCENTES:

MG ARQ OMAR ANGELO WINCHO CHILQUILLO MG ARQ GIOVANNA MARIELEE ROSADO DAVIRAN

REGULAR ESTADO DE CALLES NO PRESENTA TRAFICO PRESENTA TRAFICO MODERADO NO PRESENTA TRAFICO 400.89 m 373 63 m² 0,93 ha AV. UNIVERSITARIA

TEMA: EQUIPAMIENTO URBANO

CURSO:

TALLER DE PROYECTOS ARQUITECTÓNICOS VI

ALUMNOS:

- QUIROZ GONZALES OMAR

- SAAVEDRA LUNA, JAIR

- RIVAS RENGIFO, RENZZO

- SOTO CARRIÓN, CRISEIDA

- BECERRA OTOYA,

AV .REVOLUCIÓN

LAURY SELENE
L-36
G R U P O 5
VISTA DESDE AV. PERUANO CANADIENSE VISTA DESDE CALLE 117
AV. REVOLUCIÓN
ACCESIBILIDAD
AV. MARIANO PASTOR S.
ACCESIBLE EN TRANSPORTE PÚBLICO ÁREA: ECTAREA: I M A G E N E S D E L T E R R E N O I M A G E N E S A L R E D E D O R D E L T E R R E N O

4 4 1 3

ZONIFICACIÓN

FACULTADDEARQUITECTURAYDISEÑO

DOCENTES:

ZONAS DE EQUIPAMIENTO

E1 EDUCACIÓN BÁSICA

E2 EDUCACIÓN SUPERIOR TECNICA

E3 EDUCACIÓN SUPERIOR UNIVERSITARIA

H1 CENTRO DE SALUD

H2 HOSPITAL CENTRAL

H3 HOSPITAL ESPECIALIZADO

CV COMERCIO VECIANAL

CZ COMERCIO ZONAL

RDM RESIDENCIAL DE DENSIDAD MEDIA

ZRP ZONA DE RECREACIÓN PÚBLICA

OU OTROS USOS

TEMA: PROPUESTA DE TERRENO

CURSO:

TALLER DE PROYECTOS ARQUITECTÓNICOS VI

ALUMNOS:

- QUIROZ GONZALES OMAR

- SAAVEDRA LUNA, JAIR

- RIVAS RENGIFO, RENZZO

- SOTO CARRIÓN, CRISEIDA

- BECERRA OTOYA, LAURY SELENE

L-37
G R U P O 5 TOPOGRAFIA EQUIPAMIENTO URBANO COMERCIO RESTAURANTE COLEGIOS PARQUES IGLESIA 3
CORTE TRANSVERSAL CORTE LONGITUDINAL LA TOPOGRAFIA PRESENTA 74.14 METROS TRANSVERSALMENTE Y 126 00 METROS LONGITUDINALMENTE AV.MARIANOP.SEVILLAYAV.UNIVERSITARIA AV .MARIANOP .SEVILLA 113 114 114 113 MG ARQ OMAR ANGELO WINCHO CHILQUILLO MG ARQ GIOVANNA MARIELEE ROSADO DAVIRAN

PROPUESTAN°3

VISTA 3D DEL TERRENO ACCESIBILIDAD

FACULTADDEARQUITECTURAYDISEÑO

DOCENTES:

ACCESIBILIDAD

TEMA: EQUIPAMIENTO URBANO

CURSO:

TALLER DE PROYECTOS ARQUITECTÓNICOS VI

ALUMNOS:

- QUIROZ GONZALES OMAR

- SAAVEDRA LUNA, JAIR

- RIVAS RENGIFO, RENZZO

- SOTO CARRIÓN, CRISEIDA

- BECERRA OTOYA, LAURY SELENE

BUEN ESTADO DE LAS CALLES

ACCESIBLE EN TRANSPORTE PÚBLICO

L-38
G R U P O 5
VISTA FRONTAL DEL TERRENO VISTA FRONTAL DEL TERRENO VISTA LATERAL DEL TERRENO VISTA LATERAL DEL TERRENO AV
AV. SEP.INDUSTRIAL AV. MARIA REICHE AV.LASLOMAS AV.MARIAREICHE AV.MARIAREICHE AV.LASLOMAS AV .SEPARADORAINDUSTRIAL AV .SEPARADORAINDUSTRIAL
LAS LOMAS
PERIMETRO: ÁREA: HECTAREA: I M A G E N E S D E L T E R R E N O I M A G E N E S A L R E D E D O R D E L T E R R E N O 418.85 m 9 863 55 m² 0,99 ha MG ARQ OMAR ANGELO WINCHO CHILQUILLO MG ARQ GIOVANNA MARIELEE ROSADO DAVIRAN
NO PRESENTA TRAFICO PRESENTA TRAFICO MODERADO NO PRESENTA TRAFICO

FACULTADDEARQUITECTURAYDISEÑO

ZONIFICACIÓN

DE

ZONAS

- QUIROZ GONZALES OMAR

- SAAVEDRA LUNA, JAIR

- RIVAS RENGIFO, RENZZO

- SOTO CARRIÓN, CRISEIDA

- BECERRA OTOYA, LAURY SELENE

L-39
DOCENTES: ALUMNOS:
TEMA: PROPUESTA
TERRENO TALLER DE PROYECTOS ARQUITECTÓNICOS VI
CURSO: G R U P O 5 TOPOGRAFIA EQUIPAMIENTO URBANO CENTRO MEDICO COMERCIO RESTAURANTE COLEGIOS PARQUES IGLESIA 1 6 5 5 1 3
DE EQUIPAMIENTO CORTE TRANSVERSAL CORTE LONGITUDINAL 160 99 157 102 103
LA TOPOGRAFIA PRESENTA 71.50 METROS TRANSVERSALMENTE Y 138 00 METROS LONGITUDINALMENTE AV.SEP.INDUSTRIALYAV.MARIAREICHE AV .SEPARADORAINDUSTRIAL MG ARQ OMAR ANGELO WINCHO CHILQUILLO MG ARQ GIOVANNA MARIELEE ROSADO DAVIRAN E1 EDUCACIÓN BÁSICA H2 HOSPITAL CENTRAL RDM RESIDENCIAL DE DENSIDAD MEDIA E3 EDUCACIÓN SUPERIOR UNIVERSITARIA CV COMERCIO VECIANAL OU OTROS USOS E2 EDUCACIÓN SUPERIOR TECNICA H3 HOSPITAL ESPECIALIZADO ZRP ZONA DE RECREACIÓN PÚBLICA H1 CENTRO DE SALUD CZ COMERCIO ZONAL

TERRENO ELEGIDO

RESUMENDELTERRENO

EL TERRENO FUE ELEGIDO POR TODAS LAS INTEGRANTES DEL GRUPO POR LAS SIGUIENTES RAZONES.

AV. MILLAS AV. SEP.INDUSTRIAL AV. PACHACUTEC AV.200MILLAS AV.PACHACUTEC

BUEN ESTADO DE LAS CALLES PRESENTA TRAFICO MODERADO PRESENTA TRAFICO MODERADO PRESENTA TRAFICO MODERADO

7213 PERUANO JAPONES

COMO PRINCIPAL RAZON DE ELECCIÓN DEL TERRENO FUE PORQUE EL COLEGIO ESTÁ EN PESIMAS CONDICIONES SEGUN LA MUNICIPALIDAD DE VILLA EL SALVADOR

NO PRESENTA UNA PENDIENTE MUY PRONUNCIADA LO QUE NOS FACILITA EL PLANTEAMIENTO DEL NUEVO PROYECTO.

FACULTADDEARQUITECTURAYDISEÑO

DOCENTES:

PRESENTA: PRESENTA 40 AÑOS DE ANTIGUEDAD http://stereovilla pe/padres-de-familia-delcolegio-peruano-japones-piden-quemunicipio-recoja-basura-y-desmonte/

TEMA: EQUIPAMIENTO URBANO

CURSO:

TALLER DE PROYECTOS ARQUITECTÓNICOS VI

ALUMNOS:

- QUIROZ GONZALES OMAR

- SAAVEDRA LUNA, JAIR

- RIVAS RENGIFO, RENZZO

- SOTO CARRIÓN, CRISEIDA

- BECERRA OTOYA, LAURY SELENE

SE ENCUENTRA INVADIDA POR EL DESMONTE Y LA BASURA ,

L-40
G R U P O 5
¿POR QUE ELEGIMOS EL TERRENO? PERIMETRO: ÁREA: HECTAREA: 450.67 m 12 962.48 m² 1,30 ha CORTE TRANSVERSAL CORTE LONGITUDINAL 160 156 157 161 VIAS
AV .SEPARADORAINDUSTRIAL
IE
ACCESIBLE EN TRANSPORTE PÚBLICO MG ARQ OMAR ANGELO WINCHO CHILQUILLO MG ARQ GIOVANNA MARIELEE ROSADO DAVIRAN

PROGRAMAARQUITECTONICO

FACULTADDEARQUITECTURAYDISEÑO

DOCENTES:

TEMA: PROGRAMA ARQUITECTONICO

TALLER DE PROYECTOS ARQUITECTÓNICOS VI

- QUIROZ GONZALES OMAR

- SAAVEDRA LUNA, JAIR

- RIVAS RENGIFO, RENZZO

- SOTO CARRIÓN, CRISEIDA

- BECERRA OTOYA, LAURY SELENE

L-41
ALUMNOS:
CURSO: G R U P O 5 ZONAS SUBZONAS AMBIENTES AREAMINIMA(m2) N°DEAMBIENTES AFORO ARPOXIMADO A D M I N I S T R A T I V A SECRETARIA GENERAL RECEPCION 15m2 1 5PERSONAS DIRECCIONGENERAL+SSHH 15m2 1 5PERSONAS SECRETARIA 10m2 1 3PERSONAS ADMINISTRACION 10m2 1 5PERSONAS ARCHIVO 15m2 5PERSONAS CONTABILIDAD 10m2 1 5PERSONAS SALADEREUNIONES 20m2 1 15PERSONAS SS.HHMUJERES 5m2 1 3PERSONAS SSHHHOMBRES 5m2 1 3PERSONAS BIENESTAR ESTUDIANTIL RECEPCION 10m2 1 5PERSONAS SERVICIOSESTUDIANTILES 15m2 1 5PERSONAS MEDIACIONESTUDIANTES 15m2 1 5PERSONAS GESTIONDECONVENIOS 10m2 1 5PERSONAS
MG ARQ OMAR ANGELO WINCHO CHILQUILLO MG ARQ GIOVANNA
MARIELEE ROSADO DAVIRAN

PROGRAMAARQUITECTONICO

FACULTADDEARQUITECTURAYDISEÑO

DOCENTES:

TEMA: PROGRAMA ARQUITECTONICO

TALLER DE PROYECTOS ARQUITECTÓNICOS VI

- QUIROZ GONZALES OMAR

- SAAVEDRA LUNA, JAIR

- RIVAS RENGIFO, RENZZO

- SOTO CARRIÓN, CRISEIDA

- BECERRA OTOYA,

LAURY SELENE
ALUMNOS: L-42
CURSO: G R U P O 5 ZONAS SUBZONAS AMBIENTES AREAMINIMA(m2) N°DEAMBIENTES AFORO ARPOXIMADO C U L T U R A L BIBLIOTECA OFICINA+SSHH 15m2 1 5PERSONAS ZONADELIBROS 15m2 1 5PERSONAS ZONADELECTURA 10m2 1 3PERSONAS HEMEROTECA 10m2 1 5PERSONAS ARCHIVOSHISTORICOS 15m2 5PERSONAS DEPOSITO 10m2 1 5PERSONAS MANTENIMIENTO 20m2 1 15PERSONAS SALAS CULTURALES ZUM 60m2 2 20PERSONAS SALASDECINE 30m2 1 20PERSONAS SSHHMUJERES 15m2 1 5PERSONAS SSHHHOMBRES 15m2 1 5PERSONAS AUDITORIOS VESITBULO 50m2 1 50PERSONAS BUTACAS 150m2 2 50PERSONAS VESTIDORES+SSHH 10m2 3 3PERSONAS SSHHMUJERES 10m2 1 5PERSONAS SSHHHOMBRES 10m2 1 5PERSONAS
MG ARQ OMAR ANGELO WINCHO CHILQUILLO MG ARQ GIOVANNA
MARIELEE ROSADO DAVIRAN

PROGRAMAARQUITECTONICO

FACULTADDEARQUITECTURAYDISEÑO

- QUIROZ GONZALES OMAR

- SAAVEDRA LUNA, JAIR

- RIVAS RENGIFO, RENZZO

- SOTO CARRIÓN, CRISEIDA

- BECERRA OTOYA, LAURY SELENE

ALUMNOS: L-43 TEMA: PROGRAMA ARQUITECTONICO TALLER DE PROYECTOS ARQUITECTÓNICOS VI
DOCENTES:
CURSO: G R U P O 5 ZONAS SUBZONAS AMBIENTES AREAMINIMA(m2) N°DEAMBIENTES AFORO ARPOXIMADO A C A D E M I C A AULAS AULASTEORICAS 70m2 25 30PERSONAS AULASDECOMPUTO 50m2 1 30PERSONAS LABORATORIO LABORATORIOMULTIFUNCIONAL 60m2 2 30PERSONAS LABORATORIOINDUSTRIAL 60m2 1 30PERSONAS LABORATORIODECONFECCION 60m2 1 30PERSONAS SSHHMUJERES 10m2 1 5PERSONAS SSHHHOMBRES 10m2 1 5PERSONAS COMPUTO GENERAL VESITBULO 50m2 1 50PERSONAS BUTACAS 150m2 2 50PERSONAS VESTIDORES+SSHH 10m2 3 3PERSONAS SSHHMUJERES 10m2 1 5PERSONAS SSHHHOMBRES 10m2 1 5PERSONAS S E R V I C I O S CAFETERIA COCINA 10m2 1 5PERSONAS MESAS 30m2 1 20PERSONAS DESPENSA 10m2 1 3PERSONAS DEPOSITO 10m2 1 3PERSONAS SERVICIO CUARTODETABLEROS 15m2 2 3PERSONAS MAESTRANZA 20m2 1 3PERSONAS CUARTODEMAQUINAS 30m2 1 3PERSONAS DEPOSITODEBASURA 15m2 2 3PERSONAS CUARTODESERVICIO 20m2 1 5PERSONAS ESTACIONAMIENTO 50m2 1 30PERSONAS
MG ARQ OMAR ANGELO WINCHO CHILQUILLO MG ARQ GIOVANNA MARIELEE ROSADO DAVIRAN

CRITERIOSDEDISEÑO

FICHA TÉCNICA DE AULA

SillasUnipersonalesConTableroIncorporado MesasYSillasIndividuales

SinConsiderarEstudante conmovilidadreducida Consderandoestudante conmovilidadreducida

SinConsiderarEstudante conmovilidadreducida SinConsiderarEstudiante conmovildadreducida

Cuando se considere la inclusión de una persona con movilidad reducida, la cantidad de estudiantes dentro del aula disminuye, evitando con ello el sobredimensionamiento de la infraestructura

AULA CON SILLAS UNIPERSONALES CON TABLERO INCORPORADO

A.AULASINCONSIDERARUNESTUDIANTECONMOVILIDADREDUCIDA

DOTACIÓNREFERENCIALDEMOBILIARIO

1-40sillasunipersonalescontableroincorporado(058mx071m)

2-01mesaparaeldocente(1.00mx0.50m)

3-01sillaparadocente(0.40mx0.45m)

4-01pizarra1.2.3.4

DOTACIÓNREFERENCIAL

01proyectormultmedatecho(incluyerackdesoporte)

01laptopcomputadoraparadocente

ElIO sedeterminasegúnla identificación de los usuarios, el análisis del mobiliario y equipamiento, y las características de las actividades educativas, de acuerdo a lo señalado en Artículo 9 de la presente Norma Técnica, no pudiendo ser menor a 1.50 m²porestudiante.

CONDICIONES ESPACIALES

B.AULACONSIDERANDOUNESTUDIANTECONMOVILIDADREDUCIDA

DOTACIÓNREFERENCIALDEMOBILIARIO

1-38sillasunpersonalescontableroincorporado(058mx071m)

2.-01mesaparae estudianteconmovilidadreducida(0.60mx0.80m)

3.-01mesaparae docente(1.00mx0.50m)

4-01sillaparadocente(040mx045m)

5-01pzarra

DOTACIÓNREFERENCIAL

01proyectormultmedatecho(incluyerackdesoporte)

01laptopocomputadoraparaeldocente

- QUIROZ GONZALES OMAR - SAAVEDRA LUNA, JAIR - RIVAS RENGIFO, RENZZO - SOTO CARRIÓN, CRISEIDA - BECERRA OTOYA, LAURY SELENE DOCENTES: ALUMNOS: L-44 TEMA: PROGRAMA ARQUITECTONICO TALLER DE PROYECTOS ARQUITECTÓNICOS VI
CURSO: G R U P O 5
FACULTADDEARQUITECTURAYDISEÑO
MOBILIARIO REFERENCIAL CAPACIDAD REFERENCIAL I.O ÁREA
1.57m² 1.57m² 62.80m² 70.00m² AULA
MG ARQ OMAR ANGELO WINCHO CHILQUILLO MG ARQ GIOVANNA MARIELEE ROSADO DAVIRAN

CRITERIOSDEDISEÑO

FICHA TÉCNICA DE AULA

SillasUnipersonalesConTableroIncorporado MesasYSillasIndividuales

SinConsiderarEstudante conmovilidadreducida

Consderandoestudante conmovilidadreducida

SinConsiderarEstudante conmovilidadreducida

SinConsiderarEstudiante conmovildadreducida

Cuando se considere la inclusión de una persona con movilidad reducida, la cantidad de estudiantes dentro del aula disminuye, evitando con ello el sobredimensionamiento de la infraestructura

AULA CON SILLAS UNIPERSONALES CON TABLERO INCORPORADO

A.AULASINCONSIDERARUNESTUDIANTECONMOVILIDADREDUCIDA

DOTACIÓNREFERENCIALDEMOBILIARIO

1-40mesasindviduaes(0.50mx0.60m)

2-40sillasindividuales(040mx045m)

3-01mesaparaeldocente(1.00mx0.50m)

4--01silaparadocente(0.40mx0.45m)

5.-01pizarra(variable)

DOTACIÓNREFERENCIAL

01 proyector mu timedia techo ( nc uye rack soporte)

01 aptop computadora para el docente

ElIO sedeterminasegúnla identificación de los usuarios, el análisis del mobiliario y equipamiento, y las características de las actividades educativas, de acuerdo a lo señalado en Artículo 9 de la presente Norma Técnica, no pudiendo ser menor a 1.50 m²porestudiante.

CONDICIONES ESPACIALES

B.AULACONSIDERANDOUNESTUDIANTECONMOVILIDADREDUCIDA

DOTACIÓNREFERENCIALDEMOBILIARIO

1-38mesasindviduales(050mx060m)

2.-38sillas ndividuales(0.40mx0.45m)

3.-01mesaparae estudianteconmovilidadreducida(0.60mx0.80m)

4-01mesaparae docente(100mx050m)

5-01sillaparadocente(040mx045m)

6.-01pzarra(variable)

DOTACIÓNREFERENCIAL

01proyectormutmedatecho(incluyeracksoporte)

01laptopcomputadoraparaedocente

FACULTADDEARQUITECTURAYDISEÑO

- QUIROZ GONZALES OMAR
SAAVEDRA LUNA, JAIR
RIVAS RENGIFO, RENZZO - SOTO CARRIÓN, CRISEIDA - BECERRA OTOYA, LAURY SELENE DOCENTES: ARQ OMAR ANGELO WINCHO CHILQUILLO ARQ GIOVANNA MARIELEE ROSADO DAVIRAN
L-32 TEMA: PROGRAMA ARQUITECTONICO
DE PROYECTOS ARQUITECTÓNICOS VI
-
-
ALUMNOS:
TALLER
CURSO: G R U P O 5
MOBILIARIO REFERENCIAL CAPACIDAD REFERENCIAL I.O ÁREA
1.57m² 1.57m² 62.80m² 70.00m² AULA
MG
ARQ
OMAR ANGELO WINCHO CHILQUILLO
MG ARQ GIOVANNA MARIELEE ROSADO DAVIRAN

CRITERIOSDEDISEÑO

FICHATÉCNICADELABORATORIOS

LABORATORIOS

Segúnambiente

Segúnambiente

Segúnambiente

CONDICIONES ESPACIALES

LANORATORIO MULTIFUNCIONAL, BIOQUIMICA, MICROBIOLOGIA, HEMATOLOGIA E

INMUNOHEMATOLOGIA Y/O ANATOMIA PATOLOGICA

-Capacidad= 20 estudiantes

-I O por usuario =3 00 m2

-Area=60 00m2

DOTACIÓNREFERENCIALDEMOBILIARIO

1--4mesasdetrabajo(200mx100m)

2-20bancasotaburetespersonaes(aprox 035mdediámetro)

3-1escrtorioparaeldocente(1.00x0.50m)

4-1silaparadocente

5-2estantes(120mx045m)

6.-1pizarra

DOTACIÓNREFERENCIAL

-01 proyector multimed a techo

-01 aptop computadora paradocente

-1 refrigeradora

-01 autoclave

-01 horno esteri zador

-01 ncubadora

-01 extractor de aire

El I.O. se determina según la identificación de los usuarios, el análisis del mobiliario y equipamiento, y las característicasdelasactividades educativas, de acuerdo a lo señalado en Artículo 9 dela presenteNormaTécnica

LABORATORIO DE FARMACIA

-Capacidad= 20 estudiantes

-I O porusuario =3 50 m2

-Area=70 00m2

DOTACIÓNREFERENCIALDEMOBILIARIO

1-4mesasdetrabajo(2.00mx100m)

2-20bancasotaburetespersonaes(aprox.0.35mdediámetro)

3-1escrtorioparaeldocente(100x050m)

4-1silaparadocente

5.-2estantes(1.20mx0.45m)

6.-1pizarra

DOTACIÓNREFERENCIAL

-01 proyector multimed a de techo

-01 aptop o computadora para docente

-1 refrigeradora

-01 autoclave

-01 horno esteri zador

-01 ncubadora

-01 extractor de aire

FACULTADDEARQUITECTURAYDISEÑO

- QUIROZ GONZALES OMAR - SAAVEDRA LUNA, JAIR
RENZZO - SOTO CARRIÓN, CRISEIDA - BECERRA OTOYA, LAURY SELENE DOCENTES: ALUMNOS: L-46 TEMA: PROGRAMA ARQUITECTONICO TALLER DE PROYECTOS ARQUITECTÓNICOS VI
- RIVAS RENGIFO,
CURSO: G R U P O 5
CAPACIDAD I.O ÁREA
MG ARQ OMAR
MG ARQ GIOVANNA
DAVIRAN
ANGELO WINCHO CHILQUILLO
MARIELEE ROSADO

BIBLIOGRAFIA

https://www.inei.gob.pe/media/MenuRecursivo/boletines/02-informe-tecnico-mercado-laboral-nov-dic2020-ene2021.pdf

https://www.imp.gob.pe/es/recursos/ORDENANZAS-VILLA-SALVADOR/2022.07.20%20Ord%20N%C2%B0%202486-2022-MML%20%20Modifica%20el%20Plano%20de%20Zonificacion%20de%20Villa%20El%20Salvador.pdf

http://ipdu.pe/ordenanzasyplanos/pantanos/pantanos-ordenanzaANTIGUA.pdf

https://www.inei.gob.pe/media/MenuRecursivo/publicaciones_digitales/Est/Lib1620/15ATOMO_01.pdf

https://es-pe.topographic-map.com/map-8dwq9m/Villa-El-Salvador/

https://www.meteoblue.com/es/tiempo/historyclimate/climatemodelled/villa-el-salvador_per%c3%ba_9880143

https://portal.mtc.gob.pe/transportes/caminos/normas:_carreteras/Mapas%20Distritales/Lima/LM_150142%20VILLA%20EL%20SALVADOR.pdf

https://issuu.com/fenixzayh20/docs/villa salvador__2

https://issuu.com/dreydoxkev/docs/villa el_salvador_- analisis_breve

https://issuu.com/fabiangarciasilva/docs/analisis_final_barranco_16abril

https://www.archdaily.com/887301/school-and-community-center-b3-gadamerplatz-datscha-architekten

https://proyectos.inei.gob.pe/web/biblioineipub/bancopub/Est/LIb0002/cap0301.htm

https://www.ceplan.gob.pe/wp-content/uploads/2020/12/CEPLAN-Potencialidades_productivas_desde_un_enfoque_territorial.pdf

https://www.inei.gob.pe/media/MenuRecursivo/boletines/02-informe-tecnico-mercado-laboral-nov-dic2020-ene2021.pdf

https://cdn.www.gob.pe/uploads/document/file/4057261/Diagn%C3%B3stico%20de%20la%20Situaci%C3%B3n%20de%20las%20Brechas%20de%20Infraestru ctura%20o%20de%20Acceso%20a%20Servicios%20del%20Distrito%20de%20Villa%20El%20Salvador.pdf?v=1674253113

https://drive.google.com/file/d/1jAj_SxjgeQdJox8zL_0a7-mon5y4teLv/view?pli=1

https://data-peru.itp.gob.pe/profile/geo/villa-maria-del-triunfo

- QUIROZ GONZALES OMAR - SAAVEDRA LUNA, JAIR - RIVAS RENGIFO, RENZZO - SOTO CARRIÓN, CRISEIDA - BECERRA OTOYA, LAURY SELENE DOCENTES: ALUMNOS: L-47 TEMA: PROGRAMA ARQUITECTONICO TALLER DE PROYECTOS ARQUITECTÓNICOS VI
CURSO: G R U P O 5 MG ARQ OMAR ANGELO WINCHO CHILQUILLO MG ARQ GIOVANNA MARIELEE ROSADO DAVIRAN
FACULTADDEARQUITECTURAYDISEÑO

VILLA EL VILLA EL SSALVADOR ALVADOR

El distrito de Villa el Salvador se encuentra ubicado en el departamento de Lima y es uno de los 43 distritos que conforman la provincia de lima

Tiene un cl ma tropical y varia entre 15º y 23º La temperatura del aire es ca entado por el ca or del sue o

393254

POBLACIONTOTAL

HABITANTEPORKM² 11090

ÁREAS VERDES ÁREAS VERDES

Tiene déficit de áreas con arborización, pero cuenta con paisaje natural que se puede revitalizar

CCONTAMINACIÓNDELAGUA ONTAMINACIÓNDELAGUA

Colector de a playa Venecia se daño como consecuencia de un oleaje anómalo y las aguas servidas fueron hacia el mar

1 5 4 3 2

EDUACIÓN

Teniendo en consideración el porcentaje de analfabetismo del año 2007 al 2017 hubo una reducción de 0 2%

INFRAESTRUCTURA

Se ha identificado una defic encia de institutos superiores en la zona sur del distrito

15Cº 23Cº

La pob ación ascendió en los últimos años por el crecimiento demográfico esto a su vez trajo consigo un crecimiento urbano improvisado y se ve ref ejado en la densificación actual

PRINCIPALES ENFERMEDADES

Villa el Salvador es el tercer distrito con mayor generación de residuos (300 tone adas)

La concentración de polvo atmosférico sed mentable en Lima Sur - Este es de 18 9tk2/mes

ANALFABETISMO

LEYENDA

C ATMOSFERICA G RESIDUOS

IE 6048 JORGE BASADRE IE 7077 VIRGEN DEL CARMEN

INSTITUTO SUPERIOR TECNOLOGICO JULIO CESAR TELLO

PROBLEMATICA - VIALIDAD PROBLEMATICA - VIALIDAD

PARADEROSINFORMALES

En las vías principales del distrito se ha observado varios paraderos informales que aviva la congestión vehicular en varias zonas

AV MARIANOPASTORSEVILLA AV EL SOL

AV SEPARADORA INDUSTRIAL

INFORMALIDAD NODOSDE CONGESTION

FALTADESEMÁFOROS

Ausencia de semáforos en las intersecciones entre vías secundarias y locales con las vías principales del distrito

NODOSDECONGESTIÓN

La configuración vial del distrito no se encuentra correctamente integrado las vías alternas como los cruces intercambios viales son ineficientes, asimismo los AA HH carecen de ellas

- QUIROZ GONZALES OMAR - SAAVEDRA LUNA, JAIR - RIVAS RENGIFO RENZZO - SOTO CARRIÓN, CRISEIDA - BECERRA OTOYA LAURY SELENE DOCENTES: MG ARQ OMAR ANGELO WINCHO CHILQUILLO MG ARQ GIOVANNA MARIELEE ROSADO DAVIRAN ALUMNOS: L-1 TEMA: TALLER DE PROYECTOS ARQUITECTÓNICOS VI DIAGNOSTICO URBANO FACULTAD DE ARQUITECTURA Y DISEÑO CURSO: G R U P O 5 El índice de informalidad es de grado medio generando un caos y desorden urbanístico a causa de la mala gestión Temperatura Mínima Temperatura Máxima
UBICACIÓN CONTAMINACION AMBIENTAL CONTAMINACION AMBIENTAL IINFORMALIDAD NFORMALIDAD
POBLACION SALUD
CLIMA
Parque
e industrial emite
Humo y malos olores expedidos del crematorio El Manatial
automotor
gases tóxicos
GENERACIONDE RESIDUOS POLVO ATMOSFERICO HUMOYMALOS OLORES GASESTOXICOS
MERCADOSANTA ROSA AV PRIMERODE MAYO MERCADO PACHACAMAC MERCADO ATAHUALPA
TASADE ANALFABETISMO 2017 2% AV REVOLUCIÓN-AV ELSOL AV MARIANOP -AV LASLOMAS AV 1RODEMAYOAV CENTRAL AV MARIANOPASTORSEVILLAAV JORGECHAVEZ AV JORGECHAVEZ-AV MICAELABASTIDAS AV ARRIBAPERÚ-AV MICAELABASTIDAS EDUCACIONBASICA EDUCAC ONSUPERIOR TECNICA EDUCAC ONSUPERIOR UNIVERSITARIA 80% 5% 15% Enfermedades Respiratorias Anemia Obesidad Tuberculosis E Transmisión Sexual 1 2 3 4 5 INFRAESTRUCTURA HOSPITAL ESSALUD HOSPITAL DE EMERGENCIA VILLASALUD
ZONAS DE EQUIPAMIENTO E1 EDUCAC ÓN BÁS CA H2 HOSP TAL CENTRAL RDM RES DENC AL DE DENS DAD MED A E3 EDUCAC ÓN SUPER OR UN VERS TAR A CV COMERC O VEC ANAL OU OTROS USOS E2 EDUCAC ÓN SUPER OR TECN CA H3 HOSP TAL ESPEC AL ZADO ZRP ZONA DE RECREAC ÓN PÚBL CA H1 CENTRO DE SALUD CZ COMERC O ZONAL CENTRO MEDICO 1 COMERCIO 11 RESTAURANTE 4 PARQUES 5 GLESIA 2 COLEGIOS 2 GIMNAS OS 3 RECREACIÓN 4 0MILLAS AV PACHACUTEC AV SE PERIMETRO: ÁREA: HECTAREA: 450 67 m 12 962 48 m² 1 30 ha AV200MILLAS AV .SEPARADORAINDUSTRIAL AV PACHACUTEC - QUIROZ GONZALES OMAR - SAAVEDRA LUNA, JAIR - RIVAS RENGIFO RENZZO - SOTO CARRIÓN, CRISEIDA - BECERRA OTOYA LAURY SELENE DOCENTES: MG ARQ OMAR ANGELO WINCHO CHILQUILLO MG ARQ GIOVANNA MARIELEE ROSADO DAVIRAN ALUMNOS: L-2 TEMA: PROPUESTA DE TERRENO TALLER DE PROYECTOS ARQUITECTÓNICOS VI FACULTAD DE ARQUITECTURA Y DISEÑO CURSO: G R U P O 5 VILLA EL VILLA EL SSALVADOR ALVADOR LA TOPOGRAFIA PRESENTA 108 10 METROS TRANSVERSALMENTE Y 120 38 METROS LONGITUD NALMENTE AV.200MILLAS AVPACHACUTEC AV .SEPARADORAINDUSTRIAL ACCES BLE EN TRANSPORTE PÚBL CO BUEN ESTADO DE LAS CALLES PRESENTA TRAFICO MODERADO PRESENTA TRAFICO MODERADO PRESENTA TRAFICO MODERADO VISTA DESDE AV 200 MILLAS VISTA DESDE AV PACHACUTEC VISTA DESDE AV PACHACUTEC VISTA DESDE AV 200 MILLAS CORTE TRANSVERSAL 160 157 CORTE LONGITUDINAL 156 161 AACCESIBILIDAD CCESIBILIDAD VISTA DE TERRENO VISTA DE TERRENO ZZONIFICACION ONIFICACION TTOPOGRAFIA OPOGRAFIA

Turn static files into dynamic content formats.

Create a flipbook
Issuu converts static files into: digital portfolios, online yearbooks, online catalogs, digital photo albums and more. Sign up and create your flipbook.