REVIT WORK SAMPLES

Page 1

73225 EL PASEO, SUITE 20, PALM DESERT, CA 92260

ISSUED FOR PLAN CHECK - 03.21.23

Scale Date Drawn By Checked By Project Number 3/21/2023 6:57:15 PM A000 COVER SHEET JOSEPH ROUHANA LA DOLCE PICCOLA GELATERIA 73225 EL PASEO, SUITE 20, PALM DESERT, CA 92260 RG RG 0321.23 23-0201
LA DOLCE PICCOLA GELATERIA
STAMP No. Description Date
NON-STRUCTURAL TENANT IMPROVEMENT APPROVAL

AND QUALIFIED IN THE JURISDICTION WHERE WORK IS TO BE PERFORMED, OR AS DESCRIBED ON THE DRAWINGS. CONTRACTOR TO CONDUCT ALL OPERATIONS IN COMPLIANCE W/ ALL APPLICABLE CODES AND ORDINANCES 13. CONTRACTOR TO INITIATE AND COORDINATE WITH THE BUILDING OWNER PRIOR TO STARTING ANY WORK ON SITE.

14. DO NOT INTERRUPT EXISTING UTILITIES SERVING ADJACENT TENANTS, UNLESS AUTHORIZED

PER SQUARE INCH

P.T. PRESSURE TREATED

R. RISER (S)

RAD. RADIUS

REFR. REFRIGERATOR

REQ. REQUIRED

R.O. ROUGH OPENING

RM. ROOM

R&S ROD & SHELF

SCH. SCHEDULE

S.F. SQUARE FOOT OR FEET

SHT. SHEET SIM. SIMILAR

S.P. SUMP PIT

SQ. SQUARE

STR. STRUCTURAL

T.B.D. TO BE DETERMINED

T&B TOP & BOTTOM

TEMP. TEMPERATURE

T&G TONGUE AND GROOVE

THK. THICK (NESS)

TR. TREAD (S)

TYP. TYPICAL

U.N.O. UNLESS NOTED OTHERWISE

VERT. VERTICAL (LY)

V.I.F. VERIFY IN FIELD

W/ WITH

W.C. WATER CONDITIONER

WD. WOOD

W.H. WATER HEATER

W.I.C. WALK-IN CLOSET

W.W.F. WELDED WIRE FABRIC

C CENTERLINE

CLEAR AND UNOBSTRUCTED ACCESS TO ANY WATER OR POWER DISTRIBUTION FACILITIES (POWER POLES, PULL-BOXES, TRANSFORMERS, VAULTS, PUMPS, VALVES, METERS, APPURTENANCES, ETC.) OR TO THE LOCATION OF THE HOOKUP. THE CONSTRUCTION SHALL NOT BE WITHIN TEN FEET OF ANY POWER LINES-WHETHER OR NOT THE LINES ARE LOCATED ON THE PROPERTY. FAILURE TO COMPLY MAY CAUSE CONSTRUCTION DELAYS AND/OR ADDITIONAL EXPENSES.

B. AN APPROVED SEISMIC GAS SHUTOFF VALVE WILL BE INSTALLED ON THE FUEL GAS LINE ON THE DOWNSTREAM SIDE OF THE UTILITY METER AND BE RIGIDLY CONNECTED TO THE EXTERIOR OF THE BUILDING OR STRUCTURE CONTAINING THE FUEL GAS PIPING. (PER ORDINANCE

170,158) (SEPARATE PLUMBING PERMIT IS REQUIRED).

C. PLUMBING FIXTURES ARE REQUIRED TO BE CONNECTED TO A SANITARY SEWER OR TO AN APPROVED SEWAGE DISPOSAL SYSTEM. R306.3

D. KITCHEN SINKS, LAVATORIES, BATHTUBS, SHOWERS, BIDETS, LAUNDRY TUBS AND WASHING MACHINE OUTLETS SHALL BE PROVIDED WITH HOT AND COLD WATER AND CONNECTED TO AN APPROVED WATER SUPPLY. R306.4

E. BATHTUB AND SHOWER FLOORS, WALLS ABOVE BATHTUBS WITH A SHOWERHEAD, AND SHOWER COMPARTMENTS SHALL BE FINISHED WITH A NONABSORBENT SURFACE. SUCH WALL SURFACES SHALL EXTEND TO A HEIGHT OF NOT LESS THAN 6 FEET ABOVE THE FLOOR. R307.2

F. PROVIDE ULTRA-LOW FLUSH WATER CLOSETS FOR ALL NEW CONSTRUCTION. EXISTING SHOWER HEADS AND TOILETS MUST BE ADAPTED FOR LOW WATER CONSUMPTION.

G. WATER HEATER MUST BE STRAPPED TO WALL. SEC. 507.3, LAPC

H. FOR EXISTING POOL ON SITE, PROVIDE AN ALARM FOR DOORS TO THE DWELLING THAT FORM A PART OF THE POOL ENCLOSURE. THE ALARM SHALL SOUND CONTINUOUSLY FOR A MIN.

OF 30 SECONDS WHEN THE DOOR IS OPENED. IT SHALL AUTOMATICALLY RESET AND BE EQUIPPED

WITH A MANUAL MEANS TO DEACTIVATE (FOR 15 SECS. MAX.) FOR A SINGLE OPENING. THE DEACTIVATION SWITCH SHALL BE AT LEAST 54" ABOVE THE FLOOR. 6109 OF LABC

I. FOR EXISTING POOL ON SITE, PROVIDE ANTI – ENTRAPMENT COVER MEETING THE CURRENT ASTM OR ASME FOR THE SUCTION OUTLETS OF THE SWIMMING POOL, TODDLER POOL AND SPA FOR SINGLE FAMILY DWELLINGS PER ASSEMBLY BILL (AB) NO. 2977. 3162B

J. AUTOMATIC GARAGE DOOR OPENERS, IF PROVIDED, SHALL BE LISTED IN ACCORDANCE WITH UL 325. R309.4

K. SMOKE DETECTORS SHALL BE PROVIDED FOR ALL DWELLING UNITS INTENDED FOR HUMAN OCCUPANCY, WHERE A PERMIT IS REQUIRED FOR ALTERATIONS, REPAIRS, OR ADDITIONS. R314.2

L. WHERE A PERMIT IS REQUIRED FOR ALTERATIONS, REPAIRS OR ADDITIONS, EXISTING

DWELLINGS OR SLEEPING UNITS THAT HAVE ATTACHED GARAGES OR FUEL-BURNING APPLIANCES SHALL BE PROVIDED WITH A CARBON MONOXIDE ALARM IN ACCORDANCE WITH SECTION R315.2. CARBON MONOXIDE ALARMS SHALL ONLY BE REQUIRED IN THE SPECIFIC DWELLING UNIT OR SLEEPING UNIT FOR WHICH THE PERMIT WAS OBTAINED. R315.2

M. EVERY SPACE INTENDED FOR HUMAN OCCUPANCY SHALL BE PROVIDED WITH NATURAL

LIGHT BY MEANS OF EXTERIOR GLAZED OPENINGS IN ACCORDANCE WITH SECTION R303.1

CONSTRUCTION SHALL COMPLY WITH THE FOLLOWING CODES: 2022 CALIFORNIA BUILDING CODE 2022 CALIFORNIA MECHANICAL CODE 2022 CALIFORNIA PLUMBING CODE 2022 CALIFORNIA ELECTRICAL CODE 2022 CALIFORNIA FIRE CODE 2022 CALIFORNIA ENERGY CODE 2022 CALIFORNIA GREEN BUILDING STANDARDS CODE PALM DESERT BUILDING ADMINISTRATIVE CODE PALM DESERT MUNICIPAL CODE INTERIOR ALTERATION OF AN EXISTING TENANT SUITE ON THE FIRST FLOOR OF A TWO STORY BUILDING. WORK INCLUDES NEW NON-BEARING AND NON-STRUCTURAL PARTITION, INTERIOR DOOR, MILLWORK, LIGHT FIXTURES, PLUMBING FIXTURES, NEW FOOD PREPARATION EQUIPMENT AND NEW FINISHES. NO CHANGE TO MECHNICAL HVAC SYSTEM OR RTU NO CHANGE TO STOREFRONT NO CHANGE TO AREA SIGNAGE WAS APPROVED UNDER A SEPARATE PERMIT. ASSESSOR'S PARCEL NO: 627251001 AREA OF LOT 1.31 ACRES ZONE: D DOWNTOWN DISTRICT YEAR BUILT: 1978 USE TYPE: B FIRE SPRINKLER: NO CONSTRUCTION TYPE: V-B NUMBER OF STORY: 2 AREA OF SUITE 500 SQFT (NO CHNAGE) LEGAL DESCRIPTION: LOT 1 BLK H MB 021/050 PALM DESERT LOT 1 BLOCK H SUBDIVISIONNAME PALM DESERT LOTTYPE LOT RECMAPTYPE MAP BOOK MAPPLATB 021 MAPPLATP 050 A 1 BUILDING STRUCTURAL GRID LINES- DETAIL NUMBER SHEET NUMBER SECTION NUMBER SHEET NUMBERELEVATION NUMBER SHEET NUMBERSINGLE ELEVATION IDENTIFICATION: ELEVATION NUMBER INTERIOR ELEVATION IDENTIFICATION: SHEET NUMBER AREA OF REVISION BULLETIN (OR ADDENDUM): REVISION NUMBER FINISH FLOOR ELEVATION SYMBOL +482.67' F.F.E. ROOM NAME ROOM NUMBER STAIR/RAMP DIRECTION: ARROW POINTS UP STAIR/RAMP UP ##% SLOPE ALIGN ALIGN KEYNOTE SYMBOL DOOR NUMBER WALL SYMBOL TYPE #--1 ROOM NAME # 1001 C CALIFORNIA BUILDING CODE GENERAL REQUIREMENTS A. THE CONSTRUCTION SHALL NOT RESTRICT A FIVE- FOOT
SHALL BE
WITH
LIGHT THAT
AN AVERAGE ILLUMINATION OF 6 FOOT-CANDLES OVER THE AREA OF THE ROOM AT A HEIGHT OF 30 INCHES ABOVE THE FLOOR LEVEL. R303.1 N. A COPY OF THE EVALUATION REPORT AND/OR CONDITIONS OF LISTING SHALL BE MADE AVAILABLE AT THE JOB SITE A.B. ANCHOR BOLT A.F.F. ABOVE FINISHED FLOOR A.F.G. ABOVE FINISHED GRADE A.H.U. AIR HANDLING UNIT ALUM. ALUMINUM APX. APPROXIMATE (LY) B.H. BULKHEAD B.R.L. BUILDING RESTRICTION LINE BSMT. BASEMENT C.M.U. CONCRETE MASONRY UNIT CLO. CLOSET COL. COLUMN CONC. CONCRETE CONT. CONTINUOUS CNTR. COUNTER DBL. DOUBLE DIA. ∅ DIAMETER DN. DOWN D.W. DISHWASHER DWG. DRAWING ELEV. ELEVATION E.P. ELECTRIC PANEL EX. EXISTING FIN. FINISH F.O. FRAMED OPENING FT. FOOT OR FEET FTG. FOOTING H.R. HANDRAIL HOR. HORIZONTAL (LY) IN. INCH (ES) GALV. GALVANIZED G.R. GUARDRAIL G.W.B. GYPSUM WALL BOARD LBS. POUNDS LIN. LINEN MAS. MASONRY MAX. MAXIMUM MFR. MANUFACTURER (S) MIN. MINIMUM M.O. MASONRY OPENING NOM. NOMINAL 0.C. ON CENTER O.D. OUTSIDE DIAMETER O.H. OVERHEAD PERP. PERPENDICULAR POLY. POLYETHYLENE P.R. POWDER ROOM PROP. PROPOSED P.S.F POUNDS PER SQUARE FOOT P.S.I. POUNDS
OR
PROVIDED
ARTIFICIAL
IS ADEQUATE TO PROVIDE
DO NOT SCALE DRAWINGS. 2. ALL DIMENSIONS ARE FROM FINISHED FACE, U.N.O. 3. CONTRACTOR TO VERIFY ALL DIMENSIONS AND CONDITIONS. NOTIFY DESIGNER AND OWNER IMMEDIATELY OF ANY DISCREPANCIES BETWEEN DRAWINGS AND ACTUAL FIELD CONDITIONS PRIOR TO THE START OF ANY WORK. 4. CONTRACTOR TO MAINTAIN EXISTING FIRE RATINGS IN ALL BASE BUILDING WORK, IF APPLICABLE. DO NOT DISTURB EXISTING GYP BOARD TO REMAIN W/O REPLACING IN KIND. 5. ALL MATERIAL TO BE NEW UNLESS NOTED OTHERWISE. 6. MEANS AND METHODS ARE SOLE RESPONSIBILITY OF THE CONTRACTOR. 7. ALL BRACING/SHORING BY CONTRACTOR SHALL BE CERTIFIED BY A LICENSED STRUCTURAL ENGINEER, IF REQUIRED. G.C. TO COORDINATE. 8. CONTRACTOR TO SUPPLY & INSTALL ALL REQUIRED WATER AND DRAIN LINES TO EQUIPMENT. 9. CONTRACTOR TO PROVIDE AND COORDINATE INSTALLATION OF ALL REQUIRED WALL BLOCKING, FASTENERS & OVERHEAD UNISTRUT SUPPORT TO INSTALL ALL WALL/CEILING MOUNTED EQUIPMENT, FIXTURES AND SHELVING, U.N.O. ALL BLOCKING AND FRAMING TO BE IN ACCORDANCE WITH IBC SECTION 603 AND 717.5. WOOD BLOCKING ARE TO BE FRT. 10. ALL ROUGH-INS AND FINAL CONNECTIONS SHALL BE COORDINATED OR PROVIDED BY CONTRACTOR, EXCEPT WHERE NOTED. 11. CONTRACTOR SHALL BE RESPONSIBLE FOR REVIEWING ALL PLANS AND SPECIFICATIONS TO UNDERSTAND THE COMPLETE SCOPE OF WORK PRIOR TO THE START OF CONSTRUCTION. A COMPLETE AND UP-TO-DATE SET OF PLANS AS APPROVED BY THE LOCAL JURISDICTION IS TO BE MAINTAINED AT THE JOB SITE FOR REVIEW AND USE AT ALL TIMES. 12. CONTRACTOR SHALL BE EXPERIENCED
1.
BY OWNER AND AUTHORITIES HAVING JURISDICTION. CONTRACTOR IS RESPONSIBLE FOR IDENTIFICATION, REMOVAL, RELOCATION, AND PROTECTION OF EXISTING UTILITY LINES AS REQUIRED TO ACCOMMODATE PROPOSED SCOPE OF WORK. 15. MAINTAIN BUILDING IN WEATHER TIGHT CONDITION AT ALL TIMES. 16. CLEAN EXISTING SITE DAILY TO PROTECT WORKERS AND PEDESTRIANS REQUIRING ACCESS TO THE SITE. 17. CONSTRUCTION SHALL AT NO TIME RESTRICT ACCESS TO THE ADJACENT TENANTS OR THE COMMON SERVICE AREAS. TENANT: JOSEPH ROUHANA 79170 DIANE DRIVE LA QUINTA, CA 92253 JOSEPH ROUHANA jrouhana@hotmail.com LANDLORD: KYLE SIEFERT (323) 314-1598 kylesiefert@gmail.com DESIGNER: ROG DESIGN STUDIO RONALD O. GREENE 1530 E PALM CANYON DRIVE, APT 203 PALM SPRINGS CA 92264 240-606-3928 ronaldogreene@aol.com MEP ENGINEER: RTM ENGINEERING CONSULTANTS 74770 HIGHWAY 111, SUITE 203 INDIAN WELLS, CA 92210 760.340.9005 CONTACT: FERNANDO RODRIGUEZ Fernando.Rodriguez@rtmec.com GENERAL CONTRACTOR: OWNER BUILDER Scale Date Drawn By Checked By Project Number As indicated 3/21/2023 6:57:16 PM A001 PROJECT DATA JOSEPH ROUHANA LA DOLCE PICCOLA GELATERIA 73225 EL PASEO, SUITE 20, PALM DESERT, CA 92260 RG RG 0321.23 23-0201 SHEET NUMBER SHEET NAME A000 COVER SHEET A001 PROJECT DATA A002 TYPICAL ACCESSIBILITY REQUIREMENTS A003 TYPICAL ACCESSIBILITY REQUIREMENTS A004 CAL GREEN AND CITY NOTES A005 CAL GREEN AND CITY NOTES A006 GENERAL NOTES A100 SITE PLAN AND ACCESSIBLE PATH OF TRAVEL (FOR REF. ONLY) A101 EXITING PLAN A200 FLOOR AND CEILING EXISTING DEMOLITION PLANS A201 CONSTRUCTION & REFLECTED CEILING PLANS A202 EQUIPMENT AND FINISH PLANS A300 INTERIOR ELEVATIONS A400 DETAILS A401 DETAILS E101 ELECTRICAL DEMOLITION PLANS E201 ELECTRICAL RENOVATION PLANS E301 ELECTRICAL DETAILS AND SCHEDULES E302 ELECTRICAL GENERAL NOTES AND LEGEND E401 TITLE 24 COMPLIANCE SHEETS E402 TITLE 24 COMPLIANCE SHEETS P000 PLUMBING LEGEND P100 PLUMBING SPECIFICATIONS P200 DOMESTIC WATER PLAN P201 SANITARY PLAN P202 RISER DIAGRAMS P300 PLUMBING SCHEDULES & DETAILS PROJECT DIRECTORY
INDEX APPLICABLE CODES PROJECT SCOPE PROJECT DATA LOCATION & VICINITY MAP SYMBOLS GENERAL NOTES CITY REQUIRED NOTES ABBREVIATIONS PROJECT SITE NORTH APPROVAL STAMP No. Description Date
SHEET
Scale Date Drawn By Checked By Project Number 3/21/2023 6:57:18 PM A002 TYPICAL ACCESSIBILITY REQUIREMENTS JOSEPH ROUHANA LA DOLCE PICCOLA GELATERIA 73225 EL PASEO, SUITE 20, PALM DESERT, CA 92260 RG RG 0321.23 23-0201 APPROVAL STAMP No. Description Date
Scale Date Drawn By Checked By Project Number 3/21/2023 6:57:18 PM A003 TYPICAL ACCESSIBILITY REQUIREMENTS JOSEPH ROUHANA LA DOLCE PICCOLA GELATERIA 73225 EL PASEO, SUITE 20, PALM DESERT, CA 92260 RG RG 0321.23 23-0201 APPROVAL STAMP No. Description Date
Scale Date Drawn By Checked By Project Number 3/21/2023 6:57:21 PM A004 CAL GREEN AND CITY NOTES JOSEPH ROUHANA LA DOLCE PICCOLA GELATERIA 73225 EL PASEO, SUITE 20, PALM DESERT, CA 92260 RG RG 0321.23 23-0201 N/A 03-21-2023 NO EXTERIOR WORK N/A NO NEW PAVING N/A NO NEW PAVING N/A NO NEW PAVING N/A NO GRADING & PAVING N/A NO ADDITIONS N/A NO ADDITIONS A005 GRN 17 GRN 18 A005 GRN 17 GRN 18 A005 GRN 17 GRN 18 N/A NO SHOWERS N/A NO LANDSCAPING N/A NO IRRIGATION N/A NO EXTERIOR WATER N/A NO EXTERIOR WATER N/A NO GRAYWATER N/A NO RECYLCED WATER N/A NO EXTERIOR WATER N/A NO SPRINKLER N/A NO EXTERIOR WORK N/A EXIST. EXTERIOR DOORS N/A NO EXTERIOR WORK A004 GRN 15 NOTE 12 N/A NO EXCAVATION N/A EXISTING BUILDING N/A EXISTING BUILDING N/A EXISTING BUILDING N/A EXISTING BUILDING N/A EXISTING BUILDING N/A EXISTING BUILDING N/A EXISTING BUILDING N/A NO FIREPLACE STOVE A004 GRN 15, NOTE 17 A004 GRN 15, NOTE 18 A004 A004 GRN15, NOTE 18 GRN 11 A004 GRN 15, NOTE 20 A004 GRN 15, NOTE 21 A004 GRN 15, NOTE 22 A004 GRN 15, NOTE 24 A004 GRN 15, NOTE 25 A004 GRN 15, NOTE 26 A004 GRN 15, NOTE 27 A004 GRN 15, NOTE 28 A004 GRN 15, NOTE 30 N/A EXISTING BUILDING N/A EXISTING BUILDING N/A EXISTING BUILDING N/A EXISTING BUILDING N/A EXISTING BUILDING N/A EXISTING BUILDING A004 GRN 15, NOTE 31 N/A NO REFRIGERANT
APPROVAL STAMP No. Description Date
Scale Date Drawn By Checked By Project Number 3/21/2023 6:57:22 PM A005 CAL GREEN AND CITY NOTES JOSEPH ROUHANA LA DOLCE PICCOLA GELATERIA 73225 EL PASEO, SUITE 20, PALM DESERT, CA 92260 RG RG 0321.23 23-0201 APPROVAL STAMP No. Description Date
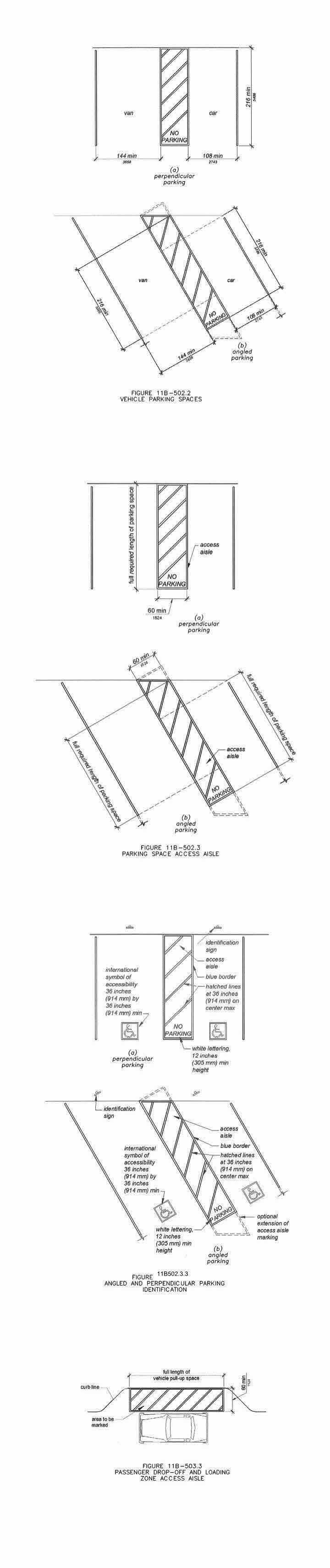
TRASH ENCLO. EXISTING SIDE WALK EXISTING PARKING SUITE 20 POLE SIGN
EXISTING COVERED PARKING EXISTING COVERED PARKING EXISTING COVERED PARKING EXISTING COVERED PARKING EXISTING COVERED PARKING IF NOT EXISTING, PROVIDE EPOXY SEALER ON EXISTING TRASH ENCLOSURE. EXIT EXISTING ACCESSIBLE PARKING, PEDESTRIAN RAMPS, SIDEWALKS, CURB, RAMPS, RESTROOMS, PATH OF TRAVEL, ETC., ARE SUBJECT TO FIELD VERIFICATION BY CITY BLDG. INSPECTOR. G.G. TO V.I.F ALL EXISTING ACCESSIBLE PARKING AND RAMP, COMPLIES WITH ACCESSIBLE PARKING REQUIREMENTS NOTED ABOVE. ALL SINGLE AND VAN ACCESSIBLE PARKING STALL ALONG ACCESSIBLE ROUTE SHALL HAVE 5% MAXIMUM RUNNING SLOPE WITH 2% MAXIMUM CROSS SLOPE PER CBC 11B-403.3 OLE SIGNAGE ARE EXISTING TO REMAIN. BLUE PAINTED ACCESS AISLES ARE EXISTING TO REMAIN. EXIT REQUIRED MEANS OF EGRESS ACCESSIBLE MEANS OF EGRESS PATH OF EXIT ACCESS TRAVEL PROPERTY LINE Scale Date Drawn By Checked By Project Number As indicated 3/21/2023 6:57:24 PM A100 SITE PLAN AND ACCESSIBLE PATH OF TRAVEL (FOR REF. ONLY) JOSEPH ROUHANA LA DOLCE PICCOLA GELATERIA 73225 EL PASEO, SUITE 20, PALM DESERT, CA 92260 RG RG 0321.23 23-0201 1/8" = 1'-0" 1 SITE PLAN AND ACCESSIBLE PATH OF TRAVEL (FOR REF. ONLY) APPROVAL STAMP TYPICAL ACCESSIBLE PARKING REQUIREMENTS (FOR REFERENCE ONLY) GENERAL SITE PLAN NOTES EXISTING ACCESSIBLE PARKING TO REMAIN SITE PLAN LEGEND No. Description Date
EXISTINGCOVEREDPARKING

GENERAL NOTES

AND EXIT PASSAGEWAYS IN BUILDINGS REQUIRED TO HAVE 2 OR MORE EXITS. EXTERIOR EGRESS COMPONENTS AT OTHER THAN THE LEVEL OF EXIT DISCHARGE UNTIL EXIT DISCHARGE IS ACCOMPLISHED FOR BUILDINGS REQUIRED TO HAVE OR MORE EXITS. INTERIOR EXIT DISCHARGE ELEMENTS, AS PERMITTED IN SECTION 1028.1, IN BUILDINGS REQUIRED TO HAVE 2 OR MORE EXITS. EXTERIOR LANDINGS, AS REQUIRED

KEYNOTES

UP ADJACENT TENANT (N.I.C.) ADJACENT TENANT (N.I.C.) ALLEY (N.I.C.) MIN. 1' 6" E E 1' - 6" 3' 0" 3' 0" MIN. 1' 0" 3' 0" 3' 1" COMMON PATH OF TRAVEL = 53' < 75' MAX. A 8 1.6 36 DOOR 126 SF PREP AREA 102 31 SF (E) ELEC. RM 104 151 SF SERVING AREA 101 88 SF CUSTOMER AREA 100 55 SF (E) RR 103 1001 1002 1003 1 1004 MIN. 3' 0" MIN. 5'0" F.E. 5' 5 1/4" EXIT W.H. AREA OF WORK 20 EXIT 0'-0"-- DOOR EXIT OCCUPANCY TYPE TOTAL OCCUPANTS REQUIRED CLEAR WIDTH (INCHES) PROVIDED CLEAR WIDTH (INCHES) F.E. 1. 2. 3. 4. 5. 6. 7. 8. 9. 10. 11. 12. A. B. C. D. E. 13. 14. 15. A. B. C. D. E. F. G. EXIT SIGNS SHALL BE INTERNALLY ILLUMINATED. EXIT SIGNS ILLUMINATED BY AN EXTERNAL SOURCE SHALL HAVE AN INTENSITY OF NOT LESS THAN 5 FOOT CANDLES. INTERNALLY ILLUMINATED SIGNS SHALL BE LISTED AND LABELED AND SHALL BE INSTALLED IN ACCORDANCE WITH THE MANUFACTURER INSTRUCTIONS AND SECTION 2702 (CBC SEC. 1013.5). EXIT SIGNS SHALL BE ILLUMINATED AT ALL TIMES (CBC SEC. 1013.3). EXIT SIGNS SHALL BE CONNECTED TO AN EMERGENCY POWER SYSTEM THAT WILL PROVIDE AN ILLUMINATION OF NOT LESS THAN 90 MINIMUM. IN CASE OF PRIMARY POWER LOSS (CBC SEC. 1013.6.3). EGRESS DOORS SHALL BE READILY OPENABLE FROM THE EGRESS SIDE WITHOUT THE USE OF A KEY OR SPECIAL KNOWLEDGE OR EFFORT. SEE CBC SEC. 1010.1.9.3 FOR EXCEPTIONS. DOOR HANDLES, LOCKS, AND OTHER OPERATING DEVICES SHALL BE INSTALLED AT A MINIMUM 34" AND A MAXIMUM 48" ABOVE THE FINISHED FLOOR. THIS FLOOR TO REMAIN UNLOCKED WHEN BUILDING IS OCCUPIED. ALL EGRESS DOOR OPERATION SHALL ALSO COMPLY WITH SECTION CBC SEC. 1010.1.9 AND 1010.1.9.12. THE MEANS OF EGRESS, INCLUDING THE EXIT DISCHARGE, SHALL BE ILLUMINATED AT ALL TIMES THE BUILDING SPACE SERVED BY THE MEANS OF EGRESS IS OCCUPIED. THE MEANS OF EGRESS ILLUMINATION LEVEL SHALL NOT BE LESS THAN FOOT CANDLE AT THE WALKING SURFACE. THE POWER SUPPLY FOR MEANS OF EGRESS ILLUMINATION SHALL NORMALLY BE PROVIDED BY THE PREMISES ELECTRICAL SUPPLY. IN THE EVENT OF POWER SUPPLY FAILURE, AN EMERGENCY ELECTRICAL SYSTEM SHALL AUTOMATICALLY ILLUMINATE THE FOLLOWING AREAS: AISLES AND UNENCLOSED EGRESS STAIRWAYS IN ROOMS AND SPACES THAT REQUIRE OR MORE MEANS OF EGRESS. CORRIDORS, EXIT ENCLOSURES,
BY SECTION CBC SEC. 1010.1.6, FOR EXIT DISCHARGE DOORWAYS IN BUILDINGS REQUIRED TO HAVE 2 OR MORE EXITS. THE EMERGENCY POWER SYSTEM SHALL PROVIDE POWER FOR A DURATION OF NOT LESS THAN 90 MINUTES AND SHALL CONSIST OF STORAGE BATTERIES, UNIT EQUIPMENT OR AN ONSITE GENERATOR. THE INSTALLATION OF THE EMERGENCY POWER SYSTEM SHALL BE IN ACCORDANCE WITH SECTION 2702. EMERGENCY LIGHTING FACILITIES SHALL BE ARRANGED TO PROVIDE INITIAL ILLUMINATION THAT IS AT LEAST AN AVERAGE OF 1 FOOT CANDLE AND A MINIMUM AT ANY POINT OF 0.1 FOOT CANDLE MEASURED ALONG THE PATH OF EGRESS AT FLOOR LEVEL. ILLUMINATION LEVELS SHALL BE PERMITTED TO DECLINE TO 0.6 FOOT CANDLE AVERAGE AND A MINIMUM AT ANY POINT OF 0.06 FOOT CANDLE AT THE END OF THE EMERGENCY LIGHTING TIME DURATION, A MAXIMUM-TO-MINIMUM ILLUMINATION UNIFORMITY RATIO OF 40 TO 1 SHALL NOT BE EXCEEDED. EGRESS COMPONANT CBC REFERENCES: OCCUPANT LOAD FACTORS PER CBC TABLE 1004.5 COMMON PATH OF EGRESS TRAVEL PER CBC TABLE 1006.2.1 EXIT DOOR SEPARATION PER CBC 1007.1.1, EXCEPTION 2 EXIT TRAVEL DISTANCE PER CBC TABLE 1017.2 DEAD END CORRIDOR LENGTH PER CBC 1020.4, EXCEPTION 2 REQUIRED NUMBER OF EXITS PER CBC TABLE 1006.3.2 ACCESSORY OCCUPANCIES PER CBC 508.2.3 REQUIRED MEANS OF EGRESS ACCESSIBLE MEANS OF EGRESS COMMON PATH OF EGRESS PATH OF EXIT ACCESS TRAVEL EXISTING 1-HOUR FIRE RESISTIVE CONSTRUCTION EXIT SIGN, SEE DETAIL 2/A401 PORTABLE FIRE EXTINGUISHER
EXITING PLAN LEGEND 1/2 OF CUSTOMER AREA (88 2) = 44 5 NET = 8 OCC. (STANDING) SERVING AREA = 151 200 = 1 PREP AREA = 126 200 = 1 ELEC. RM = 31 300 = 1 MAX. OCC. ALLOWED = 11 OCC. MAX. EXIT ACCESS TRAVEL DISTANCE WITHOUT SPRINKLER SYSTEM = 200 FEET. MAX. COMMON PATH OF EGRESS WITHOUT SPRINKLER SYSTEM = 75 FEET. COMMON PATH EXIT ACCESS TRAVEL DISTANCE = 53'-0" NUMBER OF EXITS REQUIRED = 1 NUMBER OF EXITS PROVIDED = 1 Scale Date Drawn By Checked By Project Number As indicated 3/21/2023 6:57:25 PM A101 EXITING PLAN JOSEPH ROUHANA LA DOLCE PICCOLA GELATERIA 73225 EL PASEO, SUITE 20, PALM DESERT, CA 92260 RG RG 0321.23 23-0201 1/4" = 1'-0" 1 EXITING PLAN TOTAL PROVIDED 1 1 0 1 1 TOTAL REQUIRED 1 1 0 1 1 B 500 150 3.33 2 2 1 1 0 1 1 TOTAL MEN WOMEN MEN WOMEN MEN MEN WOMEN 0 OCC. TYPE AREA OCC. LOAD... NUMBER OF OCCUPANTS WATER CLOSET URINALS LAVATORIES MOP SINK D.F. APPROVAL STAMP PLUMBING FIXTURE CALCULATIONS OCCUPANT LOAD CALCULATIONS 1001 PROVIDED ACCESSIBLE ENTRANCE SIGN AT EXTERIOR OF DOOR. 1002 PROVIDE AND INSTLAL NEW TACTILE EXIT SIGN WITH THE WORDS "EXIT ROUTE" ON INTERIOR DOOR ACCESSING A CORRIDOR. GC TO VERIFY 1003 PROVIDED AND INSTALL NEW DURABLE SIGN ABOVE DOOR STATING "THIS DOOR MUST REMAIN UNLOCKED DURING BUSINESS HOURS". 1004 PROVIDE NEW ACCESSIBLE RESTROOM SIGNAGE PER 9/A401. No. Description Date

KEYNOTES

UP UP R E E E E E E CTV J E E P S S ADJACENT TENANT (N.I.C.) ADJACENT TENANT (N.I.C.) ALLEY (N.I.C.) E D D E 0201 0205 0202 0211 0201 0201 0204 0212 0206 0203 0213 0214 0207 0205 EXISTING OPEN AREA EXISTING RESTROOM N.I.C. NOT IN CONTRACT EXISTING PARTITION TO REMAIN EXISTING DOOR TO REMAIN EXISTING PARTITION TO BE DEMOLISHED EXISTING DOOR TO BE DEMOLISHED
LEGEND EXISTING TO BE SALVAGED FOR RELOCATION REUSED R EXISTING TO REMAIN E DEMO D FOR ALL: EXISTING SUSPENDED ACT CEILING TO REMAIN EXISTING GYP. BD. CEILING TO REMAIN EXISTING 1-HR RATED DEMISING PARTITION TO REMAIN E D ADJACENT TENANT (N.I.C.) ADJACENT TENANT (N.I.C.) ALLEY (N.I.C.) D D D D D D D D 0208 0209 0210 0215 2301 AREA OF WORK 20 Scale Date Drawn By Checked By Project Number As indicated 3/21/2023 6:57:26 PM A200 FLOOR AND CEILING EXISTING / DEMOLITION PLANS JOSEPH ROUHANA LA DOLCE PICCOLA GELATERIA 73225 EL PASEO, SUITE 20, PALM DESERT, CA 92260 RG RG 0321.23 23-0201 1/4" = 1'-0" 1 EXISTING DEMO FLOOR PLAN 0201 EXISTING STOREFRONT TO REMAIN. PROTECT IN PLACE DURING CONSTRUCTION. 0202 EXISTING DOOR TO REMAIN. PROTECT IN PLACE DURING CONSTRUCTION. 0203 EXISTING 1-HR FIRE RATED WALL TO REMAIN. PROTECT IN PLACE DURING CONSTRUCTION. PATCH AND REPAIR AS REQUIRED. 0204 EXISTING EPOXY COATING TO REMAIN. 0205 DEMO EXISTING MILLWORK THROUGHOUT SUITE. 0206 REMOVE EXISTING DOOR FRAME. ENLARGE OPENING PER CONSTRUCTION PLAN. 0207 EXISTING FIRE EXTINGUISHER TO BE REMOVED AND SALVAGED FOR REUSE IF IN GOOD WORKING ORDER. RELOCATE PER CONSTUCTION PLAN. 0208 DEMO EXISTING ACT THROUGHOUT THIS AREA. SALVAGE AND PROTECT GRID IN PLACE. 0209 DEMO EXISTING ALL 2X4 AND TRACK LIGHTING FIXTURES. 0210 SALVAGE ALL EXISTING LIFE SAFETY DEVICES FOR REUSE, IF THEY ARE GOOD WORKING ORDER. 0211 EXISTING ELECTRICAL PANEL TO REMAIN. 0212 EXISTING POWER, DATA AND CABLE OUTLETS TO REMAIN. 0213 REMOVE EXISTING VERTICAL WALL MOUNTED LIGHT FIXTURES AND SALVAGE FOR REUSE. 0214 TRENCH EXISTING CONCRETE SLAB IN A STRAIGHT PERPENDICULAR ROUTE NEAREST TO WALL, FOR NEW PLUMBING PER CONSTRUCTION PLAN. PATCH BACK TRENCH WITH NEW CONCRETE TO TIE INTO EXISTING SLAB IN A MANNER THAT MAINTAINS THE EXISTING STRUCTURAL SLAB INTEGRITY. 0215 EXISTING GYP. BD CEILING TO REMAIN. 2301 ALL HVAC DIFUSSERS TO REMAIN. NO CHANGE TO MECHANICAL SYSTEM, DUCTS OR ROOF TOP UNIT (RTUS). 1/4" = 1'-0" 2 EXISTING DEMO CEILING PLAN
STAMP ELEC. RM No. Description Date
APPROVAL

SURFACE MOUNTED LED LIGHT FIXTURE EXISTING EXISTING REUSE FIXTURES FROM DRESSING AREA

F4 4" SQUARE RECESSED DOWNLIGHT EXISTING EXISTINGGrand

KEYNOTES

CW SC GFCI J # CTV P S S UP E E E E E E CTV J +18 E E +18 +18 +18 +18 +44 GFCI +18 +18 +44 R +60 CEILING PLAN LEGEND LIGHT FIXTURE AND TAG. REFER TO SHEET A710. FX CEILING MOUNTED EXIT SIGN. HATCH INDICATES ILLUMINATED FACE. X' Y" (E) EXISTING CEILING HEIGHT EXISTING GLAZING OR STOREFRONT SYSTEM. EXISTING SUSPENDED ACT CEILING TO REMAIN EXISTING GYP. BD. CEILING TO REMAIN
RM NAME # F.E.C. N.I.C. NOT IN CONTRACT NEW MILLWORK EXISTING PARTITION EXISTING DOOR NEW PARTITION PER PLAN PLUMBING FIXTURES ROOM NAME AND NUMBER FIRE EXTINGUISHER CABINET C# WALL TAG. REFER TO 3/A400 FLOOR PLAN LEGEND COLD WATER STUB OUT 1-HR FIRE RATED PARTITION DUPLEX ELECTRICAL OUTLET SEPARATE CIRCUIT ELECTIRICAL OUTLET. SINGLE OUTLET ON A SEPARATE CIRCUITE. PROVIDE ORANGE COVER GROUND FAULT CIRCUIT INTERRUPTER ELCTRICAL OUTLET TELEPHONE AND OR DATA OUTLET ELECTRICAL J-BOX TO FEED FURNITURE SYSTEM. NUMBER INDICATED NUMBER OF WORKSTATIONS SERVED CABLE TV OUTLET ADJACENT TENANT (N.I.C.) ADJACENT TENANT (N.I.C.) ALLEY (N.I.C.) F3 F3 4' 0" 4' 0" 1' 4" F2 F2 F2 F4 F4 F4 F1 F1 F1 EXISTING EXISTING EXISTING 6'4" 4' - 4" 4' 6" 2' 4" PREP AREA 102 (E) ELEC. RM 104 SERVING AREA 101 CUSTOMER AREA 100 (E) RR 103 2601 2602 0215 EXISTING 2301 ADJACENT TENANT (N.I.C.) ADJACENT TENANT (N.I.C.) ALLEY (N.I.C.) E E MIN. 5'0" 9'10" 7' 9 1/2" MIN. 3' 0" COUNTER 4' 9" DISPLAY CASES 8' 10 1/2" A300 1 A 4 D 3 C 2 B A300 8 H 5 E 6 F 7 G 2' 1" 5'3 1/8" 2'1" 3' - 1" 11' - 6 1/2" A3 PREP AREA 102 (E) ELEC. RM 104 SERVING AREA 101 CUSTOMER AREA 100 (E) RR 103 2101 0901 0601 1301 1301 2703 2702 A400 1 1004 A300 9 J 2202 A300 10 K 12 M 11 L 13 N W.H. 3 A401 3 A401 4 A401 4' 9" 3' 9" 2201 AREA OF WORK 20 Scale Date Drawn By Checked By Project Number As indicated 3/21/2023 6:57:28 PM A201 CONSTRUCTION & REFLECTED CEILING PLANS JOSEPH ROUHANA LA DOLCE PICCOLA GELATERIA 73225 EL PASEO, SUITE 20, PALM DESERT, CA 92260 RG RG 0321.23 23-0201 1/4" = 1'-0" 2 REFLECTED CEILING PLAN 1/4" = 1'-0" 1 CONSTRUCTION PLAN APPROVAL STAMP LIGHTING FIXTURE SCHEDULE MARK DESCRIPTION MAUFACTURER MODEL COMMENTS F1 12 X 15 IN. 1-LIGHT GOLDEN NATURAL BRASS CLEAR GLASS FARMHOUSE PENDANT LIGHT PROGRESS LIGHTING PENN COLLECTION SEE INTERIOR ELEVATIONS ON A300 FOR MOUNTING HEIGHT F2 6" CANLESS RECESSED INTEGRATED LED LIGHT FIXTURE HALO HLBSL. WHITE 3000 K F3 8 FEET
0215 EXISTING GYP. BD CEILING TO REMAIN. 0601 NEW CABINETS. SEE MILLWORK SHEET AND INTERIOR ELEVATIONS FOR MORE INFO. 0901 PATCH, REPAIR & SKIM-COAT GYP. B.D. AT (E) COLUMNS, MULLIONS & PARTITION AFFECTED BY DEMOLITION. 1004 PROVIDE NEW ACCESSIBLE RESTROOM SIGNAGE PER 9/A401. 1301 PROVIDE BACKING AT ALL WALL MTD. EQUIPMENT, MILLWORK & FIXTURE LOCATIONS. REFER TO DETAIL 8/A400. 2101 RELOCATE EXISTING FIRE EXTINGUISHER TO NEW LOCATION SHOWN ON PLAN. 2201 PROVIDE NEW PLUMBING FIXTURES PER PLAN AND SCHEDULE. ALSO REFER TO PLUMBING DRAWINGS. 2202 PROVIDE NEW FLOOR DRAIN. SLOPE FLOOR MIN. 1/4" PER FOOT TO DRAIN. REFER TO DETAIL 4/A400. 2301 ALL HVAC DIFUSSERS TO REMAIN. NO CHANGE TO MECHANICAL SYSTEM, DUCTS OR ROOF TOP UNIT (RTUS). 2601 PROVIDE SUSPENDED LIGHT FIXTURES AS SHOWN ON PLAN. REEFER TO INTERIOR ELEVATIONS, LIGHT FIXTURE SCHEDULE AND DETAIL 1/A401. 2602 PROVIDE OCCUPANCY SENSOR, DIMMER SWITCH, FLS DEVICES AS REQUIRED THROUGHOUT SUITE. REUSE PREVIOUS DEVICES IF THEY ARE IN GOOD WORKING ORDER. 2702 EXISTING POWER AND DATA TO REMAIN, U.O.N.. 2703 PROVIDE NEW POWER AS SHOWN ON PLAN. G.C. TO COORDINATE ALL NEW POWER LOCATIONS WITH TENANT PRIOR TO ROUGH-IN. REFER TO 5/A401 FOR TYPICAL MOUNTING HEIGHTS AND ELECTRICAL DRAWINGS. No. Description Date
total

MARK DESCRIPTION

PLUMBING FIXTURE SCHEDULE

MANUFACTURER MODEL COMMENTS

A FLOOR MOUNTED WATER CLOSET EXISTING TO REMAIN EXISTING TO REMAIN EXISTING TO REMAIN

B WALL HUNG LAVATORY EXISTING TO REMAIN EXISTING TO REMAIN EXISTING TO REMAIN

C FLOOR MOUNTED MOP SINK KROWNE MS-1818

C1 MOP SINK FAUCET DELTA 28T9 POLISHED CHROME FINISH

D "E3S8-1D" - 3 COMPARTMENT "E-SERIES" SINKS WITH ONE DRAIN BOARD AND GALVANIZED LEGS

E 1-COMPARTMENT, 18" LEFT DRAINBOARD, BOWL SIZE 18" X 18" X 12" DEEP, NSF

E1 WALL MOUNTED COMMERCIAL KITCHEN SINK FAUCET WITH 12"

SWIVEL SPOUT - NSF

JOHN BOOS E3S8-1014-10L15

GRIDMANN GR62-CS18LD

DURASTEEL F-HA-812S-28 8" CENTER FAUCET POLISHED CHROME FINISH

F 12 x 12 8 FLOOR SINK MIFAB FS730

G 4" FLOOR DRAIN OATEY ROUND BLACK ABS WITH STAINLESS STEEL COVER

H FLOOR MOUNTED WATER HEATER RHEEM ELD40-TB 480 V 8KW, PROVIDE 6" CURB

J 15" HAND SINK WITH TWO SPLASHES AND FAUCET NSF

MODEL # GR49-SH1860 + MODEL # GR49-SH1872 INSTALL ONE 60" SHELF + ONE 72" SHELF, PROVIDE BLOCKING AS REQ'D

MODEL # GR49-SH1860 + MODEL # GR49-SH1872 INSTALL ONE 60" SHELF + ONE 72" SHELF, PROVIDE BLOCKING AS REQ'D

5 WALL MOUNTED STAINLESS STEEL SHELF - 11'-0" X 1'-6", NSF DURASTEEL MODEL # GR49-SH1860 + MODEL # GR49-SH1872 INSTALL ONE 60" SHELF + ONE 72" SHELF, PROVIDE BLOCKING AS REQ'D

6 POS TBD TBD

7 REACH-IN FREEZER TRUE T-23F-HC

8 COMBI MACHINE FOR GELATO & ICE CREAM BRAVO TRITTICO M 30

9 72" STAINLESS STEEL PREP TABLE UNDERCOUNTER REFRIGERATOR W/ (3) SECTIONS & (3) DOORS TRUE TUC-72-ADA-HC

11 24" BLAST CHILLER/ FREEZER TECHFROST JOF23

12 3-TIER METAL LOCKER - 12 X 12 X 66 GLOBAL INDUSTRIAL WB493413BL

13 36" AIR CURTAIN, NSF COOLER DEPOT FM-1515SA1

14 MENU BOARD TBD TBD

15 WALL MOUNTED LED DISPLAY SCREEN TBD TBD

16 WALL MOUNTED STAINLESS STEEL SHELF - 6'-0" X 1'-6", NSF GRIDMANN MODEL # GR49-SH1872 PROVIDE BLOCKING AS REQ'D

16 WALL MOUNTED STAINLESS STEEL SHELF - 6'-0" X 1'-6", NSF GRIDMANN MODEL # GR49-SH1872 PROVIDE BLOCKING AS REQ'D

17 WALL MOUNTED STAINLESS STEEL SHELF - 15'-0" X 1'-6", NSF GRIDMANN MODEL # GR49-SH1860 INSTALL THREE 60" SHELVES, PROVIDE BLOCKING AS REQ'D

UP UP ADJACENT TENANT (N.I.C.) ADJACENT TENANT (N.I.C.) ALLEY (N.I.C.) PREP AREA 102 (E) ELEC. RM 104 SERVING AREA 101 CUSTOMER AREA 100 (E) RR 103 B 1 P 1 FT 1 CT 1 PL SS 1 FRP 1 FM 1 PL 1 SS 1 GL 1 FT P GL 1 FRP 1 P WT 1 CT 1 FM EC FT-1 EC 1 FM EC FT-1 P 1 B 1 B FRP 1 FRP 1 SST ADJACENT TENANT (N.I.C.) ADJACENT TENANT (N.I.C.) ALLEY (N.I.C.) 1 J 2 3 4 9 8 7 6 11 D C A B C1 E E1 F G PREP AREA 102 (E) ELEC. RM 104 SERVING AREA 101 CUSTOMER AREA 100 (E) RR 103 12 13 14 15 5 H 5 5 J 16 17 E1 AREA OF WORK 20 FINISH PLAN LEGEND N.I.C. NOT IN CONTRACT FLOOR TRANSITION SYMBOL ABBREVIATION FINISH TYPE B BASE FINISH GL GLASS P PAINT SS SOLID SURFACING CT CEILING TILE FT FLOOR TILE FM FLOOR MAT WT WALL TILE SST STAINLESS STEEL VF VINYL FLOORING WD WOOD PL PLASTIC LAMINATE FRP FIBRE REINFORCED PLASTICFLOOR FINISH SYMBOLBASE FINISH SYMBOLCEILING FINISH SYMBOLWALL FINISH SYMBOLMILLWORK FINISH SYMBOL EQUIPMENT PLAN LEGEND A NEW PLUMBING FIXTURE PER SCHEDULE. 1 NEW FOOD PROCESSING EQUIPMENT PER SCHEDULE. Scale Date Drawn By Checked By Project Number As indicated 3/21/2023 6:57:30 PM A202 EQUIPMENT AND FINISH PLANS JOSEPH ROUHANA LA DOLCE PICCOLA GELATERIA 73225 EL PASEO, SUITE 20, PALM DESERT, CA 92260 RG RG 0321.23 23-0201 1/4" = 1'-0" 1 FINISH PLAN 1/4" = 1'-0" 2 EQUIPMENT PLAN FINISH SCHEDULE FOOD SERVICE EQUIPMENT SCHEDULE MARK DESCRIPTION MANUFACTURER MODEL COMMENTS 1 48" REFRIGERATED BAKERY REFRIGERATOR CASE COOLER DEPOT CW371 115V/60HZ 2 60" GELATO DIPPING CABINET COOLER DEPOT DC-16F 220V/60HZ 3 24" W UNDERCOUNTER REFRIGERATOR w/ (1) SECTION & (1) DOOR SUMMIT SPR627OS 115V 4 15" AIR COOLED UNDERCOUNTER BULLETT ICE MACHINE AVANTCO UC-B-77-A 5 WALL MOUNTED STAINLESS STEEL SHELF
DURASTEEL
- 11'-0" X 1'-6", NSF
DURASTEEL
5 WALL MOUNTED STAINLESS STEEL SHELF - 11'-0" X 1'-6", NSF
Grand total FINISH NO. DESCRIPTION MANUFACTURER SPECIFICATIONS LOCATION NOTES B-1 QUARRY ROUND TOP COVE BASE MONTEBELLO 5" X 6", GRAY SEE FINISH PLANCT-1 CEILING TILE UDECOR DURACLEAN 2 X 4 LAY-IN CEILING TILE, WHITE SEE FINISH PLANEC-1 EPOXY COATING OVER CONCRETE FLOOR EXISTING EXISTING SEE FINISH PLAN PATCH/REPAIR/REOAT AFTER INSTALLING NEW WATER, SEWER LINES / FLOOR SINK FM-1 FLOOR MAT - HEAVY DUTY RUBBER STRAIGHT EDGE CHOICE RED, 39" x 58 1/2" X 7/8" SEE FINISH PLANFRP-1 WALL FINISH GASLINER 4FT X 8FT WHITE .090 FRP WALL BOARD SEE INTERIOR ELEVATIONS & FINISH PLANFT-1 FLOOR TILE PIANETTO BERNINI AVORIO POLISHED PORCELAIN TILE, 24 X 48 SEE FINISH PLANFT-2 FLOOR TILE TBD TBD SEE FINISH PLAN P-1 PAINT SHERWIN WILLIAMS WHITE, PRIMER WHITE SEE INTERIOR ELEVATIONS & FINISH PLANPL-1 PLASTIC LAMINATE BASE CABINET FORMICA NAVY BLUE WITH MATTE FINISH SEE INTERIOR ELEVATIONS & FINISH PLANSS-1 SOLID SURFACE CAMBRIA MACKWORTH SEE INTERIOR ELEVATIONS & FINISH PLANSST-1 STAINLESS STEEL PARTITION TBD TBD SEE INTERIOR ELEVATIONS & FINISH PLANWD-1 VERTICAL WOOD SLAT TBD TBD SEE INTERIOR ELEVATIONS & FINISH PLANWT-1 WALL TILE TBD TBD SEE INTERIOR ELEVATIONS & FINISH PLAN -
No. Description Date
COOLER DEPOT HS-15SS
APPROVAL STAMP

LEGEND

MAX. 2' 10" 1'6" 1'6" 1'6" MIN. 5' 0" 2' 6" 6' 0" P 1 P SS SS GL 15 B 1 MAX. 2' 10" 44" MIN. 5' 3 1/8" WT 1 P MENU GL 1 PL 1 J 3 4 14 B 1 1' 3" 1' - 3" MAX. 2' 10" MAX. 2' 10" B 1'6" 1'6" MAX. 4'4" 6'4 1/4" 3'4" P 1 B 1 J MAX. 2' 10" SS 1 PL 1 1 2 6 15 MIN. 3' 0" 4' 9" B 1 P 1 17 B 1 12 SST 1 P 1 F.E. 12 FRP 1 17 B 1 J FRP 1 SST 1 C C1 D D1 5 5 5 16 17 B 1 16 FRP 1 P 1 SST 1 9 8 11 5 E D E1 7 5 5 B 1 E1 1. 2. SEE SHEETS A202 FOR FINISH SCHEDULE. SKIM COAT AND PROVIDE LEVEL 5 FINISH AT ALL WALL COVERING/GRAPHIC/ PROJECTION WALLS.
ABBREVIATION FINISH TYPE B BASE FINISH GL GLASS P PAINT SS SOLID SURFACING CT CEILING TILE WT WALL TILE SST STAINLESS STEEL WD WOOD PL PLASTIC LAMINATE FRP FIBRE REINFORCED PLASTICBASE FINISH SYMBOL
WALL FINISH SYMBOL -
MILLWORK FINISH SYMBOL GENERAL NOTES 1. ALL FIXTURES AND ACCESSORIES SHALL BE INSTALLED PER CBC TITLE 2 REQUIREMENTS AND SPECIFICATIONS 2. ALL SPECIFIED TILES SHALL BE INSTALLED IN FULL SIZES, U.O.N. 3. PROVIDE ANTI-FRACTURE MEMBRANE BELOW FLOOR FINISH, TYP. 2. ALIGN GROUT LINES ON WALL TO GROUT LINES ON FLOOR. 3. THE STRUCTURAL STRENGTH OF GRAB BARS, TUB AND SHOWER SEATS, FASTENERS, AND MOUNTING DEVICES SHALL MEET THE FOLLOWING SPECIFICATIONS: 4. LAVATORY TAILPIPE AND HOT WATER LINES SHALL BE INSULATED OR COVERED PER CBC 11B-606.5 MENU WD MAX. 2'10" P 1 WT 1 1 2 6 14 B P B 1 3' 6" 1' 0" MAX. 2' 10" P 1 H B 0' 6" 3' 0" 3'4" MAX. 2' 10" 19" MIN. 1' 8" 1' 7" P 1 4'0" FRP 1 B 1 P 1 H B 1 Scale Date Drawn By Checked By Project Number As indicated 3/21/2023 6:57:33 PM A300 INTERIOR ELEVATIONS
LA DOLCE
GELATERIA 73225 EL PASEO, SUITE 20, PALM DESERT, CA 92260 RG RG 0321.23 23-0201 1/4" = 1'-0" 1 A 1/4" = 1'-0" 2 B 1/4" = 1'-0" 3 C 1/4" = 1'-0" 4 D 1/4" = 1'-0" 5 E 1/4" = 1'-0" 6 F 1/4" = 1'-0" 7 G 1/4" = 1'-0" 8 H
STAMP 1/4" = 1'-0" 9 J 1/4" = 1'-0" 10 K 1/4" = 1'-0" 11 L 1/4" = 1'-0" 12 M 1/4" = 1'-0" 13 N No. Description Date
-
-
JOSEPH ROUHANA
PICCOLA
APPROVAL

2. STEEL STUDS, JOISTS & TRACKS 'DIETRICH

3.

WITH CONTINUOUS FIRESTOP CAULKING.

10. ALL FIRE RATED PARTITIONS SHALL BE FULLY SEALED AT TOP & BOTTOM AND FITTED WITH APPROPRIATELY SIZED FIRE DAMPERS.

11. ALL OPENINGS IN FIRERATED CORRIDOR WALLS SHALL BE FIRERATED ASSEMBLIES W/ CLOSER.

12. ALL PARTITIONS TO BE FREE AND INDEPENDENT OF CEILING SUSPENSION SYSTEM, U.O.N.

13. USE 5/8" TYPE 'X' MOISTURE RESISTANT GYP. BD. WHERE CERAMIC TILE OCCURS.

14. WHERE RETURN AIR OPENINGS ARE REQUIRED IN PARTITIONS, INSTALL PROPERLY SIZED SOUND BOOTS

15. INCREASE WALL STRENGTH AS NEEDED WHERE CABINETRY IS SUPPORTED BY WALL

16. ALL INTERIOR NON SLAB-TO-SLAB PARTITIONS TO BE CROSS-BRACED W/ KICKER STUDS FROM TOP OF PARTITION TO STRUCTURE ABOVE. KICKERS TO BE 2 1/2" 25 GA (MIN.)@ 45° OFF HORIZONTAL, ALT. DIRECTIONS TYP U.O.N.

17. RUNNER TRACK: 20 GA. MIN.

18. GYP. BD. FASTENING: SELF-DRILLING, SPACING 8" O.C. HORIZ., 12" O.C. VERT. INSTALLATION

19. REFER TO GENERAL NOTES, SHEET A007 FOR ADDITIONAL CONSTRUCTION NOTES.

SCHEDULED THRESHOLD FLOORING

TILE FINISH FLOOR PER FINISH SCHEDULE OVER THINSET UNCOUPLING/WATER-PROOFING MATT (SCHLUTER DITRA OR EQUIV.) ON MORTAR BASE SUFFICIENT TO PROVIDE SLOPE TO DRAIN PVC BONDING FLANGE (SCHLUTER KERDI OR EQUIV.), 2" DRAIN OUTLET PROVIDE SEALANT AROUND DRAIN AS REQD. GC TO COORDINATE

NOTES: 1. INSTALL SOUND BOOTS AT ALL DEMISING PARTITION AIR DUCT PENETRATION LOCATIONS 2. PROVIDE ACOUSTIC BATT INSUL AT ALL DEMISING / CORRIDOR LOCATIONS 5/8" TYPE 'X' GYP BD, (1) LAYER EA SIDE OF MET STUDS ACOUSTIC SEALANT @ PARTITION PERIMETER WHEN ACOUSTIC INSUL. SCHEDULED CONT. 20 GA. METAL BOTTOM RUNNER TRACK 0.157" PDF @ 24" O.C., 1-1/4" MIN EMBEDMENT CEILING PER PLAN (WHERE OCCURS) PLAN SILL ACOUSTIC INSUL. BATT PER PARTITION TYPE TOP OF (E) FLOOR STRUCTURE SCHEDULED WALL BASE PER PLAN 1/4" SEE METAL STUD LIMITING HEIGHT SCHEDULE. SEE 5/A400 STUD SIZE BASIC PARTITION THICKNESS 2 1/2" A2 3 3/4" FIRE TEST NO. (WHERE APPLICABLE) UL DES U494 3 5/8" A3 4 7/8" UL DES U465 4" A4 5 1/4" UL DES U465 6" A6 1/4" UL DES U465 1/2" A2-S 3/4" UL DES U494 ACOUSTIC INSULATION - R8 3 5/8" A3-S 4 7/8" UL DES U465 - R15 4" A4-S 5 1/4" UL DES U465 - R15 - R19 6" A6-S 7 1/4" UL DES U465 CONT. STUD WIDTH X 20 GA. SLOTTED DEFLECTION TRACK. DO NOT FASTEN GYP. BD. TO TRACK 3-5/8"x20 GA. METAL STUD BRACING STAGGERED @ 48" O.C., 45° FROM TOP OF PRTN. TO STRUCTURE 16 GA. 'L' CLIP W/ (3) #10 SMS EA. LEG @ EA. BRACE TYP. ACOUSTIC BLANKET ABV. PER PARTITION BELOW HEAD 12 12 SEE DETAIL FOR PARTITION ATTACHMENT TO STRUCTURE A400 2 SEE ICC-ESR REPORT NUMBERS ON 6/A400 SIMPSON A35 FRAMING ANGLE ICC-ESR #3096 LARR #25910 OR APPROVED EQUAL EA. SIDE EA. END (E) 2X FRAMING 2X BLOCKING @ EA. BRACE LOCATION SIMPSON A35 FRAMING ANGLE ICC-ESR #3096 LARR #25910 OR APPROVED QUAL EA. END EA. SIDE (E) FLOOR SHEATHING ROOF DIAPHRAGM (3) #10 SMS TO 16 GA. 'L' CLIP 4X6 FLAT BLOCKING FULL WIDTH BETWEEN JOISTS (E) FLOOR SHEATHING ROOF DIAPHRAGM
PERPENDICULAR TO FRAMING BRACING PARALLEL TO FRAMING 20 GA. MTL. STUD BRACE W/ (3) #10 X 1 1/ 4" SMS TO WOOD BLOCKING LINE OF (E) FRAMING BEYOND 4"X3" 16 GA 'L' CLIP W/ (3) #10 SMS TO BLOCKING A B NOTE: AT HANGING SOFFIT CONDITIONS, CONT. 14 GA TOP TRACK W/ (2 #10 SMS @ 16" O.C. INTO BOTTOM JOIST CHORD 2X FRAMING 14 GA STRAPPING MIN. 2" EMBED & (1) #8 SMS EA. STUD EA. SIDE
BRACING
EXTENSION LENGTHS AS REQ'D BY FIELD CONDITIONS. TOP OF SLAB NEW/EXISTING WALL PER PLAN 5/8" MOISTURE RESISTANT 5/8" CEMENT BOARD SUBSTRATE. G.C. TO VERIFY WITH CITY OF GLENDALE FOR CITY APPROVED SHOWER ROOM RESTROOM WATER RESISTANT SUBSTRATE AND WATERPROOFING MEMBRANE PRIOR TO INSTALLATION. GALVANIZED FASTENER WITH 1 1/4" TABBED WASHER SCHEDULED WALL FINISH MORTAR BASE SUFFICIENT TO PROVIDE SLOPE TO DRAIN SCHEDULED TILE COVE BASE WATER-PROOFING MEMBRANE (SCHLUTER-KERDI OR EQUIV) OVER SUBSTRATE SEE DETAIL FOR TILING AT FLOOR DRAIN A400 7 SCHEDULE WALL PARTITION 16 GA #4 BRUSHED S.S. WALL CORNER GUARD, 4' TAIL BY "DIAMOND LIFE GEAR, STRAIGHT EDGE, PLAIN BACK" ADHERE TO GYP. BD. WALL CORNER 1 1/2" 1/2" 1. FASTENERS HILTI 'X-U' POWDER DRIVEN FASTENERS RESEARCH REPORT NUMBERS AGENCY NUMBER EXP. DATE ICC-ESR #2269 02/25 TYPICAL PARTITION NOTES: 8. ALL FIRE RATED PARTITIONS SHALL COMPLY WITH CBC, CHAPTER 7. 9. ALL FIRE RATED PARTITIONS SHALL BE FULLY SEALED AT TOP AND BOTTOM CONNECTIONS
ICC-ESR #1166P 08/24
STEEL STUDS LIMITING HEIGHTS ICC-ESR #3064P 02/23
INDUSTRIES':
A.
SHORT SET
'RAMSET': ICC-ESR #1799 06/23
AND AMMO
GAGE MATERIALS): ICC-ESR #2196 10/23
4. HILTI SELF DRILLING SCREWS (FOR LIGHT
ICC-ESR #1917 05/23 6. GYPSUM BOARD WALL ASSEMBLIES 'GYPSUM ASSOCIATION': ICC-ESR #1338 02/24 7. USG SHAFT WALL SYSTEMS WALL, CEILING & DUCT PROTECTION: #1338 ICC-ESR 02/24 AT SEAM: (4) WAFER HEAD SCREWS PLACED AT 1/2" FROM PLATE EDGE TYP. BUTT STRAPS AT JOINT (2) WAFER HEAD SCREWS PER STUD PLACED 1/2" FROM PLATE EDGE TYP. NOTES: 1. PARTITION MOUNTED HANDRAILS GRAB BARS: PROVIDE BACKING SUPPORT @ EA. ATTACHMENT POINT, SPAN (3) STUDS MIN. 2. EXTEND BACKING PLATE TO LAST STUD BEYOND FACE OF FIXT. ACCESSORY TYP. 3. PROVIDE METAL SLEVES THROUGH WALL FINISH AT FIXTURE FASTENINGS TYP. 4. PARTITION MOUNTER CASEWORK/EQUIPMENT: PROVIDE BACKING CONTINUOUS FULL LENGTH OF EA. ASSEMBLY. SPAN (3) STUDS MIN, COORDINATE LOCATION W/ CASEWORK/EQUIPMENT SHOWN AT CONSTRUCTION OR POWER & COMMUNICATIONS PLANS & MANUFACTURER'S MOUNTING INSTRUCTIONS. BASE CABINET, WALL HUNG CABINET, SHELVES, LAVATORY, GRAB BAR, ELECTRICAL PANEL, TELEVISION, SURFACE MOUNTED LIGHT FIXTURES & ITEMS INDICATED IN PLAN(S) TYPE 1: 6" x 16 GA. MTL. STRAPFASTEN TO STUDS W/ (2) 8-18 WAFER HEAD SELFDRILLING SCREWS PER STUD. ALL BACKING TO SPAN (3) STUDS MIN. VERT. STUD PER PARTITION TYPE TYP. 6" 25 GA. MTL. STUD TRACK. NOTCH & FASTEN TO STUDS W/ (3) 8-18 WAFER HEAD SELFDRILLING SCREWS PER STUD. ALL BACKING TO SPAN (3) VERT. STUDS MINIMUM VERT. STUD PER PARTITION TYPE TYP. ALL TOILET ACCESSORIES, FIRE EXTINGUISHER CABINET, WALL MTD. TELEPHONE OUTLET, WALL MTD. DOOR STOP, WINDOW BLIND, AND AS INDICATED ON PLAN TYPE 2: METAL STUDS FOR INTERIOR NON-LOADBEARING PARTITIONS TO CONFORM W/ STEEL STUD MANUFACTURERS ASSOCIATION LIMITING HEIGHTS TABLES & ICC-ES AC86-2012 FOR COMPOSITE PARTITIONS & NON-COMPOSITE PARTITIONS BRACED AT 48" O.C. (MAX). COMPOSIITE METAL STUD PARTITION & LIMITING HEIGHTS INFORMATION : A COMPOSITE PARTITION IS DEFINED AS 1 LAYER OF 5/8" TYPE 'X' GYP. BD. INSTALLED TO BOTH SIDES OF THE WALL OVER FULL HEIGHT USING MINIMUM NO. 6 TYPE S DRYWALL SCREWS SPACED A MAXIMUM OF 12" O.C. FOR STUDS AT 24" SPACING, AND 16" O.C. FOR STUDS AT 16" AND 12" SPACING. LIMITING HEIGHTS CITED ABOVE PER 2014 SSMA TECHNICAL GUIDE & ICC-ES AC86-2012. NON-LOADBEARING PARTITION DESIGN CRITERIA LOAD: 5 PSF CBC 1607.14 DEFLECTION: 1/240 CBC TABLE 1604.3 SPACING: 16" O.C. STUD DESIGNATION COMPOSITE NON-COMPOSITE BRACED @ 48" O.C. LIMITING HEIGHTS 250S125-18 (25 GA.) 12'-10" 9'-8" 250S125-27 (22 GA.) 13'-11" 11'-3" 250S125-30 (20 GA.) 14'-5" 11'-8" 250S125-33 (20 GA. STRUCTURAL) 14'-3" 12'-1" 362S125-18 (25 GA.) 15'-2" 11'-4" 362S125-27 (22 GA.) 16'-6" 15'-0" 362S125-30 (20 GA.) 16'-7" 15'-6" 362S125-33 (20 GA. STRUCTURAL) 17'-5" 16'-1" 600S125-18 (25 GA.) 22'-9" 600S125-27 (22 GA.) 24'-4" 21'-5" 600S125-30 (20 GA.) 24'-7" 23'-0" 600S125-33 (20 GA. STRUCTURAL) 25'-6" 23'-11"
24"  24"  CENTER GROUTLINE OF TILE NEW DRAIN COVER FLOOR TILE PER SCHEDULE Scale Date Drawn By Checked By Project Number As indicated 3/21/2023 6:57:34 PM A400 DETAILS JOSEPH ROUHANA LA DOLCE PICCOLA GELATERIA 73225 EL PASEO, SUITE 20, PALM DESERT, CA 92260 RG RG 0321.23 23-0201 3" = 1'-0" 3 TYPE A3# - CEILING HGT PARTITION APPROVAL STAMP 3" = 1'-0" 2 CONNECTION @ STRUCTURE 1/4" = 1'-0" 4 SECTION AT FLOOR DRAIN 3" = 1'-0" 1 GYP. BD. WALL CORNER GUARD 1 1/2" = 1'-0" 6 REPORT NUMBERS & TYP. NOTES 3" = 1'-0" 8 WALL BACKING AT MILLWORK/EQUIP. 1 1/2" = 1'-0" 5 METAL STUD LIMITING HEIGHTS 3" = 1'-0" 7 TILING AT FLOOR DRAIN 3" = 1'-0" 9 ACCESSIBLE RESTROOM SIGNAGE No. Description Date
5. CONCRETE ANCHORS, HILTI 'KWIK BOLT' TZ:
SLOPE
1 1/2" SELF EDGE HOLES FOR SHELF SUPPORTS AT 2" ON CENTER MAXIMUM ADJUSTABLE SHELF ON METAL SHELF RESTS WHITE LOW PRESSURE MELAMINE FINISH ON ALL NONEXPOSED SURFACES U.O.N. MOCKETTE DP3C/AS PULL SCHEDULED FINISH ON ALL EXPOSED CABINET & COUNTER TOP SURFACES U.O.N. (SEE ELEVATIONS) BASE TO MATCH SCHEDULED BASE IN ROOM, U.O.N. (SEE FINISH PLAN) 4" 3" 2' 0" MAX. 2'10" 0'4" 2' 1" 2" OUTLET 15" MIN. BELOW COUNTER 24" ABOVE CASEWORK 42" FINISH FLOOR (34" TO 44") 38" U.O.N. DOOR 60" A.F.F. MAX. 6" 48" THERMOSTAT 38" SWITCH U.O.N. 38" 60" CLEAR, TYP. WHERE OUTLETS ARE SHOWN CLOSE TOGETHER, MOUNT WITH MINIMUM DISTANCE BETWEEN BOXES BASE TO MATCH SCHEDULED BASE IN ROOM, U.O.N. (SEE FINISH PLAN) CAVITY & ALL EXPOSED SURFACES TO BE FULLY ENCLOSED W/ BLACK LOW PRESSURE MELAMINE FINISH 1 1/2" SELF EDGE SCHEDULED FINISH ON ALL EXPOSED CABINET & COUNTER TOP SURFACES U.O.N. (SEE ELEVATIONS) MAX. 2'10" 0' 4" 2' 1" Scale Date Drawn By Checked By Project Number As indicated 3/21/2023 6:57:35 PM A401 DETAILS JOSEPH ROUHANA LA DOLCE PICCOLA GELATERIA 73225 EL PASEO, SUITE 20, PALM DESERT, CA 92260 RG RG 0321.23 23-0201 APPROVAL STAMP 1 1/2" = 1'-0" 3 BASE CABINET WITH DOORS 3" = 1'-0" 1 PENDANT LIGHT FIXTURE 3" = 1'-0" 2 PENDANT EXIT SIGN 1/2" = 1'-0" 5 TYPICAL MOUNTING HEIGHTS 1 1/2" = 1'-0" 4 BASE CABINET AT APPLIANCE No. Description Date
Scale Date Drawn By Checked By Project Number 2/21/2023 4:31:15 AM A100 COVER SHEET DUPLEX ADUS 4965 W POINT LOMA BLVD SAN DIEGO, CA 92107 RG RG 02.28.2023 XXX-XXX ISSUED FOR PLAN CHECK - 02.28.2023 DUPLEX ADUS APPROVAL STAMP 4965 W POINT LOMA BLVD. SAN DIEGO, CA 92107 No. Description Date

SHALL BE RESPONSIBLE FOR THE COORDINATION OF ALL TRADES ON THE JOB WHETHER THEY ARE HIS OR HER OWN SUBCONTRACTORS OR UNDER SEPARATE CONTRACT.

THE G.C. OWNER SHALL TAKE PRECAUTIONS TO MAINTAIN SAFE ACCESS FOR ALL CONSTRUCTION AND EMERGENCY PERSONNEL THROUGH AREAS AFFECTED.

THE G.C. OWNER SHALL COORDINATE FINISH FLOOR ELEVATIONS AND GRADE ELEVATIONS WITH THE CIVIL DRAWINGS BY OTHERS BEFORE COMMENCEMENT OF WORK.

THE G.C. OWNER SHALL BE RESPONSIBLE FOR THE DAILY REMOVAL OF DEBRIS FROM THE WORK SITE. THERE SHALL BE NO STORAGE OF EXCESSIVE QUANTITIES OF DIRT DEBRIS, RUBBISH OR WASTE OF ANY KIND ON THE SITE. DAILY BROOM CLEANING AFTER BUILDING IS CLOSED IN. AT THE COMPLETION OF THE JOB, THE G.C. OWNER SHALL BE RESPONSIBLE FOR OVERALL CLEANUP OF THE SPACE, TOUCHING UP MINOR DAMAGE OR ABRASIONS AND LEAVING SPACE READY FOR FINAL

SPECIFICALLY INCLUDED HEREIN IS THE CLEANUP, TOUCH UP, AND FULL PROPER

OF ALL HARDWARE, GLASS WINDOWS, SILLS, AND MULLIONS.

POLY. POLYETHYLENE

P.R. POWDER ROOM PROP. PROPOSED

P.S.F POUNDS PER SQUARE FOOT

P.S.I. POUNDS PER SQUARE INCH

P.T. PRESSURE TREATED

R. RISER (S)

RAD. RADIUS REFR. REFRIGERATOR

REQ. REQUIRED

R.O. ROUGH OPENING

RM. ROOM

R&S ROD & SHELF

SCH. SCHEDULE

S.F. SQUARE FOOT OR FEET

SHT. SHEET

SIM. SIMILAR

S.P. SUMP PIT

SQ. SQUARE

STR. STRUCTURAL

T.B.D. TO BE DETERMINED

T&B TOP & BOTTOM

TEMP. TEMPERATURE

T&G TONGUE AND GROOVE

THK. THICK (NESS)

TR. TREAD (S)

TYP. TYPICAL

U.N.O. UNLESS NOTED OTHERWISE

VERT. VERTICAL (LY)

V.I.F. VERIFY IN FIELD

W/ WITH

W.C. WATER CONDITIONER

WD. WOOD

W.H. WATER HEATER

W.I.C. WALK-IN CLOSET

W.W.F. WELDED WIRE FABRIC C CENTERLINE

CALIFORNIA BUILDING CODE GENERAL REQUIREMENTS A. THE CONSTRUCTION SHALL NOT RESTRICT A FIVE- FOOT CLEAR AND UNOBSTRUCTED ACCESS TO ANY WATER OR POWER DISTRIBUTION FACILITIES (POWER POLES, PULL-BOXES, TRANSFORMERS, VAULTS, PUMPS, VALVES, METERS, APPURTENANCES, ETC.) OR TO THE LOCATION OF THE HOOKUP. THE CONSTRUCTION SHALL NOT BE WITHIN TEN FEET OF ANY POWER LINES-WHETHER OR NOT THE LINES ARE LOCATED ON THE PROPERTY. FAILURE TO COMPLY MAY CAUSE CONSTRUCTION DELAYS AND/OR ADDITIONAL EXPENSES.

B. AN APPROVED SEISMIC GAS SHUTOFF VALVE WILL BE INSTALLED ON THE FUEL GAS LINE ON THE DOWNSTREAM SIDE OF THE UTILITY METER AND BE RIGIDLY CONNECTED TO THE EXTERIOR OF THE BUILDING OR STRUCTURE CONTAINING THE FUEL GAS PIPING. (PER ORDINANCE

170,158) (SEPARATE PLUMBING PERMIT IS REQUIRED).

C. PLUMBING FIXTURES ARE REQUIRED TO BE CONNECTED TO A SANITARY SEWER OR TO AN APPROVED SEWAGE DISPOSAL SYSTEM. R306.3

D. KITCHEN SINKS, LAVATORIES, BATHTUBS, SHOWERS, BIDETS, LAUNDRY TUBS AND WASHING MACHINE OUTLETS SHALL BE PROVIDED WITH HOT AND COLD WATER AND CONNECTED TO AN APPROVED WATER SUPPLY. R306.4

E. BATHTUB AND SHOWER FLOORS, WALLS ABOVE BATHTUBS WITH A SHOWERHEAD, AND SHOWER COMPARTMENTS SHALL BE FINISHED WITH A NONABSORBENT SURFACE. SUCH WALL SURFACES SHALL EXTEND TO A HEIGHT OF NOT LESS THAN 6 FEET ABOVE THE FLOOR. R307.2

F. PROVIDE ULTRA-LOW FLUSH WATER CLOSETS FOR ALL NEW CONSTRUCTION. EXISTING SHOWER HEADS AND TOILETS MUST BE ADAPTED FOR LOW WATER CONSUMPTION.

G. WATER HEATER MUST BE STRAPPED TO WALL. SEC. 507.3, LAPC

H. FOR EXISTING POOL ON SITE, PROVIDE AN ALARM FOR DOORS TO THE DWELLING THAT FORM A PART OF THE POOL ENCLOSURE. THE ALARM SHALL SOUND CONTINUOUSLY FOR A MIN. OF 30 SECONDS WHEN THE DOOR IS OPENED. IT SHALL AUTOMATICALLY RESET AND BE EQUIPPED WITH A MANUAL MEANS TO DEACTIVATE (FOR 15 SECS. MAX.) FOR A SINGLE OPENING. THE DEACTIVATION SWITCH SHALL BE AT LEAST 54" ABOVE THE FLOOR. 6109 OF LABC

I. FOR EXISTING POOL ON SITE, PROVIDE ANTI – ENTRAPMENT COVER MEETING THE CURRENT ASTM OR ASME FOR THE SUCTION OUTLETS OF THE SWIMMING POOL, TODDLER POOL AND SPA FOR SINGLE FAMILY DWELLINGS PER ASSEMBLY BILL (AB) NO. 2977. 3162B

J. AUTOMATIC GARAGE DOOR OPENERS, IF PROVIDED, SHALL BE LISTED IN ACCORDANCE WITH UL 325. R309.4

K. SMOKE DETECTORS SHALL BE PROVIDED FOR ALL DWELLING UNITS INTENDED FOR HUMAN OCCUPANCY, WHERE A PERMIT IS REQUIRED FOR ALTERATIONS, REPAIRS, OR ADDITIONS. R314.2

L. WHERE A PERMIT IS REQUIRED FOR ALTERATIONS, REPAIRS OR ADDITIONS, EXISTING

OR SLEEPING UNITS THAT HAVE ATTACHED GARAGES OR FUEL-BURNING APPLIANCES SHALL BE PROVIDED WITH A CARBON MONOXIDE ALARM IN ACCORDANCE WITH SECTION R315.2.

MONOXIDE ALARMS SHALL ONLY BE REQUIRED IN THE SPECIFIC DWELLING UNIT OR SLEEPING UNIT FOR WHICH THE PERMIT WAS OBTAINED. R315.2

M. EVERY SPACE INTENDED FOR HUMAN OCCUPANCY SHALL BE PROVIDED WITH NATURAL

LIGHT BY MEANS OF EXTERIOR GLAZED OPENINGS IN ACCORDANCE WITH SECTION R303.1 OR SHALL BE PROVIDED WITH ARTIFICIAL LIGHT THAT IS ADEQUATE TO PROVIDE AN AVERAGE

ILLUMINATION OF 6 FOOT-CANDLES OVER THE AREA OF THE ROOM AT A HEIGHT OF 30 INCHES

ABOVE THE FLOOR LEVEL. R303.1

N. A COPY OF THE EVALUATION

THE BUILDING SHALL BE EQUIPED WITH AN AUTOMATIC RESIDENTIAL FIRE SPRINKLER SYSTEM IN ACCORDANCE WITH SECTION R313.3 OR NFPA-13D THE SPRINKLER SYSTEM SHALL BE APPROVED BY PLUMBING DIVISION PRIOR TO INSTALLTION. CONSTRUCTION SHALL COMPLY WITH THE FOLLOWING CODES: 2022 CALIFORNIA ADMINISTRATIVE CODE (CAC) 2022 CALIFORNIA RESIDENTIAL CODE (CRC) 2022 CALIFORNIA ELECTRICAL CODE (CEC) 2022 CALIFORNIA MECHANICAL CODE (CMC) 2022 CALIFORNIA PLUMBING CODE (CPC) 2022 CALIFORNIA ENERGY CODE (CEEC) 2022 CALIFORNIA FIRE CODE (CFC) 2022 CALIFORNIA EXISTING BUILDING CODE (CEBC) 2022 CALIFORNIA GREEN BUILDING STANDARDS CODE (CALGREEN) 2022 CALIFORNIA REFERENCE STANDARDS CODE NEW 2 STORY, 2 BEDROOMS AND 1.5 BATHS DUPLEX ACCESSORY DWELLING UNITS (ADUS). ASSESSOR'S PARCEL NO: 448-221-02-00 LEGAL DESCRIPTION: TR 1167 BLK 20 LOTS 40 & 41 ZONE: R1-1 PROPERTY TYPE: ADU FIRE SPRINKLER: YES CONSTRUCTION TYPE: V-B (N) NUMBER OF STORY: 2 (N) HEIGHT" 20' 8 1/2" (N) FIRST FLOOR AREA PER UNIT 262 SQFT (N) SECOND FLOOR AREA PER UNIT 262 SQFT (N) TOTAL ADU AREA 524 SQFT X 2 = 1048 SQFT LOT AREA 6,500 SQFT (E) LOT COVERAGE 1,700 SQFT (N) LOT COVERAGE 2,224 SQFT A 1 BUILDING STRUCTURAL GRID LINES- DETAIL NUMBER SHEET NUMBER SECTION NUMBER SHEET NUMBERELEVATION NUMBER SHEET NUMBERSINGLE ELEVATION IDENTIFICATION: ELEVATION NUMBER INTERIOR ELEVATION IDENTIFICATION: SHEET NUMBER AREA OF REVISION BULLETIN (OR ADDENDUM): REVISION NUMBER FINISH FLOOR ELEVATION SYMBOL +482.67' F.F.E. ROOM NAME ROOM NUMBER STAIR/RAMP DIRECTION: ARROW POINTS UP STAIR/RAMP UP ##% SLOPE ALIGN ALIGN KEYNOTE SYMBOL DOOR NUMBER WINDOW TYPE #--1 ROOM NAME # 01 C
DWELLINGS
CARBON
REPORT AND/OR CONDITIONS OF LISTING SHALL BE MADE AVAILABLE AT THE JOB SITE A.B. ANCHOR BOLT A.F.F. ABOVE FINISHED FLOOR A.F.G. ABOVE FINISHED GRADE A.H.U. AIR HANDLING UNIT ALUM. ALUMINUM APX. APPROXIMATE (LY) B.H. BULKHEAD B.R.L. BUILDING RESTRICTION LINE BSMT. BASEMENT C.M.U. CONCRETE MASONRY UNIT CLO. CLOSET COL. COLUMN CONC. CONCRETE CONT. CONTINUOUS CNTR. COUNTER DBL. DOUBLE DIA. ∅ DIAMETER DN. DOWN D.W. DISHWASHER DWG. DRAWING ELEV. ELEVATION E.P. ELECTRIC PANEL EX. EXISTING FIN. FINISH F.O. FRAMED OPENING FT. FOOT OR FEET FTG. FOOTING H.R. HANDRAIL HOR. HORIZONTAL (LY) IN. INCH (ES) GALV. GALVANIZED G.R. GUARDRAIL G.W.B. GYPSUM WALL BOARD LBS. POUNDS LIN. LINEN MAS. MASONRY MAX. MAXIMUM MFR. MANUFACTURER (S) MIN. MINIMUM M.O. MASONRY OPENING NOM. NOMINAL 0.C.
O.D.
O.H.
PERP.
ON CENTER
OUTSIDE DIAMETER
OVERHEAD
PERPENDICULAR
DO NOT SCALE DRAWINGS. ALL DIMENSIONS ARE FROM FINISHED FACE, U.N.O. G.C. OWNER TO VERIFY ALL DIMENSIONS AND CONDITIONS. NOTIFY THE DESIGNER IMMEDIATELY OF ANY DISCREPANCIES BETWEEN DRAWINGS AND ACTUAL FIELD CONDITIONS PRIOR TO THE START OF ANY WORK. IT IS THE RESPONSIBILITY OF THE G.C. OWNER TO REVIEW THE DRAWINGS AND VERIFY ALL DIMENSIONS, AND NOTIFY THE DESIGNER OF ANY DISCREPANCIES PRIOR TO COMMENCEMENT OF WORK. THE G.C. / OWNER SHALL VISIT THE SITE AND BECOME THOROUGHLY ACQUAINTED WITH THE EXISTING CONDITIONS AND THE EXTENT OF THE WORK AS PRESENTED IN THE CONTRACT DOCUMENTS PRIOR TO THE COMMENCEMENT OF WORK. ALL WORK SHALL BE PERFORMED TO CONFORM TO THE APPLICABLE EDITION OF THE INTERNATIONAL RESIDENTIAL CODE INCLUDING ALL LOCAL AMENDMENTS. ALL ELECTRICAL INSTALLATIONS SHALL CONFORM TO NATIONAL ELECTRICAL CODE AND ALL APPLICABLE LAWS AND REGULATIONS. THE G.C. / OWNER SHALL VERIFY AND COORDINATE SPACE REQUIREMENTS FOR ALL MECHANICAL PLUMBING EQUIPMENT PRIOR TO CONSTRUCTION. ALL MECHANICAL PLUMBING INSTALLATIONS SHALL CONFORM TO INTERNATIONAL MECHANICAL PLUMBING CODE AND ALL APPLICABLE LAWS AND REGULATIONS. ALL WORK SHALL BE DONE IN A SKILLED AND WORKMANLIKE MANNER. FIXTURES AND EQUIPMENT SHALL BE SET IN ACCORDANCE WITH THE DIMENSIONS LOCATIONS PROVIDED IN THE CONSTRUCTION DOCUMENTS. ALL BUILDING MATERIALS, FIXTURES, AND EQUIPMENT SHALL BE INSTALLED IN ACCORDANCE WITH MANUFACTURER'S SPECIFICATIONS AND LOCAL BUILDING CODE REQUIREMENTS. THE G.C. / OWNER
INSPECTION.
FUNCTION
OWNER: MICHAEL TRUPIANO 4965 W POINT LOMA BLVD SAN DIEGO, CA 92107 DESIGN & DRAFTING: ADU GEEKS 811 25TH SUITE 101 SAN DIEGO, CA 92102 855.999.4335 STRUCTURAL ENGINEER: XXXX XXXX XXXX XXXX MECHANICAL TITLE 24: XXXX XXXX XXXX GENERAL CONTRACTOR: XXXX XXXX XXXX Scale Date Drawn By Checked By Project Number As indicated 2/21/2023 4:31:16 AM A101 PROJECT DATA DUPLEX ADUS 4965 W POINT LOMA BLVD
DIEGO, CA 92107 RG RG 02.28.2023 XXX-XXX SHEET NUMBER SHEET NAME A100 COVER SHEET A101 PROJECT DATA A102 CALGREEN MANDATORY CHECKLIST A103 CALGREEN MANDATORY CHECKLIST A200 PROPOSED SITE PLAN A201 PROPOSED FLOOR PLANS A202 PROPOSED REFLECTED CEILING PLANS & SECTIONS A300 PROPOSED ELEVATIONS A400 DETAILS A401 DETAILS S0.1 GENERAL STRUCTURAL NOTES S0.2 GENERAL STRUCTURAL NOTES S1.1 PROPOSED FOUNDATION PLAN S2.1 PROPOSED ATTIC FLOOR FRAMING PLAN S2.2 PROPOSED ROOF FRAMING PLAN SD-1 STRUCTURAL DETAILS SD-2 STRUCTURAL DETAILS SD-3 STRUCTURAL DETAILS T-1 TITLE 24 T-2 TITLE 24 T-3 TITLE 24 T-4 TITLE 24 PROJECT DIRECTORY SHEET INDEX APPLICABLE CODES PROJECT SCOPE PROJECT DATA LOCATION & VICINITY MAP SYMBOLS GENERAL NOTES FIRE PROTECTION CITY REQUIRED NOTES ABBREVIATIONS APPROVAL STAMP No. Description Date PROJECT SITE
SAN

S9

APPROVAL STAMP

SITE PLAN KEYNOTES

S1 (E) DWELLING TO REMAIN.

S2 (E) SHED TO REMAIN.

S3 (E) DECK AND GUARDRAIL TO REMAIN.

S4 (E) FENCE TO REMAIN.

(E) PARKING TO REMAIN.

S5 S6 (N) GAF CLASS A FIRE-RETARDANT ROOF COVERING (ESR-1475) OR SIMILAR. COLOR TO MATCH OTHER EXISTING DWELLINGS ON LOT.

S7 (N) RADIANT BARRIER UNDER SHINGLES.

S8 (N) GAF CLASS A FIRE-RETARDANT RIDGE CAP.

(N) CONCRETE LANDING. PROVIDE MIN. 1/4" PER FOOT SLOPE AWAY FROM DOOR

S10 (N) P.T. WOOD FENCE.

WALLS, SLOPES OR OTHER PHYSICAL BARRIERS PROHIBIT 6 INCHES (152 MM) OF FALL WITHIN 10 FEET (3048 MM), DRAINS OR SWALES SHALL BE CONSTRUCTED TO ENSURE DRAINAGE AWAY FROM THE STRUCTURE. IMPERVIOUS SURFACES WITHIN 10 FEET (3048 MM) OF THE BUILDING FOUNDATION SHALL BE SLOPED NOT LESS THAN 2 PERCENT AWAY FROM THE BUILDING. [R401.3 CRC]

EACH TOWNHOUSE UNIT SHALL BE SEPARATED FROM OTHER TOWNHOUSE UNITS BY TWO 1-HOUR

FIRE-RESISTANCE-RATED WALL ASSEMBLIES TESTED IN ACCORDANCE WITH ASTM E119, UL 263 OR SECTION 703.2.2 OF THE CALIFORNIA BUILDING CODE.

AUTOMATIC SPRINKLER SYSTEM IN ACCORDANCE WITH SECTION R313 IS PROVIDED, THE COMMON WALL SHALL BE NOT LESS THAN A 1-HOUR FIRE-RESISTANCE-RATED WALL ASSEMBLY TESTED IN ACCORDANCE WITH ASTM E119, UL 263 OR SECTION 703.2.2 OF THE CALIFORNIA BUILDING CODE.

No. Description Date

PROPERTYLINE-40.00

DUPLEX ADUS

4965 W POINT LOMA BLVD SAN DIEGO, CA 92107

PROPOSED SITE PLAN

Project Number

Date Drawn By Checked By

XXX-XXX

02.28.2023

Scale

As indicated

PROPERTY LINE50.00
PROPERTY LINE 150.00 PROPERTY LINE 130.00 S1 7' 0" DUPLEX ADUS 36' 0" S1 S2 S1 S3 S3 S3 S2 S4 S6 S7 S6 S7 S8 3" 1'-0" 3" 1'-0" 3" / 1'-0" 3" / 1'-0" S5 O.H. 1'6" O.H. 1'6" O.H. 1' 0" (E)SIDEWALK S4 O.H. 1' 0" S9 S9 WPOINT LOMA BLVD (E)LANDSCAPE ALLEY ADJACENT PROPERTY ADJACENT PROPERTY S10 S10 S10 4' 0" DUPLEX ADUS 19'2" 5'10" GENERAL SITE PLAN NOTES: SURFACE DRAINAGE SHALL BE DIVERTED TO A STORM SEWER CONVEYANCE OR OTHER APPROVED POINT OF COLLECTION THAT DOES NOT CREATE A HAZARD. LOTS SHALL BE GRADED TO DRAIN SURFACE WATER AWAY FROM FOUNDATION WALLS. THE GRADE SHALL FALL NOT FEWER THAN 6 INCHES (152 MM) WITHIN THE FIRST 10 FEET (3048 MM) EXCEPTION: WHERE LOT LINES,
2/21/2023 4:31:16 AM A200
RG
RG
1/8" = 1'-0" 2 PROPOSED SITE PLAN

FIBERGLASS BATT (KRAFT-FACED) w/ VAPOR BARRIER

FACED BATT INSULATION SHALL HAVE THE FACED MATERIAL TO THE INSIDE OF THE DWELLING WITH SUBSTANTIAL CONTACT WITH THE FINISH MATERIAL.

OTHER BUILDING SURFACES NOT OTHERWISE DESIGNATED BUT SPECIFICALLY INCLUDING WALLS AND FLOORS: 1/8" PER 10'-0" AS MEASURED IN ANY DIRECTION BY A METAL STRAIGHT EDGE OF NOT LESS THAN 10'-0" IN LENGTH.

LUMBER:

1. UNLESS OTHERWISE NOTED, WOOD CONSTRUCTION SHALL MEET CONSTRUCTION STANDARDS AND MATERIAL SPECIFICATIONS AS SET FORTH BY THE AMERICAN PLYWOOD ASSOCIATION FOR RESIDENTIAL CONSTRUCTION.

2. ALL LUMBER INCORPORATED INTO THE STRUCTURE SHALL BE AIR OR KILN-DRIED AND SHALL CONTAIN NO MORE THAN 19% MOISTURE. STRUCTURAL LUMBER: DOUGLAS FIR #2 OR BETTER FY-1200 P.S.I. MIN. E-1,500,000.

3. ENGINEERED RIM BOARDS SHALL BE SUBSTITUTED WITH LVL RIM BOARDS WHERE LEDGER BOARD ATTACHMENT IS REQUIRED.

4. CONVENTIONAL WOOD BEAMS HEADERS IN WALLS SHALL HAVE ONE CONTINUOUS LAYER OF

PLYWOOD BETWEEN EACH TWO 2X'S TO MATCH DEPTH OF WALLS. ALL HEADERS AND BEAMS SHALL BE GLUED AND NAILED. SEE HEADER SCHEDULE FOR HEADER SIZES.

5. ALL HEADER AND BEAM BEARINGS SHALL CONTINUE TO FOOTING AND/OR FOUNDATION AT FULL WIDTH OF BEAM. PROVIDE SOLID BLOCKING THROUGH FLOOR JOISTS/TRUSS

ALL JOINTS, SEAMS, PENETRATIONS; SITE-BUILT WINDOWS, DOORS, AND SKYLIGHTS;

3. ALL WOOD IN DIRECT CONTACT WITH SOIL, STEEL, CONCRETE MASONRY EARTH, OR WITHIN 8" OF GRADE SHALL BE PRESSURE TREATED. WOOD JOISTS OR THE BOTTOM OF A WOOD STRUCTURAL FLOOR WITHIN 18 INCHES OR WOOD GIRDERS WITHIN 12 INCHES OF GRADE SHALL BE PRESSURE TREATED. ALL LUMBER USED FOR DECKING OR DECK FRAMING SHALL BE PRESSURE TREATED UNLESS NOTED OTHERWISE.

LEDGERS, BEAMS, & HEADERS:

1. EXTERIOR DECKS SHALL HAVE P.T. LEDGERS MATCHING DEPTH OF JOISTS JOISTS SHALL BE ATTACHED W/ GALVANIZED METAL JOIST HANGERS.

2. LEDGER BOARDS SHALL BE BOLTED TO SOLID WOOD FRAMING WITH 1/2" DIAMETER THROUGH BOLTS STAGGERED 16" O.C. T&B U.N.O. BOLT INSTALLATION SHALL INCLUDE OVERSIZE WASHERS ON EACH END OF BOLT.

ALL JOIST HAVING A DEPTH TO THICKNESS RATIO EXCEEDING 6:1 BASED ON NOM. DIMENSIONS SHALL BE BRIDGED WITH SOLID BLOCKING OR DIAGONAL (METAL OR WOOD BRACING. PLACE (1) ROW OF CROSS-BRACING ON ALL SPANS OVER 8'-0" AND (2) ROWS OF BRIDGING ON ALL SPANS OVER 16'-0".

3. G.C. SHALL VERIFY ALL ENGINEERED STRUCTURAL MEMBERS W/ MANUFACTURER TO ENSURE PROPER SIZE, SPACING, LOADING, BEARING WIDTH, AND SUITABILITY OF USE.

STEEL:

1. STRUCTURAL STEEL SHALL HAVE AN ASTM-36 DESIGNATION AND SHALL BE FABRICATED AND ERECTED IN ACCORDANCE WITH AISC SPECIFICATIONS. STRUCTURAL PIPE SHALL BE ASTM A-501 OR EQUAL. ALL CONNECTION OF STEEL SHALL BE WELDED UNLESS OTHERWISE SHOWN, ALL STRUCTURAL STEEL SHALL HAVE ONE SHOP COAT OF RUST INHIBITIVE PAINT. PROVIDE 3/8" THICK STEEL STIFFENER PLATE AT THE CENTER OF BEARINGS.

BEAD AT GYPSUM WALL BOARD EDGES AND CORNER CONDITIONS. PROVIDE 3 COATS MINIMUM OF JOINT COMPOUND FINISH SMOOTH AND READY FOR PAINT.

6. 5/8" WATER RESISTANT GYPSUM WALL BOARD SHALL BE INSTALLED IN BATHROOMS AND ADJACENT TO PLUMBING FIXTURES. 5/8" CEMENT BACKER BOARD SHALL BE INSTALLED AS A BASE FOR FLOOR, WALL, AND CEILING TILE PER MANUFACTURER'S SPECIFICATIONS.

7. PREFABRICATED FIREPLACES AND FLUES SHALL BE U.L. APPROVED AND INSTALLED AS PER MANUFACTURER'S SPECIFICATIONS.

8. SMOKE DETECTORS SHALL BE PROVIDED OUTSIDE EACH SLEEPING AREA AND ON EACH FLOOR LEVEL. SMOKE DETECTORS SHALL BE DIRECT WIRED & INTERCONNECTED N SUCH A MANNER THAT THE ACTUATION OF ONE ALARM WILL ACTIVATE ALL THE ALARMS.

9. NO WATER

UP DN W/D W/D A300 A300 A300 1 A300 4 2 3 3 A202 4 A202 1 3 4 2 A B C 4'1" 4'0" 15'0" 11' 0" 13' 10" 11' 0" F1 F2 F3 11'0" 3'0" 2' 1" 3'0" 3'10" 3'0" 2'1" 1'3" 1'3" 5' 10" 11' 2" 0' 10" 11' 2" 5' 10" EQ EQ 1' 10" 5' 2 1/2" 3' 9" 3' 9" 5' 2 1/2" 1' - 10" EQ EQ 01 01 01 01 02 02 03 F4 03 F3 F2 F1 F4 2'1" 3'0" 3'10" 3'0" 2' 1" 2' 1" 3' 0" 2' 0" 1' 10" 5' 4 1/2" 3' 2 1/2" EQ EQ EQ EQ 3' 2 1/2" 5' 4 1/2" 1' 10" 11' 0" 6' 0" 0' 10" 6' 0" 11' 0" A B E A B E LIVING ROOM KITCHEN CLO. PATIO LIVING ROOM KITCHEN CLO. HALF BATH PATIO 2' 0" 3' - 0" 2' 1" 2' - 0" 2' 0" 1'3" 1'3" C C MIN. 3'0" MIN. 3'0" F5 F5 4' 6" 4'10" 4' 6" STAIR STAIR HALF BATH MIN. 3'0" MIN. 3'0" 4'10" A300 A300 A300 1 A300 4 2 3 3 A202 4 A202 1 3 4 2 A B C 11' - 0" 13' 10" 11' 0" 4'0" 15'0" 35' 10" F6 11' 11" 5' 1" 0' 10" 5' - 1" 11' - 11" 7'7 1/2" 2'4 1/2" 8'0" 3' 4 1/2" 3' 4 1/2" 3' 9 3/4" 3' 9 3/4" 4'1" 03 04 04 03 04 04 04 04 05 05 05 05 EQ EQ EQ EQ EQ EQ EQ EQ F6 3' - 9 3/4" 3' - 9 3/4" 3' 4 1/2" 3' - 4 1/2" 4'1" 7'7 1/2" 2'4 1/2" 8'0" EQ EQ EQ EQ EQ EQ EQ EQ 11' 0" 6' 0" 0' 10" 6' - 0" 11' 0" 3' 0" 4'7 1/2" 4'7 1/2" 3' 0" 3' 0" 4'7 1/2" F6 F6 3' 0" 4'7 1/2" D E E D C B C D E E D B BEDROOM #1 BEDROOM #2 BATH HALL CLOSET CLOSET BEDROOM #1 BEDROOM #2 BATH HALL CLOSET CLOSET 3'0" 3'0" STAIR STAIR GENERAL PLAN NOTES: 1. ALL DIMENSIONS SHALL BE FIELD VERIFIED BY THE CONTRACTOR. 2. ALL DOORS ARE ASSUMED TO BE 4" FROM WALL OR CENTERED IN WALL U.N.O. 3. EXTERIOR STAIR RISE SHALL BE VERIFIED IN FIELD WITH A MAX. RISER HEIGHT OF 7-3/4" AND A MIN. TREAD LENGTH OF 10" (NOSE TO NOSE). 4. ROOF OVERHANG SHALL BE 1'-4" U.N.O. 5.. ALL WALLS AND CEILINGS SHALL RECEIVE 1 LAYER OF 5/8" GYPSUM WALL BOARD, UNLESS NOTED OTHERWISE. ALL JOINTS AND INSIDE CORNERS SHALL RECEIVE TAPE, PROVIDE CORNER
CLOSET OR BIDET SHALL BE SET CLOSER THAN 15 INCHES (381 MM) FROM ITS CENTER TO A SIDE WALL OR OBSTRUCTION OR CLOSER THAN 30 INCHES (762 MM) CENTER TO CENTER TO A SIMILAR FIXTURE. THE CLEAR SPACE IN FRONT OF A WATER CLOSET, LAVATORY, OR BIDET SHALL BE NOT LESS THAN 24 INCHES (610 MM). NO URINAL SHALL BE SET CLOSER THAN 12 INCHES (305 MM) FROM ITS CENTER TO A SIDE WALL OR PARTITION OR CLOSER THAN 24 INCHES (610 MM) CENTER TO CENTER. ENCLOSED SPACE UNDER STAIRS THAT IS ACCESSED BY A DOOR OR ACCESS PANEL SHALL HAVE WALLS, UNDER-STAIR SURFACE AND ANY SOFFITS PROTECTED ON THE ENCLOSED SIDE WITH 1/2-INCH (12.7 MM) GYPSUM BOARD PER R302.7 NEW WALLS 2X6 WOOD FRAMING AT EXTERIOR WALLS AND 2X4 AT INTERIOR WALLS WITH 5/8" GYP. BD.. PROVIDE TYPE-X GYP. BD. AT ALL PLUMBING AREAS GENERAL FRAMING NOTES: THE G.C.
PERFORM
STANDARDS FOR PLUMB & LEVEL: CEILINGS AND SOFFITS: 1/8"
20'-0"
OF NOT LESS
SHALL
ALL NEW WORK TO COMPLY WITH THE FOLLOWING MAXIMUM DEVIATION
PER
AS MEASURED IN ANY DIRECTION BY A METAL STRAIGHT EDGE
THAN 10'-0" IN LENGTH.
1/2"
SAME SIZE AS POST/COLUMN ABOVE. STUD WALLS: 1. SEE DRAWINGS. FLOOR SYSTEM: 1. ALL JOIST SHALL BE LATERALLY SUPPORTED BY 2" MIN. SOLID BLOCKING THE FULL DEPTH OF JOIST, ATTACHMENT
A HEADER, OR RIM JOIST. 2.
DEPTH FOR ALL POSTS/COUMNS. BLOCKING SHALL BE THE
TO
BUILDING ENVELOPE NOTES: INSULATION: 2x6 EXTERIOR WALLS:
ATTIC/ CEILING:
FLOOR
ALL
ENERGY
FENESTRATION U-FACTOR: 0.30 MAXIMUM GLAZED FENESTRATION: 0.30 MAXIMUM DOOR: 0.20 MAXIMUM MAX. WEST FACING AREA: 5%
OPENINGS
WINDOW
THEIR
JAMBS
FRAMING; AND OTHER SOURCES OF AIR LEAKAGE (INFILTRATION AND EXFILTRATION) THROUGH THE BUILDING THERMAL ENVELOPE SHALL BE CAULKED, GASKETED, WEATHERSTRIPPED, WRAPPED, OR OTHERWISE SEALED TO LIMIT UNCONTROLLED AIR MOVEMENT. 1/4" = 1'-0" 1 LEVEL 1 - PROPOSED FLOOR PLAN 1/4" = 1'-0" 2 LEVEL 2 - PROPOSED FLOOR PLAN Scale Date Drawn By Checked By Project Number 1/4" = 1'-0" 2/21/2023 4:31:18 AM A201 PROPOSED FLOOR PLANS DUPLEX ADUS 4965 W POINT LOMA BLVD SAN DIEGO, CA 92107 RG RG 02.28.2023 XXX-XXX APPROVAL STAMP FLOOR PLAN KEYNOTES DOOR SCHEDULE Mark Count Door Description Width Height Thickness 01 4 Door-Exterior-Single-Entry-Half Flat Glass-Wood_Clad 3' 0" 6' 8" 0' - 1 3/8" 02 2 Door-Interior-Single-Pocket-2_Panel-Wood 2' 6" 6' 8" 0' - 1 3/8" 03 4 Single-Flush 2' 6" 6' 8" 0' - 2" 04 6 Single-Flush 2' 8" 6' 8" 0' - 2" 05 4 Door-Interior-Double-Sliding-2_Panel-Wood 2' 10" 6' 8" 0' - 1 3/8" 07 2 Single-Flush 2' 6" 2' 6" 0' - 2" Grand total FLOOR PLAN LEGEND F1 F2 F4 (N) MILLWORK, PLUMBING FIXTURES & APPLIANCE THROUGHOUT TO BE SELECTED BY OWNER. F3 (N) WINDOWS AND DOORS THROUGHOUT TO BE SELECTED BY OWNER. SIZING PER SCHEDULE, SEE DETAIL 1 TO 8 ON A500 (N) WALL, FLOOR AND CEILING FINISH THROUGHOUT TO BE SELECTED BY OWNER. F5 WINDOW SCHEDULE Window Type Count Window Description Width Height A 2 Window-Double-Hung 3' - 0" 3' 0" B 4 Window-Sliding-Double 3' - 0" 1' 8" C 2 Window-Fixed 2' - 6" 9' 0" D 4 Window-Casement-Double 6' - 0" 3' 6" E 6 Window-Casement-Double 4' - 0" 3' 6" Grand total F6 (N) PROVIDE MIN. 20X24 INCHES CLEAR WINDOW OPENING IN EACH BEDROOM WITHOUT A DOOR TO COMPLY WITH EGRESS REQUIREMENTS PER R310. (N) STAIRCASE. REFER TO DETAIL 9 ON A400. ENCLOSED ACCESSIBLE SPACE UNDER STAIRS SHALL HAVE WALLS, UNDER-STAIR SURFACE AND SOFFITS PROTECTED ON THE ENCLOSED SIDE 1/2 INCH GYP. BOARD No. Description Date (N) CONCRETE LANDING. PROVIDE MIN. 1/4" PER FOOT SLOPE AWAY FROM DOOR
R-13
R-30 FIBERGLASS BATT (KRAFT-FACED)
OVER CRAWLSPACE: R-19 FIBERGLASS BATT (KRAFT-FACED)
CONSERVATION:
BETWEEN
AND DOOR ASSEMBLIES AND
RESPECTIVE
AND

SECTION KEYNOTES

S2

S3 (N) WINDOWS PER SCH. TO BE SELECTED BY OWNER. COLOR TO MATCH OTHER EXISTING DWELLINGS ON LOT.

S4

S13 (N) WOOD STAIR AND HANDRAIL.

CEILING PLAN KEYNOTES

CEILING PLAN LEGEND

(N) FIRST FLOOR 0' - 8" (N) SECOND FLOOR 9' - 8" (N) TOP PLATE 17' - 8" 4 A202 1 3 4 2 (N) RIDGE 20' - 8 1/2" 8'0" 1'0" 8'0" MIN. 0'8" S8 S1 8 S5 S4 S2 S8 S1 S8 S5 S7 S2 S4 S4 S4 S4 S4 S4 S4 S4 S4 S4 S3 3 S3 S9 3'6" 3'2" S9 S12 S3 S9 S9 S5 S10 S10 S11 S11 (E) GRADE 0' - 0" A401 1 Sim A401 4 Sim (N) FIRST FLOOR 0' - 8" (N) SECOND FLOOR 9' - 8" (N) TOP PLATE 17' - 8" 3 A202 A B C S5 (N) RIDGE 20' - 8 1/2" 1'4" 3'0" 3'8" 8'0" 1'0" 8'0" 1'8" MIN. 5'0" 9'0" 18" MIN. 1'8" 4'10" S8 S1 S2 S8 S5 S13 S7 S7 S3 S4 S3 S6 S3 S9 S9 S9 S11 S11 S10 (E) GRADE 0' - 0" A401 3 Sim A401 2 Sim 1 3 4 2 A B C LIVING ROOM KITCHEN W/C 2'2" 4' 6" 3'0" 5'0" 3'0" 3' 0" 5' 0" 3' - 0" 3' 0" 3' 0" EQ EQ LIVING ROOM KITCHEN W/C 3'0" 5'0" 3'0" EQ EQ 3' 0" 3' 0" 3' - 0" 5' 0" 3' 0" 2'2" 4' 6" F1 F1 F1 F1 F1 F1 F1 F1 F1 F2 F2 F1 F1 F1 F1 F1 F1 F1 F2 F2 F1 F1 F1 F1 F1 F1 8'-0" 8'-0" C1 C1 STAIR STAIR C/S C2 E C2 15 E 1 3 4 2 A B C EQ EQ EQ EQ EQ EQ EQ EQ EQ EQ EQ EQ F3 F3 F3 F3 F3 F3 F4 F4 8'-0" BEDROOM #1 BATH CLOSET CLOSET BEDROOM #1 BEDROOM #2 BATH HALL CLOSET CLOSET 8'-0" 14 STAIR STAIR S S S C/S E E C2 HALL 14 C/S C2 C3 C3 BEDROOM #2 S C3 C3 X' Y" NEW CEILING HEIGHT S C/S SMOKE ALARM, HARD WIRED AND COMPLY WITH UL 217 KIDDE COMBINATION SMOKE AND CARBON MONOXIDE ALRM BATTERY OPERATED WITH VOICE ALERT AN COMLY WITH UL 217 AND UL 2034 E EXHAUST FAN WITH MIN. 50 CFM POINT OF DISCHARGE SHALL BE AT LEAST FEET FROM ANY OPENINGS. SHALL BE ENERGY STAR COMPLIANT CONTROLLED BY HUMIDSTAT 9.506.1 Scale Date Drawn By Checked By Project Number 1/4" = 1'-0" 2/21/2023 4:31:19 AM A202 PROPOSED REFLECTED CEILING PLANS & SECTIONS DUPLEX ADUS 4965 W POINT LOMA BLVD SAN DIEGO, CA 92107 RG RG 02.28.2023 XXX-XXX
1/4" = 1'-0" 3 SECTION 1 1/4" = 1'-0" 4 SECTION 2 No. Description Date
APPROVAL STAMP
S1 S5 S6 (N) CONCRETE LANDING. PROVIDE MIN. 2% PERCENT SLOPE AWAY FROM DOOR. S7 (N) MILLWORK, PLUMBING FIXTURES & APPLIANCE THROUGHOUT TO BE SELECTED BY OWNER. S8 (N) FRAMING PER STRUCUTRAL DRAWINGS. (N) CONCRETE SLAB AND FOUNDATION PER STRUCTURAL DWGS. FLOOR FINISH TO BE SELECTED BY OWNER. S9 (N) 2X6 EXTERIOR WALL WITH R13 MIN. INSULATION. EXTERIOR FINISH AND COLOR TO MATCH OTHER EXISTING DWELLINGS ON LOT. S10 (N) 2X4 INTERIOR WALLS. S12 (N) TWO 1-HOUR FIRE-RESISTANCE-RATED WALL ASSEMBLIES TESTED IN ACCORDANCE WITH ASTM E119, UL 263 OR SECTION 703.2.2 OF THE CALIFORNIA BUILDING CODE S11 (N) 1/2" GYP. BD. CEILING. 1/4" = 1'-0" 1 LEVEL 1 - REFLECTED CEILING PLAN 1/4" = 1'-0" 2 LEVEL 2 REFLECTED CEILING PLAN LIGHT FIXTURE SCHEDULE Type Mark Count Unit Description Type Lamp Comments F1 23 Recessed Lamp Round - LED 4" Trimless Downlight LED F2 4 Pendant Lamp - Art Glass - LED Standard LED F3 6 Downlight Round - LED LED15FM12-W120 LED F4 2 Sconce Lamp - Cosmetic LED Standard LED Grand total
(N) WOOD FASCIA BOARDS, TYP. PAINT COLOR TO MATCH OTHER EXISTING DWELLINGS ON LOT. (N) GAF CLASS A FIRE-RETARDANT ROOF COVERING (ESR-1475) OR SIMILAR. COLOR TO MATCH OTHER EXISTING DWELLINGS ON LOT. (N) DOORS PER SCH. TO BE SELECTED BY OWNER. COLOR TO MATCH OTHER EXISTING DWELLINGS ON LOT. C1 (N) PROVIDE NEW LED LIGHT FIXTURES THROUGHOUT PER SCH. OR SIMILAR OWNER SELECTED FIXTURES.
C2 (N) PROVIDE SMOKE/CARBON MONOXIDE COMBO ALARM AS INDICATED ON PLAN. C3 (N) PROVIDE SMOKE ALARM IN ALL BEDROOMS.

ELEVATION KEYNOTES

(N) FIRST FLOOR 0' 8" (N) SECOND FLOOR 9' 8" (N) TOP PLATE 17' - 8" 3 A202 A B C (N) RIDGE 20' - 8 1/2" MIN. 0'8" E5 E3 E2 3'6" 3' 2" E4 E3 (E) GRADE 0' 0" (N) FIRST FLOOR 0' - 8" (N) SECOND FLOOR 9' - 8" (N) TOP PLATE 17' - 8" 4 A202 1 3 4 2 (N) RIDGE 20' - 8 1/2" E5 E3 E4 E1 E2 3'2" 3' 6" 3' 2" 3'6" 6'6" 9'0" E4 E3 E3 E3 E3 E3 (E) GRADE 0' - 0" MIN. 0'8" E2 (N) FIRST FLOOR 0' - 8" (N) SECOND FLOOR 9' - 8" (N) TOP PLATE 17' - 8" 4 A202 1 3 4 2 5 (N) RIDGE 20' - 8 1/2" 3'6" 3'2" MIN. 5' 0" E1 E2 E2 E6 E6 E4 E4 E3 E3 E3 E3 E3 E3 E3 (E) GRADE 0' - 0" 1' 8" MIN. 5'0" MIN. 0'8" (N) FIRST FLOOR 0' 8" (N) SECOND FLOOR 9' 8" (N) TOP PLATE 17' - 8" 3 A202 A B C (N) RIDGE 20' - 8 1/2" MIN. 0'8" 3'6" 3'2" E5 E3 E2 E4 E3 (E) GRADE 0' 0" NATURAL LIGHT AND VENTILATON CALCULATION: (E) LIVING ROOM: AREA: 136 SQFT X 8% = 10.88 SQFT (NATURAL LIGHT REQUIRED) AREA: 136 SQFT X 4% = 5.44 SQFT (NATURAL VENTILATION REQUIRED) NATURAL LIGHT PROVIDED (WINDOW) 16.5 SQFT X 2 + (WINDOW) 21.08 SQFT + (WINDOW) 29.33 SQFT = 83.41 SQFT NATURAL VENTILATION PROVIDED (WINDOW) 8.5 SQFT X 2 = 17 SQFT (E) DINING ROOM: AREA: 135 SQFT X 8% = 10.8 SQFT (NATURAL LIGHT REQUIRED) AREA: 135 SQFT X 4% = 5.4 SQFT (NATURAL VENTILATION REQUIRED) NATURAL LIGHT PROVIDED (WINDOW) 16.5 SQFT X 2 + (WINDOW) 21.08 SQFT = 54.08 SQFT NATURAL VENTILATION PROVIDED (WINDOW) 8.5 SQFT X 2 = 17 SQFT (E) KITCHEN: AREA: 181 SQFT X 8% = 14.48 SQFT (NATURAL LIGHT REQUIRED) AREA: 181 SQFT X 4% = 7.24 SQFT (NATURAL VENTILATION REQUIRED) NATURAL LIGHT PROVIDED (WINDOW) 8.5 SQFT + (DOOR) 26.67 SQFT = 35.17 SQFT NATURAL VENTILATION PROVIDED (WINDOW) 8.5 SQFT + (DOOR) 26.67 SQFT = 35.17 SQFT (E) BEDROOM 1: AREA: 125 SQFT X 8% = 10 SQFT (NATURAL LIGHT REQUIRED) AREA: 125 SQFT X 4% = 5 SQFT (NATURAL VENTILATION REQUIRED) NATURAL LIGHT PROVIDED (WINDOW) 16.5 SQFT + (WINDOW) 29.33 SQFT = 45.83 SQFT NATURAL VENTILATION PROVIDED = 8.25 SQFT (E) BEDROOM 2: AREA: 196 SQFT X 8% = 15.68 SQFT (NATURAL LIGHT REQUIRED) AREA: 196 SQFT X 4% = 7.84 SQFT (NATURAL VENTILATION REQUIRED) NATURAL LIGHT PROVIDED (WINDOW) 16.5 SQFT X 2 + (DOOR) 40 SQFT = 73 SQFT NATURAL VENTILATION PROVIDED (WINDOW) 8.25 SQFT X 2 + (DOOR) 20 SQFT = 36.5 SQFT (N) MASTER BEDROOM 3: AREA: 195 SQFT X 8% = 15.6 SQFT (NATURAL LIGHT REQUIRED) AREA: 195 SQFT X 4% = 7.8 SQFT (NATURAL VENTILATION REQUIRED) NATURAL LIGHT PROVIDED (WINDOW) 12 SQFT X 2 = 24 SQFT NATURAL VENTILATION PROVIDED (WINDOW) 6 SQFT X 2 = 12 SQFT (N) BEDROOM 4: AREA: 100 SQFT X 8% = 8 SQFT (NATURAL LIGHT REQUIRED) AREA: 100 SQFT X 4% = 4 SQFT (NATURAL VENTILATION REQUIRED) NATURAL LIGHT PROVIDED (WINDOW) 12 SQFT = 12 SQFT NATURAL VENTILATION PROVIDED (WINDOW) 6 SQFT = 6 SQFT Scale Date Drawn By Checked By Project Number 1/4" = 1'-0" 2/21/2023 4:31:20 AM A300 PROPOSED ELEVATIONS DUPLEX ADUS 4965 W POINT LOMA BLVD SAN DIEGO, CA 92107 RG RG 02.28.2023 XXX-XXX
APPROVAL STAMP
1/4" = 1'-0" 1 SIDE ELEVATION (NORTH) 1/4" = 1'-0" 2 REAR ELEVATION (WEST) 1/4" = 1'-0" 3 FRONT ELEVATION (EAST) 1/4" = 1'-0" 4 SIDE ELEVATION (SOUTH) E1 (N) CERTAINTEED BOARD AND BATTEN VERTICAL VINYL SIDING. FINISH AND COLOR TO MATCH OTHER EXISTING DWELLINGS ON LOT. E4 E3 (N) WINDOWS PER SCH. TO BE SELECTED BY OWNER. COLOR TO MATCH OTHER EXISTING DWELLINGS ON LOT. E2 (N) WOOD FASCIA BOARDS, TYP. PAINT COLOR TO MATCH OTHER EXISTING DWELLINGS ON LOT. E5 (N) GAF CLASS A FIRE-RETARDANT ROOF COVERING (ESR-1475) OR SIMILAR. COLOR TO MATCH OTHER EXISTING DWELLINGS ON LOT. No. Description Date (N) DOORS PER SCH. TO BE SELECTED BY OWNER. COLOR TO MATCH OTHER EXISTING DWELLINGS ON LOT. E6 (N) CONCRETE LANDING. PROVIDE MIN. 1/4" PER FOOT SLOPE AWAY FROM DOOR.
SHIM AS REQUIRED DOOR, SEE DOOR SCHEDULE FOR ADDITIONAL INFORMATION G.W.B. WALL, SEE FLOOR PLAN WOOD DOOR FRAME & TRIM TO MATCH EXISTING WOOD JACK AND KING STUD AS REQUIRED SHIM AS REQUIRED DOOR, SEE DOOR SCHEDULE FOR ADDITIONAL INFORMATION G.W.B. WALL, SEE FLOOR PLAN (2) 2x4 WOOD HEADER WOOD DOOR FRAME & TRIM TO MATCH EXISTING SHIM AS REQUIRED DOOR, SEE DOOR SCHEDULE FOR ADDITIONAL INFORMATION G.W.B. WALL, SEE FLOOR PLAN WOOD HEADER PER STRUCTURAL DWGS WOOD DOOR FRAME & TRIM TO MATCH EXISTING 2x BLOCKING SHIM AS REQUIRED DOOR, SEE DOOR SCHEDULE FOR ADDITIONAL INFORMATION G.W.B. WALL, SEE FLOOR PLAN WOOD DOOR FRAME & TRIM TO MATCH EXISTING 2X2 WOOD WOOD JACK AND KING STUD AS REQUIRED 2X FRAMING SEE STRUCTURAL SHIM/BLOCKING AS REQ. " PLYWOOD SHEATHING BACKER ROD & SEALANT WD. BRICK MOLD REGLET "J" MOLD 5/8" GYP. BOARD RIGID FLASHING FLEXIBLE FLASHING NEW SIDING TO MATCH EXISTING SHIM/BLOCKING AS REQD. 5/8" GYP. BOARD 1/2" PLYWOOD SHEATHING. BUILDING PAPER (WATER RESISTANT BARRIER) 2X FRAMING SEE STRUCTURAL BACKER ROD AND SEALANT NEW SIDING TO MATCH EXISTING SILL FLASHING REGLET "J" MOLD SILL NOSE BACKER ROD AND SEALANT. 2X FRAMING SEE STRUCTURAL INSULATION BACKER ROD AND SEALANT. 1/2" PLYWD SHEATHING. FLEXIBLE FLASHING EXTERIOR SIDING SHIM/BLOCKING AS REQ. WD. BRICK MOLD 5/8" GYP. BOARD RIGID FLASHING WATER RESISTIVE BARRIER FLASHING TAPE METAL DRIP CAP FOLD BACK 1" OF SIDE SPLINE TO CREATE WATER STOP FELT SPLINE OR FLASHING TAPE SILL PAN LAPS OVER SHEATING WRAP Scale Date Drawn By Checked By Project Number As indicated 2/21/2023 4:31:21 AM A400 DETAILS DUPLEX ADUS 4965 W POINT LOMA BLVD SAN DIEGO, CA 92107 RG RG 02.28.2023 XXX-XXX 3" = 1'-0" 2 INTERIOR DOOR JAMB DETAIL SWING 3" = 1'-0" 1 INTERIOR DOOR HEAD DETAIL - SWING 3" = 1'-0" 3 INTERIOR DOOR HEAD DETAIL 3" = 1'-0" 4 INTERIOR DOOR JAMB DETAIL 3" = 1'-0" 7 EXTERIOR WINDOW DETAIL - HEAD 3" = 1'-0" 6 EXTERIOR WINDOW -SILL 3" = 1'-0" 8 EXTERIOR WINDOW DETAIL JAMB 3" = 1'-0" 5 EXTERIOR WINDOW DETAIL FLASHING 1 1/2" = 1'-0" 9 STAIR DETAIL APPROVAL STAMP No. Description Date
NEW DOUBLE TOP PLATE NEW FRAMING WITH RIDGE INSULATION. REF. TO FLOOR PLAN. NEW EXTERIOR SHEATHING WITH BUILDING PAPER NEW SIDING TO MATCH EXISTING. REF. TO ELEVATIONS NEW FLOOR JOIST PER STRUCUTRAL NEW RIM JOIST NEW FLOOR FINISH OVER SHEATHING NEW BOTTOM PLATE NEW 5/4x8 COMPOSITE FASCIA BOARD NEW 2x8 WOOD SUB-FASCIA NEW WOOD BLOCKING @ 16" O.C. NEW 1/4" COMPOSITE PERFORATED SOFFIT NEW ROOF RAFTERS PER STRUCTURAL PLANS NEW 15LB. BUILDING PAPER OVER 5/8" CDX PINE SHEATHING NEW COMP. ROOF SHINGLES NEW DRIP EDGE NEW CONT. BEAD OF SEALANT NEW EXTERIOR FINISH, SEE ELEVATIONS NEW DOUBLE TOP PLATE NEW R-30 FIBERGLASS ATTIC INSULATION NEW 5/8 GYPSUM BOARD CEILING NEW GAF OR EQUAL METAL FLASHING COVER NEW ROOF RAFTERS REF. TO STRUCTURAL DWGS NEW COMP. SHINGLES, TYP. NEW PLYWOOD SHEATHING PER STRUCTURAL,TYP. CUT 2" GAP AT NEW PLYWOOD SHEATHING PER GAF MANUFACTURER SPECIFICATIONS, TYP. NEW RIDGE BOARD. REF. TO STRUCTURAL DWGS. 2" NEW WALL FINISH PER ELEVATIONS NEW WEEP SCREED NEW WATER PROOF MEMBRANE AT FOOTING TO SEAL & PROTECT CONC. STEM, TYP. (N) EXT. (E) PAVED DRIVE WAY NEW FOOTING. REFER TO STRUCTURAL DWGS (N) INT. NEW COMPACTED FILL, TYP NEW VAPOR BARRIER OVER SUBSTRATE NEW FLOOR FINISH MIN. 0'8" Scale Date Drawn By Checked By Project Number 1" = 1'-0" 2/21/2023 4:31:21 AM A401 DETAILS DUPLEX ADUS 4965 W POINT LOMA BLVD SAN DIEGO, CA 92107 RG RG 02.28.2023 XXX-XXX 1" = 1'-0" 1 TYPICAL EXTERIOR WALL DETAIL 1" = 1'-0" 2 TYPICAL EAVES DETAIL 1" = 1'-0" 3 TYPICAL RIDGE DETAIL APPROVAL STAMP No. Description Date 1" = 1'-0" 4 TYPICAL FONDATION DETAIL
Scale Date Drawn By Checked By Project Number 2/21/2023 4:27:33 AM A100 COVER SHEET BACERRA RESIDENCE 5206 RAPHAEL STREET HIGHLAND PARK, CA CP RG 12.20.2022 2021-014 ISSUED FOR PLAN CHECK REVISIONS - 02.17.2022 BACERRA RESIDENCE APPROVAL STAMP ATTIC CONVERSION / ADDITION TO 2 BEDROOMS AND 2 BATHS No. Description Date

DO NOT SCALE DRAWINGS.

ALL DIMENSIONS

TO MAINTAIN SAFE ACCESS FOR ALL CONSTRUCTION AND EMERGENCY PERSONNEL THROUGH AREAS AFFECTED.

THE G.C. OWNER SHALL COORDINATE FINISH FLOOR ELEVATIONS AND GRADE ELEVATIONS WITH THE CIVIL DRAWINGS BY OTHERS BEFORE COMMENCEMENT OF WORK.

THE G.C. OWNER SHALL BE RESPONSIBLE FOR THE DAILY REMOVAL OF DEBRIS FROM THE WORK SITE. THERE SHALL BE NO STORAGE OF EXCESSIVE QUANTITIES OF DIRT DEBRIS, RUBBISH OR WASTE OF ANY KIND ON THE SITE. DAILY BROOM CLEANING AFTER BUILDING IS CLOSED IN.

AT THE COMPLETION OF THE JOB, THE G.C. OWNER SHALL BE RESPONSIBLE FOR OVERALL CLEANUP OF THE SPACE, TOUCHING UP MINOR DAMAGE OR ABRASIONS AND LEAVING SPACE READY FOR FINAL INSPECTION. SPECIFICALLY INCLUDED HEREIN IS THE CLEANUP, TOUCH UP, AND FULL PROPER FUNCTION OF ALL HARDWARE, GLASS WINDOWS, SILLS, AND MULLIONS.

PRESSURE TREATED

R. RISER (S)

RAD. RADIUS

REFR. REFRIGERATOR

REQ. REQUIRED

R.O. ROUGH OPENING

RM. ROOM

R&S ROD & SHELF

SCH. SCHEDULE

S.F. SQUARE FOOT OR FEET

SHT. SHEET

SIM. SIMILAR

S.P. SUMP PIT

SQ. SQUARE

STR. STRUCTURAL

T.B.D. TO BE DETERMINED

T&B TOP & BOTTOM

TEMP. TEMPERATURE

T&G TONGUE AND GROOVE

THK. THICK (NESS)

TR. TREAD (S)

TYP. TYPICAL

U.N.O. UNLESS NOTED OTHERWISE

VERT. VERTICAL (LY)

V.I.F. VERIFY IN FIELD

W/ WITH

W.C. WATER CONDITIONER

WD. WOOD

W.H. WATER HEATER

W.I.C. WALK-IN CLOSET

W.W.F. WELDED WIRE FABRIC C CENTERLINE

FOOT

AND

ACCESS TO ANY WATER OR POWER DISTRIBUTION FACILITIES (POWER POLES, PULL-BOXES, TRANSFORMERS, VAULTS, PUMPS, VALVES, METERS, APPURTENANCES, ETC.) OR TO THE LOCATION OF THE HOOKUP. THE CONSTRUCTION SHALL NOT BE WITHIN TEN FEET OF ANY POWER LINES-WHETHER OR NOT THE LINES ARE LOCATED ON THE PROPERTY. FAILURE TO COMPLY MAY CAUSE CONSTRUCTION DELAYS AND/OR ADDITIONAL EXPENSES.

B. AN APPROVED SEISMIC GAS SHUTOFF VALVE WILL BE INSTALLED ON THE FUEL GAS LINE ON THE DOWNSTREAM SIDE OF THE UTILITY METER AND BE RIGIDLY CONNECTED TO THE EXTERIOR OF THE BUILDING OR STRUCTURE CONTAINING THE FUEL GAS PIPING. (PER ORDINANCE

170,158) (SEPARATE PLUMBING PERMIT IS REQUIRED).

C. PLUMBING FIXTURES ARE REQUIRED TO BE CONNECTED TO A SANITARY SEWER OR TO AN APPROVED SEWAGE DISPOSAL SYSTEM. R306.3

D. KITCHEN SINKS, LAVATORIES, BATHTUBS, SHOWERS, BIDETS, LAUNDRY TUBS AND WASHING MACHINE OUTLETS SHALL BE PROVIDED WITH HOT AND COLD WATER AND CONNECTED TO AN APPROVED WATER SUPPLY. R306.4

E. BATHTUB AND SHOWER FLOORS, WALLS ABOVE BATHTUBS WITH A SHOWERHEAD, AND SHOWER COMPARTMENTS SHALL BE FINISHED WITH A NONABSORBENT SURFACE. SUCH WALL SURFACES SHALL EXTEND TO A HEIGHT OF NOT LESS THAN 6 FEET ABOVE THE FLOOR. R307.2

F. PROVIDE ULTRA-LOW FLUSH WATER CLOSETS FOR ALL NEW CONSTRUCTION. EXISTING SHOWER HEADS AND TOILETS MUST BE ADAPTED FOR LOW WATER CONSUMPTION.

G. WATER HEATER MUST BE STRAPPED TO WALL. SEC. 507.3, LAPC

H. FOR EXISTING POOL ON SITE, PROVIDE AN ALARM FOR DOORS TO THE DWELLING THAT FORM A PART OF THE POOL ENCLOSURE. THE ALARM SHALL SOUND CONTINUOUSLY FOR A MIN.

OF 30 SECONDS WHEN THE DOOR IS OPENED. IT SHALL AUTOMATICALLY RESET AND BE EQUIPPED

WITH A MANUAL MEANS TO DEACTIVATE (FOR 15 SECS. MAX.) FOR A SINGLE OPENING. THE DEACTIVATION SWITCH SHALL BE AT LEAST 54" ABOVE THE FLOOR. 6109 OF LABC

I. FOR EXISTING POOL ON SITE, PROVIDE ANTI – ENTRAPMENT COVER MEETING THE CURRENT ASTM OR ASME FOR THE SUCTION OUTLETS OF THE SWIMMING POOL, TODDLER POOL AND SPA FOR SINGLE FAMILY DWELLINGS PER ASSEMBLY BILL (AB) NO. 2977. 3162B

J. AUTOMATIC GARAGE DOOR OPENERS, IF PROVIDED, SHALL BE LISTED IN ACCORDANCE WITH UL 325. R309.4

K. SMOKE DETECTORS SHALL BE PROVIDED FOR ALL DWELLING UNITS INTENDED FOR HUMAN OCCUPANCY, WHERE A PERMIT IS REQUIRED FOR ALTERATIONS, REPAIRS, OR ADDITIONS. R314.2

L. WHERE A PERMIT IS REQUIRED FOR ALTERATIONS, REPAIRS OR ADDITIONS, EXISTING

DWELLINGS OR SLEEPING UNITS THAT HAVE ATTACHED GARAGES OR FUEL-BURNING APPLIANCES SHALL BE PROVIDED WITH A CARBON MONOXIDE ALARM IN ACCORDANCE WITH SECTION R315.2.

CARBON MONOXIDE ALARMS SHALL ONLY BE REQUIRED IN THE SPECIFIC DWELLING UNIT OR

SLEEPING UNIT FOR WHICH THE PERMIT WAS OBTAINED. R315.2

M. EVERY SPACE INTENDED FOR HUMAN OCCUPANCY SHALL BE PROVIDED WITH NATURAL

LIGHT BY MEANS OF EXTERIOR GLAZED OPENINGS IN ACCORDANCE WITH SECTION R303.1 OR SHALL BE PROVIDED

THE BUILDING SHALL BE EQUIPED WITH AN AUTOMATIC RESIDENTIAL FIRE SPRINKLER SYSTEM IN ACCORDANCE WITH SECTION R313.3 OR NFPA-13D. THE SPRINKLER SYSTEM SHALL BE APPROVED BY PLUMBING DIVISION PRIOR TO INSTALLTION. 1 CONSTRUCTION SHALL COMPLY WITH THE FOLLOWING CODES: 2019 CALIFORNIA ADMINISTRATIVE CODE (CAC) 2019 CALIFORNIA BUILDING CODE (CBC) 2019 CALIFORNIA RESIDENTIAL CODE (CRC) 2019 CALIFORNIA ELECTRICAL CODE (CEC) 2019 CALIFORNIA MECHANICAL CODE (CMC) 2019 CALIFORNIA PLUMBING CODE (CPC) 2019 CALIFORNIA ENERGY CODE (CEEC) 2019 (CURRENTLY VACANT) 2019 CALIFORNIA HISTORICAL BUILDING CODE (CHBC) 2019 CALIFORNIA FIRE CODE (CFC) 2019 CALIFORNIA EXISTING BUILDING CODE (CEBC) 2019 CALIFORNIA GREEN BUILDING STANDARDS CODE (CALGREEN) 2019 CALIFORNIA REFERENCE STANDARDS CODE ATTIC CONVERSION ADDITION TO 2 BEDROOMS AND 2 BATHS. NEW WORK INCLUDES REPLACEMENT OF ALL EXISTING WINDOWS AND DOORS, NEW MECHANICAL, ELECTRICAL AND PLUMBING SYSTEMS THROUGHOUT DWELLING. ASSESSOR'S PARCEL NO: 5469-004-009 LOT NO: 5 BLK. L ZONE: R1-1 PROPERTY TYPE: SFD YEAR BUILT 1907 FIRE SPRINKLER: YES CONSTRUCTION TYPE: V-B (E) NUMBER OF STORY: 1 (N) NUMBER OF STORY: 2 (E) HEIGHT: 19'-0" (N) HEIGHT" 19'-0" (E) FIRST FLOOR AREA 1,040 SQFT (N) SECOND FLOOR AREA 603 SQFT (N) TOTAL HOUSE AREA 1,643 SQFT (E) LOT AREA 1040 / 4,784.7 = 22% (N) LOT COVERAGE NO CHANGE A 1 BUILDING STRUCTURAL GRID LINES- DETAIL NUMBER SHEET NUMBER SECTION NUMBER SHEET NUMBERELEVATION NUMBER SHEET NUMBERSINGLE ELEVATION IDENTIFICATION: ELEVATION NUMBER INTERIOR ELEVATION IDENTIFICATION: SHEET NUMBER AREA OF REVISION BULLETIN (OR ADDENDUM): REVISION NUMBER FINISH FLOOR ELEVATION SYMBOL +482.67' F.F.E. ROOM NAME ROOM NUMBER STAIR/RAMP DIRECTION: ARROW POINTS UP STAIR/RAMP UP ##% SLOPE ALIGN ALIGN KEYNOTE SYMBOL DOOR NUMBER WALL SYMBOL TYPE #--1 ROOM NAME # 1001 C CALIFORNIA BUILDING CODE GENERAL REQUIREMENTS A.
CONSTRUCTION
THE
SHALL NOT RESTRICT A FIVE-
CLEAR
UNOBSTRUCTED
WITH ARTIFICIAL LIGHT THAT IS ADEQUATE TO PROVIDE AN AVERAGE ILLUMINATION OF 6 FOOT-CANDLES OVER THE AREA OF THE ROOM AT A HEIGHT OF 30 INCHES ABOVE THE FLOOR LEVEL. R303.1 N. A COPY OF THE EVALUATION REPORT AND/OR CONDITIONS OF LISTING SHALL BE MADE AVAILABLE AT THE JOB SITE A.B. ANCHOR BOLT A.F.F. ABOVE FINISHED FLOOR A.F.G. ABOVE FINISHED GRADE A.H.U. AIR HANDLING UNIT ALUM. ALUMINUM APX. APPROXIMATE (LY) B.H. BULKHEAD B.R.L. BUILDING RESTRICTION LINE BSMT. BASEMENT C.M.U. CONCRETE MASONRY UNIT CLO. CLOSET COL. COLUMN CONC. CONCRETE CONT. CONTINUOUS CNTR. COUNTER DBL. DOUBLE DIA. ∅ DIAMETER DN. DOWN D.W. DISHWASHER DWG. DRAWING ELEV. ELEVATION E.P. ELECTRIC PANEL EX. EXISTING FIN. FINISH F.O. FRAMED OPENING FT. FOOT OR FEET FTG. FOOTING H.R. HANDRAIL HOR. HORIZONTAL (LY) IN. INCH (ES) GALV. GALVANIZED G.R. GUARDRAIL G.W.B. GYPSUM WALL BOARD LBS. POUNDS LIN. LINEN MAS. MASONRY MAX. MAXIMUM MFR. MANUFACTURER (S) MIN. MINIMUM M.O. MASONRY OPENING NOM. NOMINAL 0.C. ON CENTER O.D. OUTSIDE DIAMETER O.H. OVERHEAD PERP. PERPENDICULAR POLY. POLYETHYLENE P.R. POWDER ROOM PROP. PROPOSED P.S.F POUNDS PER SQUARE FOOT P.S.I. POUNDS PER SQUARE INCH P.T.
ARE FROM FINISHED FACE, U.N.O. G.C. OWNER TO VERIFY ALL DIMENSIONS AND CONDITIONS. NOTIFY THE DESIGNER IMMEDIATELY OF ANY DISCREPANCIES BETWEEN DRAWINGS AND ACTUAL FIELD CONDITIONS PRIOR TO THE START OF ANY WORK. IT IS THE RESPONSIBILITY OF THE G.C. OWNER TO REVIEW THE DRAWINGS AND VERIFY ALL DIMENSIONS, AND NOTIFY THE DESIGNER OF ANY DISCREPANCIES PRIOR TO COMMENCEMENT OF WORK. THE G.C. / OWNER SHALL VISIT THE SITE AND BECOME THOROUGHLY ACQUAINTED WITH THE EXISTING CONDITIONS AND THE EXTENT OF THE WORK AS PRESENTED IN THE CONTRACT DOCUMENTS PRIOR TO THE COMMENCEMENT OF WORK. ALL WORK SHALL BE PERFORMED TO CONFORM TO THE APPLICABLE EDITION OF THE INTERNATIONAL RESIDENTIAL CODE INCLUDING ALL LOCAL AMENDMENTS. ALL ELECTRICAL INSTALLATIONS SHALL CONFORM TO NATIONAL ELECTRICAL CODE AND ALL APPLICABLE LAWS AND REGULATIONS. THE G.C. / OWNER SHALL VERIFY AND COORDINATE SPACE REQUIREMENTS FOR ALL MECHANICAL PLUMBING EQUIPMENT PRIOR TO CONSTRUCTION. ALL MECHANICAL PLUMBING INSTALLATIONS SHALL CONFORM TO INTERNATIONAL MECHANICAL PLUMBING CODE AND ALL APPLICABLE LAWS AND REGULATIONS. ALL WORK SHALL BE DONE IN A SKILLED AND WORKMANLIKE MANNER. FIXTURES AND EQUIPMENT SHALL BE SET IN ACCORDANCE WITH THE DIMENSIONS LOCATIONS PROVIDED IN THE CONSTRUCTION DOCUMENTS. ALL BUILDING MATERIALS, FIXTURES, AND EQUIPMENT SHALL BE INSTALLED IN ACCORDANCE WITH MANUFACTURER'S SPECIFICATIONS AND LOCAL BUILDING CODE REQUIREMENTS. THE G.C. / OWNER SHALL BE RESPONSIBLE FOR THE COORDINATION OF ALL TRADES ON THE JOB WHETHER THEY ARE HIS OR HER OWN SUBCONTRACTORS OR UNDER SEPARATE CONTRACT. THE G.C. OWNER SHALL TAKE PRECAUTIONS
OWNER: BACERRA RESIDENCE 5206 RAPHAEL ST. LOA ANGELES,
(310)
DESIGNER & DRAFTING: C.P. DESIGN SERVICES CRISTIAN POLONI 1445 HUNTINGTON DRIVE #200 SOUTH PASADENA, CA. 91030 OFFICE: (626) 799-2775 FAX: (626) 799-2884 cristian@cpdesignbuildstudio.com STRUCTURAL ENGINEER: ML ENGINEERING MAURICIO LOPEZ 1391 N. 3RD AVENUE UPLAND,
(909)949-0923 FAX: (909)
Email: MLEngineering1@aol.com MECHANICAL TITLE 24: PERFECT DESIGN & ENGINEERING 2416 W. VALLEY BLVD. ALHAMBRA, CA 91803 perfectaaa2@gmail.com (626) 289-8808 GENERAL CONTRACTOR: OWNER/BUILDER Scale Date Drawn By Checked By Project Number As indicated 2/21/2023 4:27:34 AM A101 PROJECT DATA BACERRA RESIDENCE
RAPHAEL STREET HIGHLAND PARK, CA CP RG 12.20.2022 2021-014 SHEET NUMBER SHEET NAME A100 COVER SHEET A101 PROJECT DATA A102 CALGREEN MANDATORY CHECKLIST A103 CALGREEN MANDATORY CHECKLIST A200 EXISTING AND PROPOSED SITE PLANS A201 EXISTING FLOOR PLAN AND FRONT ELEVATION A202 PROPOSED FLOOR PLANS A204 PROPOSED REFLECTED CEILING PLANS A300 PROPOSED ELEVATIONS A301 PROPOSED INTERIOR ELEVATIONS A400 PROPOSED SECTIONS A500 DETAILS A501 DETAILS A502 DETAILS S0.1 GENERAL STRUCTURAL NOTES S0.2 GENERAL STRUCTURAL NOTES S1.1 PROPOSED FOUNDATION PLAN S2.1 PROPOSED ATTIC FLOOR FRAMING PLAN S2.2 PROPOSED ROOF FRAMING PLAN SD-1 STRUCTURAL DETAILS SD-2 STRUCTURAL DETAILS SD-3 STRUCTURAL DETAILS T-1 TITLE 24 T-2 TITLE 24 T-3 TITLE 24 T-4 TITLE 24 PROJECT DIRECTORY
APPLICABLE CODES PROJECT SCOPE PROJECT DATA LOCATION & VICINITY MAP SYMBOLS GENERAL NOTES FIRE PROTECTION CITY REQUIRED NOTES ABBREVIATIONS APPROVAL STAMP PROJECT SITE No. Description Date 1 Revision 1 Date 1 1 1 1
CA 90042
909-6214
CA. 91786
946-4813
5206
SHEET INDEX

KEYNOTES

DN DN DN PROPERTY LINE 40.00 PROPERTY LINE 40.00 PROPERTY LINE 130.00 PROPERTY LINE130.00 SIDE SETBACK 5' - 0" 27' 0" SDE SETBACK 8' 0" REAR SETBACK 41'11" 44'8" FRONT SETBACK 33'5" 2 2 2 2 1 3 4 8 8 5 7 6 6 6 6 6 10 5 5 5 5 1" 1'-0" 1" 1'-0" 1" 1'-0" 1" 1'-0" 11---PROPERTY LINE 40.00 PROPERTY LINE 40.00 PROPERTY LINE130.00 PROPERTY LINE 130.00 2 2 1 3 5 5 9 6 6 6 6 6 2 2 4 12 7 1/2" 1'-0" 7 1/2" 1'-0" 7 1/2" / 1'-0" 7 1/2" 1'-0" Scale Date Drawn By Checked By Project Number 1/8" = 1'-0" 2/21/2023 4:27:35 AM A200
BACERRA RESIDENCE
CP RG
1/8" = 1'-0" 2 SITE - PROPOSED APPROVAL STAMP
EXISTING AND PROPOSED SITE PLANS
5206 RAPHAEL STREET HIGHLAND PARK, CA
12.20.2022 2021-014
1/8" = 1'-0" 1 SITE EXISTING 1 (E) GARAGE PARKING.
(E) LANDSCAPE.
(E) CONC. STEPS TO REMAIN. 4 (E) WOOD STAIR AND HANDRAIL TO REMAIN. 5 (E) ROOF TO BE MODIFIED. PATCH AND REPAIR AS REQUIRED. 6 (E) FENCE TO REMAIN. 7 (N) TREX COMPOSITE DECK AND HANDRAIL (ESR-3168) OR SIMILAR APPROVED PRODUCT. 8 (N) GAF CLASS A COMPOSITE ROOF SHINGLE (ESR-1475). REUSE ROOF FRAMING FROM DEMO. SEE REPORT ON A502. 9 (E) ROOF TO REMAIN. 10 (E) ADJACENT GARAGE. No. Description Date 1 Revision 1 Date 1 11 (N) RIDGE BOARD. SEE DETAIL 3 ON A501 AND STRUCTURAL DWGS 12 (E) DECK TO BE REPLACED WITH NEW PER CONSTRUCTION PLAN. 1 1 1 1
2
3

PROCEDURES. NOTIFY THE DESIGNER IMMEDIATELY FOR FURTHER INSTRUCTIONS, SHOULD MATERIALS, SYSTEMS OR CONDITIONS DIFFER FROM THOSE INDICATED ON DRAWINGS.

1.03 QUALITY ASSURANCE A. WORK OF THIS SECTION SHALL BE CAREFULLY PERFORMED BY WORKMAN SKILLED IN DEMOLITION OF BUILDINGS, USING APPROPRIATE TOOLS AND EQUIPMENT, UNDER SUPERVISION OF A COMPETENT FOREMAN AT ALL TIMES.

1.04 COORDINATION

A. PRIOR TO COMMENCEMENT OF WORK OF THIS SECTION, CONTACT THE OWNER TO CONFIRM THAT ALL ITEMS IDENTIFIED AS OWNER PROPERTY HAVE BEEN REMOVED OR CLEARLY MARKED.

B. COORDINATE DEMOLITION WITH OTHER TRADES TO ENSURE CORRECT SEQUENCE, LIMITS, AND METHODS OF PROPOSED DEMOLITION. SCHEDULE WORK TO CREATE LEAST POSSIBLE INCONVENIENCE TO OPERATION OF THE BUILDING.

2.01 HANDLING OF MATERIALS

3.02 DEMOLITION

A. DO NOT THROW MATERIALS FROM HEIGHTS. USE RAMPS OR CHUTES.

B. REMOVE EXISTING CONSTRUCTION ONLY TO EXTENT NECESSARY FOR PROPER INSTALLATION OF NEW CONSTRUCTION AND JUNCTION WITH EXISTING WORK. CUT BACK FINISHED SURFACES TO STRAIGHT, PLUMB OR LEVEL LINES AS REQUIRED.

C. WHERE OPENINGS ARE CUT OVERSIZED OR IN IMPROPER LOCATION, REPLACE THE EXCESS REMOVED MATERIAL AS INSTRUCTED BY THE DESIGNER AT NO ADDITIONAL COST TO THE OWNER.

3.03 CUTTING EXISTING CONCRETE

A. CUTTING OF EXISTING CONCRETE SHALL BE DONE BY EXPERIENCED WORKMEN FAMILIAR WITH THE REQUIREMENTS AND SPACE NECESSARY FOR PLACING CONCRETE. ALL CUTTING SHALL BE DONE UNDER THE DIRECT SUPERVISION OF THE CONTRACTOR. IN GENERAL, CUTTING OF CONCRETE SHALL BE SOON WITH CONCRETE CUTTING WHEELS AND HANDCHISELS. CARE SHALL BE TAKEN NOT TO SHATTER CONCRETE THAT IS TO REMAIN.

B. EXTENT OF CUTTING OF CONCRETE SHALL BE DETERMINED BY FIGURED DIMENSIONS ON DRAWINGS. ANY CONCRETE REMOVED IN EXCESS OF AMOUNT INDICATED, SPECIFIED OR REQUIRED, SHALL BE REPLACED WITH CONCRETE AS DIRECTED BY THE DESIGNER AT EXPENSE OF CONTRACTOR.

C. PRIOR TO CUTTING OR CORING CONCRETE, ASCERTAIN LOCATION OF UTILITIES WHICH MIGHT BE EMBEDDED THEREIN OR IN CLOSE PROXIMITY AND TAKE NECESSARY MEASURES TO PROTECT THEM.

3.04 REMOVAL OF EXISTING PLUMBING AND ELECTRICAL EQUIPMENT AND SERVICES

A. CONTRACTOR SHALL REMOVE FROM BUILDING AND SITE ALL EXISTING PLUMBING AND ELECTRICAL EQUIPMENT FIXTURES AND SERVICES NOT INDICATED FOR REUSE AND NOT NECESSARY FOR COMPLETION OF WORK SHALL DISCONNECT, AND, WHEN NECESSARY, CAP SERVICES TO THEIR PORTION OF WORK PRIOR TO COMMENCEMENT OF, OR DURING WORK OF, THIS SECTION.

3.05 REMOVAL OF OTHER MATERIALS

A. MASONRY: CUT BACK TO JOINT LINES AND REMOVE OLD MORTAR WITHOUT DAMAGING UNITS TO REMAIN. ALLOW SPACE FOR REPAIRS TO BACKING WHERE APPLICABLE.

B. WOODWORK: CUT OR REMOVE TO A JOINT OR PANEL LINE. UNDAMAGED, REMOVED MATERIAL, MAY BE REUSED.

C. ROOFING: REMOVE AS REQUIRED, INCLUDING ROOF INSULATION, FLASHING, AND RELATED ITEMS CONNECTED THERETO. AT PENETRATIONS THROUGH EXISTING ROOFING, TRIM CUT EDGES BACK TO SOUND ROOFING WITH OPENINGS OF MINIMUM SIZE NECESSARY TO RECEIVE NEW WORK.

D. SHEET METAL: REMOVAL BACK TO JOINT, LAP, OR CONNECTION. SECURE LOOSE AND UNFASTENED ENDS OR EDGES AND MAKE WATERTIGHT.

E. GLASS: REMOVE BROKEN OR DAMAGED GLASS AND CLEAN REBATES AND STOPS OF SETTING MATERIALS.

3.06 CLEANING

A. CLEAN ALL EXISTING MATERIALS TO REMAIN, USING SKILLED EXPERIENCE WORKMEN UNDER SUPERVISION, USING APPROPRIATE TOOLS AND MATERIALS.

B. PROTECT ADJACENT MATERIALS AND EQUIPMENT DURING CLEANING FUNCTIONS.

3.07 PATCHING

A. PATCHING MATERIALS WHICH ARE TO REMAIN WHEN DAMAGED BY THIS WORK. FINISH MATERIAL AND APPEARANCE OF PATCH OR REPAIR WORK SHALL MATCH EXISTING CONTIGUOUS MATERIALS AND FINISHES IN ALL RESPECTS, AS APPROVED BY THE DESIGNER.

3.08 CLEAN--UP/ DISPOSAL

A. PARKING TRUCKS AT BUILDING SHALL BE COORDINATED WITH THE CITY OF LOS ANGELES

B. DEBRIS SHALL BE CONVEYED BY TRUCKS DESIGNED TO TRANSPORT RUBBISH

KEYNOTES

1 (E) PROTECT WALLS AND FLOOR TO REMAIN DURING DEMO. REFER

3.01 GENERAL A. PROTECTION:

AND THEFT.

1. DO NOT BEGIN DEMOLITION UNTIL TEMPORARY PARTITIONS BARRICADES, WARNING SIGNS AND OTHER FORMS OF PROTECTION ARE INSTALLED.

2. PROVIDE ALL SAFEGUARDS, INCLUDING WARNING SIGNS AND LIGHTS, BARRICADES, AND THE LIKE, FOR PROTECTION OF THE OCCUPANTS AND PUBLIC DURING DEMOLITION.

B. NOISE, DUST AND WATER CONTROL: REFER TO SUPPLEMENTARY CONDITIONS.

F. MODULAR MATERIALS SUCH AS CEILING, RESILIENT AND CERAMIC TILE: REMOVE TO A NATURAL JOINT NEW CONSTRUCTION. AFTER REMOVING FLOORING MATERIALS, CLEAN SUBSTRATES OF OLD CEMENT AND ADHESIVE.

G. GYPSUM BOARD: REMOVE TO A JOINT LINE ON A SUPPORT.

H. PLASTER: SAW CUT PLASTER ON STRAIGHT LINES BUT LEAVE A MINIMUM OF 2" OF FIRMLY ATTACHED METAL LATH WHERE TYING TO NEW LATH/PLASTER. WORK NOT MENTIONED TO BE REMOVED THAT INTERFERES WITH NEW CONSTRUCTION SHALL BE CUT TO CLEAN--CUT LINES TO PROVIDE FOR PROPER INTERFACE WITH N EW CONSTRUCTION, OR PATCHING AND REPAIR, AS REQUIRED.

J. EXISTING FACILITIES, EQUIPMENT OR WORK THAT IS NOT INDICATED TO BE REMOVED, BUT INTERFERES WITH NEW CONSTRUCTION, SHALL BE CUT NEATLY AND REMOVED AS REQUIRED TO FACILITATE INSTALLATION OF NEW WORK, AND THEN REPLACED AND FINISHED AS SPECIFIED FOR NEW WORK.

BACERRA RESIDENCE

5206 RAPHAEL STREET HIGHLAND PARK, CA CP RG 12.20.2022 2021-014

EXISTING FLOOR PLAN AND FRONT ELEVATION

DN 1 3 4 2 A B C D EXISTING LIVING EXISTING DINING EXISTING KITCHEN EXISTING BEDROOM EXISTING BEDROOM EXISTING BATH EXISTING CLOSET EXISTING LAUNDRY 11' 2" 3' 0" 12' 10" 6'0" 30'8" 8'0" EXISTING CLOSET EXISTING PORCH 4 1 2 3 6 7 8 12' 4" 5'9" 3' 6" 27' - 0" 44'8" (E) FIRST FLOOR 0' - 0" (E) ATTIC FLOOR 9' - 8" T.O. Fnd. Wall -0' - 8" (E) ROOF RIDGE 19' - 0" 1 3 4 2 5 9 3 9 3 10 4 DEMOLITION NOTES: 1.01 SECTION INCLUDES A. FURNISHING ALL LABOR, MATERIALS AND EQUIPMENT NECESSARY FOR DEMOLITION, DISMANTLING, CUTTING AND ALTERATIONS AS INDICATED, SPECIFIED, AND REQUIRED FOR COMPLETION OF THE CONTRACT, FOR NEW CONSTRUCTION, MODERNIZATION AND REHABILITATION OF THE PROJECT AS APPLICABLE. FOLLOWING IS A PARTIAL LIST: 1. PROTECTING EXISTING WORK TO REMAIN. 2. CLEANING SOILED MATERIALS THAT ARE TO REMAIN. 3. DISCONNECTING AND CAPPING UTILITIES. 4. REMOVING DEBRIS AND EQUIPMENT. 5. REMOVAL OF ITEMS, AS INDICATED ON DRAWINGS. 6. SALVAGEABLE ITEMS TO BE RETAINED BY THE OWNER. 1.02 PROJECT CONDITIONS A. DRAWINGS MAY NOT INDICATE IN DETAIL ALL DEMOLITION WORK TO BE CARRIED OUT. CONTRACTOR SHALL CAREFULLY EXAMINE EXISTING WORK TO DETERMINE FULL EXTENT OF DEMOLITION REQUIRED FOR COMPLETED WORK TO CONFORM TO DRAWINGS AND SPECIFICATIONS. B. EXISTING WORK TO REMAIN THAT IS DAMAGED DURING AND BY DEMOLITION OPERATIONS, SHALL BE REPAIRED OR REPLACED TO SATISFACTION OF THE DESIGNER/ INSPECTOR AT NO COST TO THE OWNER. C. CONTRACTOR SHALL BE SOLELY RESPONSIBLE FOR DAMAGE RESULTING FROM INADEQUATE OR IMPROPER CONSTRUCTION, SHORING, BRACING OR SUPPORT
A. ALL EXISTING ITEMS TO BE REUSED OR RETAINED BY THE OWNER SHALL BE REMOVED BY THE USE OF PROPER TOOLS TO INSURE AGAINST DAMAGE. B. SALVAGE ITEMS TO BE RETAINED BY THE OWNER AND NOT INCORPORATED INTO WORK SHALL BE DELIVERED TO THE OWNER CLEANED, PACKAGED AND LABELED, UNLESS OTHERWISE INSTRUCTED. C. ITEMS TO BE REUSED SHALL BE STORED ON SITE AND PROTECTED FROM DAMAGE, SOILING
C. SAFETY: IF AT ANY TIME SAFETY OF EXISTING CONSTRUCTION APPEARS TO BE ENDANGERED, CONTRACTOR SHALL TAKE CONSTRUCTION; CEASE OPERATIONS AND IMMEDIATELY NOTIFY THE DESIGNER. DO NOT RESUME DEMOLITION UNTIL THE DESIGNER INSTRUCTIONS ARE RECEIVED.
AND DEBRIS. C. DEBRIS SHALL BE DAMPENED BY FOG WATER SPRAY WHEN IT IS TRANSPORTED FROM ITS LOCATION TO TRUCK. AMOUNT OF WATER SHALL BE CONTROLLED TO INSURE AGAINST WATER PONDING ATE AREA OF DEBRIS PICK--UP. D. DEBRIS PICK--UP AREA SHALL BE KEPT BROOM--CLEAN AND SHALL BE FLUSHED WITH CLEAN WATER, WHEN NECESSARY, TO REMOVE SOIL. E. DEBRIS, WASTE, AND REMOVAL MATERIALS, OTHER THAN ITEMS TO BE SALVAGED, ARE CONTRACTOR'S PROPERTY FOR LEGAL DISPOSAL OFF SITE. CONTINUOUSLY CLEAN--UP AND REMOVE THESE ITEMS AND DO NOT ALLOW TO ACCUMULATE IN BUILDING(S) OR ON SITE. EXISTING WALLS TO REMAIN (E) 2X4 WOOD CONSTRUCTION WALLS TO BE DEMOLISHED Scale Date Drawn By Checked By Project Number As indicated 2/21/2023 4:27:36
A201
AM
3/16" = 1'-0" 1 LEVEL 1 - EXISTING
STAMP
APPROVAL
3/16" = 1'-0" 2 EXISTING FRONT ELEVATION (NORTH)
WALL LEGEND
TO LEGEND. 2 (E) ROOF TO BE MODIFIED FOR NEW DORMERS. 4 (E) REMOVE ALL PLUMBING FIXTURES & APPLIANCES. PREP OPENINGS FOR NEW FIXTURES. 5 (E) WOOD STAIR AND HANDRAIL TO REMAIN. 6 3 (E) REMOVE ALL WINDOWS AND DOORS THROUGHOUT. PREP OPENINGS FOR NEW PER SCH. (E) FLOOR TO REMAIN THROUGHOUT. PROTECT IN PLACE DURING CONSTRUCTION. 8 (E) PORTION OF ATTIC FLOOR TO BE REMOVED FOR NEW STAIRCASE PER PROPOSED PLAN. 9 (E) EXTERIOR WALL AND SIDING TO REMAIN. 10 (E) CONCRETE FOUNDATION WALL. 7 (E) DECK TO BE REPLACED WITH NEW PER CONSTRUCTION PLAN. No. Description Date 1 Revision 1 Date 1 1 1

BUILDING ENVELOPE NOTES:

INSULATION:

2x6 EXTERIOR WALLS: R-15 FIBERGLASS BATT (KRAFT-FACED) w/ VAPOR BARRIER

ATTIC ROOF LINE: R-30 FIBERGLASS BATT (KRAFT-FACED)

FLOOR OVER CRAWLSPACE: R-19 FIBERGLASS BATT (KRAFT-FACED)

ALL FACED BATT INSULATION SHALL HAVE THE FACED MATERIAL TO THE INSIDE OF THE DWELLING WITH SUBSTANTIAL CONTACT WITH THE FINISH MATERIAL.

ENERGY CONSERVATION: FENESTRATION U-FACTOR: 0.30 MAXIMUM GLAZED FENESTRATION: 0.30 MAXIMUM DOOR: 0.20 MAXIMUM

ALL JOINTS, SEAMS, PENETRATIONS; SITE-BUILT WINDOWS, DOORS, AND SKYLIGHTS; OPENINGS

BETWEEN WINDOW AND DOOR ASSEMBLIES AND THEIR RESPECTIVE JAMBS AND FRAMING; AND OTHER SOURCES OF AIR LEAKAGE (INFILTRATION AND EXFILTRATION) THROUGH THE BUILDING THERMAL ENVELOPE SHALL BE CAULKED, GASKETED, WEATHERSTRIPPED, WRAPPED, OR OTHERWISE SEALED TO LIMIT UNCONTROLLED AIR MOVEMENT.

PLAN NOTES:

1. ALL DIMENSIONS SHALL BE FIELD VERIFIED BY THE CONTRACTOR.

2. ALL DOORS ARE ASSUMED TO BE 4" FROM WALL OR CENTERED IN WALL U.N.O.

3. EXTERIOR STAIR RISE SHALL BE VERIFIED IN FIELD WITH A MAX. RISER HEIGHT OF 7-3/4" AND A MIN. TREAD LENGTH OF 10" (NOSE TO NOSE).

4. ROOF OVERHANG SHALL BE 1'-4" U.N.O.

5.. ALL WALLS AND CEILINGS SHALL RECEIVE 1 LAYER OF 5/8" GYPSUM WALL BOARD, UNLESS NOTED

OTHERWISE. ALL JOINTS AND INSIDE CORNERS SHALL RECEIVE TAPE, PROVIDE CORNER BEAD AT GYPSUM WALL BOARD EDGES AND CORNER CONDITIONS. PROVIDE 3 COATS MINIMUM OF JOINT COMPOUND FINISH SMOOTH AND READY FOR PAINT.

6. 5/8" WATER RESISTANT GYPSUM WALL BOARD SHALL BE INSTALLED IN BATHROOMS AND ADJACENT

TO PLUMBING FIXTURES. 5/8" CEMENT BACKER BOARD SHALL BE INSTALLED AS A BASE FOR FLOOR,

WALL, AND CEILING TILE PER MANUFACTURER'S SPECIFICATIONS.

7. PREFABRICATED FIREPLACES AND FLUES SHALL BE U.L. APPROVED AND INSTALLED AS PER MANUFACTURER'S SPECIFICATIONS.

8. SMOKE DETECTORS SHALL BE PROVIDED OUTSIDE EACH SLEEPING AREA AND ON EACH FLOOR LEVEL. SMOKE DETECTORS SHALL BE DIRECT WIRED & INTERCONNECTED N SUCH A MANNER THAT THE ACTUATION OF ONE ALARM WILL ACTIVATE ALL THE ALARMS.

THE STRUCTURE SHALL BE AIR OR KILN-DRIED AND SHALL CONTAIN NO MORE THAN 19% MOISTURE. STRUCTURAL LUMBER: DOUGLAS FIR #2 OR BETTER FY-1200

P.S.I. MIN. E-1,500,000.

3. ALL WOOD IN DIRECT CONTACT WITH SOIL, STEEL, CONCRETE MASONRY EARTH, OR WITHIN 8" OF GRADE SHALL BE PRESSURE TREATED. WOOD JOISTS OR THE BOTTOM OF A WOOD STRUCTURAL FLOOR WITHIN 18 INCHES OR WOOD GIRDERS WITHIN 12 INCHES OF GRADE SHALL BE PRESSURE TREATED. ALL LUMBER USED FOR DECKING OR DECK FRAMING SHALL BE PRESSURE

3. ENGINEERED RIM BOARDS SHALL BE SUBSTITUTED WITH LVL RIM BOARDS WHERE LEDGER BOARD ATTACHMENT IS REQUIRED.

4. CONVENTIONAL WOOD BEAMS HEADERS IN WALLS SHALL HAVE ONE CONTINUOUS

4

1 (E) PROTECT WALLS AND FLOOR TO REMAIN DURING CONSTRUCTION. REFER TO LEGEND

2 (N) PROVIDE NEW WOODEN STAIRCASE.

(N) MILLWORK, PLUMBING FIXTURES & APPLIANCE THROUGHOUT.

5

USE.

6

STEEL:

1. STRUCTURAL STEEL SHALL HAVE AN ASTM-36 DESIGNATION AND SHALL BE FABRICATED AND ERECTED IN ACCORDANCE WITH AISC SPECIFICATIONS. STRUCTURAL PIPE SHALL BE ASTM A-501 OR EQUAL. ALL CONNECTION OF STEEL SHALL BE WELDED UNLESS OTHERWISE SHOWN, ALL STRUCTURAL STEEL SHALL HAVE ONE SHOP COAT OF RUST INHIBITIVE PAINT. PROVIDE 3/8" THICK STEEL STIFFENER PLATE AT THE CENTER OF BEARINGS.

(E) WOOD STAIR AND HANDRAIL TO REMAIN.

3 (N) WINDOWS AND DOORS THROUGHOUT. PER SCHEDULE. SEE DETAIL 1 TO 8 ON A500 (E) FLOOR TO REMAIN THROUGHOUT. PROTECT IN PLACE DURING CONSTRUCTION.

7 (N) TREX COMPOSITE DECK AND HANDRAIL (ESR-3168) OR SIMILAR APPROVED PRODUCT. SEE REPORT ON A502.

8 (N) WALL, FLOOR AND CEILING FINISH THROUGHOUT TO BE SELECTED BY OWNER.

9 (N) PROVIDE SMOKE DETECTOR AT ALL BEDROOMS.

10 (N) PROVIDE SMOKE AND CARBON MONOXIDE ALARM AT DINING AREA.

FLOOR PLAN LEGEND

UP DN DN A300 A300 A300 1 A300 4 2 3 1 A400 2 A400 3 A400 4 A400 1 3 4 2 A B C D 6'0" 30'8" 8'0" 11' 2" 3' 0" 12' 10" 3'6" REF. DW RANGE 5 A301 2 KITCHEN ELEVATION 2 1 KITCHEN ELEVATION 1 4 2 2 2 2 1 4 3 (E) BACK PORCH (E) FRONT PORCH 7 1 2 3 8 6 2' 2" 2 C/S S S 10 9 E A A B C B B C B D B B B E 196 SF (E) BEDROOM 2 105 125 SF (E) BEDROOM 1 108 136 SF (E) LIVING ROOM 101 135 SF (E) DINING ROOM 102 181 SF (N) KITCHEN 103 (E) BATH 106 (E) CLO. 107 CLO. 104 11 11 12 EQ 15" MIN. EQ 3'7" 3' 6" 1 1---A300 A300 A300 1 A300 4 2 3 1 A400 2 A400 3 A400 4 A400 1 3 4 2 A B C D 11' 2" 3' - 0" 12' 10" 6'0" 30'8" 8'0" 27' 0" S S 9 E E 10' 4 1/2" 11' 6 1/2" 2 2 2 2 6 7 8' 3" 10' 0" 8' - 9" 8' 3" 10' 0" 8' - 9" 9'10" 17'0" 9'10" (N) WALK-IN-CLO. 203 187 SF (N) MASTER BEROOM 3 204 100 SF (N) BEDROOM 4 201 (N) MASTER BATH 205 (N) HALL 200 (N) BATH 202 3'6" 9'2" 3'6" 6' 0" (N) CLO. 206 G G EQ EQ 6'5 1/2" 2'6" E G G E EQ EQ EQ EQ 2'9" 9'4" 4' 11" 2'0" 120.00° 11 11 11 C/S 9 1 3'2" 12 3' 6" 1' - 6" 1' - 6"1' 6" 3'7" 13 14 (E) ATTIC 78 SQFT 14 13 (E) ATTIC 74 SQFT 13 14 (E) ATTIC 78 SQFT 14 13 (E) ATTIC 74 SQFT 1 1 1 1 1---GENERAL FRAMING NOTES: THE G.C. SHALL PERFORM ALL NEW WORK TO COMPLY WITH THE FOLLOWING MAXIMUM DEVIATION STANDARDS FOR PLUMB & LEVEL: CEILINGS AND SOFFITS: 1/8" PER 20'-0" AS MEASURED IN ANY DIRECTION BY A METAL STRAIGHT EDGE OF NOT LESS THAN 10'-0" IN LENGTH. OTHER BUILDING SURFACES NOT OTHERWISE DESIGNATED BUT SPECIFICALLY INCLUDING WALLS AND FLOORS: 1/8" PER 10'-0" AS MEASURED IN ANY DIRECTION BY A METAL STRAIGHT EDGE OF NOT LESS THAN 10'-0" IN LENGTH. LUMBER: 1. UNLESS OTHERWISE NOTED, WOOD CONSTRUCTION SHALL MEET CONSTRUCTION STANDARDS AND MATERIAL SPECIFICATIONS AS SET FORTH BY THE AMERICAN PLYWOOD ASSOCIATION FOR RESIDENTIAL CONSTRUCTION. 2. ALL LUMBER INCORPORATED INTO
TREATED
LEDGERS,
1.
UNLESS NOTED OTHERWISE.
BEAMS, & HEADERS:
EXTERIOR DECKS SHALL HAVE P.T. LEDGERS MATCHING DEPTH OF JOISTS JOISTS SHALL BE ATTACHED W/ GALVANIZED METAL JOIST HANGERS.
BOLTS STAGGERED 16" O.C.
U.N.O.
EACH END OF BOLT.
2. LEDGER BOARDS SHALL BE BOLTED TO SOLID WOOD FRAMING WITH 1/2" DIAMETER THROUGH
T&B
BOLT INSTALLATION SHALL INCLUDE OVERSIZE WASHERS ON
1/2"
5.
BLOCKING SHALL BE THE SAME SIZE AS POST/COLUMN ABOVE. STUD WALLS: 1. SEE DRAWINGS. FLOOR SYSTEM: 1. ALL JOIST SHALL BE LATERALLY SUPPORTED BY 2" MIN. SOLID BLOCKING THE FULL DEPTH OF JOIST, ATTACHMENT TO A HEADER, OR RIM JOIST. 2. ALL JOIST HAVING A DEPTH TO THICKNESS RATIO EXCEEDING 6:1 BASED ON NOM. DIMENSIONS SHALL BE BRIDGED WITH SOLID BLOCKING OR DIAGONAL (METAL OR WOOD BRACING. PLACE (1) ROW OF CROSS-BRACING ON ALL SPANS OVER 8'-0" AND (2) ROWS OF BRIDGING ON ALL SPANS OVER 16'-0". 3. G.C. SHALL VERIFY ALL ENGINEERED STRUCTURAL MEMBERS W/ MANUFACTURER TO ENSURE PROPER SIZE, SPACING, LOADING, BEARING WIDTH, AND SUITABILITY OF
LAYER OF
PLYWOOD BETWEEN EACH TWO 2X'S TO MATCH DEPTH OF WALLS. ALL HEADERS AND BEAMS SHALL BE GLUED AND NAILED. SEE HEADER SCHEDULE FOR HEADER SIZES
ALL HEADER AND BEAM BEARINGS SHALL CONTINUE TO FOOTING AND/OR FOUNDATION AT FULL WIDTH OF BEAM. PROVIDE SOLID BLOCKING THROUGH FLOOR JOISTS/TRUSS DEPTH FOR ALL POSTS/COUMNS.
NEW WALLS (N) 2X4 WOOD CONSTRUCTION WITH 5/8" GYP. BD. PROVIDE TYPE-X GYP. BD. AT ALL PLUMBING AREAS EXISTING WALLS TO REMAIN (E) 2X4 WOOD CONSTRUCTION WALLS S C/S SMOKE ALARM, HARD WIRED AND ALSO EQUIPED WITH BATTERY BACK UP AND LOW BATTERY SIGNAL KIDDE COMBINATION SMOKE AND CARBON MONOXIDE ALARM BATTERY OPERATED WITH VOICE ALERT E EXHAUST FAN WITH MIN. 50 CFM POINT OF DISCHARGE SHALL BE AT LEAST FEET FROM ANY OPENINGS. SHALL BE ENERGY STAR COMPLIANT CONTROLLED BY HUMIDSTAT 9.506.1 3/16" = 1'-0" 1 LEVEL 1 - PROPOSED FLOOR PLAN 3/16" = 1'-0" 2 LEVEL 2 - PROPOSED FLOOR PLAN Scale Date Drawn By Checked By Project Number As indicated 2/21/2023 4:27:38 AM A202 PROPOSED FLOOR PLANS BACERRA RESIDENCE 5206 RAPHAEL STREET HIGHLAND PARK, CA CP RG 12.20.2022 2021-014 APPROVAL STAMP KEYNOTES DOOR SCHEDULE Mark Count Door Description Width Height Thickness 1 1 Door-Exterior-Single-Entry-Half Flat Glass-Wood_Clad 3' 0" 6' 8" 0' - 1 3/8" 2 8 Single-Flush 2' 8" 6' 8" 0' - 2" 3 1 Door-Sliding-Pella-Impervia-XO_OX 6' 0" 6' 8" 0' - 5" 4 1 Door-Interior-Double-Sliding-2_Panel-Wood 6' 0" 6' 8" 0' - 1 3/8" 5 1 2_Panels_French_Style_In_Swing_Doors_Milgard_C 650_Ultra_Series_Door 4' 0" 6' 8" 6 1 Door-Interior-Double-Sliding-2_Panel-Wood 5' 0" 6' 8" 0' - 1 3/8" 7 1 Door-Interior-Single-Pocket-2_Panel-Wood 2' 8" 6' 8" 0' - 1 3/8" 8 1 Single-Flush 2' 6" 3' 6" 0' - 2" Grand total
WINDOW SCHEDULE Window Type Count Window Description Width Height A 2 Fixed 5' 4" 5' - 6" B 7 Window-Single-Hung 2' 10" 5' - 6" C 2 Fixed 4' 6" 5' - 6" D 1 Window-Casement-Double 2' 10" 3' - 0" E 3 Window-Sliding-Double 3' 0" 2' - 0" G 4 Window-Double-Hung 3' 0" 4' - 0" Grand total 11 (N) PROVIDE MIN. 20X24 CLEAR WINDOW OPENING IN EACH BEDROOM WITHOUT A DOOR TO COMPLY WITH EGRESS REQUIREMENTS PER R310. No. Description Date 1 Revision 1 Date 1 12 (N) STAIRCASE. REFER TO DETAIL 9 A500. HANDRAIL SHALL NOT BE LESS THAN 1.25" AND NO MORE THAN 2" CROSS-SECTIONAL DIMENSION HAVING A SMOOTH SURFACE WITH NO SHARP CORNERS (1014.3, R311.7.8.3) ENCLOSED ACCESSIBLE SPACE UNDER STAIRS SHALL HAVE WALLS, UNDER-STAIR SURFACE AND SOFFITS PROTECTED ON THE ENCLOSED SIDE 1/2 INCH GYP. BOARD 1 1 13 (N) PROVIDE MIN. 20X30 ACCESS OPENING INTO ATTIC. ACCESS MUST BE LOCATED IN A HALLWAY OR OTHER READILY ACCESSIBLE LOCATION PER R807.1. 14 (N) IF NOT EXISTING, PROVIDE ATTIC VENTILATION OF 1/150 OF THE AREA PER R806.2. 1 1

KEYNOTES

1 (E) FRAMING AND SIDING TO REMAIN. PROTECT IN PLACE AND KEEP WATER TIGHT DURING CONSTR.

2 (E) CONCRETE FOUNDATION WALL. PROVIDE ANTI-GRAFFITI FINISH WITHIN THE FIRST 9 FEET, MEASURED FROM GRADE, AT EXTERIOR WALLS AND DOORS.

3 (N) WINDOWS AND DOOR THROUGHOUT PER SCH.

4 (E) WOOD STAIR AND HANDRAIL TO REMAIN.

5 (N) GAF CLASS A COMPOSITE ROOF SHINGLE (ESR-1475). REUSE ROOF FRAMING FROM DEMO.

6 (N) FRAMING AND SIDING TO MATCH LOWER FLOOR.

7 (E) EXISTING ROOF TO REMAIN. IF NOT EXISTING, PROVIDE ATTIC VENTILATION OF 1/150 OF THE AREA PER R806.2. SEE PLAN FOR ATTIC SQFT

8 (N) TREX COMPOSITE DECK AND HANDRAIL (ESR-3168) OR SIMILAR APPROVED PRODUCT. GAURDRAIL TO BE 42" MIN. HIGH AND @ 4" O.C. MAX.

9 (E) UNDERFLOOR ACCESS TO REMAIN. G.C./BUILDER TO V.I.F., IF NOT EXISTING, PROVIDE UNDER FLOOR VENTILATION OF 1/150 OF THE AREA PER R408.1. (APPROX. 1/150 X 1040 = 7 SQFT VENTILATION REQ'D)

T

SAFETY GLAZING

APPROVAL STAMP

HIGHLAND PARK, CA CP RG 12.20.2022

2021-014

(E) FIRST FLOOR 0' - 0" (E) ATTIC FLOOR 9' - 8" T.O. Fnd. Wall -0' - 8" (N) TOP PLATE 17' - 2" 1 A400 4 A400 A B C D (N) ROOF RIDGE 19' - 0" 1 2 7 5 4 3 3 3 7 6 6 6 5'6" 1' 6" T T 4'0" 3'0" MIN. 3'6" 4" MAX. 0' - 3 1/4" 8 9 (E) FIRST FLOOR 0' 0" (E) ATTIC FLOOR 9' 8" T.O. Fnd. Wall -0' - 8" (N) TOP PLATE 17' 2" 2 A400 3 A400 1 3 4 2 (N) ROOF RIDGE 19' 0" 1 5 3 2 4 6 3 3 7 T T 3'0" 4'0" 1' 6" 5'6" 7 20'0" 8' 0" (E) FIRST FLOOR 0' 0" (E) ATTIC FLOOR 9' 8" T.O. Fnd. Wall -0' - 8" (N) TOP PLATE 17' 2" 2 A400 3 A400 1 3 4 2 (N) ROOF RIDGE 19' 0" 1 2 3 6 5 3 8 7 6 6 2' 0" 5'0" T T 7 (E) FIRST FLOOR 0' - 0" (E) ATTIC FLOOR 9' - 8" T.O. Fnd. Wall -0' - 8" (N) TOP PLATE 17' - 2" 1 A400 4 A400 A B C D (N) ROOF RIDGE 19' - 0" 1 2 4 1 6 6 3 5 7 6 7 5'0" 2' 0" 1 5'0" 2'0" 1 1'6" 5'6" 1 7 1 NATURAL LIGHT AND VENTILATON CALCULATION: (E) LIVING ROOM: AREA: 136 SQFT X 8% = 10.88 SQFT (NATURAL LIGHT REQUIRED) AREA: 136 SQFT X 4% = 5.44 SQFT (NATURAL VENTILATION REQUIRED) NATURAL LIGHT PROVIDED (WINDOW) 16.5 SQFT X 2 + (WINDOW) 21.08 SQFT + (WINDOW) 29.33 SQFT = 83.41 SQFT NATURAL VENTILATION PROVIDED (WINDOW) 8.5 SQFT X 2 = 17 SQFT (E) DINING ROOM: AREA: 135 SQFT X 8% = 10.8 SQFT (NATURAL LIGHT REQUIRED) AREA: 135 SQFT X 4% = 5.4 SQFT (NATURAL VENTILATION REQUIRED) NATURAL LIGHT PROVIDED (WINDOW) 16.5 SQFT X 2 + (WINDOW) 21.08 SQFT = 54.08 SQFT NATURAL VENTILATION PROVIDED (WINDOW) 8.5 SQFT X 2 = 17 SQFT (E) KITCHEN: AREA: 181 SQFT X 8% = 14.48 SQFT (NATURAL LIGHT REQUIRED) AREA: 181 SQFT X 4% = 7.24 SQFT (NATURAL VENTILATION REQUIRED) NATURAL LIGHT PROVIDED (WINDOW) 8.5 SQFT + (DOOR) 26.67 SQFT = 35.17 SQFT NATURAL VENTILATION PROVIDED (WINDOW) 8.5 SQFT + (DOOR) 26.67 SQFT = 35.17 SQFT (E) BEDROOM 1: AREA: 125 SQFT X 8% = 10 SQFT (NATURAL LIGHT REQUIRED) AREA: 125 SQFT X 4% = 5 SQFT (NATURAL VENTILATION REQUIRED) NATURAL LIGHT PROVIDED (WINDOW) 16.5 SQFT + (WINDOW) 29.33 SQFT = 45.83 SQFT NATURAL VENTILATION PROVIDED = 8.25 SQFT (E) BEDROOM 2: AREA: 196 SQFT X 8% = 15.68 SQFT (NATURAL LIGHT REQUIRED) AREA: 196 SQFT X 4% = 7.84 SQFT (NATURAL VENTILATION REQUIRED) NATURAL LIGHT PROVIDED (WINDOW) 16.5 SQFT X 2 + (DOOR) 40 SQFT = 73 SQFT NATURAL VENTILATION PROVIDED (WINDOW) 8.25 SQFT X 2 + (DOOR) 20 SQFT = 36.5 SQFT (N) MASTER BEDROOM 3: AREA: 195 SQFT X 8% = 15.6 SQFT (NATURAL LIGHT REQUIRED) AREA: 195 SQFT X 4% = 7.8 SQFT (NATURAL VENTILATION REQUIRED) NATURAL LIGHT PROVIDED (WINDOW) 12 SQFT X 2 = 24 SQFT NATURAL VENTILATION PROVIDED (WINDOW) 6 SQFT X 2 = 12 SQFT (N) BEDROOM 4: AREA: 100 SQFT X 8% = 8 SQFT (NATURAL LIGHT REQUIRED) AREA: 100 SQFT X 4% = 4 SQFT (NATURAL VENTILATION REQUIRED) NATURAL LIGHT PROVIDED (WINDOW) 12 SQFT = 12 SQFT NATURAL VENTILATION PROVIDED (WINDOW) 6 SQFT = 6 SQFT Scale Date Drawn By Checked By Project Number As indicated 2/21/2023 4:27:40 AM A300 PROPOSED ELEVATIONS BACERRA RESIDENCE 5206 RAPHAEL STREET
3/16" = 1'-0" 1 SIDE ELEVATION (EAST) 3/16" = 1'-0" 2 FRONT ELEVATION (NORTH) 3/16" = 1'-0" 3 REAR ELEVATION (SOUTH) 3/16" = 1'-0" 4 SIDE ELEVATION (WEST)
No. Description Date 1 Revision 1 Date 1 1
ELEVATION LEGEND 1 1 1 1 1 1 1 1 1 1 1 1 1
TEMPERED
1 1 1
9' 0" 7' 6" 1' 0" 3' 6" 1 3'0" 3'0" 1'6" 2' 6" 2' 0" 3' 1" 2' - 0" 2' 7" 2' 0" 2' 0" 9' 0" 11' 8" 1 2' 0" 2' 6" 1'6" 3'0" Scale Date Drawn By Checked By Project Number 1/2" = 1'-0" 2/21/2023 4:27:41 AM A301 PROPOSED INTERIOR ELEVATIONS BACERRA RESIDENCE 5206 RAPHAEL STREET HIGHLAND PARK, CA Checker Author 12.20.2022 2021-014 1/2" = 1'-0" 1 KITCHEN ELEVATION 1 1/2" = 1'-0" 2 KITCHEN ELEVATION 2 APPROVAL STAMP KEYNOTES 1 (N) MILLWORK, PLUMBING FIXTURES & APPLIANCE TO BE SELECTED BY OWNER. No. Description Date

KEYNOTES

1 (E) FRAMING AND SIDING TO REMAIN. PROTECT IN PLACE AND KEEP WATER TIGHT DURING CONSTR.

2 (E) CONCRETE FOUNDATION WALL.

3 (N) WINDOWS AND DOOR THROUGHOUT PER SCH.

4 (N) STAIRCASE. REFER TO DETAIL 9 A500. HANDRAIL SHALL NOT BE LESS THAN 1.25" AND NO MORE THAN 2" CROSS-SECTIONAL DIMENSION HAVING A SMOOTH SURFACE WITH NO SHARP CORNERS (1014.3, R311.7.8.3) ENCLOSED ACCESSIBLE SPACE UNDER STAIRS SHALL HAVE WALLS, UNDER-STAIR SURFACE AND SOFFITS PROTECTED ON THE ENCLOSED SIDE 1/2 INCH GYP. BOARD

5 (N) GAF CLASS A COMPOSITE ROOF SHINGLE (ESR-1475). REUSE ROOF FRAMING FROM DEMO. PROVIDE NEW INSULATION PER BUILDING ENVELOPE NOTES ON A202.

6 (N) FRAMING AND SIDING TO MATCH LOWER FLOOR. PROVIDE NEW INSULATION PER BUILDING ENVELOPE NOTES ON A202.

7 (E) EXISTING ROOF TO REMAIN. PATCH REPLACE ROOF INSULATION AS REQUIRED PER BUILDING ENVELOPE NOTES ON A202.

8 (E) FLOOR TO REMAIN THROUGHOUT. PROTECT IN PLACE DURING CONSTRUCTION. PATCH REPLACE ROOF INSULATION AS REQUIRED PER BUILDING ENVELOPE NOTES ON A202.

BACERRA RESIDENCE

5206 RAPHAEL STREET HIGHLAND PARK, CA

PROPOSED SECTIONS

(E) FIRST FLOOR 0' - 0" (E) ATTIC FLOOR 9' - 8" T.O. Fnd. Wall -0' - 8" (N) TOP PLATE 17' - 2" 2 A400 3 A400 1 3 4 2 (N) ROOF RIDGE 19' - 0" 7'6" 9'8" (E) DINING ROOM 102 4'0" 3'0" (N) BEDROOM 4 201 (N) HALL 200 (N) MASTER BEROOM 3 204 (E) BATH 106 (E) FIRST FLOOR 0' 0" (E) ATTIC FLOOR 9' 8" T.O. Fnd. Wall -0' - 8" (N) TOP PLATE 17' 2" 1 A400 4 A400 1'10" 7'6" 9'8" A B C D (N) ROOF RIDGE 19' 0" 7'6" 5 (E) PORCH 8 7 6 6 4 2 8 6 (N) KITCHEN 103 8 (N) MASTER BATH 205 (N) HALL 200 (N) WALK-IN-CLO. 203 CLO. 104 2'0" 5'0" HEADROOM 6'8 23/32" 3'0" (E) FIRST FLOOR 0' - 0" (E) ATTIC FLOOR 9' - 8" T.O. Fnd. Wall -0' - 8" (N) TOP PLATE 17' - 2" 1 A400 4 A400 A B C D (N) ROOF RIDGE 19' - 0" 5 8 8 7 6 1 1 2 (E) BEDROOM 1 108 (E) BATH 106 (E) BEDROOM 2 105 (N) BEDROOM 4 201 (N) BATH 202 (N) CLO. 206 (E) ATTIC (E) ATTIC (E) FIRST FLOOR 0' - 0" (E) ATTIC FLOOR 9' - 8" T.O. Fnd. Wall -0' - 8" (N) TOP PLATE 17' 2" 2 A400 3 A400 1'10" 7'6" 9' 8" 1 3 4 2 (N) ROOF RIDGE 19' 0" 5 8 8 6 2 2 1 1 8 (E) BEDROOM 2 105 (N) KITCHEN 103 (N) MASTER BATH 205 (E) ATTIC (E) ATTIC Scale Date Drawn By Checked By Project Number 3/16" = 1'-0" 2/21/2023 4:27:42 AM A400
CP RG
APPROVAL
3/16" = 1'-0" 1 SECTION 1 3/16" = 1'-0" 2 SECTION 2 3/16" = 1'-0" 3 SECTION 3 3/16" = 1'-0" 4 SECTION 4
12.20.2022 2021-014
STAMP
No. Description Date 1 Revision 1 Date 1 1 1 1 1 1 1 1
SHIM AS REQUIRED DOOR, SEE DOOR SCHEDULE FOR ADDITIONAL INFORMATION G.W.B. WALL, SEE FLOOR PLAN WOOD DOOR FRAME & TRIM TO MATCH EXISTING WOOD JACK AND KING STUD AS REQUIRED SHIM AS REQUIRED DOOR, SEE DOOR SCHEDULE FOR ADDITIONAL INFORMATION G.W.B. WALL, SEE FLOOR PLAN (2) 2x4 WOOD HEADER WOOD DOOR FRAME & TRIM TO MATCH EXISTING SHIM AS REQUIRED DOOR, SEE DOOR SCHEDULE FOR ADDITIONAL INFORMATION G.W.B. WALL, SEE FLOOR PLAN WOOD HEADER PER STRUCTURAL DWGS WOOD DOOR FRAME & TRIM TO MATCH EXISTING 2x BLOCKING SHIM AS REQUIRED DOOR, SEE DOOR SCHEDULE FOR ADDITIONAL INFORMATION G.W.B. WALL, SEE FLOOR PLAN WOOD DOOR FRAME & TRIM TO MATCH EXISTING 2X2 WOOD WOOD JACK AND KING STUD AS REQUIRED 2X FRAMING SEE STRUCTURAL SHIM/BLOCKING AS REQ. " PLYWOOD SHEATHING BACKER ROD & SEALANT WD. BRICK MOLD REGLET "J" MOLD 5/8" GYP. BOARD RIGID FLASHING FLEXIBLE FLASHING NEW SIDING TO MATCH EXISTING SHIM/BLOCKING AS REQD. 5/8" GYP. BOARD 1/2" PLYWOOD SHEATHING. BUILDING PAPER (WATER RESISTANT BARRIER) 2X FRAMING SEE STRUCTURAL BACKER ROD AND SEALANT NEW SIDING TO MATCH EXISTING SILL FLASHING REGLET "J" MOLD SILL NOSE BACKER ROD AND SEALANT. 2X FRAMING SEE STRUCTURAL INSULATION BACKER ROD AND SEALANT. 1/2" PLYWD SHEATHING. FLEXIBLE FLASHING EXTERIOR SIDING SHIM/BLOCKING AS REQ. WD. BRICK MOLD 5/8" GYP. BOARD RIGID FLASHING WATER RESISTIVE BARRIER FLASHING TAPE METAL DRIP CAP FOLD BACK 1" OF SIDE SPLINE TO CREATE WATER STOP FELT SPLINE OR FLASHING TAPE SILL PAN LAPS OVER SHEATING WRAP Scale Date Drawn By Checked By Project Number As indicated 2/21/2023 4:27:43 AM A500 DETAILS BACERRA RESIDENCE
STREET
PARK, CA CP RG 12.20.2022 2021-014 3" = 1'-0" 2 INTERIOR DOOR JAMB DETAIL SWING No. Description Date 3" = 1'-0" 1 INTERIOR DOOR HEAD DETAIL - SWING 3" = 1'-0" 3 INTERIOR DOOR HEAD DETAIL 3" = 1'-0" 4 INTERIOR DOOR JAMB DETAIL 3" = 1'-0" 7 EXTERIOR WINDOW DETAIL - HEAD 3" = 1'-0" 6 EXTERIOR WINDOW -SILL 3" = 1'-0" 8 EXTERIOR WINDOW DETAIL JAMB 3" = 1'-0" 5 EXTERIOR WINDOW DETAIL FLASHING 1 1/2" = 1'-0" 9 STAIR DETAIL
5206 RAPHAEL
HIGHLAND
APPROVAL STAMP
EXISTING SIDING EXISTING FRAMING EXISTING TOP PLATE NEW FRAMING WITH RIDGE INSULATION. REF. TO FLOOR PLAN. NEW EXTERIOR SHEATHING WITH BUILDING PAPER NEW SIDING TO MATCH EXISTING. REF. TO ELEVATIONS EXISTING ROOF RAFTER BEYOND EXISTING ATTIC FLOOR JOIST 8" CONT. BASE FLASHING 5/4x8 COMPOSITE FASCIA BOARD 2x8 WOOD SUB-FASCIA 2x4 WOOD BLOCKING @ 16" O.C. 1/4" COMPOSITE PERFORATED SOFFIT ROOF RAFTERS PER STRUCTURAL PLANS 15LB. BUILDING PAPER OVER 5/8" CDX PINE SHEATHING COMP. ROOF SHINGLES DRIP EDGE CONT. BEAD OF SEALANT EXTERIOR FINISH, SEE ELEVATIONS NEW DOUBLE TOP PLATE R-30 FIBERGLASS ATTIC INSULATION 5/8 GYPSUM BOARD CEILING NEW GAF OR EQUAL METAL FLASHING COVER NEW ROOF RAFTERS REF TO STRUCTURAL DWGS NEW COMP. SHINGLES, TYP. NEW PLYWOOD SHEATHING PER STRUCTURAL,TYP. CUT 2" GAP AT NEW PLYWOOD SHEATHING PER GAF MANUFACTURER SPECIFICATIONS, TYP. NEW RIDGE BOARD. REF. TO STRUCTURAL DWGS. 2" Scale Date Drawn By Checked By Project Number 1" = 1'-0" 2/21/2023 4:27:43 AM A501 DETAILS BACERRA RESIDENCE 5206 RAPHAEL STREET HIGHLAND PARK, CA CP RG 12.20.2022 2021-014 No. Description Date 1" = 1'-0" 1 TYPICAL EXTERIOR WALL DETAIL 1" = 1'-0" 2 TYPICAL EAVES DETAIL 1" = 1'-0" 3 TYPICAL RIDGE DETAIL APPROVAL STAMP

Turn static files into dynamic content formats.

Create a flipbook
Issuu converts static files into: digital portfolios, online yearbooks, online catalogs, digital photo albums and more. Sign up and create your flipbook.
REVIT WORK SAMPLES by R GREENE - Issuu