Commercial Projects

Page 1

COMMERCIAL PROJECTS
OLGA BUKUR

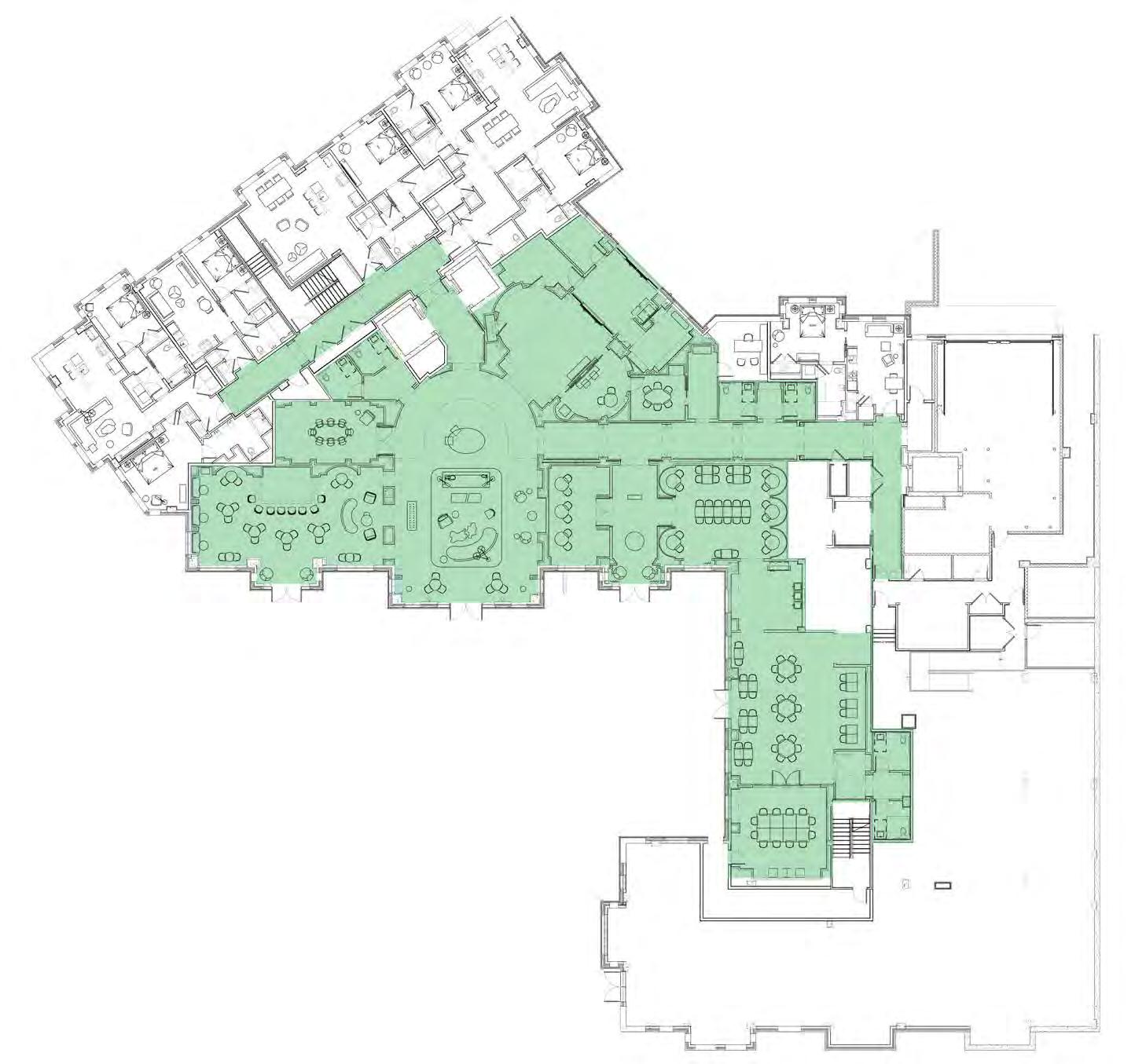
SENIOR LIVING FACILITY, WASHINGTON, D.C.

BASEMENT AMENITIES

changing rooms

swimming pool

gym

hair & nail salon

movie theater

pet room

public bathrooms

FIRST FLOOR AMENITIES

A vestibule

B reception desk

C storage

D mail room

E discovery center

F conference room

G public bathroom

H public hallway

J dining room

K buffet

L hostess station

M grab & go

N living room

O bar

P library

MEMORY CARE AMENITIES

living room

dining room

activity room

fitness room

communal laundry

life enrichment office

public bathrooms

A B C D E F H H H K L M N H H G G G G G G J J J O P

MULTI-FAMILY BUILDING, LINCOLN SQUARE

A B C D E I J F G H H H H K L M N A lobby B reception desk C dry cleaning D mechanical room E mid-rise mail room F mid-rise hallway G package room H elevator i low-rise hallway J low-rise mail room K service hallway L break room M storage N restroom

MULTI-FAMILY BUILDING, WASHINGTON, D.C.

MULTI-FAMILY BUILDING, MURRAY HILL

HOTEL, MIAMI BEACH

ARCHITECT ESPAÑOLA HOTEL MIAMI 07.02.2018 20 0F 22 F&B SPACE 1,188 sq.ft HOTEL COMMON AREA 5,227 sq.ft GROUND FLOOR PLAN D A HOTEL LOBBY B LIVING ROOM C ADA W.C. D CORTYARD BACK OF HOUSE ST STORAGE EL ELECTRICAL CLOSET Area calculations are based on measurments from demising walls centerline 12 GUEST ROOMS2,612 sq.ft BACK OF HOUSE F&B SPACE 4,360 sq.ft THIRD FLOOR / R OOF F LOOR PLAN A SPA DECK1,084 sq.ft B SUN DECK1,057 sq.ft C BAR DECK 1,057 sq.ft F&B SPACE 1,188 sq.ft HOTEL COMMON AREA 5,227 sq.ft GROUND FLOOR PLAN D A HOTEL LOBBY B LIVING ROOM C ADA W.C. D CORTYARD BACK OF HOUSE ST STORAGE EL ELECTRICAL CLOSET Area calculations are based on measurments from demising walls centerline 12 GUEST ROOMS 2,612 sq.ft ESPAÑOLA HOTEL MIAMI 07.02.2018 20 0F 22 F&B SPACE 1,188 sq.ft HOTEL COMMON AREA 5,227 sq.ft GROUND FLOOR PLAN D A HOTEL LOBBY B LIVING ROOM C ADA W.C. D CORTYARD BACK OF HOUSE ST STORAGE EL ELECTRICAL CLOSET Area calculations are based on measurments from demising walls centerline 12 GUEST ROOMS 2,612 sq.ft ESPAÑOLA HOTEL MIAMI F&B SPACE 1,188 sq.ft HOTEL COMMON AREA 5,227 sq.ft GROUND FLOOR PLAN D A HOTEL LOBBY B LIVING ROOM C ADA W.C. D CORTYARD BACK OF HOUSE ST STORAGE EL ELECTRICAL CLOSET Area calculations are based on measurments from demising walls centerline 12 GUEST ROOMS 2,612 sq.ft food & beverage 5,548 sq.f hotel common area 5,227 sq.f back of house

PRIVATE BEACH CLUB, NEW JERSEY SHORE

A foyer B prep kitchen C laundry room D food counter E sitting area F dining area G lockers H bathroom I wet bar J storage K outdoor shower L deck L A B C D E F G H I J K K

CAFÉ, COLUMBUS CIRCLE

A takeout waiting area B retail display C pos D counter dining E dining area F desert & coffee station G server station H bathroom I storage J kitchen A B C D E E G G F J H H I

Turn static files into dynamic content formats.

Create a flipbook
Issuu converts static files into: digital portfolios, online yearbooks, online catalogs, digital photo albums and more. Sign up and create your flipbook.
Commercial Projects by Olga Bukur - Issuu