Skip to main content

CV+PORTAFOLIO RAMÍREZ VÁZQUEZ

Page 1

CV+Portafolio ARQUITECTURA

1
Daniel Alberto Ramírez Vázquez

Contenido

Currículum Vitae……………………..3

Proyectos Académicos:

Casino Poker Progressive…………4

Loft en Campo…………………………8

Condominios Torre Fundidora….11

Concesionaria Mercedez Benza..13

Proyecto de Servicio:

Centro Cultural en Alameda……. 17

Proyecto de Residencias Profesionales: Engel…………………………………….. 18

2

Currículum Vitae

• Arq. Rodrigo Covarrubias Proa

Director general, Básico Arquitectura, Querétaro, Qro.

Correo: rodrigo.covarrubias@basicoarquitectura.com

Cel: 442 180 1884

Ramírez Vázquez Daniel Alberto

Perfil

Pasante de la licenciatura de arquitectura, enfoque hacía el diseño y la expresión 3D virtual dentro del software Revit como método BIM.

Con iniciativa y dispuesto a reforzar conocimientos y aprender cosas nuevas tanto en oficina como en obra.

• Cel: 4781255926

• Calera, Zacatecas

• Correo: offdanaram@gmail.com

Referencias

• Arq. José Waldymir García Chávez

Supervisor de obra, Ayuntamiento de Calera de Víctor Rosales

Correo: jwaldymir@gmail.com

Cel: 492 136 0985

Arq. Antonio Gabriel de la Peña Rueda

Independiente

Correo: agpr_zac@hotmail.com

Cel: 4921127985

Formación:

• Estudiante de Arquitectura en Instituto Tecnológico de Zacatecas

• 2021 Servicio Social/ Presidencia Municipal Calera de Víctor Rosales Zacatecas

• 2023 Residencias profesionales/ Básico Arquitectura Querétaro, Qro.

Aptitudes y conocimientos

Dibujo y Modelado

Autocad

Revit

Renderización

Vray

TwinMotion

Diseño gráfico y edición

AdobeIllustrator

Idiomas

Español- Idioma Madre

Ingles

3

Casino Poker Progressive

Proyecto: El concepto busca ver hacia el futuro y es representado por la gama de color clara en la estructura complementada por toques de color de una gama moderna de luces encontradas en la fachada y puente seriado

4
5
6
7

Loft en campo

• Loft en campo para aislarse del ruido y los distractores de la ciudad. Pensado para descanso así como trabajo artístico y botánico

8
9
10

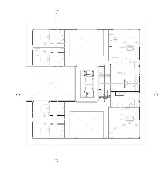
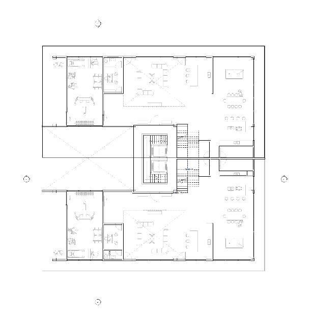
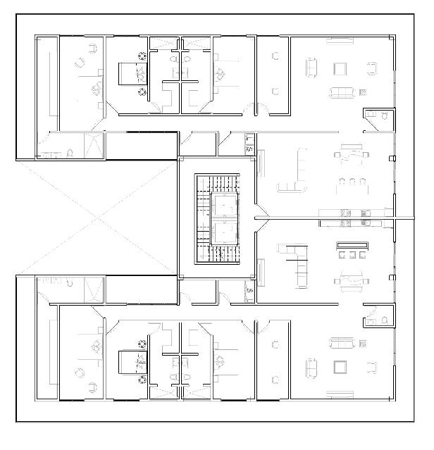
Condominios Torre Fundidora

Proyecto:Torre de condominios que cubran las necesidades básicas de la vivienda además de aportar valores extra propios de edificios de alto estándar como lo son: Espacios abiertos, grandes vistas y zonas recreativas y para el ejercicio que comúnmente se encuentran fuera del hogar.

11
12

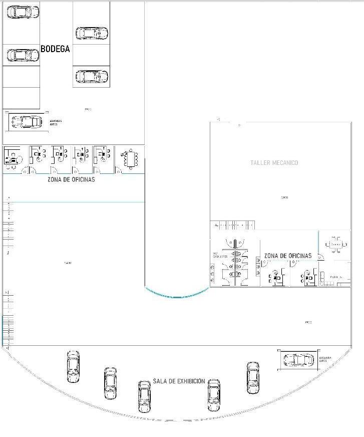
Concesionaria Mercedes-Benz

Proyecto: Propuesta de concesionaria basándose en el movimiento curvo de la fachada, además de implementar dos niveles de exhibición en la fachada

13
14
15
16

Centro Cultural en Alameda

Proyecto: Rehabilitación del espacio conocido como la Alameda a través de la incorporación de un centro cultural que abrace las ruinas sin tener un contacto directo para no afectarlas así como el desarrollo de distintas zonas recreativas y deportivas en el resto del terreno.

17

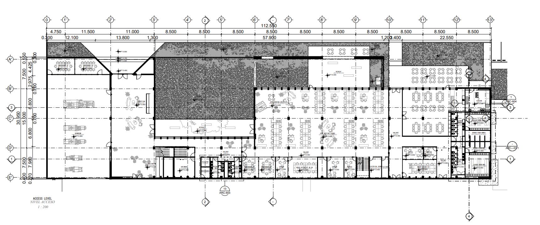
ENGEL Oficinas y Planta en colaboración con Básico Arquitectura

Proyecto: Es una edificación de concreto pigmentado, sólida, robusta, fuerte, que envuelve un espacio interior en que los detalles se delinean con luz y sombras La oficina vive hacia el patio interior, donde la luz se verá fragmentada por el mezquite, como un tamiz que dará ambientes cálidos a los usuarios

18
19
22

Turn static files into dynamic content formats.

Create a flipbook