OLE PERFIL DEL DESPACHO ODIN LOPEZ

Page 1


¿QUIENES SOMOS?

OLE Arquitectos asociados nace en Cabo San Lucas en el 1998 por el Arq. Odin Lopez Inzunza, brindando desde entonces servicios de diseño en arquitectura y urbano, siguiendo siempre los tres enfoques de la empresa:

1. Visión del inmueble como pieza del tejido urbano y social de la comunidad.

2. Atención y resolución a los aspectos operativos y funcionales proyectos.

3. Diseño como valor agregado como potencializador de calidad de vida.

A lo largo de mas de 20 años hemos tenido la oportunidad de desarrollar proyectos de tipologías y latitudes muy diversas ( listado de proyectos anexo), lo que nos ha aportado una experiencia suficiente y probada para afrontar cualquier nuevo reto. Hemos diseñado espacios desde 50 m2 hasta complejos edificios de mas de 80,000 m2 con toda una gama de inmuebles de tamaños intermedios, sin contar los proyectos urbanos que hemos tenido la suerte de desarrollar.

En toda esta trayectoria el trabajo multidisciplinario ha sido siempre el denominador común, es por eso que nuestro despacho se apoya con especialistas de las diferentes áreas, coordinando la información e integrándola al proyecto

CURRICULUM

ARQ. ODIN LOPEZ INZUNZA

• Curso "The Architectural Imagination", (en línea) HarvardX, Escuela Virtual de la Universidad de Harvard, USA. 2018

• Diplomado Diseño Urbano sustentable , (en línea) ITESM. 2017

• Maestria en gestion de la ciudad, (trunco). Universitat Operta de Catalunya (UOC). Universidad virtual. 2014

• Diplomado en efectividad gerencial. Impartido por el instituto de capacitacion de mandos intermedios (ICAMI) escuela de negocios deIPADE (Instituto Panamericano de Alta Dirección de Empresa). Cabo san lucas, 2006

• Diplomado de “Principios de Mercadotecnia Inmobiliaria”. Organizado por la Asociación Mexicana de Profesionales Inmobiliarios AMPI Capítulo Los Cabos e impartido por el Instituto Tecnológico de Monterrey ITESM en cabo san lucas, B.C.S. 2004

• Diplomado en historia del arte mexicano. Organizado por la Casa de la Cultura de Jalisco, impartido por el Instituto de Investigaciones Estéticas de la UNAM en la casa de la cultura, Guadalajara, Jalisco. 1997

• Seminario “ History of Modern Architecture”. University of Oklahoma. Norman central campus, Oklahoma, USA. 1996

• Investigación para tesis recepcional de arquitectura. Departáment du Puy de Dóme, Université Blaise Pascale II. Clermont-Ferrand, Francia. 1995

• Arquitecto. Universidad Autónoma de Guadalajara (UAG). Guadalajara, Jalisco. 1994

2014 Preparación para certificación de “ APEC Architect”, Colegio de arquitectos de Culiacán. Culiacán, Sinaloa.

2012 Congreso Internacional de Urbanismo. Organizado por el Gobierno del Estado de Sinaloa y la UAS, Casa de la Cultura. Culiacán, Sinaloa.

1998 Curso “Fundamentos de Arquitectura del Paisaje”, impartido por el profesor Bruce G. Sharky, director de la Escuela de Arquitec-tura del Paisaje de La Universidad Estatal de Louisiana (Louisiana State University) organizado por la UAG (Universidad Autónoma de Guadalajara), en Guadalajara, Jalisco.

1996 Simposio “ARQUITECTURA FRANCESA CONTEMPORÁNEA”, organizada por la embajada francesa en México. Palacio de Bellas Artes, México, DF.

1995 2a. SEMANA DE INGENIERÍA CIVIL de la Universidad Autónoma de Guadalaja-ra con el tema “Vivienda de interés social”, UAG. Guadalajara, Jalisco.

1994 Simposio “PATRIMONIO HISTÓRICO Y RESTAURACIÓN”, organizado por la Academia Nacional de Arquitectura, capítulo Guadalajara y el Colegio de Arquitectos de Jalisco. Exconvento del Carmen, Guadalajara, Jalisco.

1993 Congreso Nacional de Arquitectura “LOS ARQUITECTOS EN DIÁLOGO CON LA CIUDAD”. Evento organizado por el Colegio de Arquitectos del Distrito Federal y la Asociación de Colegios de Arquitectos de México. Palacio mundial de las ferias. México, DF.

OFERTA DE VALOR

Estudios valorativos de inversión inmobiliaria. Estudio de factibilidades de usos de suelo de acuerdo a normativas, COS, CUS, PDU´ s, MIA´ s, UGA´ s, etc., para determinar la vialidad de negocio propuesto por el cliente antes del desarrollo del proyecto, ya sea de alcance arquitectónico o urbano.

Desarrollo de programa arquitectónico. Integración del documento maestro de las necesidades funcionales, políticas institucionales, condicionantes normativas aplicables, criterios estéticos- formales y enfoque de diseño a seguir en el desarrollo del proyecto.

Anteproyecto arquitectónico. Solución funcional y formal del proyecto.

Proyecto ejecutivo. Desarrollo completo del proyecto con la arquitectura resuelta a nivel constructivo con especificaciones y detalles en todas sus partidas, la estructura y las ingenierías aplicadas y resueltas en su totalidad.

Proyectos urbanos. Conceptualización y desarrollo de proyectos ejecutivos que intervengan en el tejido urbano, ya sea existente o de nueva creación.

Supervisión de obra Seguimiento continuo del proyecto ejecutivo durante el proceso de construcción

Dictámenes técnico- arquitectónicos del inmuebles (No perciales). Análisis de las condiciones pre- existentes de un inmueble, reporte de daños y soluciones técnico- económicas para puesta a punto de operatividad.

Gerencia de Proyectos Dirección, supervisión y seguimiento de Proyectos de edificación, dando correcta interpretación de la información del proyecto al constructor, validación de avance contra programa, revisando gasto contra flujo de obra. Manejo de ordenes de cambio al proyecto y entrega de paquete As Built de la ejecución.

ALGUNOS DE NUESTROS CLIENTES

CATALOGO DE PROYECTOS

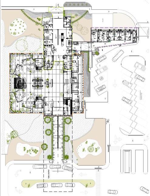
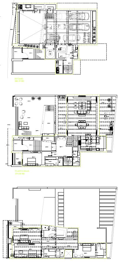
LA PAZ, BCS
CONDOS CALYPSO LA VENTANA, BCS
JOHN DEERE LOS CABOS, BCS
CONDOS VAZQUEZ LA PAZ, BCS
CONDOS CAZARES SAN JOSE DEL CABO, BCS
CONDOS POINT BREAK, CERRITOS BCS
CONCEPT 180, PUERTO VALLARTA, JALISCO
ESTADIO BEISBOL, SAN JOSE DEL CABO, BCS
FBO AEROPUERTO, SAN JOSE DEL CABO, BCS
CASA ELBERSON, PUERTO LOS CABOS, BCS
LOBBY RESTAURANT SIERRA LAGO, JUANACATLAN, JALISCO
RESTAURANT BAR CORNELIO, LA PAZ, BCS
VILLA DEL PALMAR LORETO, BCS
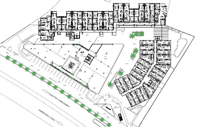
CENTRO URBANO VITANIA, PTO.VALLARTA, JALISCO
VILLAS BLUE SEA LOS CABOS, BCS
RANCHO ISABELA, TECATE, BC
CASA AMARA, BUENAVISTA, BCS
CASA ARA, LA PAZ, BCS
CASA BETINA, LA PAZ, BCS
CASAS CALDERON, LA PAZ, BCS
CASA EL DATILAR, LA PAZ, BCS
CASA GEMA, LA PAZ, BCS
CASA GOMEZ, LA PAZ, BCS
CASA JADE, LA PAZ, BCS
CASA NANO, CABO SAN LUCAS, BCS
CASA SALAS TREVIÑO, LA PAZ, BCS
CASA TREMBLAY, LA PAZ, BCS
CASA YAYA, LA PAZ, BCS
CERRITOS CENTER, CERRITOS, BCS
CONDOS LERDO, LA PAZ, BCS
CONDOS ROSALES, LA PAZ, BCS
GARZA BLANCA CANCUN, CANCUN, Q. ROO
CONDOS PLAYITAS 11, LOS BARRILES, BCS
VILLAS PUNTA AZUL, SAN JOSE DEL CABO BCS

Turn static files into dynamic content formats.

Create a flipbook
Issuu converts static files into: digital portfolios, online yearbooks, online catalogs, digital photo albums and more. Sign up and create your flipbook.