Skip to main content

March 2026 Ocean Pines Progress

Page 1


Touch of Italy Seeks Beach Club rezoning

The Board of Directors voted unanimously to support a request to the Town of Ocean City for rezoning of the Beach Club as a commercial or restaurant property for expanded use during the Feb. 28 meeting.

Touch of Italy aims to make changes to the property and its current food and beverage operations.

~ Page 5

A JOURNAL OF NEWS & LIFESTYLES FOR NORTHERN WORCESTER COUNTY

Blizzard of ‘26

It was unusual for Ocean Pines, a Feb. 22 storm that dropped more than a foot of snow, caused power outages and knocked down trees that damaged cars, roofs and property.

The storm kept not just Pines residents, but those who live in the region well north into Sussex County, Del., up overnight lighting candles, finding flashlights, protecting perishables by not opening their refrigerators and listening to howling wind and limbs cracking as, outside, the snow got deeper.

WBAL-TV posted snowfall totals, with Ocean Pines at the top, with 14 inches, followed by Parsonsburg, 12.5 inches; Ocean City, 10.5; Delmar, Hebron, Pocomoke City, Princess Anne, Salisbury and Snow Hill, all 9; East New Market, 8.8; Cambridge and Deal Island, each 8; Vienna, 7.5; and Wye Mills, 7.

By Tuesday afternoon, Feb. 24, the snow had started to melt enough

to get out of driveways and walk to survey damage, but many streets were blocked by fallen trees. Neighbors helped each other saw and drag away trunks to make streets passable.

The Ocean Pines’ Compliance, Permits & Inspections Department is asking residents to report dangerous hanging branches throughout the community by calling 410641-7425 or e-mailing to poristian@ oceanpines.org and has assured residents crews are “actively working to clear visible debris and remove limbs as quickly and safely as possible.”

Property owners are asked to put debris at the roadway so it is accessible for pickup.

Public Works began clearing roads at 8 p.m. Sunday and as of 10 a.m. Tuesday all roads were cleared and crews turned their attention to parking lots.

In a news release, Ocean Pines

To Page 3

Progress Staff Photo
Ocean Pines received 14 inches of snow.

OCEAN

Winter Storm

From Page 1

General Manager John Viola thanked the Public Works Department, Board of Directors “and, of course, the good people of OPA for supporting all the requests for snow removal equipment over the last six years. The team appreciates it.”

“We worked side by side with the Ocean Pines Volunteer Fire Department and subcontractors to get the job done. We thank everyone for their response and working together as one big team,” Public Works Director Eddie Wells stated in a news release.

It was a storm meteorologists had warned residents about for days, predicting rain on Sunday would turn to snow around noon. And it, did, falling in fat flakes as grocery store aisles were clogged with shoppers rushing to pick up last-minute items from salt to sprinkle on porch steps to cat food to toiletries.

The National Weather Service, on its website at www.weather.gov, explained strong low pressure began to develop off the coast of North Carolina during Sunday morning and rain changed to snow over the Maryland Eastern Shore by mid-afternoon. Surface temperatures dropped to 32 or 33 degrees and snow covered surfaces. The weight of the snow, combined with the wind, resulted in 20 to 40 percent of Worcester, Wicomico and Somerset counties losing power. Schools were closed and trash pickup canceled.

In some places in Ocean Pines, power was off from around 11 p.m. until 2:30 or 3 Monday morning, but in other locations, it was out for days. One Sandyhook Road resident posted on a community Facebook page that she was without electricity for 36 hours.

On Tuesday, a resident who went to stay at a hotel after losing power posted that she went home to pick up a few items, noticed a Choptank technician arriving to respond to several houses on Camelot Circle and hugged one of them. “He said I made his day because at least I wasn’t mad,” she wrote.

“We got our power back this morning at 5:15 a.m. If I knew who to hug for making that happen, I definitely would,” a Pines resident responded, with another commenting, “I know that really meant a lot to that guy. I don’t think people know what they go through. I do because I’m married to a retired lineman-manager from Choptank.”

As the sun rose Monday morn-

ing, neighbors were out surveying damage, helping each other shovel driveways, cutting up and moving large trees, some that landed on car windshields or went through ceiling skylights, as dogs romped and children tossed snowballs.

If there’s any good in a storm that made so many uncomfortable – from staying awake all night listening to howling wind and wondering where the latest tree had fallen to being in the dark with no heat – it’s how the community came together, with residents posting, asking for help, saying they lived out of town and wondering if anybody could go by and check on their homes, or inquiring about road conditions, if the banks were open, if anybody could help cut a tree before it fell or shovel a driveway for an elderly resident. Responses came quickly.

“I can get there.”

“DM me with more information.”

“I will help.”

One resident asked to borrow a shovel and the need was quickly met.

There was camaraderie, snowmen sporting pine needle wigs and straw hats and, most importantly, laughter as residents posted suggestions for renaming the community – either Ocean Bring Y’all’s Chainsaws or Pine Falls.

Progress Staff Photo The weight of the snow, combined with the wind, resulted in downed trees and loss of power.

OPA Board Moves to Authorize Beach Club Rezoning Request

The Ocean Pines Board of Directors voted unanimously to support a request that the Town of Ocean City rezone the Beach Club as a commercial or restaurant property for expanded use during the Feb. 28 meeting.

Touch of Italy aims to make changes to the property and its current food and beverage operations. The motion acknowledged the consent of the OPA Board members to allow and accommodate for the property’s expansion, as well as authorizing any necessary signings during the rezoning application.

The Ocean Pines Beach Club, located at 49th St. in Ocean City, is currently considered a residential property. Expansion to a commercial or restaurant use would permit later operational hours, as the property closes at 6 p.m., and could result in changes to current Beach Club alcohol regulations.

Public alcohol consumption is banned in Ocean City and alcohol sales in the town are restricted to

licensed commercial or restaurant establishments only.

The Ocean Pines Beach Club has a bar but alcoholic beverages are strictly limited to Ocean Pines property owners, residents, and their guests.

The Board approved a five-year lease agreement with Touch of Ita-

ly last year to allow them to oversee food and beverage operations. Since the agreement, the Board has also approved renovations to the Yacht Club, Clubhouse, and the Beach Club for the sake of improving food and beverage services.

Planned renovations for the Beach Club would take two years

and include remodeling the first floor with a new kitchen and bar and a new restaurant on the second floor that could be open 9 to 10 months in a year. As of now, the property is only operational during the summer.

Resident Amy Peck shared her joy over the direction of the club’s operations during public comments at the Feb. 28 meeting, but wants to ensure the permitted parking on the property is protected. She stressed the importance of the Beach Club parking permits and doesn’t want to see limitations with the property’s ‘first-come, first-served basis.’

“I love that we’re doing so much with our restaurant operations,” Peck said. “I just want to make sure that now and in the future that beach parking is always protected and that any zoning changes would not limit any parking that people pay for.

“That’s a great revenue and, in my opinion, it’s the premier amenity we have here at Ocean Pines. We are the only community that has that beach access and so that should be protected now and in the future.”

David Bohenick Photo Touch of Italy plans to seek a rezoning of the Ocean Pines Beach Club in Ocean City.

OPA Board May Shift Some Summer Meeting Dates

Despite opposition from one director, the Ocean Pines Association Board of Directors approved potential changes to the regular Board meeting schedule during the months of May, June and July in a 6-1 vote on Feb. 28.

Director Steve Jacobs made a motion during the Board meeting

to authorized the association president to schedule the OPA Board meetings for May, June, and July 2026 at a different day and time from the schedules previously approved. While the motion was made for all three months, there’s a possibility only one monthly meeting will change to a different day and time. Some Board members requested changing the time for one month only. Vice President Rick Farr suggested no further motions be made because the President has the power to change the day and time 10 working days in advance.

The Board meetings were previously planned and approved for 9 a.m. on May 30, June 27 and July 25, all of which occur on Saturday.

There was discussion about changing times during the August 2025 operational Board meeting, particularly in the summer months, with a consensus to return to the topic at a later time. Jacobs said the motion specifically leaves the matter open to having these meetings’ times the chair’s decision.

OPA President John Latham clarified that Ocean Pines’ Bylaw Section 5.08 already grants the power to change the time, but felt a public approach was the necessary way to advance.

“Technically, the president has the ability to change it within 10 days but I think in full transparency, since we set the date, this is the proper way to address the community and let the community know that we want to consider this option,” he said.

Director Stuart Lakernick opposed the proposal. He believes deviating from the schedule could create confusion and limit some residents’ opportunity to attend.

“I appreciate the intent behind the motion but I’m not in favor of changing the established meeting schedule,” Lakernick said. “Consistency is important to our members. The dates and times were approved publicly so residents could know when they could participate in their community’s governance. This helps maintain trust and predictability during the summer. Especially when our property owners are seasonal– they’re only here Thursday through Sunday.”

“Changing the meeting dates or

David Bohenick Photo
Director Stuart Lakernick opposed making changes to the Board meeting schedule.

times could unintentionally limit their opportunity as part of the governance process and I don’t think it’s fair for them. Increasing schedule changes will only add to confusion and create the perception that meetings are harder for our members to follow or attend. For the sake of transparency, accountability and stability, I believe we should honor the schedule we’ve already adopted,” he said.

Treasurer Monica Rakowski said she initially agreed with Lakernick but would like to see what a change would look like for just one month.

Director Elaine Brady agreed with Rakowski’s idea of changing the day for one monthly meeting. She suggested experimenting with the time change during the month of July, since that’s most likely when most residents are present.

“People are here at all different times, whether during the week or the weekend,” Brady said. “If they come down just for the weekend, they want to be on the beach in the middle of summer instead of coming to a Board meeting.”

During public comments, resident Amy Peck voiced her support for the change of meeting times, believing it could include more people.

Director Rick Farr requested if the day is changed that the meeting be held in the evening to allow Board members and residents with full-time jobs the opportunity to attend without having to participate online while working.

Jacobs agreed with Farr’s point. While recognizing the importance of public participation, he reminded the Board that the main reason for the meetings is to transact business.

“When I first came on the Board, what was stressed to me… was these Board meetings– while they do have a level of public participation– are really meant for the Board to transact its business,” he said. “That is the primary reason it should be held in the open but that is the primary reason that the Board meets.”

Jacobs referred to Bylaw Section 5.06 which requires the Board to meet a minimum of six times a year. He brought up the possibility of skipping a month if necessary since that number is already achieved.

“The intent was to give maximum flexibility at a time when, let’s be honest, a lot of people… probably have better things to do or at least would like to do than show up at our meetings,” Jacobs said. “Oddly enough, we’re not the primary attraction in Ocean Pines.”

Viola Provides Updates on Projects at Yacht Club, Clubhouse

General Manager John Viola

provided an update on ongoing initiatives during the Feb. 28 meeting of the Ocean Pines Association Board of Directors, outlining progress on major golf course improvements and renovations at both the Clubhouse and Yacht Club facilities.

From irrigation upgrades and bulkhead restoration to new bar concepts and kitchen expansions, Viola said most projects remain

on schedule as the community prepares for the busy summer season to get underway.

Golf Course Irrigation Project

Phase II of the golf course irrigation project began in December and is progressing as planned, Viola told the Board. Hole No. 4 has been completed, and crews are currently working on holes No. 5 and No. 6. As a result, Hole No. 5 is temporarily closed for play.

The work is expected to be finished by the end of March, ahead of

the summer season.

“That is on track,” Viola said. “I am happy with the way it’s going.”

The irrigation upgrades are part of a broader effort to improve course conditions and ensure long-term sustainability of the golf facility.

Bulkhead Work at 18th Fairway

In addition to irrigation improvements, work began the week of Feb. 9 on the bulkhead along the 18th fairway at the golf course.

The project includes raising the

Demolition of the South Fire Station has begun in Ocean Pines. Construction fencing was placed around the perimeter last week, and demolition began on the outside of the structure on Thursday, Feb. 26. The new fire station, which was approved by the Board of Directors at their January meeting, is being constructed by The Whayland Company. The project is estimated to take approximately 60-65 weeks to complete. A groundbreaking ceremony will be held in March prior to the start of construction.

GM Report

From Page 7

bulkhead wall to improve water retention for the irrigation system and dredging the adjacent canal. A drainage pipe will be installed inhouse as part of the effort.

Viola said the goal is to complete the work by the end of March. Despite recent weather challenges, he said the project remains on schedule.

A key objective is reducing the amount of water drawn from the aquifer.

“We want to decrease the amount of water we pull on the aquifer,” Viola said.

Material dredged from the canal will be placed behind the bulkhead to help restore the fairway, which has eroded over time.

“We want to put that fairway back to where it was 30, 40 years ago,” he said. “It kept eroding. We want to put it back.”

Clubhouse Interior Renovations

Viola acknowledged that renovations inside the Clubhouse are behind where Touch of Italy had intended to be at this point.

“We are behind timewise where we were hoping to be,” he said, citing weather and other factors contribut-

ing to delays.

However, plans are still moving forward. If permitting takes longer than expected, the timeline may be reevaluated. Viola said a backup plan has already been discussed with the golf team to ensure continued operations.

There will continue to be a bar at the Clubhouse, and the kitchen will not be affected during the renovations.

Touch of Italy is moving forward with repositioning the interior bar inside the Clubhouse. Plans also include the addition of a two-tier exterior bar.

The estimated completion date for the interior bar work is May 1. Viola emphasized that the renovations will not interfere with food and beverage operations.

During the bar construction, the Clubhouse meeting room area will be used with a portable bar and tables to maintain service. The kitchen will remain open throughout the project.

Clubhouse Pavilion

Work is also planned for the exterior of the Clubhouse, including adding a pavilion.

A request for proposals has been

Progress Staff Photos

Carozza’s Legislative Concerns: Energy and Public Safety

As the 449th Maryland General Assembly enters its eighth week, Sen. Mary Beth Carozza says her focus in Annapolis remains fixed on two pressing issues she believes directly impact the Eastern Shore: energy policy and public safety. Representing Worcester, Wicomico and Somerset counties, the Ocean City Republican has used the 90-day legislative session to advocate for measures she says will lower energy costs, strengthen public safety protections and push back against policies she views as harmful to her district.

Work in the EEE Committee

Carozza is a member of the Senate Education, Energy and the Environment Committee and is an advocate for reliable renewable energy sources and in-depth cost analysis of energy resources.

She is a sponsor of Senate Bill 270 which would require the Public Service Commission to conduct an analysis on the total costs and benefits of sources of electricity gen-

eration within Maryland to better understand how ratepayers would be impacted by developing energy sources. The bill was heard on Feb. 19 by the EEE Committee.

Members of the EEE Committee also heard Governor Wes Moore’s support for Senate Bill 386, known as the Lower Bills and Local Power Act of 2026. The bill would require an electric company that owns or operates a transmission line in excess of 69,000 volts within Maryland to participate as a member of a regional transmission organization under certain circumstances. The bill is intended to modernize the state’s energy grid while addressing rising utility costs, but Carozza believes ratepayers can still benefit more otherwise.

“The energy bill rebates would amount to only $40 annually by raiding the Strategic Energy Investment Fund, which is not enough to compensate for the steep energy costs our constituents are facing,” Carozza said in her weekly update. “We need a more comprehensive overhaul of our long-term energy policies based on the lowest cost and

greatest benefit to the ratepayers to address rising energy costs, not a coupon.”

Carozza also presented Senate Bill 174 to the EEE Committee on Feb. 4, which is intended to tighten the appeals process of the removal of local superintendents or members of local boards of education by requiring an appeals process that doesn’t exceed 90 days– barring extensions from due process or the state board. Appeals in the past have sometimes taken up to years to resolve as the current process has no time limitations, Carozza said.

“I understand the need to prevent a cycle of starting and stopping implementation of local board decisions, a cycle which often leaves a school community with major disruption and loss of trust within the school system,” she said during her presentation.

“However, I have remained concerned that a lengthy, indefinite appeals process causes that same level or greater disruption to the local school system leading to a negative

issued and posted online, with bids due by March 5. Once bids are received, they will be reviewed and presented to the Board for approval.

The estimated completion date for the pavilion and bathroom improvements is the end of May.

Viola said the pavilion will include some type of kitchen and that he would like to add restroom facilities there, even if they are not open year-round.

The addition of restrooms is expected to benefit golfers by improving the speed of play, providing convenient facilities during rounds.

Yacht Club Tiki Kitchen

At the Yacht Club, a separate request for proposals was issued for a new Tiki kitchen concept.

Responses were scheduled to be reviewed on Feb. 26, with a recommendation to be forwarded to the Board for approval. The estimated completion date is by Memorial Day.

impact on student learning.”

Public Safety Bills

Carozza is opposed to Senate Bills 660 and 791, both of which would further eliminate the local law enforcement’s cooperation with Immigrations and Customs Enforcement. Both bills were heard after all existing 287(g) agreements between federal government and local jurisdictions ended with the passage of Senate Bill 245 which Carozza previously objected to.

Senate Bill 660 would require local law enforcement to respond to immigration enforcement activity within their district and to observe and report immigration enforcement actions.

Senate Bill 791 would prohibit local and state correctional facility employees from taking certain actions related to immigration enforcement– including detainment based on immigration status and administrative warrants from the U.S. Department of Homeland Secu-

To Page 12

stairs à la carte dining area with its own kitchen. However, the patio and pool areas have never had a food operation specifically focused on them.

“You have upstairs banquet with kitchen. Have downstairs à la carte and kitchen.” The patio and pool never had anything focused on it, Viola said. “Makes sense to me. I have complete faith in them. This is a good move.”

He added that the new Tiki kitchen should allow for better and warmer food service in the outdoor areas.

Yacht Club Bar Renovations

Renovations to the Yacht Club’s main bar were completed Feb. 27 by Touch of Italy.

“What a job,” Viola said.

The existing bar was replaced with a new design intended to be more efficient and easier to clean. The operator invested in the improvements, though Viola noted that the bar ultimately belongs to the association.

Viola voiced strong support for the concept.

“I like the whole concept of this,” he said.

He explained that the Yacht Club already has an upstairs banquet space with a kitchen and a down-

“They invested in that. But at the end the bar is ours,” he said. “Hopefully they are here for a long period of time.”

In addition to the bar replacement, the ceiling was redone as part of the renovation.

“It’s a lot nicer,” Viola said.

TidalHealth Community Pharmacy locations

Delaware

Seaford

801 Middleford Road Seaford, DE 19973

O 302-297-2420

Maryland

Berlin

9733 Healthway Drive Berlin, MD 21811

O 410-641-9240

Ocean Pines North 11101 Cathage Road Berlin, MD 21811

O 410-543-4769

Ocean Pines South 10614 Racetrack Road Suite 7 Berlin, MD 21811

O 410-629-6240

Salisbury

100 E. Carroll St. Salisbury, MD 21801

O 410-543-4798

New name, same great service

TidalHealth Home Scripts and AGHRx RediScripts are now TidalHealth Community Pharmacy. You’ll still see the same friendly faces and get the same trusted, personal care you count on, now together under one name.

Refills made easy. Expert help close to home.

Visit tidalhealth.org/easyrefills

Carozza

From Page 10 rity.

Worcester County Sheriff Matt Crisafulli was also in Annapolis on Wednesday to oppose the two bills alongside Carozza. Crisafulli also opposed Senate Bill 245, which Gov. Moore passed on Feb. 17. Prior to its passing, Carozza was in favor of an amendment offered by Minority Leader Steve Hershey which would not restrict a county from entering into an immigration enforcement agreement and would not require a county to terminate existing immigration enforcement agreements. This amendment was rejected in a 14-32 vote.

She also voted against Senate Bill 1– prohibiting Maryland law enforcement officers the use of a face covering in the performance of duty.

Carozza sponsored two public safety bills in late January– Senate Bill 285 and Senate Bill 367. Senate Bill 285 would alter the eligibility criteria of the Maryland Police Officers and Probation Agents Scholarship Program to include correctional officers. Senate Bill 367, known as the Wicomico County - Highway

Pedestrian Safety Act, would prohibit a person in Wicomico County from standing in a roadway, intersection, shoulder or median divide determined to be inherently dangerous by the county or a municipal corporation.

“I want to stress this is fully intended to increase public safety by ensuring that these individuals are not standing in the roadways for whatever reasons because of the danger involved,” Carozza said.

Relief for Oyster Industry

Carozza urged Gov. Moore to request disaster relief funding for Maryland’s commercial oyster fishing industry. Challenging markets and weather conditions have made this one of the worst oyster seasons and has led to an emergency situation, she said.

The Maryland Department of Natural Resources announced an extension of the commercial oys-

ter season by two weeks on Feb. 19 following a request from the State Oyster Committee. Carozza is in support of Congressman Andy Harris’ request of the National Oceanic and Atmospheric Administration and the National Marine Fisheries Service to declare an economic fishery disaster, and voiced her gratitude for the season’s extension.

“I want to thank Secretary Kurtz for extending the oyster season, which will provide our fishing families with more time this season to continue to make a living on our waterways,” she said in her weekly update. “I also urge Marylanders to help our watermen and local communities that depend on commercial fishing by purchasing Maryland oysters and seafood at local markets and restaurants.”

What’s to be expected

This week, Carozza is expected to sponsor four more bills on March 4: Senate Bills 709, 845, 847, and 903.

Senate Bill 709 would alter the definition of “military-connected student” under the Purple Star Program in Maryland’s K-12 schools and would expand the program to include institutions of higher education.

Senate Bill 845, called the Maryland Voter Registration List Accuracy and Integrity Act, would require election directors of local boards of elections to immediately remove deceased voters. While already a requirement, Senate Bill 845 specifically would require the Maryland Department of Health to broaden the report sent to the State Board of Elections including self-identified out-of-state Maryland residents Maryland residents and those who were reported deceased outside the State but identified as Maryland residents.

Senate Bill 903 would require each local school board to develop and implement policies aimed at early opportunities for parents to participate in their child’s education system.

Senate Bill 847 would authorize the governing body of Wicomico County and its municipalities to grant a property tax deferral for properties owned by Salisbury Neighborhood Housing Services Inc. for the purpose of resale. Carozza said they are a private non-profit organization that assists in housing rehabilitation, neighborhood revitalization and providing opportunities for homeownership.

Berlin Seeks Feedback on Potential Route 113

Pedestrian Bridge Crossing

Two community input meetings were held in the town of Berlin on Feb. 11 and Feb. 12 to gather feedback from citizens on a solution to cross Route 113, including a potential pedestrian bridge. The meetings were part of a feasibility study funded by a U.S. Department of Transportation grant.

Town officials, including Mayor Zach Tyndall, and members of the Maryland Department of Transportation State Highway Administration were present at both meetings to discuss three potential locations and to answer questions.

The meeting on Feb. 11 was held at St. Paul’s United Methodist Church at 6 p.m. while the Feb. 12 meeting was at The Berlin Library at 9 a.m.

“Certainly people cross where it’s convenient but we wanted to focus on where we thought most people crossed,” Tyndall said. “And by all means, if we’re wrong, that’s why we’re here.”

The three studied locations were Route 818 (Germantown Road / S. Main Street.), Route 376 (Bay Street) and Route 346 (Old Ocean City Boulevard).

These three locations were chosen when the initial grant was requested by Patti Stevens, founding co-chair of the Worcester County Bike and Pedestrian Coalition, and Sara Gorfinkel, Berlin mayor’s executive administrative assistant. While they were viewed as primary locations due to the surrounding services and preexisting infrastructure, Tyndall emphasized they weren’t definite solutions.

One Bay Street resident was in attendance at the Feb. 12 meeting and thought crosswalks were a viable solution along with reduced traffic speeds.

“I can’t see it. I can’t see people that bike are going to use it. I’m in support of doing something but this [bridge] doesn’t logically make sense to me,” she said.

“I sit in that intersection in the summer, and I love the crosswalks being used by pedestrians and the bikers. But in the offseason I don’t see much use of the crosswalk, even.”

She also requested more study to be done on the discussed locations.

Public comment on potential solutions is planned to conclude 30 days following another virtual discussion meeting on the topic, which currently has no date set.

To Page 14

BREAKFAST SANDWICHES

Served on Bagel, Roll or Bread (White, Wheat or Rye Croissant or a Wrap

Egg & Cheese ..................................…

$7.55

Meat, Egg & Cheese …............................ $8.95

Your choice of Bacon, Sausage, Ham, Turkey Sausage,Ham, Taylor Ham or Morning Star Vegetarian Sausage

PLATTERS & OMELETS

Two Eggs Any Way with Meat ............. $7.80

Your choice of Bacon, Sausage, Ham, Turkey Sausage,Ham, Taylor Ham or Morning Star Vegetarian Sausage

Cheese Omelet .................................. $8.75

Veggie Omelet …................................... $9.50

(green peppers, onions, tomatoes, carrots, celery)

Quiche ................................................... $6.25

BAGELS WITH ...

Bagel with Butter ...….......................... $2.90

Bagel with Cream Cheese ….............. $4.50

Bagel with Cream Cheese and Jelly ..... $4.50

Bagel with Peanut Butter and Jelly ..... $5.25

Cinnamon Crunch Bagel

With Butter $3.40 With Cream Cheese $5.00

Bagel with Nova Cream Cheese ......…... $7.55

Bagel with Sliced Nova or Lox Salmon … $11.50

LUNCH SPECIALTIES

Homemade Soup Small ........................ $4.00

Chicken Pot Pie ..................................… $6.25

Pizza Bagel ~ Plain $6.75 - Pepperoni $7.50

Bagel Dog ............................................. $6.25

LUNCH SANDWICHES

Served on Bagel, Roll, Sliced Bread, Croissant or a Wrap Includes a Side of Macaroni Salad Ham …………............................….……. $9.45

Turkey ………...................................….. $9.95

Roast Beef …..................................…… $10.45

Cappicola …….................................….. $9.45

Genoa Salami …................................… $9.45

Italian Combo …...........................…… $10.45

(Roast Beef, Cappicola, Salami and Provolone)

Roast Beef & Turkey Combo ..............….. $10.45

Liverwurst …...............................……… $7.95

Bologna ................................................. $7.95

Chicken Salad ...................................... $10.50

Egg Salad ….............................………… $8.45

Tuna Salad ………..........................…... $10.25

Whitefish Salad ….................………… $10.50

Grilled Cheese ……........................……. $7.25

Add to any sandwich

Cheese $1.50 • Avacado $.80

FRESH PASTRIES

Scone (blueberry, cranberry or raisin) ..$4.25

Lemon/Pecan Bar …….....................…… $3.00

Muffin …….........................……………. $4.25

Brownie ….................................……….. $3.00

F E E L LU C K Y ?

Berlin Crossing

From Page 13

Tyndall said reactions have been mixed so far, with some residents happy with the idea of a crossing with others wanting more feasible solutions.

“A bridge might not be the final option but the safest option to cross a major highway would be to go over it, under it or to change the topography of the highway system,” Tyndall said.

The town officials also stressed the grant was not written with more than one crossing in mind.

While no options for a Route 113 tunnel were explored in the studies, officials said the impact for a tunnel and bridge crossing would be around the same.

This study serves as the first phase of the project and was funded by the Reconnecting Communities and Neighborhoods Grant, which was worth approximately $250,000. The second and third phases of the Route 113 crossing are anticipated to begin later this year with similar projects having a general timeline of four years.

While the funding for those phases were cut due to federal cuts under the Big Beautiful Bill, the state of Maryland appropriated some funds to assist with the project.

BASEBALLNEWRELEASES

Timothy Connor, senior manager for transportation at Gannet Fleming Inc., and his team were tasked with looking at the project with feasibility in mind by looking at nearby properties and analyzing the least amount of impact while maintaining safety when providing access to the highway crossing.

While he had his own opinion on the project, he emphasized the importance of the meeting since other residents could have other priorities in mind

“Does one rise to the top [for me]? I’d say Route 346 just because there’s the hospital and the Food Lion but that’s not necessarily the location that makes the most sense,” Connor said.

“There’s Henry Park at 376 and there’s also talks of a new proposed community center on Flower Street.”

Tyndall recognized all the different discussed areas have different needs and that his perspective is to “improve safety through whatever resources necessary.”

“As an adult [crossing 113] is unsafe,” Tyndall said. “Now imagine it for the youth.”

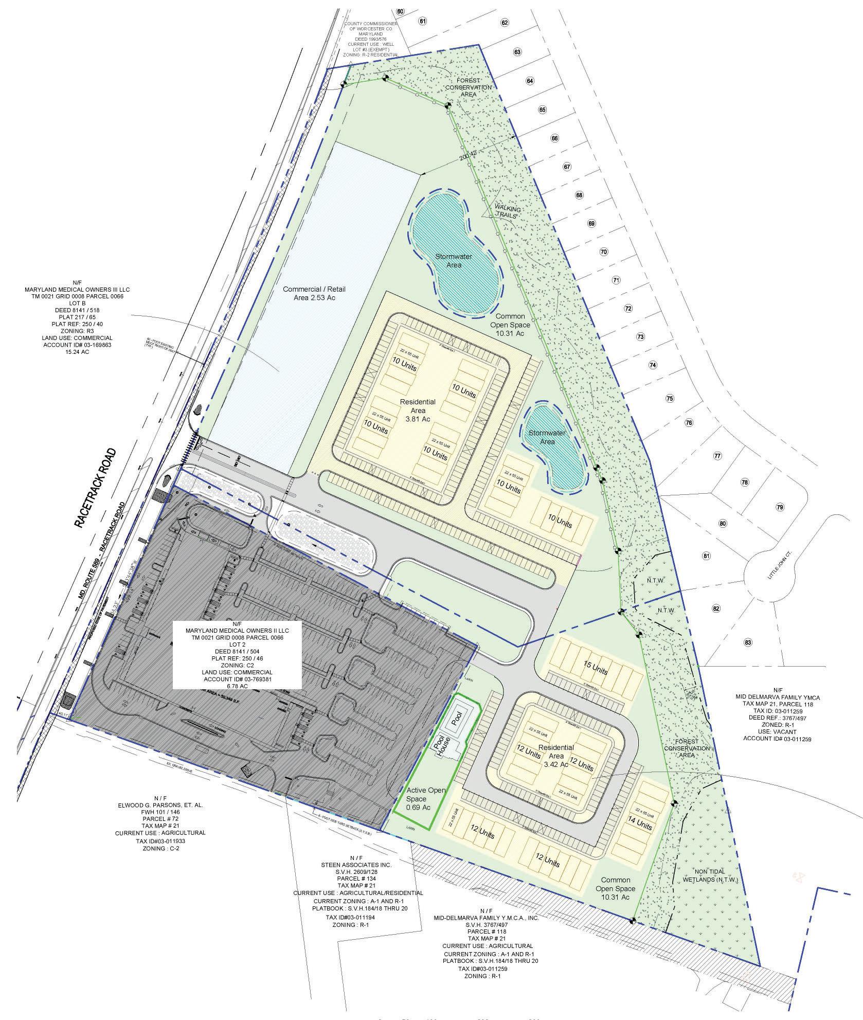
Commissioners Approve Racetrack Village RPC Plan

The Worcester County Commissioners voted unanimously to approve the establishment of a Residential Planned Community floating zone for the proposed Racetrack Village development off Racetrack Road, clearing the way for a 137-unit mixed-use project adjacent to the TidalHealth medical campus.

The vote came at the conclusion of a public hearing held Feb. 17 in Snow Hill, where commissioners considered the request filed by Maryland Medical Owners III, LLC to create a Residential Planned Community, or RPC, floating zone for the 22.86-acre property located on the east side of Route 589 at Taylorville Lane.

Only one member of the public spoke during the hearing, voicing opposition to the project. The resident called the proposal “a terrible idea,” citing concerns about increased traffic and what he described as overbuilding in the area.

Commissioners acknowledged those concerns but ultimately expressed support for the application, framing it as a significant improvement over potential alternatives allowed under existing zoning.

Commissioner Jim Bunting made the motion to approve the establishment of the RPC floating zone. Commissioner Joe Mitrecic seconded the motion.

Mitrecic said the proposal represented a better outcome than other forms of development that could have occurred on the site by right.

“This is hundreds of times better than what could have been here,” Mitrecic said. “I think the property owners have been very, very respectful of the neighborhood, and compared to what could have been there I think this is a big, big move forward.”

Commissioner Eric Fiori praised the quality of the submission and planning effort.

“This was very well done,” Fiori said.

Commissioner Chip Bertino agreed, noting that earlier concepts for the property had generated more concern.

“We’ve finally gotten to a place which I think is less impactful to

the area,” Bertino said. He added that the project is “less invasive and hopefully providing affordable housing in an area where needed.”

The approval marks the first step in a two-phase review process. Known as Step I, the action establishes the RPC floating zone. A more detailed Step II master plan will return to the Planning Commission for further review and approval.

The Racetrack Village RPC calls for the construction of 136 multi-family dwelling units and one single-family dwelling unit, along with a commercial and retail component. The site is currently zoned R-3 Multi-family Residential, a district that permits RPCs and allows a maximum density of six units per acre. With a net lot area of 22.86 acres, the project is permitted up to 137 units.

During the hearing, attorney Hugh Cropper, representing the applicant, emphasized that the legal standard for establishing an RPC floating zone differs from that of a traditional rezoning request.

“This is not the same legal standard as a rezoning,” Cropper said. The applicant must only demonstrate compatibility with the Comprehensive Plan and compliance with the RPC standards.

He described an RPC as a “preferred form of development” under county code because it encourages thoughtful design, clustering, open space preservation, and integration of mixed uses.

Cropper and the applicant’s team outlined how the project meets, and in some cases exceeds, the county’s RPC requirements. Although the zoning ordinance allows up to 70 percent of the gross lot area to be devoted to residential uses, Racetrack Village proposes just 6.42 acres, or 28.1 percent, for residential buildings, roads, and sidewalks.

The commercial component would occupy 2.53 acres, or 11.1 percent of the site, well below the maximum 20 percent permitted under RPC regulations.

Open space represents the largest share of the property. The plan designates approximately 10.27 acres, or 44.9 percent of the total land area, as common open space.

School System Audit Flags Screening, Bus Payment Lapses

The State audit of Worcester County Public Schools urges school system leaders to tighten oversight of employee background screenings, bus contractor payments, and health insurance claims administration, warning that failures in those areas expose the district to financial risk and, in one case, potential threats to student safety.

In a report dated Feb. 23, 2026, the Maryland Office of Legislative Audits concluded that while the school system generally maintains sound financial controls, several longstanding issues remain unresolved. Chief among the auditors’ recommendations: ensure mandatory screening of employees who work directly with minors is completed and documented before they begin work; base bus contractor payments on verifiable operating costs and exclude fuel taxes contractors can reclaim; and independently verify the accuracy and performance of the third-party administrator handling employee and retiree health claims.

Auditors said those improve-

Racetrack

Village

From Page 15

Of that, 4.91 acres will remain in a natural state, preserving wooded areas and forest conservation easements adjacent to the Ocean Pines community. The site also contains 1.18 acres of wetlands.

Under county rules, at least 30 percent of an RPC must be dedicated to common open space and recreational areas. At least 50 percent of that required open space must be retained in its natural state; at least 10 percent must be active recreation; and at least 20 percent must be passive recreation.

The Racetrack Village plan satisfies each benchmark. The proposal includes 0.69 acres of active recreation space, meeting the 10 percent requirement, with amenities such as a swimming pool and pool house. It also designates 4.67 acres, or more than 68 percent of the required open space, for passive recreation such as walking areas and green space.

Carl Wilson, vice president of The Traffic Group, presented findings from a traffic study submitted with the application. He noted that a new signalized intersection has already

Procurement concerns referred for separate investigation

ments are necessary to protect students, safeguard public funds, and ensure the efficient use of taxpayer dollars in a district that oversees nearly $172 million in annual expenditures.

The performance audit, conducted under state law requiring periodic review of Maryland’s 24 local school systems, examined WCPS financial management practices from January 2023 through June 2025. The audit’s objectives were to evaluate whether procedures and controls were effective in accounting for and safeguarding assets, and whether policies supported efficient use of financial resources.

The most immediate concern highlighted in the report involves compliance with a state law requiring enhanced screening for employees who have direct contact with minors.

Under legislation effective July 1, 2019, and updated in 2021, local education agencies must obtain written statements from applicants disclosing whether they have been the subject of child sexual abuse or mis-

been constructed at the shared entrance to the TidalHealth medical campus and the proposed development.

The entrance includes a southbound left-turn lane and a northbound right-turn lane on Racetrack Road, along with separate turn lanes for vehicles exiting both the existing medical facility and the proposed residential community.

“There’s gonna be a great synergy that’s created because people that live on this site could potentially work right at the medical facility or also be patients at that facility,” Wilson said.

Access to the development will be limited to that single commercial entrance onto Route 589. There will be no direct access to Ocean Pines. A five-foot concrete sidewalk is planned within the development, though no sidewalk is proposed along Racetrack Road. Three bicycle racks will be required during later review stages.

According to comments from the Maryland State Highway Administration’s District 1 office, the agency anticipates no negative impact to state roadways as a result of the

conduct investigations that resulted in findings. Schools must also contact prior employers to obtain similar information. The requirement is in addition to criminal background checks.

According to auditors, WCPS did not consistently complete those screenings.

During fiscal year 2025, the school system hired 317 individuals assigned to schools or student programs involving contact with minors. Auditors tested 10 employees hired after the law took effect and found that for six of them, required screenings had not been performed as of Oct. 3, 2025 — even though those employees had been working between 39 and 450 days. In two other cases, screenings were completed between 73 and 392 days after employment began.

“Without a proper screening, WCPS lacks assurance regarding the conduct of the individuals it hired,” the report states.

Auditors recommended that WCPS comply with state law and perform and document required

project. The applicant’s traffic study concluded that the existing road network has adequate capacity to handle the additional units.

The property lies within the “Existing Developed Areas” land use category of the county’s Comprehensive Plan, which encourages infill development and mixed-use projects that maintain neighborhood character while providing diverse housing options. The adjacent area includes a mix of residential neighborhoods, such as Ocean Pines and Triple Crown Estates, and commercial uses anchored by the TidalHealth campus.

The Planning Commission previously reviewed the Step I application and recommended approval. In its written findings, the commission concluded that the project is consistent with the Comprehensive Plan, zoning regulations, and established policy guidelines. The commission also determined that the RPC would not adversely affect long-term development patterns or strain public facilities.

Water and sewer service for the development is proposed through the Greater Ocean Pines Sanitary

screenings for all applicable positions, including those identified in testing.

In its response, WCPS agreed with the finding and said corrective action was effective immediately. The district stated it has reinforced human resources procedures to require completion and documentation of mandated screenings before final employment clearance is granted. Centralized review by HR staff and periodic file audits will be implemented to prevent recurrence, according to the response.

The audit also revisited concerns first raised in the system’s prior audit in 2017 regarding payments to bus contractors.

WCPS transports approximately 6,300 eligible students using 69 contractor-owned buses. In fiscal year 2024, transportation costs totaled about $8.4 million, of which $7.3 million — roughly 87 percent — was paid to contractors.

Auditors found that certain elements used to determine payment amounts could not be supported or did not reflect available tax credits. Specifically, WCPS paid contracTo Page 18

Service Area. The applicant has stated that adequate equivalent dwelling units, or EDUs, are available, though additional sewer EDUs must be acquired and secured before final site plan approval. The Worcester County Department of Environmental Programs and the Water and Wastewater Division reported no significant concerns at this stage.

The R-3 Multi-family Residential District is designed to accommodate higher-density housing and a range of affordability options. By clustering development and incorporating open space, officials said, the RPC mechanism can provide a transitional buffer between single-family neighborhoods and more intense commercial uses.

The developer indicated that the project will likely be constructed as one unified development rather than in phases, leveraging infrastructure already in place, including the signalized entrance and access road shared with the medical campus.

With the commissioners’ approval of the RPC floating zone for Racetrack Village, the project can now proceed to the more detailed Step II master plan.

School Audit

From Page 17

tors an estimated $1.8 million in fiscal year 2024 for per-mile maintenance costs at a rate of $1.072 per mile. However, auditors reported that no cost data had been compiled and analyzed to determine what should be reimbursed, leaving the rate unsupported by documented actual expenses.

In addition, WCPS calculated fuel reimbursements using monthly average diesel prices that included federal excise and state fuel taxes. Under federal and Maryland law, school bus contractors are exempt from those taxes and may claim credits when filing income tax returns. Had WCPS excluded those taxes from its calculations, contractor payments would have been about $1 million lower over fiscal years 2020 through 2024, auditors estimated.

These conditions were cited in the prior audit, and the district previously indicated it would consider revising its methodology. Auditors found those corrective actions were not implemented.

The report recommends that WCPS use actual bus operating costs or otherwise develop supportable cost estimates to establish maintenance rates, and exclude fuel excise taxes from contractor payments.

In its response, the school system agreed and said it will work with contractors to obtain actual maintenance cost data or develop supportable estimates. WCPS also said it will examine procedures for excluding fuel excise taxes, noting that contractor rates are approved annually by the Board of Education and any changes would require board approval. The district estimated completion of corrective actions by July 2026.

Auditors also found that WCPS

does not adequately monitor the performance and billing of its third-party administrator, which processes health care claims for employees and retirees.

The school system participates in a self-insured health plan administered through Worcester County Government. WCPS is self-insured up to a $300,000 stop-loss threshold per participant per plan year. The third-party administrator handles medical, dental, vision, and prescription claims and charges administrative and subscription fees.

As of June 30, 2024, WCPS provided health insurance to 1,177 enrolled employees, dependents, and retirees. Health care expenditures totaled approximately $20.3 million in fiscal year 2024, including $632,400 in administrative fees and $1.6 million for stop-loss coverage.

Auditors found that WCPS did not verify that administrative and subscription fees billed by the third-party administrator matched payroll records for enrolled employees, nor did it confirm that monthly premium rates agreed with contract terms. While limited testing did not reveal significant variances, auditors noted the absence of systematic verification.

The contract also includes six performance measures related to enrollment timeliness, customer service, and claims processing, with potential penalties of up to $102,048 annually if standards are not met. In fiscal year 2024, the administrator self-reported $17,008 in penalties based on its own compliance calculations. WCPS did not independently verify those assessments.

Similar issues were noted in the prior audit, but recommended controls were not implemented.

Auditors recommended that WCPS compare enrollment records to invoices and contract rates to de-

termine the propriety of fees, and establish a process to independently verify compliance with performance measures and assess penalties when goals are not met.

WCPS concurred and said it will meet quarterly with the third-party administrator to compare enrollment records and contract rates to invoices. The district also pledged to establish a formal annual review process to assess compliance with performance measures, with reviews at the beginning and close of each plan year. Target completion dates range from July to September 2026.

The audit identified additional procurement and disbursement deficiencies, including questionable purchases by a management employee. Those matters were referred to the Office of the State Prosecutor. Auditors emphasized that a referral does not mean a criminal act occurred or that charges will be filed.

Because of the referral, procurement-related findings will be addressed in a separate audit report at a later date.

The report also disclosed cybersecurity-related findings, but details were redacted from the publicly released version in accordance with state law. The law requires the redaction of cybersecurity findings before public release, though specifics were communicated to responsible officials in an unredacted version.

The audit notes that on Dec. 28, 2024, a WCPS vendor experienced a cybersecurity incident involving unauthorized transfers of student and educator personal information. WCPS learned on Jan. 7, 2025, that its data was involved and notified affected individuals three days later. The compromised information included names, contact details, birthdates, medical information, and Social Security numbers. The vendor

offered credit monitoring services.

Aside from the cited deficiencies, auditors reported that WCPS generally maintains effective controls in several areas.

WCPS ranks 18th in enrollment among Maryland’s 24 school systems, with 6,848 full-time students in fiscal year 2024 across 14 schools. Revenues totaled approximately $170.7 million in fiscal year 2024, including $37.8 million from the state. Expenditures were approximately $172 million, with salaries and benefits representing 72 percent of spending.

Federal expenditures totaled $19.7 million in fiscal year 2024, driven in part by $27.8 million in COVID-19 relief grants awarded between fiscal years 2020 and 2024. Auditors reviewed independent financial statement audits and Single Audit reports for fiscal years 2019 through 2024 and did not identify deficiencies warranting inclusion in the report.

Auditors also found no significant deficiencies in equipment controls, facilities maintenance, food services financial operations, or school board oversight. WCPS has adopted an ethics policy approved by the State Ethics Commission, and required financial disclosure forms were filed as mandated.

In a letter accompanying its response, Superintendent Annette Wallace said the district recognizes the importance of statutory requirements and is committed to student safety and fiscal accountability.

Legislative Auditor Brian S. Tanen concluded in the report that while WCPS has cooperative leadership and generally sound financial practices, corrective action in the identified areas is necessary to ensure compliance with state law, safeguard assets, and promote efficient use of public funds.

State Denies Bay Restoration Fee Exemption for Pines

Worcester County officials are pushing back after the Maryland Department of the Environment denied a request to exempt the Ocean Pines Wastewater Treatment Plant from the state’s Bay Restoration Fee, a decision that could require every ratepayer in the Ocean Pines Service Area to pay an additional $60 annually.

The issue was discussed during the Feb. 17 meeting of the Worcester County Commissioners, where Public Works Director Dallas Baker outlined the state’s decision and asked for the commissioners’ support in seeking assistance from state representatives.

The Bay Restoration Fee, established under Maryland law to fund upgrades to wastewater treatment facilities and reduce nutrient pollution entering the Chesapeake Bay, is assessed at $60 per equivalent dwelling unit.

If the exemption is not secured, every ratepayer in Ocean Pines would be required to pay the fee in calendar year 2026.

The Bay Restoration Fee is $60 per equivalent dwelling unit, Baker told commissioners. Every ratepayer in Ocean Pines would be required to pay the fee if the exemption is not able to be secured.

At the center of the dispute are the treatment plant’s total nitrogen levels for calendar year 2025. To qualify for a BRF exemption, a facility must demonstrate an annual average discharge of 3.0 milligrams per liter (mg/L) or less for total nitrogen and 0.3 mg/L or less for total phosphorus. In addition, the facility must not have received state funding for its enhanced nutrient removal upgrades.

According to a Feb. 12 memo from Baker to the commissioners, the Ocean Pines facility posted an annual average nitrogen concentration of 3.6 mg/L in 2025 — 0.6 mg/L above the threshold required for exemption. Phosphorus levels met the 0.3 mg/L requirement.

Baker attributed the higher nitrogen average to abnormally low, sustained wastewater temperatures in January and February 2025, which he said impaired the biological processes necessary for nitrogen removal.

In January, the average wastewa-

Ratepayers May Face $60 Annual Charge

ter temperature was 10.1 degrees Celsius, and nitrogen levels measured 6.71 mg/L.

In February, the temperature averaged 9.9 degrees Celsius, and nitrogen rose to 11.92 mg/L. The plant is not designed to operate below wastewater temperatures of 12 degrees Celsius.

“We did not violate our permit — we just did not meet the Bay Restoration Fee criteria,” Baker said. He added that temperature affects microbiological activity, which is the only method to remove nitrogen from the waste stream.

If January and February are excluded from the annual average calculation, Baker said, the plant’s nitrogen level drops to 2.66 mg/L, which would qualify the facility for exemption.

County officials argue there is historical precedent for such an exclusion. In 2011, Ocean Pines experienced similarly sustained cold weather, and in 2012 the state granted the county a cold weather exception, allowing January and February 2011 to be removed from the enhanced nutrient removal calculations.

Baker first formally requested exclusion of the January and February 2025 sampling events in a June 2025 letter to Walid Saffouri, program administrator for the Engineering and Capital Projects Program within MDE’s Water and Science Administration.

“Wastewater temperatures during January and February were extremely low and caused the plant’s total nitrogen discharge to be higher than typical concentration levels,” Baker wrote. “Although these discharges do not represent a permit violation, they pushed the monthly average above 3 milligrams per liter.”

He emphasized that the cold temperatures were not only low but remained low for an extended period of time, impacting several consecutive effluent sampling events.

In a follow-up letter sent after all calendar year 2025 data had been collected, Baker reiterated that excluding the two winter months would bring the nitrogen average down to 2.1 mg/L, with phosphorus at 0.300 mg/L.

“As can be seen, the Ocean Pines

Wastewater Treatment Plant met the requirements to be exempted from the BRF when January and February 2025 are excluded from the calculations,” Baker wrote.

In a Feb. 5, 2026 letter responding to the county’s request, Saffouri informed Baker that MDE had determined the facility does not meet the requirements for exemption in calendar year 2026.

“To be eligible for an exemption, the BRF statute requires that the facility shows a full calendar year average of 3 milligrams per liter total nitrogen or less, and 0.3 mg/L total phosphorus or less; and has not received any funding from the State,” Saffouri wrote.

“Based on our review of the Ocean Pines Wastewater Treatment Plant discharge monitoring reports for CY25, the facility’s averages were 3.6 mg/L TN (>3) and 0.3 mg/L TP.”

Saffouri acknowledged that MDE reviewed the county’s request to remove January and February based on criteria set by a May 21, 2012 letter from the department. However, he stated that based on the submitted information and available data, the criteria were not met.

He noted that in 2012 only a few wastewater treatment plants in Maryland were operating under enhanced nutrient removal standards and there was limited performance data.

Today, he wrote, nearly 90 wastewater treatment plants operate under ENR requirements, with more than 20 years of performance data in both warm and cold regions of the state.

Based on that data, Saffouri wrote, MDE is confident that the ENR goals of 3 mg/L total nitrogen and 0.3 mg/L total phosphorus are practicable under state environmental law.

The letter also stated that the enhanced nutrient removal upgrade at Ocean Pines is more than 20 years old and may require refinement to ensure more consistent performance. MDE offered technical assistance and suggested that Worcester County could apply for Bay Restoration Fund grant money to make needed upgrades to the facility.

MDE further advised that the Maryland Water Infrastructure Financing Administration would re-

sume BRF billing for Ocean Pines in calendar year 2026.

During the Feb. 17 commissioners meeting, Commissioner Chip Bertino expressed concern over the denial and made a motion to formally request the assistance of the county’s state delegation in advocating for the exemption.

Bertino also asked whether testing the wastewater samples at a different laboratory might have produced a different nitrogen reading that would have been accepted by the state.

Baker responded that it was possible and said his department plans to begin sending samples to additional laboratories to compare results and see if they produce different values.

The commissioners unanimously approved Bertino’s motion to solicit the help of state representatives.

Baker told commissioners that support from both the county and state lawmakers could strengthen the case.

In his earlier correspondence, Baker noted that the county upgraded the treatment plant to enhanced nutrient removal standards without receiving federal or state grant funding. As a result, with limited exceptions, customers have not been charged the state’s Bay Restoration Fee in the past because their annual debt service payments for the upgrades effectively covered similar costs.

“Maintaining this exemption is particularly critical,” Baker wrote, pointing to inflation, uncertain federal and state funding for local needs and federal tariffs on necessary goods as financial pressures facing residents.

If the exemption is not granted, the $60 annual fee would apply to each equivalent dwelling unit in the Ocean Pines service area, adding a new cost for thousands of households.

MDE has indicated that the exemption is reviewed annually and that Ocean Pines may reapply for calendar year 2027 if the facility meets enhanced nutrient removal standards in 2026.

In the meantime, county officials are moving forward with a formal rebuttal and seeking assistance from their state delegation in hopes of reversing the decision before BRF billing resumes.

AARP offers free tax prep

The AARP Tax Aide Program is offering free tax preparation at several Worcester County libraries this tax season.

This program offers tax preparation at no cost to the taxpayer. There are no age limits or AARP membership requirements.

The program is offered from 9 a.m. – 3 p.m. at the following locations:

Mondays: Ocean Pines Library

Wednesdays: Berlin Library

Saturdays: Ocean City Library

Appointments can be made by calling 443-584-5661.

Prior to your appointment, please pick up an intake packet from the library and fill it out. Bring a copy of last year’s tax return with your direct deposit information for refunds to your appointment.

Kiwanis Club Pancake Day

Kiwanis Pancake Day is scheduled for Saturday, March 7, from 8-11 a.m.

The event will be held in the Assateague Room at the Ocean Pines Community Center. Kiwanian Candy Foreman is the esteemed Pancake Day Chairperson.

Tickets can be purchased at the door or from any Kiwanian in advance. The cost is $10 per person, with children under 10 eating free.

All proceeds go back into our community benefiting the children of Worcester County.

For more information, contact Seth Thatcher at 703-999-4057.

Anglers’ Fishing Flea Market

The Ocean Pines Anglers Club will host its 5th annual Fishing Flea Market on Saturday, April 18, from 7:30 a.m. – 1 p.m. in the Ocean Pines Community Center’s Assateague Room.

COMMUNITY NOTES

Visitors can buy and sell fishing, crabbing, and boating items, as well as crafts. Local captains, businesses, and area fishing legends will be on hand to share their fishing experiences and products.

Parking and admission are free. Hot coffee and fresh donuts will be available, as well as 50/50 raffle tickets (3 for $5).

Table rentals are $15 each. Set up for tables will take place on April 17 from 5 – 8 p.m.

All proceeds support the OPAC’s Teach Kids to Fish and Kids Fishing Tournament annual events.

For more information and to reserve a table, contact Doug Murphy at 908-910-6485, Robert Barrett at 614-206-9335, Dave Szimanski at 410-608-3514, or Jim Spicknall at 301-580-0377.

Men’s Twilight Golf League

The Ocean Pines Golf Club is excited to announce that registration is officially open for its Men’s Twilight League.

This six-week league begins on March 12 and will continue on Thursday evenings through April 16. In March, play will begin with a 5 p.m. shotgun start, shifting to a 5:30 p.m. shotgun start in April. Two-person teams will compete in a variety of formats for weekly payouts, including two closest-to-thepin contests each week, as well as a season-long league championship. Registration is $60 and includes entry into all weekly contests. Greens fees and cart fees are due on the day of play. Non-members will be charged the 9-Hole Resident Rate.

Please note that both players on each team must register individual-

ly and pay the $60 registration fee. In addition, all participants must have a valid GHIN handicap. Any player without an official handicap will compete as a zero.

To register, visit https://www.pga. com/things-to-do/events/o-p-men-sgolf-twilight-league.

For questions or more information, call the Pro Shop at 410-6416057.

Easter Brunch at Yacht Club

Enjoy brunch at the Ocean Pines Yacht Club this Easter Sunday, April 5.

The all-inclusive brunch buffet will feature carved ham and roast beef, scrambled eggs, bacon, French toast, breakfast pizzas, assorted breads and pastries, and much more.

Tickets are $37.95 for adults and $20.95 for children ages 12 and under, plus tax and gratuity. Children under 3 eat free. Coffee, tea, and soft drinks are included, with a cash bar and drink specials available.

This dine-in-only event will offer seatings at 10:30 a.m., 12:30 p.m., and 2:30 p.m.

Reservations are required. Payment in full is required to secure your reservation.

To reserve your seat, call 410641-7501.

Shamrock Scramble

The Ocean Pines Golf Club will host a Shamrock Scramble Golf Tournament on Saturday, March 14, with an 8:15 a.m. shotgun start.

The tournament will use a two-player team format. Players can test their luck of the Irish at checkin with the “Shamrock Advantages Draw Station”.

The registration fee is $25 per

On a frigid February evening Mid-Atlantic Symphony Orchestra patrons were warmed by the kick-off performance of the Orchestra’s Woodwinds and Strings Ensemble at the Community Church at Ocean Pines. The ensemble performed works that reshaped musical language across three centuries.   The audience was given a rare treat showcasing the Oboe played by MSO’s Principal Oboist Dana Newcomb playing Mozart’ oboe quartet in F major. Newcomb is pictured above with Rebecca Pille, Ocean Pines MSO board member.

player and includes entry into the prize fund, a draft beer, and your choice of a Reuben sandwich or hot dog following play. Members will pay their applicable greens and cart fees, while non-members may participate for a $45 greens and cart fee, payable on the day of play.

For more information or to register, call the Pro Shop at 410-6416057 or email Golf Director Matt Ruggiere at mruggiere@oceanpines. org.

Puser named Crafter of the Month

The Pine’eer Craft Club has selected Sharon Puser as the February Crafter of the Month.

Puser retired and moved to Ocean Pines full time in 2008, at which point she began to devote a lot of her free time to crafting. She joined the Pine’eer Craft Club in 2009. She later took on leadership roles, serving as treasurer before becoming president in 2013 a position she continues to hold today.

Her specialty is creating clothing for American Girl dolls, a hobby she first began for her granddaughters. Although they are now both married, Puser’s passion for doll clothing remains strong. Her creations include international costumes, birthstone dresses, elegant party gowns, and outfits for Bitty Baby dolls.

Puser also creates shaped decorative pillows, such as flip flop pillows, sailboats, anchors, fish, turtles, and more.

“My favorite thing about crafting is the creativity it allows you to express and the satisfaction you get of creating something others can en-

joy. I love to see the excitement on a child’s face when they see the doll clothes I have made.”

Puser also enjoys needlepoint, counted cross-stitch, wreath making, paper crafts, and more.

Puser’s handmade items are available at the Pine’eer Craft Club Artisan Gift Shop, located in White Horse Park in Ocean Pines. The shop is open Saturdays from 9 a.m. to 3 p.m. and Sundays from 10 a.m. to 3 p.m.

Submitted Photo
Beth Woodell, at the prize table with Bo and Josh Nestler, celebrates the Jewish holiday Purim at Temple Bat Yam in Berlin on Sunday, March 1. Because of the tradition of wearing costumes and having parties, Purim, which is compared to Halloween, commemorates the saving of the Jewish people in ancient Persia from a plot to destroy them.

Veterinarian Opens 24/7 Emergency Pet Hospital

Guardian Vet Group brings round-the-clock care and a new general practice to an underserved area

Veterinarian Dr. Cecelia Wolf remembers when friends from her days at Stephen Decatur High School in Berlin would call her after she graduated from veterinary school, asking, “Can you help me?”

“I said, ‘Go to your local vet’ then I went on Google and they didn’t have anybody. My friends would drive to Baltimore to see me, three hours with an animal suffering in their car. I graduated and I had said I was never coming back here but obviously I came back. This area needed a real emergency room, 24 hours a day, every day of the week. Pet ER in Salisbury is not open all the time and each time my friends had those emergencies with their pets was the times they weren’t open,” said Wolf, who owns The Guardian Vet Group, a pet emergency clinic in Pittsville.

This summer, she will also begin a general veterinary practice on the other side of the building at 7040 Morris Road, near Pittsville Ford automobile dealership and visible from Route 50, where pets can be seen, have growths removed, undergo ultrasounds and get vaccinations, spayed, neutered.

The emergency care side of The Guardian has been open for several months and offers critical care, specialty surgeries and wellness services and focuses on “compassionate, fear-free handling and allowing owners to stay with their pets,” the website says, reassuring pet owners. See www.theguardianvetgroup.com or call 410-888-0066.

Every pet lover knows the pain of losing that faithful friend, but Wolf said the positive aspect of euthanasia is making the pet’s end of life comfortable.

“Dying naturally, most of the time, is not friendly – from seizures, bleeding out and all these terrible things. I can make a cocktail and, for the animal, it’s like ‘Oh, my. This pain is gone and I feel so relieved.’ Everything dies. I used to think I wanted to save them all but the majority of pets that come into an ER are older so you have to recognize

when it’s time. You love your pet. It’s supposed to hurt. But I can help guide the owners,” she said.

Wolf, 31, said the clinic -- staffed by 18 veterinarians including some that work there full time -- is a state-of-the-art facility that features a non-profit fund for families in need as well as a mentorship program for new veterinarians.

Clients receive emergency and critical care as well as routine wellness, vaccinations, primary care and specialty surgery, all done with a holistic approach and options for pet owners who can decide on minimum to aggressive treatment, one diagnostic at a time.

“We never judge and we always offer the gold standard of medicine. Everyone on our staff is so excited to be practicing this gold standard,” Wolf said, referring to quality, reliable treatment.

All types of pets are seen at The Guardian -- “Anything that can fit through the door,” Wolf said, adding her favorite animal is the cat “because most people don’t handle them properly and I like to teach people how to handle them.”

Teaching, she said, is her passion, so she mentors and trains young veterinarians.

“They are fresh out of school so I’ll be with them. They are already doctors but when you first graduate you’re not ready for the world. You read the books you but didn’t see it in person so we do these programs,” she said.

The Guardian doesn’t charge an exam fee or emergency fee but Wolf said it’s difficult to estimate the average cost because it depends on what the pet needs. The clinic accepts CareCredit, ScratchPay, Af-

firm and Klarna.

A graduate of Ross University School of Veterinary Medicine on the Caribbean Island of St. Kitts and Royal Veterinary College in London, Wolf, a native of Whaleyville, graduated in 2021

Originally, she had an interest in law and wanted to be a lawyer for animal rights, especially since the sight of blood was unsettling for her.

“I passed out from blood and you can’t be a doctor if you pass out from blood so I started law school, but it was so boring. I fell asleep in all my classes. I switched to biology and found it to be fun,” she said. A doctor who used to operate an urgent care practice in Ocean City told her he became a military doctor and also passed out when he saw blood but, he explained, the body adapts “and all that nausea goes away.”

“It was like two months after I graduated that I thought, ‘Oh, my God. It didn’t work’ but then it went away,” she said.

“It paired with knowledge, being 100 percent knowledgeable about what you are doing and understanding everything.”

Submitted Photo
The team at The Guardian Vet Group.

Memorial Foundation announces change in leadership

The Worcester County Veterans Memorial Foundation has announced that Marie Gilmore is stepping down as president, with Rick Farr selected as her successor.

Gilmore joined the Board of Directors in 2005 and served in multiple leadership roles, including secretary and vice president, before being elected president in 2012. After briefly stepping off the board due to term limits in 2014, she returned in 2015 and has served as president since.

“It has been my honor and a privilege to have served as President of the Foundation. I have chosen to step aside now for two reasons. First and foremost, because Rick Farr has demonstrated his devotion to honoring veterans through his service as a director on the Foundation’s Board. As a veteran he understands the importance of educating the youth of our community about the sacrifices veterans, and their families, have made. He is highly qualified through his service to our country and the personal skills he brings to the position,” said Gilmore.

Gilmore added that it was always her hope to be able to step away while she can remain on the board to be of service.

“I step down as President with a grateful heart for having served for so long.”

Farr spent 22 years in the United States Air Force, supporting many military operations including Desert Shield & Desert Storm, Operation Noble Eagle, Operation Northern Watch and Southern Watch, Operation Enduring Freedom, and Operation Iraqi Freedom. He was awarded the Citation for Valor for Operation Iraqi Freedom.

“It is a true honor to be elected to serve as the next president of the Worcester County Veteran Memorial Foundation,” Farr commented. “I look forward to continuing to serve our veterans and ensure they continue to be fully recognized for their unwavering dedication and service to our community and our country.”

Farr also serves on the Ocean Pines Association Board of Directors as vice president.

In recent years, the memorial has expanded with additions such as the Patriots Pathway, the POW/ MIA Chair of Honor, the Battlefield Cross, and a gazebo. A site refresh is currently underway, including

new grading, concrete, landscaping, and recognition of the United States Space Force. The project is expected to be completed by May 1.

The Worcester County Veterans Memorial Foundation is inviting individuals and businesses to become members and help preserve a place of honor for those who have served our country.

Memberships and donations directly support the foundation’s Educational Outreach Program, which

provides every fifth-grade class in Worcester County the opportunity to participate in a field trip to the Veterans Memorial in Ocean Pines. During the visit, students rotate through three educational stations, where they learn about the memorial and veterans’ stories, proper flag folding and etiquette, and the Patriots Pathway.

In addition to the Educational Outreach Program, memberships and donations also help fund the on-

going maintenance, programs, and enhancements of the memorial.

Membership levels include: Annual $25, Life $150, Corporate Annual $100, Corporate Life $300. Checks should be made payable to WCVMF and sent to Membership, Worcester County Veterans Memorial, P.O. Box 1576, Ocean Pines, MD 21811.

For more information, contact Suzie Pantone at Suziepan123@gmail. com. To learn more visit www.wocovets.org.

At 90, Shirley Hailey Still Strikes the Right Note

To longtime pianist and church organist Shirley Hailey, being 90 years old doesn’t seem possible.

“It really doesn’t, but that’s what they tell me,” the upbeat Berlin resident, who has been church organist at St. Paul’s By-the-Sea Episcopal Church in Ocean City for half a century, as well as the star of area piano bars for many years, said with a laugh.

Professionally known as Shirley Toms, she started in the mid-1970s, entertaining at several hotels and still plays at The Atlantic Hotel in Berlin on Friday evenings from 6 to 9 p.m. and from noon to 3 p.m. on Sundays, during brunch. In 1975 she became organist at St. Paul’s, when the Rev. Holly Barton was pastor, many years before the arrival of the current pastor, the Rev. Jill Williams, who has a deep fondness for Hailey.

“Shirley is not only a faithful member of our congregation, but she has been leading the music ministry here for over 50 years. Her music enriches our worship but her presence enriches our very lives. We don’t know what we would ever do without her. Shirley is a truly remarkable person,” the Rev. Williams said.

“I just love Miss Shirley,” St. Paul’s member Debra Allen of Berlin said. “My mother has died and gone to heaven and Miss Shirley is just like a mother to me. She always looks for my hair style. She told me one Sunday ‘I was wondering what hair style you’d have today,’” Allen said.

“At the church, I play the pipe organ,” Hailey said.

“It’s totally different in touch and everything. There are a lot of pedals. A lot of people, well educated people, play it without their shoes on. They can feel what note it’s on with their feet. They feel the note. I played the organ with the piano in clubs on the boardwalk in Ocean City. I would play the organ with my left hand and the piano with my right hand. It was good for dancing. It was fun but when I went to (the former) Dunes Manor it was totally different. I was in a very large lobby and they had a piano that was terrible. They bought a very nice 1890 piano and moved me to the center of the lobby. I couldn’t have the wires from an organ all across the floor so I started

Longtime organist at St. Paul’s By-the-Sea Episcopal Church and beloved performer at The Atlantic Hotel reflects on 50 years of music, memories and community

playing straight piano,” said Hailey, who was a staple at Dunes Manor for 32 years.

The hotel, on the beach at 28th Street, was sold and is now a Hilton Garden Inn Ocean City Oceanfront.

“The Hilton bought that hotel. It was always Victorian. That beautiful piano was in the center of the lobby and that is where I sat. I would greet people coming in and I’d catch them getting off the elevator. I had a lot of fun there. I watched children grow up there. They’d send me pictures. I still hear from them,” she said.

She has played at other hotels as well, including The Commander, Seascape Motel and The Carousel.

A native of Baltimore, Hailey always had her heart set on living in Ocean City.

“I never thought I’d be able to. I thought it would be just a dream. I was told I wouldn’t make a living in Ocean City year-round and I said, ‘Well, I’m going to go.’ I was very lucky because back in the 1970s, in the wintertime, almost everyone was closed up. There were like three places in town that stayed open for the weekends and the Seascape was one of them. When I left The Carousel I went down there on weekends. I played weekends then I started playing for church in 1975. When I played at hotels, they paid me but I

also had a tip bowl. I still have a tip bowl at the Atlantic Hotel,” she said.

After a minute of thought, she said she doesn’t have a favorite song, but she and her late husband, Rex Hailey --who was on the Berlin Town Council for years and Berlin mayor from 1996 to 2004 -- considered “Send in the Clowns” their song.

It was music that brought the couple together. Hailey was general manager of the Quality Inn and she was playing at the Seascape.

“He started coming in for a late breakfast. He started coming in 1 a.m. He was always funny. It took awhile before we could go out because I was playing six nights a week and he was at the Quality Inn until 1 a.m. He loved politics. I played at the State House in Annapolis when Gov. (Parris) Glendening was in office and Gov. (William Donald) Schaefer. We used to have a Dollar General store in downtown Berlin and I saw Gov. Schaefer in there one time. He said, ‘Hello, how are you?’ and I said, ‘Hello.’ He said, ‘This is a wonderful store.’ He was always known for being cheap,” she said, laughing.

“Through the years I’ve played a lot of old songs. I still play older music for people because they enjoy it. They’ll say it’s nice to hear those songs. I play songs from the 1940s but I also play newer things, some of the good show tunes like from ‘Phantom of the Opera.’ I can play polkas and cha-chas and all that kind of stuff. ‘What a Wonderful World.’ Elvis Presley songs. A couple Beatles songs. A lot of different things. They want to hear ‘Stardust,’ ‘As Time Goes By.’ All that stuff. Other people want to hear ‘All I Ask of You’ and all those different shows and songs. I play songs from all over. Through the years in Ocean City I played for sing-alongs. Everybody would come in and sing,” she said.

Before she moved to the beach, her first husband worked for Bethlehem Steel and when the employees went on strike, she started moonlighting as a musician.

“We needed the income. I didn’t think I would make a living at it,” she said, remembering being hired to play in a dining room.

“That is where I started, in 1970,” said Hailey, who raised that first husband’s two children, had two

Submitted Photo
Miss Shirley at the organ at St. Paul’s Episcopal Church, where she has been organist for 50 years.

Miss Shirley

From Page 28

more of her own then adopted two. One daughter and three grandchildren live in the area. “They are all grown and all spread out except one, who is here,” she said.

“I really love to play and the music makes me feel good then the income helps for me to stay in my home,” she said.

“I have never gotten tired of it. I could have so much fun. It’s the people. They are wonderful. All the people I have met in Ocean City, especially. Since I left the hotels, they keep in touch with me. They come and see me at the Atlantic Hotel. They send me Christmas cards. Some of my people from the Seascape were older than me to begin with and now they’re not around.

Pine Tones Chorus Recruits Members

Twice a year, the Pine Tones Chorus performs an engaging local concert combining old favorites and fresh material alike.

On Thursday, March 5, PTC will be holding a first rehearsal to prepare for its Spring concert, Pine Tones Goes to the Movies. The variety of musical selections include Somewhere Over the Rainbow, 42nd Street, Moon River, and When You Wish Upon a Star. The chorus consists of musically proficient amateurs with a professional sound.

The first rehearsal is an opportunity for interested folks to try out the group, meet other singers, ask questions, and decide if it’s a good fit. Musical training and experience are highly valued, but not necessary. If you love to sing, they welcome you.

There will be 14 rehearsals in preparation for the June 5 performance of Pine Tones Goes to the Movies. As a service to the community, PTC prides itself on performing at assisted living and senior centers throughout Worcester County in the weeks before the concert.

Contact Jenny Anderson at 443655-5636 or Dave Holloway at 610213-7472 with questions. Email: pinetoneschorus@gmail.com. Follow on Facebook or @pinetoneschorus.

Funding for this event is in part provided by the Worcester County Arts Council, Maryland State Arts Council and the National Endowment for the Arts, organizations dedicated to cultivating a vibrant cultural community.

We had so much fun every place I ever played. All we did was laugh and sing and everybody was having fun,” she said.

Hailey was a girl of 10 when she started taking piano lessons after learning flute in school and later studied classical music with a retired Peabody Institute teacher

“I always wanted to play the piano. I would have played it sooner if I would have had a piano. My brother went out and bought me an old upright for $35. I loved it. My parents never had to tell me to go practice. I just loved playing music. I had very

good parents who never said, ‘Oh, stop playing” because when you first start and you’re learning and making mistakes it can be annoying,” she said.

“When I went to St. Paul’s as organist, I was Methodist. Our church was on Third Street in Ocean City and the Episcopal church is on Fourth Street. When I moved here, I joined the Methodist church. (Ocean City resident and well-known musician) June Todd found out I played so I helped her. I had people who played instruments come and sit with me. There was a local man and

he played the trumpet. The best trumpet player you ever heard. He asked me to be the church organist at St. Paul’s and I said no, I wouldn’t do it. He said, ‘I come in here and play with you and you won’t be our organist?’ I met Father Holly Barton and I said, ‘I will help you until find somebody’ and now 50 year later I am still there,” she said.

“Oh boy. I’ve had a very busy life. I’ve been very lucky. God has been good to me. I got to do what I love to do and be able to make a living at it and I’ve never gotten tired of it. I’m very satisfied.”

Join Ocean Pines Kiwanis for a night of Bingo & Cash Prizes !

When: Wednesday, March 18, 2026

Where: Ocean Downs Casino, Event Room, 10218 Racetrack Road, Berlin, MD 21811

Time: Doors Open @ 5 P.M.; Bingo Starts @ 6 P.M.

Ticket and Prize Info :

$40/person (includes 19 games; $100 cash prize/game)

“Special 20thJackpot Game” available after admission - $200 cash prize

50/50 tickets available throughout the night

Pull Tabs available throughout the night - $1 each

Free door prize drawing before each game

$10 coupon for Casino play - provided by Ocean Downs

Ultimate raffle for Ocean Downs gift bag worth over $200

Ocean Downs provides food and beverage concessions that may be purchased. Alcohol is prohibited in the Event Room, and participants must be 21 to play.

For questions or to purchase tickets, call 410-208-3115.

Tickets can also be purchased online at https://kiwanisofopoc.org .

Reserved seating will be available for groups of 8 players, if all tickets are purchased within one transaction.

Net proceeds benefit the children of Worcester County .

Dear Editor,

The SAVE act was introduced in the House 01/03/2025. It stands for: “Safeguard American Voter Eligibility.” This act is so very necessary now considering how 25 million foreign people were allowed to invade this country under the “leadership” of the Democrats and Joe Biden.

Say what you will about these people but they are, unquestionably, illegal, not citizens and not eligible to vote! In order to combat another possibility of a stolen election, we need to have this bill passed and made into law. Some say it is racist. How utterly ridiculous!  People who are against its passage simply want to steal elections!

This bill requires individuals to provide documentary proof of U.S. citizenship when registering to vote in federal elections.

Specifically, the bill prohibits states from accepting and processing an application to register to vote in a federal election unless the applicant presents documentary proof of U.S. citizenship. The bill specifies what documents are considered acceptable proof of U.S. citizenship, such as identification that complies with the REAL ID Act of 2005 that

LETTERS TO THE EDITOR

indicates U.S. citizenship.

Further, the bill (1) prohibits states from registering an individual to vote in a federal election unless, at the time the individual applies to register to vote, the individual provides documentary proof of U.S. citizenship; and (2) requires states to establish an alternative process under which an applicant may submit other evidence to demonstrate U.S. citizenship.

Each state must take affirmative steps on an ongoing basis to ensure that only U.S. citizens are registered to vote, which shall include establishing a program to identify individuals who are not U.S. citizens using information supplied by certain sources.

Additionally, states must remove noncitizens from their official lists of eligible voters.

The bill allows for a private right of action against an election official who registers an applicant to vote in a federal election who fails to present documentary proof of U.S. citizenship.

The bill establishes criminal penalties for certain offenses, including registering an applicant to vote in a federal election who fails to present documentary proof of U.S. citizenship.

Also, people who do not want mandating ID to vote  just want to cheat. Do you know how many activities mandate personal identifica-

tion in order to receive eligibility for services? Would you believe 65. Here is a list. (See Below) Yes, you will need an ID to attend a political event but NOT the political event of voting. This contradiction has to stop!

I would like to take this opportunity to thank Senator Carozza and Delegate Hartman for their support for free and fair elections. Without this, we have no republic!!

Dennis W Evans

Berlin

The Ocean Pines Progress is a journal of news and lifestyles published monthly throughout the year. It is distributed to every occupied home in Ocean Pines and at newsstands in the community and surrounding area.

PUBLISHER/EDITOR

Rota L. Knott pinesprogress@gmail.com 443-880-3953

ADVERTISING SALES

Frank Bottone frankbottone@gmail.com 410-430-3660

CONTRIBUTING WRITER

David Bohenick dbohenick2003@gmail.com

Send your community news releases, letters to the editor, and upcoming events information to us at: pinesprogress@gmail.com

Follow us on Facebook for news and community updates all month!

Changing the Meeting Schedule Is Worth Another Try

Change is never easy, especially when it involves something as visible and routine as a Board meeting schedule. But the recent 6–1 vote to adjust at least one meeting date and time this summer deserves strong support. Director Steve Jacobs’ motion, seconded by Director Elaine Brady and ultimately approved by the Board, reflects a willingness to try something different in the interest of broader participation and better governance.

For years, the Ocean Pines Association has shifted Board meeting dates and times in an effort to encourage more members to attend. Morning meetings became afternoon meetings. Weekday gatherings became weekend sessions. In-person shifted to hybrid and virtual options, and back again. And yet, despite those adjustments, attendance patterns often remain stubbornly unchanged.

That reality does not mean experimentation should stop. It simply means that increasing engagement is complex. If the goal is to make participation more accessible, then trying again is not a sign of inconsistency. It is a sign of responsiveness.

Director Stuart Lakernick’s concerns about consistency and honoring the publicly adopted schedule are understandable. Stability matters. Members rely on predictable calendars, and changes can create confusion, particularly during the summer months when many residents are part-time.

But as OPA President John Latham noted, this is precisely why addressing the issue publicly and thoughtfully is important. The Board is not acting arbitrarily; it is signaling openly to the community that it wants to consider whether different meeting times might make attendance easier for more people.

The proposal to shift meetings to around 7 p.m. reflects a practical understanding of modern work schedules. As Director Rick Farr observed, many residents and even Board members work full-time jobs. Participation in meetings may require taking time off or logging in remotely. That limits face-to-face engagement and may discourage those who would otherwise attend. Evening meetings offer working residents the opportunity to get home, have dinner, and still participate

in the governance of their community.

There is also a staffing consideration. Latham pointed out that from an operational

COMMENTARY

standpoint, it would be beneficial for the general manager and staff not to have to come in on a Saturday. Weekend meetings may seem convenient for some, but they can create additional burdens for employees, he said.

A weekday evening schedule could strike a better balance between member access and staff workload.

Importantly, this change is being approached as an experiment. Several Board members, including Director Monica Rakowski and Brady, suggested trying the adjustment for a month.

Jacobs emphasized that this is an “experimental period” and that flexibility was always part of the intent. The bylaws require six meetings, and by summer those obligations are typically fulfilled. That built-in flexibility allows the Board to test new approaches without jeopardizing its core responsibilities.

Jacobs also made a critical point: Board meetings exist primarily for the Board to transact its business. Public attendance is important, but governance must remain functional and efficient. If an evening schedule allows more direct, in-person discussion among Board members and reduces reliance on remote participation, that alone may strengthen decision-making.

Ultimately, trying a new schedule is a recognition that community engagement deserves ongoing attention.

After years of shifting times with limited results, it is still worth trying again. A single adjustment does not bind the Board forever. If it does not improve attendance or accessibility, it can be revisited.

Another factor worth considering is the recurring request from a small

but consistent group of public commenters who have asked the Board to allow remote public comment during meetings. While the Board currently does not permit virtual public comment, those requests signal a broader concern about accessi-

bility and inclusion. Some residents may be working, traveling, or unable to attend in person for health or mobility reasons.

Adjusting meeting times to evenings does not resolve the remote comment issue, but it does demonstrate a willingness to explore ways to make participation more practical for more people.

ATTORNEYS

REALTOR

Turn static files into dynamic content formats.

Create a flipbook