Resume

Experience
2019-2021 _ SiteArchitect
SGADesignlab-IITTirupatiSite
2021-2022 _ JrArchitect
SankarAssociates-Coimbatore
2022-2023 _ Architect
SVKAssociates-Salem
2023-Present _SrInteriorDesigner
Livspace-Hyderabad
Education
2014-2019 _ B.Arch
Adhiyamaancollege-Hosur
2013-2014 _ HSC
GugaiHrSecSchool-Salem
Software
AutoCAD Sketchup
Enscape Lumion
Photoshop
Soft skills
Leadership Communication
Empathy DesignThinking Contact
Mobile 8610444478
Email obulisanakran@gmail.com
Photography
My Philosophy


I believe that good architectural design is not just about creating an intelligent blend of style, form and function. It is also a form of Influencing Emotiions with Space and Function.
Every brick, every pillar, every wall has a part in the story. They contribute to the narrative of the entire structure.

Client: Mr. Vivek
Location: Salem
Area:
Scope: Architecture, Interior Design
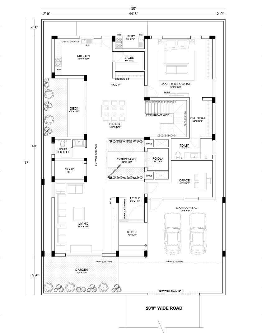
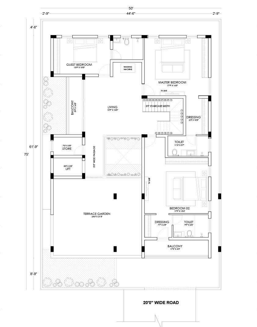
VeeVee House, 2022- 23

GROUND FLOOR FIRST FLOOR

VeeVee House, 2022- 23




VeeVee House, 2022- 23




Every brick, every pillar, every wall has a part in the story. They contribute to the narrative of the entire structure.

Client: Mr. Prabhakar
Location: Salem Area:
Scope: Architecture, Interior Design
Rajamma guest House, 2022- 23


Rajamma Guest House House, 2022- 23

Living Room Dining

Rajamma Guest House House, 2022- 23


Rajamma Guest House House, 2022- 23

B e d r o o m 2



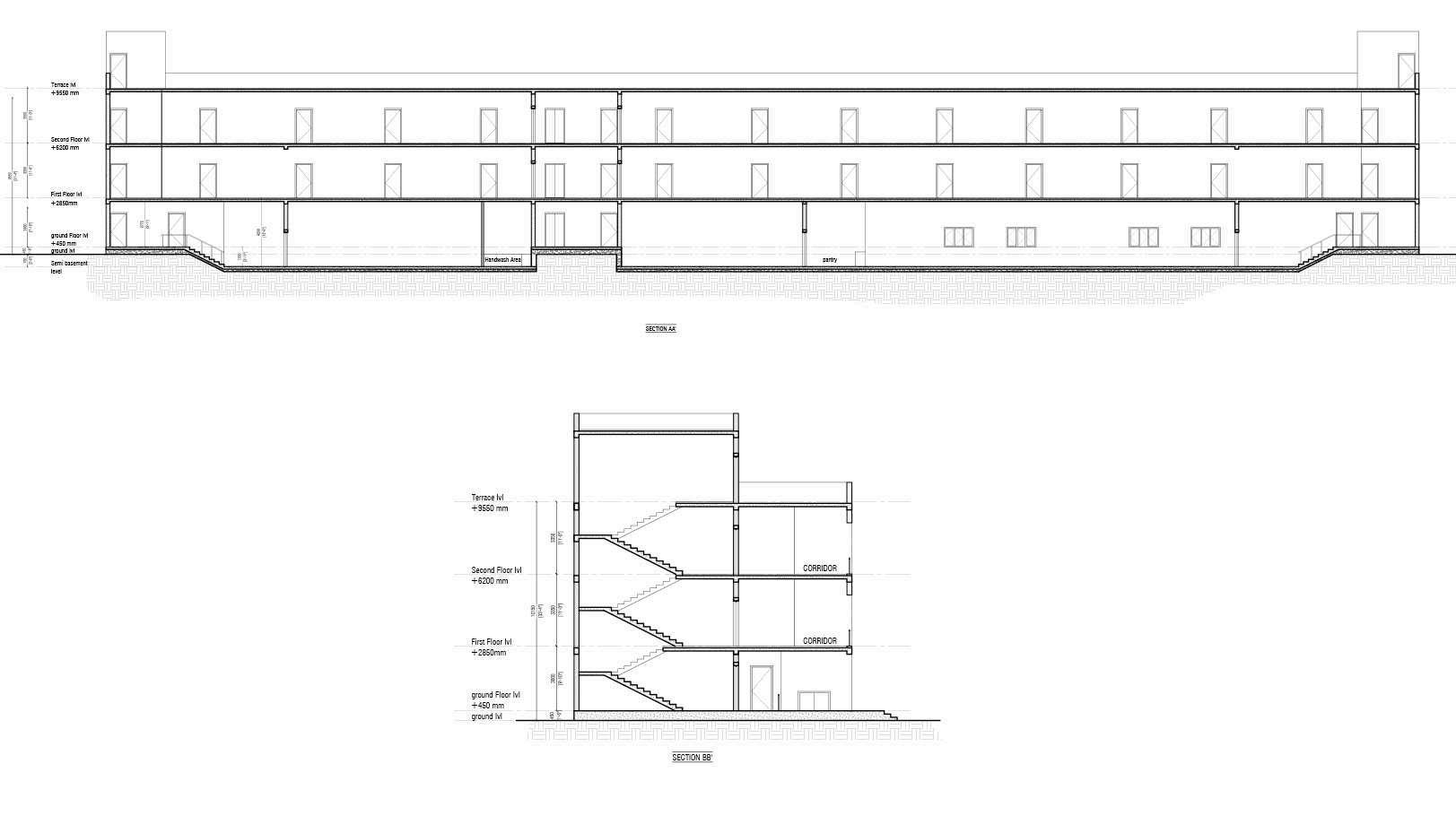
School Hostel Planning - 2021-2022

Location: Salem
Area: 9700 sq.ft
Scope: Architecture
School Hostel Planning - 2021-2022

Area: 9700 sq.ft
Scope: Architecture
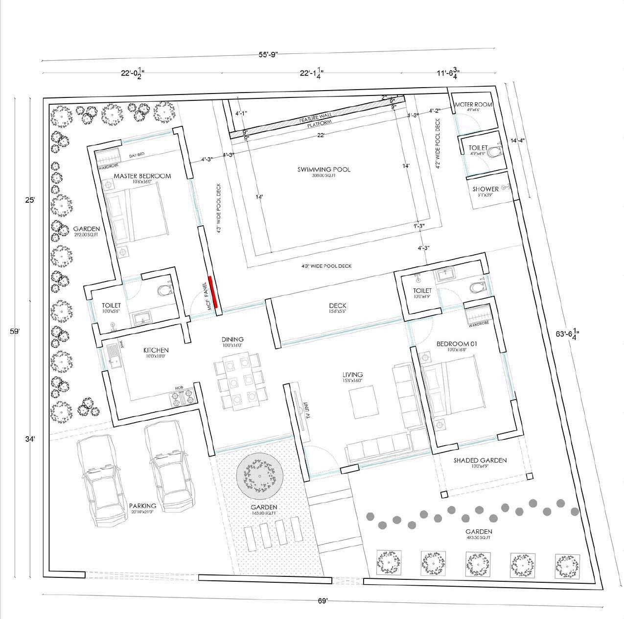
SSS Residence, Salem, 2022- 23

Project: RESIDENCE
Client: Mr. SSS
Location: Salem
Area: 1200 sq.ft
Scope: Architecture
SSS Residence, Salem, 2022- 23


ELEVATION VIEWS
GB Residence, Salem, 2021- 22

ELEVATION VIEWS
Susan Residence, Salem, 2021- 22

Project: RESIDENCE
Client: Ms. Susan
Location: Salem
Area: 1800 sq.ft
Scope: Architecture
Prasanna Residence, Salem, 2022- 23


Client: Mr. Prasanna
Project: RESIDENCE
Scope: Renovation, Interior Design
Location: Salem
Son Bedroom
Prasanna Residence, Salem, 2022- 23


Client: Mr. Prasanna
Project: RESIDENCE
Scope: Renovation, Interior Design
Location: Salem
Son Bedroom
Prasanna Residence, Salem, 2022- 23


Client: Mr. Prasanna
Project: RESIDENCE
Scope: Renovation, Interior Design
Location: Salem Daughter Bedroom
