42 and 44 Gillies Avenue | Property Information Memorandum | NA

Page 3

42 AND 44 GILLIES AVENUE TAUPO, TAUPO

Notice of Disclaimer

To be read before reading the contents of this Memorandum.

This Memorandum has been prepared solely to assist interested parties in deciding whether to express their interest in the assets and then making their own evaluation of the property and its assets. The Memorandum does not purport to contain all information that a prospective Purchaser may require. In all cases, interested parties should conduct their own investigation, analysis and verification of the data contained in this Memorandum and the property. Neither the delivery of this Memorandum nor any contractual agreement concluded thereafter shall under any circumstances create any implication that there has been no change in the affairs or prospects of the property since the date of this Memorandum or since the date as at which any information contained in this Memorandum is expressed to be applicable.

The Advisors have not independently verified any of the information contained in this Memorandum. None of the Advisors or Owner make any representation or warranty as to the accuracy or completeness of the information contained in this Memorandum and none of the Advisors or Owner shall have any liability for any statements, opinions, information or matters (express or implied) arising out of, contained in or derived from, or for any omissions from, or failure to correct any information in this Memorandum, or any other written or oral communications transmitted to any recipient of this Memorandum in relation to the property.

Retention of this Memorandum will constitute acceptance by the recipient and readers of these terms and conditions and any recipients who do not accept any of the terms and conditions should return the Memorandum to the Advisors immediately.

Each office is independently owned and operated. STLD Limited (licensed under the REAA 2008) MREINZ.

2 | Property Information Memorandum

42 AND 44 GILLIES AVENUE, TAUPO

PROPERTY ID: TAUP2026

For Sale 1 4 5

For Sale Price By Negotiation

Legal Description

Being more particularly described in the attached Record of Title

Legal Estate Freehold

Legal/Lot/Unit/ Lot 104 and Lot 1 DPS 743 and DPS 53952

Legal Unique

Identifier or CT

SA1099/5 and SA45A/898

Age 1953

Floor Area 182 sq m

Land Area 1,696 sq m (more or less)

Aspect West

Rates

Land Value

Improvements

Capital Value

TDC $4,841.97 | WRC $604.29

$1,255,000

$495,000

$1,750,000

Property Information Memorandum | 3

PRIVATE OASIS WITH INCOME POTENTIAL

Nestled behind mature trees, on a magnificent elevated position, with expansive lake, mountain and Acacia Bay views, this much loved home is looking for a fresh update to take it to the next level and create a stunning private oasis.

The home comprises five bedrooms and four bathrooms, providing plenty of scope for family, multigenerational and holiday living with scope for additional income from a separate one bedroom cottage .

The main house has an abundance of space and privacy, with an open plan kitchen, dining and living plus a separate living room all positioned for the views. The master suite features a walk in robe and en-suite complete with bath. Two further bedrooms are serviced by a family bathroom. A fourth bedroom with en-suite is located at the other end of the house, giving privacy and space for guests or extended family.

The batten and board property house provides numerous options for entertaining family and friends either alfresco on the decks or in the generous landscaped garden. The home is heated by a gas fire and wood fire with the addition of infrared heating for quick and easy warmth. All bathrooms have underfloor heating.

The one bedroom cottage, adjacent to the main house, features open plan living, dining and kitchen. A deck overlooks the swimming pool where views of the lake can be enjoyed.

A carport, additional off-street parking and space on the grounds to park a boat or caravan cover all the bases for everyone's parking needs.

This much loved family home, on two titles and with stunning views, offers its new owners a wonderful lifestyle in an enviable position with the potential for additional income.

4 | Property Information Memorandum

PROPERTY INFORMATION

42 AND 44 GILLIES AVENUE, TAUPO, PROPERTY ID: TAUP2026

Bedrooms Five Double Bedrooms

Wardrobes Walk-in x 1, Double x 1, Single x 2, Built-in x 4

Kitchen Open-plan, Modern, Standard Pantry

Dining Combined Lounge, Combined Kitchen

Lounge Open Plan

Other Rooms Big Study/Office, Separate Laundry - Third Bathroom, Garden Shed

Bathrooms Two

En-suites Two

Garage/Parking Single Carport, Off-Street Parking

Water Heating Master En-suite Electric; Kitchen & Bathroom Gas

Heating Gas Fire x 2, Open Fire x 1, Infrared Bar Heaters x 2

Insulation Ceilings Insulated, Walls Insulated - where possible

Flooring Concrete

Floor coverings Carpet, Tiles- Ceramic

External Features

BBQ Area, Deck / Patio, Landscaped Garden, Low Maintenance Garden, Matured Garden, Native Tree, Outdoor Lighting/Power, Pop-up and Timer Irrigation Systemdial on hose

Property Information Memorandum | 5

PROPERTY INFORMATION CONTINUED

42 AND 44 GILLIES AVENUE, TAUPO, PROPERTY ID: TAUP2026

Swimming Pool and Accesssories Inground, Compliant Fencing, Pool Equipment

Fencing Partial

Land Contour Level Contour, Sloping Contour

Views City, Water, Private, Lake, Local

Roof Profiles Metal eg Longrun

Exterior Board And Batten: Rimu

Joinery Aluminium, Timber, Double Glazed - Partially in Kitchen and Living

Foundation Concrete Block, Timber Piles

Water Supply City

Sewerage City

Fixed floor coverings, Light fittings, Blinds, Curtains, Rangehood, Kitchen waste disposal, Burglar Alarm, Heated towel rail(s) x 4, Garden Shed, Bathroom Extractor

Chattels

Fan, Clothesline, Dish Drawer x 2, Double Oven (Steam and Electric), Hob Gas, Pool, Pool Accessories, TV Aerial

Studio - Dish Drawer x 1

6 | Property Information Memorandum

42and44GilliesAvenue

46 44 2/10 2/8 8 43 45 47 42 38 40 36 39 41 49 53 2/36 GilliesAvenue TheinformationdisplayedhasbeentakenfromTaupoDistrict Council'sGISdatabasesandmaps.Itismadeavailablein goodfaith,butitsaccuracyorcompletenessisnotguaranteed. PositionofpropertyboundariesareINDICATIVEonlyandmust notbeusedforlegalpurposes.Cadastralinformationsourced fromLandInformationNewZealand.CrownCopyright Reserved.Thismapisnottobereproducedwithoutpermission ofTDC.©CopyrightReservedTaupoDistrictCouncil. ¯ 0 0.01 0.02 0.03 0.04 0.01 km
Property Information Memorandum | 7
AERIAL SHOT

CERTIFICATE OF TITLE

42 AND 44 GILLIES AVENUE, TAUPO, PROPERTY ID: TAUP2026

RECORDOFTITLE

UNDERLANDTRANSFERACT2017

FREEHOLD

Register Only Search Copy Dated 13/02/23 11:06 am, Page of 1 2 Transaction ID 538747 Client Reference valexander002 - 42 Gillies Avenue
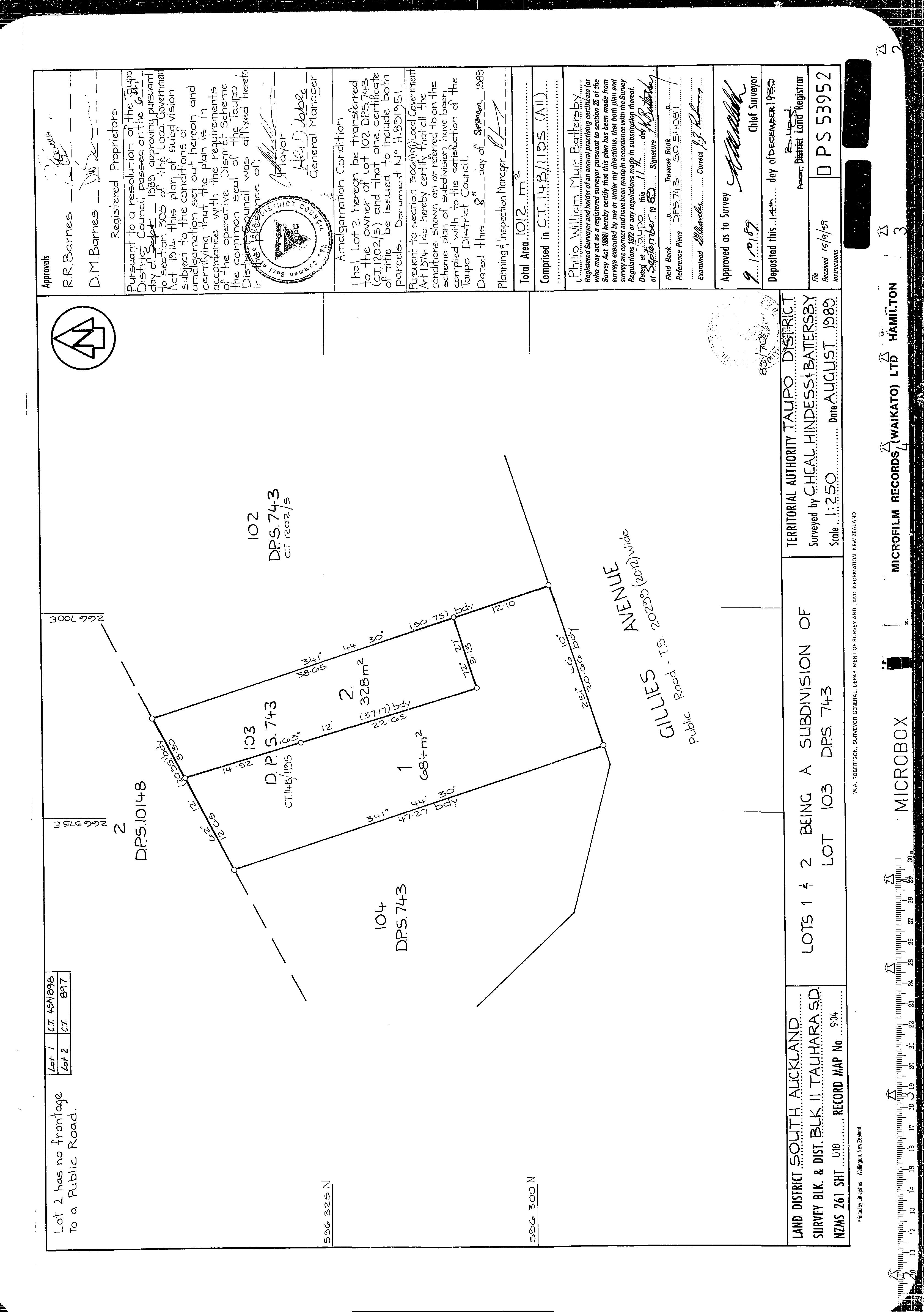
SearchCopy Identifier SA1099/51 LandRegistrationDistrict SouthAuckland DateIssued 15February1954 PriorReferences SA711/206 Estate FeeSimple Area 1012squaremetresmoreorless LegalDescription Lot104DepositedPlanSouthAuckland 743 RegisteredOwners DeliaMaryBarnes Interests 12622297.3MortgagetoANZBankNewZealandLimited-7.2.2023at10:29am
8 | Property Information Memorandum

CERTIFICATE OF TITLE CONTINUED

Identifier SA1099/51 Register Only Search Copy Dated 13/02/23 11:06 am, Page of 2 2 Transaction ID 538747 Client Reference valexander002 - 42 Gillies Avenue
TAUP2026 Property Information Memorandum | 9
42 AND 44 GILLIES AVENUE, TAUPO, PROPERTY ID:

42 AND 44 GILLIES AVENUE, TAUPO, PROPERTY ID: TAUP2026

RECORDOFTITLE

UNDERLANDTRANSFERACT2017

FREEHOLD

Register Only Search Copy Dated 13/02/23 11:06 am, Page of 1 2 Transaction ID 538754 Client Reference valexander002 - 44 Gillies Avenue
SearchCopy Identifier SA45A/898 LandRegistrationDistrict SouthAuckland DateIssued 14December1989 PriorReferences SA14B/1195 Estate FeeSimple Area 684squaremetresmoreorless LegalDescription Lot1DepositedPlanSouthAuckland 53952 RegisteredOwners DeliaMaryBarnes Interests 12622297.4MortgagetoANZBankNewZealandLimited-7.2.2023at10:29am
CONTINUED
CERTIFICATE OF TITLE
10 | Property Information Memorandum

CERTIFICATE OF TITLE CONTINUED

Identifier SA45A/898 Register Only Search Copy Dated 13/02/23 11:06 am, Page of 2 2 Transaction ID 538754 Client Reference valexander002 - 44 Gillies Avenue
TAUPO,
ID: TAUP2026 Property Information Memorandum | 11
42 AND 44 GILLIES AVENUE,
PROPERTY

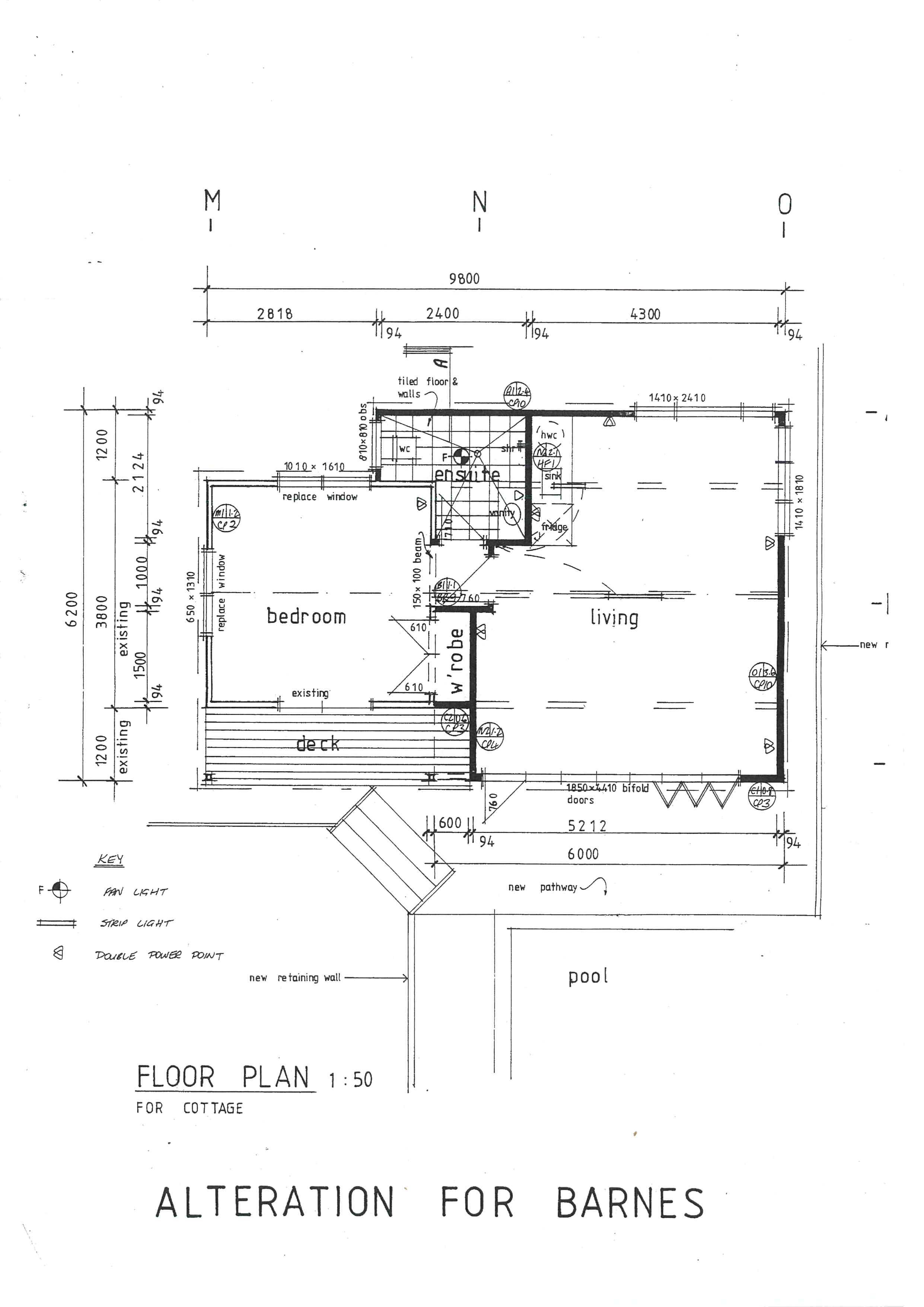
FLOOR PLAN

42 AND 44 GILLIES AVENUE, TAUPO, PROPERTY ID: TAUP2026

12 | Property Information Memorandum

FLOOR PLAN

42 AND 44 GILLIES AVENUE, TAUPO, PROPERTY ID: TAUP2026

CONTINUED
Property Information Memorandum | 13
GALLERY 14 | Property Information Memorandum
GALLERY Property Information Memorandum | 15
GALLERY 16 | Property Information Memorandum
GALLERY Property Information Memorandum | 17

YOUR NOTES

YOUR NOTES

Each office is independently owned and operated. STLD Limited (licensed under the REAA 2008) MREINZ. 72 Ruapehu Street, Taupo nzsothebysrealty.com

Turn static files into dynamic content formats.

Create a flipbook
Issuu converts static files into: digital portfolios, online yearbooks, online catalogs, digital photo albums and more. Sign up and create your flipbook.