ARCHITECTURE PORTFOLIO 2023 BY ARMAN AMIN

Page 1

Architecture

PORTFOLIO PORTFOLIO

2 0 2 0 - 2 0 2 3
N U R A R M A N A M I N ARMAN
AMIN
CONTENT CONTENT ACADEMIC WORKS | IV THE INSIDE-OUT KID’S LAND TARI SOULS 001 1 001 1 001 1 001 1 CONTENT 01 - 08 09 - 20 21 - 34 35 - 52 PORTFOLIO CONTENT

The Inside-Out

Location: Pulai Jaya, Johor Bahru

Built Area: <1000 m²

Type : Restaurant/ Food

PROJECT 01/ SEM 3 kILLER pERSPECTIVE 01 |
001 1

BACKGROUND

Malaysia is indeed known around the world for its multi athnic cultural diversity that can be seen through daily communication and culture activities as well as their food

Therefore, it is our task to provide a food at one place but diversity of socio-culture activities relates to the surrounding community activites. We are required to inject the activites suit with the socio-culture context and at the same time rethinking about sustainable approach that you can implemented into your builiding design

DESIGN CONCEPT

KILLER PERSPECTIVE + ABOUT THE SITE +

The site is located in pulai jaya adjacent to london square and faces the second link highway. The site area is surrounding by residential and commercial area

Connecting human with nature to improve well-being by integrating nature into the design. Create a kind of relaxing place surrounded with greenries,natural light and other elementslike timber and stone.

PROJECT 01/ SEM 3

Background, Design Concept

| 02
PLANNING BUBBLE DIAGRAM + G R O U N D F L O O R F I R S T F L O O R SPACE PLANNING + GREEN DESIGN + SOLIDMASS SUBSTRACTION SUBSTRACTION | 01 “Initial design” Zoning Divide Space Into Private, Semi Private & Public to enhance user Experience 02 | “Creates Open Space” 03 | “Creates Cantilever” The design help to keep existing trees and plant the new one. Eating Area Eating Area Eating Area Mu purpose Area Recreationa Area Serv ces & Cook ng Area WC Office WC S orage Fire S airs Library Stairs Recrea ona Area Fire S aircase Toilet Stairs Lobby Lobby Refuse Cook ng Area Janitor M&E S o age Load ng Bay SITE PLAN (NTS) + 1 Site Entrance 1 2. Site. Entrance 2 3. Main Building 4 Future Development SITE COMPONENT PROJECT 01/ SEM 3 Site Plan, Planning, Massing

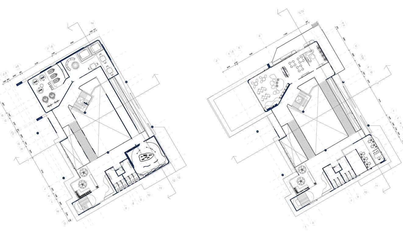
GROUND FLOOR (NTS) +

FIRST FLOOR (NTS) +

GROUND FLOOR FIRST FLOOR

Kiosk

Recreational Area

Eating Area

Multipurpose Area

Janitor

M&E Storage

Refuse Chamber

Women Toilet Men Toilet

PROJECT 01/ SEM 3

fLOOR pLANS

S FLOOR
1. 2 3. 4. 5 6. 7. 8 9. 10. 1.Office 2.Eating Area 3 Library 4.Man Toilet 5.Woman
1 2 1 2 3 4 5 3 4 1 1 5 6 7 8 9 1 10
Toilet
Anti Slip Roof to manuf’s detail Timber Post
150 x 150MM Timber Post Timber Fin Facade To Manuf’s Detail Timber Beam Green Wall Wood Plank Artificial Grass Floor Level Ground Floor Level Ground Level
Roof SECTION X-X (NTS) + TYPICAL SECTION (NTS) + SECTION Y-Y (NTS) + Beam Level First Anti Slip Roof to manuf’s detail Anti Slip Roof to manuf’s detail 01 01 02 03 PROJECT 01/ SEM 3 sECTIONS, tYPICAL sECTION

EAST ELEVATION (NTS) +

V-POST DETAIL (NTS) +

Screw

Anchor

NORTH ELEVATION (NTS) +

29 GA Metal Bracket

5/8" OSB Sheating

Spray Foam Insulation

Loose or Bat Insulation

2" x 1" Rigid Insulation Strip

OSB Sheating

1 X 6 T&G Pine

Timber Post Steel Bracket East Elevation Highlight The Sense of Welcoming and Opened Design North Elevation Highlight The Repitition of Structure and Hierarchy of Roof Fascia Board Soffit 4" Cont Eave Vent Siding Building Paper 4" x 8" Bevelled Plate 6" x 8" Top Plate 8" x 8" Post Infill Panel
02 03
ROOF DETAIL (NTS) +
3
PROJECT 01/ SEM
eAST + nORTH eLEVATION, sPECIAL dETAILS

INTERIOR PERSPECTIVE + EXTERIOR PERSPECTIVE +

PERSPECTIVE PERSPECTIVE 07 |
PROJECT 01/ SEM 3 PERSPECTIVE/ VIEW

PROJECT 01/ SEM 3

PERSPECTIVE/ VIEW

PERSPECTIVE + INTERIOR
+ | 08
PERSPECTIVE PERSPECTIVE INTERIOR
PERSPECTIVE

Built

09 | 002 2 Kid's
Puteri Harbour, Iskandar Puteri
Land Location:
Area: <1500 m²
: Institutional/ Education
02/ SEM 4 killer Perspective m a r i n e e n v i r o n m e n t a l e d u c a t i o n c e n t r e
Type
PROJECT

BACKGROUND

Global climate change is the most important issue and central challenge of our time The project seeks to bring the global issue of climate change into dialogue with more intimate and immediate concerns of the locals in Malaysia. Our task is to design an environmental responsive institutional building in Puteri Harbour using future scenarious, imagination, stories and narratives through the development of design intention and manifesto.

ABOUT THE SITE +

The site is located at Puteri Harbour, Iskandar Puteri, Johor. It is located between the junctions, Persiaran Puteri Selatan and Jalan Laksamana 1 with double Frontage, commercial and residential building surround it

KILLER PERSPECTIVE +

DESIGN CONCEPT

BOAT/ YATCH

MARINE ENVIRONMENTAL LEARNING CENTRE

Learning By Playing

Dynamic Platform Narrative +

Building As Virtual Story Teller

Kid's Land

RIBBON ROOF +

Large canopy acts as a shading devices, which shelters the lightfilled atrium spaces.

| 10
PROJECT 02/ SEM 4 bACKGROUND, dESIGN cONCEPT
OPMENT 11 | SITE PLAN (NTS) + SOLID MASS SUBSTRACTION ADDITION | 01 “Initial design” 02 | “Creates Atrium in the middle” 03 | “Adds Ribbon Roof as Shading Devices” The design enhance user expericence to feel like being outside ATRIUM + PROJECT 02/ SEM 4 SITE pLAN, fORM dEVELOPMENT
Reading & Studying 01 04 05 06 02 03 Gallery & Exhibition Educational Games Virtual Reality Experience Hands-On Activity Recreational Activity | 12 PROJECT 02/ SEM 4 mANIFESTO, PROGRAMMES
PERSPECTIVE EXTERIOR
13 | PROJECT 02/ SEM 4 PERSPECTIVE
PERSPECTIVE +
NORTH ELEVATION (NTS) + GROUND
+ GROUND FLOOR | 14 PROJECT 02/ SEM 4 fLOOR pLAN, eLEVATION 1.Mini Aquaria 2.Plaza 3.Lobby & Reception 4.Pond 5.Bridge 6 Platform 7.Mini Gallery 8.Cafe 9 Woman Toilet 10.Men Toilet 11.Electrical Riser 12 Male Surau 13.Female Surau 14.Pump & Fire Tank 15 M&E 1 2 3 4 5 6 7 8 9 10 11 14 15 12 13 4 4 4
FLOOR (NTS)
15 | SECOND FLOOR (NTS) + FIRST FLOOR (NTS) + EAST ELEVATION (NTS) +
FLOOR SECOND FLOOR PROJECT 02/ SEM 4 fLOOR pLANS, eLEVATION 1 Augmented Rea ty Area 2 V rtual Reality Area 3. Vo d 4. Tunne 5. Mini Exh b t on Area 6. Green Space 7 Women Toilet 8 Men To et 9. Janitor Room 10. Lift 11. Bridge 1 Ch ldren Learn ng Area 2 Adult Reading Area 3.Computer Area 4.Void 5.Br dge 6.Off ce 7 Meeting Area 8 Storage 9.Women Toilet 10.Men Toilet 11.Green Space 12.L ft 1 2 3 4 5 6 7 8 9 3 3 1 4 4 6 7 8 9 5 4 2 3 11 10 10 12 10
FIRST

ROOF STRUCTURE

01 | Y-Columns To Support The Ribbon Roof Structure

02 | Ribbon Beam To Support Other Ribbon Roof And Louvers Above It

03 | Vertical Glass Louvers To Allow Natural Lighting Enter Inside The Building

04 | Aluminium Ribbon Louvers As A Cover Or Shad ng Devices (Roof)

05 | Ribbon Structure To Hold The Aluminium And Glass Louvers

PROJECT 02/ SEM 4

SECTIONS, eXPLODED rOOF

1 2 3 4 5 | 16
SECTION Y-Y (NTS) + RIBBBON ROOF +

TYPICAL SECTION (NTS) + DETAILS (NTS) +

01 02 03

PVC Downpipe

Fabricated Steel Hollow

DOWNPIPE DETAILS (NTS)

Glass Fin

Spider Fitting Routel

Connector

Insulating Tempered Glass

GLASS FIN DETAILS (NTS)

Selected Roof Gravel

L-shaped Ga van shed

Mi d Steel Metal Screw

Metal screw

Metal Wire Mesh

Rc Drainage To Engineer s Detai

Drainage system Scupper To Engineer’s Deta l

60 Mm Pvc Water Pipe Elbow Pvc Pipe F tting PROJECT 02/

POND DETAILS (NTS)

17 |
tYPICAL sECTION,
SEM 4
SPECIAL DETAILS 01 02 03
EXTERIOR PERSPECTIVE + | 18 PROJECT 02/ SEM 4 PERSPECTIVE/ VIEW

EXTERIOR PERSPECTIVE + EXTERIOR PERSPECTIVE +

PERSPECTIVE PERSPECTIVE
19 |
4 tYPICAL
SPECIAL
PROJECT 02/ SEM
sECTION,
DETAILS

INTERIOR PERSPECTIVE +

INTERIOR PERSPECTIVE +

PERSPECTIVE PERSPECTIVE

PROJECT 01/ SEM 3

PERSPECTIVE/ VIEW

| 20

T a r i Performance Art Centre

Location: Seremban, Negeri Sembilan

Built Area: <1500 m²

Type : Institutional/ Education

PROJECT 03/ SEM 5

killer Perspective 003 3
21 |

BACKGROUND

ABOUT THE SITE AND INTENTION +

A community performance art center in Seremban, a beautiful town located in the heart of this diverse region. With the passing of time, the serene landscapes and the rich heritage of the region have faded away. The knowledge of the local cultural activities has been lost

Our goal is to design a dynamic performance art center that will ignite the flame of cultural and historical memory We want to bring the people of Seremban back to their heritage. Our goals are twofold: to provide a nurturing space for community involvement and perform opportunities. to promote awareness and appreciation of the priceless cultural values that make Negeri sembilan unique.

Through this project, we hope to revive the fading traditions and preserve the identity of this unique region.

Designing performance art center to revive the cultural and historical memories

PROJECT 03/ SEM 5 Background, Design Approach

| 22
SYNTHESIS + SITE
+ 23 |PROJECT 03/ SEM 5 synthesis, site plan
SITE
PLAN

3 MAIN OF NEGERI SEMBILAN ART PERFORMANCE

SOLIDMASS SUBSTRACTION ZONING1

01 | “Initial design”

02 | “Substract to create path w th existing gr d to connect with lorong seni”

LINK/CONENCTION

06 | “Create layer (f oor) to connect the separated floor”

03 | “D vide the block into 4 main programmes”

ZONING2 ROTATION

05 | “Rotate main space fo owing the strong grid towards JKKN Seremban”

04 | “Divide the block nto four zone(storey) for publ c, sem private, private and services”

LORONG SENI

(IN-BUILDING) +

Lorong Seni is being designed in this building to connect with the exisitng Lorong seni in Seremban in order to get same feeling and experience since it located in same direction/ grid

PROJECT 03/ SEM 5

Background, Design Approach

O | 24
Tarian Lilin Tarian Endang Tarian Piring

EXTERIOR PERSPECTIVE +

25 |PROJECT 03/ SEM 5 PERSPECTIVE/ VIEW

GROUND FLOOR (NTS) +

GROUND FLOOR

1. Mini Auditorium

2 Ticket Counter

3. Screen Exhibition

4. Grand Staircase

5 Booth/Kiosk Area

6. Souviner Shop

7. Retail

8 Public Stage

9. Outdoor Dining Area

10. Cafe

11 Tnb Substation

12. Loading & Unloading Bay

13. Refuse Chamber

14 Fire Tank

15. Suction Tank

16. Pump Room

17 Female Wc

18. Male Wc

19. Disable Wc

20 Storage

21. Fire Staircase

22. Passenger Lift

23 Service Lift

| 26
5
PROJECT 03/ SEM
FLOOR PLAN
1 2 3 4 5 6 7 8 9 10 11 12 13 14 15 21 21 22 22 23 24 25 26 27 28 30 31 32 33 29 21 21 16 17 18 20 19
24. Fire Lift 25. SSB 26 MDF 27. IDF 28. ELC 29 AHU 30. ELV 31. CW 32. HR 33. DB

FIRST FLOOR (NTS) + SECOND FLOOR (NTS) +

PROJECT 03/ SEM 5

27 |
FLOOR pLANS
1. Main Auditorium 2. Male Dressing Room 3. Female Dressing Room 4 Male Make Up Room 5 Female Make Up Room 6. Reception 7. Exhibit on Area 8. Lobby 9. Viewing Area 10. Bar 11. Music Studio 12. Dance Studio
13. Vocal Stud o 14 Practise Studio 15 Female Musolla
16. Male Musolla
20.
17. Female Wc 18. Male Wc 19. Storage
Jan tor Room
24
25
26.
27.
28.
29.
30.
21. Service Lift 22. Fire Lift 23. Passenger L ft
AHU
IDF
ELC
ELV
CW
HR
DB
1 .Main Auditorium 2. Vip Room 3. Admin 4 Meeting Room 5 Pantry 6. Working Area 7. Utility Room 8. Control Room 9. Lounge 10. Gallery 11. Multipurpose Area 12. Storage 13. Green Space 14 Janitor 15 Female Wc 16. Male Wc 17. IDF 18. AHU 19. ELV
20. CW 21. HR 22. DB
1 2 3 4 5 6 7 8 9 1 2 3 4 5 6 7 8 9 7 2 10 11 12 13 14 15 16 17 18 19 20 21 22 23 23 24 25 26 27 28 29 30 10 11 12 13 14 15 17 18 19 20 21 22 23 24 25 25 16 10
23. Fire Lift 24 Service Lift 25 Passenger Lift

THIRD FLOOR (NTS) + BASEMENT (NTS) +

| 28 PROJECT 03/ SEM 5 FLOOR PLANS
1.Cooling Tower 2. Ultility Room 3. Water Collecting Tank 4. Domestic Water Tank 5. Lift Motor Room 6. Feature Starcase 7. ELC 8. AHU 9. ELV 10. CW 11. HR 12. DB 1 .Basement Lobby 2 Genset Room 3. Fan Room 4. Fire Staircase
1 2 3 4 5 5 5 6 7 9 8 1 1 2 3 4 4 4 4 10 11 12

EXTERIOR

FRONT ELEVATION (NTS) +

PROJECT 03/ SEM 5 ELEVATIONS

LEFT ELEVATION (NTS) +

RIGHT ELEVATION (NTS) +

+ 29 |

PROJECT 03/ SEM 5 SECTIONS, sPECIAL dETAILS

2 SECTION + 2 SECTION +
15Mm Fireline Plaster Board 25Mm Multi Panel 50x150Mm Resilient Bar 50MM Sound Absorber SS Se f Taiping Screw Corrugated Composite Insu ated Panel Purl n Connect ng Plate C eat Ang e Pur in Top Space Frame Member Bracing Space Frame Member 1 Grand Staircase 2. Booth/ Kiosk Area 3. Outdoor Dining Area 1 .Retail 2. Souvenir Shop 3. Booth/ Kiosk Area 4 Viewing Deck 5. Lobby 6. Multipurpose Area 4. Cafe 5. Bar 6. Exhibition Area 7 Green Space 8. Water tank 9. Cooling Tower 7. Gallery 8. Green Space
1 1 2 3 4 5 6 7 8 9 2 3 4 5 6 7 8 9
9. Water Tank

F U L L S E C T I O N

Standing Steam Roof Sheet Rockwool Panel

Liner Sheet Purlin

Open Metail Grating Catwalk

50MM Steel Space Frame

15MM Dorugated Metal Panel Cladoing

150MM Thck Reinforced Concrete Slab

Intermediate Air Cavity

150MM Thck Concrete Wall Ventilation Slot

50MM Wood Cladding

Open Metal Grating Catwalk

100 MM Acoustic Wall Panel

150 MM Thk Reinforced Concrete Slab

200x300 MM Steel I Beam Concealed By Concrete To Engr’s Detail

500x500 MM Reinforced Concrete

Ground Beam To Engr’s Detail

Spread Foodting Engr’s Detail

FULL SECTION (NTS)

PROJECT 03/ SEM 5

01 02 03 04 05 31 |
+
fULL DETAIL
sECTION
| 32 FULL SECTION 2 + F U L L S E C T I O N PROJECT 03/ SEM 5 fULL details Section 03 06 07 08 09 04 05 01 02 03 04 05 06 07 08 09 Main Auditorium Mini Auditorium Booth/ Kiosk Area Lobby + Exhibition Area MultiPurpose Area Outdoor Dining Area Viewing Area + Bar Green Space Water Tank (Services)

INTERIOR PERSPECTIVE +

INTERIOR PERSPECTIVE +

PERSPECTIVE PERSPECTIVE
33 |PROJECT
03/ SEM 5 fULL DETAIL sECTION

EXTERIOR PERSPECTIVE +

PUBLIC STAGE (EXTERIOR) +

PERSPECTIVE PERSPECTIVE

PROJECT 03/ SEM 5

fULL details Section

| 34

SOuLS

C o m m u n i t y L e a r n i n g C e n t r e

Location: Cheras, Kuala Lumpur

Built Area: <3000 m²

Type : Institutional/ Education

PROJECT 04/

004 4
35 |
SEM 6 killer perpective

BACKGROUND DE

Create a dynamic Community Learning Hub and Coworking Space that promotes learning, collaboration, and community engagement. The space will be inclusive, sustainable, and designed to inspire personal and professional growth within the community

PASSIVE DESIGN (DESIGN APPROACH) +

Passive design offers energy-efficient and comfortable spaces, minimizing environmental impact for enhanced sustainability in Community learning hub and coworking space.

emphasizes the creation of spaces that promote interaction and exchange of ideas among users

PROJECT 04/ SEM 6

Background, Concept

| 36
Learning Work Life
PERSPECTIVE +
KILLER
S o u l s S o u l s S o u l s s c i e n c e o f u r l i f e s t u d y s c i e n c e o f u r l i f e s t u d y

SITE PLAN (NTS) +

Bring the vehicles behind the site to the basement for parking,serv ce and drop off to maximize the circulat on and the ground f oor area

PROJECT 04/ SEM 6 Site Plan, Planning

Create a b g area of P aza to promote a sense of welcoming espec a ly peop e/students from school and also to create a continu ty w th the exist ng island of school in front of the site

Create a un que Courtyard design ins de the bui d ng to respond passive des gn and maximize peop e activities at the centre of the builiding

Keeping most of existing trees at the site to preserve, act as shading and as a buffer from the main road

SITE PLANNING 37 |
DESIGN STRATEGIES FORM DEVELOPMENT 01 01 PERSPECTIVE + 01 | “Louvres Structure to reflect passive design approach and to achieve comfortable environment to study and interact” 02 | “Glass Curtain Wall to maximize the usage of sunlight and expand the view of the users in the building (safe place)” 03 | “Void (Courtyard) between buildings to allow wind enter, provide cross ventilation and create zoning + wayfinding” Basic Solid Substraction To Create A Sense Of Welcoming Opening + Zoniing Wind + Sun Orientation Maximize View Creating Internal Courtyard Linkage For Bridging | 38 PROJECT 04/ SEM 6 Form development, Strategies 01

SOuLS

PUBLIC STAGE & VIEW DECK + open stage or staircase for multipurpose reason interm of function and design. These include become a event seating/ stage, viewing area and a shade for the drop off area under it.

REAR PERSPECTIVE + 39 |
04/ SEM 6 Perspective
PROJECT

GROUND FLOOR

| 40
GROUND FLOOR (NTS) +
1 Plaza 2.Indoor Cafe 3.Caunter 4 Kitchen 5.Outdoor Cafe 6.Lobby 7 Reception 8.Gallery 9.Shop/retail 10 Kiosk 11.Janitor 12.Green Pocket Space 13.Exhibtion 14.Open Seating 15.Digital Workshop 16.Development Workshop 17.Language Workshop 18.Meeting Room 19.Female Wc 20.Male Wc 21.Male Musolla 22.Female Musolla 23.Fire Staircase 24.Store Room 25.Service Lobby 26.Service Lift 27.Security Room 28 HR 29.OKU 30.CW 31 ELV 32.ELE 33.TEL 34 IDF 35.DB 36.Lift 40 Courtyard 41. Public Stage PROJECT 04/ SEM 6 Floor Plan 1 3 5 6 7 8 9 3 2 4 10 40 41 10 11 28 29 30 3 32 33 10 12 24 24 25 26 27 34 34 35 35 36 36 36 13 14 15 16 17 18 19 20 21 22 23 23 23 23 23

PROJECT 04/ SEM 6 Floor Plans

41 |
SECOND FLOOR
FIRST FLOOR SECOND FLOOR 1 Office 2.Counselling 3.Waiting Area 4.Coworking Space 5.Outdoor Seat ng 6 Pocket Study Area 7 Service Lobby 8.Pocket Discuss Area 9.Caunter 10.Corr dor 11 Classroom 12.Janitor 13.Outdoor Cafe 14 Indoor Cafe 15.Storage 16.Service Lift 17 Lift 18.Male Wc 19 Female Wc 20.Fire Staircase 21.CW 22 HR 23.TEL 24.ELE 25 ELV 26.DB 27.IDF 1 Meeting Room 2.Admin 3.Store Room 4 Office 5.Digital Library 6.Janitor 7 Multimedia Studio 8.Green Screen 9.Elearning Centre 10 Library 11.Lobby 12.Male WC 13 Female WC 14.Storage 15.Fire Staircase 16 Service Lobby 17.Service Lift 18.Lift 19 CW 20.OKU 21.HR 22 TEL 23.ELE 24.ELV 25 DB 26.IDF
FIRST FLOOR (NTS) +
(NTS) +
2 3 2 5 5 4 6 7 8 9 1 1 2 4 5 7 8 8 9 12 21 23 24 25 22 15 6 19 20 21 22 23 24 14 3 3 10 26 26 27 27 20 20 20 20 20 16 17 17 17 18 18 19 19 11 13 14 10 11 25 25 26 26 18 18 18 16 17 15 15 15 15 15 12 12 13 13

THIRD PLAN (NTS) + BASEMENT (NTS) +

THIRD FLOOR BASEMENT

| 42
1.Carrel Room
Area 3.Lobby 4.Janitor 5.Service Lobby 6.Service Lift 7.Female Wc 8.Male Wc 9.Domestic Water Tank 10.Spah 11.Lift 12.OKU 13.CW 14.HR 15.TEL 16.ELE 17.ELV 18.DB 19.IDF
2.Reading
4.Sump
5.Fire Tank
Room 6.Refuse Chamber 7.Suction Tank 8.Service Lobby 9.Service Lift 10.Genset 11.Fan Room 12.Fire Staircase 13.Lift 14.Hr 15.Mdf 16.Msb PROJECT 04/ SEM 6 Floor Plans 1 2 3 9 5 6 7 8 4 12 13 15 16 17 14 10 11 18 19 11 11 1 4 6 7 8 9 2 3 14 10 12 13 15 5 16 13 12 12 11 11
1.Switchgear Room 2.Transformer Room 3.Control Room
Pump Room
Pump
43 | FRONT ELEVATIONS (NTS) + LEFT ELEVATIONS (NTS) + MATERIAL 01 MATERIAL 02 PROJECT 04/ SEM 6 Elevations Steel Column Timber & Aluminium Louvres 01 02
| 44 REAR ELEVATIONS (NTS) + REAR ELEVATIONS (NTS) + PROJECT 04/ SEM 6 Elevations MATERIAL 03 MATERIAL 03 Plaster Wall Glass Curtain Wall 03 04

POST DETAILS (NTS) +

PERPSECTIVE + ROOF STRUCTURE DETAILS (NTS) +

Steel Base Plate

Non-Shrinking Grout

Foundation

SECTION X-X (NTS) +

Colum

Anchor Bolt

Levelling Nut Concrete Column Anchor Bolts

Anchor Bolts

Steel Connector

Anchor Plate

Metal Column PROJECT

45 |
04/ SEM 6 Special Details, Section, Interior

FULL SECTION (NTS) +

20MM Thk Glass Railing To Engr’s Detail

50 x 200MM Timber Louvres To Engr’s Detail

300 x 500MM Reinforced Concrete Beam To Engr’s Detail

150MM Thk Reinforced Concrete Slab

150MM Thk Concrete Wall Spread Footing To Engr’s Detail

| 46
PROJECT 04/ SEM 6 Full Detail Section

FULL SECTION (NTS) +

50 x 200MM Steel Louvres To Engr’s Detail

100 x 100MM I Steel Connector Column To Roof

200 x 400MM Steel Structure Column To Engr’s Detail

50 x 200MM Steel Louvres To Engr’s Detail

50 x 200MM Timber Louvres To Engr’s Detail

150MM Thk Reinforced Concrete Slab

50 x 200Mm Timber Railing

500MM Round Reinforced Concrete Column

20MM Thk Glass Railing To Engr’s Detail

300 x 500MM Reinforced Concrete Beam To Engr’s Detail

150MM Thk Cutain Glass Wall

150MM Thk Concrete Wall

150MM Thk Reinforced Concrete Slab

300 x 500MM Reinforced Concrete Ground Beam To Engr’s Detail

Spread Footing To Engr’s Detail

47 |
PROJECT 04/ SEM 6 Full detail section
PERSPECTIVE PERSPECTIVE
CORRIDOR VIEW +
| 52
MINI LIBRARY (INTERIOR) + PROJECT 04/ SEM 6 exploded diagram

Turn static files into dynamic content formats.

Create a flipbook
Issuu converts static files into: digital portfolios, online yearbooks, online catalogs, digital photo albums and more. Sign up and create your flipbook.