Architectural Design VII of NUK 2023

Page 1

黃盈肜 / 指導教授 : 劉建志 老師

未來世代學習場域

高雄市小學校園設計 / 基地位置 : 鼓山區鼓山國小

混齡混班教學模式

不同班級或不同年齡混和在同一個班級中進行教學與學習,讓教室形成小家庭式的社會情境。

1 提升和不同年齡層的同儕互動 2 學習與人交往的正確態度及技能

1 年幼者學會觀察、模仿他人發言 2 年長者成為年幼者的小老師

學徑 混齡五學 學契 共學 自學 互學 指導 模仿 學習 一二 三四 五六 三 五 六 四 二 教師 學生 互學 學生 共學
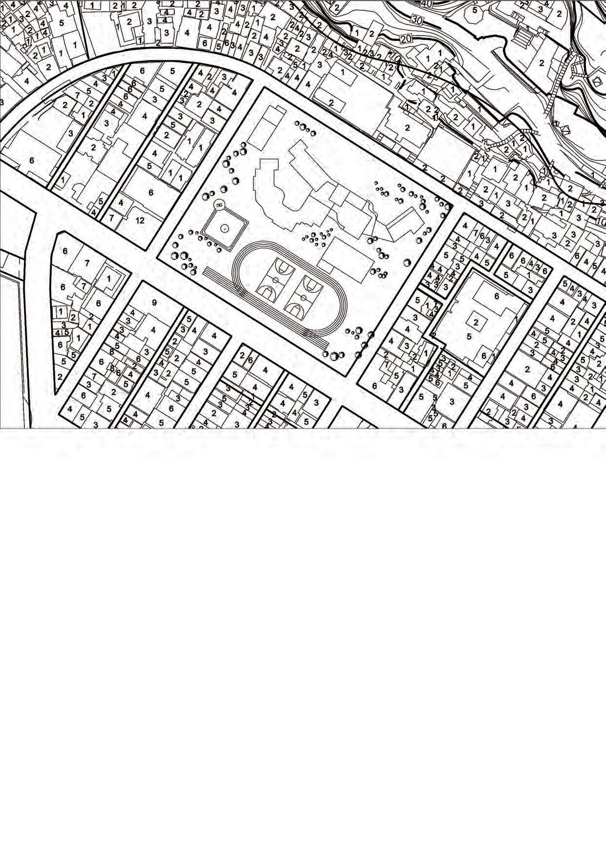
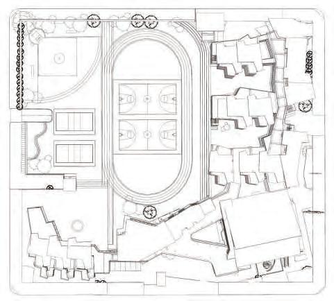
校門口 側門 N 1F PLAN 6 總務處 7 保健室 8 圖書室 9 半戶外展覽空間 10 手作教室 1 低年級教室 2 低年級遊戲區 3 中高年級遊戲區 4 教務處 5 學務處 9 半戶外展覽空間 10 手作教室 11 烹飪教室 12 羽球館 13 幼兒園 3 1 1 2 6 7 8 9 10 11 12 13 14 15 4 5 混班教學 混齡教學 一年一班+二年一班 學習角 二年一班 學習角 一年一班 學習角 一年一班一年二班 學習角 學習角 一年一班一年二班 學習角 學習角 一年二班 學習角 一年一班 學習角

在混班教學中以語言科/社會科/自然科等有規律課程計畫的 科目為主,混齡教學中以社團/藝術與人文等對學生培養直 覺、推理、聯想與想像的創意思考能力為主。

16 中年級教室

23 高年級教室

22

在混班教學中以語言科/社會科/自然科等有規律課程計畫的 科目為主,混齡教學中以社團/藝術與人文等對學生培養直 覺、推理、聯想與想像的創意思考能力為主。

DN UP DN UP DN N 2F PLAN 18 19 20 21 22 16 16 17 DN DN N 3F PLAN 24 25 26 23 23 27
24 藝術與人文科教室
輔導室
會議室
25 視聽教室 26
27
17 自然科教室
18 電腦教室
教師辦公室
人事室/會計室
19 圖書室 20
21
校長室
A’ B’ 會議室 輔導室 校長室 電腦教室 圖書室 教師辦公室 視聽教室 總務處 教務處 健康中心
SITE PLAN N B A
A-A’ SECTION
B-B’ SECTION NORTH ELEVATION
未來世代學習場域- 高雄市小學校園設計 指導老師: 陳逸杰 學生: 簡婕菱

鼓山區南端的高雄港內港遼闊,乃天然良港,因此巨輪雲集, 早為繁榮地方之樞紐,再加上區內壽山主、支脈的天然屏障, 造成了背山面海的絕佳地理環境,先天即為發展工業、漁業與國際貿易的據點。 由於壽山、哈瑪星曾在高雄市開發史中,扮演著相當重要的角色,因此其山頂、山麓 及附近地方留下了許多古蹟及觀光點,都是騷人墨客憑弔遊覽之勝地。

壽山 哈瑪星鐵道 文化園區 駁二藝術特區 鼓山漁港 旗津海水浴場 西子灣 臨海二路 登山街 街山壽 街波鼓 site site site site site site 高雄哈瑪星 代天宮 鼓山第一 公有市場 西子灣隧道 (原壽山洞) 高雄 武德殿 登山街��巷 歷史場域 原愛國 婦人會館 壽山 觀景台 臨海二路 登山街 街山壽 街波鼓 國立中山大學 鼓山國小 鹽埕國小 site
基地 視野廣度 人流車流 重要遺跡 綠地分布 建物 校內綠帶零散 校外綠帶多只可遠觀 無法親近 原園/ 源原

以使用者的人流動線及歷史建物作為基地的軸向切割, 以低矮的樓層圍塑小學運動廣場, 成為整個都市景觀的下沉聚集處。

臨海二路 登山街 街山壽 街波鼓
行政空間 行政空間 高年級 中年級 低年級 小學 行政空間 幼兒園 圖書館 社區公共空間 小學 幼稚園
GL=40 CAFE 1F
scale : 1/1000 � 幼兒園 � 校內圖書館 � 學務處 � 教務處 � 低年級教室 � 中年級教室 � 高年級教室 � 共食廚房 � 福利社 �� 教師休息室 �� 保健室 �� 教師休息室 �� 演講廳 �� 社區教室 �� 社區共食餐廳 �� 社區電子借閱區 �� 警衛室 � � � � � � � �� � �� �� �� �� �� �� �� �
Plan
NORTH ELEVATION SOUTH ELEVATION WEST ELEVATION scale: 1/100 scale: 1/100 scale: 1/100 大跨距桁架 三樓看台區 二樓體育館 一樓公共空間 屋面板 桷仔 桁條、桁樑(母屋) 木構屋架 熱空氣上升 冷空氣下降
鼓山國小活動中心
B’B SECTION scale: 1/100 A’A SECTION EAST ELEVATION scale: 1/100 scale: 1/100
1F PLAN 3F
� 電子借閱圖書館 � 社區共享餐廳 � 社區教室 � 小型演講廳 � 體育館 � 講台/座位區 � 後台 � 化妝室 � 看台座位區 �� 儲藏室 B A’ A B’ � � � � � Plan scale : 1/1000
2F PLAN
PLAN
REPUBLIC
學生 : 陳浩 指導老師 : 梁凱翔 未來世代學習場域-高雄小學校園設計

基地位置:茄萣國民小學(高雄市茄萣區茄萣路二段���號)

基地面積:��,���M�

使用分區:學校用地(文小)

建蔽率:��% 容積率:���%

茄萣國小身處在地連結濃厚的茄萣市區,從賜福宮作為開校位址,與社區為 相互存在、扶持之關係,而新校區的位址由社區中心轉為學區專用地,或多或 少失去了鄉村的共融性。

將教育性質的學習空間打散,錯落並連接對於不同時間、場域、客群的機能, 使學校在社區中地位不只限於學生的教育機構,能讓居民、學生與社區緊密 的利用此重要的公共場域,並活絡社區場所的通用性與使用彈性。

幼稚 園( 保 留) 鐵皮 車棚 南棟 教室 北棟教室 操場 校舍建築 賜福 樓( 保 留)

作為學校與社區交會的中心場所,為了因應非上課時段的共同使用機能, 將看似容易相互影響的球場、社區設施與休閒場所垂直設置,希望在廣大 的校園中能有一處讓使用者能互相交流、碰面的空間,也在學校與社區合 作中創造更多機會。

公園 教學區 球場 舊賜福樓 校門 運動場暨 社區中心

SC ALE: � / �� �

�FLOOR PLAN SCALE:�/���� WEST ELEVATION

主建物一樓平面圖
主建物二樓平面圖 SC ALE: � / �� � �FLOOR PLAN SCALE:�/���� URBAN SECTION
大肆上作品集 實驗小學規劃 社區公用空間
屋頂平面圖 各 式 模 型 照 片
1F平面圖
3F平面圖 2F平面圖
各式剖面圖 各式立面圖
西向立面圖 南向立面圖 1F配置圖 2F配置圖 3F配置圖 A-A` 1. 1.
1. 3. 3. 2.
2. 4. 4. 4.
1.展覽空間 2.廁所 3.大廳 4.外圍步道 1.展覽空間 2.DIY手工教室 3.廁所 4.影音介紹區 1.展覽空間 2.咖啡廳 3.休息區 4.景觀陽台
1.
2.
1.
B-B`剖面圖
東向立面圖 北向立面圖 3F配置圖 A-A`剖面圖 3. 4.景觀陽台
B-B`

Portfolio

SHAO KAI HUNG

題目:小學設計

洪紹凱 指導老師:史曜齊

基地分析

基地選址 : 830高雄市鳳山區文龍路20號

基地面積 : 24586 m2

都市計畫分區 : 文中小

建蔽率 : 40 %容積率 : 240 %

周遭小學 聯外交通 交通路徑 周遭綠帶 人行散步路線 視野方向

設計說明

全區配置圖

留設東南邊的公共區 域串聯兩個公園

量體堆疊產生陰影

北邊區域採半開放,讓 周遭居民可以一起使用。

在拉開的量體中讓人 可以穿越。

在人流動線中產生可以 活動的小空間。

室材器育體 店仔柑 處務總 健康中心 up up up up up up up 區材器樂遊 A A' B B' 配置發想 開放區域 人流動線 活動空間
虛實
增加交流空間
角動互 角動互 室導輔 室事人 室長校 室議會 間空聽視 室舞練 室教樂音 室教蹈舞 室動活能功多 dn dn up up up up up 表演藝術教室 音樂教室 理化教室 理化教室 dn up up up up 2F平面圖 3F平面圖

B-B’剖面圖

A-A’剖面圖

大四上作品集 A1081402 黃世文 指導老師:史耀齊老師 基地分析

現況調查
基地周遭教育機構
B’剖面圖
定性定量
第一次設計爆炸圖 屋頂平面圖 教 機 導教 教 一 圖 教 次 次
周遭配置平面圖 B-
議題探討
定性定量爆炸圖
A-A’剖面圖
Scale 1/5000 Scale 1/5000 Scale 1/800 Scale 1/800 第一次設計-整體校園設計
第 次設計-整體校園設計 動線概念探討 動線 定性定量 爆炸圖 教 B 教 機 導教 教 B 教 一 教
A A B B 各 配置圖
1F Scale 1/2000 B2 Scale 1/1000 B1 Scale 1/2000 3F Scale 1/2000
兩向剖面圖 北向立面
1/1000
4F Scale 1/2000
Scale
西向立面
1/1000 東向立面
1/1000 南向立面
1/1000 向立面圖 A-A”剖 Scale 1/1000 B-B”剖 Scale 1/1000
2F Scale 1/2000
Scale
Scale
Scale

B1 scale 1/2000

1F scale 1/1250

2F scale 1/2000

屋頂 屋 屋頂 園 教 教 圖 教 一 圖 一 B 爆炸圖 各 平面圖
次設計-局部校園建物設計
3F scale 1/1250 4F
1/1250
scale

東向立面 scale 1/1000

北向立面 scale 1/1000

西向立面 scale 1/1000

兩向剖面圖 scale 1/800

南向立面 scale 1/1000

實體模型照片

向立面
指 導 老 師 / 梁 凱 翔 老 師 學 生 / 蔡 允 媃 國 立 高 雄 大 學 建 築 學 系 大 學 四 年 級

\都市裡的喘息空間

\綠帶延伸

\居民聚集休閒的主要空間

\早期為軍事使用

\都市裡的節點 \綠帶延伸 \喘息的空間

\營造良好講故事的 半戶外空間

\一同與長輩們身歷 於他們的所見所聞

都市 紋理 記憶 傳承 空間\教育 社區\教育

\在大自然中遊玩並 學習

\不同年齡層間的互 動及互助

\結合社區資源,開 設專科課程

\在學校裡增設社區 教室,以達到活到 老學到老

開放校園

\將都市裡的”主與客”的關係降低 \減低傳統校園的權威形象

\與社區有良好的互助合作 \將校園開放給社區使用

\每一個開放空間都有其特定的使用族群

\到了現在 多了更多生活的痕跡

\路徑也因生活而產生

\整合垂直綠帶的活動空間

\每一個開放空間都有其特定的使用族群 \可互相連接也可各自使用

飽 和 而 向 山 上 垂 直 發 展 垂直方向 水平方向
水平方向 出簷 垂直方向
格柵
� � � � � � � �� � � 2.櫃台 3.休息區 4.學生練舞空間 5.健身房 6.羽球館 7.活動空間 8.男廁 9.女廁 10.梯廳 社區空間 幼兒園 廚房 警衛室及圖書空間 教學空間 行政空間 \鼓山市場 \圖書館 \代天宮 \武德殿
北向開窗較窄 南向大面開窗 接送區

司令台

\以木頭元素為主

\呼應鼓山的自然環境元素

校門口

光影

\天井

\以木格柵創造出光影變化 \轉換不同的空間的介面

\及使用方式

分散建築量體

\看似一體

\卻也是個體

\以廊道互相串連

\讓校園每一處都是遊玩角落

\山型為基礎 \下半部以水為主軸 \呼應鼓山的山和水

活 動 通

\環境控制

\以連續的玻璃達到採光的效果

\可活動式的玻璃達到禿風的效果 \搭配通風塔 \讓整個空間可以達到空氣循環

\西南側設置活動式窗戶 \俐落的立面線條

\以遊戲坡道對應操場 \延伸戶外玩耍的空間

演講廳 羽球場 B-B’剖面圖
\將社區公用的空間設置在街角 \方便管理
\配置
\停車及大門口 \將停車及上下車動線配置在街角 \利用鋪面圍塑動線

自 由 場 域 自 由 場 域

非 結 構 化 - class / course / play / learn -- SCHOOL DESIGN

學生 蘇郁珈 / 指導老師 林建宇

Observe the life circle of Gushan Elementary School, learn while having fun. The current space for self-directed growth is compressed compared to the previous open learning environment.

SCHOOL COMPOSITION 觀 察 鼓 山 國 小 生 活 圈,玩 樂 中 學 習 無 所 不 在 相 較 於 以 往 開 放 的 學 習 環 境 現 在 的 自 我 導 向 成 長 空 間 被 壓 縮 生 活 空 間 轉 變 Living space transformation 被侷限的公共空 間 街 頭巷尾的玩 樂 門前馬 路 街屋 眷村 Mili tary Vi ll age 三合 院 Three-section co mpound Townhouse 社區 Co mmu nity 溢出埕的生活空 間 I SS UE - 城 市 中 的 自 由 空 間 -
不 同 材 質,削 弱 操 場 界 線 共 用 廣 場,促 進 混 齡 活 動 不 僅 止 於 教 室 的 學 習 1937 1944 - 1970 1984 - 2017 2018 - 2022 H I S T O R Y

SECOND LEVEL

THIRD LEVEL

E M B E D D E D S A P E R A T E E X T E N D S U R R O U D I N G D E V E L O P M E N T
A B A’ B’
黃盈肜 / 指導教授 : 劉建志 老師

未來世代學習場域

高雄市小學校園設計 / 基地位置 : 鼓山區鼓山國小

混齡混班教學模式

不同班級或不同年齡混和在同一個班級中進行教學與學習,讓教室形成小家庭式的社會情境。

1 提升和不同年齡層的同儕互動 2 學習與人交往的正確態度及技能

1 年幼者學會觀察、模仿他人發言 2 年長者成為年幼者的小老師

學徑 混齡五學 學契 共學 自學 互學 指導 模仿 學習 一二 三四 五六 三 五 六 四 二 教師 學生 互學 學生 共學
校門口 側門 N 1F PLAN 6 總務處 7 保健室 8 圖書室 9 半戶外展覽空間 10 手作教室 1 低年級教室 2 低年級遊戲區 3 中高年級遊戲區 4 教務處 5 學務處 9 半戶外展覽空間 10 手作教室 11 烹飪教室 12 羽球館 13 幼兒園 3 1 1 2 6 7 8 9 10 11 12 13 14 15 4 5 混班教學 混齡教學 一年一班+二年一班 學習角 二年一班 學習角 一年一班 學習角 一年一班一年二班 學習角 學習角 一年一班一年二班 學習角 學習角 一年二班 學習角 一年一班 學習角

在混班教學中以語言科/社會科/自然科等有規律課程計畫的 科目為主,混齡教學中以社團/藝術與人文等對學生培養直 覺、推理、聯想與想像的創意思考能力為主。

16 中年級教室

17

18

19

20

21

22

23

24

25

26

27

DN UP DN UP DN N 2F PLAN 18 19 20 21 22 16 16 17 DN UP DN DN N 3F PLAN 24 25 26 23 23 27
高年級教室 藝術與人文科教室 視聽教室 輔導室 會議室 自然科教室 電腦教室 圖書室 教師辦公室 人事室/會計室 校長室
A’ B’ 會議室 輔導室 校長室 電腦教室 圖書室 教師辦公室 視聽教室 總務處 教務處 健康中心
SITE PLAN N B A
A-A’ SECTION
B-B’ SECTION NORTH ELEVATION
姓名:曾靖雅 指導老師:劉建志

未來國小將會對於社區及城市開放 ,在先有的基地觀察中找尋空間中 不同時間及不同狀態、學生與居民 互動的可能性。

對應不同活動的開放性,將天橋串聯教室間的流動性,並在底層塑造不同尺度 度的開放空間,達成操場除了是學校的運動場外、也是鼓山居民們共同營造的 社區開放空間。

SITE CONCEPT 01 02 03 03 05 PLAN SECTION FINAL A1081410 鄭茂廷 陳逸杰 副教授 指導 PORTFOLIO

校園各空間多樣化空間序列 與動線學童利用多種方式進 出教室豐富學童間探索交流

石灰岩地質,幾經海水沖刷 差異侵蝕形成此多孔隙地貌

一年級教室 二年級教室 導師區 嬉遊角 嬉遊角 共享 圖書區 三年級教室 四年級教室 導師區 嬉遊角 嬉遊角 共享 圖書區 五年級教室 六年級教室 專科教室 導師區 嬉遊角 嬉遊角 共享 圖書區 共享花園 共享花園 共享花園 混齡班群間共享圖書區與花園
藉由探索交流學習並互相學習 教學相長跳脫出課本制式框架
CONCEPT 教學區 日照分析 風向分析
SITE PLAN SECTION SECTION - D SECTION - C SECTION - B SECTION - A SECTION - E Section Info. A D E B C
UP UP SLOPE ±0 +90 -15 +40 -15 1/12SLOPE +90 -15 +90 SLOPE SLOPE +87 +87 ±0 +90 +90 ±0 +220 +10 +90 +90 校史室 02 5 10 20 DN +490 機房 +487 +487 +487 +487 DN 儲藏室 +487 +487 +487 +487 +490 +487 +487 資訊 機房 2F PLAN 輔導室 校長室 人事室 PLAN 幼兒園 社區空間 廚房/器材室 各級行政處室 圖書館/閱覽室 低年級教室 中年級教室 高年級教室 音樂教室 導師辦公室 行政辦公室 各級行政處室 多功能演講廳 低年級教室 中年級教室 高年級教室 科任教室 導師辦公室 02 5 10 20 1F PLAN 02 5 10 20 1F PLAN

Exploded View

2nd. Floor

學童圖書區

1st. Floor

社區共讀區

N-Elevation
親子閱讀區 多媒體空間 服務櫃檯

SOCIETY SOCIETY

LIBRARY LIBRARY

未來世代學習場域

高雄市小學校園設計

Learning Space for Future Generations - Kaohsiung Primary School Campus Design

談到未來世代的學習場域,小朋友的學習不該只侷限於教室之 中,整座校園都可以是一座「校園教室」。

茄萣這塊土地曾是大片的潟湖,「水」和當地居民的生活十分 緊密,水溝旁的廟埕和市場、在魚塭邊搭起的鐵皮塭寮、仰賴 養魚為生的漁民⋯直至今日在茄萣國小附近仍有許多漁塭。同 時靠近海和潟湖的茄萣國小,距離西側的海看似只有短短200 公尺之遙,實際上人移動的路徑硬生生被公園、台十七線、民 居和漁塭等阻礙從中截斷。

然而,近年來茄萣地區開始有漁塭填土開發的趨勢,在魚塭地 景即將消失之際,我想要將水從緊鄰校園西側的水塘引入校園 。保留舊有歷史地景並創造生態溼地,由西到東串連海、漁塭 和二仁溪的支流,讓存在於茄萣日常生活中的水,進入國小的 校園、亦融入課程中,親近水生植物、認識池塘裡的魚,甚至 野生的水鳥也能跟著水一起進到校園來。

現在的茄小是漁村中的小學,未來也許茄萣的魚塭都會被填土

開發為新市鎮,但我希望能在校園中保留與海、與水的緊密連 結,喚起腳底下踩的曾是潟湖的土地連結,創造如水一般自由 、親水的教育空間。

When it comes to the learning space of the future generation, children's learning should not be limited to the classroom, the whole campus can become a "campus classroom".

Cieding was once a large lagoon, and "water" was very close to the life of local residents. Cieding Primary School, which is near the sea and the lagoon, appears to be only 200 meters away from the sea to the west, but in fact, the path for people to move is cut off by parks, highway, houses and fish farms.

However, in recent years, there has been a trend of developing fish farms in Cieding. At a time when fish farms are disappearing, I want to lead water into the campus from the pond immediately west of the campus. Preserve the historical landscape and also create an ecological wetland. Linking the sea, fish farms, and the tributaries of the Erren River from west to east, so that the water that exists in daily life in Cieding could enter the campus and be integrated into the curriculum. Let students getting close to the aquatic plants, getting to know the fish in the pond, and the wild water birds.

In the future, perhaps all the fish farms in Cieding will be reclaimed and developed into new towns, but I hope to preserve the close connection with the sea and water in the school campus, to evoke the connection with the land that was once a lagoon under our feet, and to create an educational space that is as free and water-friendly as water.

Jue, Guan-Yu 基地 高雄市茄 萣 國民小學 Site
Adviser 劉建志 #聚落中的漁村小學 #向海學習 #生態共好
朱冠宇
Kaohsiung Municipal Cieding Primary School
N
2022 1992 1985 1955 在水邊 在水上 在水中 人與水之間的關係 12 17 7 0 24 運動民眾 學生上課 課後活動 社區使用 在維持現有師生關係下,除了教科書的內容之外,擴大學童 自主學習 機會 教學不侷限於實牆砌出的教室之中,整座學校都可以是 校園教室 社區有教室 ,轉化學習場域,將教學行為延伸到社區脈絡 個人 社區 1F Plan

從水塘引入校園的生態池拉開教學區與北側國中運動區噪音的 距離,在樹群疏密安排中保留視覺上的互動,同時拉近學生親 水的機會。走出教室的小平台,池邊就是很好的自然教室;藏 在水面下的步道向北延伸邀請國中的學生一起共享這片水域。 少子化下的茄萣國小師生總數不到四百人,近六公頃大的校園 遠遠超過國小上課的需求,這些釋放出的空間正好滿足了社區 使用。南側透過增加連結巷道、跟廟埕相通的廣場,打開社區 的邊界;運動區域集中在校園西南角,傍晚入校運動的民眾可 以沿著設置體適能器材的步道一路散步進來。

教學區域 運動區 對社區開放 帶狀自然延伸 水的點狀串聯 混齡班群 戶外教學空間 同年級班群 同年級班群 教師角 學習角 協同教學空間 班群創造多用途學習空間 開放的共享空間 S I T E 茄 萣 國小 廟宇 魚塭地 住宅區 多平房、2-4樓透天厝 公園 公三公園 (媽祖婆山) 茄 萣 國中 華德工家 S I T E 茄 萣 國小 圖書館 區公所 2F Plan

被社區所包圍的茄萣國小周邊有蠻多戶外開放的公園,較缺乏能滿足社區活動不同機能的室內及半戶外 場域。學校後門步行三分鐘可達高雄市立圖書館茄萣分館,但其設計或尺度皆非國小年齡兒童所適用。 改建後的茄萣國小,將校門口進來的第一棟建築定調為對民眾開放的社區親子共讀站,保留基地上原有 兩棵百年老榕樹,整座共讀站成為大樹下的閱讀空間,而串起老樹與共讀站的半戶外廊道扮演著休憩、 通行、家長接送區的角色。內部空間以6-12歲學童使用角度出發,降低書櫃高度、大大小小的閱讀角、 高高低低的平台,從一個人看書的小角落、三五好友一起分享心得、到老師帶著整班學生說故事⋯改變 圖書館制式的空間體驗。

1F Plan
A A’ B B’ A A’ B B’
2F Plan

WEST ELEVATION

WEST ELEVATION

WEST ELEVATION

N/S Section E/W Section
A-A’ Section B-B’ Section
1

打破圍牆的同時在這個圖像化的世代,認知一個空間是能看到被安排 好的畫面,因此視覺的引導可以創造彼此的關係。使哈瑪星社區元素 轉化為建築語彙,校園將成為社區的一部分,學童在學校和社區皆習 慣思考,也讓老幼之間互相學習。

高雄市鼓山區鼓山國民小學 基地位置 : 基地面積 : 教學教室數量 : 高雄市鼓山區臨海二路50號 22996
每年級2班 (25人/1班)
山 海 驛 町 2
: 1/1000 N 二樓平面圖 A A’ B’ B 3
一樓平面圖 Scale
4
五樓平面圖 四樓平面圖 三樓平面圖

南向立面圖

Scale : 1/1000

西向立面圖

5

A-A’剖面圖

Scale : 1/1000

B-B’剖面圖
6
未來世代學習場域 - 高雄小學校園設計
鼓山國民小學 陳仕斌 指導教授:陳逸杰 副教授

山區為日治時期高雄的發展重 心,有許多當時所留下的建築

,其中大多為鋼筋混凝土及磚面的牆

壁鋪面建造的建築且具有當時建築在

西洋式建築影響下產生的特色,因此 希望能以學校立面的形式與當地歷史

人文產生連結,配合近幾年興起的觀

光活動及地方政府推出的濱線祭等活 動,釋放出部分基地作為遊客資訊中

心及地方舉辦演講、展覽的場地使用

,希望將這些資源融入學校的活動及 空間可以增加學校及社區的互動、增 進學生的社區意識。

基地周遭有許多特殊的產業及人文 資源,希望能透過與社區共享的教 學空間之增設有機會將這些在地的 特色轉化為教育資源,使小學內的 學習活動更加豐富

登山街 鼓 波 街 壽 山 街 臨海二路 師生登學動線 居民、遊客 師生登學路線 家長接送區 團膳、垃圾車 SITE PLAN S:1/2500 2 6 14 30(m) 四海之家 紀念公園 武德殿 哈瑪星 駁二倉庫群 鼓山漁港 鼓山-旗津 渡輪站 打狗英國 領事館 中山大學 壽山國家自然公園 旗津 SOUTH ELEVATION S:1/1000 2 6 14 30(m) WEST ELEVATION S:1/1000 2 6 14 30(m) NORTH ELEVATION S:1/1000 2 6 14 30(m) EAST ELEVATION S:1/1000 2 6 14 30(m)

基地北側的教學區採內 聚的形式與生態水池形 成各個年級可以共同活 動的中庭空間,同時兼 顧學生之學習權益及隱 私。

面對入口處之行政大樓 一樓作為假日與社區共 享的空間,中間寬廣的 挑空空間在平日作為學 生課間活動的休憩場地 ,假日則有機會租給校 外機構或是學生團體做 展覽或是成果發表等活 動。此外也設置烹飪、 公益、音樂教室等可與 社區共享的教室空間。

C-C’ SECTION S:1/1000 2 6 14 D-D’ SECTION S:1/1000 2 6 14 30(m) 1 中年級 2 低年級 3 資源教室 4 體育器材室 5 體育館 6 烹飪教室 7 工藝教室 1F PLAN S:1/1000 2 6 14 30(m) 8 音樂教室 9 展演大廳 10保健室 11多功能展廳 12儲藏室 13演講廳 14小賣店 15閱覽空間 16公有停車出入口 A-A’ SECTION S:1/1000 2 6 14 30(m) E-E’ SECTION S:1/1000 2 6 14 30(m)

美術及實驗室等特殊科任教 室及科任老師之辦公室。

圖為教學區建築量體之部 分剖面及細部剖面圖,分 別展示屋頂的木桁架接點 及教室陽台之遮陽。

三樓為校內的圖書館及室外 之屋頂花園,圖書館內除傳 統之閱覽空間,另外設有資 料查詢及電子書閱讀之電子 閱覽空間。

圖為基地地下之公有停車 場行人出入口及結構細部 剖面示意圖。

B-B’ SECTION S:1/1000 2 6 14 30(m) 1 辦公室 2 儲藏室 3 圖書館 4 電子閱讀區 3F PLAN S:1/200 2 6 14 30(m) 1 2 3 4 1 高年級 2 低年級 3 教師辦公室 4 電腦教室 5 實驗教室 6 美術教室 7 會議 2F PLAN S:1/1000 2 6 14 30(m) 8 校長室 9 教務處 10學務處 11總務處 12輔導室 13工作坊 1 1 1 2 3 4 5 6 7 8 9 10 11 12 13
二樓開始除了基地東南側之 建築外皆無對外開放,行政 大樓除了具基本辦公機能的 更行政處室,還設置電腦、

面對現今小學學生數量減少導致校地剩餘的情 況下,透過將多餘的基地空間返還給社會大眾 以創造更多的社會福利及公共使用的空間同時 提升基地使用的效益。

將臨海二路及鼓波街路口之一角配合舊有之四 海一家紀念公園劃為旅客資訊中心及社區活動 中心使用,設置書報雜誌及史料閱覽區、演講 廳及社區工作坊兼學生自習室,在不同時段的 管理下提供給不同需求的人使用。

WEST ELEVATION S:1/500 2 6 14(m) NORTH ELEVATION S:1/500 2 6 14(m) EAST ELEVATION S:1/500 2 6 14(m) SOUTH ELEVATION S:1/500 2 6 14(m) A-A’ SECTION S:1/500 2 6 14(m)

將校內與校外動線隔開以方便管理,同時確保校內學生的隱私及 安全性,內部空間的演講廳及工作坊則以分隔時段以租借給校外 的形式進行管理。

屋頂層

屋頂木桁架 冷氣室外機及 各管線隱藏處

1f

工作坊及部分 閱覽區座位, 走到則能以展 板等方式介紹 地方人文歷史

2f

學校與社區共 用之演講廳、 旅客諮詢櫃台

、書報閱覽空

間以及販賣特 產及咖啡之小 賣店

S:1/500 2 6 14(m) 1 諮詢櫃台 2 閱覽室 3 小賣店 4 演講廳 A’ B 1 2 3 4 A 2F PLAN S:1/100 2 6 14(m) 130m2 97.3m2 1 2 B’ B-B’ SECTION S:1/500 2 6 14(m) 空調出風口/室外機示意圖 空調出風口/室外機示意圖 四海之家 紀念公園街波鼓 臨海二路
居民遊客動線 停車場出入口 SITE PLAN S:1/2500 30(m)
校內師生動線
太陽能板

設計概念|

在兒童教育的研究,教案中不斷嘗試以各庄方式將遊 戲融入課堂,用以提升學童於課堂中的興趣及專注度, 並藉此提升學習能力。

學校-學生日常的載體 學制-遊戲性的追求

該如何以建築語彙轉譯?

|設計說明| 遊戲模型 | 鬥塔遊戲

-明確指向性之地圖特性 -資源分布於進攻路線之間 -強調玩家之間的平衡

動線設計

以校園北方為最低點,南方為最高 點,逐步向象徵小學旅程的終點禮堂攀登、前行

資源空間

將重要資源-圖書室、演講廳 等置於校園中段位置,並獨立於其 他空間、強調資源之於遊戲之重要 性與不可替代性

資源空間

以野怪石滬之多角形做為教室主形 狀發想,用以區分靜態學習空間與 動態動線空間,並藉由內角及外角 空間促進班群教室之實現,

|

基於基地周邊之小學的超額 學童數據及教育部對其六年

內之班級數量預估設定本校

之班級數量 |都市計畫|

商業用地及住宅用地的分配 使相異使用者於路徑上產生 差異,並影響進入校園之配

置方案

噪音影響|

基地北側之大學南路為大學 生日間頻繁經過之路段,較 易對內造成噪音影響,其餘 三側之主要道路則與基地保 持較遠距離

因基地北側為大學校區,建 物分布較鬆弛,因此對於東 北季風之防範較為重要

台積電將遷入於中油舊廠址,

-保留地圖之方向性及分路特色

-確保高度層次之實踐性

-注意教室及戶外活動場域之方位

須注意教室、操場跑道、球 場之設置方位,以降低光線

對活動造成之影響並降低日 照熱度對室內空間之影響

|基地分析| |學區規劃| |周邊現況|
|
未來趨勢|
|
|
|
季風影響
|
|
日照影響
|設計構想| |空間配置| 五、六年級 班級教室 四、五年級 班級教室 辦公處室 一、二年級 班級教室 社區教室 圖書空間 演講廳 活動中心-看台 活動中心
替高雄教去帶入新人口,並 逐步形成社區

一樓平面面圖 scale:1:1300

教室單元剖面圖 scale:1:175

演講廳外連接走廊之視角 活動中心下方之軟墊空間與外部草地 由基地外部向內之視角 各棟連接之走廊 校棟夾擠空間與操場之視野
中高年級教室單元
低年級教室單元
三樓平面圖
南向立面圖
北向立面圖
scale:1:400
scale:1:400 二樓平面圖 scale:1:1300
scale:1:1300 scale:1:600 scale:1:600

樓梯及社區棟之連接關係

希望能使新移入之社區居民於校園內獲得幫助及回憶,

以較窄之窗口設計將窗外景色化為一幅幅圖畫,並藉

由外部環繞梯強調其燈塔之向心性、燈光環繞性

全區配置圖
|分解圖|
圖書室外部格柵走廊 由外部向社區棟之視野 低年級棟外部草皮及社區空間
scale:1:1750
社區棟之走廊空間
|
|
弧形之圖書空間
設計概念
A-A’剖面圖 scale:1:600 北向立面圖 scale:1:600 東向立面圖 scale:1:600 南向立面圖 scale:1:600

未來教育 ·教育創新

數位科技教學 X 過度使用電子產品缺失對環境的觀察

走出教室,展現在地關懷

後疫情時代,多樣化學習樣態

社群相互連結,跨領域跨界教育

◇數位科技輔助 ·生態實作小學

◇ 科技輔助教學,多樣化知識來源

◇ 增加小孩動手做的實作活動,同時親近生態

◇ 期望在科技化與走出戶外之間取得平衡

白天海風 交通 物環 中山大學 往駁二 往西子灣、旗津 往市區 往左營 地理位置 晚上陸風
鼓山國民小學 高雄市鼓山區臨海二路50號
未來世代學習場域—高雄國小校園設計

教室單元較分散,期望達到 所有教室享有同樣的海風, 日照與景觀。

在人流與車流較繁雜的面向 與節點退縮綠化,解決噪音 問題並留設居民的休憩空間。

濃縮過於散落的量體,以單排 教室雙排走廊的形式滿足一開 始的期望。

為了改善過度壓迫武德殿的問題 在配置上進行調整,並強化穿梭 於建築量體間的綠化廊道,增加 引進不同動靜態活動的可能。

1F PLAN 2F PLAN

3F PLAN

1F PLAN

2F PLAN 3F PLAN

UP UP DN UP UP UP UP a b c d e 南向立面 s : 1/800 2m 4m 8m 16m 北向立面 s : 1/800 2m 4m 8m 16m 西向立面 s : 1/800 2m 4m 8m 16m 東向立面 s : 1/800 2m 4m 8m 16m
DN DN UP DN UP DN UP UP DN DN DN 一樓平面 s : 1/800 2m 4m 8m 16m 二樓平面 s : 1/800 2m 4m 8m 16m 三樓平面 s : 1/800 2m 4m 8m 16m a. 舞台與階梯座位 b. 圖書館 c. 行政辦公室 d. 木工教室 e. 實作教室 f. 幼兒園 g. 烹飪教室 h. 廚房 i. 小演講廳 j. 辦公室 k. 大演講廳 l. 導師辦公室 m. 休息室哺乳室 n. 輔導室 o. 彈性室內集會 p. 資源教室 q. 自然教室 r. 彈性教室 s. 電腦教室 t. 美術教室 u. 音樂教室 f g h a m l j k b a n p o q r s t u i
UP UP UP UP UP DN DN DN 一樓平面 s : 1/400 2m 4m 8m 16m 二樓平面 s : 1/400 A A´ B B´
全區屋頂 s : 1/2000
A-A´剖面 s : 1/400 B-B´剖面 s : 1/400
-教育場域去權威化與生活圍塑 陳楷 aA1081423 指導老師 梁凱翔
山海絮語

端看教育的歷史軸, 建築反映了教育的意 義與目的-權威與思想 的控制,而空間中也 藉由對稱挑高等形式 表現權威性,在教育 場域中去除權威性以 及置入新的教育模式 是未來的學習想像。

quantity 密度 樓高 基地 1956 1969-增建 1984 2003-重建 2022-部分重建 人口 9360 面積 約1.16 平方公里 密度 =8068.9 人/每平方公里 道路尺度A 道路尺度B 道路尺度C 1層樓 2層樓 3層樓 4層樓以上
基地面積 22996m2 每年級2班 哈瑪星 駁二 海洋音樂中心 旗津 柴山 高雄市區
THESIS CONCEPT
KITCHEN FARMING LIBRARY 未來食農教育與社區連結是未來校園對於環境與社區的回饋
FARMING
SECOND FLOOR GROUND FLOOR 1 2 2 2 3 4 5 6 7 7 8 9 10 7 7 7 11 12 1.COMMUNITY 2.CLASSROOM 3.OFFICE 4.LECTURE HALL 5.LIBRARY 6.COMPUTER CLASSROOM 7.CLASSROOM 8.PERFORMANCE CLASSROOM 9.ENGLISH CLASSROOM 10.SCIENCE LAB 11.KITCHEN 12.RECYCLE ROOM 3 3 3 7 7 7 7 7 7 7 7 7 7 3 13 3 3 14 1 1 1 1.COMMUNITY CLASSROOM 3.OFFICE 7.CLASSROOM 13.PRINCIPLE ROOM 14.STUDENT CENTER

NORTH ELEVATION

SOUTH ELEVATION

WEST ELEVATION

EAST ELEVATION

SECTION B-B´

未來世代學習場域

高雄市小學校園設計

SITE ANALYSIS

1975年 ( 民國64年 ) 高雄港第二港口完工,遠洋漁船紛紛改往前鎮漁港停泊

,而近海漁船則因近年來近海漁業,過量撈捕,漁源日漸枯萎,加上勞工短 缺,漁獲量日漸衰微,前來鼓山漁市場停泊的大小漁船亦日漸短少 ,

因此處於一個舊產業衰敗,新產業崛起的時間點,而基於雄厚的歷史底蘊鼓 和自然景點,哈瑪星地帶的觀光業也開始起步,而如何與其他風景區區分和 如何創造出專屬特色勢必成為下一個必須思考的問題。有歷史的建設和多元 的環境作為鋪墊,不只是學生,民眾應該也要有所準被一起進步才能共創美 好城市。

教育空間反思 以「共學」為主體找出自我的城市實驗室 鼓山現況與未來 實驗教育-創新文化 討論未來的學習場域 A1081425藍御齊 指導老師 : 林建宇建築師

以課程為主體創造空間

1.如果提供對的環境,每個人都可以有效地學習。

2.營造校園私密小角落,擴充為學習與互動溝通的環境。

3.學生參與空間創造,避免成為一般成果展示,讓成就感 歸於所有參與學生們之中。

4.未完成空間,隨時依需求更動樣貌。

全區配置圖

音樂教室 : 75 平方公尺 美術繪畫陶藝教室 : 150平方公尺

實作教室 : 200平方公尺

實驗室 : 75平方公尺

幼兒園 : 共300 平方公尺(含教室、廚房、

接待室)

室外實作空間 : 250平方公尺

操場空間 : 5200平方公尺

行政空間 : 放置沿街面 共12間450平方

公尺

活動中心 : 放置沿街面 1089 平方公尺 普通教室空間 : 共12間900平方公尺

回收場 : 鄰側門放置150平方公尺

演講/表演廳 : 共兩層360平方公尺

舞蹈教室 : 150平方公尺

風雨操場 : 500平方公尺

閱覽空間 幼兒園 活動中心 低年級教室 低年級共用空間 行政空間 1 5 4 2 3 6 5 4 2 3
1F平面圖
2F平面圖 社區學生共用教室 學生共用學習角落 中年級教室 閱覽空間 活動中心 戶外廣場 / 廊道空間 A-A’剖面圖 1/200 3F平面圖 社區學生共用教室 學生共用學習角落 高年級教室 科任教室 戶外廣場 / 廊道空間 1 6 5 2 3 6 5 4 3 1 3 4 5 6 1 2 5 4

咖啡休閒共學區 :

舞蹈教室 : 150平方公尺

雲端智慧教室 : 200平方公尺

書展區 : 75平方公尺

視覺藝術展區 :

演講廳 :

個人閱讀角落 :

多元學習共享區 : 150平方公尺

戶外交流區 : 200平方公尺

書展區 : 75平方公尺

一站式服務區 :

1F平面圖 1/150 A-A’剖面圖 1/200
6. 2. 5. 4.
1.
7. 3.
1.校前廣場 2.藝術展區 3.服務區 4.演講廳 5.咖啡共學區 6.戶外交流區 7.側門廣場
2F平面圖 1/100 1.連接平台 2.書展閱讀區 3.服務區 4.舞蹈教室 5.雲端智慧教室
2. 1. 5. 4.
B-B’剖面圖 3F天花板平面圖 3F平面圖 1/100 1.多元學習共享區 2.書籍查詢區 3.服務區 4.藏書區 5.個人閱讀空間 6.戶外觀景平台 7.連接平台
3. 2. 4.
6.
3.
1. 7.
5.

放課計畫

茄萣國小

學生與社區的課後校園空間

課後校園

概念「課後校園」源自於小學時期的觀 察印象。相較於課間日常,下課後的校園充 斥著的是更豐富多元的活動行為,並且除了 教師與學生外,更有周邊居民的投入參與。

本設計在三者活動、空間重疊的前提下,重 新編纂規劃校園活動空間的關係,期望校園 能更深入在地的生活中。

因此在一般教室空間中,加入了課後輔 導相關的活動預想,為不同教學型態的可能 性作設計變化;在戶外及半戶外等開放空間 ,用了層級的疊加定義了不同的空間性質, 也達到空間、活動與使用者的串聯。

指導老師
_ 史曜齊 高大建築系 _ 張哲瑋 關於學生的 「課後」校園活動!

_ 高雄市茄萣區茄萣國民小學

基地在區位上大致分為東側與南側的住宅區;西側的濱海遊憩區、魚塭等自然景觀與西濱公 路;北側三塊大範圍的文教區土地。

茄萣國小校地廣大,造成了許多死角與荒地,同時對外鄰接道路僅有兩條,其中以東側的茄 萣路作為主要出入口,出入口單一導致了周邊,尤其是南側的居民難以接近、使用校園開放空間 , ,而校地多鄰接其他土地而 非道路用地的情況,也使得

現階段校園邊界的處理方式 仍以圍牆為主。

基地分析
基地周邊現況
海 魚塭 人工湖 水溝 綠地、空地 茄萣海岸公園 公園 茄萣運動公園 宗廟 私立聖公會幼稚園 華德工家 茄萣國中 其他 ( 工廠、工寮 ... ) 公家機關 住宅 住商混合 獨立商家 茄萣市場 基地

動線出入口 _ 在西側及南側增加出入口,增加校園的可及性。

食育教室 小學部菜圃 音樂教室 美術及 電腦教室 英語及 自然教室 垃圾集中處 環境教室 海洋 教室
一層全區配置圖 5 10 20 40M 幼稚園及 輔導中心 廚房 圖書館 教學主棟 教學主棟 體育館及禮堂 活動 廣場 鄉土及社會教室 幼兒園 菜圃 行政中心 警衛室 停車場 教職員 停車場

「行政及圖書館」

位在正門入口處,方便行政辦公及學習資源較優 的區位。

「教學區」

小學部一般班級教室,位在校園中心。

「幼兒園及輔導資源」

較需要獨立的空間,安排在角落位置。

分散在校園各處,也有海洋教室等特別機能的設 立,將部分開放給在地社區、居民使用,也可以 結合小學教育,做共學活動等等。

作為一般民眾最常、也最容易使用的校園場域, 設置在緊臨住宅區的南側,打開部分開口,希望 促進小學與社區的融合。

「校園量體配置」

由於校地廣大,原校舍就有集中量體而導致的校 園死角問題,同時考量到未來開放部分空間給居 民使用時的管制問題,故將建築量體打散至校園 各處。

「小丘」

校園西側鄰近濱海遊憩區,以垂直高度的變化作 為校園邊界,同時學生能以不同得角度觀察周邊 的魚塭環境。

「下挖綠帶」

作為校園中,對社區開放空間與教學空間 的中介,串連整個校園,也作為對校外人 士活動路徑的指引,避免影響到教學區。

此外下挖綠帶也可以蓄水,並與西側小丘 做挖填互補。

體育館北側二樓前廊
天橋節點向體育館 體育館內部 體育館南側沿廊 ( 對民宅側 ) 體育館東側入口
「科任教室」
「體育館、球場及開放廣場」
校園配置

體育館及周邊區域 體育館區一層平面圖

在體育館及周邊區域連接了教學區的天橋, 期間設立了一個垂直動線節點,配合一旁的空間 配置,將教學區與住宅區間的空白劃分為:主要 球場;社團等動態活動廣場;課後輔導、在地文 化交流會等靜態活動廣場。透過天橋創造不一樣 的停留點、視野,再以舖面設計,用視覺串聯三 個空間,並延伸、引導使用者直接或間接地參與 校園活動。

「體育館」

機能較單一,作為天橋的起點與終點,將動線延 伸至停車場及東南側新增的出入口。由於體育館 本身四面皆有大面開窗,因此在西側以類格柵的 板牆結構;東南及北側在二三層設計外牆夾層來 控制光線。

「動態廣場」

配合社團教室,茄萣國小既有的民俗社、宋江陣 等社團活動,得以在此排練、表演;民眾也可以 利用這個廣場自主性的發起一些動態活動,如土 風舞等增進社區情誼。

「靜態廣場」

作為教學區與開放區域的中介,以較靜態的形式 ,配合課後開放教室、植披鋪面,讓學生與民眾 在校園開放時間,在這裡進行討論、讀書會等等 。

體育館周邊俯視 教學棟往體育館的天橋
2.5 5 10 20M 課後開放教室 社團教室 儲藏室 儲藏室 禮堂後台 控制室 體育館及禮堂 主要球場 動態廣場 靜態廣場
ARCHITECTURE PROTFOLIO A1081431 李士宏 111-1 建築設計(七) 指導教授:劉建志

未來世代學習場域-高雄小學校園設計

跳屋
111-1

跳烏是撒漁網下水後,將其綁在 木筏上,魚兒被圍住無處可逃, 驚慌之餘,自動衝跳到竹筏上, 再把牠捉住便是『跳烏』

每年冬季,茄萣地區盛產烏魚子,是當地 主要經濟來源,路上隨處可見的烏魚子店 鋪顯現烏魚子對於茄萣的重要性

1947 1904 1970~ 1975~ 1982 1985 1992 1999 2022
概念說明-跳烏

STAGE-1 概念與量體配置

概念草圖 教學區 多功能教室 圖書館、演講 廳 行政空間 特教區 幼兒園 戶外球類活動區
RENDER 全區配置概念
STAGE-2
全區配置 0.100 14G 0.296 25R 0.2960.160 0.3040.154 0.3500.154 0.3500.154 25R 25R 0.160 S-01 S-01 S-02 S-02 S-03 S-03 S-04 S-04 S-06 S-06 � Autodesk ����� � Autodesk ����� � Autodesk ����� � Autodesk ����� 1F平面
細部配置設計
STAGE-3 深化設計-社區共生圖書館
作品集
YANG,TING-WEN 2022
GRAPHIC DESIGN THE 7TH SEMESTER

續·海

未來世代學習場域—高雄小學校園設計

基地選址

高雄市茄萣區茄萣國民小學

基地位置: 高雄市茄萣區茄萣路二段 307 號

基地面積: 61,201M2

教學教室數量:每年級 2 班 (25 人/1 班)/

特教班 1 班/資源班 1 班

基地分析 SITE ANALYSIS

SITE ANALYSIS

茄萣區超過80%的⼟地⾯積都為養殖漁業使⽤,

其都市計畫區之⼟地使⽤亦為漁業使⽤為主,屬典型以地區核⼼發展之漁村。

茄萣國⼩北側有⼆仁溪流經,東側臨大⽚養殖⿂塭,南側不遠處有茄萣濕地公園,⻄側則⾯台灣海峽。

過去附近興達港繁盛 時,熱鬧無⽐,興起商業、漁市、⿂塭,

祈求平安的寺廟伴隨著時間逐棟興建...

⽽今雖繁華不再,

廟宇仍然林⽴保佑在地⼈⺠,居⺠依舊依海⽽⽣。

建築體如礁⽯被海切割,

於是遊覽其中時海與陸的邊界難辨。

於此之間,

⾃然的海與⼈工的⿂缸交錯,

使野⽣與豢養的界線模糊。

這座⼩學是學⽣與居⺠探索海洋的⼩徑,是親近大海的展⽰。

以都市紋理看來,這⽚⼟地由⽔⽽⽣,⼈們在此安居、加工、⽣活,

⽽產業也因地⽽起,處處皆是養殖事業,

我相信在地⼈以海為榮,因此願茄萣國⼩得以與海緊密連結。

空間參雜⼈工與⾃然,⽭盾與融合在⼟地上交織⽽成...

潮間帶潮池切割出來的細碎海陸關係

溪流 ⿂塭 攔沙壩
侵蝕堆填在海灣的⼈工地坪…
基地分析 SITE ANALYSIS
茄萣國中 社區 社區 小學 幼兒園 魚塭、 生態地 學齡兒童共用 公共設施結合教學 生態公園

一樓平面圖

二樓平面圖

PER SPEC TIVE

Grade_SENIOR

Theme_PRIMARY SCHOOL DESIGN

李奕萱
Author_Y.X LEE Nation_TW School_NUK
PUBLIC 指導老師_陳逸杰 @Portfolio Senior
Prize_���� VDWC HONORABLE JUDGE AWARD ���� VDWC NOMINATION AWARD ����總統圖書館學生競圖 入圍
EDUCATION NATURE

無感城市, 處聚集並且在某處被發現。,此基地發展追溯回上世紀日治時期,在城市的無限擴張中,不只是人,連土地都被佔

領的完全。 而過近百年,人文薈萃的鼓山鹽埕區,已為這座擁擠而沒落的城市涵養出一種以文化 為名的底蘊。鼓山國小北靠壽山,南臨高雄港,在無限延伸入大海之時,﹁山﹂卻乏人問津。 在求快速發展的城市速度下,擺脫以終點為目標的衝刺,這座性感的城市以及無感的城市行者,在停留與衝刺間留設一片地,在密不通風的城市街道中,得以喘息,日復一日,以非目的地的棲留地,佇足,再流動至城市各地,形成特殊的鼓山身體痕跡。

��� ��� ��� ��� ��� ��� ��� ��� ��� ��� ��� ��� ��� ��� ��� ��� 學齡兒童�-��歲 ��以下兒童 �以下兒童 ��.� ��.� ��.� ��.� 學齡兒童於��歲以下兒童人數占比 棲居
私 公
N 全區屋頂層配置圖 主入口 幼兒園入口 圖書館社區入口 私 公 西南立面
學生空間 1 轉角綠地 2 引風流入 3 垂直串流 垂直高度的變化 圈限一方小天地出讓想像由這個小小空間 盡情發散
垂直動線 一樓空間 校園樓道 校園樓道 社區樓道 一樓柱樑 屋頂 b�柱樑 b�空間 社區樓道 社區空間/校園空間 連結廊道 一樓 b� 圖書館 幼兒園 小學校 圖書館 社區空間
平面圖 基本圖面 N 1 2 3 4 5 6 7 8 9 10 11 12 13 14 15 16 17 17 9 17 18 19 20 22 21 23 24 25 26 27 28 29 31 32 32 32 17 17 30 33 34 35 1. 2. 3. 4. 5. 6-1. 6-2. 7. 8. 9. 10. 11. 12. 13. 14. 15. 16. 17. 桌球室 自然教室 保健室 體育器材室 輔導室 學務處 教務處 總務處 校長室 機電室 幼兒園辦公室 幼兒教室 韻律教室 廚房 垃圾回收室 圖書館 警衛室 廁所 �f b� 19. 20. 21. 22. 23. 24. 25. 26. 27. 28. 29. 30. 31. 32. 音樂教室 美術教室 表演教室 四年級A教室 五年級A教室 六年級A教室 一年級A教室 一年級B教室 二年級A教室 二年級B教室 三年級A教室 三年級B教室 機電室(水) 圖書角 �f �f ��. ��. ��. 四年級B教室 五年級B教室 六年級B教室

CLIMATS

the new page of education

Forest School

The process helps and facilitates more than knowledge-gathering, it helps learners develop socially, emotionally, spiritually, physically and intellectually. It creates a safe, non-judgementalnurturing environment for learners to try stuff out and take risks. Forest School inspires a deep and meaningful connection to the world and an understanding of how a learner fits within it. Our approach to risk means that learners constantly expand on their abilities by solving real-world issues, building self-belief and resilience. We believe that risk is more than just potential for physical harm, but a more holistic thing, there are risks in everything we do, and we grow by overcoming them. Forest School therefore, helps participants to become, healthy, resilient, creative and independent learners.

SITE ARBITRATION CLAUSE ANALYSIS

SITE TREE PROGRAM

SOUTHWEST NORTH EAST

Forest Schools are nature-based communities where trained practitioners nurture learner-led exploration and discovery, nurturing meaningful experiences for positive lifelong impacts. Wellbeing is the foundation of our practice and through recognizing the social, emotional and physical needs of participants we provide the guidance and facilitation for our time in nature.

Through creating learner inspired experiences based on exploration and discovery, we recognize opportunities to mentor holistic growth over the course of long-term programs.

In developing the community, we nurture a culture based on collaboration and of embracing challenge so that we can allow, over time, for the blossoming of character, resilience and empathy, and for a greater sense of connection, with nature and for our shared future.

Academic Work 01 School design

School space plays an essential role in creating a pleasurable learning atmosphere. The tendency of everyone to choose a school space also varies. By knowing this trend pattern, schools can be designed to improve student learning effectiveness. The purpose of this study was to find out which school spaces students choose to study, what kind of room criteria are needed, and distribution patterns of students' preference choices. This research used both the qualitative exploratory and quantitative methods using an openended question questionnaire for data collection.

As a class, we created community agreements for when we were in the forest. Before we left for our first walk, the whole group discussed what kinds of things we would need to agree on together to ensure that everyone could be safe and enjoy themselves. We even came up with a call and response to use before crossing the street and encouraged the children to have “laser focus” as they observed in the forest or nature area.

sec A-A'
sec C-C' sec D-D'
sec B-B'

Data analysis techniques used qualitative analysis methods consisting of open coding, axial coding, and selective coding. The results showed that the library, mosque, and multimedia laboratory were the most preferred space for students to study at school. Some factors that influence the selection include thermal comfort, completeness of supporting facilities, and acoustic comfort.

School architecture is a vital part of the learning environment: an educational facility should actively support learning processes which are grounded on an applied, multidisciplinary curriculum. This paper argues, accordingly, that a school should provide flexible educative spaces which properly enable multiple forms of teaching and learning.

CLIMATS_CAROLINE

the new page of education Forest School_

Sustainable Campus Planning

Cultural Orientation: Integrate local resources and think about the con-text of school-based curriculum planning. Make the buildings all have the concept of new urban architectural design such as green building, ecological city, and sustainable community. The school architectural planning concept will also be in line with the community architectural culture. Education orientation: The school building ontology and space planning are part of the curriculum of the forest primary school. The overall planning of the school building will incorporate spatial images such as forests, meditation spaces, and natural teaching, so that students can experience learning in a spatial situation and learn in the forest in person.

Curriculum Orientation: In addition to field courses, the school also plans Maker Education special courses, and the school-based curriculum class-room (Maker Classroom) plans to construct at least 2 large spaces for Maker education activities; in addition, the overall planning of all general and specialized classrooms, education information For pipeline design, at least 3 physical network points and 1 AP point are reserved for each classroom to facilitate the construction of future technology smart campus. In order to train students to have a good foundation and ability in learning and thinking, book corner space and student computer placement points are reserved in each ordinary classroom.

User times

User spaces

Academic Work Public space
design

second Floor Plan

First Floor Plan

Sustainable environmental protection orientation:

(1) The school will comply with environmental protection and low carbon, energy saving and waste reduction, re-source reuse, and achieve the goal of a sustainable campus new school.

(2) The planning of the school’s green buildings will include permeable pavement, school land ecological cycle (teaching garden, friendly fence), water-saving environment (rainwater collection and reuse and ecological pool), energy application and new net energy ( Building energy conservation, ventilation energy conservation and health requirements, solar energy and wind power applications, etc.), safety and disaster prevention and relief (safe and secure campus facilities, campus buildings, facilities, equipment disaster resistance, emergency space planning for disaster prevention and relief), and "green energy management" Design and practice the educational ideal of a smart low-carbon campus.

Economic orientation:

(1)The planning goal of school buildings is sustainable management, and strive to be simple, easy to maintain, and easy to manage in the future. The materials respond to the needs of energy saving and carbon reduction. Artificial light and artificial wind.

(2) Comply with socio-economic and social functions, complete the school establishment schedule in time, and meet the schooling needs of students in Gushan District.

(3) In order to avoid the loss of manpower, material resources and financial resources of the school caused by inconvenient management in the future, the planning of the school garden will pay attention to the setting of space, planting types, etc.

Powered by Vincent Chang 2022.winter
永續‧美學–友善社區校園實踐 郭怡彣 指導教授:林建宇 陳 市 友 學

Current status of the base 基地現況

臨海二路鼓山第一市場 武德殿原愛國婦人會館

Area survey 區域調查

高雄市鼓山區惠安里臨海二路50號
漁業區公 園 變電所 基地位置 市 場
商業區住宅區 保存區
鼓山區惠安里–社區學童就學人數統計 鼓山區惠安里–每月人口概況統計 四年級 0 一年級二年級三年級 五年級六年級 5 10 15 25 20 30 班別一 班別二 班別三
八月份 200 0 600 400 800100012001400 七月份 六月份 五月份 戶數 總人口 女性 男性 全區配置圖 行政事務大樓 教學資源大樓 教學資源大樓 服務教學大樓 資訊圖書館 公共服務空間 多功能活動中心 警衛室 都市農園 生態水池 A A´剖面圖

Issue 議題|永續社區型態

臺灣都市高齡化及少子化目前成為社會重要問題,藉有地盡其利的原 則,重新分配過剩資源給社區需求者,建立現代社區友善之學習、休閒、 資訊交流設施及空間需求環境,成為都市建設不可容緩的工作項目之一。

User target audience 使用對象

透過基地本身聚焦鼓山小學周遭社區的凝聚力,創造多功能社 區資源環境,並保存人與人之間的連結。

自然資源共享空間生態水池魚菜共生

Qualitative and quantitative 定性定量

空間數量:12 間

規劃內容:一到六年級教室各2間

使用人數:30 人 空間大小:80㎡/間

專科教室

空間數量:7 間 使用人數:40 人

規劃內容:自然教室 音樂教室 烹飪教室各2間

資訊教室1間

空間大小:自然 音樂 烹飪 資訊教室-120㎡/間

健康中心

空間數量:1 間 空間大小:120㎡/間

規劃內容:健康中心 衛生清潔室

校長室

空間數量:1 間 空間大小:80㎡/間

規劃內容:辦公室 會客(議)室

諮商中心

空間數量:1 間 空間大小:125㎡/間

規劃內容:輔導室 輔導師辦公室

家長會辦公室

空間數量:1 間 空間大小:80㎡/間

規劃內容:家長會室

會議室

空間數量:1 間

空間大小:160㎡/間

儲藏空間

空間數量:1 間 空間大小:80㎡/間

規劃內容:儲藏室 卸貨室

停車空間

空間數量:36 個車位 規劃內容:地面及室內地下停車場

教學資源中心 空間數量:2 間 規劃內容:圖書館 電腦機房各1間 空間大小:圖書館-420㎡/間 電腦機房-25㎡/間

多功能活動中心 空間數量:2 間 規劃內容:體育器材室 多功能體育館各1間 空間大小:體育器材室–70㎡/間 多功能體育館–1400㎡/間

廚房 空間數量:1 間 空間大小:200㎡/間 規劃內容:中央通廚

聯合辦公室 空間數量:9 間 規劃內容:教務處 訓導處 總務處 人事室 會計 室 印刷室 檔案室各1間 教師辦公室各2間 空間大小:教務處 訓導處 總務處–110㎡/間 人事室 會計室 檔案室–80㎡/間 印刷室–45㎡/間 教師室–120㎡/間

警衛室 空間數量:1 間 空間大小:30㎡/間 規劃內容:校警室 值夜室

廁所空間 空間數量:8 間 規劃內容:男廁所 女廁所12/8 無障礙廁所8/8 空間大小:男廁所 女廁所–2㎡/間 無障礙廁所–8㎡/間

開放設施圖書館 社區資源交流社區生活學習 社區志工服務 社區書展日 舉辦教育交流日 社區讀書會 Community Resources 社區資源 青少年族群 13-24歲 學童族群 6-12歲
壯年族群 25-44歲 中老年族群 45歲以上 普通教室
公共服務空間 教學空間 服務教學空間 行政空間 B B´剖面圖

Sustainable energy saving 永續節能|水資源回收再利用 地下設置

服務教學大樓

1F| 健康中心、自然教室、 音樂教室、烹飪教室

2F| 資訊教室、自然教室、 音樂教室、烹飪教室

教學資源大樓

1F| 一至二年級普通教室

2F| 三至四年級普通教室

3F| 五至六年級普通教室

行政事務大樓

1F|教務處、訓導處、教師辦公室

2F|總務處、印刷室、人事室、會計室

3F|諮詢中心、家長會辦公室、校長室

公共服務空間

1F| 中央廚房、儲藏空間、卸貨空間

多功能活動中心

-1F| 室內地下停車空間

1F| 多功能體育館、體育器材室

雨水截汙掛藍雨水棄流

B
D
E
G
F
A
資訊圖書館
警衛管理室
C B D E G F A C C 正視立面圖
A A
資訊圖書館A A´剖面圖
水池
過濾裝置 雨水過濾器提升泵 淨化一體機 雨水總匯管 水池補水衛生沖廁綠化灌溉 採用自然溢流方式 雨水
目標 活化空間 注入創新 資源共享 共存共榮 跨代設計 跳脫思維
Target
右視立面圖
資訊圖書館平面圖 細部設計剖面圖 系統高度:最小14.5㎝ 重量(飽水):最小155㎏/㎡ 蓄水容量:約40L/㎡ 1.植栽層 2.屋頂輕質土 3.透水過濾毯SF 4.蓄排水板FD40E 5.保水防護毯SSM45 6.阻根膜WSF40
便利閱覽區 舒活多功能區 -30 +460 新書展示區 期刊閱讀區 主題展示區 資訊檢索區 流通服務台 2 3 5 6
B B
綠化屋頂結構 資訊圖書館 B B´剖面圖
左視立面圖 後視立面圖 資訊圖書館天花板圖 資訊圖書館屋頂圖 吊燈 圖 號圖 號 木作內藏崁燈 CH=460
2
ZHEN
0 2 3 TING
CHANG ARCHITECTURE NUK
/黑白圖
FIG.1 堆疊 TYPE A 挖空切割與碎化 SPACE/社區教室 模糊邊界 創造視線連結 SPACE/地面層休息空間 挑空引入光線增加空氣流通 控制物理環境 SPACE/教學區與行政區 挖空增加上下連結 引入風 SPACE/室內遊戲區與音樂教室 TYPE B TYPE C TYPE D 嘗試剖面挖空與挑空創造多核場域
地面層模糊邊界與社區教室之廊道
FIG.2 脫開&創造孔隙
增加視線與活動上有趣性 且試圖引風與光進入控制物理環境
嘗試引入居民視線增加學校與居民之連結 且不打擾教學空間
將教學區與行政區單元化 WIND
FIG.2 創造灰空間與公共空間連結

邊界退縮串聯周圍綠帶

未定校園邊界直接退縮 透過設計手法阻隔校內與外界的干擾

創造公共廊道

打破舊有校園圍牆系統 增加居民在上學時間利用基地之可能性

置入多核系統

置入多核系統讓空間變鬆散 能創造空間場所精神

置入社區教室

社區教室在西向小溪邊成開放狀態 置入之核心場域能與小溪形成自然連結 東向之社區教室則在上課時間服務小學學生 放學服務居民,形成居民與學校關係之中介

工作室 多目的教室 多目的教室 半戶外休息區 社區教室 0 2 4 6 10 (m) 里民閱讀中心 圖書館 演講廳 0 2 4 6 10 (m)

Turn static files into dynamic content formats.

Create a flipbook
Issuu converts static files into: digital portfolios, online yearbooks, online catalogs, digital photo albums and more. Sign up and create your flipbook.