Nora Ip - Professional Portfolio

Page 1


Professional Portfolio

Hi! Nice to meet you, I’m Nora. I am a graduate designer from the Queensland University of Technology, holding a Bachelor of Architectural Design. Using my plethora of skills, I am a flexible team player whose work is just as precise as an individual.

As a constant observer, I pay close attention to repeating patterns, symmetry and geometry in everyday living throughout my journey in the world. Design allows me a framework to understand the world and those around me. In my journey I strive to unlearn all that I know to trade for new perspectives to flourish.

Following the completion of my bachelor’s degree, I am focusing on gaining diverse industry experience to ensure I am fully equipped to pursue my Master’s degree. I am highly motivated and detail-oriented, with a proven ability to manage projects across multiple disciplines. Additionally, I have experience collaborating closely with clients to address their needs, and I am adept at building and maintaining strong client relationships.

Experience:

Architectural Draftsperson

TJ Building Designers

Upper mount gravatt, QLD

Feb 2022 - present

Key Roles

• Consistently delivering full design and construction documentation for high-end residential, commercial, and industrial projects using Autodesk Revit

• Developed and presented interior design and materials proposals for with detailed 3D visualisation utilizing Revit and Lumion

• Facilitated building client rapport and contractors to foster collaboration on various projects simultaneously.

• Primary lead in producing detailed 3D visualizations at design stage, producing detailed interior fitouts, custom joinery and mood boards while reporting directly to director of project.

• Worked with a tight knit team with a collaborative spirit to achieve shared goals.

project involvement:

high-end bespoke residential design............ multi-residential complexes.................... commercial offices............................. industrial warehouses..........................

extent of involvement:

design development, 3D realisation, construction documentation as above interior design, 3D realisation, construction documentation 3D realisation, construction documentation DA drawings

Key Strengths

Observant, keen eye for detail, time management, and efficient verbal communication

Comprehensive knowledge of Australian Standards & NCC

Thrives in teamwork and working under leadership

Multilingual communication (english - cantonese - mandarin)

Software skills

Revit

Lumion

Indesign

Photoshop

AutoCAD

Enscape

Rhino

Hand sketching

Education

learning intermediate proficient

2020 - 2023 Queensland University of Technology

Bachelor of Architecture

(Offered) Queensland University of Technology

Master of Architecture

St Rose of Lima’s College (HK)

Professional Work

pages 6 - 25

Jasper Street, bespoke residence and interior design

Elizabeth Street, bespoke residence

Stradbroke road, mixed-used commercial residential precinct

Undergraduate Work

pages 26 - 41

Pomona Showgrounds Community Precinct

Oasis: Mixed use community facility

Hydrogen House: zero-carbon living concept, Eagle Farm

Personal artwork

pages 42 - 47

Lumina Abyssal, acrylic on canvas, 2022

More than human: a collaborative spatial installation

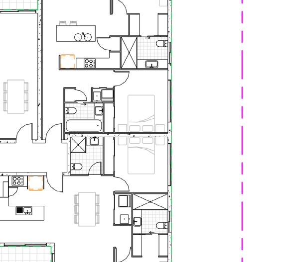
Jasper Street, Bespoke residence + Interior

Extent of involvement: Exterior and interior design, 3D realisation and working drawings

Software used: Revit, Lumion, Adobe Photoshop

Interior Design

Elizabeth Street, Bespoke residence

Extent of involvement: Exterior design, 3D realisation and working drawings

Software used: Revit, Lumion, Adobe Photoshop

Stradbroke road, Mixed-use commercial

Extent of involvement: Exterior design and 3D realisation

Software used: Revit, Lumion

Undergraduate Work

Pomona community enterprise

semester 1, 2023

This proposed enterprise is tailored to a range of Pomona inhabitants, from those considering residence to those chiming in for a weekend getaway. by a combination of revitalising of existing spaces, the goal is to establish a well-used public destination that effectively caters to local organizations and events, such as the annual arts exhibition, weekly markets, and the Noosa Trail Network. the three additional spaces proposed each cater to these aspects: practicing mindfulness, economical opportunity and community togetherness.

Cross Generational Spaces

Each of the proposed spaces serve its purpose of balancing one another on a system of intertwining of different stakeholders to achieve engaging interaction. For example, the cafe is situated near the heritage library so elders and newcoming guests can share their knowledge and stories about Pomona; the installation space and plant nursery is made accessible to provide sensory and mental stimulation for both children and elders; and the arts studio allows visitors of all ages to release their creavity as an homage to the Railway Gallery.

Sensory design: neuroinclusivity through the built environment

Inclusiveness is a crucial component of this proposal, hence, different potential sensory elements were explored for its profound impact on neurological health. By integrating thoughtful sensory elements such as diffused lighting and acoustics, textures, and colors, the space will be purposefully designed to create a positive and stimulating environment for all individuals.

The research article “Impact of built environment design on emotion measured via neurophysiological correlates and subjective indicators: A systematic review” by Isabella Bower et. al. highlights that environmental enrichment - enhanced sensory, cognitive, motor and social stimulation results in behavioural alterations in animal models. The built environment is considered as one major component of environmental enrichment, therefore the impact of the design of interior spaces on human emotion can be observably significant.

materiality

A sense of familiarity is a prioritised goal of this proposal, where one can feel like home regardless of where or when they’re from. To achieve that, organic materials and finishes are utilised to create a universal intimate feeling. Incorporation of a tensile roof allows for a lengthy span with minimum upkeep and low costs. the thin membrane also creates soft diffused lighting throughout the day.

Oasis: Mixed use community facility

semester 2, 2022

This 7-storey mixed use project was developed for the Bowen Hills demographic with spatial planning informed by Brisbane Vision 2031. design strategies utilised align with SEQ Next Generation Planning and SEQ subtropical design, with emphasis on offices, retail and connective spaces of 21st century. created with versatility in mind, OASIS spacial usages are fluid and adaptable for any proposed tenants.

Design statement

This project was dedicated to the curious and and lifelong learners of our generation. by partially exposing of the building to be visible, OASIS intends to become a visual community, especially for the creative industries

Hydrogen House, Eagle Farm

semester 1, 2023

The Hydrogen House aims to establish a new benchmark for the 2032 Brisbane Olympics village accomodation, so that completely self-sustaining and energy-conscious living could be achieved. By pushing the boundaries of renewable living, this innovative project redefines how we approach our energy needs.

Located in Eagle Farm Brisbane, Hydrogen House aims to showcase the possibilities of off grid, hydrogen based living in Southeast Queensland in the form of a demonstration house. It caters to combat the issues brought forth by subtropic climates such as hot weather and seasonal rains while harnessing the energy generated with architectural elements in roof design and spatial use.

Renewable materials such as timber, cork insulation and reclaimed bricks will be utilised for this project. the utilisation of native plants as landscaping and privacy along the northern face allows for customisation in privacy via plant density and saplings can be easily sourced at the construction site.

Drawing inspiration from Southeast Queensland architects Vokes and Peters, Myers Ellyett and local Queensander architecture, this dwelling promotes self sustainable and climate-considered design with an emphasis on natural elements. the shaded internal courtyard blurs the boundaries between indoors and outdoors, creating a seamless composition where the surrounding environment becomes an integral part of the living experience.

Personal Work present - evergrowing

Lumina Abyssal, acrylic on canvas

“Lumina Abyssal” is a personal tribute to my childhood interests, highlighting adaptation to challenging environments and perseverance. The species depicted in the series inhabit the depths of the Pacific and Atlantic Oceans, often over 1,000 meters below the surface, and have evolved remarkable bioluminescent traits to attract prey, ward off predators, or blend into their surroundings. Growing up, I often felt a need to adapt as I navigate different stages of life, imagining my mind as fluid and agile like the sea creatures of coral reefs. As I reflect on my evolution over time, this series of paintings serves as a reminder of the privilege of continuous growth and a token of gratitude for the journey.

More than human, collaborative mixed media

“More than Human” is an introspective spatial art installation created in collaboration with my fellow student and friend Olivia in 2023. Our work aims to capture the attention of passersby through intentional vandalism, featuring a cartoonish hibiscus sprouting from a window sill. This artificial representation of nature serves as a critique, encouraging viewers to reconsider their environmental choices—whether it’s swapping plastic straws for paper, choosing polyester tote bags over paper ones, or opting for artificial IKEA plants instead of real ones that keep wilting. While these actions may seem minor, they often feel insincere upon reflection. Our piece seeks to amplify this contemplation, inspiring deeper consideration for future decisions.

Turn static files into dynamic content formats.

Create a flipbook
Issuu converts static files into: digital portfolios, online yearbooks, online catalogs, digital photo albums and more. Sign up and create your flipbook.