Internship Portfolio

Menon Architects
Architecture , Interior – Design , Valuations

![]()


1. Project – Residential
2. Location – Angamaly, Ernakulam, KERALA.
3. Project details – 4 BHK + 2 Living room with colonial Kerala Architecture .







1. Project – Pro Nail Salon
2. Location – Ozone greens, Jawahar Nagar Ave, Kadvanthra , Ernakulam Kochi , Kerala
3. Project details – Commercial Project 1st floor to propose a Nail Salon with the Staff Accommodation.












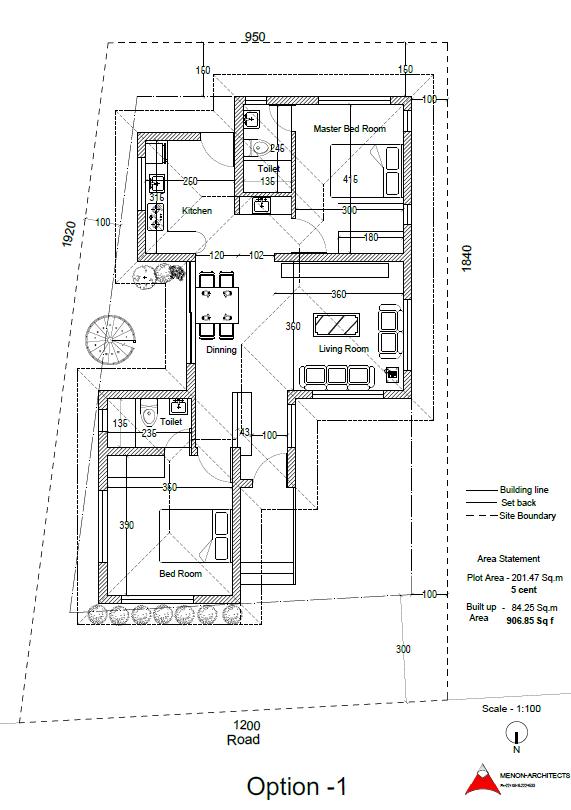
1. Project – Residential
2. Location – Cherthala, Alappuzha , Kerala.
3. Project details – Low cost housing using the interlocking block, the budget is around 10 lakh.



1. Project – Residence at Pandikudy
2. Location – pandikudy, Fort Kochi, Kerala.
3. Project details – Low cost housing and demolition of the existing Building.






APPENDIX-J 1 ( see rule 6(3) ) CERT
Certified that:
(i) The plot boundaries, measurements and other deta ls shown in the s te plan are correct
(ii) The drawings are in conformity w th the provis ons of the master plan/ detailed town plann ng scheme/ nter m development order as app icab e under the kerala town and country p anning act 2016
(ii ) The drawings are in conformity w th the provis ons of the kerala mun cipa bui d ng ru es, 2019 and other app icab e statutes
( Signature )
APPENDIX-J 2 ( see ule 9(2) ) CERTIFICATE
Cert f ed that: ( ) The document (s) in support of the ownership o the p ot has/have been veri ied and that the appl cant (s) has/have every r ght of construc
( i) The p ot boundar es measurements and other deta s shown in the s te p an are correct and

APPENDIX-J 1 ( see rule 6(3) )
CERTIFICATE
Certified that:
(i) The plot boundaries, measurements and other details shown in the site plan are correct
(ii) The drawings are in conformity with the provisions of the master plan/ detailed town planning scheme/interim development order as applicable under the kerala town and country planning act 2016.
(iii) The drawings are in conformity with the provisions of the kerala municipal building rules, 2019 and other applicable statutes.
( Signature )
APPENDIX-J 2 ( see rule 9(2) ) CERTIFICATE
Certified that:
(i) The document (s) in support of the ownership of the plot has/have been verified and that the applicant (s) has/have every right of construction in this plot;
(ii) The plot boundaries, measurements and other details shown in the site plan are correct and
(iii) The drawings are in conformity with the provisions of the master plan/ detailed town planning scheme/interim development order as applicable under the kerala town and country planning act 2016.
(iv) The drawings are in conformity with the provisions of the kerala municipal building rules, 2019 and other applicable statutes.
( Signature )


1. Project – Residential
2. Location – Ernakulam, Kerala.
3. Project details –Renovation Project.

















1. Project– NICU (Neonatal intensivecare unit ) Hospital.
2. Location –GovernmentWomenand children’s Hospital Mattancherry,KOCHI, KERALA.
3. Projectdetails – The pediatric ward was extendedand convertedinto NICU – Neonatal intensivecare unit.
4. Purposeof the Site visit – on sitediscussions







1. Project– Hospital
2. Location –Kadavanthra , Kochi, Kerala.
3. Projectdetails – The pediatric ward was extendedand convertedinto NICU – Neonatal intensivecareunit.






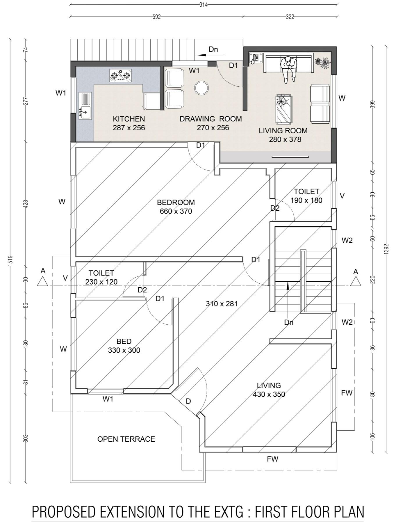
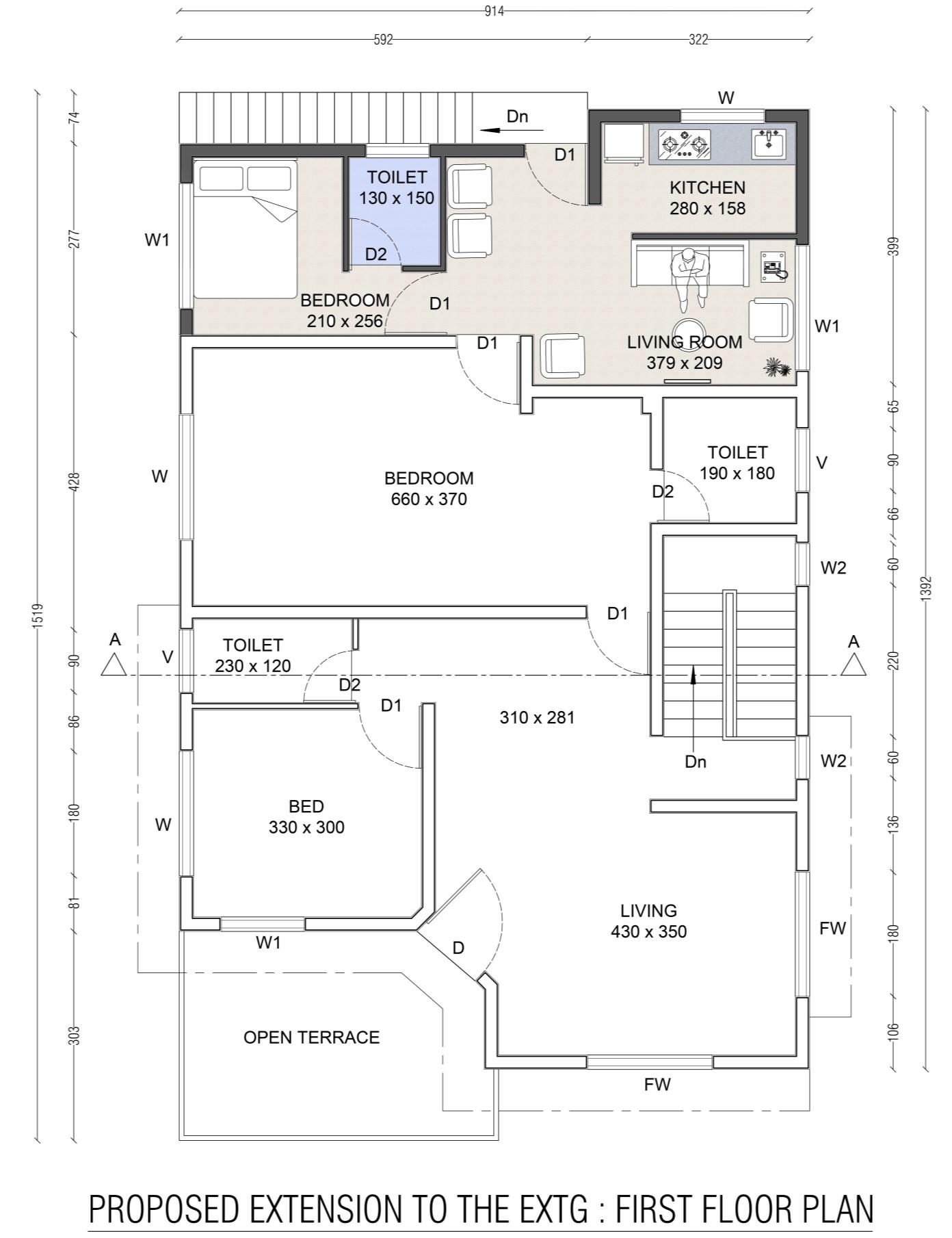
1. Project– Residential
2. Location –Mattancherry,Kochi, Kerala.
3. Projectdetails – Extensionin the 1st floor , Requirement– Living + Kitchen + Bedroom.










