Noah Freedman
Portfolio
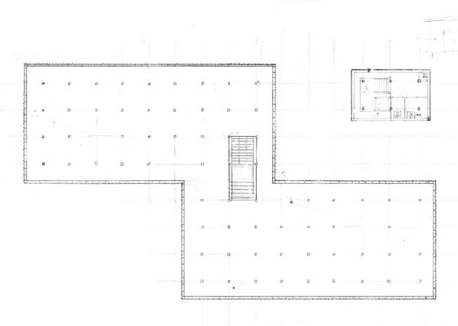
Blacksburg Weaving Studio
Site: Draper Road Blacksburg, Va
Program: Weaving Studio, Gallery and Apartment
Order: Path and In Between
Placed in the Blacksburg arts and cultural district this mixed use building addresses the hierarchy of its private and public using the modes of path and in between.























Second Year Competition
Site: Middle of Path Connecting Campus to Blacksburg Program: Gallery for the IAWA Focus: Movement Competition Time: 1 Week
The site is a foot traffic arteries between Virginia Tech’s campus and Blacksburg. The sites critical function is its adjacency to IAWA (International Archive of Women in Architecture) archive.







The Forest of Order
Site: German Pine Forest Program: A house for Sculptures Order: Light Over heavy Focus: Light and Order Project Length: 3 weeks
Nestled deep in a pine forest in Germany this building was houses four statues by Georg Kolbe.
The building was designed in the language of a pine tree with a structural but light bottom and a visually heavy top made of small light elements. Light was allowed to enter in gaps in the buildings upper “foliage”.
The plan is organized on a grid pursuing the feeling of the forest with an open forest of wooden columns framing the statues dawn and dusk.













