ARCHITECTURE PORTFOLIO


![]()


01: Suburban Threshold Space
Undergraduate thesis In Progress






Project: IAWA Archive Showroom Second Year competition Winning Project

Project: The Intervention of Fire First Year Competition Winning Project



Between the urban center of Frederick and its rural, agricultural hinterland, sits a series of repetitive bedroom communities creating an isolating retreat for their inhabitants. While the suburban unit is defined by the next unit, it is not a part of it; the aggregated units do not relate to town or country. The mass-produced suburb is now about 75 years old and has had very little typological adaptation to its originating order. I propose that suburbia should fulfill its potential as a place in which one dwells between--a threshold space. Thus, the approach to growing a suburban identity must reflect both the adjacent urban and rural areas in its proximity. The thesis project adopts the iconic typologies that define the threshold places afront and behind a given suburb in Frederick, Maryland: Frederick city’s Clustered Spires and Frederick County’s Dairy Barns. These icons provide a container for a new type of suburban growth.













While the barn icon principally fulfills an Accessory Dwelling Unit (ADU) program, the iconic spire is deployed to create space for a new more interactive stage of growth. Each spire would be filled with the programs the suburb is missing: high density housing and walkable access to retail and dining. This infill subverts the suburban individual units by creating a formal-functional dialogue with their regional identity. Within the iconic shapes, the suburb grows.






The suburb home and the spire adapt to each other. The spire opening and closing its louvers to allow light while maintaining its sacred form. The home shrinking to the scale of an apartment. The home is given an individualizing sloped roof in its accommodation of the stair. The porch completes the circulation between the spire and the home creating a space to dwell between the home and its iconic shell.


Integrative OPENLAB hosted by Payette
Partner: Stella Shin
Unless otherwise noted drawings were developed together and models were made by me and photographed together. Design was shared with ideas and drawings passed between us at regular intervals.

A space for the closed society of Madonna Della Cava (Madonna of the cave) to open to the public of Boston on the week of their feast. The building consists of a strong base of stone that has been cracked exposing their shrine. The shrine is then veiled with an adaptable fabric face protecting the mystery of the shrine and its society. The legend of the Madonna says that the original stone shrine was shattered and replaced with one made of fabric to prevent it from shattering again. The building takes cues from the shrine and replaces its public face with resilient flexible fabric that lifts and activates as the shrine leaves its seam to be paraded across the north end.








hanging frame stablizing the fabric
pull point attaching cable to fabric
The fabric brings the building ton life. Creating an adaptable mysterious ambiguity for the society of Madonna Della Cava.
(Below) The facade mock up 1/2” = 1’ proves the feasibility of the operable lifting veil. it expresses the variable ambiguity of its qualities of open and closed.
(Above) The ceiling fabric mock up 1 to 1 test various qualities of fabric in relation to lights attempting to dissolve the light to a quality rather than a fixture.
Design of mock up in partnership with Stella Shin: Photograph starring Stella Shin
















Site: Blacksburg, VA
Program: A Room
Order: Compression + Release
Focus: Threshold + Scale
Project Length: 15 weeks

The tower tantalizes users with light bouncing across the slats above. The light reaches down inviting the eye but never graces the brick with its touch.
Once compressed by the height of the tower, the occupant can release themselves back into the garden by opening the awning.
The room has little spirit without the contrasting intrusion of natural diversity.






Swiss Wood Urbanism Lab


Site: Altdorf, Uri Switzerland Program: Mixed Use Overbuild Order: Wood over Concrete Focus: Icon of place
Project Length: 12 weeks
Vernacular of alpine Switzerland is volumes made of wood over stone construction. Using this type, I propose the addition of a mountainous street scape on top of existing concrete housing blocks. This works much like the large overhangs of Swiss barns to conserve and support the existing bases they have grown atop of. Creating an industrious “mountain town” out of Altdorf’s existing housing sprawl.











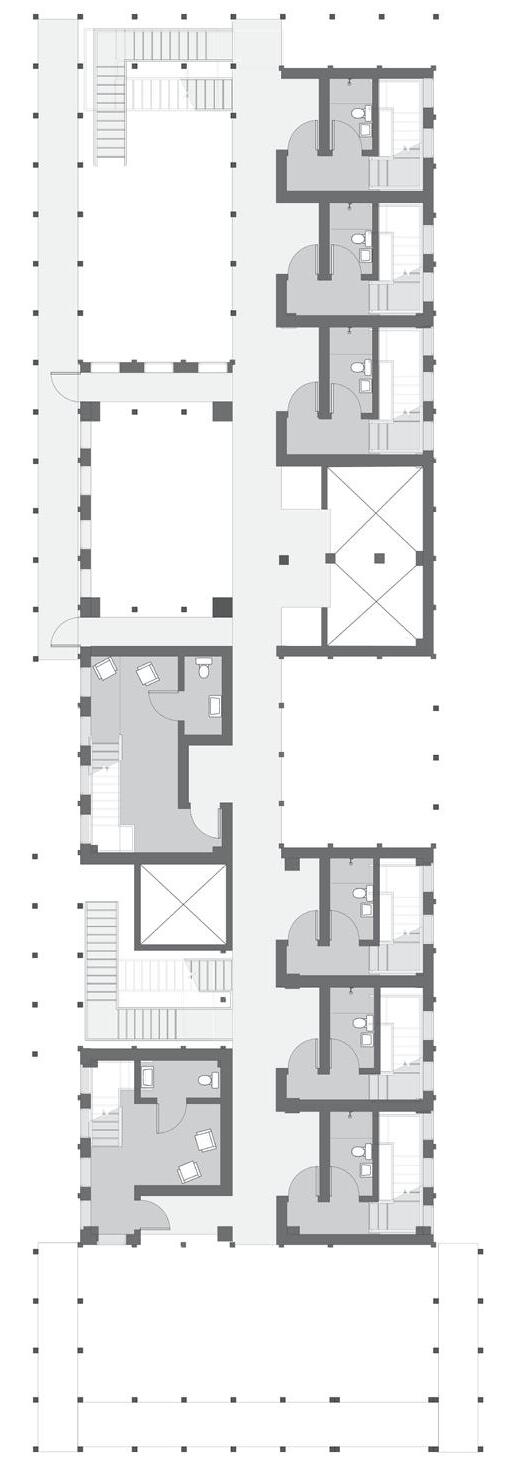
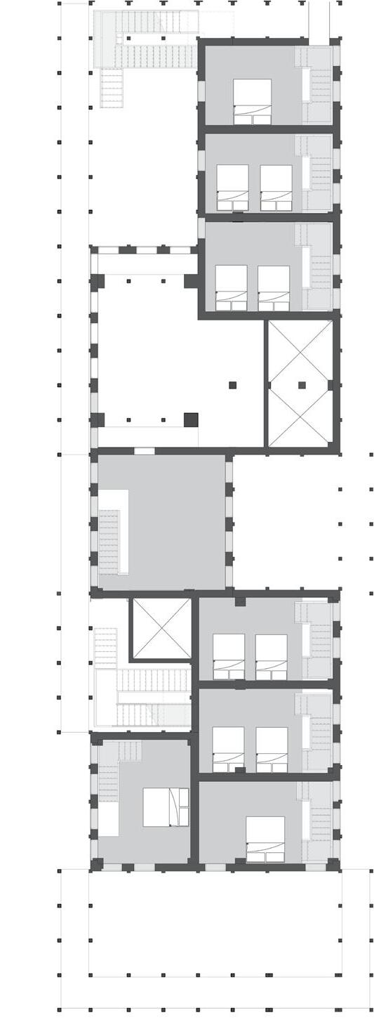
Site: Blacksburg Main st.
Program: Hotel
Order: Courtyards
Focus: Interaction
Project Length: 16 weeks
How do you create interaction in a hotel? How to you encourage interaction without loss of security?
The project creates views of personal spaces that are visible but safe and out of reach. These spaces offer their nesting occupant the ability to observe the ground of gathering and determine when it is safe and fruitful to join.
























Render showing view from lower courtyard looking towards the rooftop canopy bar.










Second Year Competition 1 of 3 Winners
Selected out of 150 projects
The site is a foot traffic artery between Virginia Tech’s campus and Blacksburg. The site’s critical function is its adjacency to IAWA (International Archive of Women in Architecture) archive.

Site: Path Connecting Virginia Tech Campus to Blacksburg Program: Gallery for the IAWA Focus: Movement Project Length: 1 Week















First Year Competition
1 of 5 Winners
Selected Out of 240

Prompt:
Create an intervention that changes or alters the use or meaning of... Present as a tryptic.




