portfolio

Page 1

PORTFOLIO
Curriculum Vitae Architect + Interior designer

COUNCIL OF ARCHITECTURE REG.NO:

CA/2020/124660

Curriculum Vitae

d.o.b: 31-jan-1998 (male) nationality: Indian

Education

2011 - 2013

Secondary SRV Matriculation Higher Secondary School, Samayapuram, Trichy. Tamilnadu, India.

CGPA- 8.26

2013 - 2015

Higher secondary SRV Matriculation Higher Secondary School, Samayapuram, Trichy. Tamilnadu, India.

CGPA- 7.4

2015 - 2020

Undergraduate Prime college of architecture and planning, Kilvelur, Nagapattinam.(Anna University)

Tamilnadu, India.

CGPA- 7.34

Softwares

Autocad procreate Sketchup

Lumion Photoshop Illustrator

Experience Internship

2019

V-Design architects karaikal, pondicherry. (6 months)

2019

Internship

Design partners + thaqif associates chennai ,Tamilnadu & palakad ,Kerala. (6 months)

2021 - 2022

Junior architect

GOD ecosystem architects Thiruvarur, Tamil nadu.

NIK architects

Salem & Chennai.(part time)

At present

Freelance architect

Thiruvarur, Tamil nadu. India.

V NISHAND Architect + Interior designer
Indesign Skills Sketching Presentation Rendering Languages Tamil English

Content

Thesis - Chandigarh

Urban Design - Thiruvarur

Hospital - Madurai

Freelance works

“I don’t believe architecture has to speak too much. It should remain silent and let nature in the guise of sunlight and wind.”
- TADO ANDO

Urban retrofit development chandigarh sector 43

Thesis - 2020

The aim of this design is to create a gathering space to promote and share common intrest by means of an architectural intervention and a landmark through unique architectural design.

To improve the built environment by replacing old, run-down or underutilised urban areas with new developments which are properly planned and where appropriate, provided with adequate transport and other infrastructure and community facilities. To achieve better utillisation of land in the dilapidated urban areas to meet various development needs. To promote rehabilitation and preservation of buildings and improvement of places of local,architectural, cultural or historical interest.

Public gathering Retrofit development Convention centre Hotel & retail block exhibition centre parking facility Creating landmark

Circulation

Infrastructure

Access roads (residence)

Major Boulevards

Bus stop Circulation roads

Sector Definers

Nodes & Junctions

Traffic signals

Chandigarh Sector-43

Major vechicular circulation

Pedestrian circulation

Electric lines

Road Network
12000 10000 8000 6000 4000 2000 0 M
Proximity zoning Chandigarh
GRAPHICAL SCALE IN METERS 0 20 40 160 80

RETAIL & HOTEL BLOCK

PUBLIC PARKING

Perforated concrete pavers

CONVENTION CENTRE

Perforated concrete pavers increases the water percolating capacity to the ground exposed surface is prepared with stronger materials to provide durability and the patterns make it look aesthetic and much more pleasant.

EXHIBITION CENTRE

OUTDOOR EXHIBITION

BUS STOP

PUBLIC PARKING

O.S.R

site area 29 acres
METERS Landscape Green belt Road network Parking Way to convention block Gate 4 Way to exhibition block

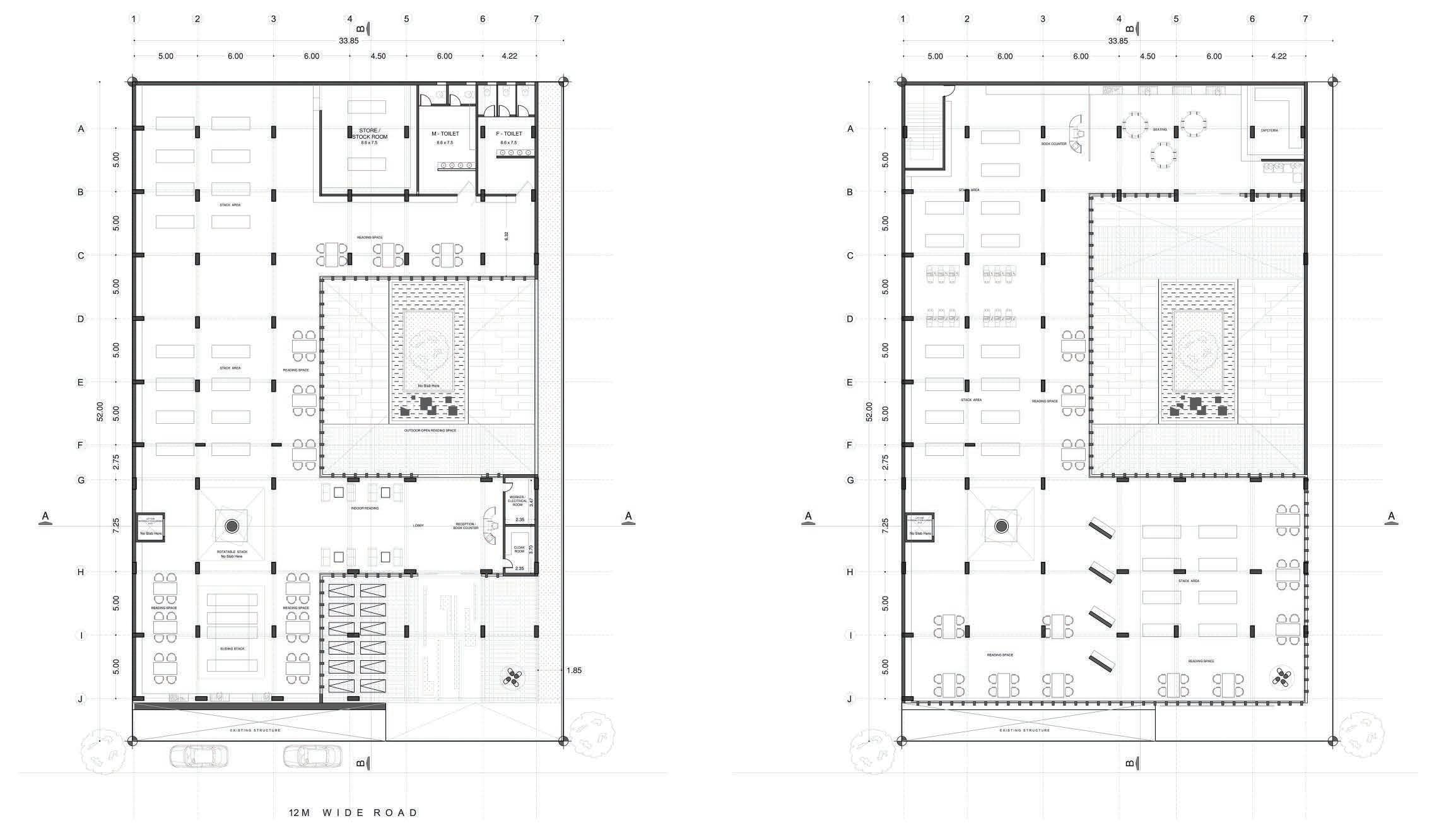
Ground floor plan

BREAKAWAY WALL CONFERENCE ROOM CONFERENCE ROOM TICKET & INFORMATION OFFICE TECHNICAL ROOM HALL 01 HALL 01 HALL 02 HALL 02 KITCHEN BREAKAWAY WALL TICKET INFORMATION OFFICE AHU ROOM PANEL ROOM CLOAK ROOM CONFERENCE ROOM FIRE EXIT AHU ROOM FIRE EXIT FIRE EXIT FIRE EXIT FIRE EXIT FIRE EXIT FIRE EXIT FIRE EXIT KITCHEN CONFERENCE ROOM CONFERENCE ROOM CONFERENCE ROOM CONFERENCE ROOM CONFERENCE ROOM AHU ROOM A B C D E F G H I J K L M N O P Q R S 1 2 3 4 5 6 7 8 9 1 2 3 4 5 6 7 8 9 A B C D E F G H I J K L M N O P Q R S CONFERENCE ROOM CLOAK ROOM CONFERENCE ROOM CONFERENCE ROOM CONFERENCE ROOM AHU ROOM 7 8 9 7 8 9 A B C D E F G H J K L M N O P Q R S CONVENTION CENTRE GROUND FLOOR PLAN SECTION BB' SECTION AA' A 1 2 3 4 5 6 7 8 9 A SECTION BB' SECTION AA' AHU ROOM PANEL ROOM 0 5 10 GRAPHICAL SCALE +4.80M FROM GROUND LVL. +9.00M FROM GROUND LVL. +10.20M FROM GROUND LVL. +0.60M FROM GROUND LVL. A B C D E F G H I J K L M N O P Q R S SECTION AA' SECTION AA' +12.80M FROM GROUND LVL. A A SECTION AA' SECTION BB' FIRE EXIT SECTION AA'

Urban retrofit development

chandigarh sector 43
Thesis - 2020
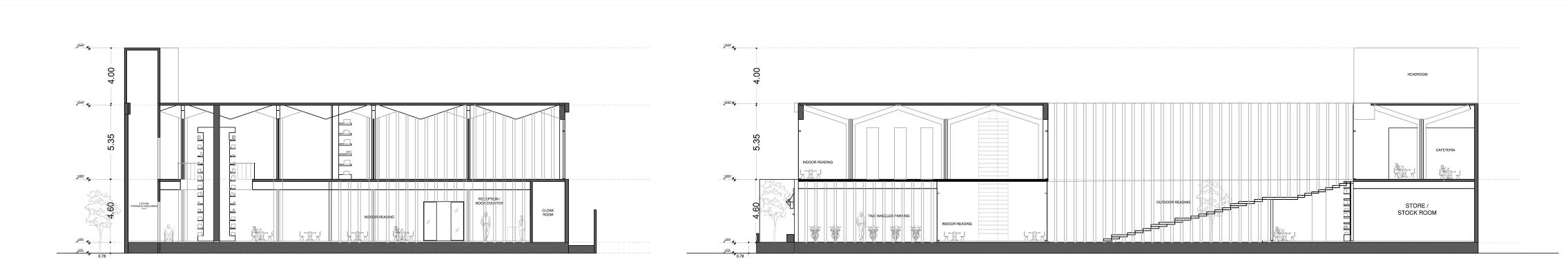
Elevation - view Ball room - view
Convention hall - view
A B C D E F G H I J K L M N A o P Q R 1 2 3 4 5 A' B' C' D' E' F' G' H' I' J' K' L' M' N' O' EXHIBITION CENTRE GROUND FLOOR PLAN PANEL ROOM PANEL ROOM AHU ROOM STORAGE ROOM SECTION AA' SECTION BB'
Ground floor plan
Graphical scale in meters 0 10 40 20 5 Facilities: 01- Exhibition Hall 02- Outdoor exhibition 03- Restaurant 04- Entry for heavy vechicles 05- Public toilets facility 06- A.H.U & panel rooms First floor plan A B C D E F G H I J K L M N EXHIBITION CENTRE FIRST FLOOR PLAN OUTDOOR EXHIBITION +0.60M FROM GROUND LVL. +4.80M FROM GROUND LVL. +15.80M FROM GROUND LVL. SECTION BB' 4 5 0 5 10 20 40 GRAPHICAL SCALE IN METERS. A B C D E F 1 2 3 A B C D E F OUTDOOR EXHIBITION PANEL ROOM STORAGE ROOM 4 5 0 5 10 20 40 GRAPHICAL SCALE IN METERS. +0.60M FROM GROUND LVL. +4.80M FROM GROUND LVL. +15.80M FROM GROUND LVL. SECTION AA' A o P Q R A' B' C' D' E' F' G' H' I' J' K' L' M' N' O' A' B' C' D' E' F' G' H' I' J' K' L' M' N' O' A B C D E +0.60M FROM GROUND LVL. +4.80M FROM GROUND LVL. +15.80M FROM GROUND LVL. SECTION BB' 1 2 3 4 5 0 5 10 20 GRAPHICAL SCALE IN METERS.
Exploded View

purlings

Views
gusset plate with revit joint composite truss glass & aluminium facade steel column joinery Roof Gusset plate Composite truss Aluminium sheet Steel column Visitors entry Vehicles entry

Urban retrofit development

Thesis - 2020

Retaining maximum natural elements

Creating space to gather people

Creating massive structure to achieve outdoor expo space

chandigarh sector 43
Exterior - view Stage 1 Stage 3 Stage 2
Convention hall - view

Thiruvarur urban design

Urban design - 2019

This renovation is proposed due to the development of agriculture & research department office and the seeds storage and preservation centre near to the old rice mill. Site is located opposite to thiruvarur railway junction , old bus stand & national highway NH3 so it will be easy to transport and other infrastructure facilities.

output range compact structure optimum performance Easy operation Corrosion resistance Convenient maintenance low noise
High
02

Thiruvarur agro industry - Exploded view

Roof column truss pivoted window Roof slab
Toilet design
Precast block

Thiyagarajar Big temple tank - Thiruvarur

Urban design - 2019

Graphic scale in meters 0 20 80 10 40

Thiruvarur urban design

Urban design - 2019

The site is located near to the temple tank. its is usualy a busy road during peak hours then the site have already pre builded structure so we retained its historic value.

02 Thiruvarur agro industry - view

Hospital Design

Madurai

Urban design - 2019

Green facade

passive cooling

Convenient maintenance

The aim of this design is to design the 100 bedded hospital near national highway at madurai, Tamilnadu aeroponic green facade acts as the heat barrier and heal the patient through green. By the plantation passive cooling will be achieved and the orientation of the building towards the major wind directions.

Building orientation

aeroponic system

Energy efficient solar energy

03
Hospital elevation - view
Hospital elevation - view Hospital interior - view Ground floor plan
in
Facilities: 01- Out patient ward 02- Emergency ward 03- reception 04- ICU ward 05- General ward 06- Labour ward 07- scan department 08- Bloodbank 09- Pharmacy 10- Canteen 11- dirty coorider 12- AHU 13- Panel room 14- Conference room 01
First floor plan Graphical scale
meters

Local Contemporary villa

Thiruvarur - Tamilnadu

Residence

Location: Ramana nagar, Thiruvarur

Site Area: 3500 square feet.

Local
- Tamilnadu
plan Ground floor plan
Contemporary villa Thiruvarur
Floor
First floor plan
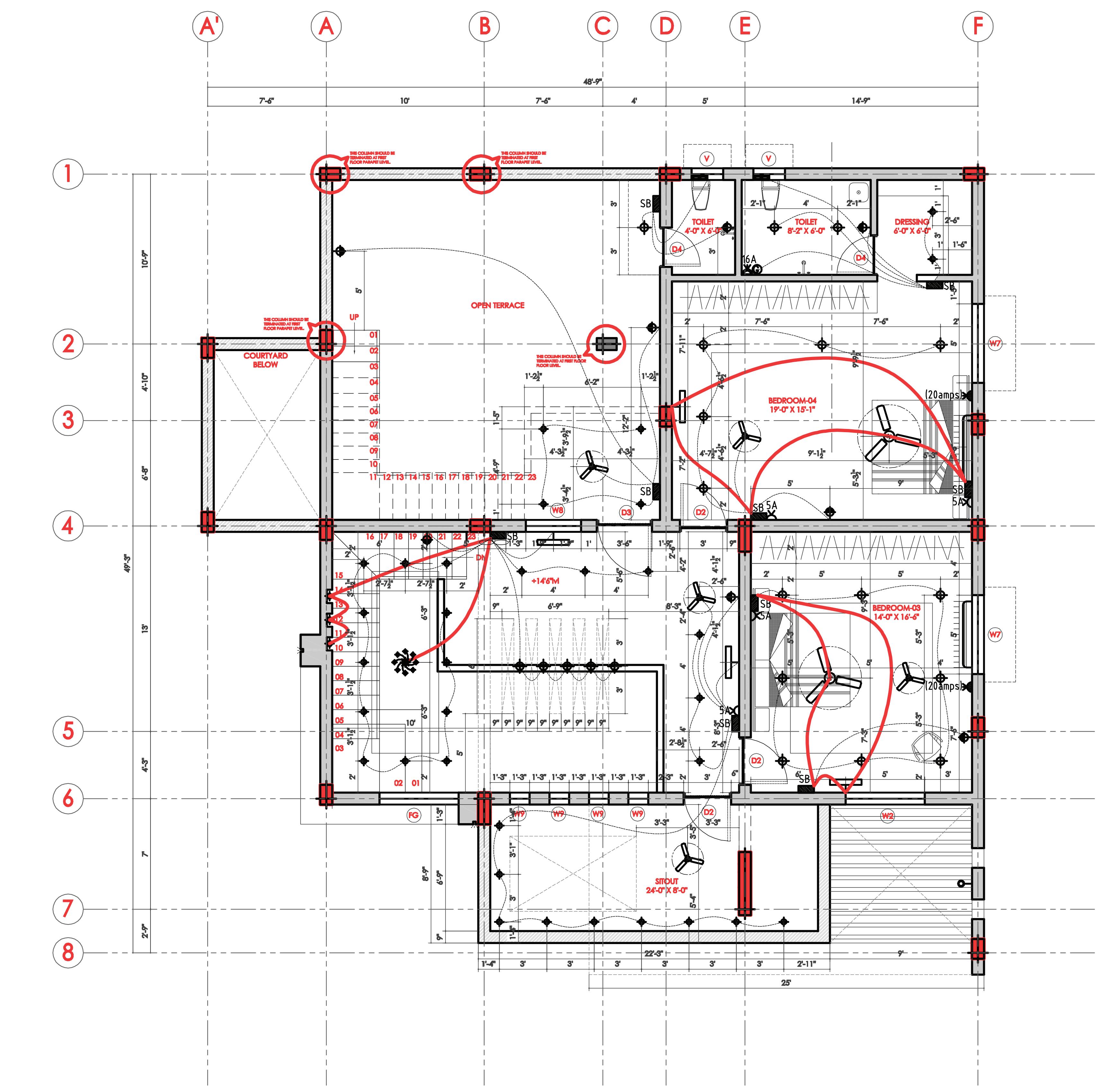
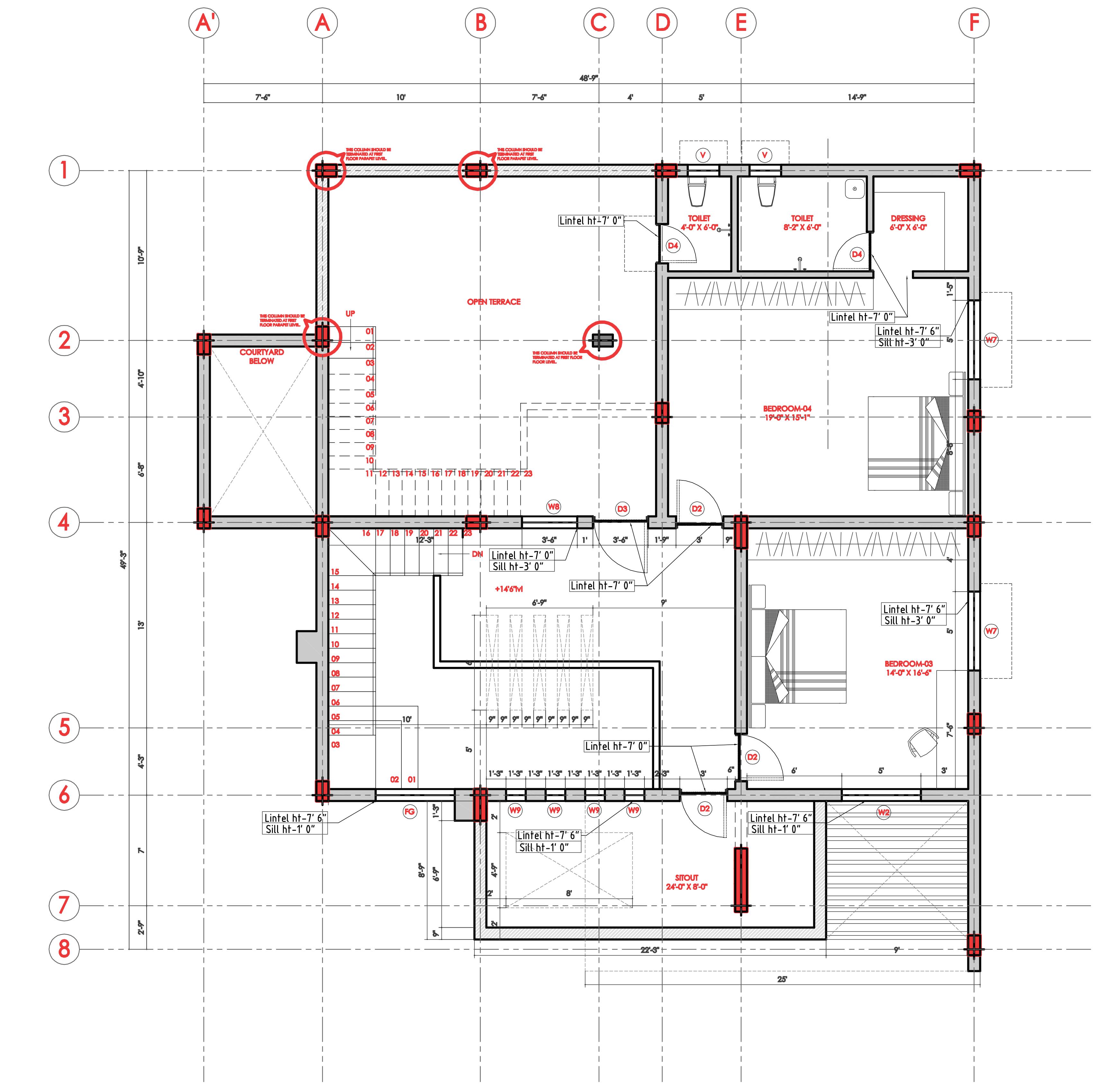
Local Contemporary villa Thiruvarur - Tamilnadu Electrical Electrical ground floor
Electrical first floor

Commercial complex

Thiruvarur - Tamilnadu

Commercial

Location: Senthamangalam, Thiruvarur

Site Area: 2600 square feet.

Local Contemporary villa

Thiruvarur - Tamilnadu

Residence

Location: Balaji nagar, Thiruvarur

Site Area: 3600 square feet.

NIK Architects - Salem

shop
Jewellery
Salem - Tamilnadu
NIK Architects - Salem
NIK Architects - Salem
Elevation design Studio interior - view01 Elevation design Elevation design
end

Turn static files into dynamic content formats.

Create a flipbook
Issuu converts static files into: digital portfolios, online yearbooks, online catalogs, digital photo albums and more. Sign up and create your flipbook.