

portfolio niamh graham




Bulu House
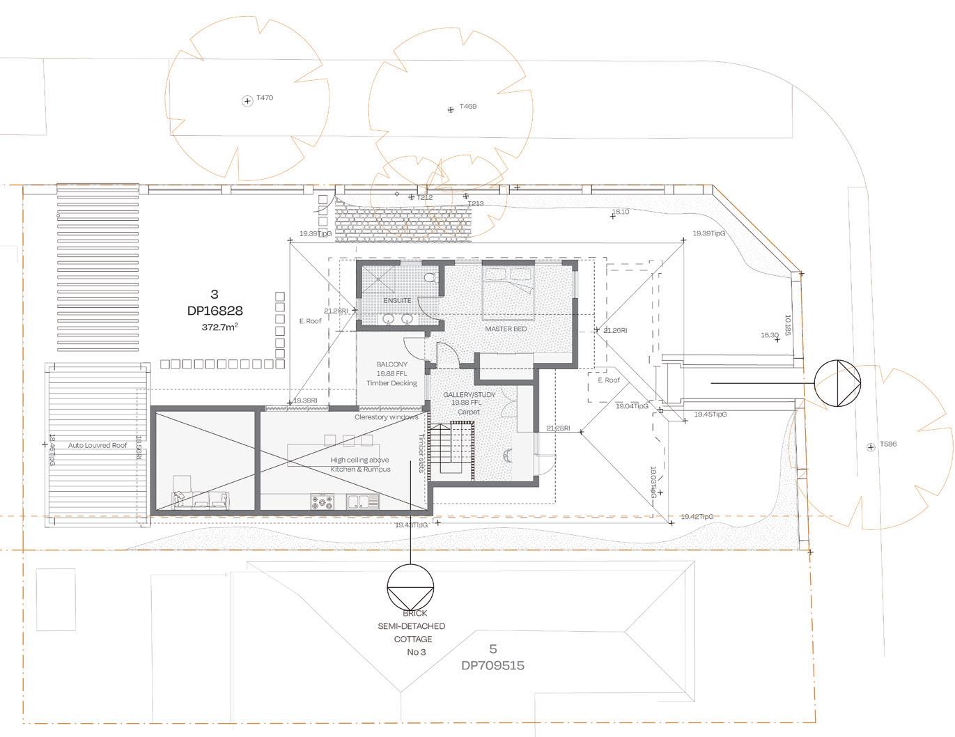
International House, Gadigal Country
The ‘A Huge House’ studio was the design of a 300-bed student housing complex for Indigenous students at the University of Sydney. Provided with the site at 96 City Road, our brief also included the adaptive re-use of the 1967 International House student accommodation building, and the accompanying ‘Rotunda’-the main social gathering space.
The project is inspired by the Dharug word ‘Bulu’ meaning ‘the shadow of a tree’. A shadow of a tree, much like student accommodation, can be a place where we meet to share stories or come to rest. Shade is a transient type of shelter, a figment of Country that we interpret and adapt.
The scheme envisions in its form and programming, a space that is interactive, and evokes movement and life as it is constantly activated and adapted by its habitants to accommodate their activities and relationships. Captured in our model are two circulation atriums, where climbing plant screens invite the sounds and smells of Country into the complex, acting as ‘lungs’ within the building by filtering air from City Road to a central courtyard beyond.
COURSE COORDINATOR
TUTOR
PARTNER
SEMESTER
MARC 5000
Guillermo Fernandez-Abascal
Delara Rahim
Ava Sayyadi A, 4th Year (2024)
1:400
Ground Floor Plan
01 Communal Ground Floor spaces are loosely programmed, giving autonomy to the students. Gravel denotes the public thoroughfares while the grassy inner courtyard is a private student landscape, populated with bulgas (hills/mounds), where they can meet, or rest, under a bulu.
02 The 3m structural grid is continued across to two new towers, substituting concrete columns for brick, recycled from the existing walls. Circulation atriums break up L-shaped masses.
Typical Floor Plan
Junior & Senior Unit Plan
01 Pairs of junior and senior rooms are grouped together to share amenities and balconies, encouraging the formation of mentor-mentee relationships, and a tightknit cohort.
02 A window wall facade system and prefabricated fiberglass bathroom pods ensure fast and cost-effective construction.
Facade Axonometric

Bricks are recycled from the facade of International House into new structural piers, creating a visual connection with the original brick Rotunda building.
Facade Detail & Render
City Road/North Elevation
E-W Section

Communal Kitchen & Utilities

THE SLIT
Me-Mel, Gadigal Country

The Slit
Me-Mel, Gadigal Country
‘The Slit’ is a floating theatre complex situated on Goat Island, or Me-Mel. Travelling symphonic performances are staged in a series of dedicated spaces, migrating from adapted historical convict and industrial structures on its western foreshore, to contemporary new structures on its eastern foreshore.
The buildings are in conversation with key Sydney landmarks about our city’s origins, its rapid development and our attempts to rectify our concreted landscape. The Slit reflects a perpetual cycle of excavation, demolition and construction, seemingly under-construction itself.
COURSE COORDINATOR TUTOR SEMESTER
BDES 3027
Ross Anderson Justine Anderson B, 3rd Year (2022)
Key Proposal Objectives

01 Use cranes to activate the architecture, so that behind-the scenes activity is part of the spectacle.
02 Extract and re-assemble the earth, creating immersive spaces that express Sydney’s materiality.
03 Frame outlooks to Barangaroo and other sites in architectural conversation.
GOAT ISLAND

LUNA PARK
SYDNEY HARBOUR BRIDGE
SYDNEY OPERA HOUSE


01 The Exposition performance space, is modelled on a stepwell and inconspicualously hidden behind the thick walls of the convict-built gunpowder magazine.
02 The Slit it a long cutaway that slices across the island, bridging the old and new. A screened orchestral chamber is carved out of one side.
03 The Finale performance space is a timber-framed structure with an external mesh curtain. It hovers over the harbour with a floating stage at its centre.






The Exposition- Queen’s Gunpowder Magazine

TINKER’S BATHS
Pirrama, Cadigal Country

Tinker’s Baths
Pirrama, Cadigal/Wangal Country
This studio brief was the design of an aquatic centre, sited in Pirrama Park, Pyrmont. The facility was to incorporate a swimming pool, associated conveniences and services, and a cafe/kiosk, under a wide spanning timber structure.
The name for this project is derivied from a fresh water spring used by the Cadigal People at Pirrama Park, which was known to the colony as ‘Tinkers Well’. The site has a complex history, and has over time been used sandstone quarry, public ocean baths, an industrial precinct, and today as a park, completed recently by Hill Thalis. Tinker’s Baths draws inspiration from these various historical uses, whilst adapting into the ways the site is presently used by the urban community.
Reflected in this conceptual collage are the architectural influences of Pyrmont Baths, and the former Griffin & Nicholls designed incinerator.
COURSE COORDINATOR
TUTOR SEMESTER
BDES 3026
Eduardo de Oliveira Barata
Rena Czaplinska Archer A, 3rd Year (2022)


First Floor Plan (Park Level)



01 The layout of the pool facilities was derived from a set of axes, extrapolated from the existing pathways and flow of pedestrian movement at the park.
02 The pool deck is lowered to the existing boardwalk level, and the pool is sunken into the Harbour.


N-S Section
E-W Section



Pyrmont Baths Reimagined


01 The pool deck opens onto the existing popular boardwalk that lines the peninsula and continues the timber boards inside, to draw in passers-by.
02 Inspired by Peter Zumthor’s Therme Vals, the ‘shower cave’ emulates a natural alcove springing warm water.
03 The harbour temperature conducts through the pool walls for the closest experience to swimming in the otherwise unsafe water.
The ‘Shower Cave’

Inside the Changerooms


01 Remnant maritime/industrial elements scattered throughout the site contrast with the renewed natural landscape.
02 The changeroom interior applies a mixture of earthy, weathered and industrial-style finishes, inspired by the eclectic site.



01 Timber barge boards along the roof line are inspired by aztec patterning on the former Griffin & Nicholl’s Pyrmont Incinerator.
02 Generative drawings interpreting the facade forms and detailing of Pyrmont incinerator into a timber structure.

FRAME HOUSE
Wangal Country

Frame House
Wangal Country
Working in pairs, this professional practice unit called for a mock-DA for alterations and additions to an Inter-War Bungalow in Ashfield, including a Statement of Environmental Effects, and a BASIX certificate.
‘Frame House’, is centred on the principle of crafting and framing impactful viewports of the rear landscape from key spaces within the home.
We took advantage of the corner plot, by activating the northern facade with a ‘breathable’ heritage-style fence, and setting the rear addition back from the boundary to optimise daylighting. Our design blurred the lines between inside and outside, and provided each family member with their own private space.
COURSE COORDINATOR
TUTOR
PARTNER
SEMESTER
BDES 3025
Michael Mossman
Tye McBride
Hinatea Jones B, 3rd Year (2022)

Proposed Ground Floor Plan 1:200

First Floor Plan
Proposed

The Hallway Sight-line


01 Parti-diagram depicting the principle of creating an impactful sight-line from the entry to the rear landscape.
02 A 3D visualisation of the sight-line from the front entry to the rear garden.





01 Archer Office’s Bronte House inspired the baclony alcove, which activates disused original roof space for a private outdoor living area adjoining the master suite, and filtering western sunlight.

Proposed Sections
1:200

TAPESTRY EXHIBITION
USYD &
Venice Biennale




Tapestry- Adjacency Studio
USYD & 2023 Venice Biennale
‘Tapestry’ was an exhibition of student works curated by Adjacency Studio, held at USYD’s Wilkinson Building, and also featured in the 2023 Venice Biennale Australian Pavilion, ‘Unsettling Queenstown’. The works were collected from a 2ndyear studio brief, titled ‘Let Every Voice Be Heard’, which was the design of a refuge for women experiencing homelessness, and their children, in Hobart.
Adjacency Studio comprises the tutors who taught and developed this brief over the past 2 years, including my former tutor, Justine Anderson. Some of the staff and architects of Hobart Women’s Shelter, who were our theoretical client, were among those who attended and spoke on opening night. The event helped to raise funds for the organisation’s current developments, through a buy-a-brick campaign.
Above is the ‘Tapestry of Country’ I helped assemble from a collection of screenshots of our class zoom calls during Covid lockdown. Each week, we would acknowledge the country we were attending class from, and research a First Nations design project to feature as our zoom background, and draw inspiration from for our own schemes.
COURSE COORDINATOR
TUTOR
SEMESTER
EXHIBITION
BDES 2027
Michael Muir
Justine Anderson B, 2nd Year (2021) April 2023
