



Creating an office suite that suits everyone working within the space. Based next to the Meadows in Edinburgh’s city centre. The main factor within the space is allowing the view out to the Meadows to be accessible to everyone within the office.







1 - DESINO Eco Manufactory Office, Binh Chanh, Ho Chi Minh city; Alpes Design
2 - OPTIMEDIA Media Agency Office, Moscow; Nefa Architects
3 - IncepTech, Budapest; Arch-Studio
4 - Image from Pinterest
5 - Image from Pinterest



























Shelter Homeless Organisation
Turning a converted power station in the East side of Edinburgh into accommodation for Shelter Scotland, where the organisation will help give individuals and families a place to sleep during struggling times. The design of this building was to make sure that it has zero net energy and to maximise day/natural lighting throughout the building.
Shelter Scotland is a charitable organisation that is helping to tackle that battle of homelessness in the UK. The organisation provides practical support and advice to people to help them with their housing needs; either bad housing or homelessness.


Model development images using different lighting to get a sense of different times of day































Spot Lights embedded within the structure to allow light to still get to the tables underneath it.


The structure made from biodegradable plastics to still allow the structure to be able to bend a flow to the shape of the wave.




Long Plants made from thick glass to still allow light to go through them but also to be durable.
Bubble Plants made from recycled wool and/or bamboo.

Flooring made from reusable plastic; making the carpet sustainable and long-lasting.



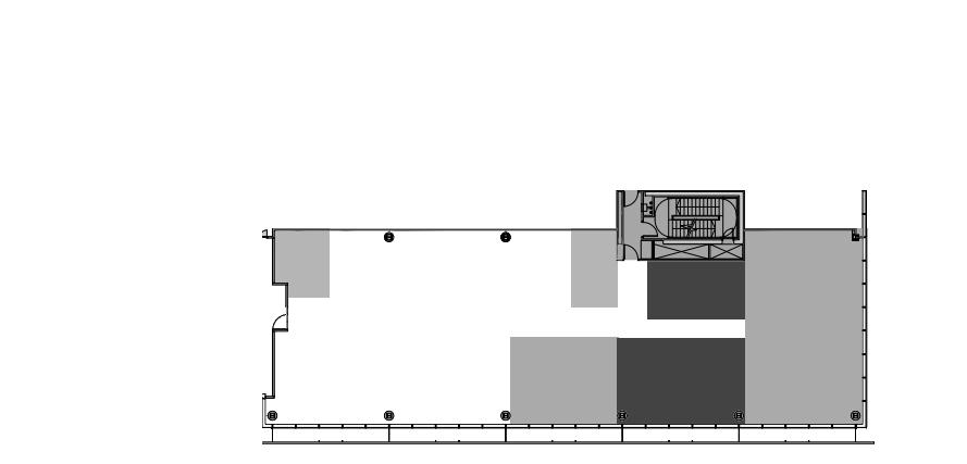
DEMOLITION FIRST FLOOR PLAN SCALE 1:100
DEMOLITION ATTIC FLOOR PLAN
PROPOSED SECTION A-A
SCALE 1:100
DEMOLITION SECTION A-A SCALE 1:100
PROPOSED SECTION B-B
SCALE 1:100
PROPOSED SECTION A-A
SCALE 1:100
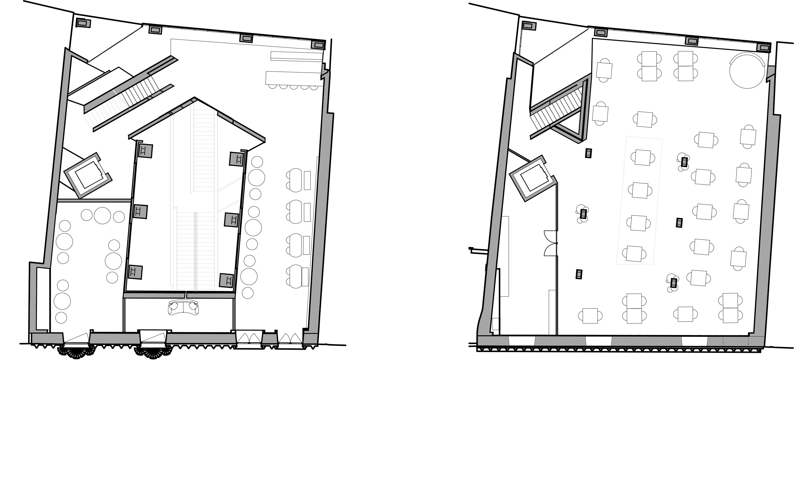
PROPOSED FIRST FLOOR PLAN
PROPOSED ATTIC FLOOR PLAN
PROPOSED GROUND FLOOR PLAN
SCALE 1:50
3671 (4 EQ. DOORS

PROPOSED DETAILED SECTION
SCALE 1:20