Natalie Gusewelle Portfolio 2023

Page 1

PORTFOLIO

NATALIE A. GUSEWELLE

MASTER OF ARCHITECTURE BACHELOR OF GRAPHIC DESIGN

DRURY UNIVERSITY

PORTFOLIO

Throughout my time at Drury University and working at the Lawrence Group, studying architecture has allowed me to develop in many ways both in and out of the office. This profession has pushed me to enjoy working both individually and as part of a team. I have a strong desire to face challenges and learn new skills. This portfolio is a collection of selected works from school as well as my internships.

My projects while in school follow experimental and conceptual themes that have developed from relevant references in hopes to connect, regenerate, and transform communities with my theoretical projects. I hope this portfolio illustrates my passion for design and architecture. I am excited to gain further experience in this profession.

2

CONTACT

EMAIL:ngusewelle@gmail.com

PHONE: (618)660-6582

Linked In : linkedin.com/in/natalie-gusewelle

EDUCATION

Drury University, Springfield, MO

2017-Present

Hammons School of Architecture

Master of Architecture

Bachelor of Graphic and Digital Design

Dean’s List

Librarium Nomination Fall ‘19, Spring ‘20, Spring ‘21

AIA Central States Region Student Design Competition

REFERENCES

David Beach AIA

Associate Professor of Architecture - Drury University

EMAIL: dbeach01@drury.edu

PHONE: (417)873-7055

Matt Noblett M.F.A

Assistent Profesor - Drury University

Graphic and Digital Design

EMAIL: mnoblett@drury.edu

PHONE: (417)873-6335

Billy Kimmons AIA, NCARB

HoodRich Architecture - Principal

EMAIL: bkimmons@hoodrich.com

PHONE: (417)862-4483

Baxter Reecer AIA, NCARB

Vecino Design - President

EMAIL: baxter@vecinogroup.com

PHONE: (417)720-1577

Angie Eslinger AIA

Lawrence Group Design - Associate Principal

EMAIL: angie.eslinger@thelawrencegroup.com

PHONE: (314)231-5700

EMPLOYMENT HISTORY

Lawrence Group

2022 Jun - Present

Work in Revit, AutoCAD, and the Adobe Suite

Communicate with clients and consultants

Develop and implement building designs

Develop projects from SD through CD phases

Assist in creating project proposals

Estimate building material costs

Conduct research on zoning laws and regulations

Assist owners in preparing building programs

Prepare presentations for clients

HoodRich Architecture - Internship

2021 Jun - 2022 Apr

Work in ArchiCAD, Photoshop, and Twinmotion

Develop and implement building designs

Determine environmental impacts

Produce conceptual plans, renderings, and documents

The Vecino Group - Internship

RENDERING

3D MODELING

DIGITAL DRAFTING

HAND DRAFTING

DIAGRAMMING/ANALYSIS

CONSTRUCTION DETAILING

INTERIOR DESIGN

RESTORATION

RESEARCH

LANDSCAPE

URBAN

2020 Dec - 2020 Oct

Work in Revit, Photoshop, and PowerPoint

Create design plans

CAMPUS INVOLVEMENT

Summit Park Living

Designed and built outdoor classroom for John Thomas School of Discovery, Nixa, MO

AIAS

Member Design Build Club

Memeber

Helped build Eden Village Tiny Home, Springfield, MO

Young Architects Forum

Member

3
CONTENTS EDUCATION (Re)Source - rehabilitating blighted neighborhoods . . . . . . . . . . . . . . . . . . . . . . .06 5th year Boston Harbor Kayak Park and Amphitheater. . . . . . . . . . . . . . . . . . . . . . . . . . . . 12 5th Year OZARK JUBILEE. . . . . . . . . . . . . . . . . . . . . . . . . . . . . . . . . . . . . . . . . . . . . . . . 18 4TH Year AIA Central regions student design competition. . . . . . . . . . . . . . . . . . . . . 26 5th Year BOAT HOUSE. . . . . . . . . . . . . . . . . . . . . . . . . . . . . . . . . . . . . . . . . . . . . . . . . . . 28 3rd Year GREECE RESEARCH CENTER. . . . . . . . . . . . . . . . . . . . . . . . . . . . . . . . . . . . . . . . . 34 4th Year CHOCOLATE FACTORY . . . . . . . . . . . . . . . . . . . . . . . . . . . . . . . . . . . . . . . . . . . . . 38 2nd year performing arts center. . . . . . . . . . . . . . . . . . . . . . . . . . . . . . . . . . . . . . . . . . 42 2nd year Springfield community church. . . . . . . . . . . . . . . . . . . . . . . . . . . . . . . . . . . . 46 3rd year University camPus folli . . . . . . . . . . . . . . . . . . . . . . . . . . . . . . . . . . . . . . . . . 50 3rd year DESIGN RESILIENCY CENTER. . . . . . . . . . . . . . . . . . . . . . . . . . . . . . . . . . . . . . . . . 54 1st year Designing for behavioral and mental health . . . . . . . . . . . . . . . . . . . . . . . 58 5th year INTERNSHIP ASTERI ITHACA . . . . . . . . . . . . . . . . . . . . . . . . . . . . . . . . . . . . . . . . . . . . . . . . . 60 MONTROSE . . . . . . . . . . . . . . . . . . . . . . . . . . . . . . . . . . . . . . . . . . . . . . . . . . . . 61

CONCEPTS

Reveal Rehabilitate Renew

Adaptable approach for inclusivity

SOLIDS VS VOIDS

HUMAN RELATION TO NATURE

PROSPECT AND REFUGE

PUBLIC AND PRIVATE SUSTAINABILITY

LAYERS VS MATERIALS

HOT ZONE VS COLD ZONE

FORM VS FUNCTION

(re)source

regenerating blighted neighborhoods and communities with inclusivity

Unbounded blight produces an opportunity for social and cultural development within the city of Detroit, Michigan. To regenerate blighted neighborhoods with inclusivity, there are necessary steps to implement into the city, like understanding the issues from the perspectives of the community members and involving them in the process of rehabilitation. Giving the communities the resources to create a socially sustainable Detroit is the first step to initiating change.

6
7 5th Year Thesis Studio 2022

All cities have regions that individuals are taught not to go near, due to the lack of saftey caused by blight in the neighborhoods. These communities end up with no structure, stuck in a loop of vacant and abandoned buildings, and plots of land filled with trash.

People living in substandard living conditions have been stuck in a loop of no income with little-to-no support from their community. These invdividuals have grown to know no different from healthy living conditions when it comes to the upkeep of both inside and outside of their homes.

There is a lack of skills, knowledge and tools to support themselves. These individuals need not only physical tools, but the mental therapy for homeownersip counseling to get them on their feet.

It is our job to ask- Why is this happening in these areas? The community needs to provide the community with physical and mental tools to thrive so that they can become an active memeber of society.

8
9
Rather than the norm, only providing cities with affordable housing, giving tools and teaching the community how to do the work should be the first step.
10
11

Boston Harbor Kayak Park and Amphitheater

This project is a proposal for the redevelopment of Dry Dock No. 4 on the South Boston Waterfront-formerly part of the South Boston Naval Annex. The Site is in the rapidly gentrifying Seaport neighborhood in Boston. The client is interested in countering this trend with a large-scale public project that preserves open space, and welcomes the public while promoting sustainable approaches to its future. The project was charged with collectively determining a range of collaborative programmatic uses, and individually proposing designs. It was required to understand the current characteristics of the site as well as its history.

Learning about the coastal-sustainability challenges and strategies was a prominent part of creating the program for the kayak park and amphitheater. The project consists of a raised plaza and amphitheater space surrounded by a community farmers and art market, and a floating dock park. The floating docks are accessed by kayak with kayak classes and tours available. There are bridges for accessibility and tiered docks allowing community members to enjoy the wide variety of entertainment.

12
13 5th Year Exploration Design Studio 2021
14 Floor Plan Schemmatic Sketch
Proposed Concept Concept
15 Site Plan

This park is an addition to the Boston Harbor Walk which currently stops before the site, and continues past it. The proposed development will aid with the encouragement to bring people closer to the water and to become more active around their community. The plaza is a flexible gathering space that can be used during warm seasons as a fountain splash pad for families, or an ice skating rink during the cold season. The raised lawn space at the south west of the site creates amphitheater seating while housing the market below. The market faces the city which is where most of the pedestrian traffic will be coming from.

16

The tiered docks allow for the site to be temporarly flooded during storms and daily high tides. The floating docks are lined up on a grid, connected to the sea bed so they do not float away. They have the flexibility to connect to the immidiate surrounding docks and create larger docks for big crowds.

17
Drainage Section Site Plan with flooding Site Plan with floating dock grid Tidal Barrage Section

ozark Jubilee

The primary goal for this project was to bring national attention to the birthplace of the Ozark Jubilee, support the vernacular music community, and shine a spotlight on commitment to sustainability. There was a focus on regional interest and commitment to the arts and music, and an interest in the communal making of music as an approach to all aspects of the Jubilee.

The jubilee is composed of a formal hall that supports the nature of country music performance. There is an “artist in residence’ and teaching program that allows traveling performers accomodations over their stay. Lastly, there is a separate and more controlled recording environment as well as the ability to record with classrooms.

18
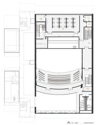
19 4th Year Comprehensive Studio 2021
20 SITE PLAN LEVEL0 LEVEL1 LEVEL2 10’ 20’ 40’ 80 FLOOR PLAN KEY: 1. Theater Seating and Circulation 2. Stage 3. Box office 4. Stage Shop 5. Property Room 6. Dressing Room 7. Wardrobe 8. Stage Manager Office 9. Recording/Rehearsal Studio 10. Artist Residency 11. Lecture Hall 12. Classroom/Rehearsal 13. Atrium and Gallery 14. Restroom 15. Elevator 16. Stairs 17. Loading Dock 18. Service Closet 19. Lobby 20. Mechanical Room
21 WEST ELEVATION SOUTH ELEVATION LEVEL2.5 LEVEL3 LEVEL4 5’ 10’ 20’ 40 5’ 10’ 20’ 40

THEATER ACOUTICS

22
SECTION B 5’ 10’ 20’ 40’
23 Photovolteic Panels Live Green Roof Wood Panel Walls and Floors Zone 1 - HVAC Zone 2 - HVAC Zone 4 - HVAC Zone 3 - HVAC Structure Aluminum Panel HVAC Aluminum Panel Polycarbonate Geothermal Ground Source Heat Pump Residential Standard Air System Commercial Standard Air System Commercial

Lobby and Theater Thermal and Comfort:

With my project, I wanted to design with sustainability which would result in human comfort factors, as well as reduce energy costs for the building. My goal was to keep as much green space on the site while designing a building that would still fit into its context. This led me to use materials like photovoltaic panels to power the building, a live green roof and live green walls, polycarbonate walls, aluminum panels, and reflective glass. These design decisions were used for thermal response and to create a more comfortable environment for the users of the building.

24 LIVE WALL AND ROOF DETAIL SECTION
25

2nd Place

AIA CENTRAL REGIONS STUDENT DESIGN COMPETITION

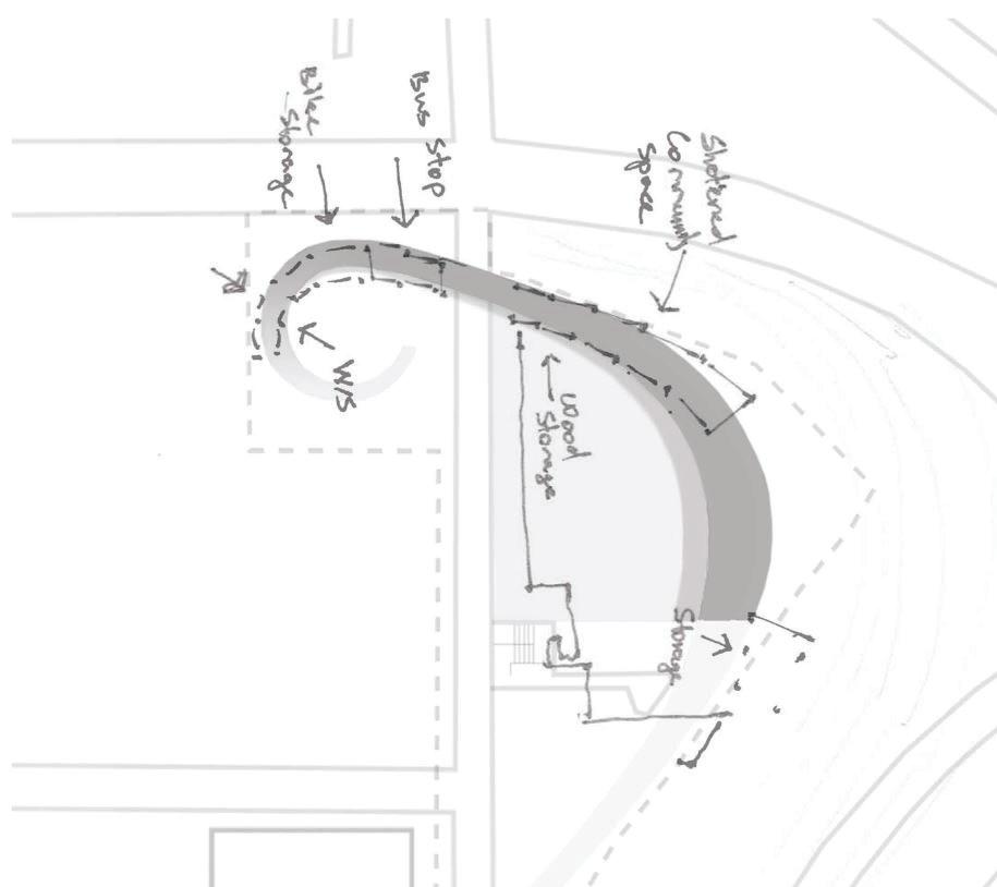
Evolving from a primarily Slavic and European community at its inception, the Strawberry Hill Neighborhood celebrates its rich culture of diversity. Overlooking the confluence of the Kansas and Missouri Rivers, the area stands as a beacon of unity to the surrounding metro area with strong ties between its residents and business owners. There is an opportunity to improve upon the fabric of the neighborhood that will encourage connectivity, develop a sense of place, and social interaction. This design incorporates research of the neighborhood’s current amenities, demographics, transportation relationships and future opportunities related to the project site.

As the site is adjacent to the Strawberry Hill Community Center and Museum, research including how to incorporate already established programs and practices carried out by the organization into the design was taken into consideration. This project program included structure for sheltered event space for the museum throughout the year, access to the existing building through the raised promenade, engagement for street within the defined site area, a sheltered bus stop and bike charging station, and basic public amenities. The design of the project is something that will bring the community together, and reduce social and transportation barriers in the community.

26
5th Year - 2nd Place 2021
27 OUTWARD CONNECTION INWARD CONNECTION SITE PLAN DIAGRAM SECTION

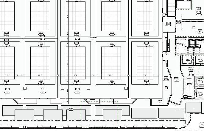
Fire Boat House-Chicago River South Branch

This project was to create a fire boat house that is located in Chicago, Illinois on the Chicago River. The boat house was designed with the intentions to respond to emergency calls on the river. The firehouse was to have access to the river as well as connections to the river walk and city. Not only would the firehouse house the boat and firemen, but we wanted the city to invite visitors in and use it as an option for tourism and education. With a main focus on structural systems and environmental sustainability, the building is separated into a hot and cold zone that determined the programming of the building.

The hot zone would act as the active first responding side of the building that firemen are able to access directly, both before and after a call. This side would be closed off to visitors and nonessential personnel. The cold zone is the public side of the building that houses offices and everyday spaces that visitors would have access to. By separating the building into two zones, the design evolved and used the fireboat as the focal point.

28
29 3rd Year Studio 2019
30
31 FLOOR PLAN KEY: 1. COMMUNITY SPACE 2. FRONT DESK/OFFICE SPACE/RECORDS 3. HOUSE WATCH 4. JANITOR CLOSET 5. DINING ROOM 6. KITCHEN 7. SITTING SPACE 8. SITTING ROOM 9. NURSING ROOM 10. TRAINING ROOM 11. STORAGE 12. ELEVATOR 13. STAIRS 14. HEALTH AND STRESS REDUCTION ROOM 15. MEN’S RESTROOM 16. WOMEN’S RESTROOM 17. BUNKS 18. CHIEF SITTING ROOM 19. CHIEF AND AIDE LOCKERS 20. CHIEF AND AIDE TOILET 21. AIDE BUNK 22. CHEIF BUNK 23. CHIEF OFFICE 24. TELECOMMUNICATIONS ROOM 25. GAS METER ROOM 26. MECHANICAL AND AC ROOM 27. STORAGE 28. DIESEL TANK 29. TOILET 30. WORK BENCH 31. GENERATOR SPACE 32. ELECTRICAL ROOM 33. DECONTAMINATION 34. LAUNDRY AND STORAGE 35. MEN’S LOCKER ROOM 36. WOMEN’S LOCKER ROOM 1ST FLOOR 2ND FLOOR West Elevation

SUMMER DAY

SUMMER NIGHT WINTER DAY

KEY

1. BLACK TINTED CARBONATE

2. STEEL PLATE CONNECTOR

3. GLASS CEILING

4. GLASS WALL

5. GLASS FIN

6. POLISHED STEEL CONNECTOR PIECE

7. BACK WALL

8. GLASS AIRLOCK

9. STRUCTURAL STEEL COLUMN

10. ALUMINUM VENTS

11. STRUCTURAL BEAM

12. EXTERIOR CONCRETE SIDEWALK

13. CONCRETE TROUGH

14. CONCRETE FOUNDATION WALL

15. CONCRETE FOOTING

16. ANCHOR BOLT

17. CONCRETE BASE FLOOR

18. INSULATION

The fire boat house was split down the middle on ground level to create a space for the boat to enter. This creates an area that allows the firemen to both work on the boat, and directly access it from their bunks.

The building was designed with the intent of fast action to the boat, as well as close connections to decontamination in the hot zone. With the split of the building, it enables a curtain wall on both sides, thus allowing exceptional views of the boat. The two zones of the building are connected by a skybridge that not only instills a sense of placement within the building and the site itself, but also gives a unique perspective of the fireboat.

By taking advantage of the existing slope of the site, the building acts as a retaining wall, allowing it to be accessed from both levels. Throughout the design process, I created a double layered facade that uses natural ventilation to heat and cool the building. This added layer of sustainability will increase the value of the building and cut energy costs year round.

19. EXPANSION JOINT

20. SILL

21. CORRUGATED METAL

22. TRIM PLATE WITH DRIP CAP

23. STRUCTURAL REBAR

24. GYPSUM BOARD

25. AIR CAVITY

26. GRAVEL

27. VAPOR BARRIER

28. INTERIOR CONCRETE FLOOR

KEY

1. INTERIOR CONCRETE FLOOR

2. EXTERIOR CONCRETE FLOOR

3. STEEL COLUMN

4. STEEL COLUMN

5. GLASS WALL

6. GLASS FIN

7. POLISHED GLASS CONNECTOR

8. STEEL PLATE CONNECTOR

9. ALUMINUM VENTS

10. STEEL MULLION

32 INTERIOR INTERIOR INTERIOR EXTERIOR EXTERIOR EXTERIOR LET IN COOL TAKE OUT HOT LET IN COOL AIR FROM EXTERIOR TO COOL BUILDING INSIDE INTERNAL VENT CLOSED INTERNAL VENT CLOSED INTERNAL VENT OPEN HEAT RADIATION
33

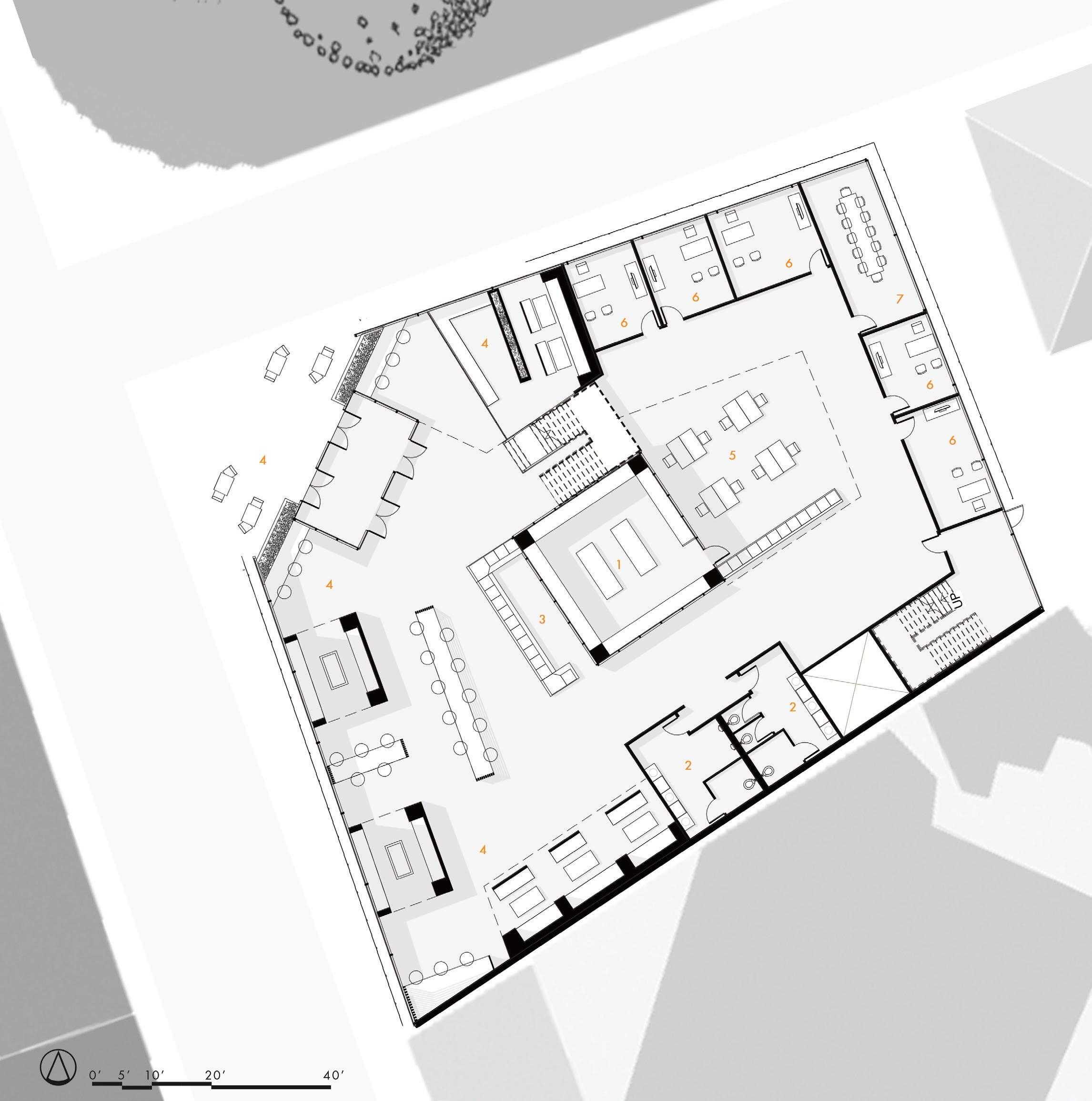
GREECE BOOK ARTS AND RESEARCH CENTER

The purpose of this project was to design and create a public book-arts center devoted to the historical and cultural importance of bookmaking, printing, and papermaking, as well as promoting the ongoing relevance of these art forms. The latter purpose should be served by opportunities for active, hands-on engagement of book arts with these crafts, including by children. I focused on creating a research center devoted to preserving and making available important texts and manuscripts related to the history of Athens.

This research center will be open to visiting scholars and will also host symposia and other events. The program for this building also needed to have office space available for lease by small to medium-sized nonprofit organizations, as well as a café open to the public.

34
35 4th Year Studio 2020

The exterior envelope of the building is a perforated sheet of metal cut to cover the more private parts of the building’s program, held on with a bracket system, and a curtain wall glass system. With focus on the research and preservation of ancient Greecian scrolls I, as well as my group partner, decided to create a central glass tower that stored the scrolls that were able to be viewed from the

The building would have a perforated envelope wrapping around it’s exterior in ways to filter the sunlight. Certain areas were left open in order to have pedestrians view the scroll tower and be drawn to enter the building. These diagrams are here to explain the way I extruded parts of the building out due to the views and connection to the surrounding context.

36
Key 1. Scroll Archives 2. Restrooms 3. Cafe Bar 4. Cafe Seating 5. Open Office 6. Office 7. Meeting Room 8. Break Room 9. Outdoor Patio 10. Reception 11. Gallery/Event 12. Classroom 13. Short-term Study Space 14. Long-term Study Space 15. Distribution 16. Library Section Section Perspective Level 1 Level 2 Level 3 Level 4 Level 5 Level 6

EUREKA SPRINGS ASKINOSI CHOCOLATE FACTORY

This project is designed for Askinosie Chocolate to expand their company to Eureka Springs, Arkansas. Eureka Springs brings a very unique landscape with cliff sides and uneven land that I was excited to incorporate into my design. The topography of the site brought its challenges, but offered more room for connections to nature. I was able to tour the existing Askinosie Chocolate factory to see what machines and components involved in the chocolate making process would affect the design of the factory. The program for the factory needed to not only provide space for the chocolate making process, but a space for a small kitchen and cafe for visitors as well.

A couple key focuses of mine for this project were to understand the space used for circulation, public and private spaces, as well as making sure the chocolate making process was able to be put on display for visitors. With Eureka Springs being a tourist town, I wanted the chocolate factory to stand out from the rest of the shops and restaurants to catch visitors’ attention without differing too far from the typology of the town. For me, layering and materiality came into play when relating the building to the landscape.

38
39 2 Year Studio 2019

While working on this project, I was able to produce hand drawn sections for different variations of the building’s circulation. My concept for the chocolate factory was protruding layers and materials, much like Eureka Springs cliffs and landscape. I brought that into the materials to show how the public side of the building would be transparent, much like the private side would be opaque. Because circulation was part of my main focus of this project, I decided to make the process more dynamic by having the stairway protrude outside of the building.

40
ELEVATOR SECTION STAIR SECTION
1ST FLOOR 2ND FLOOR 3RD FLOOR
2ND FLOOR SECTION

ST. LOUIS PERFORMING ARTS CENTER

The approach to this project was to learn and establish a foundation for abstract and conceptual thinking that serves the design of space and form. It promoted research of the relationship of the human body to the built environment through proportion and scale, the relationship between design and the natural environment, and to develop a high level of skill and craft in articulating materials and how they are assembled. There was a strong focus on communicating design and its process through methods such as diagraming, analysis and other similar graphic conventions. This project strived to cultivate a way to perceive the built environment, learning to interrogate one’s surroundings in order to acquire a critical eye and positively contribute to it.

Ordering Systems:

I worked on applying fundamentals of both natural and formal environmental principles to create design decisions that pushed the form of the building.

Architectural Design Skills:

I focused on the ability to effectively use basic formal, organizational and environmental principles to the building’s forms. I worked on skills to use abstract ideas to interpret informations, considering diverse points of view, and test alternative outcomes against relevant criteria and standards.

42
43 2 Year Studio 2018

Site and Plan Design:

After researching other performing arts centers and speaking with performers themselves, many of them stated that they preferred to have wide open spaces that could have the ability to be closed off from everyone else. My design gives the performers control of how much of the outside world they want to let in, including the natural climate. Through a rotating building envelope, the performers are able to choose how open the building’s louvers were depending on how much sunlight they wanted in.

The design of the louvers transformed into the interior of the building by having the same form of the louvers become the steps. Much of this building was designed through public and private spaces. Since there is an existing building located to the east of the site, I wanted there to be more connection to the city through the other faces of the building, primarily the West and South faces. Therefore, I layed out the program of my building from most public to most private going West to East.

Mid-Review for Building Section Model

- Explaining the interior space connection to the site and surrounding through rotating louvers

44
1ST FLOOR 2ND FLOOR 3RD FLOOR

Site Decisions

When I thought about designing the site, I focused on creating a multi-use oudoor space that could serve as both a theater location for events from the performing arts center as well as providing an open area for sitting spaces and students to come together.

The space is open to the parking lot and the street, creating a connection to the surrounding area. In contrast, the new proposed building, and the existing buildings naturally map out where the outdoor space unfolds.

45
Public and Private/Site Diagram Ventilation Diagram Sunlight Diagram

Springfield Community church

While working on this project in community studio, I was able to experience first hand the importance of clear communications between members on my team. For our project, we met with a selected group from the congregation of the community church. With a growing congregation they hoped to add on to their existing church and create more space for activities and bible study classrooms. Working with a community, I learned the importance of hearing all perspectives and ideas rather than designing a new building focused on my own design choices.

Based on the congregation’s list of preferred changes, I chose to renovate and add on to the existing building to create a new detached learning center. This would offer them more office and classroom space as they continue to grow, more indoor and courtyard space for adults and students to meet, and a larger gymnasium for year-round events.

46
47 3 Year Studio 2020

Working on different ways to display the new floor plans helped the congregation understand how their new spaces could be occupied and divided.

I sketched diagrams to help the church understand design approaches that I took. This provided the congregation a visual break-down of the existing floor plan, the area that would be renovated, and finally the new addition.

48
49

Drury University Campus Folli

The campus folli was meant to be an attraction on Drury’s campus where people would view it on campus tours, sorority and fraternity events, or simply just a place to study. From learning tectonics in class, I wanted a dynamic design that would allow people to change the layout to better suit their needs. Pods that were able to seat 1-3 people hanging on a rail system could be moved and pushed around to create meeting areas and study sessions. I wanted the main part of my form to come from recycled materials that would be used in unique, unexplored ways.

Dumpsters...most people never think about them and most importantly never want to go near them. But, if one were to be completely cleaned and back its original state, its material could be used to create the pods for my design. Each pod has enough facets to have an opening for someone to enter, and could even open further to connect to another sitting pod. The face of the dumpsters that would be removed could be used to create seats for the inside of each pod.

50
51 3 Year Studio 2019
52
53

DRURY UNIVERSITY DESIGN RESILIENCY CENTER

The purpose for the Design Resiliency Center for Drury University was to learn how to create a concept and evolve it so that it can be implemented into the form of the building. I chose to focus on the relationship of nature and humans, as well as a series of solids and voids. Studying these theories early on in my school career helped me learn the importance in positive spaces and, more importantly the negative spaces as well. We were presented a list of the programs for the building and learned the importance of separating public and private spaces, and knowing whether or not to connect each space to the site context. I improved my skills of problem solving, model making, sketching, and learning to take in the environmental aspects of the site’s surroundings.

54
55 1 Year Studio 2019

THE GREAT INDOORS AND BEYOND: Designing for Behavioral and Mental Health

This master level course is an advanced seminar providing an in-depth examination of issues related to design theory and history in architecture. Specific course content will vary and will be defined by individual instructors. Topics, content and methods will support the acquisition of knowledge and abilities within the general topic area, as well as the application of these to other coursework. Students will be expected to develop and apply advanced analysis, research and communication skills. May be repeated when topics vary.

Light, air, color, and temperature are experienced every day — flooding one’s senses and affecting the mind and body. Many times this influence is unconscious as individuals flow through spaces unaware of their surroundings. Other times, it is fully conscious, overwhelming the occupants, causing over-stimulation and distraction. There is a growing trend to understand the profound impact of the built environment on health, especially with the advent of the global pandemic, bringing the role of architectural design to the forefront. Designers today must be increasingly aware of the impact of lighting, textures, spatial arrangements, acoustics, circadian rhythms, and ventilation to meet the needs of diverse individuals in an ever-shifting, modern world. This course will explore the role of health and well-being in design through an overview of the latest science on the effect of the interior environment on health before taking a deeper dive into designing for neurodiversity.

58

NEUROTYPICAL

“ Refers to individuals of typical development, and intellectual/cognitive functioning.”

NEURODIVERSITY

“Is a recognition that not all brains think or feel in the same way, and that these differences are natural variations in the human genome. A group of people are neurodiverse, and individual is not”

NEURODIVERGENT

“Refers to an individual who has a less typical cognitive variation such s Autism, ADHD, Dyslexia, Dyspraxia ect.”

DESIGN DECISIONS/CHANGES

Over-stimulation

- lighting

- acoustics

- materials

- colors

- spatial changes

59

Asteri Ithaca, NY - The Vecino Group | Springfield, mo

Create material boards

Contact material manufactures for samples

Edit images for presenting boards

Edit floor plans, sections, and elevations

Help with design ideas

Select materials, finishes, and systems based on technical properties and aesthetic requirements

Prepare design alternatives for client review

Review local, state, and federal codes for changes that may impact design and construction

Understand implications of evolving sustainable design strategies and technologies

Create Microsoft Excel proposal templates

60

Montrose, salt lake city - The Vecino Group | Springfield, mo

Prepare drawings and images for bidding process

Develop sustainability goals based on existing environmental conditions

Communicate design ideas to the client graphically

Analyze existing site conditions to determine impact on facility layout

Prepare diagrams illustrating spatial relationships and functional adjacencies

Prepare site analysis diagrams to document existing conditions, features, infrastructure, and regulatory requirements

61
Thank you for your time and consideration

Turn static files into dynamic content formats.

Create a flipbook
Issuu converts static files into: digital portfolios, online yearbooks, online catalogs, digital photo albums and more. Sign up and create your flipbook.