2024 | ARCHITECTURE PORTFOLIO | NGOC TRANG

Page 1

architecture portfolio

NGUYEN THI NGOC TRANG SELECTED WORKS | 2021-2023

4/2022 - 9/2022: Intern at Fansipan Construction Consultants Company

Job description | Drafting drawing using Revit

3D modeling using Revit

Rendering using Lumion

Photoshoping

11/2023 - now: Junior Architect at BDG Architecture

Job description | Drafting drawings using Autocad, Revit

Concept design Architecture, Landscape

Rendering using Lumion

3D modeling using Revit, Sketchup

Photoshoping

Date of Birth: 06/03/2000

Based: Binh Thanh, Ho Chi Minh city

contact:

mobile: (+84) 978204607

email: ngtrang632@gmail.com

issuu: https://issuu.com/ngngtrang632

behance: https://www.behance.net/ trangnguyen310

Page | 3 Portfolio.2024 Portfolio.2024 NGUYỄN THỊ NGỌC TRANG Junior Architect
about
contents
EXPERIENCES SKILL SET LANGUAGES OTHER SKILLS 2018 -2023:
of Architecture Ho Chi Minh City (UAH) Major | Architecture
me
EDUCATION
University
English | TOEIC Certificate : 890 (2023) | Communicating, Translating, Reading Vietnamese | Mother tongue French | A1 (beginner) REVIT AUTOCAD SKETCHUP ENSCAPE TEAMWORK SKETCHING ADAPTABILITY MODELING TIME MANAGEMENT LUMION PHOTOSHOP INDESIGN 01
03 04 05 Graduation Project Cultural Museum of Central Highlands Bảo tàng Văn hóa Tây Nguyên Hotel Design Project Thu Thiem Transit Hotel Khách sạn Quá Cảnh Thủ Thiêm Sport Hall Design Project 2500- seat Aquatic Center Trung tâm Thể thao Dưới nước - 2500 chỗ Cultural Center Project Thu Thiem Cultural Cinema Center Trung tâm Văn hóa Điện ảnh Thủ Thiêm Industrial Project Garment Factory Nhà máy Xí nghiệp May mặc 4 18 26 32 38
02

RESEARCH

Research

Page | 4 Portfolio.2024 Portfolio.2024 01 GRADUATION PROJECT CULTURAL MUSEUM OF CENTRAL HIGHLANDS Location | Buon Ma Thuot city, Dak Lak province Year | 2023 - 5th year student Area | 5.2 ha Software Used | Revit | Lumion | Photoshop INSPIRATION LANGUAGE STUDY MODELING SPACE FORMATION DIAGRAM MAIN VOLUME OF THE BUILDING CREATE RHYTHM SCULPT OUT THE SHAPE TO CREATE A STRONG DESIGN ADJUST THE SHAPE COMPLETE THE DESIGN LIFTING THE BLOCKS AND RELEASING ROOM ON THE GROUND FLOOR HELPS EXPAND VISION AND OPTIMIZE VENTILATION OPTION 1: THE COMBINATION OF STRAIGHT LINES AND CURVES. HOWEVER, THE DESIGN ITSELF IS NOT IMPRESSIVE ENOUGH, STILL VERY SIMPLE AND COMMON OPTION 3: EXPAND THE BODY OF THE BUILDING TO EASILY ARRAGE DIFFERENT FUNCTIONAL SPACES THE LINES ARE STILL ROUGH AND NOT HARMONIOUS OPTION 2: REPLACING SOFT LINES WITH STRAIGHT LINES WITH STRONG RHYTHM HOWEVER, THE BODY OF THE BUILDING IS NARROW, WHICH MAKES IT DIFFICULT TO ARRANGE SPACES OPTION 4: (CHOSEN ONE) COMPLETE THE SHAPE BY ADJUSTING THE RHYTHM, CHANGING THE BUILDING’S HEIGHT AND CREATING GAPS TO MAKE THE DESIGN MORE IMPRESSIVE Page | 5 The concept of the museum itself is constantly expanding. The museum not only includes the structure as everyone knows, but also includes a permanent outdoor exhibition area of precious and ancient artifacts related to customs, people, religion... EXHIBITION Bringing the image of a Central Highlands culture rich in its own identity closer to viewers, tourists, local people,... especially the younger generation. Consolidate cultural knowledge of the Central Highlands PROMOTE TOURISM Attracting tourists to stimulate local tourism as well as promote the cultural image of the Central Highlands SERVICES COMMERCIALS Combining services commerce through forms such as: food services, refreshments, souvenirs to serve visitors. It is both convenient for visitors and contributes to the preservation and maintenance of the museum as well as the artifacts EDUCATION
the image of a Central Highlands culture rich in its own identity closer to viewers, tourists, local people,... especially the younger generation. Consolidate cultural knowledge of the Central Highlands
Bringing
AND DEVELOPMENT
and development program to maintain, continue to develop, and promote the conservation of artifacts and intangible cultures
Cultural Museum of Central Highlands Bảo tàng Văn hóa Tây Nguyên
Graduation Project

CIRCULATION

Page | 6 Portfolio.2024 Page | 7 Portfolio.2024 Graduation Project Cultural Museum of Central Highlands Bảo tàng Văn hóa Tây Nguyên DIAGRAM
DIAGRAM ZONE SEPARATION DIAGRAM GENERAL DIAGRAM
Page | 8 Page | 9 Portfolio.2024 Portfolio.2024 Graduation Project Cultural Museum of Central Highlands Bảo tàng Văn hóa Tây Nguyên
Page | 10 Page | 11 Portfolio.2024 Portfolio.2024 Graduation Project Cultural Museum of Central Highlands Bảo tàng Văn hóa Tây Nguyên
Portfolio.2024 MẶT CẮT 2-2 Page | 12 Page | 13 Portfolio.2024 Graduation Project Cultural Museum of Central Highlands Bảo tàng Văn hóa Tây Nguyên
Page | Page | 14 15 Portfolio.2024 Portfolio.2024 Graduation Project Cultural Museum of Central Highlands Bảo tàng Văn hóa Tây Nguyên
Page | Page | 16 17 Portfolio.2024 Portfolio.2024 Graduation Project Cultural Museum of Central Highlands Bảo tàng Văn hóa Tây Nguyên
Page | 18 Portfolio.2024 Portfolio.2024 02 HOTEL DESIGN PROJECT THU THIEM TRANSIT HOTEL Location |
Thu
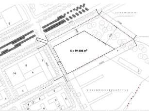
Year | 2022 - 5th year student Area |19.606 m2 Software Used | Revit | Lumion | Photoshop PHÂN TÍCH KHU ĐẤT CONCEPT MẶT BẰNG TỔNG THỂ Page | 19 Hotel Design Project Thu Thiem Transit Hotel Khách sạn Quá Cảnh Thủ Thiêm
Sala,
Thiem, Ho Chi Minh city
Page | 21 Page | 20 Portfolio.2024 MẶT BẰNG TRỆT TỔNG THỂ MẶT BẰNG LẦU 1 MẶT BẰNG LẦU 3 MẶT BẰNG LẦU 2 MẶT BẰNG TẦNG HẦM Portfolio.2024 Hotel Design Project Thu Thiem Transit Hotel Khách sạn Quá Cảnh Thủ Thiêm
22 Page | Page | 23 Portfolio.2024 Portfolio.2024 Hotel Design Project Thu Thiem Transit Hotel Khách sạn Quá Cảnh Thủ Thiêm MẶT BẰNG TẦNG 5 - TẦNG 11 MẶT BẰNG TẦNG 12
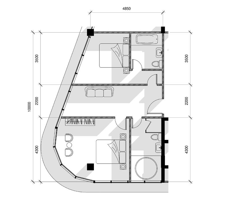
Page | 24 Page | 25 Portfolio.2024 Portfolio.2024 Hotel Design Project Thu Thiem Transit Hotel Khách sạn Quá Cảnh Thủ Thiêm Nội thất phòng ngủ Nội thất phòng ngủ
MB PHÒNG STANDARD MB PHÒNG DELUXE MB PHÒNG SUITE

DIAGRAM

Page | 26 Portfolio.2024 Portfolio.2024 03 SPORT HALL DESIGN PROJECT 2500 - SEAT AQUATIC CENTER Location | District 4, Ho Chi Minh city Year | 2022 - 4th year student Area | 3ha Software Used | Revit | Lumion | Photoshop
CONCEPT PHÂN TÍCH KHU ĐẤT Sport Hall Design Project 2500- seat Aquatic Center Trung tâm Thể thao Dưới nước - 2500 chỗ
Page | 28 Page | 29 Portfolio.2024 Portfolio.2024 Sport Hall Design Project 2500- seat Aquatic Center Trung tâm Thể thao Dưới nước - 2500 chỗ
Page | 30 Page | 31 Portfolio.2024 Portfolio.2024 Sport Hall Design Project 2500- seat Aquatic Center Trung tâm Thể thao Dưới nước - 2500 chỗ
Page | 32 MẶT BẰNG TỔNG THỂ MẶT BẰNG TRỆT TỔNG THỂ Page | 33 Portfolio.2024 Portfolio.2024 04 CULTURAL CENTER PROJECT THU THIEM CULTURAL CINEMA CENTER Location | Sala, Thu Thiem, Ho Chi Minh city Year | 2022 - 4th year student Area | 3ha Software Used | Revit | Lumion | Photoshop Cultural Center Project Thu Thiem Cultural Cinema Center Trung tâm Văn hóa Điện ảnh Thủ Thiêm
MẶT BẰNG LẦU 2 MẶT BẰNG LẦU 1 MẶT BẰNG TẦNG HẦM 34 Page | Page | 35 Portfolio.2024 Portfolio.2024 Cultural Center Project Thu Thiem Cultural Cinema Center Trung tâm Văn hóa Điện ảnh Thủ Thiêm
Page | 36 Page | 37 Portfolio.2024 Portfolio.2024 Cultural Center Project Thu Thiem Cultural Cinema Center Trung tâm Văn hóa Điện ảnh Thủ Thiêm
Page | 38 Portfolio.2024 05 INDUSTRIAL PROJECT GARMENT FACTORY Location | Tan Binh, Ho Chi Minh city Year | 2021 - 3rd year student Area | 2.5ha Software Used | Revit | Lumion | Photoshop Industrial Project Garment Factory Nhà máy Xí nghiệp May mặc DIAGRAM 5m 10m20m 40m 05m10m20m MẶT BẰNG TỔNG THỂ
Page | 41 Portfolio.2024 Portfolio.2024 Page | 40 Industrial Project Garment Factory Nhà máy Xí nghiệp May mặc MẶT BẰNG TRỆT TỔNG THỂ
Page | 43 Portfolio.2024 Portfolio.2024 Page | 42 Industrial Project Garment Factory Nhà máy Xí nghiệp May mặc MẶT BẰNG LẦU 1 MẶT BẰNG LẦU 2 MẶT BẰNG VĂN PHÒNG - TẦNG TRỆT MẶT BẰNG VĂN PHÒNG - LẦU 1

THI NGOC TRANG | SELECTED WORKS | UNIVERSITY OF ARCHITECTURE OF HCM CITY | 2018 - 2023

CONTACT

mobile | (+84) 978204607 email | ngtrang632@gmail.com

Page | Page | 44 45 Portfolio.2024 Portfolio.2024
NGUYEN

Turn static files into dynamic content formats.

Create a flipbook
Issuu converts static files into: digital portfolios, online yearbooks, online catalogs, digital photo albums and more. Sign up and create your flipbook.
2024 | ARCHITECTURE PORTFOLIO | NGOC TRANG by Ngọc Trang - Issuu