Wesley Chapel Neighborhood News, Volume 32, Issue 12, June 11, 2024

Page 1

How Do You Spell ‘Champion?’

I know this is a Wesley Chapel issue, but I felt this news was so big it deserved to be on this Wesley Chapel issue’s front cover, too.

We first told you about Bruhat Soma — the New Tampa resident who won this year’s Scripps National Spelling Bee on May 30 — two years ago, when he was a 10-year-old fifth grader who missed attending the finals that year because he came down with Covid-19.

Bruhat, who then finished 74th at the 2023 Scripps Bee, not only won the title this year, he did so with what has to be considered the most amazing performance in the 96-year history of the Bee — even more incredible than it was controversial.

For only the second time ever (the only other time was in 2022), the final two contestants had to compete in a lightning-round tiebreaker known as a “spell-off,” where each contestant is given 90 seconds to correctly spell as many words as they can. Bruhat’s final round opponent — Faizan Zaki, a 12-yearold 6th grader from Allen, Texas — successfully spelled an impressive 20 words in 90 seconds, but Bruhat set a new spell-off record by spelling an otherworldly 29 words correctly in the same amount of time.

Although he told the Associated Press (AP) he was nervous about the spell-off,

Neighborhood News @NTWCNews For Advertising Information Call 813-910-2575 • Wesley Chapel Neighborhood News • Volume 32, Issue 12 • June 11 , 2024 • NeighborhoodNewsOnline.net
Unlock Your Summer Potential! Biohack Your Way to a Pain-Free & Limitless Lifestyle! Scan the QR code for FREE sauna or ice plunge session when you mention this ad! 24706 State Road 54, Lutz • www.TheExerScienceCenter.com • 813.803.7070 Volume 32 Issue 12 June 11, 2024
B-R-U-H-A-T! Scan the QR code to your left with your phone to access our website!
(L.-r.) Reshma, Jyothi, Bruhat, Srinivas & Laasya Soma pose with Bruhat’s trophy for winning the 2024 Scripps National Spelling Bee. (Photo source: AP) See “Bruhat!” on pg. 4! BIRKIN’S STEAKHOUSE Delicious new steak & sushi place noves into the former LA Hangout on N. Florida Ave. in Lutz. See page 46! PLANNING FOR 2050 Pasco MPO reps ask you to tell them what transportation improvements are needed most. See page 6 RESTAURANT CLOSINGS! Our editor looks into why so many local & even chain restaurants are closing. See page 3 NEW PROJECTS ON S.R. 56 Our area’s first Daybreak Market & Fuel, Bainbridge Apartments & More See pages 14-21 Stonewood Grill & Tavern! This Tampa Palms mainstay never rests on its laurels! See pg. 44!

Why Are So Many Restaurants In Our Area Shutting Down?

When I lived in New York City in the 1980s, I was told by someone I looked up to in the advertising industry that unlike the real estate business — where the three most important words are “Location, Location, Location” — the rule of thumb for doing business with restaurants was “Get your money up front, Get your money up front, Get your money up front.”

It didn’t take me long to figure out why that was true — at least in Manhattan, where some of my favorite restaurants would get one bad review in any of the major New York media and be out of business in a week. And, this was decades before the advent of online reviews, when anyone with a beef against a restaurant owner could anonymously go online and turn a restaurant’s (especially a new one’s) Google or Yelp rating (or both) to garbage in a heartbeat.

But, in New York, almost every restaurant on every street was an individually owned mom-&pop, which has always been more of a gamble than opening another link in a well-funded, regional or national, mass-marketed chain.

However, as evidenced by the recent rash of restaurant closings in our area, it’s no longer just mom-&-pop, non-chain restaurants that are being affected by everything from rising food costs and salaries, plus ever-increasing rents/interest rates, as well as the cost of things like building materials to even open a new place.

Case in point: When you see beloved (perhaps not by me, but still by many), well-established chains like Red Lobster (photo), Tijuana Flats and Beef O’Brady’s shuttering multiple locations, that is definitely a cause for concern.

In Wesley Chapel, it seems like 80% of the eateries are chains — whether national or regional — and almost every new place that is popping up (like Rodizio Grill; see pg. 50) is at least a small chain. The only exception seems to be Asian restaurants — from Japanese to Indian — which are more often single-location or just 2-3 total family-owned units.

In other words, for every solo Via Italia or Falabella Family Bistro hanging in there you have a 201st location of Fazoli’s (see pg. 49) opening. For every one-off Chick’n Fun that attracts an audience, you’re surrounded by one of nearly 200 Slim Chickens and one of 20+ Chicken Guy! (which is coming soon to the north side of S.R. 56) locations.

Of course, the cost to buy a piece of land and build a new restaurant in Wesley Chapel is becoming prohibitive for anyone other than a chain, but even shuttered fast food places like Wendy’s on S.R. 56 are simply being replaced by another chain — such as Shake Shack, which has nearly 400 locations.

If you visit local online communities, you’ll always see people bemoaning all of the chain restaurants we have and all of the mom-&-pops we don’t have in our area and yet, every year, hundreds of our readers vote (see pg. 42 for this year’s Dining Survey & Contest) mainly for chains and don’t seem to even know about many of the really good mom-&-pop places available to them. Here are some reasons why:

Marketing — Even chains with food that I personally refuse to eat — like Taco Bell and Subway — spend millions of dollars every year on ads that magically make their food look absolutely edible. But, while many new local restaurants intend to spend money to promote themselves, the first thing most cut

back on when their build-out inevitably takes longer than they ever expected is that advertising money.

Labor — It seemed like the Covid-19 pandemic exacerbated a dangerous new attitude towards work among young people — the very labor source most restaurants have to look at to fill their employee rosters. And, while the height of the pandemic has been in the rear view for at least three years now — and many fewer people are being paid more to not work than if they have a job — that attitude still seems to be pervasive.

And, since the trend towards higher pandemic-era tipping for waiters and bartenders seemed to settle down somewhat, many restaurants have added service charges (that, unfortunately, aren’t always fairly shared with the employees), charges for using a credit card to pay and other extras that

have created higher costs to dine (or take) out and turned off many regular customers.

Food Quality — I still feel that this is the biggest issue of all. Jannah and I believe that an expensive meal is always still worth it if the portions and prices are fair, the service is good and the quality of the food is high. However, overpaying for lower-quality food and/or bad service is never OK with us and I honestly think that many chains — and some mom-&-pops — have cut back on quality while charging more for the same meals, often with smaller portions for a higher price.

I see a lot of people warning that many more restaurant closings are still coming, but I, for one, hope that won’t prove to be true.

Let us know your favorite restaurants for 2024 in Wesley Chapel by turning to page 42.

• Closing/Escrow Services • Title Insurance • 1031 Intermediary

• Document Preparation • Recording services

We can close any property in the state of Florida!

We work with: Realtors • Buyers • Sellers • Builders • Investors

When you work with Wesley Chapel Title, your job is easier!

• One single point of contact • Qualia Closing Platform

• Superior communication • Knowledgeable & professional staff

When popular chains like Red Lobster tart

ing, there is definitely cause for some concern. We Are Your Locally-Owned & Operated Closing Expert! OUR SERVICES INCLUDE:

2604 Cypress Ridge Blvd., Suite 102D

Phone: (813) 910-2575

BY APPOINTMENT ONLY!

Advertising E-mail: Ads@NTNeighborhoodNews.com

Editorial E-mail: EditorialDept@NTNeighborhoodNews.com

Publisher & Editor Gary Nager

Correspondents

• Comprehensive eye exams

• Prescriptions for glasses & contact lenses

• Diabetic & Driver's License eye exams

• Retinal Imaging

• COMING SOON: Sports Vision Training

• FREE comprehensive eye exams for infants (6mo-12mo old) through the Infant

Celeste McLaughlin Iris Vitelli • Joel Provenzano

Editorial Research by Joel Provenzano

Ad Sales & Marketing Director Jannah Nager

Lead Video Producer/Multimedia Specialist

Charmaine George

Graphic Designers

Morgan Tahvonen • Valerie Wegener

Nothing that appears in Wesley Chapel Neighborhood News may be reproduced, whether wholly or in part, without permission. Opinions expressed by Wesley Chapel Neighborhood News writers are their own and do not necessarily reflect the publisher’s opinion.

The deadline for outside editorial submissions and advertisement reservations for Volume 32, Issue 14, of Wesley Chapel Neighborhood News is Thursday, June 27, 2024.

Wesley Chapel Neighborhood News will consider previously non-published outside editorial submissions if they are double spaced, typed and less than 500 words. Wesley Chapel Neighborhood News reserves the right to edit and/or reject all outside editorial submissions and makes no guarantees regarding publication dates. Wesley Chapel Neighborhood News will not return unsolicited editorial materials.

Wesley Chapel Neighborhood News reserves the right to edit &/or reject any advertising. Wesley Chapel Neighborhood News is not responsible for errors in advertising beyond the actual cost of the advertising space itself, nor for the validity of any claims made by its advertisers. © 2024 JM2 Communications, Inc.

For Advertising Information Call 813-910-2575 • Wesley Chapel Neighborhood News • Volume 32, Issue 12 • June 11, 2024 • NeighborhoodNewsOnline.net 3 Neighborhood News @NTWCNews Wesley Chapel Neighborhood News
Wesley Chapel,
FL 33544
OFFICE HOURS
Excellence in Eye Care, LLC Is Your Children•s Nears ightedness Getting Worse Every Year? We Have New Treatments That Can Help!
book an appointment for your child, call our office or scan the QR code below COME SEE US AT THE COSTCO ON S.R. 56 IN LUTZ!
do not have to be a Costco member to see Dr. Scamard
To
You
or Dr. Woolwine
Program DR. DAVID SCAMARD
DR.
See
&
CARSON WOOLWINE clos-
Call us! 813.993.5222 WesleyChapel-Title.com Contact@WesleyChapelTitleFl.com

Bruhat calmly zipped through every word, from “abseil” (actually his last correctly spelled word of the spell-off) to “wenzel” by miming himself typing each word as he spelled it. If you haven’t yet watched his spell-off performance, you really should. AP’s article said he sounded more like an auctioneer than a speller.

As the champion, Bruhat receives a trophy and $50,000+ in cash and prizes, which Bruhat told “Good Morning America” he plans to donate because, “there are people who need it more than I do.”

According to the AP, Bruhat said he, “rehearsed the spell-off every day for six months. I was pretty confident that I had a chance at winning because I’ve been working so hard…and I really wanted to win. That’s why I practiced the spell-off so much.”

‘The Bru-ha(t)-ha’

The AP story also said that although there was no doubt Bruhat was a worthy champion, “the conclusion left many observers disappointed and confused.

“The finals began with eight spellers, the fewest since 2010,” the AP report said, “and it was clear that Scripps was trying to fill the twohour broadcast window on Ion, a network owned by the Cincinnati-based media company. Frequent, lengthy commercial breaks allowed spellers to mill about at the side of the stage, chatting with their coaches, relatives and supporters.

“And then, Bee officials announced it was time for the tiebreaker, before Bruhat and Faizan were even given a chance to compete in a conventional round. The competition rules state that a spell-off is used in the interest of time, but Scripps still squeezed in another commercial break between the tiebreaker and the announcement of Bruhat’s victory.

“In the tiebreaker (which was used once before, when Harini Logan of Texas correctly spelled 21 words in 90 seconds in 2022), “the winning word is the one that gives a speller one more correct word than their competitor.”

Although it was actually his 29th correct word, not his 21st, Scripps said, “Bruhat’s winning word was ‘abseil,’ defined as ‘descent in mountaineering by means of a rope looped over a projection above.’”

(Left) Jacques Bailey of the Scripps National Spelling Bee, puts new champion Bruhat Soma through his paces during the spell-off. You can see Bruhat acting like he’s typing the winning word, “abseil.”

After the competition ended, and a clearly sad Faizan graciously shook his hand, Bruhat told the AP, “I always want to win. And this was, like, my main goal. I’m just really happy that I won this.”

Bruhat is the second straight champion from the Tampa Bay area, and his victory means 29 of the last 35 spelling champs have been Indian American.

(The photos on these pages are screenshots from the Ion-TV stream of this year’s Spelling Bee) Middle School eighth grader Nupur Lala was the first, winning the trophy in 1999. Nupur’s journey to the crown inspired a new generation of spellers, after her triumph was featured in the documentary “Spellbound.” Now a neuro-oncologist, Nupur returned to the Bee this year for the first time in a decade.

He also is the second New Tampa resident to claim the title — former Benito

Turner Bartels principal LaMarr Buggs said that Bruhat’s performance was “Unbelievable. I honestly was nervous about the spell-off because the other kid (Faizan) seemed faster during the regular rounds, but wow. Just wow! Everyone at the school is so proud that he is one of ours.” Buggs also said that after Bruhat, who lives “within walking distance of the school in Live Oak Preserve,” is finished with a whirlwind media tour, including an appearance on “Jimmy Kimmel Live!” and other national talk shows, a “welcoming committee” from Turner Bartels plans to greet Bruhat — who says he wants to go to “a great, big college” and be a doctor someday — and his family at Tampa International Airport upon their return. The Neighborhood News hopes to “bee” on-hand for that event.

Neighborhood News @NTWCNews For Advertising Information Call 813-910-2575 • Wesley Chapel Neighborhood News • Volume 32, Issue 12 • June 11 , 2024 • NeighborhoodNewsOnline.net 4
‘Bruhat!’ Continued from pg. 1 #1 Express Car Wash In Wesley Chapel! Full Service Also Available! “Life Is Better Under The Palms!” The Great White Exterior Only Svc., 1 time Unlimited Monthly Club, Ext. Only Unlimited Monthly Club, Ext. Only The Sand Shark Ext. Only Svc., 1 time Express Plus Ext. Only Svc., 1 time Unlimited Monthly Club, Ext. Only A La Carte Add Ons The Hammerhead Ext. Only Svc., 1 time Unlimited Monthly Club, Int. & Ext. Full Service InteriorProfessional & Exterior DetailingServices Available! 5550 Post Oak Blvd. (off Wesley Chapel Blvd.) WESLEY CHAPEL OPEN EVERY DAY 8 a.m.-8 p.m. 813.991.0000 ThePalmsCarWash.com FREE Vacuums, Mat Cleaning, Glass Cleaner, Washer Fluid & Bug Removal! Unlimited Monthly Club, Ext. Only The Great White + Ultimate Int. & Ext. Full Service, 1 time Unlimited Monthly Club, Int. & Ext. Full Service Express Plus Int. & Ext. Full Service, 1 time
For Advertising Information Call 813-910-2575 • Wesley Chapel Neighborhood News • Volume 32, Issue 12 • June 11, 2024 • NeighborhoodNewsOnline.net 5 Neighborhood News @NTWCNews
(Above) To the victor go the spoils. (Below) A gracious Faizan Zaki shakes Bruhat’s hand following the spell-off.

MPO Discusses The ‘Innovate Pasco 2050’ Transportation Plan At Chamber Meeting

Even with all of the transportation improvements completed over the past few years, there’s no doubt that the roads in Pasco County in general — and the Wesley Chapel area in particular — are a lot more crowded today than they were before those improvements were finalized. Without a long-term transportation plan in place 20, 30, or even 50 years ago, however, our traffic situation would unquestionably be far worse.

To that end, representatives from (and the private firm working with) the Pasco Metropolitan Planning Organization, or MPO (the county’s federally-funded primary transportation planning entity), have been making the rounds throughout the county to ask people what planned road improvements should be prioritized between 2025 and 2045.

The MPO’s long-term transportation plan, dubbed “Innovate Pasco 2050,” was presented to about 25-30 North Tampa Bay Chamber (NTBC) members at the Chamber’s monthly Economic Development Briefing on May 14 at its Suncoast Office off S.R. 54 in the Bexley community of Land O’Lakes.

“The MPO’s mission is to find out what the transportation needs are for the county and develop solutions for those needs,” said Scott Ferry, the Pasco MPO’s principal transportation planner. “One of the ways that we accomplish this mission is by meeting with the public throughout the county, which is what we are doing here today.”

Ferry also explained that the MPO is gov-

erned by a nine-member Board which is “comprised of the five Pasco County commissioners and four municipal representatives (from the cities of Dade City, New Port Richey, Port Richey and Zephyrhills). “This MPO Board meets on a regular basis to discuss and make decisions about transportation policies and issues in the county.”

He said that when the plan is adopted, “it’s going to serve as a guide and a blueprint for county transportation planning for the next five years (2025-29). We’re here to engage with you and see what you believe the transportation priorities should be for the county.”

He then introduced Jonathan Whitehurst and Joe Crozier of private transportation planning consulting firm Kimley-Horn & Associates, which has been retained by the MPO to assist with the “Innovate Pasco 2050” planning process. Whitehurst, a North Carolina resident whom Ferry said has 18 years of experience helping develop transportation plans throughout the country, and Crozier — a life-long Pasco County resident — then explained the process by which MPOs create not only their long-rang plans but also the short-term (five-year) Transportation

Improvement Plan (also known as the “work plan”) so planned improvements can be funded by the various government entities, whether state/ federal, local (county and city), or a combination of funding sources.

“We’re starting with the 2045 plan to see what’s different and what’s changed,” Whitehurst said, “and the short answer is that in the last five years, a lot has changed in Pasco County, which makes our job a little bit harder because we first have to find that baseline condition as to where things are now so we can start to predict where things are going to be in the future.”

Whitehurst also mentioned that although the primary discussion in MPO plans is usually about roadways, traffic, safety and congestion,

“We look at all modes of transportation, including bike facilities, pedestrian facilities, transit, freight and even a little bit of air travel, so it truly is a multimodal transportation plan.”

He also noted that the MPO and KimleyHorn started working on the plan in Oct. 2023 and hope to have it finished sometime this month, “so we’ve got quite a bit of work to do to get it done. The plan itself will be adopted later this year. As soon as the MPO adopts the plan, that five-year cycle starts over.”

He said that where the planners are now is “at the very end of the ‘Needs’ plan, which identifies the universe of possible projects. We took a look at how we think Pasco is going to grow between now and 2050, where our facilities

Neighborhood News @NTWCNews For Advertising Information Call 813-910-2575 • Wesley Chapel Neighborhood News • Volume 32, Issue 12 • June 11 , 2024 • NeighborhoodNewsOnline.net 6
(Left) Pasco MPO principal transportation planner Scott Ferry (front) and Joe Crozier of Kimley-Horn, discuss the “Innovate Pasco 2050” Long-Range Transportation Plan with members of the North Tampa Bay Chamber. (Right) Jonathan Whitehurst of Kimley-Horn explains what a long-range transportation plan is and why it’s important.

are now, where we have already-funded projects in the future and we said, ‘OK, where are the problem areas?’ And, we found that there are a lot of problem areas. So, the needs plan is trying to address as many of those problem areas as possible, trying to say that if these are the potential problem areas, these are the projects and solutions we are going to need to solve them.”

Whitehurst noted, however, that there is always, “a big list of projects, but we only have a small amount of money. So then, we have to figure out what are the priorities among the projects that we’ve identified, so that’s where the project prioritization process comes in. We put all of the needed projects on a spreadsheet and see which ones rise to the top.”

And, speaking of money, Whitehurst said that, “Concurrent with that, we have to see how

much money we have to spend on transportation projects, so we take that prioritization list, compare it with the money and see how far down the list we can make it. That’s what we call the cost-feasible plan.”

Crozier then explained that for the purposes of the study, the county was divided into three sections — west of the Suncoast Pkwy., between the Suncoast and I-75, and east of I-75. And, although the growth in Pasco previously has been on the west coast, the central and eastern areas are now growing faster, “but all of Pasco is growing and all of that growth requires infrastructure.”

Crozier and Whitehurst also noted that because Pasco continues to add homes and businesses, part of the study looked at the different types of jobs that are coming — especially in the

For Advertising Information Call 813-910-2575 • Wesley Chapel Neighborhood News • Volume 32, Issue 12 • June 11, 2024 • NeighborhoodNewsOnline.net 7 Neighborhood News @NTWCNews
Wisely designing retirement plans. Dana W. Lyon MBA, AWMATM, CRPCTM Founder and Senior Wealth Advisor Call for a complimentary planning consultation. 28210 Paseo Drive, Suite 190-226 | Wesley Chapel, FL 33543 Capital Wise Advisory LLC is a registered investment advisor. Capital Wise Advisory LLC can only conduct business in states where it is registered or exempt from registration. 813.778.3856 Dana@capitalwiseadvisory.com www.capitalwiseadvisory.com Exceeding Your Expectations www.totallyblubuilders.net | 815-550-2023 Call today for a FREE digital design & video! FREE Salt Cell & VS Pump Upgrade Included 60-Day Dig to Swim Dana Carter Women’s Health Nurse Practitioner Online Hormonal Health & Wellness Consulting FREE 10-Minute Phone Consultation OTHER SERVICES INCLUDE: • At-home saliva testing • Optional bloodwork • All-natural recommendations aimed to regulate hormonal imbalances @happyhealthyhormones3 HappyHealthyHormones3@gmail.com See ‘‘Innovate Pasco” on pg. 8

Continued from pg. 7

greatly expanding medical field in our area and how those different types of jobs also impact the transportation needs differently.

And, Crozier admitted that despite the best-laid plans of previous planners, because the county has grown so quickly, “we’re actually hitting now many of the previous projections for 30 years from now. A lot of the growth models, especially after Covid, are just not accurate anymore” and all of that has made the prioritization process a lot more complicated.

Although Whitehurst and Crozier presented a countywide list of more than 120 transportation projects that are planned to be funded, we have only shown the 27 planned improvements that either are located in Wesley Chapel, or at least border directly on Wesley Chapel, in the chart on this page. The problem, Whitehurst said, is that “While we would love to have enough money to pay for all of these projects, at the end of the day, we still don’t have enough money.”

He said that if you want to learn more and provide input on the plan, go to InnovatePasco. com, which has both the complete list of planned projects and the map on the next page in an interactive format that will allow you to zoom in on the areas of the map that might be most important to you and drop ‘pins’ on the map and provide us with comments about those needs and the plan itself.

“Please spread the word, too, because the more people we can get involved in the website, the more info we can collect.” He noted that earlier this year, there were more than 1,100 people

Order your copy TODAY!

MAP

Innovate Pasco 2050 Planned WC Area Road Improvements

8-Boyette Rd SR 54 Wells Rd

25-CR 577 (Curley Rd) Wells Rd Clinton Ave Ext Expand to 4 lanes divided

29-CR 579 (Morris Br Rd) Hills Cty line

CR 579A (Prospect Rd)

34-CR 581 (BBD Blvd) Hills Cty line SR 56

Expand to 4 lanes divided

to 4 lanes divided

Expand to 4 lanes divided

Signal Timing/Traffic opns

42-Chancey Rd Ext Mansfield Blvd CR 579 (Morris Bridge Rd) New 4-lane roadway New 4-lane roadway

52-County Line Rd S Livingston Rd CR 581 (BBD Blvd) Expand to 4 lanes divided Expand to 4 lanes divided

53-Curley Rd realignment SR 54 CR 577

61-I-75 Hills Cty line SR 54

62-I-75 SR 54 Hernando Cty line

4-lane roadway New 4-lane roadway

to 10-lane freeway Expand to 10-lane freeway

to 8-lane freeway Expand to 8-lane freeway

63-Keifer Rd Curley Rd CR 41 (Ft King Hwy, ZH) New 2-lane roadway New 2-lane roadway

67-McKendree Rd McKendree realnmt SR 52 New 4-lane roadway New 4-lane roadway

68-McKendree realignment Overpass Rd McKendree Rd New 4-lane roadway New 4-lane roadway

70-MP Blvd County Line Rd S SR 54 Expand to 4 lanes divided Expand to 4 lanes divided

75-New River Rd SR 56 Chancey Ext New 2-lane roadway New 2-lane roadway

77-Oakley Blvd Old Pasco Rd Pink Flamingo Ln NA Expand to 4 lanes divided

80-Old Pasco Rd Overpass Rd SR 52

Expand to 4 lanes divided Expand to 4 lanes divided

84-Overpass Rd Old Pasco Rd Old Bridge Rd Expand to 4 lanes divided Expand to 6 lanes divided

87-Overpass Rd Ext CR 579 (Handcart) CR 41 (Ft King Hwy, ZH) New 4-lane roadway New 4-lane roadway

96-River Glen Blvd ZH W Ext Wells Rd New 4-lane roadway New 4-lane roadway

96-River Glen Blvd Wells Rd Overpass Rd Ext New 4-lane roadway New 4-lane roadway

105-SR 54 CR 579 (MB Rd) US 301 (Gall Blvd, ZH)

4-lane divided New 4-lane roadway

106-SR 56 Mansfield Blvd US 301 (Gall Blvd, ZH) Expand to 6 lanes divided Expand to 6 lanes divided

107-SR 56 US 301 (Gall Blvd) Chancey Rd (ZH E)

108-SR 581 Ext SR 581 SR 54

120-US 301 (Gall Blvd) SR 56 SR 39

4-lane roadway New 4-lane roadway

Expand to 6 lanes divided Expand to 6 lanes divided

132-Wells Rd SR 581 Ext CR 579 (Eiland Blvd) New 2-lane roadway New 2-lane roadway

137-Wyndfields Blvd Oldwoods Ave SR 54 New 4-lane roadway New 4-lane roadway

The Pasco MPO’s “Innovate Pasco 2050” long-range transportation plan includes 27 roadway projects for the years 2045-50 that are either in Wesley Chapel or directly adjacent to Wesley Chapel. The “Map #s” shown above correspond to locations on the map at the top of the next page. (Source: Pasco County MPO)

who already had left comments on the website. Meeting attendees were given the opportunity to ask questions and make comments following the presentation, and there was agreement

that the Diverging Diamond Interchange at S.R. 56 and I-75 has been the most impactful recent transportation improvement and that Wesley Chapel Blvd. is the most-needed improvement in our area. Other complaints expressed at the meeting are the length and lack of synchronization of traffic signals and that it seems like road improvements are always behind development.

Running from Yesterday

An Unflinching True Story

Join Margarette Allyn on a harrowing yet uplifting journey of profound transformation. From her early love of dance and the stage to becoming a NYC cop and finding her true self, Margarette’s story captures the raw essence of her struggles and triumphs. This inspiring tale is for anyone looking to let go of a troubled or painful past, reconnect with their inner child, and discover the exceptional power of self-forgiveness.

www.MargaretteAllyn.com

“I read this in one weekend; I couldn’t put it down.”

“Margarette’s tale is proof that anyone can turn their life around. We are the author of how our story ends.”

We offer anything that you may need with a logo, including:

Shirts • Hats & caps

Scrubs • Personalized Backpacks

Team Uniforms

Pens

Magnets

Stickers, etc.

Dog Collars

Neighborhood News @NTWCNews For Advertising Information Call 813-910-2575 • Wesley Chapel Neighborhood News • Volume 32, Issue 12 • June 11 , 2024 • NeighborhoodNewsOnline.net 8
‘Innovate Pasco’
#-STREET FROM TO 2045 Rec* 2050 Rec*
NA
Expand
NA
NA
New
Expand
Expand
New
New 4-lane divided New 4-lane roadway
New
Full-Service Embroidery & Screen Printing Service!
We also can embroider or print in-house any garments that you may have! Call or email Kathy Gillespie StitchHappensKat@gmail.com 813.679.9355 Custom Embroidered Pet Collars! $25 Personalized Backpacks! QUICK TURNAROUNDS!
For Advertising Information Call 813-910-2575 • Wesley Chapel Neighborhood News • Volume 32, Issue 12 • June 11, 2024 • NeighborhoodNewsOnline.net 9 Neighborhood News @NTWCNews Your Local Veteran & Family Owned Roofing Company Licensed, Bonded & Insured (Roofing Lic. #CCC1332995 & Contractor Lic. #CRC1330325) “Home of the Lifetime Warranty” FINANCING AVAILABLE Providing all traditional Estate Planning Services, including: • Probate • Wills • Trusts • Trust Administration • Advance Health Care Directives • Durable Powers of Attorney Denise A. Welter, Attorney OFFICE NUMBER 850.388.3845 2405 Creel Lane, Suite 102 Wesley Chapel, FL 33544 info@welterlawoffice.com www.welterlawoffice.com Lavender Spa & Nails Declare Your Independence From Plain-Looking Nails! Receive $5 OFF Any Purchase of $50 or More! With this coupon only. One coupon/customer. Exp. July 31, 2024 Located in Tampa Premium Outlets • 2398 Grand Cypress Dr., Suite 430 • Lutz, FL 33559 (813) 300-3005 • LavenderSpaNails.com We Also Offer All Of The Latest Trends! • Gel-X & Builder Gel Nails • Acrylic, Dip & Gel Nails • Pedicures, Facials & Waxing • Eyelash Extensions We Always Strive to Provide a Luxurious, Spa-Like Experience! • Try Our New Foot Detox Service! Only $10! • Complimentary glass of wine or soft drink w/any service

Commissioners Talk Affordable Housing After Vote Opting Out Of ‘Live Local’

What the vote means for two Wesley Chapel properties & what Pasco County’s affordable housing plans are moving forward

When the Pasco County Board of Commissioners (BOC) voted unanimously on May 21 to opt out of a portion of the state’s recently revised “Live Local” law that was originally passed last year, it didn’t stop the BOC from continuing to look to find other ways to bring affordable or “workforce” housing to the county.

“We all agreed that although those in the workforce need more affordable housing,” says District 2 Commissioner Seth Weightman, “Live Local just did not seem to accomplish that goal.”

To that end, Pasco’s senior assistant county attorney David Goldstein made a presentation to the commissioners at their May 21 BOC meeting which summarized the reasons why the county was choosing to opt out of the provision of the Live Local law (pushed by Senate President Kathleen Passidomo during the 2023 State Legislative session) that was modified towards the end of the 2024 session to allow local jurisdictions the opportunity to “opt out.”

Pasco, led by Comm. Weightman, was at the forefront of the fight to get the law changed during this year’s session, as one of the two properties that applied for the Live Local tax break — the Tapestry at Cypress Creek apartments (where Jannah and I have lived the past five years, since the complex first opened), where Wesley Chapel Blvd., S.R. 54 and S.R. 56 meet — is located in his district. I can personally vouch for what Comm. Weightman said at the May 21 meeting:

“That complex has been around for a number of years and was never intended to be an affordable housing project. It’s Class A multifamily living with amenities, right next to Wesley Chapel and the Outlet Mall.”

Goldstein outlined the conditions that will allow the county to opt out of the 80%-120% of Average Monthly Income (AMI) provision of Live Local for 2025, although both Tapestry and a complex in the Trinity area both already have applied — but neither one had yet been granted that exemption by county property appraiser Mike Wells at our press time — for 2024.

The 80%-120% provision allows rental communities to receive the Live Local tax exemption if their units rent for 80-120% of the AMI for an individual in Pasco County, which Goldstein said worked out to rents averaging about $2,000 per month. “These $2,000-permonth rents are not what our school teachers, county employees, firefighters and law enforcement officers can afford,” Goldstein told the commissioners. “It doesn’t make sense to give large tax exemptions essentially to complexes that are charging market rate rents with no charitable purpose.”

He added that Pasco also has a large surplus of apartments in that 80-120% range.

“Our deficit is only in rental units charging less than 80% of AMI, which is truly affordable or workforce housing,” he said. “But, we don’t have any communities offering rents under that 80% AMI range coming before you for approval.”

The Tapestry at Cypress Creek apartments, located at the intersection of Wesley Chapel Blvd. and S.R.s 54 & 56, is one of two existing apartment communities that have applied to greatly reduce their property taxes under Florida’s “Live Local” law. (Source: TapestryCypressCreekApartments.com)

Goldstein also noted that even with the changes to the Live Local law, Pasco is still grouped with Hillsborough, Pinellas and Hernando counties in the Tampa Bay Metropolitan Statistical Area (MSA), which is what is being used to determine if a community already has a surplus or a deficit in the number of rental units in the 80-120% AMI range, “So although our MSA has a surplus of 3,994 units at present, even if Pasco has a surplus in the future, but Hillsborough or

Pinellas has a large enough deficit to more than offset our surplus, we might not be allowed to optout of Live Local in the future. I’m hoping the law will be refined again in the next legislative session.” He also said he hoped that other counties in MSAs with surpluses of the 80-120% AMI units will follow Pasco’s lead and opt out of the law. Goldstein also told the commissioners that counties that still qualify under the provisions See “Live Local” on pg. 12.

Neighborhood News @NTWCNews For Advertising Information Call 813-910-2575 • Wesley Chapel Neighborhood News • Volume 32, Issue 12 • June 11 , 2024 • NeighborhoodNewsOnline.net 10
For Advertising Information Call 813-910-2575 • Wesley Chapel Neighborhood News • Volume 32, Issue 12 • June 11, 2024 • NeighborhoodNewsOnline.net 11 Neighborhood News @NTWCNews In The Market To Buy A New Home? Have We Got An Offer For You! Leeann & Ryan Sack, Realtors® FUTURE HOME REALTY “Certified Divorce Specialists” Leeann: (813) 351-9599 Ryan: (813) 351-9598 Info@SellandBuyFL.com (Must mention ad; Expires 6/30/24) Patrick Monteau Branch Manager Mobile #: (813) 927-7806 Office #: (813) 499-9988, x201 Email: pmonteau@gwloans.com NMLS# 891593 SPECIALIZING IN RESIDENTIAL HOME LOANS Conventional, FHA, VA, USDA, JUMBO & Non-QM Get a $500 credit at closing towards buyer’s home inspection from Team Sack Get a $500 credit at closing towards buyer’s appraisal fee from Great Western Home Loans We Can Help Negotiate A LOWER INTEREST RATE For You, Plus...

of the law will have to opt out every year, and that the apartment complexes trying to receive the tax breaks also will have to apply for those breaks every year.

“Fortunately, we only have the two complexes who may be able to receive the tax break this year,” he said, “but even just for this year, the county would lose 75% of the $1.7 million the two complexes paid in taxes last year (or more than $1.275 million combined)” if Wells does allow them to receive the Live Local tax break for 2024. “But, we can only opt out of Live Local for county taxes,” he added. “I have drafted a letter to the Pasco School Board, Mosquito Control District and the cities in the county instructing them to also opt out of the 80-120% AMI provision of Live Local for 2025.”

Goldstein also mentioned that there are flaws in the way the data that would allow Pasco and other jurisdictions to opt out of Live Local is being used.

“We can only opt out if the latest University of Florida Shimberg (Center for Housing Studies) Report, which uses American Community Survey data (based on the Census) shows that our Tampa Bay MSA has a surplus of rental units in the 80-120% AMI range,” he said. “But, that does not include recent construction — it’s always two years behind. If we have a recent apartment complex — and we have a lot of recent apartment complexes being built — it’s not counting those in the surplus inventory. We did raise that as a concern and we’re hoping it’s something else that can be refined during the next Legislative Session. The problem is that the Shimberg Report

could show we have a deficit when we actually have a surplus on the ground.”

He also noted that of all of the large counties in the state, only Broward and Miami-Dade counties have large deficits of units in the 80120% AMI range, “So it seems like this state law was enacted only to help southeast Florida. The law really should only be applied to those areas.”

Goldstein also noted that the change in the law for 2025 only applies to tax breaks for existing communities, “So we’re hoping to get the land use part of the law changed during next year’s session. If we don’t have a deficit of those units, why should we have to give up job-creating commercial and industrial properties in the future to have more of them?”

Pasco’s five commissioners — including new Dist. 4 Comm. Lisa Yeager in her first BOC meeting since being appointed to fill the seat of the late Comm. Gary Bradford by Gov. Ron DeSantis — voted unanimously to approve opting out of the tax portion of Live Local.

Even so, at the insistence of Dist. 5 Comm. Jack Mariano — despite the fact Goldstein said it wasn’t necessary to do so — the BOC also voted 5-0 to draft a letter to the property appraiser asking him to not grant the exemption to the two rental communities that applied for it for 2024. “I’ve been in constant contact with Mr. Wells’ attorney’s office,” Goldstein said. “They’re well aware of how we feel about this.”

Talking Affordable Housing

Following their regular BOC meeting, the commissioners held a workshop on what Pasco can do to provide more affordable housing options for those in the workforce — county employees and others — especially after Goldstein

Pasco County’s senior assistant county attorney David Goldstein provides information about the changes to the state’s Live Local law to the county’s Board of Commissioners prior to the BOC’s vote to opt out of a portion of the state law regarding affordable housing. (Photo: Screenshot from Pasco BOC meeting) noted during the regular BOC meeting that Pasco does indeed have a shortage of affordable units for those whose monthly incomes are below the 80% of the county’s AMI.

The workshop was led by Cathy Pearson, Pasco’s assistant county administrator for public services, who said she was discussing affordable housing with David Lambert, the chairman of the Pasco Housing Authority and the Executive VP and general manager of the Withlacoochee River Electric Cooperative, “And we both said we have never had an affordable housing plan for Pasco County. David took me to his Pasco Housing Authority Board and convinced the Board to pay for this study for us,” Pearson said. “How wonderful.”

She also said that for the year-long study, “affordable housing was defined as housing that costs less than 30% of a household’s income.” For someone earning Pasco’s average median income of $63,187 per year, an affordable rent would be $1,579 per month, although starting teachers and many other workers only earn about 80% of that

median income, so those workers could only afford rents of $1,263 per month or less.

Among the options put forth by the study to help increase affordable housing options in Pasco include legalizing “accessory dwelling units,” sometimes called backyard homes or “granny flats,” adding duplexes or even quadraplex units in existing single-family communities, the possibility of requiring developers to include or pay for affordable housing in their unit totals to receive approval for those developments, as well as expanding some kinds of public rental or home-buying assistance. Goldstein also noted that the county already has reduced mobility and impact fees for developments that include affordable housing.

Pasco Planning & Economic Growth director David Engel says the county is expected to add more than 101,000 workers to fill the jobs in the projects that are already under design or that the Board has already approved.

“So we’re going to have a tremendous need for housing in the future for that workforce.”

Neighborhood News @NTWCNews For Advertising Information Call 813-910-2575 • Wesley Chapel Neighborhood News • Volume 32, Issue 12 • June 11 , 2024 • NeighborhoodNewsOnline.net 12
‘Live Local’ Continued from pg. 10 Colorful Nails is a premium nail salon dedicated to providing our customers with the highest quality nail care services 30036 S.R. 54 • Wesley Chapel • (813) 501-4297 • ColorfulNailsSalon.com • Talented & Skilled Technicians • Eye-catching nail designs to match your unique style • Specializing in everything from classic manicures to the latest in nail art • Enjoyable & relaxing spa experience • Now doing Eyelash Volume & Extensions Receive $5 OFF Any Purchase of $50 or More! With this coupon only. One coupon/customer. Exp. July 31, 2024 Get Ready For The 4th of July With Hot New Nails!
For Advertising Information Call 813-910-2575 • Wesley Chapel Neighborhood News • Volume 32, Issue 12 • June 11, 2024 • NeighborhoodNewsOnline.net 13 Neighborhood News @NTWCNews Summer
Dr. Rosh’s office will now be offering Esthetician Services. Meet Taylor @trumbeautii @doctorrosh oscli Services offered: • Hydrafacial • Dermaplaning • Chemical Peels Book now and get: 10% off skin care Free Dermaplane and Diamond Tip Upgrade with any facial YOU GLOW DIFFERENTLY WHEN YOU’RE HAPPY Schedule a consult today and experience the difference for yourself. 24420 State Road 54, Lutz 2007 W. Swann Ave, Tampa www.doctorrosh.com (813) 303-0123
SPECIAL

Daybreak Market At Wiregrass To Be The Largest Gas Station In Wesley Chapel?

On the SE corner of S.R. 56 at Heuland Pond Blvd., something is coming that many of us haven’t seen in this area or may not be familiar with at all — Daybreak Market at Wiregrass which will sell “76®” branded gasoline.

Daybreak Market (see map) is a new convenience store concept where some of the things the company touts include $0.99 any-sized coffee or fountain drinks (with even lower Grand Opening prices), a beer cave called “The Ice Box” and indoor/ outdoor seating and tables for food time, plus fully digital touch screen fuel pumps.

According to the company’s social media page, Daybreak Market opened three new locations in Florida just last year and there are nine locations in Florida, including three in Port Charlotte. The closest one to our area was just opened this year at the corner of S.R. 54 at South Branch Blvd. (near the Suncoast Pkwy.) in Odessa, where oddly, the pumps and store face away from the main road.

The 1.73-acre corner parcel in Wesley Chapel has most of its major vertical construction already completed, as the reinforced concrete fuel pad area, canopy supports and convenience store building have all taken shape. The store will be just under 5,000 sq. ft. but there will be

a lot more pumps/fueling positions than at any other gas station in our area, which according to the plans we reviewed and our visit to the site, appears to be up to 24 regular fueling positions (gas nozzles).

If that number is correct, Daybreak Market & Fuel will easily be the biggest gas station in Wesley Chapel, as even the RaceTrac down the street and Costco near the Tampa Premium Outlets each only have 18 fueling positions total, and it would be double Sam’s Club’s 12.

Originally, there was a Circle K that was going to be on the other side of Heuland Pond Blvd. (between S.R. 56 and Sand Dune Rd.) years ago, but the permits for that project expired at the end of 2017.

Instead, Daybreak Market Wiregrass will be just the second gas station in the Wiregrass Ranch development, as the 7-Eleven at the intersection of Mansfield Blvd. and Wiregrass School Rd., which opened last year, was the first.

And now, there’s a new medical office building under construction in the previously planned Circle K location by Florida Cancer Specialists & Research Institute (labeled as FCS on map). See page 16 for that story.

For more information about Daybreak Market, visit DaybreakMarketandFuel.com.

Neighborhood News @NTWCNews For Advertising Information Call 813-910-2575 • Wesley Chapel Neighborhood News • Volume 32, Issue 12 • June 11 , 2024 • NeighborhoodNewsOnline.net 14
WIREGRASS RANCH FCS
For Advertising Information Call 813-910-2575 • Wesley Chapel Neighborhood News • Volume 32, Issue 12 • June 11, 2024 • NeighborhoodNewsOnline.net 15 Neighborhood News @NTWCNews

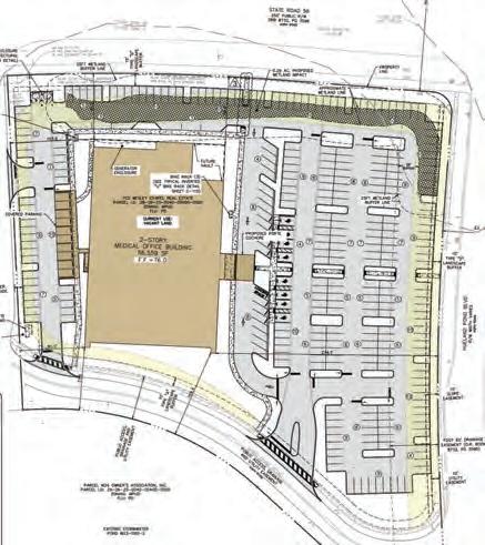
Florida Cancer Specialists & Research Institute Getting Closer To Completion

Across from the Daybreak Market & Fuel gas station project (see story on pg. 14), on the SW corner of S.R. 56 and Heuland Pond Blvd. (north of Sand Dune Rd.), next to Beach House Assisted Living & Memory Care, is a two-story, 56,559sq.-ft. medical office building being constructed by Florida Cancer Specialists & Research Institute (FCS). This building will add yet another medical specialty space to Wesley Chapel, and specifically to the Wiregrass Ranch development.

This project has been a few years in the making. The meeting with the county for this site first took place in 2021, with permits being started in 2022 and an official ground breaking with the North Tampa Bay Chamber of Commerce (NTBC) in September of that year.

But now, this 6.13-acre site, which appraised at more than $2 million, is looking well under way (see photo on this page), with most of the vertical exterior walls in place and the site fully buzzing with construction crews. And, based on the story we ran in early Oct. 2022, FCS plans to occupy 45,000 sq. ft. of the two-story building, which will make it larger than the 28,000 sq. ft. of space dedicated to the Moffitt Cancer Center at AdventHealth Wesley Chapel, which

opened in May 2021. The remaining space in the Medical Center at

Ranch is for lease.

FCS originally came to Wesley Chapel in 2019 — to a small building in the Cypress Glen Professional Park (off

where

quickly earned a good reputation from its patients for the staff’s compassion and respect.

Florida Cancer Specialists isn’t new to the game either, as the company has been operating for 40 years and has 100+ locations.

According to its website, FLCancer. org, “Florida Cancer Specialists & Research Institute has a national reputation for excellence in oncology, hematology and cancer research. With over 250 physicians and

Neighborhood News @NTWCNews For Advertising Information Call 813-910-2575 • Wesley Chapel Neighborhood News • Volume 32, Issue 12 • June 11 , 2024 • NeighborhoodNewsOnline.net 16
Wiregrass Cypress Ridge Blvd., north of S.R. 56) — the group Louis Cerillo, DDSKim Tran-Nguyen, DMD General Dentists At least the exterior construction of the new Florida Cancer Specialists & Research Institute building on the south side of S.R. 56 (at Hueland Pond Blvd.) appears to be nearing completion. The building is expected to open to patients later this year. (Photo by Joel Provenzano)

nearly 100 locations, we are committed to providing Wesley Chapel and Pasco County with world-class cancer care close to home.”

The website also says that, the new building, “will include 27 patient exam rooms, 69 infusion treatment chairs, as well as an onsite laboratory, pharmacy, PET/ CT imaging and radiation oncology services. Patients will also have opportunities to participate in clinical trials research as well as care management services.”

Although we did not receive confirmation of all of this information in time for this article, the FCS website also states that, “Board-certified medical oncologists Ayman Barakat, MD, Uday Dandamundi, MD, Eva Gupta, MD, Richard McDonough, MD, Shilen Patel, MD, and Ramya Pinnamaneni, MD, will provide care to patients at the new Wesley Chapel clinic.”

The site map for the Florida Cancer Specialists building. (Source: Pasco County)

At our press time, we did not know the

ASK US ABOUT HEALTH INSURANCE!

• MEDICARE & YOUR OPTIONS

expected opening date of the building, but we believe it will be sometime later this year.

• ACA/OBAMACARE (813) 360-1884 www.bleuskysinsurance.com

APEX

Internal

Medicine

of Tampa

Accepting:

The Office of Mukesh Satodiya, M.D. A local Internal Medicine Physician with more than 15 Years of Clinical Experience, Including Geriatric Care Services We Provide & Conditions We Treat: APEX Internal Medicine of Tampa 10353 Cross Creek Blvd., Suite D | New Tampa, FL 33647 www.ApexImt.com

To make an appointment, call 813.725.4983 OPEN HOURS: Mon-Fri, 8 am -5 pm; EVENING Appointments available on selected days • Annual Physical Exams

Lisa Moore, Director of Sales 813.591.6907 lisa.moore2@hilton.com Our hotel, located in the heart of Wesley Chapel, features 3,600 sq. ft. of Event Space, offering an elegant backdrop for your next event:

• Sweet Sixteens • Corporate Meetings

-Wesley Chapel

For Advertising Information Call 813-910-2575 • Wesley Chapel Neighborhood News • Volume 32, Issue 12 • June 11, 2024 • NeighborhoodNewsOnline.net 17 Neighborhood News @NTWCNews
• Wellness Care for Medicare Patients
Diabetes Care • High Blood Pressure
High Cholesterol
Thyroid Disorders
Asthma/COPD
Medical Weight Loss
HILTON
26640 Silver Maple Parkway, Wesley Chapel, FL 33544
I-75 at Exit 275 State Road 56)
Enjoy the convenience of our on-site catering, flexible layouts
room blocks for your guests. • Ballroom
GARDEN INN TAMPA-WESLEY CHAPEL
(Off
Tampa
Contact
&
& Boardroom
Pre-Function Area
Perfect for Wedding Ceremonies
Wedding Receptions
Birthday Parties
Family Reunions
Quinçeañeras

Orlando Health Wiregrass Ranch Hospital Begins Vertical Construction

The Florida “state bird,” also known as the “tall construction crane” (photo) has been seen making its home at the corner of S.R. 56 and Mansfield/Wiregrass Ranch Blvd., as the foundation of the third hospital to be located in Wesley Chapel — Orlando Health Wiregrass Ranch Hospital — has now begun vertical construction.

The 46.78-acre parcel, appraised at more than $9 million (at the northeast corner of the traffic signal), has seen activity for a while now, ever since the sign was put up announcing the hospital’s pending construction back in April of 2023. A little over a year later, the vertical components of the building are beginning to take shape.

For large sites, such as a new hospital (and its two affiliated medical office buildings) now under construction, it typically takes a while to start seeing progress, as the land clearing, brine fill dirt, grading, drainage and underground utilities typically take up a significant amount of time. But now, the poured concrete foundational columns and the hospital’s elevator & stair shafts, of at least part of the first floor, are visible at the site. Orlando Health Wiregrass Ranch, which is expected to open sometime in 2026, will be constructed in multiple phases — the initial main building will be built first and then, the “Future Phase 2” for the areas to each side of the main building. There’s also an area in the rear part of the main building where the hospital can

be expanded in the future. Ultimate buildout would bring it to around 300 beds total, which will make it the largest of the three hospitals in Wesley Chapel. The hospital’s parking lot will flank both S.R. 56 and Wiregrass Ranch Blvd. The natural wetland towards the rear of the property will remain untouched.

In April of this year, Orlando Health filed additional plans for two standalone medical office buildings — one that will be 90,000 sq. ft. (called “MOB 1”) and the other 60,000 sq. ft. (“MOB 2”), with additional parking in part of the “Future Phase 2” area along Wiregrass Ranch Blvd. (east of the main building).

The vertical construction of the hospital comes on the heels of the announcement in Aug. 2023 that Florida Medical Clinic — with 55 locations and 350 medical providers in 40 disciplines — had merged with/been purchased by Orlando Health and has been rebranded as “Florida Medical Clinic - Orlando Health.”

The new hospital joins Advent Health Wesley Chapel and BayCare Hospital Wesley Chapel, which are only 2.5 and 4 miles away, respectively. From a real estate perspective, the trio of local hospitals, plus the planned Johns Hopkins All Childrens Hospital (located off I-75 at Overpass Rd.), and the establishment of two locations for treating cancer

patients — Moffitt Cancer Center at the Advent Health site and Florida Cancer Specialists (see story on pg. 16) — has made the Wesley Chapel area a hub for nearby medical care. This already has put Wesley Chapel on the map and will continue to bring everyone from young families to aging retirees to our area for that convenience.

Neighborhood News @NTWCNews For Advertising Information Call 813-910-2575 • Wesley Chapel Neighborhood News • Volume 32, Issue 12 • June 11 , 2024 • NeighborhoodNewsOnline.net 18
Michael Butash Former State Prosecutor 27+ years of experience Auto Accidents • Personal Injury • DUI Criminal Defense • Family Law 23554 S.R. 54, Lutz | 813-341-2232 | ButashLawGroup.com Butash Law Group SR 54 LIVINGSTON RD.
GENERAL CONTRACTING LIC. #CGC1518744 The Trinity Tradition Expands Into a 2nd Location In Wesley Chapel! FLOORING KITCHENS BATHROOMS SPECIALIZING IN: Vinyl Plank • Hardwood • Tile Baseboards • Stairs • Backsplashes Now with two convenient locations to serve you better! 1285 Bruce B Downs Blvd., Wesley Chapel 33544 | 813.461.8686 2932 Little Rd., Trinity 34655 | 727.264.7279 GiovanniFlooring@hotmail.com GiovanniFlooringLLC.com Check us out on Facebook & Google FREE Real Estate Book! A must-read book before you even think about selling your home. Get your FREE digital copy instantly online. Printed Published Book available by mail order for $19.99 Steven Kessel, Realtor® with Future Home Realty, Inc. Call me at (781) 246-1234 Or, visit StevenKesselRealtor.com HSISbook.com
Photo by Joel Provenzano

Bainbridge Wesley Chapel Apartments Begin Construction On S.R. 56

Although we understand how many local residents feel about additional apartments coming to Wesley Chapel, here is news about yet another new rental community now under construction in our area. Located on the south side of S.R. 56, just east of the entrance for the new Wesley Chapel community of Woodcreek (see map), is a 19.81-acre site, with an appraised land value of more than $11 million, is currently being filled with dirt and graded by an army of bulldozers (photo). The site is being prepared for the Bainbridge Wesley Chapel apartment project, which will be bordered on the west side by the Wyndfields Blvd. extension that also is currently under construction.

Bainbridge — which is being developed by PCCP, LLC, and the Bainbridge Companies, LLC — will be one of the largest apartment complexes in Wesley Chapel, as it is planned to be a “Class A” community comprised of six four-story buildings (with elevators) and a total of 411 units, consisting of 145 one-bedroom units (with 820 sq. ft. of living area), 202 two-bedroom units (1,237 sq. ft. each) and 64 three-bedroom units (1,470 sq. ft.).

Unique to this particular apartment complex are the number of garages, many more than what most apartment communities offer. Bainbridge will feature both at-

tached and detached garage spaces, 160 total, in addition to 536 regular parking spaces. Of those garage spaces, 32 will actually be tandem (2-car garage) spaces, something not normally seen even in townhome communities, much less apartments.

The project’s website states that, “The units will offer residents high-end interior finishes, including stone countertops in the kitchen areas, stainless steel appliances, inunit washers & dryers, shaker cabinets, ninefoot ceilings, oversized walk-in-closets, smart thermostats, keyless entry and vinyl plank flooring. On-site amenities will include an expansive clubhouse with indoor/outdoor club rooms with social areas, TVs and fire pits, as well as a resort-style pool with a sun deck and grilling areas, a fitness center, onsite storage spaces and a dog park.”

According to the plans, a new right-in/ right-out driveway with a right turn lane will be provided off S.R. 56 as the community’s primary entrance. A secondary entrance to Wyndfields Blvd. also will be constructed so vehicles will have an option to exit there, directly to the future traffic signal for Wyndfields Blvd. at SR 56.

Bainbridge Companies has developed more than 60 apartment communities in five states, including 50 in Florida, with Bainbridge at Sunlake being the closest to us.

For more information, visit BainbridgeWesleyChapelApts.com.

Neighborhood News @NTWCNews For Advertising Information Call 813-910-2575 • Wesley Chapel Neighborhood News • Volume 32, Issue 12 • June 11 , 2024 • NeighborhoodNewsOnline.net 20
20304 Trout Creek Dr., New Tampa 813.973.2400 @PlatinumSalonTampa @PlatinumHairSalonTampa • Color Services • Color Correction • Highlights & Lowlights • Bayalage/Ombre • Deep Conditioning Treatments • Keratin Complex • Brazilian Blowouts • Extensions • Hair Botox Treatment • Haircuts & Styles for Women, Men & Children • Complimentary Consultations & More! NORTHTAMPA BAY CHAMBER Immediate Past Chairman New Customer Special: FREEDeepConditioning Treatment (Up to a $45 value!) WITH ANY SERVICE! First-time customers only. Not to be combined w/other offers. Expires 6/30/24. Visit New Tampa’s most upscale, elegant Salon! Member, Rotary Satellite Club of New Tampa After Hours
For Advertising Information Call 813-910-2575 • Wesley Chapel Neighborhood News • Volume 32, Issue 12 • June 11, 2024 • NeighborhoodNewsOnline.net 21 Neighborhood News @NTWCNews Bella Nails & Spa Wesley Chapel 1700 Bruce B. Downs Blvd. 813.578.7878 Thanks To Our Many Years Of Success In Lutz, We Are Now Proud To Have Opened The Biggest, Most Luxurious & Newest Nail Spa In Wesley Chapel!
than 2,000 colors to chose from!
pedicure chairs!
only use the finest quality products on the market!
offering IV spa services! Tuesday Special 10% OFF ALL Pedicures Wednesday Special 10% OFF ALL services for 1st Responders (with ID) Offers Expire June 30, 2024
•More
•State-of-the-art
•We
•Also

New Tampa Community Gives Blood In Memory Of Gabe Hassan

A little more than three months after he passed away from leukemia caused by a rare ailment he had from birth called ShwachmanDiamond Syndrome (or SDS), the family of Wharton High graduate Gabriel “Gabe” Hassan held a community blood drive on what would have been Gabe’s 18th birthday — May 10 — at the Islamic Society of New Tampa’s Masjid Daarusalam on Morris Bridge Rd., just north of Cross Creek Blvd.

There were three OneBlood Big Red Bus Bloodmobiles on hand (photo) at the blood drive, which began a few hours before the regular services at the New Tampa Mosque.

Dozens of Muslim worshipers, plus members of Gabe’s Boy Scout Troop 148 and fellow Wharton students, as well as District 7 Tampa City Council member Luis Viera and District 67 State Rep. (and House Minority Leader) Fentrice Driskell donated blood in Gabe’s honor and memory on his birthday.

Gabe’s mom Lily Carolyn (bottom left photo) and dad, Mahmoud (center photo), were among the 65 people who donated blood on their son’s birthday. Lily Carolyn, who shared her private writings about Gabe and his favorite things with us (see page 23), said it was the first time she had ever donated blood.

Neighborhood News @NTWCNews For Advertising Information Call 813-910-2575 • Wesley Chapel Neighborhood News • Volume 32, Issue 12 • June 11 , 2024 • NeighborhoodNewsOnline.net 22 Tech Support and Cybersecurity For Businesses Maximize Your Productivity And Minimize Your Risk Why Choose Us? √ Quick Response Time √ 24/7 Monitoring √ Proactive Protection √ Enhanced Productivity √ Peace of Mind √ Compliance Experts √ Entirely Local, US-Based Team √ Flat Rate Billing Core Services √ Tech Support and Security √ Risk Assessments √ Ransomware Protection √ Employee Training √ Data Backup and Recovery √ Threat Detection and Response √ Strategy and Consulting √ Fully Managed or Co-Managed IT Contact us today for a complimentary consultation. (813) 513-9849 www.mytampait.com Dozens Of Units Of Blood Were Donated To Honor The Wharton Grad Who Died From A Rare Form Of Leukemia
Photos by Charmaine George

Lily Carolyn said she was appreciative of all of the support the blood drive received.

“It’s been really difficult with the loss of Gabe,” she told me. “He was the little guy that knew how to light up the room.”

She noted that the Wharton High PTSA also previously held its own OneBlood drive, where 40 units were donated.

“My wish for his birthday was to equal or best (that amount),” Lily Carolyn said. “God is great. We beat it by 25 units.” She also noted that the 65 units of blood collected could help save 195 adults or 390 babies.

“I also ordered 18 mini red velvet bundt cakes from Nothing Bundt Cakes for those who came early to the blood drive to celebrate Gabe’s birthday. It was his favorite.”

Speaking Of Favorites...

Since the day he passed, Lily Carolyn has been making entries in a journal to keep the memory of Gabe alive. “This journal has all your loves and dislikes,” she wrote. “You were supposed to bury me. You were becoming the young man your daddy and I were starting to see. You wanted to go to USF and go into the field of biomedical engineering and help daddy with billing on the side.”

The next several pages are filled with Gabe’s loves and dislikes, including:

Favorite Foods — Pad Thai noodles, sweet sticky rice, sushi and poké bowls (especially from Bonefish), Ford’s Garage mushroom burger w/onion rings, calzones from Anthony’s NY Pizza, Panera tomato soup, Cinnamon Toast Crunch, Chick-fil-A spicy

chicken sandwich, cinnamon bun w/vanilla glaze, Mom’s pancet w/mushrooms, Star Wars edge of the galaxy green shakes from Luke’s aunt...and many more.

Favorite Movie He Can Watch Over & Over Again — “Mario Bros. 2023”

Something He Has Done With The Hassan Family That He Will Never Do Again — Scuba diving

Other Favorites — Hanging with family & friends, eating at restaurants, hanging with his birds (Georgio, or “Gremlin,” Sim Sim & Flappy), going to Best Buy and going to movies with Popa Greg. He loved the Boy Scouts and hanging with his fellow Scouts, helping with service projects, food pantry/distribution... Gabe loved learning and was curious of the world. He loved life & his family.

Least Liked Merit Badge He Completed — Fishing, “Which is funny, as he loves eating fish. He just didn’t like the process of gutting & cleaning it out.”

Lily Carolyn also shared that SDS, which ultimately caused Gabe’s leukemia, afflicts only one person in 80,000. It also stunts normal growth as its victims age, “Even before he died, Gabe was only 4’-10” tall, shorter than his sister Sophia (Gabe called her ‘Soph Soph’), who is 5’-4” at only 12 years old.”

She also noted that in the photo at right she sent me, Gabe and Sophia volunteered at Ronald McDonald House, “Not knowing we were going to be on the other side...the recipients. We taught them young the important value of giving back to the community.”

Thank you for this info, Lily Carolyn.

For Advertising Information Call 813-910-2575 • Wesley Chapel Neighborhood News • Volume 32, Issue 12 • June 11, 2024 • NeighborhoodNewsOnline.net 23 Neighborhood News @NTWCNews
Redeem this ad for one FREE week of workouts at our beautiful new facility! New Clients only. Offer expires 6/30/2024. Now Offering Student Athletic Training For Summer! June 3rd-August 2nd • Two training options are available: Sport-Specific & Basic Training for Student Athletes Whether you’re training for football, volleyball or any other sport, I Can Help! 118 Flagship Dr. Lutz, FL 33549 For appointments & more information, call Andrea at 813.860.7709 or visit HealthyStepsandFitness.com
(Left) The first page of the journal Lily Carolyn Hassan has been keeping in memory of Gabe and his favorite things. (Center, l.-r.) Sophia, Mahmoud & Lily Carolyn, with Gabe’s Boy Scout uniform at the OneBlood drive on May 10. (Photos by Charmaine George) (Right) Gabe & “Soph-Soph” (Photo provided by Lily Carolyn)

Upcoming Events — Fireworks For the 4th& More!

Wednesday, June 19, 9 a.m.-10:30

a.m. — Coffee Social at the Sara Vande Berg (SVB) Tennis & Wellness Center (6585 Simons Rd., Zephyrhills), hosted by SVB’s Che Sara restaurant. Free coffee, networking & light bites.

Friday, June 28, 4 p.m.-6 p.m. — NTBC’s “Final Friday” at Main Event (2839 Creek Grass Way, Lutz). Free networking event open to the public. Complimentary appetizers will be served.

Friday, June 28, 7 p.m.-11 p.m. — R&B Only Night at The KRATE at The Grove Container Park. Featuring a live DJ spinning rhythm & blues music, hosted by Jazz Tyme Productions at the KRATE entertainment stage (5817 Wesley Grove Blvd.).

Saturday, June 29, 5 p.m.-???

Avalon Park Wesley Chapel off S.R. 54 will again host the only professional 4th of July fireworks show in Wesley Chapel. (File photo: Captured by Arlene)

— One-Year Anniversary Party for Azteca D’Oro. Our readers’ 2023 Favorite Mexican Restaurant in New Tampa & Wesley Chapel celebrates its one-year anniversary with a music performance by DJ RicoSmooth at Azteca’s outside bar. This free event also will feature drink specials & giveaways.

Saturday, June 29, 7 p.m.-11 p.m. — Jazz Night at The KRATE at The Grove Container Park. Featuring live jazz performances, hosted by Jazz Tyme Productions at the KRATE entertainment stage (5817 Wesley Grove Blvd.).

Thursday, July 4, 5 p.m.-9 p.m. — 4th of July Celebration. At Avalon Park Wesley Chapel (4424 Friendly Way., off S.R. 54). Featuring a patriotic bake-off, bike parade (the deadline to register your child and their bike for the parade is July 3), bounce houses, food trucks, community performances & vendors,Wesley Chapel’s only professional fireworks show for the 4th is open to the public and is free to attend. For registration & more info, visit AvalonParkWesleyChapel.com.

UPCOMING EVENTS

Proposed Wesley Chapel Elks Lodge Presents: Membership Drive

Wednesday, June 19, 2024

Open House - 6pm - 7pm Meeting - 7:15pm - 8:15pm at Vallarta’s Mexican Restaurant, Back Room 5335 Village Market, Wesley Chapel, FL 33543 (Attendees may eat dinner in the room during the Open House and Meeting)

• SUPPORTS ACTIVE-DUTY MILITARY AND VETERANS

• SUPPORTS LOCAL YOUTH, AND MANY LOCAL COMMUNITY PROJECTS

• IS FIRST AMONG NON-GOVT PROVIDERS OF YOUTH SCHOLARSHIPS IN OUR NATION

• HAS 90+ LODGES THROUGHOUT FLORIDA AND NEARLY 2,000 NATIONWIDE

• LOVES TO HAVE A GOOD TIME!

For more information, attend one of our open meetings or call the Membership Chair, Nancy Ellard, at 732-598-7883 or email foodnwine0125@gmail.com

Bring A Friend!

Neighborhood News @NTWCNews For Advertising Information Call 813-910-2575 • Wesley Chapel Neighborhood News • Volume 32, Issue 12 • June 11 , 2024 • NeighborhoodNewsOnline.net 24

Tampa City Ballet’s ‘If I Cry’ Was An Absolute Masterpiece At The Straz!

All photos by

Paula Nuñez, the artistic director of the Tampa City Ballet, which is based at her Tampa City Dance Center (TCDC) in Tampa Palms, says she was “thrilled” with the two performances (May 4-5) of her contemporary ballet “If I Cry” at the Jaeb Theater at the Straz Center for the Performing Arts in down town Tampa.

Nuñez originally co-created (with Elsa Val buena) and had her then-new professional Tampa City Ballet dance troupe perform “If I Cry” back in 2019, but she says the performances at the 312-seat Jaeb Theater the weekend of Cinco de Mayo added many new elements to her original “floor work” dance piece about the life of renowned Mexican artist Frida Kahlo.

“The show keeps evolving,” Nuñez says. “For example, Frida was of course a famous painter, so we added scenes where the dancer playing adult Frida is actually painting and I think the audiences really

chief curator Sharmila Seth reading information about Kahlo’s tragic life, from her contracting polio at the age of six, to the bus crash twelve years later that left her with more than a dozen fractures and her abdomen and uterus being impaled on a large rail, to her on-again, off-again marriage to Mexican muralist Diego Rivera (which ended in divorce the first time because she had an affair with fellow female artist Georgia O’Keeffe), to her three miscarriages to her af fair with Russian communist leader Leon Trotsky to her tragic passing in 1954, at the age of 47. All of these events and more are depicted in “If I Cry,” with four different outstanding dancers portray ing Frida at different ages, including one portraying Frida’s soul. All of the music — hand-curated by Nuñez, included everything from heavy classical pieces (some with violinist Nick Ewing on stage) to jazz pieces by Benny Goodman and Jelly

end in a unique way.” Mission accomplished, Paula! The cast was made up not only of amazing dancers, they also were incredible actors who actually made you feel Frida’s pain with their facial expressions

Neighborhood News @NTWCNews For Advertising Information Call 813-910-2575 • Wesley Chapel Neighborhood News • Volume 32, Issue 12 • June 11 , 2024 • NeighborhoodNewsOnline.net 26
WesleyChapel4Sale.com Discover Wesley Chapel’s Latest Homes for Sale WC4S.com
Nicole Assad (Young Frida) Humberto Rivera Blanco (guest artist, Trotsky) Jayron Perez Cabrera (artist in residence, Death) Aynsleigh Morehouse (Frida Dressed as a Man) Shelby Russ (Frida’s Soul) Amber Rose (Georgia O’Keeffe)

SERVICES PROVIDED IN OUR OFFICE:

•Wellness Dentistry for kids and teens

•Holistic nutritional counseling for teeth and gums

•Ozone therapy for oral care

•Recommendation of non-toxic materials

•Biological gum disinfection

•Sedation dentistry (nitrous oxide)

•Invisalign First for children & Invisalign Teen

•Digital 3D scans, ITERO (no goop)

•Digital x-rays

•Laser dentistry (release of tongue tie for infants, children and teens)

•Relaxed environment, so your children can enjoy their visit

•Se Habla Español

Experience makes a difference; a good heart

For Advertising Information Call 813-910-2575 • Wesley Chapel Neighborhood News • Volume 32, Issue 12 • June 11, 2024 • NeighborhoodNewsOnline.net 27 Neighborhood News @NTWCNews Rocks!
makes it possible!
is why we are the Happy Smile Designers. Inquiries
questions, email us at info@tampahappysmiles.com Or, visit www.tampahappysmiles.com Dr. Marta Rivera Tampa Palms Professional Center 5326 Primrose Lake Circle Tampa, FL 33647 813-374-0388 813.460.4548 BONDED & INSURED • LICENSE #CRC1332119 REMODEL • RESTORE • REPAIR Professional Licensed Contractor Family Owned & Operated For More Than 25 Years! 10% OFF any FULL KITCHEN or BATH REMODEL! (New & existing customers; some restrictions apply) • Kitchen & Bath Remodeling • All Flooring Types • Water Damage Restoration • Call for a FREE Estimate! Now Open! PrimaryCareWesleyChapel.com 2935 PEARSON JAMES PL. (OFF WESLEY CHAPEL BLVD.) LUTZ, FL 33559 813.991.4243 Introducing the Team at The Primary Care of Wesley Chapel! (L.-R.) Patricia Moore, APRN, NP-C ; Scarlette Owens, APRN, FNP-C ; Megan Dudley , APRN, FNP-C ; Irfan Choudhry, OTR
That
or
29

Financial Vision Can Help You Plan For Your Future; Also Looking For Team Members

It’s easy to imagine how emotionally difficult it would be to navigate losing your spouse, but for anyone who has not prepared financially for that scenario, it makes an already terrible situation even worse.

That’s why married couple Nidhi and Arvind Dwivedi say they started their busi ness — which they call Financial Vision — to help clients with estate planning, wills, trusts, as well as life and health insurance.

Nidhi explains that anyone who doesn’t have an estate plan in place could find them selves having to go to probate court, where a judge would decide what accounts they could access, which can take months to resolve.

“There is not only a financial cost,” explains Nidhi, “but also the struggle while someone is already going through the emo tional difficulties of losing their spouse.”

Arvind adds, “Many people do not know about the importance of having a plan and appropriate documents in place for their family.”

That’s where Financial Vision can help. And, in addition to estate planning, Nidhi and Arvind also help clients with financial and retirement planning and saving to pay for college for their kids.

The couple lives in K-Bar Ranch in New Tampa with their children, ages 15 and 9.Both Nidhi and Arvind are information technology (IT) professionals who have long dreamed of owning their own business. They have lived in Tampa since 2007, when they moved here from India.

Nidhi says her husband always hoped to move to the United States, and now they are living their shared dream of being entrepreneurs, with the freedom to both provide for

When they realized the great need for education on financial matters, Nidhi worked to become licensed as a life and health insurance agent through the State of Florida. She often meets with clients, while Arvind works as he support “staff.” They launched their business in May of 2023, so they have been helping clients get their financial matters in order for more than a year now.

Being a licensed life and health insurance agent means Financial Vision has access to many large companies — such as Nationwide, Fidelity and others — that offer products such as life insurance and annuities to help clients

consultation, which can be conveniently held in your home or even online if you prefer.

“During this consultation session,” Nidhi explains, “we delve into crucial topics such as understanding the mechanics of mon-

ey, the significance of financial planning and the essentials of estate planning, including wills, trusts and strategies for avoiding probate. We also provide insights into how taxes and market volatility can impact financial stability, especially during retirement.”

She says she and Arvind believe that financial decisions should be a shared responsibility within the household, so they make it a point to engage both spouses in educational sessions to ensure that both partners are equipped to actively participate in managing their financial affairs.

On the estate planning side, they help people document who will be the guardian of their minor children in case something unfortunate happens, and explain documents such as wills and trusts, living wills and powers of attorney.

Nidhi and Arvind say that the process may prove to be easier than you think, and the idea that you have to have a lawyer prepare these types of documents is a misconception.

They work with an online provider called Net Law, which complements their educational services.

“Don’t procrastinate,” says Arvind. “This is important. I feel passionate about it because we have understood first-hand why you need to have it, and the cost of not having it.”

See “Financial Vision” on pg. 32

Neighborhood News @NTWCNews For Advertising Information Call 813-910-2575 • Wesley Chapel Neighborhood News • Volume 32, Issue 12 • June 11 , 2024 • NeighborhoodNewsOnline.net 30
COMPTON & SMITH, P.A. Todd Smith & Rae Ann Compton Attorneys at Law Former State Prosecutors FAMILY LAW • Divorce • Child Support • Modifications • Custody • Paternity • Custody/Visitation CRIMINAL LAW • Misdemeanor • Felony • DUI PERSONAL INJURY • Auto Accidents New Tampa Professional Park 8905 Regents Park Drive • Suite 210 Tampa, FL 33647-3081 813-994-2026 • Fax: 813-994-6984 office@comptonandsmith.com The hiring of a lawyer is an important decision that should not be based solely on advertisements. Before you decide, ask us to send you free written information about our qualifications and experience.
For Advertising Information Call 813-910-2575 • Wesley Chapel Neighborhood News • Volume 32, Issue 12 • June 11, 2024 • NeighborhoodNewsOnline.net 31 Neighborhood News @NTWCNews

They say that, especially if you have children, estate planning is essential, and Net Law offers a package for families at what Arvind calls an “optimized” cost.

“It’s almost DIY,” he says. “You can do the paperwork at home, take it to a notary, and it’s done. It doesn’t take hours. It takes maybe an hour and it will really help you.”

While Nidhi is licensed in Florida and based in New Tampa, she also is licensed in all 50 states and has helped clients across the country, as well.

Joining The Team!

Now that their business is established, Nidhi and Arvind are looking for partners (photo) to help them expand Financial Vision. If you or someone you know is interested in getting licensed and being trained by Nidhi to learn about financial services and all that they do, they welcome you to contact them.

“You don’t need a financial services background,” Arvind says. “We’ll guide you and explain everything you need to know. This is a part-time opportunity for anyone with a passion for helping people and a willingness to learn...someone who is looking to bring in additional income.”

One business partner they are already working with is a friend who was first a client, Kanchan Mishra.

“We wanted to secure our family with estate planning and have the will and trust done,” says Kanchan, who adds that she has

Kanchan says that she used to think that since she’s not a citizen of the United States, she didn’t need to worry about estate planning, but she has come to learn that anyone who has any property or financial accounts in the U.S. should still have an estate plan.

To contact Financial Vision to set up a free consultation for estate planning, creating a will and trust, planning for rolling over a 401(k) retirement savings account, planning for retirement or your children’s college education, or if you’re looking into options for life insurance — or want to join the Financial Vision team, call (813) 390-1086 or )813) 385-1601. You also can email Nidhi@ financialvision.us, visit the website at FinancialVision.us, or see the ad on page 40.

Neighborhood News @NTWCNews For Advertising Information Call 813-910-2575 • Wesley Chapel Neighborhood News • Volume 32, Issue 12 • June 11 , 2024 • NeighborhoodNewsOnline.net 32
‘Financial Vision’ Continued from pg. 30 Manicures • Pedicures Nail Enhancements Dipping Powder Waxing • Gift Cards 10% OFF ALL Services! Mon-Wed ONLY w/coupon. Cannot be combined w/other offers. Exp. July 31, 2024 A N IL E B IR A O R N This Summer, Your Nails Should Also Be Now Also Offering Eyelash Extensions! 813.536.0161 25682 Sierra Center Blvd. Lutz 33559 (Near Mellow Mushroom) Hours: Mon-Sat, 9:30am-7:30pm • Sun 11am-5pm DR. MICHAEL GREEN GENERAL DENTISTRY [!I 973-1440 COSMETIC DENTISTRY °' °'""'""..,.Loth www.doctormichaelgreen.com NEW TAMPA Located in Seven Oaks 2244 Green Hedges Way # 102 WESLEY CHAPEL NO CHARGE 2ND OPINIONS! records not required New Patient Special New Patient Special (mention coupon) Cleaning exam and x-rays $35.00 (mention coupon) CROWNS $890 I additional lab or Cerec fee porccl:iin 02740 NO exam cost, xray fee or office visit charges Fee may vary complexity of case The pabent or any <Xhef person responsible for �t has a to refuse to pay. canoet payment or be rei�rsed for payment for any other seMOe. examll8!JOO or 1reaunent which is Deffonned as a resm of and � 72 hrs of resoondino to the ad1181tisemenl for free moounled lee or reduced fee seMCe. examnalion ot �t. Mim'llmleeMJAOOdes Ot 110. 00150. 00274. 00230. 02740 FL Lie. #OL12905 EXPIRES JUNE 30, 2024.

Elite Women’s Care — The Newest Addition To The FAST MD Family!

Board-certified gynecologist Holly Ouil lette, M.D., recently opened Elite Women’s Care in Wesley Chapel in the Cypress Ridge Professional Park, located east of I-75 and north of S.R. 56 in Wesley Chapel.

Dr. Ouillette is passionate about help ing women, building relationships with her patients and providing excellent care.

She is the only provider in the Wesley Chapel office of Elite Women’s Care, which also has offices in Spring Hill and Clearwater. Dr. Lauren Juyia and a nurse practitioner see patients at those locations.

The practice is physician-owned by FastMD, a multispecialty group that also owns Florida Advanced Spine & Orthopedics. Dr. Ouillette’s husband, Dr. Ryan Ouillette, is part of that group, as is Dr. Juyia’s husband, Dr. Rushad Juyia.

(L.-r.) Medical assistant

In November, Dr. Ouillette was hired by FastMD to bring Elite Women’s Care to Wesley Chapel. The practice’s new office shares a building with Florida Advanced Spine & Orthopedics (photo on next page).

She says that being the sole provider in the office helps her build trust with her patients.

“When you come in, you will always see me,” Dr. Ouillette explains. “Never a nurse practitioner or a physician’s assistant. It’s always going to be me.”

Elite Women’s Care offers comprehensive and specialized care for women from adolescence to menopause. This includes well-woman exams, family planning (e.g., birth control counseling and intrauterine device, or IUD, placement), plus care for abnormal bleeding, painful periods, ovarian cysts, fibroids, breast concerns and followups for abnormal pap smears.

Dr. Ouillette also treats women experiencing pelvic pain, endometriosis and polyps. She offers menopausal and perimenopausal care, including hormone replacement

therapy, non-hormonal therapy and treating urinary incontinence.

When surgery may be required, she offers minimally invasive and robotic surgery.

Dr. Ouillette is trained in and has previously practiced obstetrics (OB), but her Elite Women’s Care office doesn’t offer obstetrics.

“We see people who are trying to get pregnant and, once you’re six weeks postpartum, you can come right back to seeing us,” Dr. Ouillette says. “We just don’t see you while you’re actually pregnant.”

She explains that with only two doctors

ADVERTISEMENT

in a group covering three geographic areas, it’s not feasible for Elite to provide OB care. Patients who are pregnant are referred to an OB practice during pregnancy.

“The benefits to the patient of going to an office that’s just gynecology is that we won’t have to leave (a GYN appointment) to go do a delivery,” says Dr. Ouillette. “Patients are being seen on time and not having to wait while the doctor is delivering a baby. We also don’t have to hold spots open for OB patients, so it’s easier to get in here.”

She also says that patients currently can get in to see her in the Wesley Chapel office for same-day appointments for acute issues.

About Dr. Ouillette

Dr. Ouillette was introduced to the medical field at a young age because her mom was a nurse.

“I always knew I wanted to be a doctor,” she says. “And, when I did the OB/GYN rotation in medical school, I liked it.”

She says gynecologists develop a special relationship with their patients.

“When someone comes in with a gynecology issue, it’s not something that’s easy to talk about,” she says. “I like making patients feel comfortable.”

While she’s new to the Wesley Chapel area, Dr. Ouillette grew up nearby in Oldsmar. When she was attending East Lake High, her family moved to Michigan, and

Your CBD Store Of New Tampa Keeps Adding New Products!

Located in the Pebble Creek Collection on Bruce B. Downs (BBD) Blvd., Your CBD Store of New Tampa has calming blue-grey walls, greenery throughout the store, comfortable seating and an expansive, open layout. With informational displays and posters, exceptional customer support, and product knowledge, the husbandand-wife team of David Calcador and Debra Curler make you feel immediately at home.

David & Debra opened their Your CBD Store franchise location in November 2019 and it has thrived through the pandemic, thanks to the dedication of these two New Tampa residents. “When customers come in, we ask them what they know about CBD,” Debra says. “Some are well-educated and we walk the others through the store and introduce and educate them about our product line. We find out what their problems are health-wise. Are they in pain? Are they having problems sleeping? Do they need energy? We need to know what is happening in their bodies to help direct them to the proper products.”

Your CBD Store is a holistic boutique providing USDA organic and carcinogen-free oral and topical SunMed CBD products for customers and their pets. At Debra and David’s store, CBD comes in both flavored and flavorless tinctures, oils, pills, gummies, weight-loss products, as well as a skincare line, bath bombs, lotions, massage oils, pain creams and products for dogs and cats.

Unlike marijuana, Your CBD Store offers broad-spectrum CBD products that have zero THC, as well as full-spectrum products with the 0.3 legal limit of THC that contain all cannabinoids (CBD and THC), terpenes, or flavonoids. With anti-inflammatory and other health

effects, flavonoids are plant compounds that give plants their colors and flavors. Flavonoids work with cannabinoids and terpenes, which are naturally occurring compounds in cannabis that shape aroma, taste, colors and therapeutic benefits, to produce the “entourage effect” enhancing their impact. “CBD needs to have terpenes and flavonoids,” David says. “They bond to receptors in your body. Without those, you won’t have the full benefit of CBD.”

have QR codes on everything we sell; you can bring up each product’s lab report. We have referring doctors who send patients to us because they know the quality is there.”

What’s New?

Debra and David says that love educating their customers and clear up misinformation about CBD. Their CBD products won’t get you high, aren’t illegal, won’t make you impaired and you don’t need a Medical Cannabis card to purchase them.

Instead, their products help with anxiety, sleep issues, chronic pain and more.

“Our products are all-natural, organic, and non-addictive, Debra says. “You can buy CBD anywhere — a smoke shop or gas station, even on Amazon — but you don’t want to do that because anything you are putting on your body or in your body, you want to make sure it is good quality. You risk getting a synthetic, damaging product that can harm your health.

David adds, “We’re third-party tested. We

Debra and David are enthusiastic about their store’s newest products, some of which have been enhanced with more CBD, like their SunMed topical cream, which is now available in 4,000-milligram strength, while others are brand new.

“Our topical cream is amazing for isolated pain,” Debra says. “I had a knee replacement years ago, and I had not been able to walk long distances. The product came out in December, and my husband and I were going Christmas shopping, and I could walk the entire mall. It’s been selling off the shelves left and right. We’ve always had 1,000- and 2,000-milligram strengths since we opened, but the 4,000 milligrams is amazing.”

Debra also recommends Neuro, a water-soluble CBD, for pain management. While the store’s original daily oil tincture takes time to work, based on your metabolism and weight, the as-needed, water-soluble Neuro CBD effects are felt more quickly. “You take the dropper of Neuro and put it in a Dixie cup size of water and

drink it,” she says. “It goes into your body within 10 minutes, comes in 900- and 1,800-milligram strengths, and is also in a gummy form. People love it. I have a lady who comes in weekly and buys two jars. It helps with aches and pains throughout the body.”

Your CBD Store of New Tampa also sells both “Above” (with Delta 8 THC) and “Beyond” (with Delta 9 THC) by SunMed, both of which are all-natural (non-synthetic).

As some prescriptions can conflict with CBD, Debra and David suggest that if you are taking medications, you should speak with your physician before starting any CBD regimen.

For pet parents, beyond their regular CBD pet treats, chews and tinctures for health and anxiety, Debra recommends another new product — Broad Spectrum Allergy Aid CBD Pet Chews, which have only been in the store for about a month, to help with “hot spots” and seasonal skin allergies.

Debra and David are proud of their store’s Google reviews, which average a 4.9 stars out of 5, based on 170 reviews.

“If you look at our reviews,” Debra says, “you’ll see people love the products and that they’re changing lives.”

Your CBD Store of New Tampa (19651 BBD Blvd. Suite B-1) is open Mon.-Sat., 10 a.m.-6 p.m., and 1 p.m.– 5 p.m. on Sun. Ages 55 or older can save 20% off their purchases. The store also has a bonus system whereby customers accrue points for discounts and free products. Free local delivery/free shipping are available for orders of $100+. For more info, call (813)994-0599 or visit GetSunMed.com.

Neighborhood News @NTWCNews For Advertising Information Call 813-910-2575 • Wesley Chapel Neighborhood News • Volume 32, Issue 12 • June 11 , 2024 • NeighborhoodNewsOnline.net 34
Emily Peterson, Dr. Holly Ouillette and medical receptionist Yousra Boumansour welcome the New Tampa & Wesley Chapel communities to the new Elite Women’s Care office located just north of S.R. 56 near I-75 in Wesley Chapel. (Photos on these pages by Charmaine George) Your CBD Store of New Tampa in the Pebble Creek Collection now carries full-spectrum water soluble Neuro by SunMed pain management tinctures & gummies.

of Medicine (M.D.) degree at Wayne State University School of Medicine in Detroit in 2012. She then completed residency training at the University of Texas Health Science Center in Houston, where she was named Outstanding Resident Surgeon by the Society of Laparoendoscopic Surgeons. After residency, she received additional training in minimally invasive surgery at The Women’s Hospital of Texas Pelvic Restorative Center, also in Houston.

Dr. Ouillette and her husband then moved back to Detroit, where she spent the last several years teaching residents and taking care of an underserved patient population at Ascension St. John Hospital.

“I always wanted a big family,” she says, and to that end, she and her husband now have four children — ages six, five, three,

ing for the same group, but the more Dr. Ouillette looked at work options, the more appealing working for FastMD seemed.

“With four kids ages six and under, I was trying to find a little slower pace,” she explains. “I would love to still be doing everything I was doing in Michigan — OB, GYN, teaching and academics — but it seemed like it would be too much right now.”

Patient Beverly Stiles says Dr. Ouillette’s extensive experience is apparent. Although she was a patient of Dr. Juyia’s in Brooksville, when Beverly couldn’t be seen in a timely manner, the staff suggested she go see Dr. Ouillette in Wesley Chapel.

“I instantly fell in love with her,” Beverly says. “She’s very professional and her staff is so nice.”

Beverly explains that she had a com-

plicated issue, but Dr. Ouillette researched it both before she saw her, and then again, after that appointment. Beverly says she felt comfortable voicing her concerns and having extensive conversations about treatment options, including changing her mind about surgery when her symptoms changed.

“I could talk with her,” Beverly says of Dr. Ouillette. “She’s very one-on-one. She has tremendous training, expertise and professionalism, and she’s also easy to talk with. That’s what you want in a physician.”

She also describes the Wesley Chapel office as “sparkling clean,” and that the staff’s communication has been excellent and that it’s been easy to get an appointment.

“If you’re looking for a gynecologist,

she’s the one you want to see,” Beverly says.

Dr. Ouillette says she strives to build strong relationships — like the one she has with Beverly — with all of her patients.

“The biggest thing is personalized care,” she says. “You’ll see the same faces every time you come in. You’ll see the same medical assistant (Emily Peterson), who knows all of the patients by name. We strive to know our patients well, so that when you call and ask a question, we know who you are. We take the time to listen to all of our patients’ concerns.”

Elite Women’s Care is located at 2309 Crestover Ln. For more information or to make an appointment, call (352) 345-4456 or visit Elite-WC.com. Or, see the ad on pg. 46 of this issue.

For Advertising Information Call 813-910-2575 • Wesley Chapel Neighborhood News • Volume 32, Issue 12 • June 11, 2024 • NeighborhoodNewsOnline.net 35 Neighborhood News @NTWCNews

Anderson & Chhabra Eye Care Center Is Now Open In Wesley Chapel!

Located in the Red Fern Professional Center off Bruce B. Downs (BBD) Bvd. between S.R. 56 and S.R. 54 is the new second office of Anderson & Chhabra Eye Care Center. The optometrists at Anderson & Chhabra have been helping adults and children in the Tampa area at their original office on W. Fletcher Ave. for more than 40 years and have 70+ years of combined experience.

The newest member of the Anderson & Chhabra team, and the primary optometrist working at the Wesley Chapel office is Aundrea Snyder, O.D. Dr. Snyder earned her Doctor of Optometry (O.D.) degree from the Pennsylvania College of Optometry located at Salus University in Elkins Park, PA, in 2022. She completed her residency in Ocular Disease and Traumatic Brain Injury at the James A. Haley Veterans Hospital in Tampa in 2023. Dr. Snyder provides primary eye care for adults and children ages 5 and older as well as specialty contact lens fittings and help for those with double vision or low vision (or near-blindness).

Although Dr. Snyder is the main doctor working at the Wesley Chapel office, the other doctors based at the Tampa office also will rotate between both offices. Below is an introduction to the other doctors at Anderson & Chhabra Eye Care:

Dr. Bruce Anderson, O.D., F.A.A.O., DIPL, opened his first practice on N. Dale Mabry Hwy. in Tampa in 1983 and was there for 13 years before moving it to the Fletcher Ave. office in December 1996. Dr. Anderson received his O.D. degree from the University of Houston in 1980. He did his residency at the Veterans Administration Hospital in Albuquerque, NM, in 1981. He is a Fellow and Diplomat of the American Academy of Optometry and worked at the Contact Lens and Low Vision Clinics at the University of South Florida College of Medicine in Tampa as their director from 1996 to 2018. Although no longer seeing patients himself, Dr. Anderson is still very much involved with the practice as its mentor and leader.

In 2008, the practice added Neeta Chhabra O.D., M.S., F.A.A.O., F.S.L.S. Dr. Chhabra received her Master of Science (M.S.) degree in Vision Science and completed her O.D. degree,

both from the Ohio State University in Co lumbus in 2006. She also had an ocular disease residency at The Omni Eye Services in Iselin, NJ, in 2007 and her contact lens residency from Nova Southeastern University in Ft. Lauderdale in 2008. Dr. Chhabra is a Fellow of the American Academy of Optometry and the Scleral Lens Society and a Member of the American Academy of Orthokeratology and Myopia Control. She also serves as an assistant professor in the Department of Ophthalmology at the University of South Florida (USF) and sees patients at Anderson & Chhabra as young as age 5.

In 2017, Richard Weisenberger O.D., F.A.A.O., DIPL, joined the group. He earned his O.D. degree from Nova Southeastern University in 2016 and completed a residency in Primary Care and Brain Injury at the Haley Veterans Hospital in Tampa in 2017. Dr. Weisenberger is a Fellow and Diplomat of the American Academy of Optometry and an Associate Professor at USF in the Ophthalmology Department.

No story about Anderson & Chhabra would be complete without mentioning a wonderful man who worked in the practice for more than 20 years — Dr. William O. Malone, Jr. Unfortunately, Dr. Malone passed away in 2022. As someone whose entire family was treated by Dr. Malone, I can tell you that he was a loving and gentle man who was always quick with a joke. He loved his patients and his

patients loved him. He is very much missed by everyone who knew him.

About The Wesley Chapel Office

The Anderson & Chhabra office in Wesley Chapel is available for general eye exams. Dr. Snyder will detect, treat and manage a variety of ocular diseases, such as glaucoma, pink eye, dry eye, infections and much more. Although the offices don’t take infants as patients, Dr. Chhabra specializes in children ages 5 and older.

Dr. Snyder says “The best time to take your child to the optometrist is right before they begin school.” She recommends glasses for children until they are in middle school, when they can transition into contact lenses. She says, “exceptions can be made for younger children who want contacts earlier and can wear them responsibly; as well as for those who are involved in sports.”

Two specialty services that are offered by the Anderson & Chhabra office that you don’t always find in other optometric offices are specialty contact lens fittings and working with patients with low vision.

Dr. Snyder says that “contact lenses are available in a variety of shapes and sizes. There are lenses you can wear daily, weekly, monthly and then you have the previously dreaded original hard contact lenses”. “These days,” says Dr. Snyder, “the difference between hard and soft

contact lenses is the vision clarity. The clarity you get with the hard contact lenses will never compare with the soft.” She adds that there are many people who will be able to see better with hard lenses especially those suffering from myopia or astigmatism.

“Hard contact lenses have gotten more comfortable,” she explains. “One of the ways they have changed is the way they are made. Today’s hard lenses are more breathable, come in different sizes and stay in the eye”. In the past, hard lenses would float on the eye and the slightest movement or touch could make the lens fall out. This is not the case anymore. Now, says Dr. Snyder, “hard lenses stay in place and are made so they don’t touch the cornea, which also makes them more comfortable — and cause fewer problems.”

Dr. Snyder also says that “hard contacts are primarily used when someone has a high prescription, a deformed cornea, or when soft contacts cannot be used”. “Hard contacts are very effective in helping patients with extreme myopia (nearsightedness).”

The practice offers services for people with low vision which is a visual impairment that makes it difficult to function on a daily basis. It can affect the sharpness of vision or the visual field. The World Health Organization defines low vision as “visual acuity between 20/400 and 20/70 or a visual field of 20 degrees or less. Dr. Snyder says that when treating patients with low vision, the Anderson & Chhabra offices work with a few organizations, including the Florida Division of Blind Services, which has the following Mission Statement: “To ensure blind and visually-impaired Floridians have the tools, support and opportunity to achieve success.”

Working With Lighthouse

The Anderson & Chhabra offices also work with Lighthouse for the Blind & Low Vision, which offers training programs designed to help anyone who has recently lost part or all of their vision to gain the skills they need to perform daily living tasks.

Dr. Snyder says that children who are blind or visually impaired need the proper tools and training to succeed in life. Lighthouse will help blind and near-blind infants and young children get prepared for school, and help teens get ready for college, the workforce and independent living after graduation.

Neighborhood News @NTWCNews For Advertising Information Call 813-910-2575 • Wesley Chapel Neighborhood News • Volume 32, Issue 12 • June 11 , 2024 • NeighborhoodNewsOnline.net 36

is almost like a projector and captures the image for the visually impaired. The image can then be zoomed in on and offer contrast changes, depending upon the user’s needs.

Dr. Snyder says most of these digital magnifying devices unfortunately are not covered by insurance but that’s where Lighthouse steps in to help.

Speaking of insurance, both Anderson & Chhabra offices accept Vision Service Plans (VSPs), EyeMed insurance and Medicare. They also accept most regular medical insurance plans as well, but regular optometric office visits are not usually covered by medical insurance, which comes into play if a lab test that is not covered by vision insurance is needed.

The new Anderson & Chhabra office also has a full optical area (above), where you’ll find brands such as Burberry, Tory Burch, Gucci, Ray-Ban, Kate Spade, DKNY, Michael Kors,

currently at the Wesley Chapel office is a bit smaller than at the Tampa location.

At this time, the Wesley Chapel office is accepting appointments on Mondays, Tuesdays and Fridays only.

Anderson & Chhabra Eye Care’s Wesley Chapel office is located at 3822 Turman Loop. The Tampa office is located at 719 W. Fletcher Ave. For more information or to make appointments at either office, call (813) 961-2020, visit AndersonEyeCareCenter.com or see the ad on pg. 41.

For Advertising Information Call 813-910-2575 • Wesley Chapel Neighborhood News • Volume 32, Issue 12 • June 11, 2024 • NeighborhoodNewsOnline.net 37 Neighborhood News @NTWCNews

Just Turning 65 & Confused By Medicare? Insurance Opportunities Can Help!

Shaun Fagan has been a licensed insurance agent since 1986, growing his business in the Kansas City area, and specializing in helping people ages 65 and older navigate the ins and outs of Medicare.

In 2022, after Shaun’s wife Mary retired from Verizon after a 37-year career, the couple moved to Wesley Chapel.

He says that at one point in his career, he had 500 agents working under him. But, these days, he’s looking for a simpler way of life.

Now it’s just Shaun and Mary, but he still helps people navigate the complexities of government-provided health insurance through Medicare.

“There is a lot of confusion about Medicare,” Shaun says. “I give people clarity to make their choices easier.”

This is especially needed for people who are turning 65, which is typically when they become eligible for Medicare. Shawn can make all of the choices available to you simpler to understand.

“The government doesn’t make it easy, that’s for sure,” he says.

Many people in their early 60s wonder if they should retire or keep working to stay on their company heath insurance plan, or stay on their spouse’s health insurance plan.

“When people get to that crossroads, sometimes they kind of hang in work because they think that’s the cheaper way to go,” Shaun explains. “But sometimes, they can get better care at a better price, or equal coverage at a lower cost and have that opportunity to retire.”

He says if you’re nearing age 65, the time to talk with him is about three to four months before your birthday so you have time to learn about your options, decide what you want to do and start the enrollment process.

He says he also helps many people who are in a transition period, like if they have retired before age 65.

That’s how Sheri Stephens met Shaun.

“When I retired, I found it very overwhelming,” Sheri says. “I retired at 61, so I have a few years I have to bridge before Medicare.”

“He is so knowledgeable,” she says. “In just educating me and walking me through the different carriers and different benefits, he was able to break it down to a third-grade level, which is where I needed it to be, because there are so many conditions and rules.”

Sheri liked that all of her conversations with him were over the phone or via Zoom if he needed to show her something.

“He was very professional, very knowledgeable, and very easy to deal with.”

Help For Businesses, Too

Shaun also has decades of experience helping small businesses looking for health insurance for their entire company.

“My niche is helping businesses with 20 to 50 employees, where they usually don’t have a human resources person,” he says. “They typically have an office manager but that person isn’t an insurance specialist. That’s where I can really help a business.”

He explains that Insurance Opportunities also can provide medical, dental and vision insurance, but his specialty is Medicare.

also bringing his expertise to locals in Florida.

“We had a large operation before,” he says, “but we whittled it down to make it more simple when we moved here. Now, it’s just my wife — who helps me with customer service and organizing my monthly Medicare educational events — and me, which is the way we

want it. As we get older, simpler is better.”

He says that since Covid, the workplace has changed so that he can work from anywhere, so he and Mary decided they didn’t want to spend another cold winter in Kansas City, which helped them decide to move to Wesley Chapel two years ago.

“The pandemic was the prompter,” he explains. “You can work from anywhere now, so you might as well work from someplace warm.”

They moved into the 55-and-older community of Esplanade in Wesley Chapel.

Shaun is an avid cycler and loves that he never has to check the weather before he heads out to ride his bicycle. Although he says lately, he’s sure to head out around 6:30 a.m. before it gets too hot outside.

He says that because he is a similar age to his clients now, he definitely can relate to the decisions they are facing.

“I’m of that age now,” he says, “so I understand the dilemma and what people are trying to achieve. ‘Will I have enough money to do what I want to do?’ Not only do I have experience from clients. I’m also in it, too.”

And, while he is reaching that age where some people think about retiring, he says he plans to continue working for 12 more years, so clients don’t need to worry that he won’t be available to them if they have questions in the future.

“Medicare is confusing,” he says, “But it doesn’t have to be. In 30 minutes or an hour I’ve helped a lot of people to give them clarity,

Neighborhood News @NTWCNews For Advertising Information Call 813-910-2575 • Wesley Chapel Neighborhood News • Volume 32, Issue 12 • June 11 , 2024 • NeighborhoodNewsOnline.net 38
Still Need to File? We Can Help. Let our decades of experience navigate for you this tax season. 2236 Ashley Oaks Circle, Suite 101 Wesley Chapel, FL 33544 •Individual Returns •Partnership Returns •Corporate Returns •Trust Returns 813-991-1120 www.TampaTaxFirm.com

so they can make a decision about whether or not to do Medicare, or which plan to choose.”

Understanding The Differences

There are four types of Medicare insurance, known as “Parts,” that include Part A through Part D. Part A provides hospital insurance; Part B provides medical insurance; Part C comprises Medicare Advantage Plans; and Part D provides prescription drug coverage.

“Original Medicare” is managed by the federal government, while “Medicare Advantage” plans are managed through private insurance carriers and may offer additional benefits, such as coverage for prescription drugs, dental, vision and wellness.

Shaun can help you determine whether you should enroll in Original Medicare or a Medicare Advantage plan, and he works with many large insurance carriers — such as Simply Blue, Aetna, Humana, United Health Care and others — who offer a variety of options when it comes to out-of-pocket costs, including deductibles, copayments and coinsurance.

Shaun is certified through the Centers for Medicare & Medicaid Services. He says that

some plans vary based on the state you live in, but the plans basically offer the same benefits and he can walk you through the specifics of all of the plans available to you.

“We start with a no-cost, no-obligation meeting, which can be in person or a phone call,” Shaun says.

He’s quick to point out that even if you sign up with him, there’s still no cost to you for his services. Insurance Opportunities doesn’t charge service, consultation or advisor fees — the carrier you sign up with is who pays Shaun.

“There’s no cost to you except the 30 minutes to an hour you spend with me — so just the time,” he says.

Shaun says for clients who want to meet face to face, he’ll come to you. He takes phone calls at all hours and typically meets with clients Monday through Friday, between 8 a.m. and 4 p.m.

To schedule a free consultation with Insurance Opportunities, call Shaun at (816) 305-3337 or visit Calendly.com/shaun-185 to set a time. You also can get more information on the website at InsOppty.com or see the ad on page 53.

For Advertising Information Call 813-910-2575 • Wesley Chapel Neighborhood News • Volume 32, Issue 12 • June 11, 2024 • NeighborhoodNewsOnline.net 39 Neighborhood News @NTWCNews

Nutrition Smart Adds Divine Leaf Vegan For Its Health-Conscious Customers

If you think the Wesley Chapel Nutrition Smart (located on Bruce B. Downs Blvd. just south of S.R. 56) is a store for vitamins and supplements, you’re not wrong.

And, if you think that’s all the popular store carries, you’re not alone.

But, if you’re one of those people who thinks Nutrition Smart is only a place where supplement fanatics stock up, you’re missing out on all that our area’s original “green grocer” has to offer.

“A lot of people come in expecting just vitamins, but they’re impressed by what they see,” says Fausto Soriano, the store’s general manger. “That’s definitely a misconception.”

Nutrition Smart offers fresh, organic produce, natural grocery items and refrigerated and frozen food, from dairy (including raw milk) and eggs to meat, bread and healthy snacks.

Fausto says that many of the store’s customers do all of their grocery shopping in the store, which also includes the largest selection of supplements in the area, plus vitamins, bulk foods, sport nutrition, health and beauty items, pet care, household products and more.

Fausto says it’s not on a huge scale like you would find at a large grocery store, but there is a little bit of everything, and Nutrition Smart offers something other stores don’t.

Fausto adds that the Wesley Chapel location of Nutrition Smart is the number one store in the state of Florida for selling the energy drink Celsius.

“We are known in the area for having a huge Celsius selection,” he says. “We have all the new flavors first, and the biggest variety of flavors, along with one of the most aggressive prices.”

He says he and his staff, including assistant store manager Joe Geier, pay attention to trends in the industry to be sure they know what customers want. When vendors pitch new products to the store, they watch for commonalities. Many customers also read articles and often ask for certain new products or ingredients.

“All of our fresh produce is 100% organic,” Fausto says. While other stores stock both organic and non-organic products that are sold right next to each other, at Nutrition Smart, “Our customers don’t have to worry about buying conventional products by mistake.”

Fausto also says that at his store in particular, many people believe in an “eat first” philosophy where they make healthier food choices now instead of needing supplements later.

Customers seem to like the store’s organic, fresh chicken and grass-fed beef, and get a wide variety of unique products at Nutrition Smart that aren’t available anywhere else. For

example, he says, raw milk from a Florida dairy farm is extremely popular.

“Every Tuesday, we get a fresh delivery of raw milk,” he says. “Customers line up waiting for the milk to arrive.”

The store also is able to offer momand-pop brands from nearby vendors, too, including locally made raw honey.

Local desserts are delivered fresh to the store from Dade City’s Hillbilly Farms Bakery. Tampa’s Sami’s Bakery delivers fresh

breads, wraps, cookies and desserts every Thursday. Both bakeries offer specialty items such as low-carb and gluten- free desserts and bakery items.

Other unique products include a variety of trending supplements, such as those derived from mushrooms and shilajit, a resin from the earth that reportedly can help with hormone balance and other functions. The store also carries a large variety of CBD products.

Joe has been with the company for six years and was previously a vitamin manager. He and Fausto, who has been with Nutrition Smart for 15 years, are among about 24 store employees in the Wesley Chapel location. Definitely not a big chain, Nutrition Smart has just two other locations — in Port St. Lucie and Pembroke Pines.

“Our vitamin staff is super knowledgeable,” says Fausto. “A lot of them have been doing this for 15 or 20 years. They focus on individualized service for each customer’s unique needs. We’re not just trying to sell a product. We want to hear what their needs are and hopefully gain their trust so they’ll come back in the future.”

It’s a service they have been providing for 15 years now, since the Wesley Chapel location of Nutrition Smart opened in 2009.

“We were the first in this area to provide these products,” Fausto says. “We’ve been here since before Wesley Chapel was a destination.”

Introducing: Divine Leaf Vegan

Another hidden gem inside the Wesley Chapel Nutrition Smart is Divine Leaf Vegan, a new café serving freshly-made burgers, sandwiches, salads, cold pressed juices, smoothies and more.

“It’s been awesome to have them,” says Fausto. “There’s not a lot of vegan restaurants or options in our area, so it’s worked out well. I’m not vegan and I buy stuff from there all

Neighborhood News @NTWCNews For Advertising Information Call 813-910-2575 • Wesley Chapel Neighborhood News • Volume 32, Issue 12 • June 11 , 2024 • NeighborhoodNewsOnline.net 40
813.994.6700 | 5827 GRAND ORO LN #105 | WESLEY CHAPEL, FL Sunglass Krate is located in one of the largest container parks in the world that attracts visitors from all over the globe. Check out krateatthegrove.com Sunglass Krate is owned and operated by Jim Lambrou, a Licensed Optician in the state of Florida with over 30 years in the optical industry! His goal is to help you protect your eyes from sun damage. Father’s Day Special! 10% OFF all Sunglasses for the month of June! We can make your Rx sunglasses for you!

(Above, left) If you like freshly-made vegan wrap sandwiches and fresh fruit smoothies, you have to visit the Divine Leaf Vegan counter at the Wesley Chapel

the time. They have a really good ranch sauce they make from scratch, and I buy a full-size bottle because my kids love it. It’s phenomenal.”

vitamins, supplements, CBD and beauty products...and more! (Below) You can’t beat Nutrition Smart’s selection of local, raw honey. that all the produce is organic. Great selection of most items I need on a week-to- week basis.”

Fausto adds that the partnership is great because people who find out about Divine Leaf through its own social media often become Nutrition Smart customers as they discover the store, too.

Making Health More Affordable

Nutrition Smart offers many discounts and coupons, including a 20% -off coupon

in this issue. In addition, active and veteran military members, first responders, nurses and teachers all receive 10 percent off their purchases all day, every day. On Tuesdays, seniors (ages 55 & older) also receive 10 percent off. Shoppers also can sign up for Nutrition Smart’s text club by texting “WESLEY” to (866) 603-3532 for exclusive offers.

Pam T. is a Wesley Chapel Nutrition Smart shopper who recently wrote a review.

“Love this little health food store,” she says.

“It’s my go-to every week. With great rewards and coupons, the prices are not painful. I love

Nutrition Smart is located at 1821 BBD Blvd. It is open Mon day–Saturday, 8 a.m.-9 p.m., and 10 a.m.-7 p.m. on Sunday.

For more information, visit NutritionSmart.com, call the store at (813) 341-4444, or see the ad on page 46 of this issue for the coupon that will get you 20 percent off your purchase.

For Advertising Information Call 813-910-2575 • Wesley Chapel Neighborhood News • Volume 32, Issue 12 • June 11, 2024 • NeighborhoodNewsOnline.net 41 Neighborhood News @NTWCNews
Nutrition Smart, which also (above right) stocks a huge selection of natural

Getting Ready For The 2024 Neighborhood News Reader Dining Survey & Contest!

The List Below Includes 150 Currently Open Restaurants Located Between Oak Grove Blvd. In Lutz & All Three Wesley Chapel Zip Codes! We are planning to start our 2024 Reader Dining Survey & Contest in our next issue, but first, here is the list — that I hope is complete — of all of the sit-down and take-out restaurants located in all three Wesley Chapel zip codes and extending west to Oak Grove Blvd. in Lutz. If you see any that are missing from the list (which also will be posted on our website), please email me at ads@ntneighborhoodnews.com to let me know. Below this main list are additional lists of places that are bars only, coffee or dessert-only places & other food-oriented places that can’t, in all good conscience, be called “restaurants.” — GN

Restaurants (Dine-In/Take-Out)

365 Caffé Italiano

900º New York Pizza

900º Woodfired Pizza

Amici Pizza

Applebee’s

Arepa Mia

Arroy Thai

Asian Buffet

Asian Chao Oriental Eatery

Ato Sushi

Aussie Grill

Azteca D’Oro

Bacon Boss HQ

Bagelicious & More

Bahama Breeze

Bebo’s Cheesesteaks

Beef O’Brady’s

Best NY Pizza

BJ’s Brewhouse & Restaurant

Blaze Pizza

Bluefin Sushi

Blush Wine Room & Champagne Bar

Bonefish Grill

Bonsai Sushi

Bosco’s Italian-to-Go

Brooklyn Water Bagel Co.

Brunchies

Bubba’s 33

Burger King

Burger Monger

Cafe Zorba

Caprese Pizza House

Carrabba’s Italian Grill

Chamo Bites

Charleys Philly Cheesesteaks

Cheddar’s Scratch Kitchen

Bars Only

Brew Bar

Cigars International

Double Branch Brewing

Joe Whiskey’s

The Brass Tap

Coffee (& Pre-Made Food) Only

Bad Ass Coffee

Barnes & Noble Café

Coffee Latitudes

Chicken Salad Chick

Chick-fil-A

Chick’n Fun

Chili’s

Chipotle

China Wok

Chuck E. Cheese’s

Chuck Lager America’s Tavern

Chuy’s Tex-Mex

Cooper’s Hawk Winery & Restaurant

Cracker Barrel

Crazy Sushi

Culver’s

Dairy Queen

Dickey’s Barbecue Pit

Don Pan’s International Bakery

Dummy Crabby

EggTown Breakfast & Lunch

El Pasta & More

El Prince Mediterranean

Falabella Family Bistro

Fazoli’s

Firehouse Subs

First Watch

Five Guys Burgers & Fries

FJ Express

Flipn Fries

Florida Ave. Brewing Co.

Ford’s Garage

Fratelli’s Pizza & Café

Garden Grille (Hilton Garden Inn)

Garden Mediterranean Grill

Glory Days Grill

Gonna China

Green Market Café

Grillsmith

Grove Mini-Golf

Hibachi Express

Provisions Coffee

Raining Berries

Sorbo Coffee

Starbucks

Desserts/Bakeries Only

35 Below Ice Cream

Astro Ice Cream

Bakery X

Bianco Gelato

Coldstone Creamery

Honeybaked Ham

Hot Wok 88

Ho Wok

Jersey Mike’s Subs

La Creacion Xpress

Leonidas Chocolates & Café

Longhorn Steakhouse

Los Vallarta’s

Macondo Coffee Roasters

Mac’s Custom Meats & Deli

Main Event

Mama B’s Pizzeria

Marco’s Pizza

Marquee Suites (B&B Theatres)

McDonald’s

Mellow Mushroom

Miller’s Ale House

MOD Pizza

Moe’s Southwest Grill

Mojo Grill

Moschella’s Italian Eatery & Market

New York New York Pizza

Noble Crust

O’Brien’s Irish Pub

Outback Steak House

Palani’s Hawai’i Noodles

Panda Express

Panera Bread

Papa John’s Pizza

Pasta di Guy

PDQ

Persis Indian Grill

Pinchers Crab Shack

Pisco Express

Pizza Hut

PizzaMania

Poké Lulu

Popeye’s

Crumbl Cookie Dunkin’

Happy Donuts

Ice Dreammm Shop

Le Macaron French Pastries

Menchie’s Frozen Yogurt

Mochinut Donuts

Nothing Bundt Cakes

Paleta Mia

Rocky Mountain Chocolate Factory

Snowie

PopStroke

Red Robin

Rhythm Pon de Grille

Rice N Beans Express

Rice N Beans Puerto Rico

Rock & Brews

Sbarro

Señor Tequila

Shake-A-Salad

Shang Hai

Shuckin’ Shack Oyster Bar

Skybox Rooftop Bar (Residence Inn)

Slim Chickens

Sonny’s BBQ

Subway

Taco Bell

Taco Bus

Taco Son

Tacos el Patron

Tasty Ramen

Texas Roadhouse

The Hungry Greek

The Living Room

The Placery (Hyatt Place Hotel)

Tijuana Flats

Token Ramen & Tea

Tokyo Grill & Sushi

Top Shelf Sports Grille (AH Center Ice)

TrebleMakers Dueling Piano Bar

Umu Japanese & Thai

Waffle House

Walk-On’s Bistreaux & Bar

Winghouse Bar & Grill

Wingstop

Yamato Japanese Steak House

Yummy Tablas

Zaxby’s

Zukku-San Sushi Bar & Restaurant

SubZero Nitrogen Ice Cream

Urban Sweets

Juice/Smoothie Bars & Healthy Foods Only

3 Natives Acai & Juicery

Balanced Foods

Divine Leaf Vegan Fitlife Foods

Green Mango

Tutti Frutti Café

Neighborhood News @NTWCNews For Advertising Information Call 813-910-2575 • Wesley Chapel Neighborhood News • Volume 32, Issue 12 • June 11 , 2024 • NeighborhoodNewsOnline.net 42

Stonewood Grill & Tavern Never Takes Being Our Readers’ Favorite For Granted!

If you ask operating partner Dennis Diaz or executive chef Danny Manzur how Stonewood Grill & Tavern, located for more than 20 years at The Pointe at Tampa Palms, has been named the Favorite Restaurant in New Tampa the last eight years, both will tell you that it’s about “Our commitment to quality.”

Danny has been with the company for almost 24 years and has been at the Tampa Palms location of the eight-unit mini-chain the last ten — he also has served as the executive chef of Stonewood Holdings (the restaurant’s parent company) since 2018, “but that position didn’t become ‘official’ until 2020,” he says, adding that, across the brand, “We have great management, outstanding chefs and employees who buy into the company’s commitment to quality.”

He adds, “Here in New Tampa, I don’t think there’s another restaurant that has consistently been as committed to freshness, quality, having a scratch kitchen and an innovative menu as we have. We always buy the highest-quality meats, fish and produce possible from our vendors. That’s something we’ve never wavered from.”

done well before that we bring back with a different, elevated presentation, since everybody eats with their eyes first.”

Meanwhile, Dennis has only been with the Stonewood for four years, starting as a sous chef at the Tampa Palms location in Feb. of 2020, or just before the Covid-19 pandemic hit, when the restaurant closed for two months beginning on St. Patrick’s Day. He has been the operating partner the last two.

“I am very fortunate to have the staff I do,” Dennis says. “People didn’t know me when I first got here, so I did get some pushback. But, I work shoulder-to-shoulder with our entire staff and our staff and our guests can see that.”

He adds, “It’s all about passion here, from how we train our staff to the quality food we serve, always with beautiful presentation. People know as they are coming into the restaurant that we cook on wood, because of that aroma you can smell every single day.”

Tastes For Every Season

Although all of the dishes shown on these pages are from Stonewood’s “core” menu, Chef Danny actually comes up with unique seasonal dishes that are changed every three months compa ny-wide, with input from the chefs at each location.

“We always want the limited time menu to offer unique dishes,” Danny says, “or dishes we’ve

He gave the example of my favorite Stonewood steak — then hand-cut Manhattan strip, as well as the herb-encrusted grouper. “We changed the presentation on the grouper so it brought the visual, the aroma and the bite to a different level.”

The spring limited menu will continue to be offered until mid-June, when Danny says he will unveil five or six new dishes, including, “a salmon burger, a chicken skewer and a scampi surf & turf.”

One of the former limited menu items that made it onto the core menu is the tasty center-cut,

tom right — one of my new favorites.

Jannah, Charmaine, Charmaine’s boyfriend Brendan and I visited Stonewood two days in a row to take the pictures on these pages and the really cool thing is that most of what we sampled isn’t usually what we order when we visit. For example, Jannah and I almost always share the Stonewood bruschetta (vine ripe tomatoes, basil, garlic, aged parmesan, griddled garlic bread and balsamic dressing) and either the simply grilled fresh catch (the grouper is always excellent) or the 8-oz. filet mignon. My favorite appetizer is the seared ahi tuna (sushi-grade ahi rolled in spices and sesame seeds, seared rare, with mixed greens, wasabi, ginger and a zesty sesame ginger dressing) and my other favorite steak is probably the herb-crusted prime rib. Jannah’s favorite entrée when we’re not sharing is the Southwest chicken bowl (Santa Fe-style chicken breast, turmeric rice,

black bean & corn salsa, pico de gallo, tortilla strips, basil avocado aioli and jalapeños).

But, Dennis had us sampling a variety of other dishes for this visit, including the excellent Asian chicken salad (oak-grilled & chilled, ginger lime-marinated chicken breast, crispy wontons, chilled sesame noodles, fresh mixed greens, sesame ginger dressing & Asian slaw), and the B.L.A.S.T. Stack (hardwood-smoked Bacon strips, field-fresh ettuce, diced Hass Avocado, signature smoked almon and vine-ripened Tomatoes, with lemoninfused olive oil, basil avocado aioli). Both were outstanding with a one-of-a-kind taste.

Stonewood’s authentic French onion soup features a rich beef, onion broth, topped with toasted Holland rusk, finished with melted Swiss, gouda, gruyere and fontina cheeses.

Don’t Forget About Brunch!

Perhaps the best thing about brunch at Stonewood is that it is served on both Saturday and Sunday. Or, maybe it’s the fact that there are special non-brunch items on the brunch menu. Or, maybe it’s because you can create your own bottomless mimosas from the mimosa cart. Or, maybe it’s the Stonewood beignets (flaky, buttery puff pastry topped powder sugar, served with a decadent chocolate and caramel sauce and Julius Meinl espresso dipping sauce). “Our coffee is Julius Meinl premium coffee, too,” Dennis says.

Among the brunch menu items we sampled were the chicken & waffles (super-crispy chicken breast tenders, pearl sugar, Belgian waffles, Four Roses Old Fashion maple syrup, honey butter & choice of side); the prime rib “Benny” (slowroasted, shaved prime rib, poached egg, chipotle hollandaise, griddled garlic bread & choice of side) and the crème brûlée French toast (custard French sourdough toast, Four Roses Old Fashion maple syrup, brûléed banana, fresh berries & choice of side) — and all were so satisfying. Charmaine also loved the shrimp & grits (creamy white cheddar

• Volume 32, Issue 12 • June 11 , 2024 • NeighborhoodNewsOnline.net
Photos

grits, sautéed white shrimp, andouille sausage, red and green bell peppers, Créole beurre blanc & blistered tomato).

We also sampled the tasty steak bowl (garlicmarinated steak tips, flash-seared, crispy seasoned potatoes, fresh arugula, fire roasted red & green bell pepper, caramelized onions, black bean & corn salsa, with a horseradish cream drizzle) and the Nashville hot chicken sandwich (Jannah’s new favorite).

only does Stonewood do on-site catering, “We also

have a private dining room for up to 24 people.”

And of course, Stonewood’s bar also is among the most popular hangouts in New Tampa. “We definitely could use a bigger bar,“ Dennis says. “It’s always packed.”

Stonewood Grill & Tavern (17050 Palm Pointe Dr.) is open every day for dinner & for brunch (opening at 11 a.m.) on Sat. & Sun. only. Happy Hour is every day from opening until 7

For Advertising Information Call 813-910-2575 • Wesley Chapel Neighborhood News • Volume 32, Issue 12 • June 11, 2024 • NeighborhoodNewsOnline.net 45
25700 SIERRA CENTER BLV� ' ASTA0CAAFTIC£CAIAN.CON 0 E, .i!SllOtlAfllCfCIIANWC LOCATED AT KRATE 5816 Goldview Parkway Wesley Chape� FL 33544 t *EXPIRES 7/31/24 ONt COUPON/PERSON MRX DISCOUNT IS S, 75
wood Grill & Tavern in Tampa Palms.

A Familiar Name Opens Upscale Birkin’s Steakhouse In Lutz!

Even though his new place isn’t located in Wesley Chapel or New Tampa, a heartfelt con gratulations goes out to Mark Birkin, the owner of the new Birkin’s Steakhouse & Sushi Bar Florida Ave./U.S. Hwy. 41 in Lutz, in the former location of the once-popular L.A. Hangout couple of other restaurants since then).

Until I saw Mark the day his new steakhouse opened (May 29), I couldn’t remember how I knew his name. But, when we shook hands after Jannah, photographer Charmaine George, her boyfriend Brendan and I enjoyed an outstanding meal at Birkin’s, Mark and I immediately recognized each other. He’s the long-time owner of The Wexford Irish Pub & Grille (previously known as PJ Dolan’s Irish Pub).

But, while his other local restaurants have had pretty good food, if you haven’t yet tried Bir kin’s, you really need to go check it out ASAP.

First of all, L.A. Hangout’s former live en tertainment side is now a beautiful sushi bar with outstanding, beautifully presented, fresh sushi, like the tasty volcano roll shown here (top left photo).

But, the real star of the show is the steakhouse side, serving everything from the fresh, sesame-seed encrusted seared tuna steak (bottom left) to escar gots and a fried lobster bites appetizer (next page).

What really impressed me was Birkin’s 12-oz. filet mignon, grilled to medium rare perfection and, to quote my fellow New Yawkas, “like buttah” tender. No one else even has a 12-oz. filet in our area. Also on the menu are lollipop lamb chops, a tomahawk ribeye and much more. “Steak and sushi are my two favorite things to eat,” Mark says. “I wanted us to serve the best of both worlds.”

side dishes like homemade mac & cheese, sautéed vegetable medley and creamed spinach. Birkin’s also has a full premium liquor bar with great craft cocktails (ask about the exclusive wine lockers, too) and decadent desserts like the cinnamon-y apple

with ice cream

right photo on the

and Bailey’s Irish

at 16411 N. Florida Ave. It is open Wed.-Sun.

Neighborhood News @NTWCNews For Advertising Information Call 813-910-2575 • Wesley Chapel Neighborhood News • Volume 32, Issue 12 • June 11 , 2024 • NeighborhoodNewsOnline.net 46 COME VISIT US! 1821 Bruce B Downs Blvd • Wesley Chapel, FL 33544 813.341.4444 • nutritionsmart.com SAVE 20% OFF YOUR NEXT IN-STORE PURCHASE Some exclusions apply. Not to be combined with other offers or discounts. See store for details. Exp. 6/30/24. • Largest selection of supplements in your neighborhood • First health food store in the area since 2009 • Competitive prices and price-matching • Knowledgeable staff for a personalized experience
crumble (bottom next page) cream cheesecake.
For Advertising Information Call 813-910-2575 • Wesley Chapel Neighborhood News • Volume 32, Issue 12 • June 11, 2024 • NeighborhoodNewsOnline.net 47 Neighborhood News @NTWCNews (next to Publix) 813.388.5353 TheGrillatMorrisBridge.com The Grill at Morris Bridge Sick Of Driving To South Tampa To Find A GREAT RESTAURANT?? Why Haven’t You Tried This Place Before? TheGrillatMorrisBridge.com The Grill at Morris Bridge American Restaurant Is Open! Gouveia, The Grill at Morris Bridge Executive Chef Daniel Friley. bottles starting at $25 around the world, full-liquor bar nights a week Sunday, menu fare! Editor Gary Nager’s 2022-23 Favorite Restaurant In New Tampa!

New Eateries Now Open Or Opening Soon At The KRATEs & More

As you’re receiving this issue, the KRATE at The Grove Container Park will have just finished celebrating its two-year anniversary on June 8, but the lineup of restaurants and shops at the KRATEs continues to evolve.

One of the biggest changes is that The Chicken Boss, the fried chicken concept opened last year by The Bacon Boss HQ owners Josh and Christy Norland, has closed. The Norlands’ announcement on The Chicken Boss’ Facebook page said, however, that “select menu items from The Chicken Boss will find a new home at The Bacon Boss HQ.”

Meanwhile, the Chicken Boss will be replaced at the KRATEs by Indian Street Kitchen, the faster-food concept from owner Harry Patel at Persis Indian Grill, the instant hit that opened earlier this year next to Double Branch Brewing & Bites in the Village at The Grove. “We’ll be serving every type of Indian street food at the new location,” Harry told me. “Come see and taste what we have to offer.” Although he wouldn’t give me any hints as to what the menu will include (“It’s not finished yet,” he said), a quick Google search revealed that samosas, those crispy, delicately spiced potato-filled pastries that are amazing at Persis, are the most popular type of Indian street food. Harry did say that Indian Street Kitchen should be open soon.

Meanwhile, the Sausage King, located in the second space occupied by TJ’s Hot (TJ’s was the original tenant in the Chicken Boss space at the KRATEs), has

closed just a few months after opening and will be replaced by Retro Dogs (photo, below left). Retro Dogs is owned by Seven Oaks residents Gisella Troncozo and Luis Latorre, and their daughter, Gisella Latorre, and will feature a make your own hot dog station, French fries, milkshakes and beer.

The hot dogs at both TJ’s and Sausage King were great, but hopefully, Retro Dogs will hang around a little longer.

Although not located in the KRATEs, Hangry Joe’s Hot Chicken & Wings pected to open in the former location of of the Coop at the front of The Grove, next to Brooklyn Water Bagel Co.

Like King of the Coop, Hangry Joe’s spe cializes in Nashville hot chicken sandwiches (photo, right), plus wings, shakes and waffle fries. With 21 franchise locations (including the nearest to us at 5347 Gall Blvd. in Zephyrhills, photo below), including restaurants in Korea and Dubai, Korean corporate owners Derek Cha and Mike Kim have a simple

And finally, congratulations to new TrebleMakers Dueling Piano Bar & Restaurant (6034 Wesley Grove Blvd.) owner Jason Scott, who recently took over from original owners Jamie and Joe Hess and Lee Bevan.

Jason is an accomplished pianist who both played and booked the dueling pianists at TrebleMakers, is working hard to revamp the service and experience at the restaurant before trying to figure out what changes to make to the menu. He has started with new $8 lunch specials offered Mon.-Sat., 11 a.m.3 p.m. Also, see the ad on pg. 49 (the next page) for a coupon worth $5 off any purchase of $25 or more.

For more info, call (813) 406-4371 or visit TrebleMakersofWC.com. — GN

Neighborhood News @NTWCNews For Advertising Information Call 813-910-2575 • Wesley Chapel Neighborhood News • Volume 32, Issue 12 • June 11 , 2024 • NeighborhoodNewsOnline.net 48
WESLEY CHAPEL
Rotisserie Chicl?en & Peruuian Cuisine Check out New Tampa's Lima Restaurant to find out "Why Lima is the World's Best Food City" - Bloomberg.com, March 2, 2017 • Fresh Fish & Seafood Ceviche • Peruvian Rotisserie Chicken • Lomo Saltado • Arroz Chaufa • And much more! Dine in, take out & delivery! Uber Eats Ubereats.com • �oooRDASH DoorDash.com 19062 Bruce B Downs Blvd (in New Tampa Center) 813.304.0205 Take-Out or Dine-In 010% OFF All full-priced entrees (only) w/COUPON ONLY. EXP. 6/30/24

Fazoli’s & Dummy Crabby Are Now Open!

Fazoli’s Opens On S.R. 54!

If you’re looking for a quick, casual Italian meal, whether for sit-down dining or with quick drive-through to-go service, you should definitely give the new Fazoli’s, located at 24791 S.R. 54 in Lutz (less than a half-mile west of the Tampa Premium Outlets), a try.

Fazoli’s is sort of like an Olive Garden (but with no alcohol sales) in a family-friendly envi ronment, and also serves its own unlimited garlic breadsticks when you dine inside.

Jannah, photographer Charmaine George and I attended Fazoli’s pre-opening ribbon-cut ting event on May 20 with other North Tampa Bay Chamber members and had the opportunity to meet franchisee Carlos Saenz and his family. Saenz, who also has owned Dairy Queen franchises in the Tampa Bay area, welcomed everyone to what is now the only Fazoli’s in the Tampa Bay area (the location on Busch Blvd. in Tampa closed a few months ago; the next nearest loca tion now is in Plant City).

We serve Fast, Fresh Italian,” Saenz said. “We have people who live in this area who have been anxiously waiting for this location to open, as they tell me they’ve been driving to Plant City for our breadsticks and Italian specialties.”

Jannah, Charmaine and I sampled a few items from the Fazoli’s menu, including slices of cheese and pepperoni pizza, baked lasagna (top photo), a Classic Sampler (fettuccine Alfredo, lasagna with meat sauce and spaghetti marinara with meatballs) and my favorite so far, the meat ball sub. Among the other items on the Fazoli’s menu include fried mozzarella bites, pepperoni pizza breadsticks, baked ziti or spaghetti, chicken fettuccine Alfredo and more — all fairly priced. Another plus is that Fazoli’s sells Cheesecake Fac tory cheesecake slices for dessert. As I said...it may not be fine Italian dining, but it is worth a visit.

For more info, visit Fazolis.com, call (813)803-3231 or stop in and tell general manager Nicole Taylor, operations director (and Wesley Chapel resident) David Ginsberg and crew that I sent you!

Dummy Crabby Also Is Open!

Silly name, but really fresh, tasty seafood. That’s how I can sum up the new Dummy Crabby II, which recently opened in the space previously occupied by Medilish Mediterranean (next to Fratelli’s Pizza Café) at 5325 Village Market (Bruce B Downs Blvd., south of S.R. 54).

Dummy Crabby, which is a much smaller restaurant than the similar Hungry Crab Juicy Seafood on BBD in New Tampa, also serves its clams, mussels, crawfish, shrimp, scallops, lobster

love truly delicious snow crab legs, get the Grand Opening special at Dummy Crabby. You’ll receive one lb. of snow crab free when you buy one lb. for the outrageously low price of just $19.95! And, as the co-owner Kevin promised, the crab legs were just so fresh! Like the original Dummy Crabby on W. Hillsborough Ave. in Tampa, the Wesley Chapel location also has a Special Noodle seafood dish, raw or steamed oysters, wings, beer and more.

Wesley Chapel Neighborhood News • Volume 32, Issue 12 • June 11, 2024 • NeighborhoodNewsOnline.net 49

When the new Rodizio Grill® — America’s First Brazilian Steakhouse® — broke ground on May 14, I’m pretty sure I was the only member of the local media — and perhaps the only one of the nearly 100 people who waited on line for a coupon for a free meal at the new location when it is expected to open in about nine months (or sometime in early 2025) — who had already dined at the Rodizio Grill location on Fruitville Rd. in Sarasota. More on my experience at that location appears below.

Rodizio Grill founder and president, Ivan Utrera, and local owner Charlie Haney invited the community to join the groundbreaking celebration (next to the At Home store off S.R. 56, behind Costco) on May 14.

Established in 1995, Rodizio Grill was the first Brazilian “churrasco” steakhouse in the United States. Since then, Rodizio Grill has grown into an esteemed national franchise, with nearly 25 locations across the country.

The Wesley Chapel location will mark the brand’s sixth in Florida. At the groundbreaking, Haney echoed the sentiments of Utrera, who said in a news release, “I am beyond thrilled to break ground on our newest Florida location. Wesley Chapel is experiencing tremendous growth and is a coveted destination for residents and tourists alike. We are thrilled to become part of this thriving community.”

Haney added, “I was drawn to the Wesley Chapel area for a multitude of reasons. The area is the perfect fusion of suburban serenity and urban accessibility. However, what captivated me was the community: the people are warm and welcoming, neighborly, and joyful. As ambassadors of Brazil, we aim to welcome the community into Rodizio Grill — our home — and celebrate the ‘alegria,’ or joy, that is the Rodizio Grill experience. I believe our concept and the community will be a natural fit for one another.”

Locally and nationally, Rodizio Grill is known for its playful Brazilian spirit, authentic menu offerings and family-friendly atmosphere. The unique concept features rotisserie-grilled meats, expertly seasoned and carved tableside by traditionally dressed Gauchos. While the meats are the main attraction, they are complemented with an award-winning gourmet salad bar, authentic hot side dishes, fresh-pressed juices, homemade Brazilian limeades, signature (full-liquor) cocktails and a selection of exclusive, homemade Brazilian desserts. The whole experience comes at a competitive, affordable price so the whole family can celebrate together.

Brazilian Steakhouse Rodizio Grill Breaks Ground Near Costco

Brazil native Thiago Navarro will be the general manager of Rodizio Grill’s newest location, bringing with him close to a decade of experience with the brand.

“Having grown up in Brazil, many of my cherished childhood memories took place at our local “churrascaria” — whether it was celebrating a special occasion or simply spending quality time with my loved ones,” said Navarro. “Rodizio Grill is truly the embodiment of these memories — the traditional fare, the experience with the Gauchos and the fun atmosphere. I am thrilled to represent Brazil here in Wesley Chapel and am excited to share my passion for our culture and our signature Rodizio Grill experience with the community.”

Our area’s Rodizio Grill will be located at 2082 Grand Cypress Drive in Lutz. The 9,250-square-foot restaurant — with room for about 300 diners — will feature several private and semi-private event spaces. The restaurant also will create upwards of 60 jobs.

About My First-Visit Experience

Knowing that the groundbreaking was coming up, I decided to bring my mom to the Rodizio Grill location in Sarasota on Mother’s Day. There was a $10-per-person upcharge for the event, but there also were additional food items included for that higher price: a beef tenderloin carving station, plus two items I couldn’t sample because of my accursed shellfish allergy — large shrimp in garlic sauce (which my mom enjoyed) and a creamy lobster bisque.

We also sampled a number of items from the clearly fresh, 30-item salad bar, as well as a few of the hot side dishes, including the seasoned white rice and feijoada (black bean stew), plus pasta Alfredo, a savory shredded roast pork dish that I somehow didn’t take pictures of and the creamy Estrogonofe de Frango (or chicken stroganoff), which was probably my favorite of the hot sides. Trying to save room for the “main event,” we didn’t sample the couve (sautéed collared greens and bacon), the creamy whipped potatoes or the Pao de Queijo (homemade Brazilian cheese bread), but they all looked really good — and different from anything you’ll find anywhere in our area.

Speaking of the main event, my mom and I agreed that the Maminha (tri-tip steak; photo of it being sliced above right) was our favorite of the steak options sliced at our table, although we also enjoyed the Picanha (top sirloin) and Bife com Alho (steak basted with

Rodizio’s traditional house garlic rub).

My personal favorite of all of the tableside options was the Presunto (ham grilled and basted in a raw sugar glaze), although I did also enjoy the Pernil (roast pork) served with fresh lime wedges.

We definitely didn’t save anywhere near enough room, so we only sampled two chicken dishes — the Coraçao de Franco (chicken hearts) Temperado and the Frango Agri-Doce (white meat chicken with a sweet and spicy sauce, like a slightly spicier version of Chinese orange chicken).

We filled up pretty quickly on all of these options — I hope, the next time I visit, I will do a better job of pacing myself — so we didn’t try the two different kinds of sausages available, nor did we see any lamb or fresh fish options before we were ready for dessert.

Rodizio Grill offers a nice selection of five Brazilian desserts, of which we sampled the Romeo e Julieta-style cheesecake and the Torta Brigadeiro (a rich chocolate mousse torte served with sliced bananas and fresh whipped cream). Please note, because we didn’t, that the desserts cost extra — they are not included with your fixedprice meal.

Overall, my mom and I enjoyed our first experience at Rodizio Grill and I am definitely looking forward

For Advertising Information Call 813-910-2575 • Wesley Chapel Neighborhood News 50
WESLEY CHAPEL

Red Lobster & Smallcakes In New Tampa Are Closed

I’ve said it from Day One, but when you’re supposed to be a “fresh” seafood restaurant and the food item people say they love the most at your place are your cheesy fried biscuits, that’s kind of a problem.

Well, the bad news for you Cheddar Bay biscuit lovers is that dozens of Red Lobster restaurants across the U.S., including the location at 17021 Palm Pointe Dr. at The Pointe at Tampa Palms, closed abruptly May 14, weeks after the announcement that the company was pursuing a Chapter 11 bankruptcy (which did happen a few days later) for the 700+-unit worldwide chain. The local Red Lobster was one of three Tampa Bay-area locations and 20 in Florida that all closed the same day.

owner and Doctor of Pharmacy Shahida Choudhry told the Neighborhood News. “We’re looking at several months to build the space out and get it stocked.” Of course, the independent Palms Pharmacy is still open next door during the build-out, with its chain-matching (or beating) prices and unmatched customer service.

Shahida, never one to take it easy, also recently opened The Primary Care of Wesley Chapel — with an outstanding team of three nurse practitioners, led by Scarlette Owens, APRN, FNP-C (formerly of Florida Medical Clinic in Tampa Palms) — at 2935 Pearson James Pl. (off Wesley Chapel Blvd. in the new Cypress Bend Professional Park in Lutz (photo), next to Wesley Chapel Harley Davidson).

For more information about Palms Pharmacy, visit ThePalmsPharmacy.com or call (813) 252-9063. For The Primary Care of Wesley Chapel, visit PrimaryCareWesleyChapel. com or call (813) 991-4243. — GN

The good news is that you can still buy the mix to make your favorite biscuits from scratch. They’re also available frozen and ready to bake in most local grocery stores.

Smallcakes Also Is Closed

We told you in our last issue that Smallcakes Cupcakery & Creamery (in the Shoppes at The Pointe plaza in Tampa Palms) was getting ready to close, but until a week or so before our press time, the cupcake chain’s local link was still open, with no formal announcement from owners Marissa and Justin Dewdney as to when it would close.

Well, that fateful day (for those of us who loved those moist cupcakes and unmatched icing) did finally come and we already know that the Palms Pharmacy, located next to Smallcakes at 17008 Palm Pointe Dr., was planning to take over the bakery’s space.

“It’s going to take a while,” Palms Pharmacy

Neighborhood News @NTWCNews For Advertising Information Call 813-910-2575 • Wesley Chapel Neighborhood News • Volume 32, Issue 12 • June 11 , 2024 • NeighborhoodNewsOnline.net 52 Voted ‘Favorite Restaurant in New Tampa’ 8 Years In A Row by Readers ! • Scratch Kitchen with Daily Specials • Brunch Saturdays/Sundays, starting at 11am • Best Steaks in Town, Hand Cut Daily! • Slow-Roasted Prime Rib Available Every Day! • Happy Hour Every Day (from opening til 7 p.m.) • Check Out Our ‘Wine Down Wednesdays!’ Half-Off Selected Bottles of Wine 17050 Palm Pointe Dr. • The Pointe at Tampa Palms • 813.978.0388 StonewoodGrill.com • Stonewood Grill & Tavern ESTABLISHED SINCE 2002! NEW TAMPA
New Tampa’s Red Lobster — and many others — abruptly closed their doors on May 14
For Advertising Information Call 813-910-2575 • Wesley Chapel Neighborhood News • Volume 32, Issue 12 • June 11, 2024 • NeighborhoodNewsOnline.net 53 Neighborhood News @NTWCNews • Hand-Made Tortillas Every Day! • Happy Hour Every Day, 3pm-6pm • Brunch Available at Both Locations Every Day, 10 am-3 pm • Thousands of 5-Star Reviews! • We Deliver! Don Julio's - Tampa Palms 16023 Tampa Palms Blvd City Plaza at Tampa Palms (813) 644-7899 Don Julio’s - Bearss 2808 E. Bearss Ave Palms Connection
898-2860 Winner “Best Mexican Restaurant” & “Best Taco” CHECK OUT OUR TWO OUTSTANDING LOCATIONS: DonJuliosMexican.com donjuliosmexican Don Julio’s Authentic Mexican Cuisine HOURS: Sun-Thu: 10 am-9 pm Fri-Sat: 10 am-10 pm Voting Begins June 5! To Make Reservations (not required), Visit: CONFUSED BY MEDICARE? 82% OF SENIORS ARE! • Questions on Part B enrollment? • Medicare Supplement or Medicare Advantage? • Can I switch now if I’m unhappy with my current plan? CALL NOW! SHAUN FAGAN @ 816-305-3337 Or Go to Insoppty.com to schedule a free consultation. WE ARE MEDICARE ADVOCATES WHO THRIVE ON HELPING SENIORS UNDERSTAND CLEARLY THE MANY OPTIONS AVAILABLE TO THEM WITH THEIR MEDICARE. TURNING 65 WITHIN THE NEXT 6 MONTHS?
(813)

HOME IMPROVEMENT

FLOORING- Luxury Vinyl Plank Installed! Buy anywhere, we will install it!. $1.69/sq. ft. (over 300 sq.ft.). Regular-size bedroom - $399, We will haul away carpet/tack strip & move major furniture pieces. Call for free estimate 813-417-7689. Let’s save some money!

NEED HELP PACKING, UNPACKING & ORGANIZING? Let us help you! We LOVE putting things in their place. We specialize in helping you de-clutter, organize & purge unwanted/unused items. We can unpack & organize your new home or help you prepare & pack for your move. Call 813-523-2421 or 813-469-7935 or visit homesweettampabay.com.

JUNK HAULING SERVICE! We handle all types of furniture removal — bdrm sets, chairs, mattresses & box springs • Hot water heaters & hot tubs - take apart & remove • Construction material • Carpet removal • Estate, eviction, yard, garage & attic clean-outs • Ofc, home & factory • Comm’l/res’l. GorillaJunkremovalExperts.com. For appts, call/ text Nigel @ 888-346-5865.

WESLEYCHAPELPRESSUREWASHINGCOM. Soft pressure ext. house cleaning, screen enclosures, pool decks, driveways, sidewalks, fences, roofs, paver sealing & deck staining. We clean everything. No job too big/small. Exp. the difference when you hire a pressure cleaning pro. Licensed & insured. Owner operated. Call for a free estimate 813-433-6015.

RAYMOND PAINTING. Ext. & Int. Svcs. Ext: Painting, pressure washing, clean & seal pavers, stucco, roofing, leaks & wood rot repair. Int: Painting, plastering, ceiling & wall repairs & tiles. Licensed & Bonded. References available. Free estimates. Your Neighborhood Arbor Greene Resident! We work 7 days. Call 813-994-5124.

DRY WALL SPECIALIST. Not a handyman. Affordable, Quality Work repairing water damage, ceilings & walls, re-texturing, popcorn removal, room addt’ns, cracks, holes, plaster & stucco repair. 30+ years of exp. WC resident. State Certified. Call Ron for a free estimate: 813-784-5999. Lic. #SCC131149699

COMPUTER SERVICES

PROF’L TECH SUPPORT in your home or small biz. A+ Cert. computer tech w/25 years of exp. Maint. & Repairs, Upgrades & Tutoring. More affordable than chains! Friendly, personal svc. Tech jargon explained. Remote assistance & refs. avail. Call (813) 957-8342 for a free estimate!

DO YOU HATE YOUR COMPUTER?!? WE CAN HELP YOU! Troubleshooting, Installation, Networking & Virus Removal. WE COME TO YOU! Residences & Businesses, more than 25-Years Experience. Contact Jeffrey Blank at 813-973-4507, visit WSICA.COM or email Wsica@wsica.com.

LAWN, & LANDSCAPING_____

J’S CUTTING EDGE LAWN SERVICE — Over 5 years of quality full lawn care and landscaping services at affordable rates, Including Mowing, Edging, Trimming, Blowing, Cleanups & more. Call or Text 813-842-7753 for your free quote today.

JOHN IDEAL LAWN & LANDSCAPES. We provide all normal lawn & landscaping svcs: •Mow •Edge •Turf Trim •Air-Sweep •Right-of-Way Weed Control •Bed Edging •Resod •Design Your Lawn •Mulch •Shrub Trim/Shape •Hedge Trim •Yard Cleanup. “For no lawn stress, just join John’s Curb Appeal Success!” Save 12%/mo for 6 mos w/a 1-yr contract. Call Maitland John @ 813.327.1039.

ALL DIMENSIONS LANDSCAPE & EXTERIORS, LLC. Complete resid’l & comm’l landscape, hardscape & softscape. Mulch & decorative stone. Patios, decks, retaining walls, property maintenance & lawn care. Sod & lawn install’n, artificial turf, fencing, railings, soft & hard pressure washing, painting. We do anything exterior. Call (724) 541-2535 or (813) 485-6661 for a 25% discount on labor & materials.

TRANSPORTATION _

AIRPORT SHUTTLE SVC. C&R Transporta-tion Services of Tampa Bay, LLC, is a shuttle service that provide safe & reliable transportation to & from your destinations.• New Tampa Transfer, $69 • Wesley Chapel Transfer, $79 • ZHills Transfer, $89 • Dade City Transfer, $129. Book Online @ Crtransportation.org or Call (813) 895-7413. Receive a FREE T-shirt w/every transfer.

AUTOS WANTED! Autos/trucks/small campers/ small boats wanted! We pay top dollar! Any condition, Free Removal 24/7. For more info, call (813) 461-0062.

ELITE RIDES. Private rides in a sanitized 2023 Tesla, plus concierge services. Airport, schools, medical appointments, shopping, etc. Courteous, reliable professional. New Tampa to Tampa Int’l Airport - $45 (one way). Cory Lake Isles resident. For more info, call or text 813.765.2037.

REAL ESTATE & OFFICE

Steven Kessel, REALTOR® with Future Home Realty, Inc., has created just for you, the most advanced up to date user friendly property search engine for homes for sale in the Tampa Bay and Central Florida area. And it’s FREE for you to use and enjoy. BuyYourDreamHome.com.

For Rent — Three BR, fully furnished ground floor condominium in Anand Vihar, a beautiful independent living, gated community in the lovely Wesley Chapel area in Tampa, Florida. Beautiful Club House, with a gym, swimming pool, game room, auditorium and a dining hall. Lunch or dinner Meal plans are available If needed. Contact Dinesh @ 716-830-7260

MISCELLANEOUS

Are you or is someone you love struggling with math? Do you find the material difficult to understand? Well, not anymore, because I can help make math easier for you to understand. My lessons will help you learn easy methods to solve problems. Contact Tim Rajpathak at (561) 2519093 or by email: timaculus397@gmail.com

CNA/HHA & Companion. Will provide private care in your home. 25+ years of exp. References available upon request. Call Rhonda at 850-586-1868.

Prof’l Resume Guru & Consulting Services LLC. Ready to unlock your full career potential? At PRG, we specialize in resumes, cover letters, residency statements, editing & much more! Transform your documents into a powerful tool that gets you noticed! Contact us today @ 813-405-5065 or email resume_guru@outlook.com.

Equip yourself with the skills to stay safe! Register for 2A Rated Training for self-defense training classes. Our NRA Certified Instructors provide training to help you gain confidence & proficiency to protect yourself & loved ones responsibly. Don’t compromise your safety. Visit our website & register at 2ARatedTraining.com. Train with us. Empower yourself. Email: info@2ARatedTraining.com.

RAYSPHOTOGRAPHS LLC! Do you have a special occasion/moment you’d like to capture? Specializing in weddings, engagements, portraits, headshots & events, allow me to capture the moments that matter most to you! Visit raysphotographs.com for samples. Call/text (813) 380-2655 or email ray@raysphotographs. com. Mention this ad & receive 20% off!

DOES YOUR LOVED ONE NEED CARE AT HOME? Faith Compassionate Home Care

Provides Medical & Non-Medical Home Health Care svcs: Nursing care, medication mgmt, case mgmt, companion care, home health aide, respite care, bowel care services, training to caregiver & more. Flexible pymt options. We accept private pay only. For info, call 813-602-4431.

360 BOOKKEEPING LLC - We focus on your Bookkeeping so you can focus on your Business. Est’d business? We’ll clean up your books to get you back on track. New Business? We can set up your chart of accounts to get you organized & efficient. Call now & get peace of mind—plus 20% off set-up fees—(813) 336-1363. Hughes School of Musicaccepting new students! Study Saxophone, Piano, Music Production, Composition or Theory with a Master of Music. Zoom sessions also available! Contact us at 813-748-3216.

TREE SERVICES

FITZPATRICK’s TREE SERVICE, INC. 27 yrs of Prof. Svc. Licensed & Insured. Free Estimates. Tree Trimming & Tree Removal. Stump Grinding. Dead-Wood Removal. Affordable Rates. 24-Hour Emergency Storm Service. Free Mulch. Call 813495-9541 or 813-788-TREE.

CLEANING SERVICES

ROSE’S CLEANING SERVICE. We make sure your home will be shiny & clean. Whether you need onetime, weekly, bi-weekly, or monthly services, we will customize a plan that accommodates your needs. Residential/offices/airBnB,etc. Call or text Roseli for a free estimate anytime: 813 400.4946. Or, email:rrduar@yahoo.com.

NEXT HOME CLEANING. With over 20 years of professional house & office cleaning services available. Trustworthy, efficient, and affordable. Transform your space into a spotless sanctuary. Eco-friendly products. Satisfaction guaranteed. Book now & enjoy a pristine home! FREE ESTIMATES! Contact us today at 813-860-1524 or visit our website nexthomecleaningservices.com.

CLEANSWEEP CLEANING COMPANY LLC, Fully licensed & bonded, 8 years of exp., satisfaction guaranteed. Professional staff. On-time. We can bring our own products or use yours, if you prefer. We are a Christian-based, family-owned company that lives in the New Tampa area, serving New Tampa & Wesley Chapel. Call (813) 340-0908 for a no-obligation free quote. Ask for John.

YOU HAVE IT MAID CLEANING SERVICES. Give yourself the time that you deserve. We are reliable & have 20 years of exp., with references. Licensed. Call for an estimate — 727.900.3844.

SPRING SPECIAL - 10% OFF! All Tampa Total Ceanng Services, including: Tile & Grout Cleaned, Carpet & Upholstery Cleaned & Deodorized, House Cleaning - Routine, Move-out & Deep Cleaning. Plus, get a FREEbottle of our Multi-Purpose Surface Cleaner! Call or Text: 813.785.3315 - tampatotalcleaning@gmail.com. TampaTotalCleaning.com.

ANA PARRA HOUSE CLEANING SERVICES. Prof’l House Cleaning — Best prices & quality,.Licensed & Insured. Routine, Deep & Move-In/Move-Out cleaning. Serving New Tampa /Lutz/Wesley Chapel & more. Weekly, bi-weekly, monthly or special needs. Avail. Mon-Sat. Refs avail. We supply our own cleaning products & equipmt. Call or text for free est: (305) 338-0981.

A-to-Z CLEANING & ORGANIZING. Home & Ofc Cleaning & Organizing Svcs! We use our own supplies. Affordable & Reliable. Family-Owned & Operated. WC resident. Weekly & Bi-Weekly/Deep Cleaning/Move-In/Move-Out. Serving WC & NT. Call today for a FREE No-Obligation Quote: 813462-1270. Local refs. supplied upon request.

MARY’S CLEANING SERVICES. We provide flexible domestic & office cleaning. “Jesus is the Lord.” Give us a call at 352-206-8809 for a free estimate or email marynovociclo@gmail.com.

PATY CLEANING SERVICE. Comm’l or resid’l cleaning service. We have our own supplies & 6 years of exp. Free estimates. Call 813 790-8715 or email patycleaningservice@hotmail.com.

Neighborhood News @NTWCNews For Advertising Information Call 813-910-2575 • Wesley Chapel Neighborhood News • Volume 32, Issue 12 • June 11 , 2024 • NeighborhoodNewsOnline.net 54 Direct-Mailed to 35,000+ Residences & Businesses (98,000 people!) in Zip Codes 33543, 33544 & 33545 Epperson Ashley Pines Estancia at Wiregrass Avalon Park Wesley Chapel Fox Ridge Belle Chase Hamilton Park Bridgewater Lexington Oaks Brookside Meadow Pointe Areas I-IV Chapel Pines New River Township Citrus Trace Northwood Country Walk Palm Cove Pine Ridge Pinewalk Quail Hollow Saddlebrook The Lakes at Northwood The Ridge at Wiregrass Union Park Villages at Wesley Chapel Watergrass Wesley Pointe Westbrook Estates Saddleridge Estates Saddlewood Estates Seven Oaks Williamsburg
N ew T ampa & w esley C hapel Classifieds
For Advertising Information Call 813-910-2575 • Wesley Chapel Neighborhood News • Volume 32, Issue 12 • June 11, 2024 • NeighborhoodNewsOnline.net 55 Neighborhood News @NTWCNews 813.530.5591 | FinalTouchQC@gmail.com Leave Your Dust Up to Us! Contact us today for your next CLEANING! Commercial Residential Post Construction & More! 10% OFF First-Time Clean for New Clients If You Want Your Ad To Reach The Most Potential Customers In New Tampa & Wesley Chapel... CALL OR EMAIL JANNAH! 813.910.2575 Ads@NT NeighborhoodNews.com Your ad in the Neighborhood News can be seen by more than 160,000 people every four weeks! Find out how! FamilyOw.r;ied Cleaning for 25 years in New Tampa & Wesley Chapel (�®@[n)=�� Vour#l Cleaning Service 813-505-0431 clean itmc@gma i I.com

Turn static files into dynamic content formats.

Create a flipbook
Issuu converts static files into: digital portfolios, online yearbooks, online catalogs, digital photo albums and more. Sign up and create your flipbook.