rchitecture Architecture Architectur

Care and Brief Hospitalization Unit — Honoré-Mercier Hospital
Firm: CGA Architectes Inc
Year: 2020
Location: Sa nt-Hyacinthe, QC, Canada
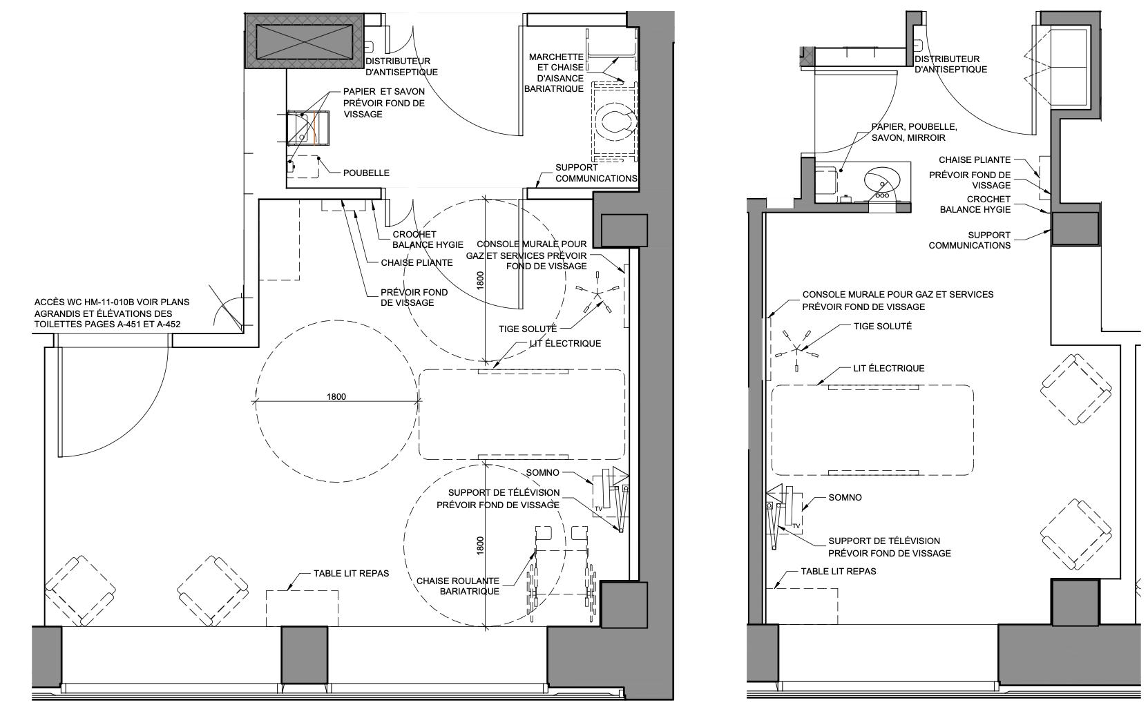
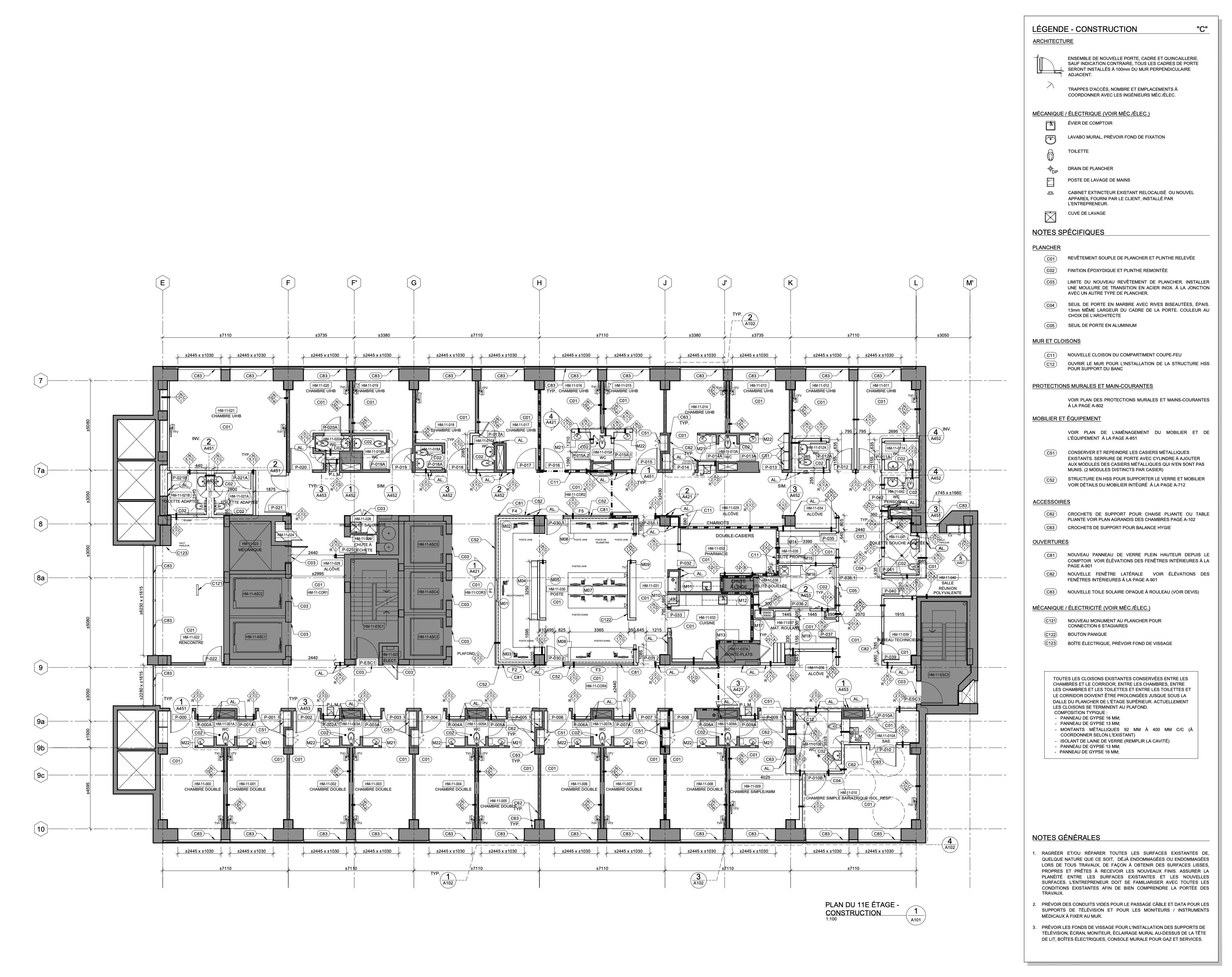
Rehab litation project involv ng the reconf gurat on of pat ent rooms and care spaces within an act ve hospital environment Respons bil t es included architectural survey, concept development, project management support, and the production of prel m nary and construct on drawings The work requ red close coordination with the c ient and engineering consultants, verificat on of compl ance with appl cab e build ng codes, and partic pation in material selection to meet c inical, functiona , and durab lity requ rements





Façades Renovation — Caisse Desjardins de VilleÉmard
Firm: Rouge Architecture
Year: 2024
Location: Montreal, QC, Canada
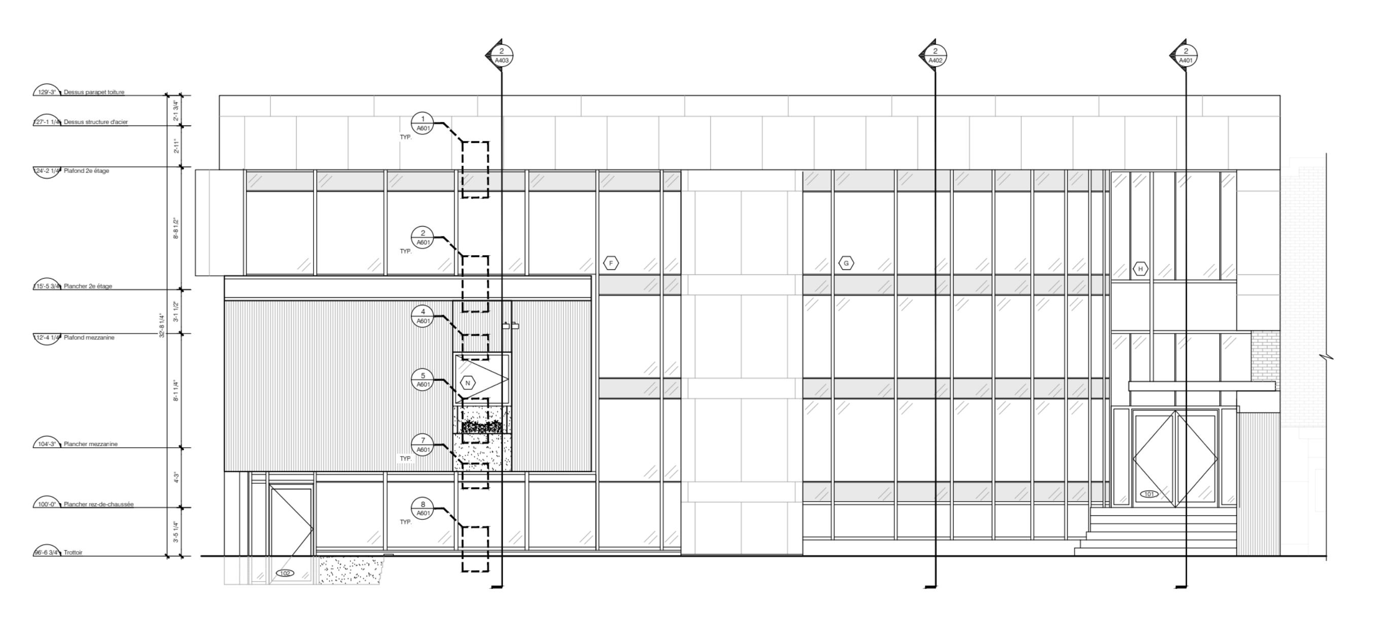
Renovat on of the façade of an ex sting bank bu lding, with a strong focus on constructab lity and technica detail ng Respons b lities ncluded arch tectura survey, project management support, and the product on of detai ed drawings, including p ans, sect ons, elevations, and construct on deta ls The scope of work nvolved verif cat on of comp iance with appl cable bui ding codes, close coordinat on with the cl ent throughout the design and documentat on phases, and partic pation in mater al selection to ensure durabil ty, performance, and a coherent integration with the ex sting bui d ng



Mobilis Papineau Phase 1 and Touchette Phase 1,2,3,4-A and 4-B — Condominiums and Townhouses Development
Firm: Jacques Antoine St-Jean Architecte
Year: 2012
Location: Montreal, QC, Canada
New resident a deve opment comprising condom niums and townhouses Responsibil ties included part cipation n des gn development, preparat on of presentation and approval documents for the Consultative Committee on Town P anning, and the production of preliminary and construction draw ngs The scope of work involved ver f cation of compliance with app icable bu lding codes, as well as coord nation w th the client and eng neering consultants throughout the design and documentation phases




New Building Envelope and Interior Redesign
—
Mont-Bruno High School
Firm: CGA Architectes Inc
Year: 2022
Location: Saint-Bruno-de-Montarville, QC, Canada
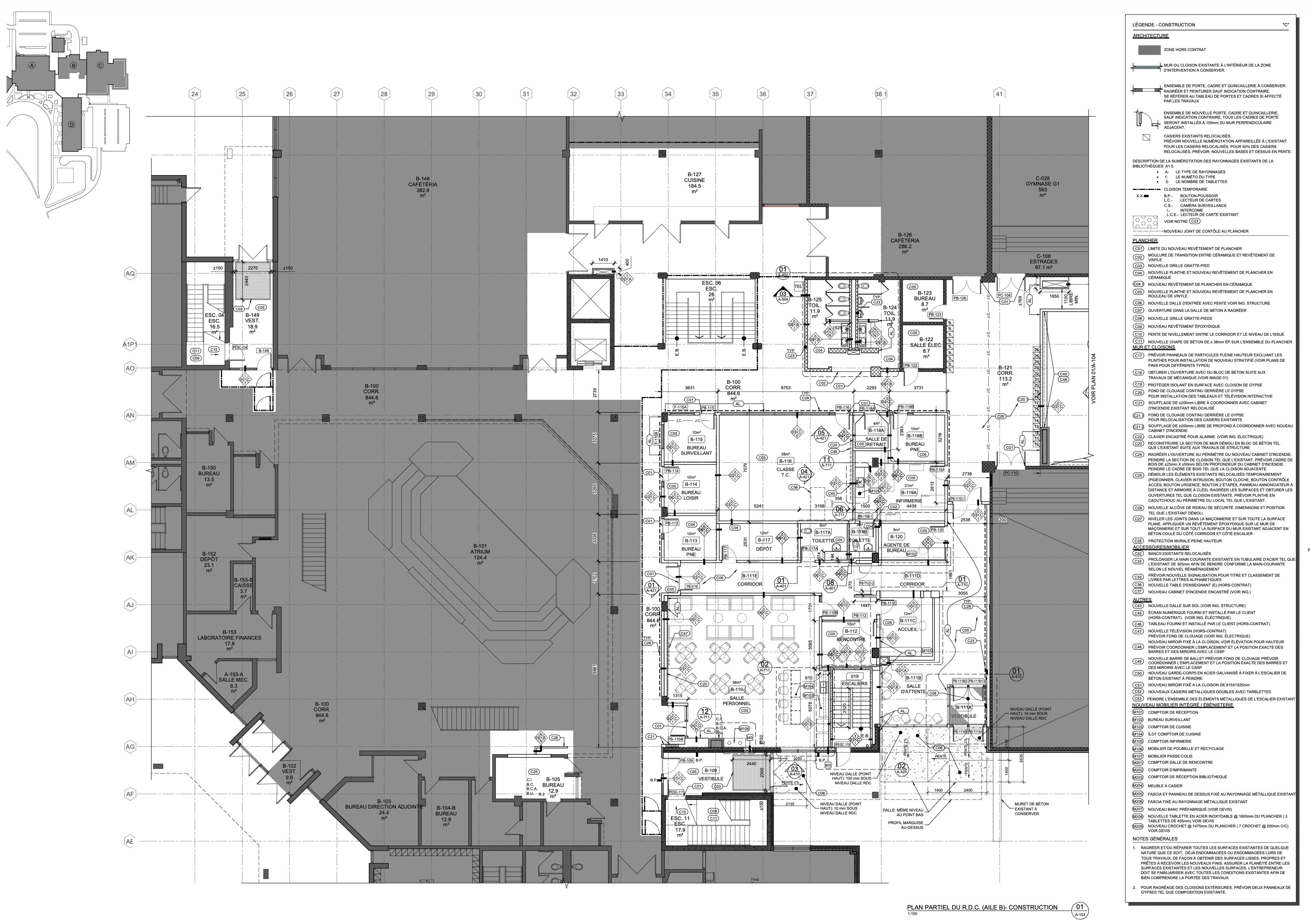
Project involving the redesign of the building envelope and interior spaces of an existing high school Responsibilities included participation in the architectural program and concept, production of preliminary and construction drawings, and coordination with the client and engineering consultants. Moreover, the scope of work involved material selection, phasing strategies to accommodate ongoing school operations, verification of compliance with applicable building codes, preparation of cost estimates, and the production of 3D visualization images.
