USF - Grupo 16

Page 1

FACULTAD DE COMUNICACIÓN, ARTES Y TECNOLOGÍAS TALLER VIII ARQUITECTURA2022.2
DOCENTE MSc. Arq. Marcial Barreto Espínola TALLER DE CRITERIOS DE CERTIFICACIÓN LEED EN EL DISEÑO Y CONSTRUCCIÓN EN EL MUNICIPIO DE ÑEMBY ESTUDIANTES Nelcy Pamela Fernandez Cardozo Pablo Javier Martinez Gamarra Dupla N°: 16 Grupo 71 Periodo 2022.2 USF – UNIDAD DE SALUD FAMILIAR

1era. Parte 1- INVESTIGACIÓN

DEFINICION

TIPOS

PUNTOS ESTRATEGICOS

La arquitectura sustentable es el desarrollo que satisface las necesidades del presente, sin comprometer la capacidad para que las futuras generaciones puedan satisfacer sus propias necesidades. Es aquella que tiene en cuenta el ciclo de vida de los materiales, el uso de energías renovables, la reducción de la cantidad de materiales y energía usados, el reciclaje de residuos

Arquitectura biomimética: se inspira en la naturaleza y busca imitar el funcionamiento de los sistemas vivos Arquitectura bioclimática: buscan aprovechar al máximo las condiciones climáticas del lugar

Diseño ajustado a las necesidades

Uso de materiales ecológicos

Aprovechamiento de los recursos naturales

Cuida la calidad del aire

Bioconstrucción: busca integrar la vivienda lo máximo posible con su entorno

Confort en la vivienda

1era. Parte 1.1. Arquitectura Sustentable

EJEMPLO NACIONAL

Vivienda sostenible Paraguay Green Building Council CASACOR

Prototipo de Vivienda Sostenible, PYGBC – Casacor 2017.

SE TUVIERON EN CONSIDERACIÓN VARIOS ASPECTOS INNOVADORES DENTRO DE UNA CONSTRUCCIÓN TÍPICA DE VIVIENDA. SE ASESORO EN EL USO DE MATERIALES CON CONTENIDO EN RECICLADOS PARA LOS MUROS EXTERIORES, AISLACIÓN TÉRMICA EN LAS PAREDES, TECHO VERDE, MADERA CON CERTIFICACIÓN FSC, REUTILIZACIÓN DE AGUA DE LLUVIA PARA RIEGO DE ÁREAS VERDE Y LA UTILIZACIÓN DE LA REFRIGERACIÓN GEOTÉRMICA COMO CLIMATIZACIÓN DE LA VIVIENDA.

1era. Parte 1.1. Arquitectura Sustentable

Certificación LEED

• La certificación LEED, que en castellano significa Líder en Eficiencia Energética y Diseño sostenible, supone que el edificio o proyecto al que se refiere está construido con los estándares de ecoeficiencia y cumple con los requisitos de sostenibilidad. Es totalmente voluntario y se basa en el consenso del mercado para desarrollar construcciones centradas en la alta eficiencia energética.

1era. Parte 1.2. Certificación LEED

Madera dura

• Para la construcción de pisos la madera dura es una opción eco-amigable y versátil. Funciona como un buen conductor de calor para ofrecer ambientes confortables en las temperaturas invernales.

Corcho (corteza de árbol)

• resulta ser más resistente que cualquier suelo convencional de madera ¡increíble! Tiene un ciclo de vida largo, requiere de poco mantenimiento y es hipoalergénico.

Bambú

• Resistente al agua y se adapta a todo tipo de diseño de interiores. Su uso se está popularizando en el rediseño de salones, cocina y otras habitaciones, gracias a que provee un acabado cálido, es fuerte y responsable con el medio ambiente.

Piedra

• Una de las mayores ventajas de la piedra para sus estructuras es que es 100 % duradera y resistente. La gama disponible para su proyecto inmobiliario es amplia a diferencia de otro tipo de material limitado. Se caracteriza por su alta consistencia por eso se emplean para los muros, arcos y pisos.

1era. Parte 1.3. Materiales Sustentables

Originarios CARIOS ÑEMBYENSES – LOS PRIMITIVOS POBLADORES DE ASUNCIÓN

• Las aldeas de los carios de Ñemby estaban diseminadas por la franja izquierda del río Paraguay, dentro de una vasta zona que hoy conocemos como la Gran Asunción. Las tribus de los carios “no ñembyenses” se asentaron en las zonas del río Manduvirá, río Tebicuary, lago Ypacaraí, Quiindy, Acahay, Altos, Emboscada, San Pedro y Santa Catalina (la actual Florianópolis).

• Los carios eran físicamente fuertes y de mediana estatura, acostumbraban a andar desnudos, aunque algunas mujeres se cubrían el pubis con un paño llamado tanga. Eran buenos pescadores, cazadores y guerreros, utilizaban el arco y la flecha; eran hábiles nadadores y conocedores del río, viajaban en canoas, eran muy voluntariosos, criaban aves y animales, cultivaban abatí, jety, manduví, kumandá, andaí y mandió, base de su alimentación.

• Obedecían a un cacique o tuvichá que ascendía hereditariamente, se dividían en tabas y vivían en el oga guasú, casas comunales construidas con paja y barro, dispuestas de tal manera que dejaban un espacio libre en el centro para los Aty Guasú. Para protegerse del asalto de los guaicurúes, los carios ñembyenses rodeaban sus poblados con empalizadas.

1era. Parte 1.4. Pueblos
1era. Parte 2- IDENTIFICAR

Tema

Relación del concepto, evolución y tipología

CONCEPTO

La Unidad de Salud de la Familia es la estructura física donde trabaja un equipo de salud de la familia compuesto por un médico, una licenciada en enfermería u obstetricia acompañados de un auxiliar o técnico en enfermería u obstetricia y agentes comunitarios.

Medidas o referencias a nivel nacional e internacional

Infraestructura de USF en Paraguay

• Consultorio medico

• Consultorio odontológico

• Consultorio de enfermería y obstetricia

• Área de espera

• Sala de urgencias

• Sala de observación

• Sala de admisión y archivo

• Sala de vacunación

• Sala de situación

• Sanitarios

• Deposito de medicamentos y farmacia

• Cocina

TIPOLOGIA ESTANDAR

SATELITE

MOVIL AMPLIADA

Referencia de apoyo Discapacitados

Referencias de apoyo

Discapacitados –Accesibilidad Universal

• Lavadero

• Sala de preparto y partos

Puesto de Salud en Argentina

• Servicios básicos: Agua, energía eléctrica.

• Área general: Portal, Sanitario (hombres/mujeres), Sala de espera.

• Área de consulta externa: Consultorio para la entrevista y exploración física del paciente, área de procedimientos (curación, hipodermia, cirugía menor, Papanicolaou,IVAA, inmunizaciones), cuarto de aseo.

• Área administrativa: Archivo clínico, farmacia y bodega de medicamentos, oficina de equipo de apoyo, área de digitación y sala de reuniones.

• La Organización Mundial de la Salud (OMS), considera a la Medicina Natural y Tradicional, donde se incluye el tratamiento con plantas medicinales, como la medicina más natural, inocua, efectiva, además de tener un costo racional, ser asequible y aceptada por la población. La OMS, sostiene que se debe garantizar la inocuidad y la calidad de este tipo de medicamento que podría ser eficaz como tratamiento y prevención de primera línea, para afecciones tales como resfriados, diarreas, dolores de estómago, fiebres ligeras.

• Rampas: la pendiente que debe tener para salvar el desnivel que constituye el cordón (20 cm.) no será mayor al 10 %.

• Veredas: Para poder diseñar veredas, particularmente para personas ciegas, que favorezcan accesibilidad y recorrido de carácter universal

• Sanitarios: El módulo de referencia es la silla de ruedas, la que para girar necesita un espacio de 1.50 x 1.50

1era. Parte 2.1.

Tema Ejemplos nacionales e internacionales

o Plano de una USF ampliada en Paraguay

o Ciudad, naturaleza y salud Brasil

Como “un manifiesto naturalista” define el estudio franco-brasileño Triptyque Architecture a Villa M, un complejo de uso mixto que acaba de ser inaugurado en París. El proyecto destaca por una fachada viva cuya geometría está formada por vigas metálicas que albergan plantas medicinales, árboles frutales y especies perennes. “El propio edificio es el soporte de este jardín vertical, que crecerá y ocupará toda la fachada, convirtiendo el edificio en un bosque vertical medicinal”, explican los arquitectos. El programa incluye un hotel, un restaurante-bar, sala de conferencias, espacio de coworking, start-ups del mundo de la salud y centro médico.

1era. Parte 2.1.

1era. Parte 3- Analizar

.1. La Ciudad

partir de los planes de ordenamiento territorial, se pueden definir políticas públicas que garanticen un desarrollo urbano sustentable. Mediante la adecuada planificación del territorio se puede lograr la reducción del riesgo de desastres, el acceso equitativo a los servicios urbanos y la conservación del ambiente en las ciudades. Las ciudades que participan del proceso son Asunción, Luque, San Lorenzo, Fernando de la Mora, Lambaré, Mariano R. Alonso, Villa Elisa, Capiatá, Limpio, Ñemby y San Antonio.

La planificación del territorio es uno de los pilares sobre los cuales construimos ciudades más sostenibles, más resilientes, más inclusivas, más humanas. Este es un proceso histórico, podemos trabajar juntos en la construcción participativa de una estrategia metropolitana, para alcanzar una adecuada planificación del territorio y del uso de suelo en el AMA”

1era. Parte 3
Estrategias de los Planes, desarrollo, Historia Ñemby - resumen AÑO DE FUNDACIÓN 1899 CREACIÓN DEL MUNICIPIO 1899 PROYECCIÓN POBLACIÓN 2022 153.103 SUPERFICIE 29 km² 38 HABITANTES / HA 819 VIVIENDAS / KM² 9.078 TOTAL EMPLEOS A
AMA AMA Ñemby o AMA o Ñemby en el AMA

lisis

1era. Parte 3.2. Estudios Preliminares ( Modelo Tradicional) Aná
de sitio o Ubicación del Terreno o Topografía o Orientación TERRENO UBICADO SOBRE CALLE EMPEDRADA DENOMINADA 21 DE SEPTIEMBRE, QUEDA A 900M DE LA AVDA. DE LA VICTORIA TAPE GUAZU N
1era. Parte 3.2. Estudios Preliminares ( Modelo Tradicional) o Vegetación o Servicios o Movilidad

o Morfología: Trama Urbana

Se observa una trama ortogonal o grilla cuadriculada e la zona de intervención, así también existen trazados irregulares en zonas alejadas al área a intervenir

o Morfología: Uso de Suelo

El barrio es una zona residencial donde gran porcentaje de la ocupación es por viviendas familiares, negocios o micro emprendimientos, así también plazas, escuelas e iglesias.

o Clima

o Morfología: Perfiles

La altura de los edificios los cuales en conjunto definen el perfil urbano de barrio van desde viviendas en planta baja hasta departamentos de 3 niveles.

En Ñemby, los veranos son cálidos, bochornosos y parcialmente nublados; los inviernos son cortos, cómodos y mayormente despejados y está mojado durante todo el año. Durante el transcurso del año, la temperatura generalmente varía de 13 °C a 33 °C y rara vez baja a menos de 5 °C o sube a más de 36 °C.

1era. Parte 3.2. Estudios Preliminares ( Modelo Tradicional)

o Visuales Positivo- Negativo

• Análisis del entorno

o Visuales Cercanos: 5 cuadras a la redonda

Las 2 primeras imágenes corresponden al frente del terreno, la siguiente es la plaza posterior luego un negocio cercano

Se puede observar siguiendo la trama del lugar a intervenir, que la zona cuenta con áreas verdes, las mismas son plazas o de propiedad privada con gran variedad de arboles. En cuanto a los espacios en un porcentaje mayor es ocupado por residencias familiares, el porcentaje restante serian terrenos sin construcciones.

o Visuales Lejanos: 10 cuadras a la redonda

Barrio cerrado TERRA Cerro Cantera Ñemby

Memorial Defensores del Chaco

1era. Parte 3.2. Estudios Preliminares ( Modelo Tradicional)
1era. Parte 3.3. Reglamentaciones Normativas
y
Leyes
relacionadas a la salud en Paraguay

2da. Parte Pre diseño

2da. Parte 1.1. Análisis de la información FODA F • EXISTENCIA DE UN PROYECTO PARA LA CONFORMACION DEL CORREDOR VERDE O • APROVECGAR DE LA MEJOR MANERA LA TOPOGRAFIA DEL LUGAR A • EN EPOCAS DE LLUVIA SE GENERAN CAUDALES DE AGUA YA QUE NO EXISTEN DESAGUES PLUVIALES D • INEXISTECIA DE RED CLOACAL Y PLANTA DE TRATAMIENTO DE AGUAS NEGRAS o ASPECTO SOCIAL o ASPECTO NATURAL F • CRECIMIENTO EN OBRAS INDUSTRIALES Y DE TIPO COMERCIAL O • DISPONIBILIDAD DE CRECIMIENTO EN PROYECTOS, YA QUE NO HABLAMOS DE UNA CIUDAD SATURADA A • DEBIDO A LA AUSENCIA DE RED CLOACAL SE TENDRAN INCONVENIENTES A FUTURO CON PROYECTOS DE GRAN ENVERGADURA D • FALTA DE PROTECCION A LAS VIVIENDAS DE ESTILO PATRIMONIALo ASPECTO ARQUITECTONICO o ASPECTO URBANO F • EL 79,9% DE LOS POBLADORES CUENTAN CON VIVIENDAS PROPIAS O • SE PUEDE POTENCIAR LA ECONOMIA GRACIAS AL RECURSO NATURAL COMO EL CERRO CANTERA EN LA CIUDAD A • FALTA DE EQUIPAMIENTOS URBANOS SUFICIENTES PARA LA CANTIDAD DE POBLADORES COMO SON LOS PUESTOS DE SALUD D • LA CANTIDAD DE POBLADORES CON VIVINEDAS EN ASENTACION Y OTROS EN SITUACION DE POBREZA F • GRACIAS A LA RUTA ACCESO SUR LA CIUDAD DE ÑEMBY TIENE CONEXIÓN CON VARIAS CIUDADES ALEDAÑAS O • SE PUEDE GENERAR UN ESPACIO AMABLE CON EL PEATON REESTRUCTURANDO PLAZAS Y ESPACIOS VERDES A • EL CENTRO DE ÑEMBY ES UN PUNTO CRITICO EN EPOCAS DE LLUVIAS YA QUE SE ENCUENTA EN ZONA BAJA D • FALTA DE PARADAS DE BUSES EN ZONAS URBANAS ASI COMO TAMBIEN LA AUSENCIA DE SEÑALIZACION E ILUMINACION

o Usuario:

o Cuantificación de la Demanda

• Toda la población se beneficiara ( embarazadas, niños, adolescentes, jóvenes, adultos y adultos mayores)

• El personal medico que estará brindando sus servicios en el local (profesional medico, licenciados, técnicos y personal administrativo)

Rincón – La lomita, ubicación del terreno

2da. Parte 1.2. Definición del Usuario 1.3. Cuantificación de la demanda

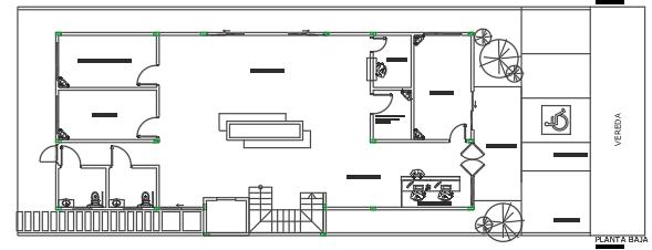
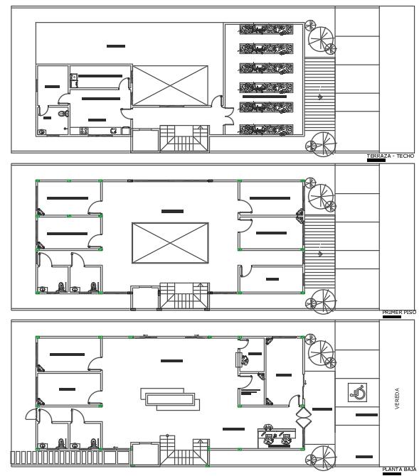
ADMISION CAJA SALA DE ESPERA

PLANTA BAJA

FARMACIA

SALA DE ESPERA

KITCHENETTE

SANITARIOS CONSULTORIO PEDIATRICO

PRIMER PISO

SALA DE ENFERMERIA

CONSULTORIO ODONTOLOGICO

SS.HH PERSONALES CASILLEROS

2 CONSULTORIOS MEDICOCLINICO

SANITARIOS

SEGUNDO PISO

DEPOSITO

ASCENSOR Y ESCALERA

URGENCIAS

SALA DE OBSERVACION

LAVADO Y PLANCHADO

TERRAZA MEDICINAL

LOSA TECNICA

ASCENSOR Y

ASCENSOR Y ESCALERA

2da. Parte 1.4. Programa Arquitectónico
EXTRACCION Y VACUNACION
ESCALERA
DEPOSITO

Circulación:

al volumen

del aire y luz obtenemos un

en torno al cual se configura

Ventilación cruzada: Línea azul

accesos

ndose

y posterior

n con el aire y luz

una

central y

ón en forma de U.

ón

dentro del edificio,

2da. Parte 1.5. Agrupación y zonificación de espacios 1.6. Eje composición y trama 1.7. Relación de espacios Agrupación y zonificación de espacios Relación de espacios
Línea verde • Gracias
rectangular
espacio
dominante,
la circulaci
• Los
frontal
generan
ventilaci
cruzada
unié
tambié
central. P. BAJA • SE AGRUPAN LOS SERVICIOS DE ACCESO, ATENCION DE URGENCIA Y CONSULTORIOS PARA EMBARAZADAS Y NIÑOS 1 PISO • EN EL PRIMER PISO SE DISTRIBUYEN LOS DEMAS CONSULTORIOS Y SALAS DE OBSERVACIONES 2 PISO • EN EL SEGUNDO PISO SOLAMENTE AREAS PARA EL PERSONAL MEDICO Y SUS DEPENDENCIAS. TAMBIEN QUEDA LA TERRAZA MEDICINAL Eje composición y trama

Referencias:

Accesos principales, posterior y frontal en planta baja

Accesos secundarios ubicados en los pasillos laterales del edificio en planta baja

Accesos y salidas a la escalera y ascensor

Acceso peatonal desde la calle Estacionamiento reservado para ambulancia Estacionamiento reservado para discapacitados

Estacionamiento

Salida a la terraza medicinal

2da. Parte 1.8. Emplazamiento o

TOMAMOS COMO INSPIRACION LAS EMPALIZADAS QUE GENERABAN LOS CARIOS ÑEMBYENSES COMO PROTECCION CONTRA SUS ENEMIGOS, EN NUESTRO CASO NOS PROTEGEREMOS DE LA LUZ SOLAR, Y POR ESTA TAMBIEN TENDREMOS LAS PLANTAS TREPADORAS CREANDO EL MURO VERDE

LOS CARIOS VIVIAN EN OGA GUASU Y DEJABAN EN EL CENTRO UN LUGAR PARA EL ATY GUASU

EN NUESTRO CASO TENEMOS COMO EJE CENTRAL UN AIRE LUZ QUE SERA DESTINADO A PATIO INTERNO. POR LOS DATOS OBTENIDOS EN SUS ALDEAS ESTABAN ACOSTUMBRADOS A DISTRIBUIR TODO ALREDEDOR DE ESE ATY GUASU

2da. Parte 1.9. Partido Arquitectónico

3ra. Parte Representación Grafica

3ra. Parte Puntos LEED en el proyecto • Implementación de equipos y juegos para la practica de medicina sensorial Proceso Integral • Ciclovia en el perímetro de la plaza • Estacionamiento para bicicletas Localización y Transporte • Gestión de residuos patológicos • Implementación de basureros para reciclajes • Materiales de poco mantenimiento: ladrillo y hormigón visto Materiales y Recursos • Recolección y tratamiento de agua de lluvia • Tratamientos de aguas residuales grises • Estas aguas tratadas se utilizaran para riego automático por goteo Eficiencia del agua • Alumbrados públicos y reflectores con paneles solares integrado • Iluminación interna de bajo consumo tipo Led Energía y Atmosfera • Protección solar con plantas trepadoras • Arborización en plaza • Uso de pisos ecológicos • Terraza con canteros hidropónicos (plantas medicinales) Sitio Sustentable • Climatización por sistema geotérmico • Ventilación cruzada • Efecto chimenea • Muro verde de protección (ingreso de aire fresco) • Uso de luz natural Calidad Ambiental Interior • Uso de plantas medicinales nativas para la terraza • La arborización en la plaza será de especies nativas y frutales Prioridad Regional

3ra. Parte Proyecto

• El proyecto se conforma por 3 volúmenes apilados, el primero conforma las atenciones primarias y básicas de la unidad de salud familiar, en el segundo se agrupan salas y consultorios de áreas mas especificas y en el ultimo piso el área para personales y administrativas,

• Una terraza donde estarán cultivadas plantas medicinales para uso de la comunidad en general como medicina alternativa.

• Materialidad: Se utilizaran ladrillos vistos ya que lleva poco mantenimiento. Hormigón armado visto, pisos ecológicos, techo de chapa termo acústica, ventanales y aberturas de vidrios importantes en zonas donde la incidencia de luz solar sea nula por las tardes.

• La USF contara con ventilaciones cruzadas en sus 3 pisos e iluminación centralizada asegurando la disminución del uso de energía eléctrica durante el día, aprovechando al máximo la luz natural

3ra. Parte Proyecto

Generamos también una piel envolvente de estructura metálica que soportara un muro verde para protección solar

3ra. Parte

Proyecto

• El aire al pasar por el filtro verde de plantas pasara mas fresco al interior generando un ambiente mas cómodo reduciendo el uso del aire acondicionado,

• El aire que ingrese por la fachada frontal y posterior se encontraran en el aire y luz, de aquí tendrán salida directa por la parte superior del edificio, los tres pisos contaran con el mismo sistema de aire cruzado

• La climatización interna será mediantes el sistema geotérmico que vendrá desde el punto de arborización en la plaza

3ra. Parte Perspectiva Frontal

3ra. Parte

Posterior

Perspectiva

3ra. Parte

Perspectiva Lateral

3ra. Parte

Lateral derecho

Perspectiva

3ra. Parte Perspectiva Lateral Izquierdo

Referencias

• https://responsabilidadsocial.net/la arquitectura sustentable concepto principios mitos/?amp

• http://scielo.iics.una.py/scielo.php?script=sci_arttext&pid=S2307 33492018000100007

• https://www.paho.org/gut/dmdocuments/Modelo

de

atencion

integral

en

• https://ambientesdigital.com/villa m triptyque architecture/

salud

MSPAS. pdf

• https://www.siberzone.es/blog sistemas ventilacion/exigencias del certificado leed a los sistemas-de-ventilacion/

• https://www.certificadosenergeticos.com/ahorro eficiencia uso agua edificios entorno leed

• https://www.mundohvacr.com.mx/2013/07/hacia la certificacion leed/#:~:text=En%20t%C3%A9rminos%20porcentuales%2C%20una%20edificaci%C3%B 3n,en%20un%2070%20por%20ciento.

• https://inmobiliaria.cushmanwakefield.es/blog/certificacion leed categorias/

• https://www.mspbs.gov.py/portal/18842/en-paraguay-contamos-con-cuatro-tipos-deunidades de salud de la familia iexclconocelos.html

• https://elnuevoparaguayo.home.blog/2021/02/01/los carios los mas antiguos pobladores de-nemby/

• https://reformas10.com/informaciones/tipos de arquitectura sustentable/

Referencias Bibliográficas
_
_
_
_
_
_

Planos

12,06 30,12 PLANODEIMPLANTACION ESC.___1/100 PROFESIONAL PAT.Nº SUP.CONSTRUIR: DOMICILIO CTA.CTE.CTRAL PROPIETARIO SUP.TERRENO: PROFESIONAL UBICACION PROPIETARIO DOMICILIO SUP.CONSTRUIDA OBRA:UNIDADDESALUDFAMILIAR ÑEMBYLALOMITA MUNICIPALIDADÑEMBY NELCYFERNANDEZ-PABLOMARTINEZ TALLERVIIIG71 361m2 585.55m2m2 21DE SEPTIEMBRE 12,05 12,05 12,05 18 259312,05 30,12 30,12 30,12 12,05 12,05 12,05 18 17 2595 30,12 12,05 30,12 12,05 30,12 12,05 5 03 30,12 12,05 12,05 4 04 30,12 12,05 12,05 30,12 12,05 12,051 2 3 07 06 05 30,12 12,05 12,05110,25 103,7121 02 2594 PLANODEUBICACION ESC.___1/500
PROFESIONAL PAT.Nº SUP.CONSTRUIR: DOMICILIO CTA.CTE.CTRAL PROPIETARIO SUP.TERRENO: PROFESIONAL UBICACION PROPIETARIO DOMICILIO SUP.CONSTRUIDA OBRA:UNIDADDESALUDFAMILIAR ÑEMBYLALOMITA MUNICIPALIDADÑEMBY NELCYFERNANDEZ-PABLOMARTINEZ TALLERVIIIG71 361m2 585.55m2m2 VEREDA URGENCIAS ADMISIONYCAJA SALADEESPERA AMBULANCIA PASOPEATONAL PLANTABAJA ESC.___1/100 PRIMERPISO ESC.___1/100 SALADEESPERA SALADEESPERA SALADEOBSERVACION FARMACIA SALADEVACUNACION YEXTRACCIONDE MUESTRAS DEPOSITO SALIDADE EMERGENCIA CONSULTORIOPEDIATRICO ENFERMERIA AREATECHADA CONSULTORIOODONTOLOGICO CONSULTORIOMEDICOCLINICO A A B B C C D D A A B B C C D D
TERRAZA-PLANTASMEDICINALES LOSATECNICA TERRAZA-TECHO ESC.___1/100 SS.HH VESTUARIO LAVADOPLANCHADODEPOSITO KITCHENETTE AREADEDESCANSOGUARDIA TERRAZA-TECHO ESC.___1/100 A A B B C C D D A A B B C C D D PROFESIONAL PAT.Nº SUP.CONSTRUIR: DOMICILIO CTA.CTE.CTRAL PROPIETARIO SUP.TERRENO: PROFESIONAL UBICACION PROPIETARIO DOMICILIO SUP.CONSTRUIDA OBRA:UNIDADDESALUDFAMILIAR ÑEMBYLALOMITA MUNICIPALIDADÑEMBY NELCYFERNANDEZ-PABLOMARTINEZ TALLERVIIIG71 361m2 585.55m2m2
VEREDA URGENCIAS ADMISIONYCAJA SALADEESPERA AMBULANCIA PASOPEATONAL PLANTABAJA ESC.___1/100 PRIMERPISO ESC.___1/100 SALADEESPERA SALADEESPERA SALADEOBSERVACION FARMACIA SALADEVACUNACION EXTRACCIONDE MUESTRAS DEPOSITO SALIDADE EMERGENCIA CONSULTORIOPEDIATRICO ENFERMERIA AREATECHADA CONSULTORIOODONTOLOGICO CONSULTORIOMEDICOCLINICO A A B B C C D D A A B B C C D D SS.HH SS.HH CONSULTORIOMEDICOCLINICO SS.HH SS.HH 5,15 2,48 6,15 2,48 5,15 2,75 2,60 1,20 2,06 2,335,15 6,15 3,35 2,48 2,502,502,33 2,06 1,20 2,60 2,75 9,35 2,48 1,86 1,60 11,10 5,15 2,48 6,15 2,48 2,00 3,00 5,50 3,41 7,63 3,90 1,20 0,30 0,30 2,502,502,332,40 2,06 1,20 2,60 2,75 9,35 1,20 1,20 3,55 4,00 1,00 0,90 2,07 11,10 2,00 2,60 2,75 22,00 12,05 30,12 3,00 2,50 6,00 3,26 1,50 7,00 PROFESIONAL PAT.Nº SUP.CONSTRUIR: DOMICILIO CTA.CTE.CTRAL PROPIETARIO SUP.TERRENO: PROFESIONAL UBICACION PROPIETARIO DOMICILIO SUP.CONSTRUIDA OBRA:UNIDADDESALUDFAMILIAR ÑEMBYLALOMITA MUNICIPALIDADÑEMBY NELCYFERNANDEZ-PABLOMARTINEZ TALLERVIIIG71 361m2 585.55m2m2
TERRAZAPLANTASMEDICINALES LOSATECNICA TERRAZA-TECHO ESC.___1/100 SS.HH VESTUARIO LAVADOPLANCHADODEPOSITO KITCHENETTE AREADEDESCANSOGUARDIA A A B B C C D D 2,50 4,98 3,25 2,25 2,50 4,98 3,70 1,80 3,41 15,35 6,65 9,35 1,50 6,15 3,25 1,28 TERRAZA-TECHO ESC.___1/100 A A B B C C D D 3,90 6,45 1,00 6,40 7,58 6,30 3,79 3,79 3,15 3,15 3,60 3,16 15,70 3,15 3,15 9,75 6,30 1,00 1,00 1,35 1,48 PROFESIONAL PAT.Nº SUP.CONSTRUIR: DOMICILIO CTA.CTE.CTRAL PROPIETARIO SUP.TERRENO: PROFESIONAL UBICACION PROPIETARIO DOMICILIO SUP.CONSTRUIDA OBRA:UNIDADDESALUDFAMILIAR ÑEMBYLALOMITA MUNICIPALIDADÑEMBY NELCYFERNANDEZ-PABLOMARTINEZ TALLERVIIIG71 361m2 585.55m2m2

FACHADALATERAL

FACHADAFRONTAL
FACHADAPOSTERIOR PROFESIONAL PAT.Nº SUP.CONSTRUIR: DOMICILIO CTA.CTE.CTRAL PROPIETARIO SUP.TERRENO: PROFESIONAL UBICACION PROPIETARIO DOMICILIO SUP.CONSTRUIDA OBRA:UNIDADDESALUDFAMILIAR ÑEMBYLALOMITA MUNICIPALIDADÑEMBY NELCYFERNANDEZ-PABLOMARTINEZ TALLERVIIIG71 361m2 585.55m2m2
PROFESIONAL PAT.Nº SUP.CONSTRUIR: DOMICILIO CTA.CTE.CTRAL PROPIETARIO SUP.TERRENO: PROFESIONAL UBICACION PROPIETARIO DOMICILIO SUP.CONSTRUIDA OBRA:UNIDADDESALUDFAMILIAR ÑEMBYLALOMITA MUNICIPALIDADÑEMBY NELCYFERNANDEZ-PABLOMARTINEZ TALLERVIIIG71 361m2 585.55m2m2 PLANTABAJA ESC.___1/100 AREATECHADA SALADEESPERA ENFERMERIA CONSULTORIOPEDIATRICO SALADEVACUNACION YEXTRACCIONDE MUESTRAS FARMACIA SALADEESPERA PASOPEATONAL AMBULANCIA ADMISIONYCAJA URGENCIAS VEREDA PRIMERPISO ESC.___1/100 CONSULTORIOMEDICOCLINICOCONSULTORIOMEDICOCLINICO CONSULTORIOODONTOLOGICO DEPOSITO SALADEOBSERVACION SALADEESPERA TERRAZA-TECHO ESC.___1/100 CBP-PVC150mm CAÑOPVCØ150mm RESERVORIOCONSISTEMA DEBOMBEO SISTEMADEFILTRADO DESBORDEAL POZOABSORVENTE TRATAMIENTO AGUA DE LLUVIA RejillaPluvial 0.30x0.30m RejillaPluvial 0.40x0.40m RejillaPluvial 0.40x0.40m CBP-PVC150mm CBP-PVC150mmCBP-PVC150mm CBP-PVC150mm CBP-PVC150mmCBP-PVC150mmCBP-PVC150mmCBP-PVC150mm CBP-PVC150mm 1 CAÑO PVCØ150mm 1CAÑOPVCØ150mm CAÑOSPVCØ150mmCAÑOSPVCØ150mm3CAÑOSPVCØ150mm 3 CAÑOS PVCØ150mm 1 CAÑO PVCØ150mm CAÑOPVCØ150mm CBP-PVC150mm CBP-PVC150mm CBP-PVC150mmCBP-PVC150mm CBP-PVC150mmCBP-PVC150mmCBP-PVC150mmCBP-PVC150mm CBP-PVC150mm CBP-PVC150mm RejillaPluvial 0.30x0.30m RejillaPluvial 0.30x0.30m RejillaPluvial 0.30x0.30m RejillaPluvial 0.30x0.30m RejillaPluvial 0.30x0.30m RejillaPluvial 0.30x0.30m RejillaPluvial 0.30x0.30m DESAGÜECANTERO INTERNO RejillaPluvial 0.30x0.30m 1CAÑOPVCØ150mm CBP-PVC150mm CBP-PVC150mm CBP-PVC150mm CBP-PVC150mmCBP-PVC150mmCBP-PVC150mmCBP-PVC150mm CBP-PVC150mm CBP-PVC150mm
2,10 8,15 3,00 3,00 2,50 0,70 1,50 0,60 2,15 0,19 3,002,06 3,00 2,80 3,37 3,00 6,40 2,90 0,55 2,10 9,8210,15 2,50 3,00 2,15 2,90 0,55 7,72 2,10 3,009,82 3,00 2,50 2,702,703,15 3,00 2,15 2,15 3,15 3,00 1,00 3,37 2,10 CORTEA-A ESC.___1/100 CORTEB-B ESC.___1/100 PROFESIONAL PAT.Nº SUP.CONSTRUIR: DOMICILIO CTA.CTE.CTRAL PROPIETARIO SUP.TERRENO: PROFESIONAL UBICACION PROPIETARIO DOMICILIO SUP.CONSTRUIDA OBRA:UNIDADDESALUDFAMILIAR ÑEMBYLALOMITA MUNICIPALIDADÑEMBY NELCYFERNANDEZ-PABLOMARTINEZ TALLERVIIIG71 361m2 585.55m2m2
3,00 3,00 2,152,70 1,00 2,13 10,25 2,10 3,003,002,152,50 9,15 1,00 2,60 0,60 6,40 3,00 8,15 2,10 CORTED-D ESC.___1/100 CORTEC-C ESC.___1/100 PROFESIONAL PAT.Nº SUP.CONSTRUIR: DOMICILIO CTA.CTE.CTRAL PROPIETARIO SUP.TERRENO: PROFESIONAL UBICACION PROPIETARIO DOMICILIO SUP.CONSTRUIDA OBRA:UNIDADDESALUDFAMILIAR ÑEMBYLALOMITA MUNICIPALIDADÑEMBY NELCYFERNANDEZ-PABLOMARTINEZ TALLERVIIIG71 361m2 585.55m2m2
PROFESIONAL PAT.Nº SUP.CONSTRUIR: DOMICILIO CTA.CTE.CTRAL PROPIETARIO SUP.TERRENO: PROFESIONAL UBICACION PROPIETARIO DOMICILIO SUP.CONSTRUIDA OBRA:UNIDADDESALUDFAMILIAR ÑEMBYLALOMITA MUNICIPALIDADÑEMBY NELCYFERNANDEZ-PABLOMARTINEZ TALLERVIIIG71 361m2 585.55m2m2
PROFESIONAL PAT.Nº SUP.CONSTRUIR: DOMICILIO CTA.CTE.CTRAL PROPIETARIO SUP.TERRENO: PROFESIONAL UBICACION PROPIETARIO DOMICILIO SUP.CONSTRUIDA OBRA:UNIDADDESALUDFAMILIAR ÑEMBYLALOMITA MUNICIPALIDADÑEMBY NELCYFERNANDEZ-PABLOMARTINEZ TALLERVIIIG71 361m2 585.55m2m2 0,150,40 3,002,70 0,150,30 3,00 2,70 0,30 PLANTADEENCOFRADO ESC.___1/100 PLANODEFUNDACION ESC.___1/100 CORTEHºAº ESC.___1/100 A B F 1 3 4 6 7 8 A F 1 3 4 6 7 8 G G C D D E 2 5 L3L2L1 L4 L5 L6 L7 L8 L9 L10 L11 L13L12 A B F 1 3 4 6 7 8 A F 1 3 4 6 7 8 G G C D D E 2 5 P1 P2 P3 P4 P5 P6 P7 P8 P9 P10 P11 P12 P13 P14 P21P20P19 P24P23 P18P17 P22 P16P15 AREATANQUE PCI 2,65 2,65 2,48 6,30 2,48 5,30 3,36 2,29 1,21 2,35 1,35 5,302,482,254,052,485,30 1,35 3,56 2,75 2,90 3,35 6,15 3,36 3,55 1,15 2,25 P1 P2 P3 P4 P5 P6 P7 P8 P9 P10 P11 P12 P13 P14 P21P20P19 P24P23 P18P17 P22 P16P15 Z1 Z2 Z3 Z4 Z5 Z6 Z7 Z8 Z9 Z10 Z11 Z12 Z15 Z16 Z17 Z18 Z19 Z20 Z13 Z14 Z21ZAPATA COMBINADA ZAPATA COMBINADA ZAPATA COMBINADA 1,20 0,30 0,15 2,03 1,20 0,40 0,15 2,65 2,65 2,48 6,30 2,48 5,30 3,36 2,29 1,21 2,35 1,35 5,302,482,254,052,485,30 1,35 3,56 2,75 2,90 1,20 AREATANQUES FIBRA 3,00 1,60 11,15

INSTALACIONHIDROSANITARIA

TRATAMIENTOSAGUASNEGRASYGRISES

ESQUEMADETRATAMIENTOS

PROFESIONAL PAT.Nº SUP.CONSTRUIR: DOMICILIO CTA.CTE.CTRAL PROPIETARIO SUP.TERRENO: PROFESIONAL UBICACION PROPIETARIO DOMICILIO SUP.CONSTRUIDA OBRA:UNIDADDESALUDFAMILIAR ÑEMBYLALOMITA MUNICIPALIDADÑEMBY NELCYFERNANDEZ-PABLOMARTINEZ TALLERVIIIG71 361m2 585.55m2m2 RESERVORIOCONSISTEMA DEBOMBEO BOMBEO AL SISTEMA PARA RIEGO ATOMATICO VIENEDELOS REGISTROSPLUVIALES VIENEDELA CAMARADEINSPECCION DESBORDE POZOABSORVENTE TRATAMIENTOAGUADELLUVIA TRATAMIENTODEAGUASGRISES CAMARASEPTICA TRATAMIENTOAGUASNEGRAS CAMARASEDIMENTOS SISTEMADEFILTROS SISTEMADEFILTROS
SUBE AL TANQUE DOSTANQUESDE5000LTS DISTRIBUCION EN PISOS VOLUMENDELTANQUE HOSPITALES350LTSCAMA 350 CAMAS:3150LTSDEUSOPORDÍA SEESTIMAELUSODELTANQUEPARADÍAS TOTAL:9450LTSSEUSARATANQUESTIPOVASO 5000LTSDEFIBRADEVIDRIO CAÑERIAPRINCIPAL:CONSIDERANDOTIEMPO DELLENADOHORAS Q:10.000LTS(2X3600):1.39LTS/SEG DIAM.32mm(1 ")
RESERVORIOCONSISTEMA DEBOMBEO CAMARASEDIMENTOS SISTEMADEFILTROS POZOABSORVENTE CAMARASEPTICA TRATAMIENTOAGUASNEGRAS AGUASGRISES AGUASNEGRAS DESBORDEAPOZOABSORVENTE BOMBEO AL SISTEMA PARA RIEGO ATOMATICO SISTEMADEFILTROS RECOLECCIONREGISTROSAGUADELLUVIA
RECOLECCIONAGUADELLUVIAYRIEGO
PROFESIONAL PAT.Nº SUP.CONSTRUIR: DOMICILIO CTA.CTE.CTRAL PROPIETARIO SUP.TERRENO: PROFESIONAL UBICACION PROPIETARIO DOMICILIO SUP.CONSTRUIDA OBRA:UNIDADDESALUDFAMILIAR ÑEMBYLALOMITA MUNICIPALIDADÑEMBY NELCYFERNANDEZ-PABLOMARTINEZ TALLERVIIIG71 361m2 585.55m2m2 PLANTABAJA ESC.___1/100 AREATECHADA SALADEESPERA ENFERMERIA CONSULTORIOPEDIATRICO SALADEVACUNACION YEXTRACCIONDE MUESTRAS FARMACIA SALADEESPERA PASOPEATONAL AMBULANCIA ADMISIONYCAJA URGENCIAS VEREDA PRIMERPISO ESC.___1/100 CONSULTORIOMEDICOCLINICOCONSULTORIOMEDICOCLINICO CONSULTORIOODONTOLOGICO DEPOSITO SALADEOBSERVACION SALADEESPERA TERRAZA-TECHO ESC.___1/100 AREADEDESCANSOGUARDIA KITCHENETTE LAVADOPLANCHADO-DEPOSITO VESTUARIO SS.HH LOSATECNICA TERRAZAPLANTASMEDICINALES DESAGUE AGUAS NEGRAS CAMARASEPTICA ALPOZO ABSORBENTE POZOABSORVENTE BAJOARBORIZACION PLANTEADAENLAPLAZA CBC-PVCØ100mm A.NEGRAS CBC-PVCØ100mm A.NEGRAS CBC-PVCØ100mm A.NEGRAS PVCØ100mm PVCØ100mm PVCØ100mm PVCØ100mm PVCØ100mm PVCØ100mm PVCØ100mm PVCØ100mm PVCØ100mm PCVØ75mm PVCØ50mm PVCØ100mm PVCØ100mm CBC-PVCØ100 A.GRISES CBC-PVCØ100 A.GRISES CBC-PVCØ100 A.GRISES CBC-PVCØ100 A.GRISES CBC-PVCØ100 A.GRISES
PROFESIONAL PAT.Nº SUP.CONSTRUIR: DOMICILIO CTA.CTE.CTRAL PROPIETARIO SUP.TERRENO: PROFESIONAL UBICACION PROPIETARIO DOMICILIO SUP.CONSTRUIDA OBRA:UNIDADDESALUDFAMILIAR ÑEMBYLALOMITA MUNICIPALIDADÑEMBY NELCYFERNANDEZ-PABLOMARTINEZ TALLERVIIIG71 361m2 585.55m2m2 PLANTABAJA ESC.___1/100 AREATECHADA SALADEESPERA ENFERMERIA CONSULTORIOPEDIATRICO SALADEVACUNACION YEXTRACCIONDE MUESTRAS FARMACIA SALADEESPERA PASOPEATONAL AMBULANCIA ADMISIONYCAJA URGENCIAS VEREDA PRIMERPISO ESC.___1/100 CONSULTORIOMEDICOCLINICOCONSULTORIOMEDICOCLINICO CONSULTORIOODONTOLOGICO DEPOSITO SALADEOBSERVACION SALADEESPERA TERRAZA-TECHO ESC.___1/100 AREADEDESCANSOGUARDIA KITCHENETTE LAVADOPLANCHADODEPOSITO VESTUARIO SS.HH LOSATECNICA TERRAZAPLANTASMEDICINALES C.I0.45x0.45C.I0.45x0.45CAMARADESEDIMENTOS SISTEMADEFILTRADO AQLJIBECONSISTEMA DEBOMBEOPARARIEGO CBC-PVCØ100 A.GRISES DESBORDEAL POZOABSORVENTE DESAGUE AGUAS GRISES CBC-PVCØ100 A.GRISES C.I0.45x0.45 CBC-PVCØ100 A.GRISES PCVØ75mm PVCØ50mm PVCØ100mm PVCØ100mm PVCØ50mm PVCØ75mm PVCØ75mm PVCØ50mm PVCØ100mm PVCØ100mm PVCØ50mm PVCØ75mm PVCØ75mm PVCØ50mm PCVØ75mm PVCØ50mm PVCØ100mm PVCØ100mm PVCØ50mm PVCØ75mm PVCØ75mm PVCØ50mm PVCØ100mm PVCØ75mm PVCØ50mm PVCØ50mm PVCØ75mm PVCØ50mm PVCØ50mm CBC-PVCØ100mm A.NEGRAS CBC-PVCØ100mm A.NEGRAS CBC-PVCØ100mm A.NEGRAS CBC-PVCØ100 A.GRISES CBC-PVCØ100 A.GRISES
PROFESIONAL PAT.Nº SUP.CONSTRUIR: DOMICILIO CTA.CTE.CTRAL PROPIETARIO SUP.TERRENO: PROFESIONAL UBICACION PROPIETARIO DOMICILIO SUP.CONSTRUIDA OBRA:UNIDADDESALUDFAMILIAR ÑEMBYLALOMITA MUNICIPALIDADÑEMBY NELCYFERNANDEZ-PABLOMARTINEZ TALLERVIIIG71 361m2 585.55m2m2 PLANTABAJA ESC.___1/100 AREATECHADA SALADEESPERA ENFERMERIA CONSULTORIOPEDIATRICO SALADEVACUNACION EXTRACCIONDE MUESTRAS FARMACIA SALADEESPERA PASOPEATONAL AMBULANCIA ADMISIONYCAJA URGENCIAS VEREDA PRIMERPISO ESC.___1/100 CONSULTORIOMEDICOCLINICOCONSULTORIOMEDICOCLINICO CONSULTORIOODONTOLOGICO DEPOSITO SALADEOBSERVACION SALADEESPERA TERRAZA-TECHO ESC.___1/100 AREADEDESCANSOGUARDIA KITCHENETTE LAVADOPLANCHADODEPOSITO VESTUARIO SS.HH LOSATECNICA TERRAZAPLANTASMEDICINALES CANILLADE SERVICIO M SUBEALTANQUE ELEVADO LLEGAALTANQUE 5000LTS CANILLA Bajadaagua INSTALACION HIDROSANITARIA Bajadaagua TANQUEPCI 30.000LTS PVCØ11/4"PVCØ11/4" PVCØ3/4" PVCØ3/4" Bajadaagua PVCØ PVCØ1/2"PVCØ1/2" PVCØ3/4" PVCØ3/4" PVCØ3/4" PVCØ1/2" PVCØ1/2" PVCØ1/2" PVCØ1/2" SUBEALTANQUE ELEVADO PVCØ11/4" 5000LTS PVCØ3/4"PVCØ3/4" PVCØ3/4" PVCØ1/2" PVCØ1/2" PVCØ1/2" PVCØ1/2" PVCØ1/2" PVCØ1/2" PVCØ1/2" PVCØ1/2" PVCØ3/4" PVCØ3/4" PVCØ11/4" PVCØ11/4" PVCØ11/4"
PROFESIONAL PAT.Nº SUP.CONSTRUIR: DOMICILIO CTA.CTE.CTRAL PROPIETARIO SUP.TERRENO: PROFESIONAL UBICACION PROPIETARIO DOMICILIO SUP.CONSTRUIDA OBRA:UNIDADDESALUDFAMILIAR ÑEMBYLALOMITA MUNICIPALIDADÑEMBY NELCYFERNANDEZ-PABLOMARTINEZ TALLERVIIIG71 361m2 585.55m2m2 PLANTABAJA ESC.___1/100 AREATECHADA SALADEESPERA ENFERMERIA CONSULTORIOPEDIATRICO SALADEVACUNACION YEXTRACCIONDE MUESTRAS FARMACIA SALADEESPERA PASOPEATONAL AMBULANCIA ADMISIONYCAJA URGENCIAS VEREDA PRIMERPISO ESC.___1/100 CONSULTORIOMEDICOCLINICOCONSULTORIOMEDICOCLINICO CONSULTORIOODONTOLOGICO DEPOSITO SALADEOBSERVACION SALADEESPERA TERRAZA-TECHO ESC.___1/100 AREADEDESCANSOGUARDIA KITCHENETTE LAVADOPLANCHADO-DEPOSITO VESTUARIO SS.HH LOSATECNICA TERRAZAPLANTASMEDICINALES TANQUEDEAGUA FILTRADAPARA RIEGO TANQUEDEAGUA POTABLE RIEGO POR GOTEO PLANTAS DE PROTECCION RIEGOPORGOTEOPLANTASDEPROTECCION RIEGOPORGOTEOPLANTASDEPROTECCIONRIEGOPORGOTEOPLANTASDEPROTECCION BAJADA DISTRIBUCION SUBIDA DISTRIBUCION BAJADAY DISTRIBUCION BAJADA DISTRIBUCION TANQUEDEAGUA POTABLE RIEGO POR GOTEO PLANTAS DE PROTECCION RIEGOPORGOTEOPLANTASDEPROTECCION RIEGOPORGOTEOPLANTASDEPROTECCIONRIEGOPORGOTEOPLANTASDEPROTECCION SUBIDA DISTRIBUCION RIEGOPLANTAS DEPROTECCION SUBIDAY DISTRIBUCION SUBIDA DISTRIBUCIONSUBIDAY DISTRIBUCION RIEGO CANTERO SISTEMA DE RIEGO AQLJIBECONSISTEMA DEBOMBEOPARARIEGO RIEGOPLANTAS DEPROTECCION CANILLADE SERVICIO SUBIDARIEGO PLANTASMEDICINALES SUBIDARIEGO PLANTASMEDICINALES SUBIDA DISTRIBUCIONSUBIDAY DISTRIBUCION SUBIDAY DISTRIBUCION

Turn static files into dynamic content formats.

Create a flipbook
Issuu converts static files into: digital portfolios, online yearbooks, online catalogs, digital photo albums and more. Sign up and create your flipbook.