Skip to main content

Internship portfolio

Page 1

Portfolio

ARCHITECTURE STUDENT

Presentedby

Department of Architecture

Dharan-8, Sunsari

NehaSiwakoti IOE PURWANCHAL CAMPUS

+977-9825381814

NEHA SIWAKOTI

ARCHITECTUREINTERNSHIP

nehasiwakoti467@gmail.com

Madhumara-8, Biratnagar

To.

The Senior Architect,

Respected Sir/Ma’am,

I am a Student currently studying Bachelor in Architecture 3rd year at Institute of Engineering Tribhuwan University Purwanchal Campus, Dharan. As we are near the end of the 6th semester where we seek for the creative firm so this application is a letter of request for an internship position in your firm as i have been following the works of your firm lately and the works are highly impressive and interesting to me not only the work but the environment of your firm also seems interesting.

The way your firm makes effort to give a friendly environment and good guidance with extra time for those who are seeking to learn new things and ideas makes me to be part of your team and learn from you .Under your guidance it will help me to grow in different aspect of architecture. I would love the opportunity to gain lots of experience and expand my skill and working method in your firm and will render my service with utmost sincerity, with continue learning and gaining knowledge.

Please consider this application for an internship position with your firm . I would appreciate an opportunity to further discuss my qualification and internship opportunities over call/ mail.

Thank you for your time

Sincerely,

NEHA SIWAKOTI

Architectural Internship

Education History

Saptokoshi Secondary English Boarding School ( SEE)

Year of Graduation: 2074

Shikshadeep higher secondary school

Year of graduation (10+2)

Year of graduation : 2076

Purwanchal Engieering Campus

Bachelor In Architecure (2077-2082)

Participation and Experiences

PR and Marketing vice coordinator

National level technical festival, Delta 3 0

Public Relation Head

Purwanchal Architectural Exhibition- 2.0, YATRA

Participated in Make-A-Thon, Bridge making competition, Delta 3.0

Participated in Design-A-Thon Cow shed design competition, Delta 3.0

Trainings

15 days Autocad Training, CESS, IOE Purwanchal Campus

3 Days Photoshop Training

SOAS, IOE Purwanchal Campus

Hobbies

Contact Info Relevant
+977-9825381814
Biratnagar
Skills
nehasiwakoti467@gmail.com Madhumara-8,
DharanBhanuchowkRedesign (Prototype) Residential Building EthnographicMuseum Listof portfolio 01 School Design Convention and exhibition center 02 03 04 05

DHARAN BHANU CHOWK REDESIGN (PROTOTYPE)

DESIGN CONCEPTS:

A. UNDERPASS FACILITATING NW- ROAD

.

Bhanu chowk experiences dense traffic (vehicular as well as pedestrian ) consequently making the area crowed .

Disordered parking space ,waiting area ,picks off and drops market place leads to gridlock.

While disorganization and overcrowding makes it challenging for pedestrains to navigate the plaza safely .

DESIGN APPROACH

Introducing an underpass that support the larger distances vehicular movement along with the parking space .

Directing the flow of surway that is moving out of the city either toward Dhankuta (north )or Ithari (south)

Spliting the traffic into the surface level and an underpass has varying advantages Tampo parking has been facilatated at the ground level rather than the NW underpass considering its local types

B .COMMUNITY SPACE

The major part of the central dharan ie.Bhanu chowk plaza redesigned to meet the blooming city need of recreational space

Central place for gathering and interactive activities .

Existing park along with its iconic structure like Dharan clock tower ,Ganesh temple and nearby bhanu statue

Existing stalls and small scale business setups positioned adjacent to local tampoo

Community hall with library at the upper level library assessible via external stairs which is passes throufh the lower level

Terrace over looking the plaza

1.Tempo

2.Stalls

3.Dharan

1 2 3 4 5
PLAN
parking
and market
clock tower
INDEX GroundFloorPlan BasementFloorPlan
4.Library 5.Oat

MODELS WORKS

SECTIONS

longitudinal section Horizontal section

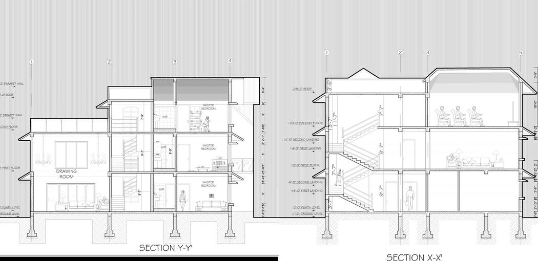
RESIDENTIAL PROJECT

Project name -Residential project

Location -Bijaypur ,Dharan 14

INTRODUCTION

The requirement of the project was general existing Master badroom for grandparents ,parents and their 2 children son and daughter .one living hall for guests and one family gathering hall and theater

CHALLENGES

To protect the building from the west strong wind

There is a good view of the horizon dharan bazar,and hills .

The panorama view of the west by protecting the building from the scorching light of the south and west

PLANNING

Double height living room ,to protect from heat .

Deck for view.

Big backyard in the backside for a family function

Ground floor plan

First floor plan Second floor plan

ISOMETRIC VIEW OF S-W

ISOMETRIC VIEW OF S-E

ISOMETRIC VIEW OF N-E

ISOMETRIC VIEW OF N-W

SCHOOL DESIGN

Location: Panmara Dharan

Class: Kindergarten to 12

Project Brief

A school is a type of educational facility created to offer classroom and other learning settings where students can learn under the guidance of teachers.

Self-learning, relishing nature, practical knowledge, and enhancing self-discipline by using both close and open spaces to study

Using geometric relations and design principles in design development.

CONCEPT

Ppathway functional and aesthetic

Respond to the windflow , view ,hills as a sound carriers

Arrangement of block according to shape of site

DESIGN DEVELOPMENT

MASTER PLAN

Sitting space
canteen area
Parapet
stairs near
around playground space
Stone pit
sitting

TERAI ETHNOGRAPHIC MUSEUM

Project -Terai ethnographic Museum

Location -Betana ,Morang

CONCEPT

Provision of skyllight water bodies

Display technique

PLAN Sheet work First floor plan MASTER PLAN
MASTER

CONVENTION AND EXHIBITION CENTRE

Ongoing project

Model works

Villa savoye ,France le Corbusier’s “Five points”

Remodeling

of library

1st and 2nd sem projects

Water color and paintings

+977-9825381814 nehasiwakoti467@gmail.com Madhumara-8, Biratnagar

Turn static files into dynamic content formats.

Create a flipbook
Internship portfolio by Neha Siwakoti - Issuu