



![]()





Nicholas LOR
Architecte DE
Contacts
· 06 51 52 12 71
· nicholas.nclm@gmail.com
· Paris - 75013
Titulaire du Diplôme d’état d’architecte à l’ENSA de Versailles, mon parcours académique et personnel a profondément influencé ma perception de l’architecture et mes aspirations professionnelles.
D’origine cambodgienne et ayant grandi en France, ce mélange culturel dans lequel je me suis construit m’a permis de développer un regard sensible sur le monde qui m’entoure et d’éveiller mon intérêt pour la diversité des codes et symboles culturels qui (co)existent.
La présence de cette richesse culturelle, manifestée à travers une variété de rites et de gestes propres à chacun.e, a suscité en moi un vif intérêt pour la dimension sociale de l’architecture et les questions sociétales.
Cela m’amène ainsi à me questionner sur le sens de mes intentions lors de la conceptualisation d’un projet, que ce soit dans la réflexion sur le design d’un mobilier ou des éléments structuraux d’un bâtiment.
Ouvert à l’univers artistique, plastique et de la création, je pratique le dessin à la main depuis mon plus jeune âge, ainsi que certaines techniques telles que l’aquarelle. Je considère que ces outils représentent un langage qui favorise les échanges et permet de partager notre compréhension de l’environnement.
Aujourd’hui, c’est en puisant dans ces sources d’inspiration qui me construisent que je souhaite orienter ma vision de l’architecture et enrichir mes réflexions.
2025 - 1 semaine
ÉCORCE & WOOD
Immersion professionelle -
observation du travail de manutention à travers l’installation de mobiliers en bois sur site, avec participation aux étapes allant du déchargement à l’assemblage, jusqu’aux finitions
2024-2025 - 6 mois
NATURE & DÉCOUVERTES
Poste de vendeur guide conseil et hôte de caisse -
2023 - 6 mois
BLOOM ARCHITECTURE
Stage en agence d’architecture -
participation dans un concours pour l’extension et la rénovation d’un établissement scolaire à Phnom Penh (Cambodge) et réalisation de maquettes et conception de dessins 2D pour des projets de logements et de l’Institut Pasteur du Cambodge
2021 - 2 mois
BUREAU D’ÉTUDES EL MAAROUFI - OUAHIDI
Stage en agence d’architecturesuivi d’un projet de villas en co-propriété + bâtiment de logements sociaux
2011 - 1 semaine
SARL D’ARCHITECTURE BECKMANN - N‘THÉPÉ
Stage de découverte professionnelle -
initiation au logiciel de modélisation 3D; initiation à la réalisation de maquette; aide de relevés de plan lors d’une observation de chantier
FORMATIONS
2017-2024
ÉCOLE NATIONALE SUPÉRIEURE D’ARCHITECTURE DE VERSAILLES
Diplôme Licence et Master
2021-2022
CHULALONGKORN UNIVERSITY
Cycle Master
LANGUES PARLÉES
Français | Anglais | Khmer
COMPÉTENCES
Conception de dessin 2D - Modélisation 3D
Rhino | Autocad | SketchUp | V-Ray | Revit | Enscape
Édition et création graphique
Adobe Photoshop | Adobe Illustrator
PAO
Adobe Indesign | Microsoft Word, Excel, Powerpoint
Manuelles
Dessin à main levée | Fabrication de maquette
INTÉRÊTS
Dessin | Design | Arts | Artisanat | Mode | Activités manuelles | Voyages | Jardinage | Jeux-vidéos | Architecture



JIEVIT - Instants de vie
Projet de fin d’études
Atelier Paola SCARAMUZZA
AMORPHOSES - Territoires d’ é changes
Master 2ème année
Atelier Claire PETETIN
FLOW - Expression des communautés
Master 1ère année
Atelier Aj. Sorachai KORNKASEM
TRANSPOSITION(S) - Tissage des liens
Master 2ème année
Atelier Luc REGIS
ORI - Des vies, une prospérité
Licence 3ème année
Atelier Erwan BONDUELLE
CULTURAL ECOTONE
Stage
Agence BLOOM Architecture
IO - Le lac dormant
Licence 2ème année
Atelier Eva MALOISEL
Projet de fin d’études
Atelier Paola SCARAMUZZA
Réhabilitation et transformation d’un site à Phom Penh





Ce projet explore le contexte urbain et ses enjeux sociétaux, en tenant compte de l’histoire, des pratiques culturelles et des dynamiques sociales locales.
Situé au cœur du district de Daun Penh, il observe comment le développement rapide et les investissements transforment le paysage urbain et le patrimoine, accentuant parfois la déconnexion entre habitant.e.s et ville.
La démarche combine analyse objective et approche sensible pour mettre en lumière la morphologie urbaine et les comportements sociaux.
La réhabilitation concerne un ancien commissariat et une halle, transformés en logements et espace multifonction, tout en préservant la lecture de leur identité et leur trame historique.
L’objectif est de favoriser l’appropriation progressive du site, d’améliorer sa porosité avec la ville et de concilier mémoire, usages contemporains et vie urbaine dynamique.








































Outils flexibles et espaces interactifs
Ce projet questionne l’espace inclusif et la manière dont celui-ci peut être transformé par des outils flexibles et malléables, permettant une interaction directe avec l’environnement.
Ces dispositifs, appelés «amorphoses», sont fabriqués à partir de procédés artisanaux combinant tissus et matières textiles recyclées.
Chaque élément est pensé pour susciter une expérience sensorielle, développer la curiosité et faciliter la familiarisation entre deux corps: celui de l’humain et du matériau souple, ouvrant ainsi de nouvelles formes d’usage et d’interaction avec l’espace.
L’intention est de dissoudre les barrières et de s’affranchir des visions préconçues de l’espace, tout en incluant et célébrant la diversité des identités et des expressions.
Ces outils permettent d’explorer des pratiques collectives et individuelles, ouvrant la voie à une conception alternative des espaces en architecture, où la participation, la transformation et l’expérimentation sont au centre de l’expérience.







Pavillons dans le parc Benjakitti, Bangkok
Ce projet imagine une série de pavillons implantés au cœur du parc Benjakitti, conçus comme des espaces ouverts et inclusifs dédiés à la création, à l’expression artistique et au dialogue social.
Inscrites dans le paysage luxuriant du parc, entre végétation tropicale, bassins et sentiers piétons, ces structures légères prolongent la continuité du sol et s’intègrent harmonieusement à leur environnement.
Leur architecture sobre et poreuse privilégie la ventilation naturelle, l’ombre et la fusion entre intérieur et extérieur.
Chaque pavillon devient une plateforme vivante d’échanges et de performances, où artistes, habitant.e.s et visiteur.euse.s se rencontrent, créent ou se reposent, et où expositions temporaires, ateliers, concerts et installations se déploient librement au rythme du parc.
L’ensemble instaure un dialogue entre architecture et environnement, entre expression humaine et paysage urbain, proposant une nouvelle manière de vivre la ville, sensible, partagée et en mouvement.









Atelier Luc REGIS
Ce projet s’inscrit dans une démarche de réemploi et de valorisation des matériaux, en interrogeant comment traditions, artisanat et culture peuvent nourrir une approche contemporaine et responsable de l’architecture.
Inspiré d’une expérience immersive en Thaïlande, il explore aussi les liens familiaux et communautaires ainsi que les échanges intergénérationnels et interculturels à travers la matière et le geste artisanal.
La fibre de coco devient ici un matériau porteur d’histoire et d’identité, dont la transformation révèle ses qualités écologiques, sa durabilité et son potentiel de réemploi.
Les prototypes et installations réalisés traduisent une recherche sur la modularité, la légèreté et la flexibilité, ouvrant la voie à des structures éphémères ou nomades adaptables à différents contextes.
Au-delà de l’expérimentation matérielle, le projet propose une réflexion poétique sur notre rapport à la matière, à la mémoire et à la transmission, offrant une vision sensible d’une architecture en mouvement, respectueuse des ressources, des cultures locales et des liens humains.






Relecture contemporaine du logement collectif à la Butte Rouge
Implanté dans la cité-jardin de la Butte Rouge, ce projet propose une nouvelle lecture du logement collectif, visant à rétablir le lien entre habitants, architecture et paysage.
L’intervention met en valeur le bâti existant et accompagne l’évolution des usages et des modes de vie.
Le projet se déploie en deux temps: d’abord, une réhabilitation intégrant une double façade en brique, la réorganisation des espaces intérieurs, l’ajout de loggias et des équipements améliorant confort et accessibilité; ensuite, une surélévation en structure bois introduit de nouvelles typologies de logement et des espaces partagés modulables.
Cette transformation douce respecte l’identité patrimoniale et le cadre paysager, tout en stimulant la mixité, le confort et la vie collective.






PLANCHER SURÉLÉVATION
Revêtement
Panneau en fibre de bois
Pare-vapeur
Planche OSB
Montants bois
Isolant en laine de verre
Voile travaillant
Pare-vapeur
Plaque de plâtre
FAÇADE SURÉLÉVATION
Bardage bois
Contre-lattage et lame d’air ventilée
Pare-pluie
Isolant extérieur en fibre de bois
Pare-vapeur
Isolant intérieur laine de verre
Contreventement OSB
Contre-lattage et vide technique
Revêtement en plâtre
PLANCHER MANIPULATION DE L’EXISTANT
Revêtement
Contre-lattage et vide technique
Dalle béton
Isolant en laine de verre
Pare-vapeur
Plaque de plâtre
FAÇADE MANIPULATION DE L’EXISTANT
Enduit à la chaux
Brique isolante
Brique porteuse
Béton porteur
Pare-pluie
Isolant en laine de verre
Pare-vapeur
Vide technique
Plaque de plâtre

Détails constructifs
Existant manipulé STUDIO NORD
Existant manipulé

Existant manipulé










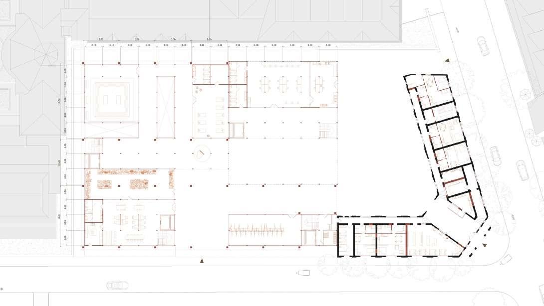
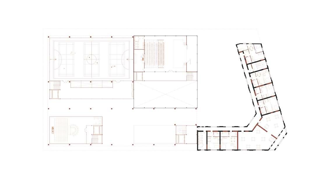
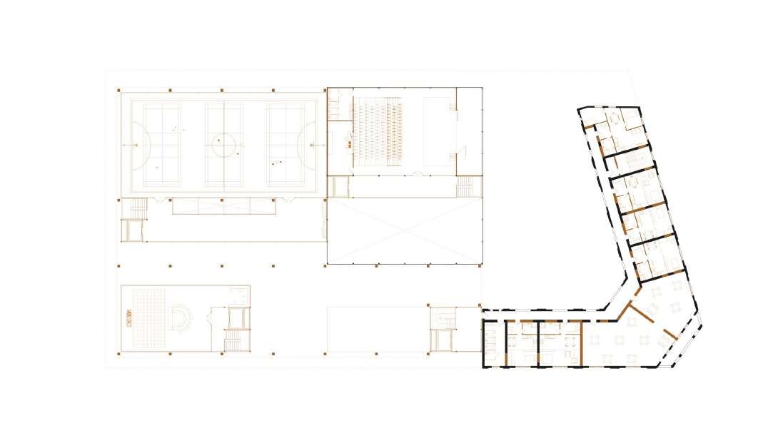
Extension et rénovation du Lycée Français René Descartes, Phnom Penh
Ce projet, issu d’un concours organisé par l’établissement, répond à la volonté d’accueillir un plus grand nombre d’élèves tout en améliorant le confort et les fonctionnalités du site existant.
Il propose une intervention en trois phases: construction d’une nouvelle aile pour l’école élémentaire, extension de l’école maternelle et de la cantine, et ajout d’un bâtiment pour l’école secondaire. L’ensemble constitue un campus cohérent, facilitant la circulation et la lisibilité des espaces pédagogiques.
L’approche valorise les structures existantes, harmonise les fonctions pédagogiques et les espaces communs, et intègre des solutions bioclimatiques adaptées au climat tropical du Cambodge, avec des espaces végétalisés favorisant convivialité et échanges.
La démarche durable et évolutive optimise les interventions, tout en révélant le potentiel patrimonial et symbolique de l’établissement dans son contexte culturel et historique.
Détails du projet: https://www.bloom-architecture.com/lfrd







IO - Le lac dormant
Imaginer les «Maisons mondes»
Inscrit dans la thématique des «Maisons mondes», ce projet explore la mise en scène d’une vie collective au sein d’un contexte naturel spécifique. Conçue pour trois personnes, la maison interroge les notions d’intimité, de partage et de cohabitation à travers une organisation spatiale à la fois ouverte et protectrice.
L’approche cherche à révéler les qualités du site tout en considérant la maison comme une machine de vie, génératrice d’échanges, d’expériences et de rituels quotidiens.
La disposition des espaces, ouverts, intimes ou communs, propose une transition fluide entre différentes échelles de vie, effaçant les limites entre soi, l’autre et le paysage.
La forme en L symbolise le déroulement d’une journée, tandis que les espaces de repos, placés au cœur du dispositif, deviennent des repères sensibles articulant rythme et usages.
Le projet développe ainsi une narration spatiale et humaine, favorisant les liens, la convivialité et la contemplation, tout en offrant une vision poétique d’un habitat partagé et évolutif.










