PORTAFOLIO-HOSPITAL II CAJAMARCA, PERÚ

Page 1

GRUPO 10

Taller de proyectos Arquitectonicos

1 U P N
TALLERDEPROYECTOSARQUITECTÓNICOS7
CATEDRAL DE CAJAMARCA-PERÚ 2 U P N

GRUPO 10 DICIEMBRE 2022

INTRODUCCIÓN

Como estudiantes de séptimo ciclo de la carrera de arquitectura en la Universidad Privada del Norte, en este taller 7 hemos tenido nuevos retos y sobre todo la oportunidad de ampliar nuestros conocimientos a través de las investigaciones.

La base para poder investigar y experimentar conceptos totalmente nuevos vinculados al ámbito hospitalario han sido un éxito, y todo fue posible gracias a la cátedra dirigida por los arquitectos Elmer Miky Torres Loyola y Cynthia Ligia Valera Cabana, por otro lado, el apoyo mutuo entre compañeros ha sido de gran ayuda, ya que el visualizar y escuchar cada critica nos a fortalecido en conocimiento para una mejor entrega semana a semana.

El proyecto a desarrollarse es de un centro Hospitalario tipo II 2, donde se evidenciará el resultado final de todo lo aprendido a través de planos arquitectónicos muy bien detallados, detalles constructivos de dicho proyecto y más. Todo esto es en base y fundamentado con las Normas Técnicas de Salud N° 110-MINSA y el Reglamento Nacional de Edificaciones del Perú.

3 U P N
4 U P N

GRUPO 10 DICIEMBRE 2022

Universidad Privada del Norte

Facultad de Arquitectura y Diseño Arquitectura y Urbanismo

Portafolio Arquitectura Septimo ciclo Cipiran León Nicolle Hernández Vásquez Nayely Avila Esquen Jordin 2022 - 11

Derechos reservados

No se permite la reproducción parcial o total de esta obra, ni su incorporación a un sistema informático, ni su transmisipon por cualquier medio sin consentimiento y autorización previa y por escrito de los autores. Todos los derechos reservados.

5 U P N
10 DICIEMBRE 2022 6 U P N
GRUPO

GRUPO 10 DICIEMBRE 2022

Cajamarca CENTRO HOSPITARIO

7 U P N
10 DICIEMBRE 2022 8 U P N
GRUPO

NICOLE CIPIRAN LEON

PERFIL PROFESIONAL

Estudiante de octavo semestre de la Universidad Privada del Norte , interesada en el diseño arquitectónico Con capacidad de planeacción, análisis, innovación, creatividad y trabajo en equipo. A demás de contar con diversas habilidades y aprendizajes en medios digitales y de comunicación.

Concibo arquitectura como un arte integral que va más allá de una transformación espacial, esta reúne consigo y en el proceso diversas disciplinas que permiten una formación holística con una reinvención constante del pensar la forma, función y ciudad

CONTACTO REDES 945012082 n00248503@upnpe ncipiranleon@gmailcom Instagram: nickcl18
GRUPO 10 DICIEMBRE 2022 9 U P N
Español Inglés
IDIOMAS HERRAMIENTAS DIGITALES 2019 I 2019 II 2020 II 2021 I 2021 II 2022 I 2022 II Composición Jerarquica Unifamiliares Unifamiliares y multifamiliares Centro Civico Centro
Hospital
Nativo Autocad sKetchUp Adobe Photoshop Adobe Ilustrator Lumion V Ray Enscape Twinmotion GRUPO 10 DICIEMBRE 2022 10 U P N
PROYECTOS
de Salud /
Centro Comunal /Bambú Centro Comercial / Acero

NAYELY HERNÁNDEZ VÁSQUEZ

PERFIL PROFESIONAL

Estudiante de octavo semestre de la Universidad Privada del Norte , interesada en el diseño arquitectónico Con capacidad de planeacción, análisis, innovación, creatividad y trabajo en equipo. A demás de contar con diversas habilidades y aprendizajes en medios digitales y de comunicación.

Concibo arquitectura como un arte integral que va más allá de una transformación espacial, esta reúne consigo y en el proceso diversas disciplinas que permiten una formación holística con una reinvención constante del pensar la forma, función y ciudad

CONTACTO

Canva: wwwcanvacom/nayehv19 Instagram: nayelyhv

REDES 966535483 N00198391@upnedupe nayehv19@gmailcom
GRUPO 10 DICIEMBRE 2022 11 U P N
Español Inglés PROYECTOS IDIOMAS HERRAMIENTAS DIGITALES 2019 I 2019 II 2020 II 2021 I 2021 II 2022 I 2022 II Composición Jerarquica Unifamiliares Unifamiliares y multifamiliares Centro Civico Centro
Hospital
Nativo Autocad sKetchUp Adobe Photoshop Adobe Ilustrator Lumion V Ray Enscape Twinmotion GRUPO 10 DICIEMBRE 2022 12 U P N
de Salud /
Centro Comunal /Bambú Centro Comercial / Acero

JORDIN AVILA ESQUEN

PERFIL PROFESIONAL

Estudiante de octavo semestre de la Universidad Privada del Norte , interesada en el diseño arquitectónico Con capacidad de planeacción, análisis, innovación, creatividad y trabajo en equipo. A demás de contar con diversas habilidades y aprendizajes en medios digitales y de comunicación.

Concibo arquitectura como un arte integral que va más allá de una transformación espacial, esta reúne consigo y en el proceso diversas disciplinas que permiten una formación holística con una reinvención constante del pensar la forma, función y ciudad

CONTACTO 922075060 n00050103@upnpe 2014jord@gmailcom

GRUPO 10 DICIEMBRE 2022 13 U P N
Español Inglés PROYECTOS IDIOMAS HERRAMIENTAS DIGITALES 2019 I 2019 II 2020 II 2021 I 2021 II 2022 I 2022 II Composición Jerarquica Unifamiliares
Nativo Autocad sKetchUp Adobe Photoshop Adobe Ilustrator Enscape Twinmotion GRUPO 10 DICIEMBRE 2022 14 U P N
Unifamiliares y multifamiliares Colegio De Alto Rendimiento Centro de Salud / Hospital Centro Comunal /Bambú Centro Comercial / Acero

GRUPO 10 DICIEMBRE 2022

15 U P N

INDICE

GRUPO 10 DICIEMBRE 2022
16 U P N
01 02 03 04 UBICACIÓN Y TOPOGRAFÍA PLANO ESCALA 1/250 PLANO ESCALA 1/100 PLANO ESCALA 1/50 Plano de ubicación y localización Plano topográfico Plano perimétrico Plano primer nivel Plano segundo nivel Plano tercer nivel Elevaciones Cortes PLot Plant Sector 1 Sector 2 Sector 3 Elevaciones Cortes Sector 1 Sector 2 Sector 3 Elevaciones Cortes GRUPO 10 DICIEMBRE 2022 17 U P N
GRUPO 10 DICIEMBRE 2022 05 06 07 08 RENDERS DETALLES CONSTRUCTIVOS CONCLUSIONES Y RECOMENDACIONES EXPERIENCIAS Y FOTO GRUPAL Lámina de detalles por zonas Lámina de pieles de fachadas Renders exteriores Render interiores 18 U P N
GRUPO 10 DICIEMBRE 2022 11 I N D I C E 01 19 U P N

UBICACIÓN Y TOPOGRAFÍA

GRUPO 10 DICIEMBRE 2022
20 U P N

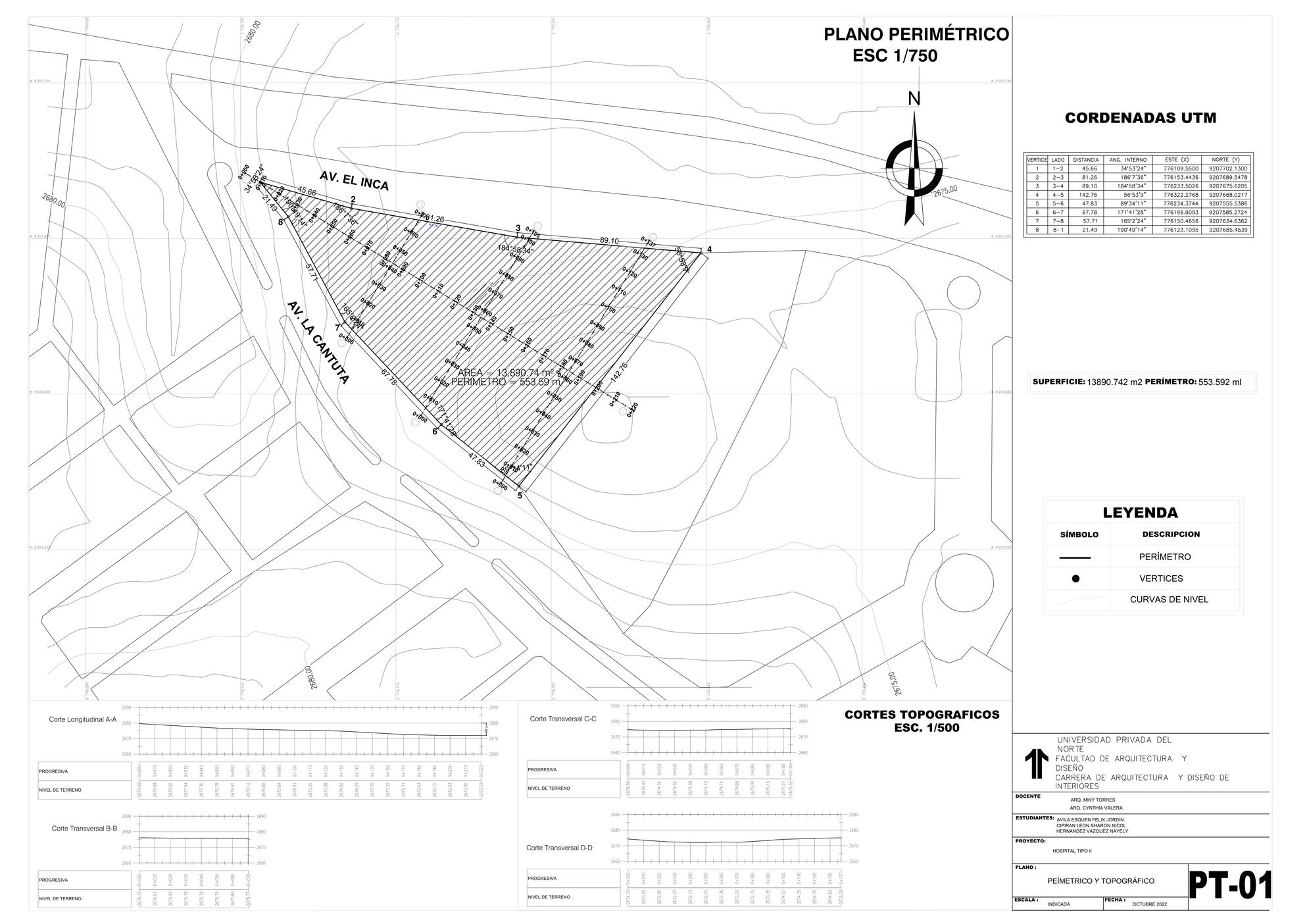
UBICACIÓN Y LOCALIZACIÓN

Cajamarca es una ciudad del área montañosa del norte de Perú, en la cordillera de los Andes. La plaza principal histórica, la Plaza de Armas, está rodeada de arquitectura colonial barroca. La Catedral de Cajamarca tiene un altar cubierto de pan de oro, mientras que el Monasterio de San Francisco tiene catacumbas y un museo de arte religioso. Cerca está el Cuarto del Rescate, donde mantuvieron prisionero al último emperador inca, Atahualpa.

PERÚ-CAJAMARCA CAJAMARCA-CAJAMARCA
21 U P N
Elevación: 2,750 m Superficie: 20 km² Tiempo: 17 °C, viento del SE a 11 km/h, humedad del 47 %
22 U P N
GRUPO 10 DICIEMBRE 2022 18 I N D I C E 02 25 U P N
GRUPO 10 DICIEMBRE 2022
26 U P N
PLANO ESCALA 1/250
A B
4
5
GRUPO 10 DICIEMBRE 2022 03 33 U P N

PLANO ESCALA 1/100

GRUPO 10 DICIEMBRE 2022
34 U P N
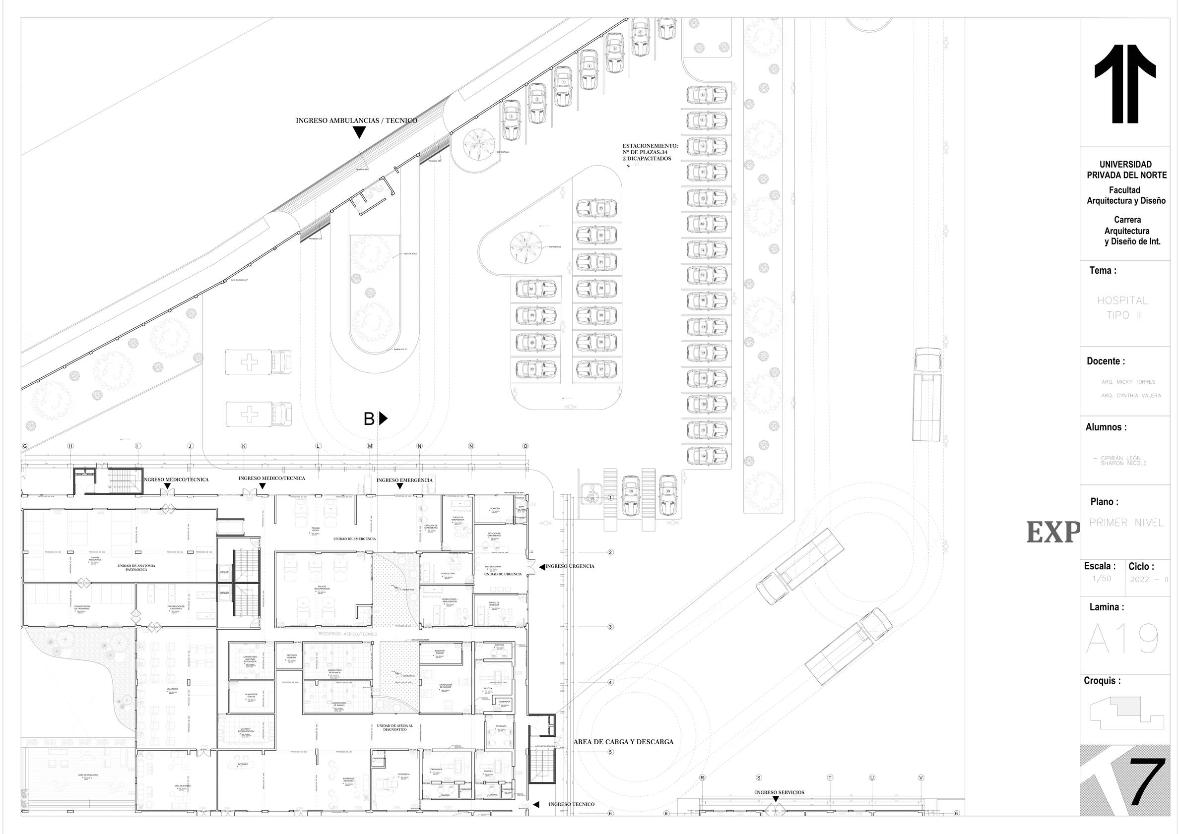
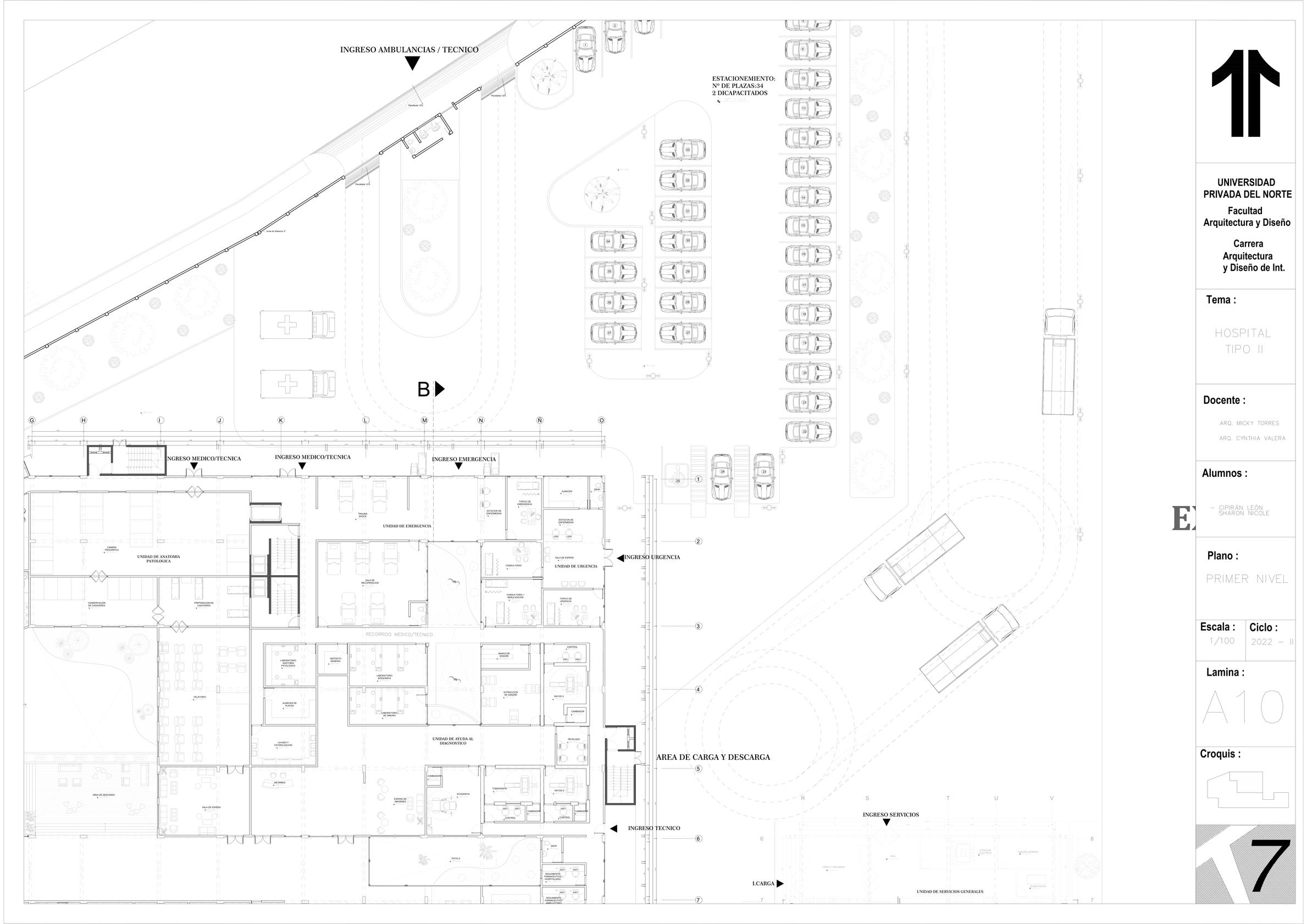
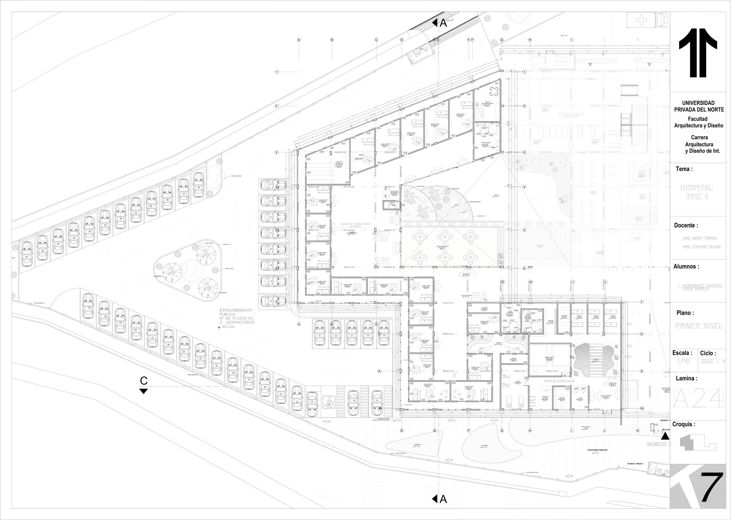
PRIMER NIVEL ESC 1/100 07
08
PRIMER NIVEL ESC 1/100
09 PRIMER NIVEL ESC 1/100
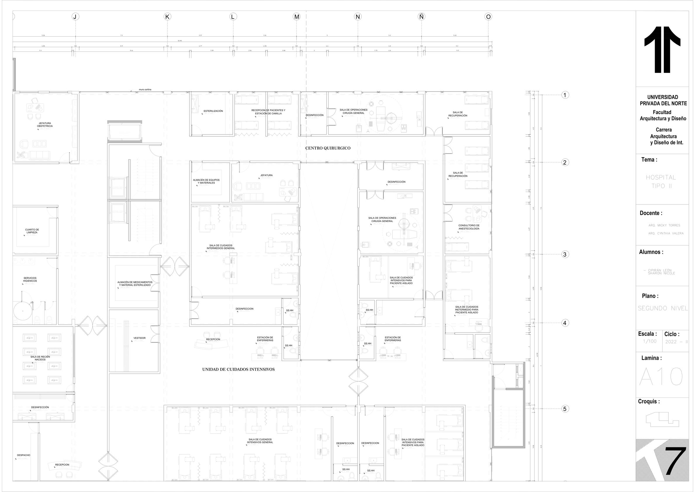
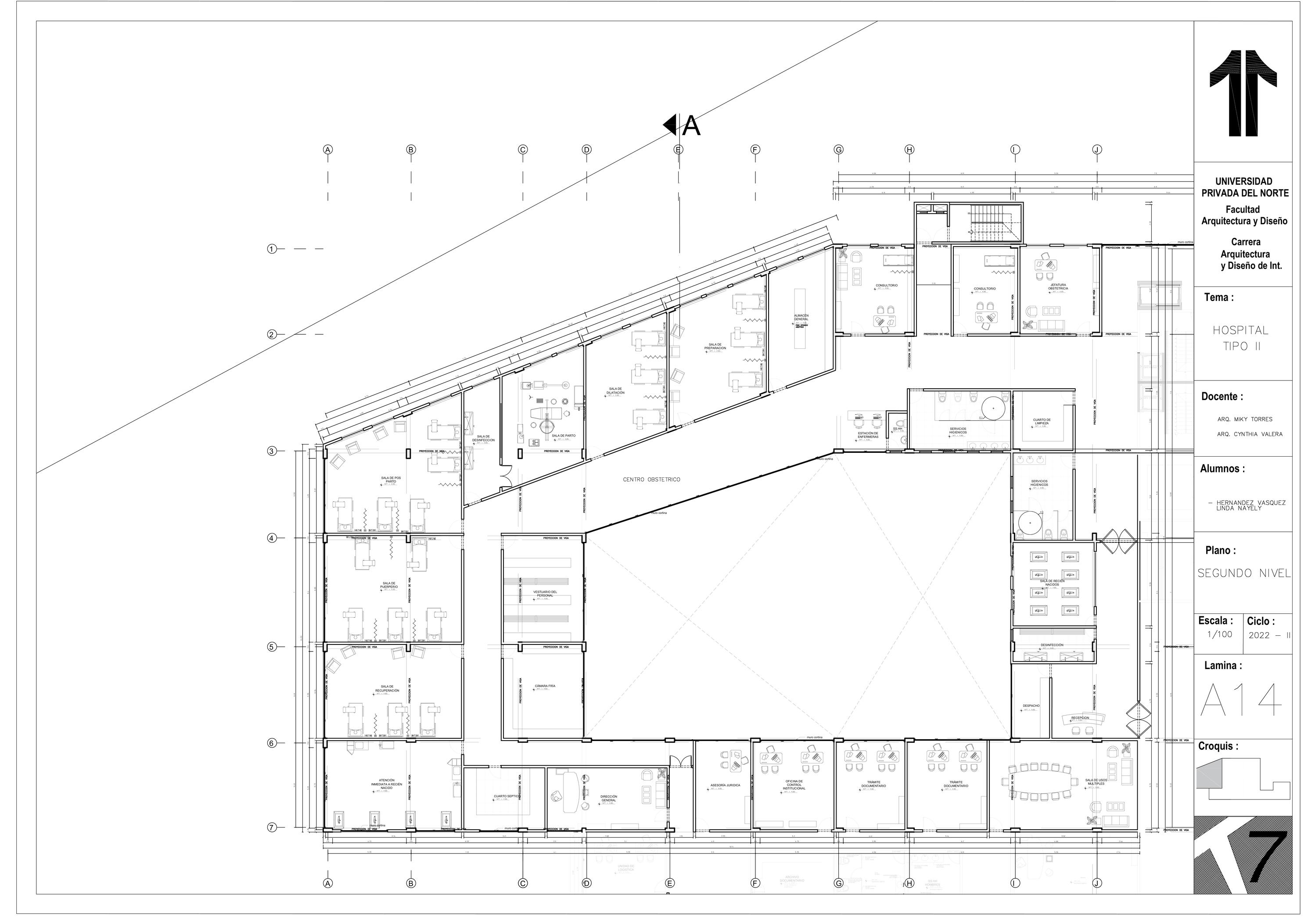
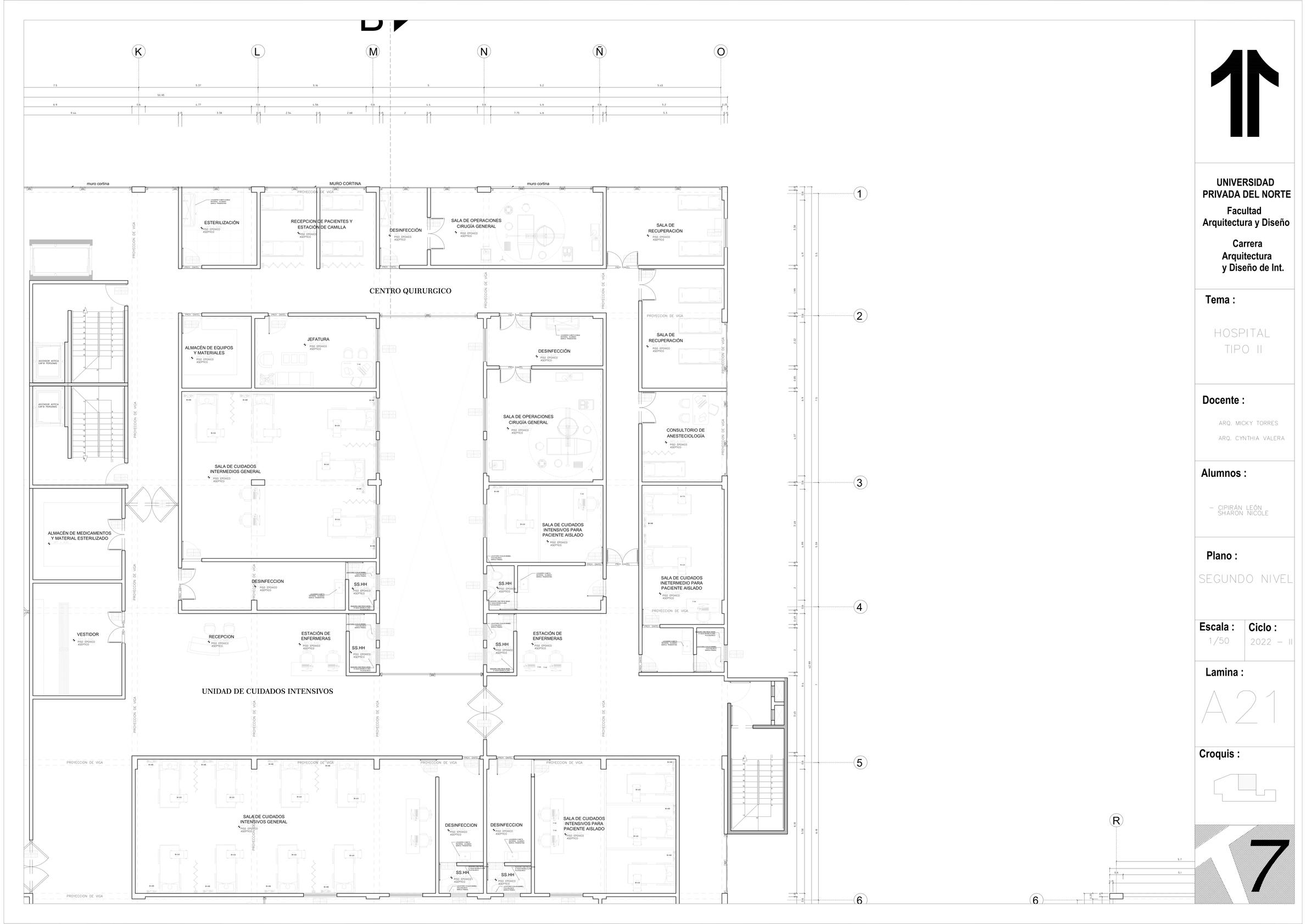
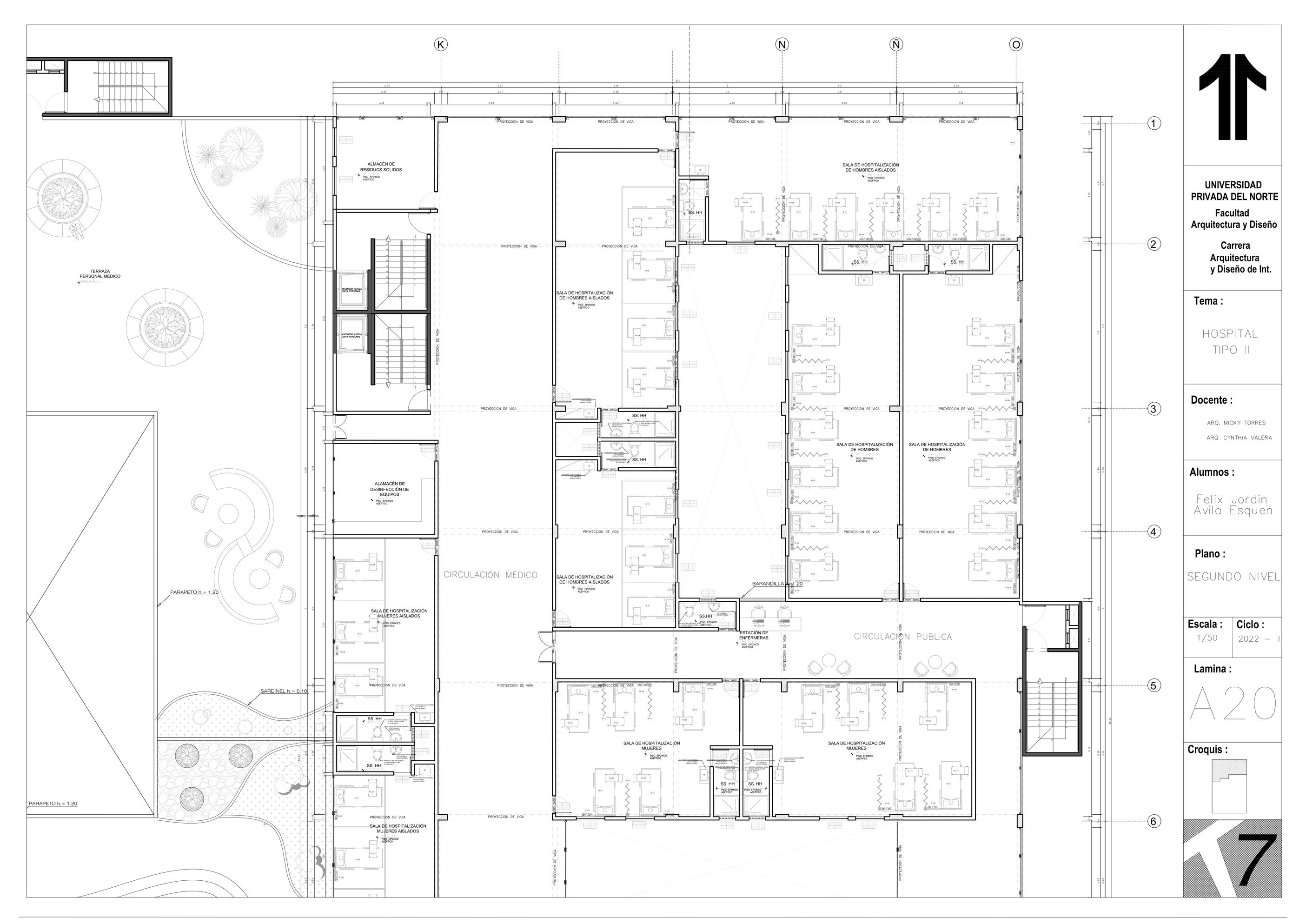
SEGUNDO NIVEL ESC 1/100
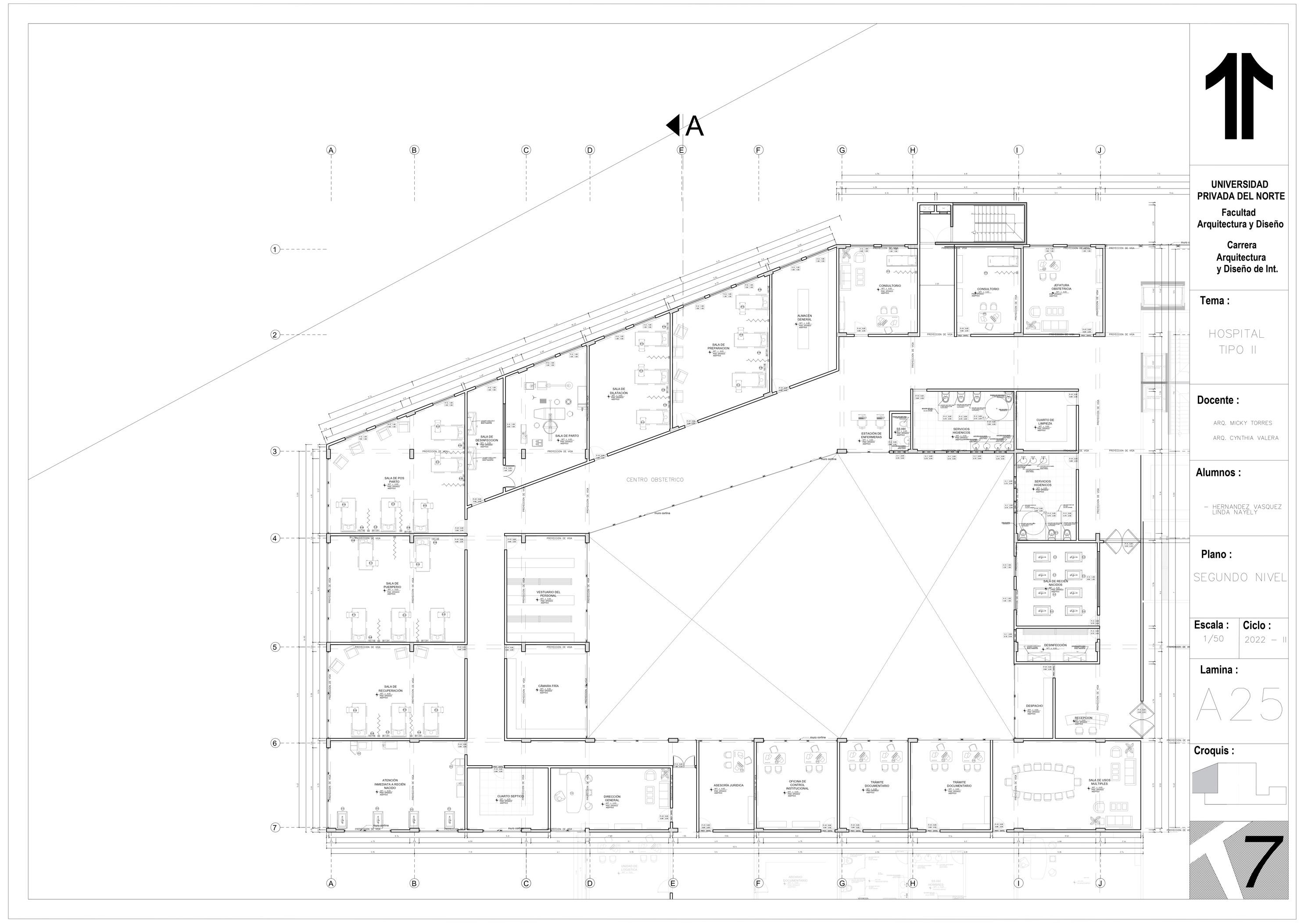
SEGUNDO NIVEL ESC 1/100 11
12
SEGUNDO NIVEL ESC 1/100
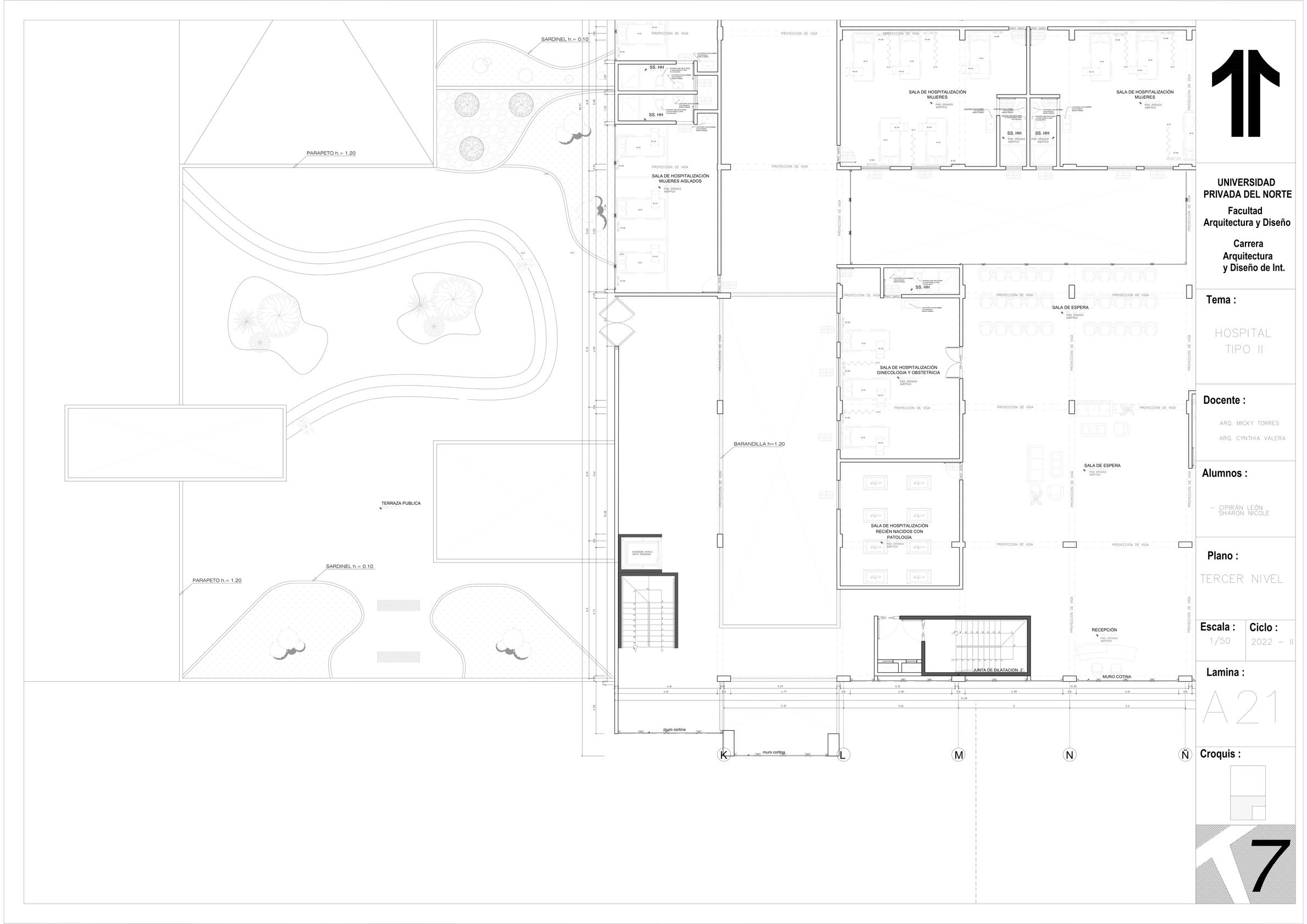
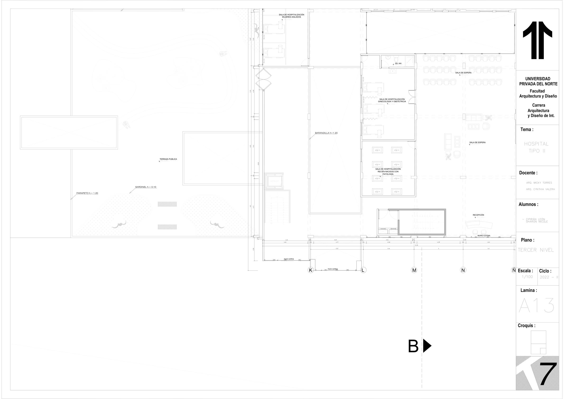
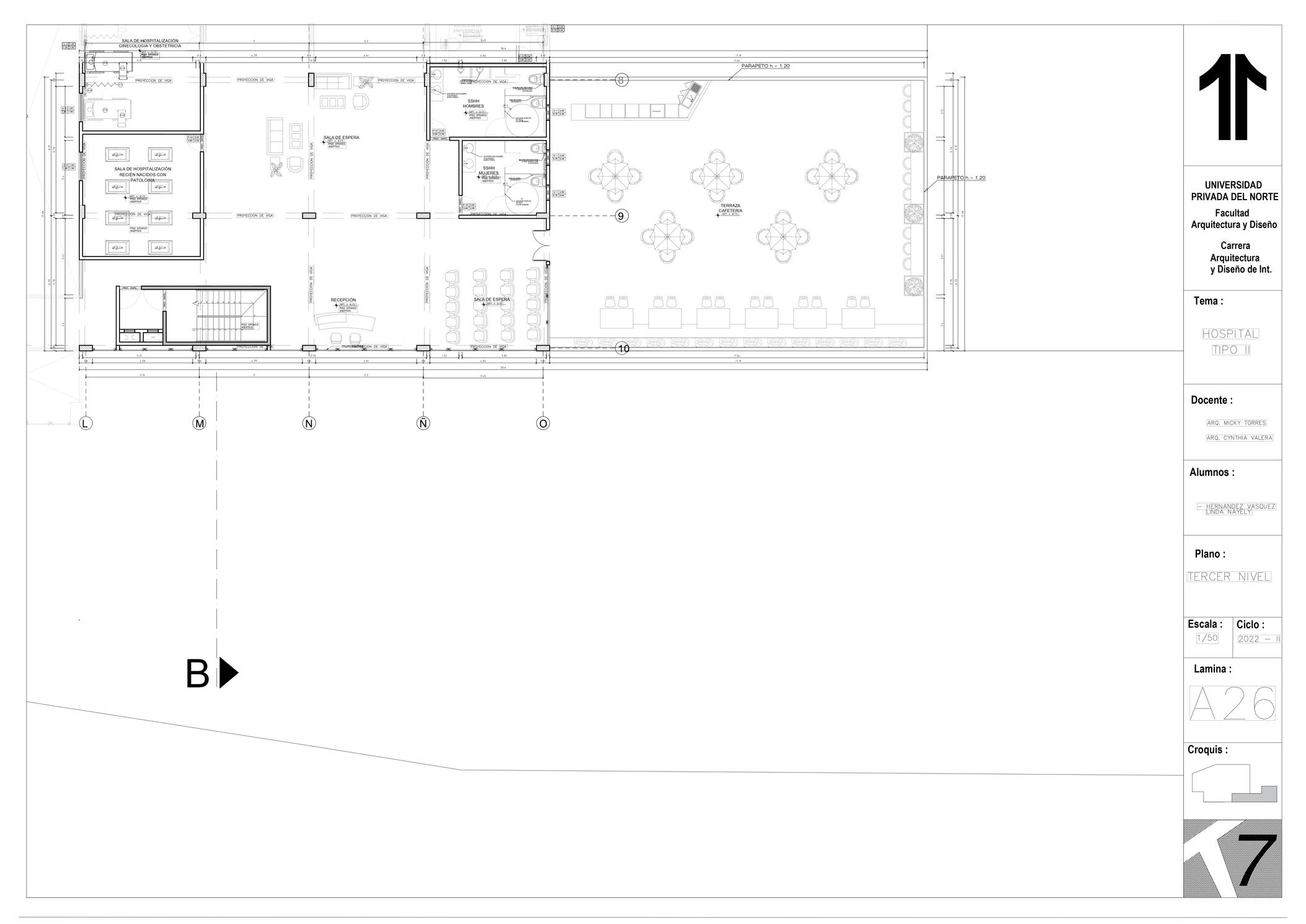
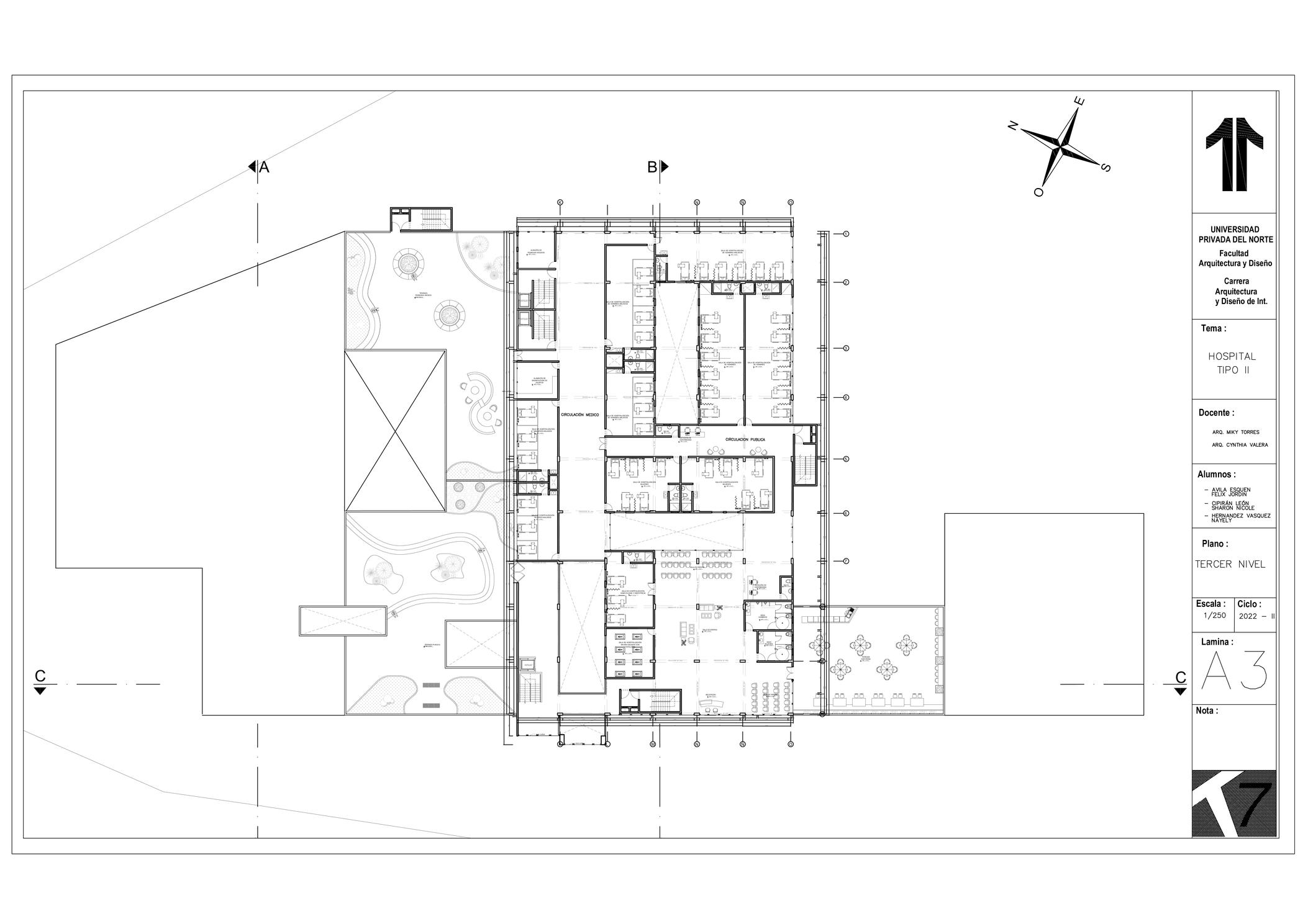
TERCER NIVEL ESC 1/100
TERCER NIVEL ESC 1/100 14
LINDA NAYELY HERNANDEZ VASQUEZ
15
TERCER NIVEL ESC 1/100
FELIX JORDIN AVIILA ESQUEN LINDA NAYELY HERNANDEZ VASQUEZ SHARON NICOLE CIPIRAN LEON
GRUPO 10 DICIEMBRE 2022 18 I N D I C E 04 47 U P N

PLANO ESCALA 1/50

GRUPO 10 DICIEMBRE 2022
48 U P N
18
PRIMER NIVEL ESC 1/50
PRIMER NIVEL ESC 1/50 A 19
A 20
PRIMER NIVEL ESC 1/50
SEGUNDO NIVEL ESC 1/50
SEGUNDO NIVEL ESC 1/50 A 22
SEGUNDO NIVEL ESC 1/50 A 23
A 24
TERCER NIVEL ESC 1/50

VASQUEZ

TERCERR NIVEL ESC 1/50 A 25
TERCERR NIVEL ESC 1/50 A 26
FELIX JORDIN AVIILA ESQUEN LINDA NAYELY HERNANDEZ VASQUEZ SHARON NICOLE CIPIRAN LEON
GRUPO 10 DICIEMBRE 2022 18 I N D I C E 05 61 U P N

RENDERS

GRUPO 10 DICIEMBRE 2022
62 U P N

F A C H A D A P R I N C I P A L

A C H A D A

L A T E R A L I Z Q U I E R D O

F

F A C H A D A L A T E R A L D E R E C H O

A D A P O S T E R I O RC A R G A Y D E S C A R

F A C
H
G A

F A C H A D A P O S T E R I O RE M E R G E N C I

A

I S T A V U E L O D E P Á J A R O

1
V

V I S T A D E V U E L O D E P Á J A R O 2

I S T A V U E L O D E P Á J A R O

3
V

V I S T A D E V U E L O D E P Á J A R O 4

I S T A D E I N G R E S O

H
L
V
A L

V I S T A D E C O N S U L T O R I O

I S T A D E E M E R G E N C I

V
A

V I S T A D E F A R M A C I A

A

E P A T I O D E R E H A B

V I S
I L
C I Ó N
T
D
I T A
GRUPO 10 DICIEMBRE 2022 06 77 U P N

DETALLES CONSTRUCTIVOS

GRUPO 10 DICIEMBRE 2022
78 U P N
HERNANDEZ NAYELY
HERNANDEZVASQUEZ LINDANAYELY

El taller de proyectos arquitectónicos 7 siempre deja experiencias muy nutridas de conocimiento e investigación, el poder justificar un proyecto y luego poder desarrollarlo arquitectónicamente es una satisfacción de lo que se vive en la experiencia laboral, me quedo muy contento con este ciclo 2022 2 , con los jóvenes que a pesar de toda adversidad, pudieron sacar a flote sus más altos índices de investigadores y proyectistas, los resultados de cada equipo nos dejan la reflexión que con esmero y un propósito podemos llegar muy lejos. Mi señor de los cielos los bendiga a cada uno de ustedes.

Es una bendición haberlos conocido y poder compartir en cada sesión de clases una experiencia distinta. Nuevos retos están por empezar, estamos muy contentos de su desempeño y perseverancia y eso se ha visto reflejado en la obtención de buenos resultados.

Persigan sus sueños, en lo que mas anhelan en la vida, pero nunca pierdan su esencia y sobre todo sus valores Y el día que sean ya profesionales, cumplan su labor para la sociedad, ser cada día más humanos. Éxitos siempre.

84 U P N
GRUPO 10 DICIEMBRE 2022 18 I N D I C E 07 85 U P N

CONCLUSIONES

Y RECOMENDACIONES

GRUPO 10 DICIEMBRE 2022
87 U P N

Tras una extensa investigacion al reglamento, normas y analisis de caso se puede ver reflejado un centro hospitalario que responde a todas las variables tanto funcional como estructural y que a su vez responde a todas las necesidades sanitarias de los ciudadanos de Cajamarca y no solo de manera basica ya que tuvimos en cuenta que un hospital tmb es un lugar de reljacion por lo cual implementamos numerosas areas verdes.

Concluyo el termino del proyecto con la siguiente frase de la reconocida arquitecta Zaha Hadid "La arquitectura trata realmente sobre el bienestar. Creo que la gente quiere sentirse bien en un espacio.. Por un lado se trata de refugio, pero también se trata de placer"; y es lo que tratamos de plasmar en nuestro proyecto, que los beneficiados se sientan a gusto a pesar de las circuntancias.

La realización de este estudio ha brindado datos empíricos acerca de la gestión hospitalaria y la calidad de atención en el servicio de emergencia de el hospital apoyo Cajamarca .En el presente proyecto se tomo en cuenta las necesidades de los usuarios emplazando y posicionando los ambientes de forma funcional , también planteada y respetando normas por el Minsa .

GRUPO 10 DICIEMBRE 2022
87 U P N

Despues de esta experiencia, una recomendacion primordial es la investigacion; de casos, de la normativa y reglamento ya que esta es la base del centro hospitalario y despues de esto enfocarse en la parte funcional del proyecto que es uno de los puntos mas dificultoso del proyecto. Y para finalizar siempre enfocarse en las necesidades de nuestro publico, creando areas que transmitan tranquilidad y armonia.

Una recomendación fundamental si se proponen a realizar este tipo de proyectos, informense mucho, investiguen lo máximo posible, de su aspecto formal y sobre todo el funcional que es uno de las más grandes desafios para este tipo de edificaciones. Y siempre de la mano de su Reglamento Nacional de Edificaciones y en este caso Normas Técnicas de Salud N° 110-MINSA les será de vital ayuda.

Una de las recomendaciones mas puntuales para este proyecto es necesario contar con flujogramas de los principales accesos al proyectos, (circulación técnica , circulación limpia , circulación sucia , circulación de pacientes) así verificamos que todo se cumpla y no tenga intercepciones en las mencionadas circulaciones .

GRUPO 10 DICIEMBRE 2022
88 U P N
GRUPO 10 DICIEMBRE 2022 18 I N D I C E 08 89 U P N

EXPERIENCIA GRUPAL

GRUPO 10 DICIEMBRE 2022

Despues del trabajo realizado este ciclo puedo decir que fue uno de los proyectos mas dificultosos que hemos atravesado,sin embargo tambien ha sido el que mas nos ha nutrido como estudiantes y siempre con el apoyo y criticas de los docentes hemos podido atravesar esta etapa superando los tropiezos que tuvimos en el camino,para finalmente obtener un proyecto cumple con los parametros arquitectonicos, estructurales y funcionales. Cabe resaltar que fue con el apoyo de mis compañeros que se logro este proyecto, y nos quedamos con la satisfaccion de que junto a mis compañeros hemos puesto todo nuestro esfuerzo y empeño para lograr este proyecto.

El taller de proyectos arquitectónicos 7 me a dejado una sensación de satisfacción, ya que puso a prueba mi capacidad y la llevo al máximo, si bien es cierto no ha sido fácil todo este proceso, pero con ayuda de nuestros docentes hemos logrado sobrellevarlo. Como siempre cada taller nos deja experiencias de aprendisajes y de conocimiento, pero especialmente este me ha motivado a investigar a profundidad conceptos que desconocia para poder justificar mencionado proyecto. Me quedo con la satisfacción de haber entregado el máximo para desarrollarlo y con la ayuda de mis compañeros, a sido una experiencia hermosa trabajar y conocerlos, cada uno fiel a su estilo y con criterios diferentes logramos emplazarlo. Agradecida con mis docentes que cada crítica nos han motivado a mejorar para obtener los mejores resultados.

El presente estudio llevado acabo en el taller de proyectos arquitectónicos 7 en lo personal fue una experiencia a prueba de la capacidad y conocimientos en distintos ámbitos, para poder empezar a diseñar se tomo en cuenta a la par con la Normas Técnicas de Salud N° 110-MINSA . El proyecto en el ámbito académico fue uno de los que pude desarrollar con mayor dificultad en el proceso de elaboración y diseño de las áreas planteadas . Contando con la ayuda y esfuerzo de mi grupo se pudo llegar a la fase final de la entrega del proyector fue una experiencia muy agradable haber formado parte de su equipo y así poder llegar a dar lo máximo de nosotros para el objetivo del presente .

GRUPO 10 DICIEMBRE 2022
91 U P N

Turn static files into dynamic content formats.

Create a flipbook
Issuu converts static files into: digital portfolios, online yearbooks, online catalogs, digital photo albums and more. Sign up and create your flipbook.