PORTAFOLIO ARQUITECTURA

Page 1

P O R T F O L I PO O R T F O L I O A R Q U I T E C T U R AA R Q U I T E C T U R A LINDA NAYELY HERNÁNDEZ VÁSQUEZ 2019-2022

P O R T F O L I PO O R T F O L I O

A R Q U I T E C T U R AA R Q U I T E C T U R A
LINDA NAYELY
HERNÁNDEZ VÁSQUEZ 2019-2022

NAYELY 2019 2022

Universidad Privada del Norte

Facultad de Arquitectura y Diseño Arquitectura y Urbanismo

Portafolio Arquitectura Octavo ciclo

Hernández Vásquez Linda Nayely 2022 01

Derechos reservados

No se permite la reproducción parcial o total de esta obra, ni su incorporación a un sistema informático, ni su transmisipon por cualquier medio sin consentimiento y autorización previa y por escrito del autor. Todos los derechos reservados.

HERNÁNDEZ

El presente portafolio reúne el progreso de mi aprendizaje durante el 3er ciclo del pre grado de Arquitectura, lo cual considero relevante y necesario mostrar para inspirar a otros diseñar, ya que lo pueden tomar como guía o ejemplo

Aquí en este proyecto se muetsra el proceso metodológico que dio como resultado la formulación de ideas proyectuales Este pretende mostrar mi capacidad como futura Arquitecta, y evidenciar en cada página el reflejo de lo que realizo y quien soy

HERNÁNDEZ NAYELY 2019 2022
I N T R O D U C C I Ó IN N T R O D U C C I Ó N
1 I n t r o d u c c i ó n

NAYELY HERNÁNDEZ VÁSQUEZ

PERFIL PROFESIONAL

Estudiante de octavo semestre de la Universidad Privada del Norte , interesada en el diseño arquitectónico Con capacidad de planeacción, análisis, innovaci´´on creatividad y trabajo en equipo. A demás de contar con diversas habilidades y aprendizajes en medios digitales y de comunicación.

Concibo arquitectura como un arte integral que va más allá de una transformación espacial, esta reúne consigo y en el proceso diversas disciplinas que permiten una formación holística con una reinvención constante del pensar la forma, función y ciudad

CONTACTO REDES

966535483 N00198391@upn.edu.pe nayehv19@gmailcom

Canva: wwwcanvacom/nayehv19

Instagram: nayely.hv

HERNÁNDEZ NAYELY 2019 2022 2 P e r f i l P r o f e s i o n a l

PROYECTOS IDIOMAS

2019 I 2019 II 2020 II 2021 I 2021 II 2022 I 2022 II

Composición Jerarquica Unifamiliares

Unifamiliares y multifamiliares

Centro Comercial / acero

Centro Comunal /Bambú

Centro Civico Centro de Salud / Hospital

HERRAMIENTAS DIGITALES

Autocad sKetchUp

Adobe Photoshop

Adobe Ilustrator

Español

Inglés

Lumion V Ray Enscape Twinmotion

Nativo

HERNÁNDEZ NAYELY 2019-2022 3 P e r f i l P r o f e s i o n a l
HERNÁNDEZ NAYELY 2019 2022 01

UNIFAMILIARES - 2019-II

Proyecto de Remodelación de Unifamiliar Trujillo, Perú Hernández Vásquez Linda Nayely

1.1. Descripción del Proyecto 7 1.2. Plantas del Proyecto 8 1.3. Cortes y Elevaciones 10 1.4. Renders exteriores e interiores del proyecto 12

ISSU: https://issuu com/home/publisher

HERNÁNDEZ NAYELY 2019 2022 5

U N I

A M

A R

E N E L S I G U I E N T E P R O Y E C T O U N I F A M I L I A R S E M U E S T R A L A C A S A A L E J A D A D E L A V Í A P R I N C I P A L P O R U N T E M A D E P R I V A C I D A D , C U E N T A C O N U N P E Q U E Ñ O E S T A C I O N A M I E N T O , P O R O T R O L A D O L A V I V I E N D A C U E N T A C O N U N R E C I B I E N T O A L A D O D E R E C H O T E N D R Í A U N A O F I C I N A A C O J E D O R A , Y H A C I A S U I Z Q U I E R D O U N A H A B I T A C I Ó N , P O S T E R I O R M E N T E

U N B A Ñ O Q U E A B A S T E C E R Í A A E S T E A M B I E N T E Y L A Z O N A S O C I A L , T A M B I É N T E N E M O S U N A C O C I N A , C O M E D O R Y L A V A N D E R Í A ; E S A D I S T R I B U C C I Ó N S E D A R Í A E N E L P R I M E R N I V E L , M I E N T R A S Q U E E N E L S E G U N D O T E N E M O S 2 D O R M I T O R I O S Q U E C O M P A R T E N U N B A Ñ O , A D E M Á S D E U N D O R M I T O R I O P P R I N C I P A L Q U E C U E N T A C O N U N B A L C O N C O N U N A V I S T A H A C I A L A T E R R A Z A Y S U P R O P I O B A Ñ O , M Á S U N W A L K I N G C L O S E T .

HERNÁNDEZ NAYELY 2019 2022 7 D e s c r i p c i ó n d e l P r o y e c t o
F
I L I
8 P L a n t a d e l P r o y e c t o Zona Social( ) Zona Privada( ) 1 2 3 4 5 6 11 10 Zona de Servicio( ) 7 8
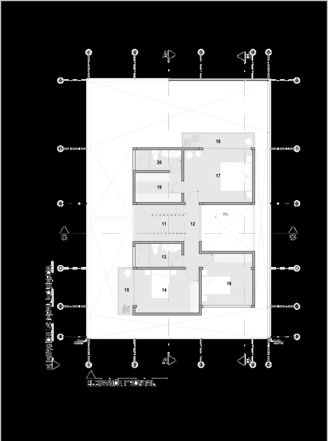
P L A N T A S E G U N D O N I V E L 9 P L a n t a d e l P r o y e c t o Zona Privada( ) 11 - 20
10 E l e v a c i o n e s E L E V A C I O N E S 0 28 56
11 C o r t e s C O R T E S 0 28 056
R E N D E R S 12 R e n d e r s
V I V I E N D A U N I F A M I L I A R V I S T A F R O N T A L D E L A F A C H A D A
V
I V I E N D A U N I F A M I L I A R V I S T A E N P E R S P E C T I V A D E L A F A C H A D A
R E N D E R S 13 R e n d e r s
V I V I E N D A U N I F A M I L I A R Z O N A S O C I A L S A L A
R E N D E R S 14 R e n d e r s
V I V I E N D A U N I F A M I L I A R Z O N A S O C I A L V I S T A D E S D E E L C O M E D O R
R E N D E R S 15 R e n d e r s
V I V I E N D A U N I F A M I L I A R Z O N A D E S E R V I C I O C O C I N A
R E N D E R S 16 R e n d e r s
V I V I E N D A U N I F A M I L I A R C O C I N A
R E N D E R S 17 R e n d e r s
V I V I E N D A U N I F A M I L I A R Z O N A S O C I A L T E R R A Z A C O N P I S C I N A

Turn static files into dynamic content formats.

Create a flipbook
Issuu converts static files into: digital portfolios, online yearbooks, online catalogs, digital photo albums and more. Sign up and create your flipbook.
PORTAFOLIO ARQUITECTURA by nayely vásquez - Issuu