Skip to main content

ARQUITETURA EFÊMERA - TRABALHO FINAL

Page 1


Introdução

O pavilhão comemorativo valoriza a memória do Museu Nacional e reforça a importância de preservar o patrimônio cultural. Com uma experiência imersiva, convida o público a conhecer sua história e participar da reconstrução desse símbolo da ciência e da identidade brasileira.

Tipologia Arqutetônica

A tipologia arquitetônica do projeto do Pavilhão

Comemorativo do Museu Nacional é definida com base em três critérios principais:

1. Função temporária do espaço

2. Uso cultural e expositivo

3. Integração com o entorno natural (Quinta da Boa Vista)

Público Alvo

Famílias com crianças buscam lazer e aprendizado, principalmente nos fins de semana. Se conectam bem com propostas interativas e emocionais.

Excursões escolares vêm com foco educativo. Ajudam a cumprir a missão do Museu e aproximam os alunos da história do Brasil.

Turistas culturais se interessam pela história e costumam incluir o Museu nos seus roteiros. O pavilhão é um bom ponto de entrada para esse público.

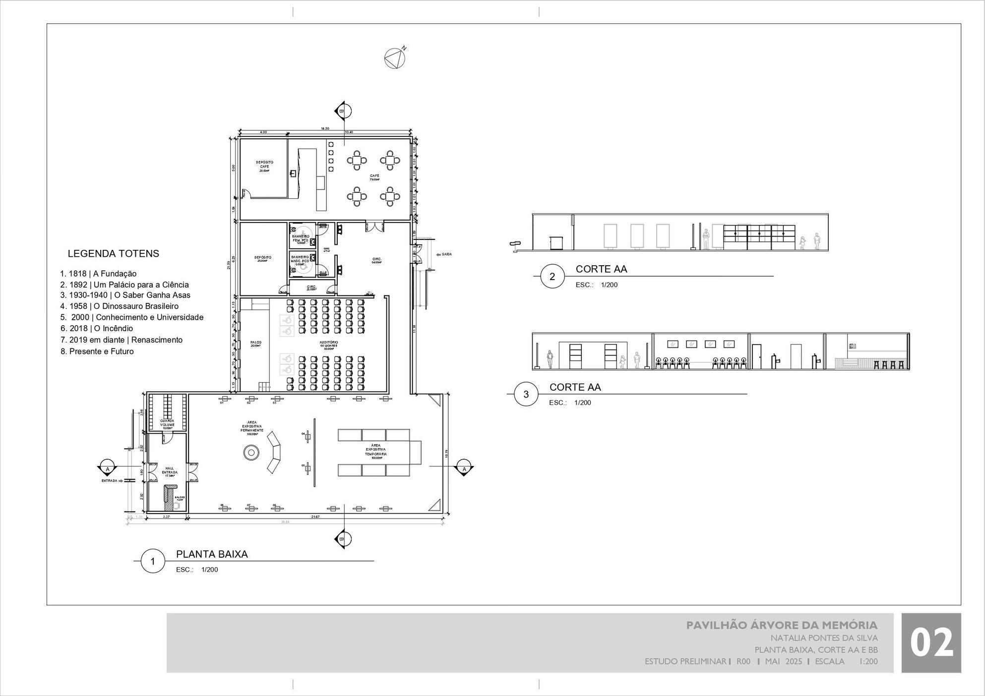
Programa de necessidades e setorização

PAVILHÃO COMEMORATIVO: MUSEU NACIONAL

Fluxograma

EXPOSITIVO SERVIÇO LAZER

FLUXO DE SERVIÇO

FLUXO DE SERVIÇO

LEGENDA DE SETORES E FLUXOS

Estudo de Caso

Pavilhão de Pallets Reciclados / Avatar

Architettura

É uma instalação temporária feita com pallets reutilizados. Com montagem simples e modular, destaca a sustentabilidade, ventilação e iluminação natural, funcionando como um manifesto sobre reaproveitamento e consumo consciente.

Pavilhão Sealight / Universidad de Monash + Rintala Eggertsson, Grimshaw e Felicetti

A instalação foi feita em 14 semanas com madeira reaproveitada e materiais sustentáveis. Tem uma estrutura leve que deixa a luz entrar e se conecta com a natureza. O espaço convida à reflexão sobre como vivemos e cuidamos do meio ambiente.

Pavilhão de papel reciclado para o Festival

Coachella 2015, por Ball-Nogues Studio O “Pavilhão Pulp” é uma estrutura leve e independente feita com papel reciclado, água e tinta em uma base de material orgânico. Foi usado como abrigo temporário no festival Coachella de 2015.

Partido e Conceito

Partido

A ideia da “Árvore da Memória” guia o projeto, simbolizando os 210 anos do Museu Nacional. As raízes representam sua história e legado, enquanto os galhos apontam para o futuro, mostrando crescimento e renovação. A proposta busca refletir essa conexão entre passado e futuro, criando um espaço que valoriza a memória, o conhecimento e a transformação.

Conceito

A Árvore da Memória é o elemento central do projeto, localizada na área expositiva, a árvore convida os visitantes a pendurarem bilhetes com suas visões para o museu, tornando-se uma instalação viva e participativa. O espaço ao redor funciona como um ambiente de reflexão e troca, reforçando a conexão entre memória, conhecimento e transformação.

Condicionantes de projeto

Local: Quinta da Boa Vista, área histórica.

Limites: Projeto respeita o lote e área máxima de 750m².

Insolação: Boa incidência solar ao sul e leste; necessário sombreamento nas áreas externas.

Ventilação: Ventos predominantes de leste/sudeste favorecem ventilação cruzada.

Vistas: Aberturas voltadas para áreas verdes; integração com o parque.

Ruído: Poluição sonora nas vias movimentadas; usar materiais acústicos.

Fluxos: Circulação fluida e acessível para famílias e escolas, com entrada/saída bem definidas.

Plano de Massas

Estudo Preliminar

O pavilhão será construído com uma estrutura leve e eficiente, utilizando aço reciclado, garantindo resistência, reaproveitamento e desmontagem futura, e tijolos de solocimento, que oferecem conforto térmico e baixo impacto ambiental. Na área expositiva, amplos painéis de vidro serão utilizados para criar uma sensação de integração com o parque, conectando o espaço interno ao ambiente natural ao redor.

Na cobertura, será adotado um sistema de telas tensionadas feitas com tecido reciclado, concebido para simular a copa de uma árvore, funcionando como um abrigo leve e fluido, inspirado nas comemorações que acontecem no parque, onde as pessoas naturalmente buscam a sombra das árvores para se reunir, descansar e celebrar. Essa solução traz uma referência simbólica e sensorial ao uso do espaço ao ar livre.

O piso será revestido com bambu prensado, uma alternativa renovável, durável e de apelo estético natural. Como solução complementar, o projeto incluirá captação e reuso de água da chuva, promovendo o uso consciente de recursos hídricos e reforçando o compromisso ecológico da estrutura.

Turn static files into dynamic content formats.

Create a flipbook