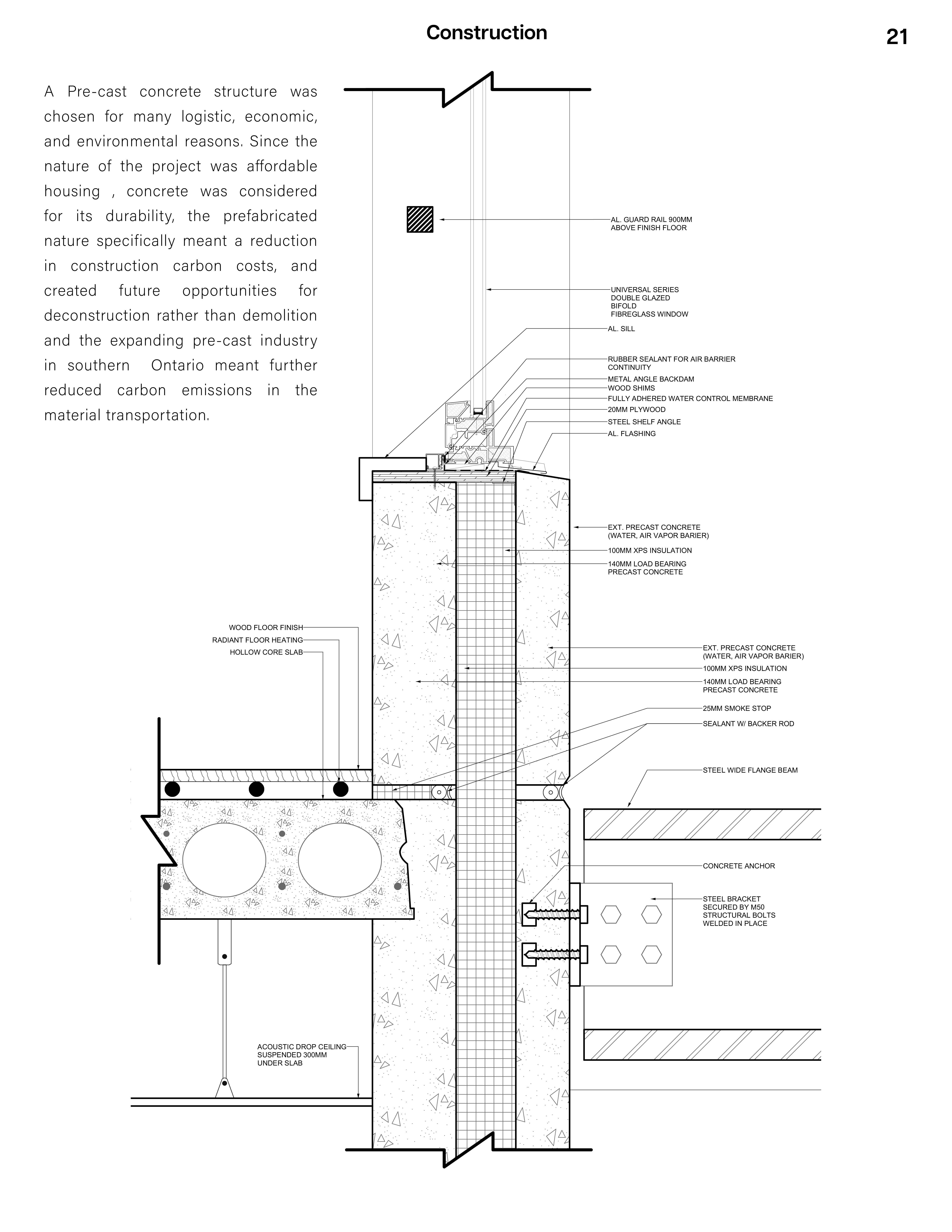
Skip to main content

Nathan Vilela - Selected Works Fall 2022

Page 1

Turn static files into dynamic content formats.

Create a flipbook
Nathan Vilela - Selected Works Fall 2022 by Nathan Vilela - Issuu