Nathan A. Fehrs, Associate AIA - Portfolio

Page 1

“Your work should speak for itself.” Anastasia Laurenzi
EXHIBITIONS 03 re+WORK 13 Housing Complex STUDIO WORK 23 Park 31 Duplex PERSONAL WORK 45 Lake House

Below: Map of past and current conditions with eradicated roads highlighted.

re+WORK

Senior Year Studio I Spring 2022 I Project Partner : Mason Lantz

Lippitt Hill is a neighborhood in Providence, RI that was destroyed, poorly redesigned and further gentrified. This failure of an urban renewal project does not work. The circulation is torn apart by a shopping center abutting North Main Street. The abrupt elevation changes disrupt the human scale. How do we rework the site to rebuild the destroyed minority businesses and housing without displacing the current residents?

Through a multi-scale analysis our team proposes building on top of the current housing complex in a tiered progression. This will elevate the area while creating spaces for the lost housing units without a monstrous scale. The vertical circulation nodes will allow for commercial, flex, and supplemental spaces for the community to utilize without disrupting the new circulation pattern that mimics the destroyed roads that a forgotten community once populated.

04 re + WORK
Right: Aerial view of site

Left: Clustering the vertical addition and returning the broken circulation.

Below: The new circulation is placed to not disrupt views.

Bottom: Site Section

05 re + WORK

Below: Vertical circulation, parking, and new housing placement.

06 re + WORK
Right: Master plan of program throughout the site and within the vertical circulation access points.
09 re + WORK
10 re + WORK

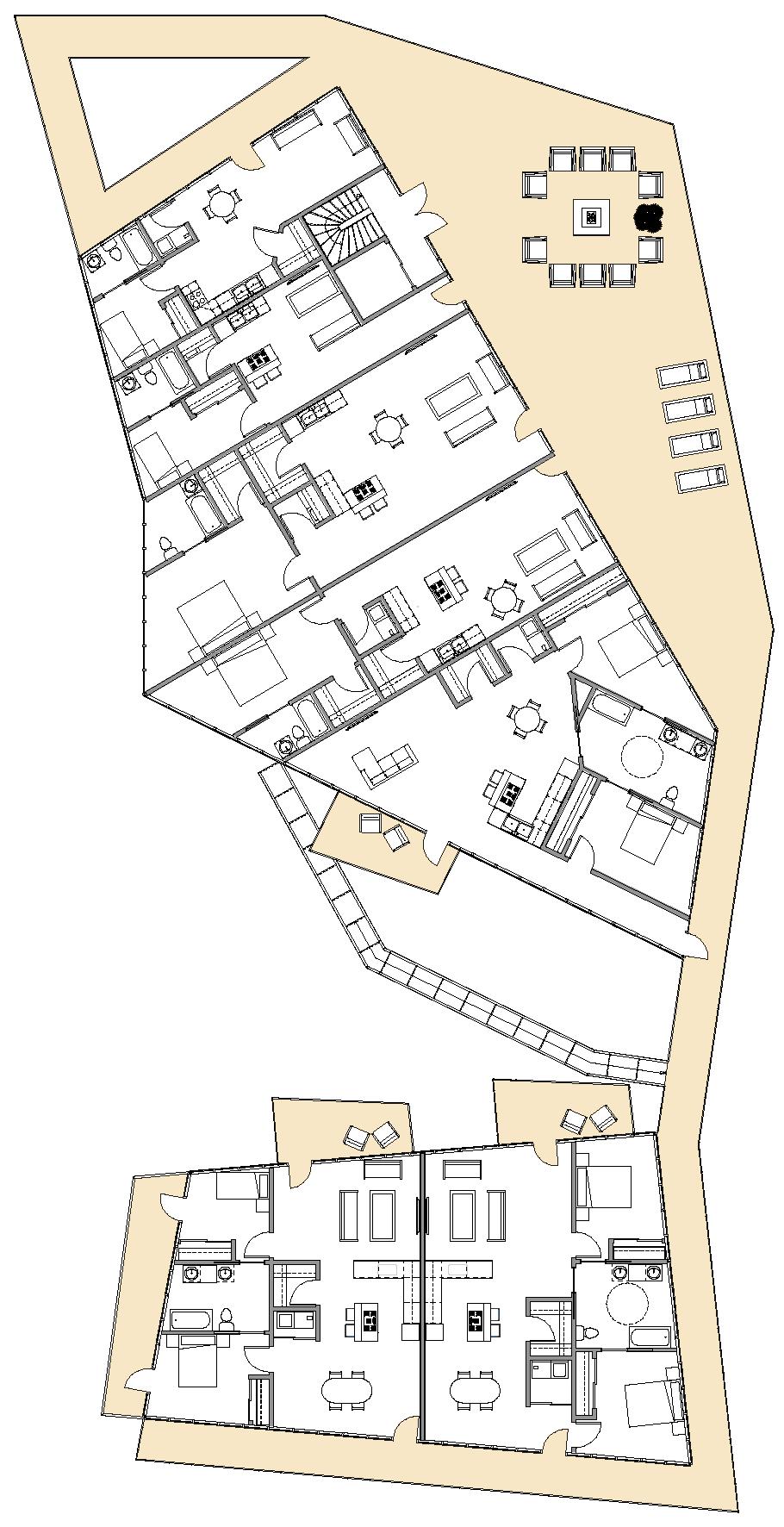
HOUSING COMPLEX

Sophomore Year I Fall 2020

How do you design knowing things will change? Set in New Orleans, this housing complex holds over fifteen units ranging from one to four bedrooms. After identifying the site and analyzing the surrounding buildings, local vernacular architectural features such as large overhangs, courtyards, and balconies were incorporated to craft a modern space with a nod to New Orleans’ rich heritage.

The courtyard-centric design has been built along with a cafe on the ground level to facilitate and encourage use of the courtyard as a public performance space. The main circulation resides inside the courtyard and every apartment has a view of it as well. Constant opportunities for exposure will help break the ice with residence to help form a community within the development.

The greatest accomplishment made in this design is that none of the plans are identical. Despite being more costly, this ensures that despite all the shared spaces, each resident’s experience will be unique.

14 Housing Complex Right: View of courtyard
15 Housing Complex

Left: Diagrams of New Orleans

Site model in revit

Below: Exploded Axonometric

16 Housing Complex
17 Housing Complex
Second Floor Plan First Floor Plan
18 Housing Complex
Fourth Floor Plan Third Floor Plan

Below: Renderings

19 Housing Complex
20 Housing Complex Below: Courtyard Rendering

Sophomore Year I Spring 2020

Fall River, Massachusetts is a town rich in history fraught with controversy. From redlining of districts to the development of a I-195 splitting the city in two, Fall River has been divided for decades. The current town hall, which is built on air rights above I-195, was an attempt to unify the city once again –but the brutalist style of the building was not well-received by residents.

This design proposal would sit in front of city hall and create a more approachable public space. By rearranging the street to add a bus stop, to dropping the scale closer to a human, and adding greenery to the site, this installment creates a perfect public park for the city.

The awning allows for planters to be built that will house trees (made possible because the ground plane is over six feet thick). The awning further helps lower the scale from a five-story building down to the human scale and provides a more intimate space.

24 Park Left: View of installment
PARK

Below: Sections of street before and after rearrangement

25 Park

Below: Diagrammatic section view of zones

Below: Circulation paths

26 Park

Below: Elevation and plan view of installment\

Right - First Row: View of approach

View planter benches

Right - Second Row: View from bike lane

View from approach

27 Park
28 Park
Overleaf: View of installment at night

Sophomore Year Studio I Spring 2020

“How would a pilot and a ceramicist live together?” This studio projects goal was to build a space in downtown Providence, RI that would let two tenants with drastically different careers live together. To kick off the design, the day-to-day elements of each tenant’s profession were taken into account: the ceramicist works with materials that come from the ground, while the pilot’s domain is the sky.

Taking this in a literal sense, the pilot was given the third floor to himself, and the ceramicist was given the second floor and most of the first floor. The assignment of square footage was dictated by an analysis of how much time each tenant would spend at home: the pilot, effectively a transient resident, was allocated to a smaller space lofted above the ceramicist. The ceramicist, on the other hand, was provided with the necessary space to function with a live/work space including private living quarters, a dedicated studio space, and a gallery for display and sales.

This space allows for communication between the two tenants through the three story gallery space and a connection between apartments via the back stairs.

32 Duplex
Left: Front facade of duplex
DUPLEX

Below: Reference image of a ceramicist

Below: Instructor drawing of proposed spaces

Below: Reference image of a pilot

Right: Diagrammatic sequence of spacial development

33 Duplex
34 Duplex
35 Duplex

Left: Site model with proposal

Below: Sectional model

36 Duplex
37 Duplex

Right: Sections

Overleaf: Views of model

First Floor Plan

Second Floor Plan

38 Duplex
Third Floor Plan

Below: Exploded axon

Right: Interior views

39 Duplex
40 Duplex
43 Lake House

LAKE HOUSE

2016

Long before setting foot in studio, I was fascinated with high-end residential design: I would draw what I saw. This house holds a special place in my heart and I have memorized every inch of it. This work demonstrates my ability to measure a structure and record it accurately – all of the following drawings were generated using measurements I personally took.

44 Lake House
Left: Front elevation Left: Rear elevation

Below: Ground level floor plan

45 Lake House
46 Lake House Below: First floor plan

Below: Second floor plan

47 Lake House
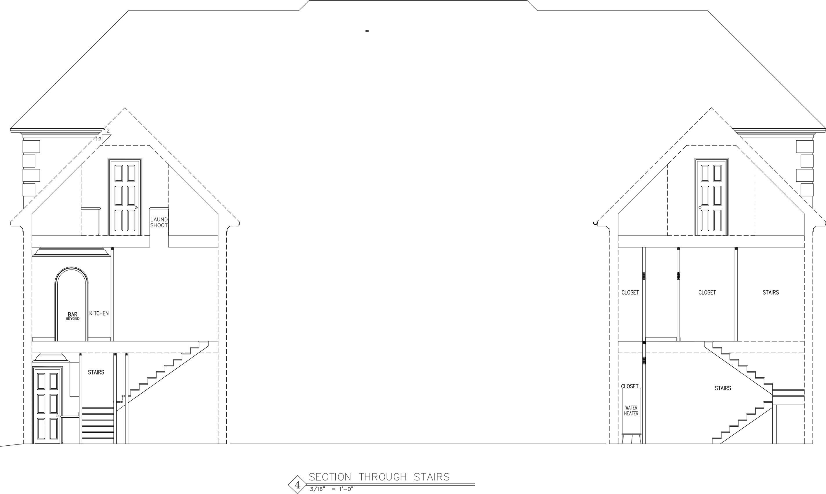
48 Lake House Below: Section through stairs

Turn static files into dynamic content formats.

Create a flipbook
Issuu converts static files into: digital portfolios, online yearbooks, online catalogs, digital photo albums and more. Sign up and create your flipbook.