Undergraduate Architecture Portfolio

Page 1

A R C H I T E C T U R E

P O R T F O L I O

Nathan Dsouza

Email: nathan79958@gmail.com Phone: +91 7517012965

CURRICULUM VITAE
2019-2024 MANIPAL SCHOOL OF ARCHITECTURE AND PLANNING, MAHE, INDIA - BACHELOR OF ARCHITECTURE (B.ARCH) - CURRENTLY IN 7th SEMESTER(10 SEMESTERS IN TOTAL) SKILLS BIM | Autodesk Revit RENDERING | Lumion | Enscape | Revit Rendering | Twinmotion ADOBE CC | Photoshop | Indesgin | Illustrator MS OFFICE | Word | Powerpoint | Excel 3D MODELLING | SketchUp | Autodesk Revit LANGUAGES ENGLISH HINDI
EDUCATION
INDEX PROJECT 1 | FACULTY PROJECT 2 | KINDERGARTEN PROJECT 3 WORKING DRAWING
CONTENTS INDEX FACULTY HOUSING KINDERGARTEN 3 | RESORT DRAWING | RESIDENCE

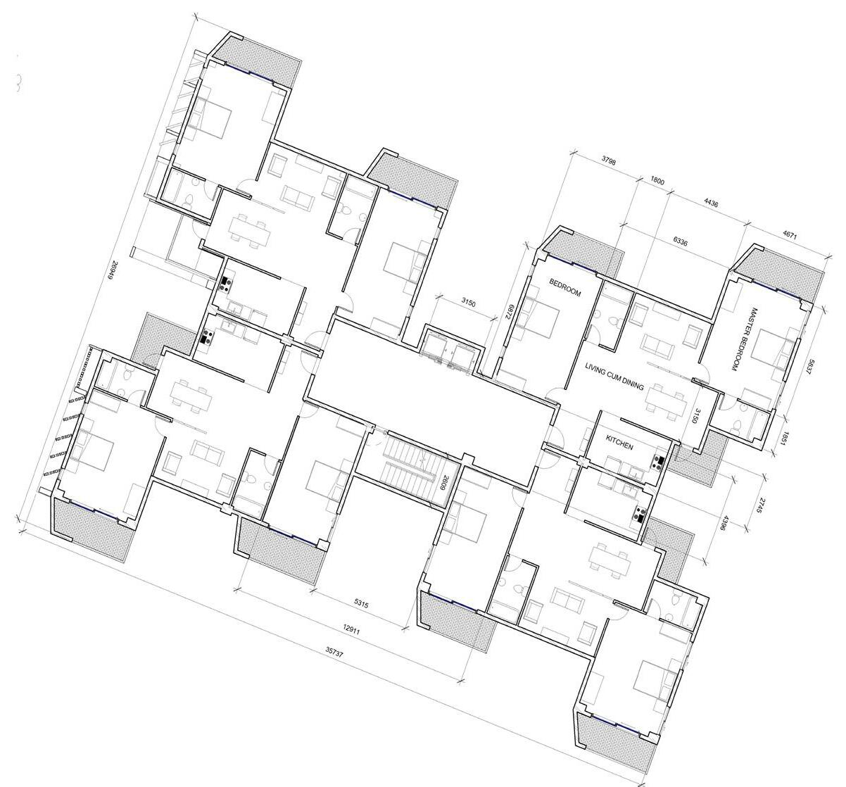
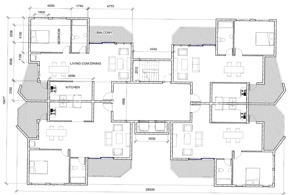
FACULTY HOUSING

In this project, the aim was to design institutional housing for the teaching faculty at Manipal MIT. It also aimed at increasing the standard of living to a mid-rise apartment and introducing more amenities that the survey found to be lacking. Concept of the design: a collaborative environment where people can interact and coexist with the architecture itself.

Location: Manipal, Udupi, Karnataka, India Climate: Hot and humid

Typology: Institutional Housing Site Extent: 23000 sq m

Terrain: Flat

6
7

3 BHK Block

Mixed Use Block

NATHAN DSOUZA 8 8 SITE MODEL

ABOUT

Site consists of 4 housing blocks, commercial area having hall, gym, cafe, shops, interactive spaces with gazebos, a playarea for children and a walking track around the site.

SELECTED WORKS 9 9
1 BHK Block 2 BHK Block
Commercial Area

SITE ELEVATION

1 BHK FLOOR PLAN

NATHAN DSOUZA 10

2 BHK FLOOR PLAN

11 SELECTED WORKS
NATHAN DSOUZA 12
3 BHK SECTION

MIXED USE FLOOR PLAN

3 BHK FLOOR PLAN

SELECTED WORKS 13
NATHAN DSOUZA 14 FACADE VIEW

BRIDGE VIEW

OPEN AREA VIEW

SELECTED WORKS 15

KINDERGARTEN

The project is a Kindergarten (Campus design)(CBSE) locate at Udupi in Manipal, Karnataka with a total site area of 1 to 1.5 acres. (approx. 5970 sq. m) . The climate here is warm and humid. The topography is flat and it has red laterite soil. The building structure is load bearing with G or G + 1 floors, and made of RCC and Timber. The building caters to Playschool, Pre-KG, LKG, UKG (CBSE pattern) and a creche. The occupancy is 40 to 60 in number, they being Parents, Teach ers, Staff members, Principal, kids (Aged between 2-6 years). It has outdoor and indoor activity area, dining room, café, classroom, lab, library, staff room, office, multipurpose hall and toilets

NATHAN DSOUZA 18 AMPHITHEATRE PLAYGROUND SITE PLAN

ABOUT

Site consists of an amphitheathre, play area, sensory garden and a waiting area.

SITE EXIT

WAITING AREA

SITE ENTRANCE

SELECTED WORKS 19
NATHAN DSOUZA 20
VIEW NORTH ELEVATION OPEN AIR CLASSROOM DINING HALL RECEPTION LOBBY INDOOR PLAY AREA ART ROOM LIBRARY CRECHE STAFF ROOM CLASSROOM
EXPLODED
SELECTED WORKS 21 EAST ELEVATION
GROUND FLOOR PLAN
NATHAN DSOUZA 22
SENSORY GARDEN AMPHITHEATRE AND PLAY AREA VIEWS

RECEPTION AND LOBBY

INDOOR PLAY AREA

SELECTED WORKS 23

VISION RESORT

A luxury hotel in Goa near Mandrem beach offers rooms, suites, villas, twin luxuries of hillside and sea facing residence across a turquoise washed paradise with splendid views of the Arabian sea.To create a space which seamlessly blends into the foliage around it. Convergence and divergence from a central space, connecting various activities and functions. A consistent visual connection to the site through openings and fenestrations, green roof, materials and textures etc. This group work of two has been achieved through use of alternate building material and climate responsive design.

Location: Mandrem, Goa, India Climate: Hot and humid Typology: 3 Star resort Site Extent: 15800 sq m Terrain: Slope Soil Type: Laterite.

RRERSTAURANT

RDELUXE

RSUITE ROOMS

NATHAN DSOUZA 26 SITE MODEL
GYM SPA

STANDARD ROOMS

ABOUT

The site consists of standard rooms, deluxe rooms, suite rooms, a fully fur nished gym, relaxing spa, swimming pool and indoor and open air restau rant with a viewing deck that looks onto the sea.

SELECTED WORKS 27 RECEPTION

STANDARD ROOM FLOOR PLAN

NATHAN DSOUZA
28 SITE MODEL

STANDARD ROOM ELEVATION STANDARD ROOM SECTION

SELECTED WORKS
29

DELUXE ROOM FLOOR PLAN

NATHAN DSOUZA
30 VIEWS

DELUXE ROOM ELEVATION

31
DELUXE ROOM SECTION

SUITE ROOM FLOOR PLAN

NATHAN DSOUZA
JACUZZI 32 VIEWS
SELECTED WORKS
33
EXPLODED VIEW

RESTAURANT SECTION

NATHAN DSOUZA
SITE SECTION 34
SELECTED WORKS
35
EXPLODED VIEW
NATHAN DSOUZA 36
SELECTED WORKS 37

F1(E 7) 1430x1600 F1(E 6) 1430x1600 F1(E,4) 1430x1600 F1(E,2) 1430x1600

F1(D,1) 1430x1600 F1(D,2) 1430x1600 F1(D,3) 1430x1600 F1(D,4) 1430x1600 F1(D,6) 1430x1600 F1(D,7) 1430x1600

F1(C,7) 1430x1600 F1(C,6) 1430x1600 F1(C,3) 1430x1600 F1(C,2) 1430x1600 F1(C,1) 1430x1600

NATHAN DSOUZA 38
2 B D 3 4 7 6 E 5 A C
1
F1(A 1) 1430x1600 F1(A 2) 1430x1600 F1(A,3) 1430x1600 F1(B 2) 1430x1600 F1(B 3) 1430x1600 F1(B 5) 1430x1600 F1(B 6) 1430x1600 F1(B,7) 1430x1600
1083 0
2803
206 0 283 5 325 5 268 0 160 0 885 715 715 715 1 : 50 FOUNDATION 1 1 2 B D 3 4 7 6 E 5 A C D 1 D 2 D2 D 3 D 3 D 3 D 3 D 3 D 3 W 1 W 1 W 3 KITCHEN (2475mmx3325mm) W 2 FOYER (3250mmx2850mm) COURTYARD BEDROOM 2 (4870mm x 2660mm) L AU N DR Y RO O M (2 47 5 m m x 2 7 0 0 mm UTILITY ROOM (2 47 5 m m x 27 7 5mm) THEATRE (2800mmx3250mm) 821 25 0 2125 104 0 1 0 8 30 1 7 6 03 206 0 283 5 325 5 268 0 2803 3525 1925 2570 2300 4480 V 439 WASH CLOSET (2 00 5 m m x 2 7 7 543 mm)2 50 7 1125 800 1175 1125 1449 556 152 1 173 4 2045 525 2300 355 1725 LIVING CUM DINING 67 sq.m. 150 UP 4 2 1 : 50 GROUND FLOOR PLAN 1
17603
3525 1925 2570 2300 4480
SELECTED WORKS | WORKING DRAWINGS 39 DN B D E 2803 3525 1925 4480 A B AT HRO O M 3 (2 6 5 0 m m x 3530mm) MASTER BEDROOM (6700mmx3050mm) BATHROOM 1 (4400mmx3050mm) STUDY ROOM (3700mmx3050mm) 1083 0 BEDROOM 3 (2435mm x 6250mm) 609 0 D3 D 3 D2 C D2 D D 3 V 1 V1 376 0 2680 325 5 284 5 205 0 206 0 5450 4870 4870 1605 2875 2125 100 0 821 25 0 771 1154 631 2894 55 1 229 4 4 2 COURTYARD 17603 1 2 3 4 5 6 7 1 FIRST FLOOR PLAN 1 : 50 1 : 75 Site 1
NATHAN DSOUZA 40
: 50 Section 1 1
2 1 : 50 Section 2 2
1
4

Level 2 6000 3150 BEAM 1 2550

FIRST FLOOR PLAN

Level 2 6000 3150 BEAM 1 2550

BEAM 2 5850 gr FLOOR 1 150 PLINTH0 450 ground floor

FIRST FLOOR PLAN PLINTH0 450

BEAM 2 5850 FLOOR 1 150 FOUNDATION 1700

41
SELECTED WORKS
ound floor
NATHAN DSOUZA 42 2966 1480 2900 2838 3649 1480 279 240 300 240 300 150 175 1180 240 150 300 1 : 50 3 wall ound floor FIRST FLOOR PLAN PLINTH0 450 Level 2 6000 3150 BEAM 1 2550 BEAM 2 5850 gr FLOOR 1 150 FOUNDATION 1700 1 : 50 STAIR 4 1 : 20 wall 2
SELECTED WORKS 43 2900 2900 2900 2900 2900 0 240 300 240 300 240 300 240 300 240 213 FOUNDATION 1700

Turn static files into dynamic content formats.

Create a flipbook
Issuu converts static files into: digital portfolios, online yearbooks, online catalogs, digital photo albums and more. Sign up and create your flipbook.