O fazer e o Construir com Tijolos: Possibilidades Construtivas

Page 1

O FAZER E O CONSTRUIR COM TIJOLOS: POSSIBILIDADES CONSTRUTIVAS

Trabalho Final de Graduação apresentado ao Centro Universitário Barão de Mauá para obtenção do título de bacharel em Arquitetura e UrbanismWo.

Orientador: Me.Fernando Gobbo Ferreira.

Ribeirão Preto, 2024

Autorizo a reprodução e divulgação total ou parcial deste trabalho, por qualquer meio convencional ou eletrônico, para fins de estudo e pesquisa, desde que citada a fonte.

S237f

Santos, Natália das Neves Silva

O fazer e o construir com tijolos: possibilidades construtivas/ Natália das Neves Silva Santos - Ribeirão Preto, 2024.

151wp.il

Trabalho de conclusão do curso de Arquitetura e Urbanismo do Centro Universitário Barão de Mauá

Orientador: Me. Fernando Gobbo Ferreira

1.Tijolo 2.Construir 3.Habitar I.Ferreira, Fernando Gobbo II. Título

CDU 72

Bibliotecária Responsável: Maria Gabriela F. Cobianchi CRB8 9914

SANTOS, Natália das Neves Silva

O FAZER E O CONSTRUIr COM TIJOLOs: possibilidades

coNstrutivas

Trabalho final de graduação em Arquitetura e Urbanismo do Centro Universitário Barão de Mauá para obtenção do título de bacharel.

Orientador: Me.Fernando Gobbo Ferreira

Data de aprovação:

ABANCA EXAMINADORA

Me. Fernando Gobbo Ferreira Centro Universitário Barão de Mauá - Ribeirão Preto

Me. Oscar Eustáchio Silva Mendes Centro Universitário Barão de Mauá - Ribeirão Preto

Kaique de Souza Xavier Centro Universitário Barão de Mauá - Ribeirão Preto

agradecimentos

Acima de tudo, agradeço a Deus, que me deu forças e saúde para que eu pudesse trilhar o meu caminho e alcançar todos os meus objetivos durante a minha vida acadêmica.

Aos meus pais, Maria das Neves e Natalício Zeferino, e ao meu irmão Luis Fernando, por sempre acreditarem em mim e me ajudarem a tornar esse sonho possível. Eles não pouparam esforços para me incentivar e auxiliar nos momentos mais difíceis.

Aos meus professores do curso, que, através dos seus conselhos, correções e ensinamentos, permitiram que eu estivesse hoje concluindo este trabalho.

Ao meu orientador, Fernando Gobbo, nem sei como expressar minha gratidão. Ele é mestre, professor e amigo, que não apenas aceitou caminhar comigo nessa jornada, mas também foi o maior incentivador para que eu pudesse trilhar este incrível

percurso de conhecimento e descobertas. Deixo também o meu agradecimento especial a arquiteta Larissa França, uma mulher forte e apaixonada pela arquitetura, que todos os dias serve de exemplo para mim. Muito obrigada por nunca me deixar desistir e sempre me encorajar.

Aos meus amigos, pela compreensão das minhas ausências e por sempre me animarem e incentivarem a dar o meu melhor. A todos que participaram indiretamente ou diretamente desta jornada, contribuindo e enriquecendo este trabalho, deixo aqui meus profundos agradecimentos.

Dedico este trabalho aos meus pais.

" Los arquitectos no somos operarios de una disciplina, somos constructores de una sociedad "

Solano Benítez

resumo resumo

O FAZER E O CONSTRUIR COM

TIJOLOS: Possibilidades Construtivas, apresenta uma breve história de como o tijolo se consolidou no Brasil e seus usos na arquitetura modernista e paulistana, dando ênfase especial às principais obras encontradas na região de Ribeirão Preto (SP). O trabalho ainda aborda alguns aspectos da arquitetura latinoamericana, expondo as construções mais emblemáticas feitas em tijolos. Para concluir, apresenta-se o ensaio de uma nova construção: uma residência estudantil. Este projeto revisita todo o conteúdo histórico estudado e seus principais fundamentos, e também considera o valor político e social que a obra pode transmitir, utilizando as principais técnicas e possibilidades construtivas que o tijolo oferece.

pag.10

RESUMEN ABSTRACT RESUMEN

ABSTRACT

EL HACER Y EL CONSTRUIR CON

LADRILLOS: Posibilidades Constructivas presenta, una breve historia de cómo el ladrillo se consolidó en el Brasil y sus usos en la arquitectura modernista y paulistana, dando énfasis especial a las principales obras encontradas en la región de Ribeirão Preto (SP).

El trabajo también aborda algunos aspectos de la arquitectura latinoamericana, exponiendo las construcciones más emblemáticas hechas en ladrillos.

Para concluir, se presenta el ensayo de una nueva construcción: una residencia estudiantil. Este proyecto revisita todo el contenido histórico estudiado y sus principales fundamentos, y también considera el valor político y social que la obra puede transmitir, utilizando las principales técnicas y posibilidades constructivas que el ladrillo ofrece.

THE

MAKING AND THE CONSTRUCTING WITH BRICKS: Constructive Possibilities, presents a brief history of how the brick had consolidated itself in Brazil and its uses in modernist architecture of São Paulo, giving special emphasis on main works found in the region of Ribeirão Preto (SP).

The work also broaches some of the aspects of architecture in Latin America, exhibiting the most emblematic works done in bricks.

To conclude, it is presented the experiment of a new construction: a residence for students. This project revisits all of the studied historical subject and its main fundamentals, and it also considers the political and social values that the work can transmit, using the main constructive techniques and possibilities that the brick offers.

pag.11

1

INTRODUÇÃO

Pag. 14

PROBLEMA.

2

4 _INTRODUÇÃO.

_ JUSTIFICATIVA.

_ METODOLOGIA.

OBJETIVO.

CONTEXTUALIZAÇÃO

Pag. 24

_ o tijolo no brasil colônia.

_ O BRASIL NO SÉCULO XVII.

_ O BRASIL NO SÉCULO XVIII.

EDIFICAÇÃO DE UMA

NOVA CIDADE Pag. 32

3 _SÃO PAULO EM COSTRUÇÃO. _SÃO PAULO E EXPANÇÃO.

_ O BRASIL NO SÉCULO XIX. O TIJOLO COM UMA NOVA VISIBILIDADE

Pag. 42

a notoriedade do tijolo no modernismo. américa latina e o novo brutalismo. _canteiros como laboratórios. _do regionalismo ao esquecimento.

Pag. 60

_RESIDÊNCIA DOS PADRES CLARETIANOS.

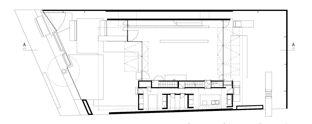
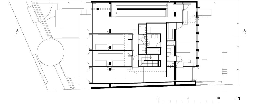
_ moradia dos estudantes da unicamp.

residência abu & font.

O
ENTENDENDO O USO E A TECNICA

SUMARIOsumário

SERTÃOZINHO E UM NOVO EXPERIMENTO

Pag. 80 5

_ o local e seus vínculos.

6 7 8 9

ESTUDO PRELIMINAR

Pag. 98

_ memorial justificativo.

MAPEAMENTO DA ÁREA. _código de obrs/dimenções/organização .

_ etapa do habitar.

Pag. 122

ETAPA DE OCUPAÇÃO.

IMPLANTAÇÃO NO LOTE.

Pag. 130

DETALHAMENTO PLANTA/CORTES.

_ DETALHES GERAIS

Pag. 148

PLANTAS, CORTES E ELEVAÇÕES.

PERSPECTIVAS _etapa dE ocupação. ISOMETRICAS.

_CONSIDERAÇOES FINAIS

BIBLIOGRAFIA
ANTE PROJETO ETAPA DO FAZER

introdução o. introdução

O homem vem se relacionando com o construir desde a antiguidade. Essa relação se manifestou quando surgiu a necessidade de se abrigar, que, inicialmente, era um lugar que fornecia proteção encontrada no próprio meio natural. Com o passar dos anos, novas necessidades surgem e o homem começa a se expressar, desenvolvendo ferramentas e utensílios que não existem na natureza.

Estudos históricos apontam que uma das primeiras matérias primas manipuladas para a produção de habitações foi a argila. Tendo tal domínio, as comunidades primitivas iniciaram a construção de suas cidades utilizando o tijolo de argila¹ crua, misturado com capim e seco ao tempo² . Ele era utilizado em paredes e abóbadas, técnica que historicamente antecede ao tijolo cozido.

Como discorre Brancante, E.F. 1981 em seu livro, o tijolo cozido/cerâmico vem como herdeiro do adobe na destinação e da terracota na solidez, mantendo a matéria prima e a secagem de ambos.

1. A argila é um material natural, terroso, de granulação fina e constituída, essencialmente, por partículas cristalinas extremamente pequenas de um número restrito de minerais, conhecidos como argilominerais, podendo, também, conter outros minerais (quartzo, mica, pirita, calcita, dolomita, entre outros), matéria orgânica, sais solúveis e outras impurezas (SANTOS, 1989).

Do adobe herda ainda mais características como a forma compacta e retangular, porém mais reduzida, e da terracota, o princípio fundamental da sujeição ao fogo, com outros critérios como a queima em temperaturas elevadas (até 1000º) e o uso de formas retangulares. Isso faz com que o tijolo tenha fácil manuseio e uma resistência incomparável.

Os tijolos cerâmicos existem, portanto, há muitos séculos. E desde as mais antigas civilizações, surgidas no Oriente Médio, o homem fez uso do tijolo cozido para erguer paredes e materializar a arquitetura, permanecendo, ao longo do tempo, com poucas alterações a técnica de fabricação e o método construtivo (Davey,1961 apud D’alambert,1993).

Apesar de ser um material tão antigo, não é um processo que sofreu muitas alterações, e como a “receita” passa por melhorias com o decorrer dos anos, as técnicas se aprimoram, mas a forma original sempre prevalece.

pag.15
2. Conhecido hoje como Tijolo Adobe.

3. Era o espaço de trabalho, talvez o mais importante na olaria, até porque, sem que se tomasse cuidados especiais nessa etapa, todo o processo poderia se perder (Rocha, 2012, p. 183). Sobre a banca eram organizadas todas as ferramentas e materiais necessários para o trabalho (Duhamel, 1763, p. 8; Demanet, 1847, p. 72 apud Rocha, 2012, p. 184). : o barro já completamente processado (a); o molde (f); a vasilha com água, para manter úmido o molde,

limpar a mesa e as mãos; a caixa de areia (b) para untar o molde; o arco 156 (d) com fio de arame, para laminar e remover o excesso de barro sobre o molde; tabuletas (e) para transportar as peças prontas; e o cágado (g), molde para telha.

4 . O transporte entre a banca do moldador e solo, pela fragilidade da peça, deveria ser feito nas tabuletas. Após a primeira secagem, quando os tijolos adquiriam a adequada firmeza que impedisse sua deformação, eram

transportados em carrinhos. Esses tinham formato muito peculiar, para que as peças não ficassem muito inclinadas no percurso (Rocha, 2012, p. 191).

FIGURA. 01: Mesa do moldador. Fonte: Rocha, 2012.

FIGURA. 02: Molde duplo para tijolo, 1763. Fonte: Rocha, 2012.

Segundo estudos, a técnica de produção do tijolo passa por grandes modificações quando se inicia uma busca por uma produção mais rápida, que, tudo indica, acontece na Idade Média (1453 d.C.) na Europa, quando surge um novo meio de produção - a bancada ou mesa do moldador³ (figura 01), seguida do ingresso das paletas de madeira ou moldes para tijolos (figura 02), que ajudavam na modelagem e no transporte do tijolo, sem que houvesse rachaduras ou danos. Mais à frente, é usado um carrinho de mão, chamado de

tabuletas ⁴ (figura 03), que ajudava no transporte do tijolo até as áreas de secagem.(figura 04) Somente no final do século XIX e início do XX, há um novo salto.

Com a industrialização, a moldagem torna-se mecanizada, incorporando novos métodos de amassamento e preparação da matéria-prima e surgem máquinas responsáveis por este processo, denominadas amassadeiras. A industrialização também possibilita o

pag.16
[2] [1]

FIGURA. 03: Carrinhos para transporte de tijolos antes do cozimento. Fonte: Rocha, 2012.

FIGURA. 04: Processo de modelagem do tijolo, 1763. Fonte: Rocha, 2012.

surgimento de máquinas que faziam o procedimento repetitivo da moldagem através do processo de extrusão ou da prensagem dos tijolos (Florenzano, Almeida & Angélica, 2017 p.153).

Mesmo com todas essas mudanças, havia um certo esforço em continuar utilizando o tijolo como principal meio construtivo, utilizando técnicas de assentamento e padrões de armações, que promoviam melhor estrutura e estética.

Mas o que de fato chama atenção no meio arquitetônico, e será visto como um novo fazer, é a utilização de outras matérias juntamente ao tijolo. Eram feitos ensaios e experimentos utilizando reforço de ferro em paredes⁵ e esses estudos permitiram com que o tijolo pudesse fornecer estruturas arquitetônicas mais altas e paredes mais finas. No entanto, o processo não pausou em buscar novas técnicas - o saber fazer tradicional também recebeu destaque, passando por novas experimentações.

pag.17
a ser
5. Técnica que vem
conhecida como tijolo armado.
[3] [4]

06. Figura 06: Disponível em: https://www. fondationlecorbusier.fr/oeuvrearchitecture/realisations-lesmaisons-jaoul-neuilly-sur-seinefrance-1951-1955/. Acesso em: set. 2023.

07. Figura. 05 e 07 - Disponível em: https://www.admagazine. fr/architecture/balade/article/ maisons-jaoul-le-corbusierneuilly-sur-seine. Acesso em: set. 2023.

FIGURA. 05: A sala da casa

A, adornada com paredes policromadas e abóbada catalã, é o único espaço de todo o projeto que beneficia de pé direito duplo. Fonte: © DePasquale+Maffini © FLC Adagp, Paris, 2021.

FIGURA. 06: Maison Jaoul, Neuilly-sur-Seine, France, 19511955 – Arquiteto Le Corbusier. Fonte: Fondation Corbusier⁶.

Aproximando-se mais da atualidade, na década de 1950, o arquiteto Le Corbusier inicia algumas experimentações, utilizando tijolo como material principal, depois de explorar e tirar partido de superfícies brancas e rebocadas por três décadas. O arquiteto produz duas casas em Neuilly-sur-seine, na França. O projeto, conhecido como Maisons Jaoul 1951-56 (figura. 05, 06 e 07), possui paredes internas e externas em tijolos e teto de abóbada rebaixada, que são os pontos altos da edificação - referências diretas a trabalhos que o arquiteto observou durante suas viagens. Entretanto, infelizmente, foi um projeto que, com o passar do tempo, tornou-se cada vez menos lembrado. Embora ele ainda tenha certa visibilidade, está se limita a países que utilizam e admiram a técnica. Esse projeto possui tanta importância quanto os outros, mas é muito menos estudado e discutido, pelo fato de a maioria das universidades terem um currículo que dá ênfase à arquitetura Moderna, as discussões sempre se voltam para obras do modernismo, com suas linhas retas e paredes brancas, enquanto projetos mais “experimentais” recebem uma visibilidade menor.

Atualmente, em um contexto geral, países de clima tropical e quente, com poder aquisitivo menor, continuam utilizando técnicas de construção com tijolos e materiais vindos da

pag.18
[5] [6]

FIGURA. 07: A porta de entrada da casa B, para o jardim interior, com a sua cobertura em paralelepípedo de concreto. Nos reflexos das janelas podemos ver a casa A. Fonte: © DePasquale+Maffini © FLC / Adagp, Paris, 2021 ⁷ .

[7]

O Prêmio Pritzker é a maior homenagem que um arquiteto pode receber. Esta homenagem é atribuída anualmente a arquitetos(as), ao qual as obras “têm feito contribuições significativas para a humanidade ao longo dos anos”.

terra, porém sempre tentando aprimorá-las.

Países latinos, como Argentina, Paraguai, México e Uruguai, têm obras em destaque que possuem certa influência, assim como países da África e da Índia, que, além de construir com tijolos, buscam novos métodos de construção utilizando a terra. Um grande exemplo da busca por aprimoramento é o arquiteto Francis Kére, que, em 2022, ganhou o Prêmio Pritzker⁸, com obras produzidas a partir de matérias e técnicas vindas da terra.

Contudo, como material e técnica milenar capazes de promover construções com tanto significado e qualidade vêm desaparecendo de nossos canteiros nos últimos anos, Campabel & Prynce 2005: 303 alega em seu livro História Universal do Tijolo que:

Uma das mudanças mais importantes na indústria de construção nos últimos cinco mil anos diz respeito às mudanças no papel do desenhador[sic]. Arquitetos e engenheiros, considerados distintos dos mestres artesãos, raramente têm a experiência de manusear materiais de construção, nem sequer a oportunidade de os experimentar durante a construção da obra. Os modernos métodos de contratação exigem cada vez mais que todas as decisões sejam feitas numa fase inicial para que as obras possam ser precisamente orçamentadas. Este método de definir contratos não era comum antes do

século XVII. Durante a Renascença, o arquiteto frequentemente mudaria de opinião ao longo da construção e os trabalhadores eram normalmente pagos por dia de trabalho. Naturalmente, na idade média, o artesão mestre já teria muita familiaridade com os materiais que usava, embora tendesse a conjugálos de maneiras já conhecidas e postas à prova. O arquiteto posterior tinha mais liberdade para experimentar, mas precisava de um conhecimento dos materiais adquiridos através da educação ou em livros com todas as limitações que isso implica. Para complicar ainda mais as coisas, no século XX a variedade de materiais que poderia ser aceite na construção aumentou.

Entretanto, mesmo com tantas opções, o tijolo tenta persistir, mesmo que de forma estrutural, como fechamento ou revestimento, e sempre se faz presente nos canteiros de obra. Como se sabe, os avanços e as tendências não são lineares e, portanto, o saber fazer ainda tem chance de retornar ou se adaptar às novas necessidades.

pag.20
08.

problema objetivo proBLEMa objetivo

O problema da pesquisa se volta para a capacidade construtiva que o tijolo proporciona e o fato de que este elemento esteja perdendo cada vez mais seu espaço nos canteiros. Ainda que seja muito utilizado como elemento estético como revestimento ou como elemento de fechamento, de forma quase oculta, coberto por reboco e pintura, seu uso como elemento estrutural ou de cobertura é raramente encontrado.

A problemática se entende mais ainda quando voltamos para valores sociais que são empregados sobre o saber fazer, preconceito com materialidade e a alienação nos canteiros de obra, onde fica evidente que uma desvalorização do construir é uma busca apenas pelo resultado final.

Um dos principais objetivos é mostrar como e até onde podemos chegar com o tijolo, trazendo leituras projetuais de obras encontradas na América Latina, sobretudo em Ribeirão Preto e região, demonstrando a aplicabilidade sobre seu uso nos últimos anos.

“O debate sobre nossa arquitetura deve ser reaberto. A forma não é superficial; ao contrário, ela é o conteúdo, já dizia o esquecido Hegel “ (Ferro, 2006 p. 273).

Com essas palavras em mente, é interessante ressaltar os valores crítico, social e histórico que esse material carrega, além das possibilidades criativas e técnicas.

pag.21

justificativa justificativa

As realizações concretas de arquitetura são poucas e restritas. As raras oportunidades são exploradas em todos os sentidos que possam oferecer, revelando uma ansiedade que procura compensar a frustração crescente. Elas adquirem um caráter programático e militante com múltiplas interações. Denunciam as contradições mais graves em cada caso através da clara e evidente expressão dos artifícios necessários para contorná-las. Simultaneamente, fazendo papel de arquitetura laboratórial, ensaiam inúmeras possibilidades técnicas e especiais, numa atitude de espera e estímulo de transformações sociais profundas. A fisionomia geral é heterogênea – não há como encontrar linguagem harmônica em tempo essencialmente desarmônico. Mas, e é o essencial, procura participar, dentro de um pensamento eminente crítico no momento presente (Ferro, 2006 p. 39).

Revivendo as palavras do arquiteto Sérgio Ferro, é possível observar que a arquitetura do construir e do saber fazer vem se esvaindo há muito tempo. Visando isso e observando os

exemplos que vêm recebendo certo destaque nas mídias e os tipos de arquiteturas da cidade e região de Ribeirão Preto, a pesquisa tem como ênfase demonstrar e reviver ao menos um pouco dessas ideias, ideologias, conhecimentos técnicos e criativos que o tijolo cerâmico possibilita, além de levantar discussão em torno do canteiro de obras e a sinceridade dos materiais, e o que isso pode proporcionar para aqueles que constroem e aqueles que desfrutam da construção.

pag.22

METODOLOGIA METODOLOGIA

Para o desenvolvimento da pesquisa, foi utilizada a metodologia descritiva, exploratória e propositiva – com o intuito de utilizar diversas ferramentas que possibilitaram a obtenção de melhores resultados. Durante esse desenvolvimento, serão aplicados três procedimentos técnicos principais como estratégia: (1) Revisão Bibliográfica; (2) Pesquisa In Loco; (3) Análise de Documentos.

1. REVISÃO BIBLIOGRÁFICA: Buscar um aprofundamento bibliográfico na área técnica e social, para entender o impacto que o material e a técnica tiveram. De forma linear, a discussão se inicia em um conceito mais geral, onde entendemos onde tudo começou e como se encontram essas práticas. Em um segundo momento, a discussão se volta para América Latina com foco no Brasil. Preparando-se para o debate principal, o foco se concentra em um recorte maior, onde Ribeirão Preto e região recebem destaque nas análises e argumentações.

2. PESQUISA IN LOCO: para melhor aprofundamento da pesquisa serão feitas leituras projetuais por meio de ferramentas como pesquisa em livros e websites. Porém, para estudos sobre obras encontradas em Ribeirão Preto e região será tomado um cuidado maior, buscando melhor qualidade informativa para entender técnicas e materialidades, em in loco.

3. ANÁLISE DE DOCUMENTOS: Quando for necessário, para entender melhor as estruturas arquitetônicas e métodos construtivos, serão feitas buscas dos documentos originais encontrados em acervos públicos ou nas prefeituras das cidades. Esses métodos serão utilizados tanto na parte teórica do trabalho, voltada para a temática, quanto para os estudos de projeto, em momentos de produção de levantamentos e desenvolvimento de estudos específicos de trabalho projetual.

pag.23

CONTEXTUALIZAÇÃO.

CONTEXTUALIZAÇÃO

U
.

o tijolo no brasil colônia

Apesar do tijolo possuir uma longa trajetória, as técnicas de fabricação e construção só chegaram no Brasil muito tempo depois, por volta do século XVI, quando se encontraram sinais e informações do que vem a ser o uso de tal material. Retomando a história do país, desde o início existem vestígios de como se instaurou o seu uso e técnica.

Um grupo de franciscanos estava junto a Cabral na viagem ao Brasil.

Frei Henrique Álves de Coimbra OFM⁹ (1465-1532), que celebrou a primeira missa em terras de Santa Cruz em 26 de abril de 1500 [...]. Na bagagem, se não o próprio tijolo, o conhecimento daqueles que um dia puderam aqui fabricá-lo (Rocha, 2012, p.75).

Ao longo das três primeiras décadas do século XVI, a colonização do Brasil teve como intuito a exploração de recursos naturais. Tal exploração garantiu recursos privados que ajudaram na formação do primeiro núcleo urbano (1534).

“Madeira, barro e palha, constituíram as primeiras e provisórias moradias dos colonizadores (Rodrigues, 1945, p. 162; Costa, 1941, p. 14 Apud Rocha, 2021, p.76).” Estas eram muitas vezes construídas utilizando pedra e cal pedra

(2) painel de azulejos que se estende do chão até meio da parede. (3) pedra onde assenta a colmeia, silha. Disponível em: https://www.dicio.com.br/ silhares/. Acesso em: set. 2023.

09. As ordens religiosas, de forma geral, se dividem em três: a dos homens, a das mulheres e a de irmãos leigos. No caso dos franciscanos a primeira é denominada Ordem dos Frades Menores – Ordo Fratrum Minorum (OFM). A segunda é a das Irmãs Clarissas. A Ordem Terceira se reporta a dos leigos. (Rocha, 2012, p.75)

10. Construção feita com silhares, nome masculino para Silha; Silhar: (1) pedra lavrada e quadrangular, para revestimento de paredes.

“entaipada”, podendo ainda ser feito em pedra aparelhada ou silharia¹⁰ e aparelhada com argamassa, com exceção de obras especiais, que eram construídas no litoral ou que corriam risco de ataques.

Durante a segunda metade do século XVI, as construções que eram provisórias foram trocadas por novas. Nesse período, já se contava com a ajuda de mestres de ofício. No entanto, eles eram poucos em comparação com a demanda, de modo que a mão de obra local se torna importante. Essas novas construções utilizavam o tijolo como um material que “facilitava a execução” e “eram utilizadas peças inteiras na construção de arcos e aduelas, compondo arestas, e nas cercaduras de vãos, além de abóbadas (D’alambert,1993; Rocha, 2021).”

Ainda no século XVI, é possível ter a confirmação de que o tijolo realmente faz parte das construções brasileiras: “Tal afirmação tem como base sua indiscutível presença no Convento de Olinda e a composição da argamassa (tetim) da Casa de Torre de Garcia d’Ávila (Rocha, 2012).”

(Figura. 08 e 09).

Referente a produção do material usado, existe confirmação de pequenas olarias datadas em 1585, as quais em Pernambuco e Bahia são computados cerca de 112 engenhos e, em cada um deles, era possível encontrar um forno de

pag.25

11. Figura. 08 - Disponível em: Iphan/Programa Monumenta Rotas do Patrimônio – Uma viagem através da história. Página 04. Edição 10. Disponível em: <http://portal. iphan.gov.br/publicacoes/lista? categoria =&busca =Roteiros >, Acesso em: out. 2023

FIGURA. 08: Fachada do convento de Olinda. Fonte: IPHAN/Programa Monumenta¹¹.

FIGURA. 09: Casa da Torre de Garcia d’Álvila e a capela nossa senhora da conceição. Fonte: Imagem de Osvaldo Cristo.

tijolos e telhas, que funcionava como atividade subsidiária dos engenhos e fazendas.

o brasil no século

xvii

O século XVII foi marcado pela ocupação Holandesa, que ocupara o que se conhecia como “província de Pernambuco, ”entre 1630 e 1654 e, em 24 de novembro de 1631, os invasores incendiaram sua capital: Olinda por sua posição estratégica, que tinha um “perfil de difícil defesa”, transferindo a sede para Recife” (Mello, 2001, p. 52 apud Rocha, 2012, p. 88).

“Para edificar Recife, os holandeses encontraram dificuldades: contavam apenas com “os materiais da cidade incendiada”, “a cal devia vir da Holanda” ou de Itamaracá, “tijolo pouco havia, nem material com que os fabricar” (Mello, 2001, p. 45 apud Rocha 2012, p. 89).

Motivos políticos conduziram “Maurício de Nassau, em 14 de novembro de 1639, a transferir a capital do domínio holandês de Olinda para Antônio Vaz, sendo dado o nome de Cidade Maurícia (Figura. 10) à capital em dezembro do mesmo ano” (Neves, e Mendonça, 2007, p.4). Pesquisadores e inventários urbanos entendem que a então capital de Maurícia abrigava cerca de 290 residências nos dois bairros, sendo a maior parte delas construída em tijolos.

pag.26
[8] [9]

FIGURA. 10 – Imagem original do Atlas Vingboons, do ano de 1639, A Caerte vande Haven van Pharnambocque; - Desenho cartográfico com a proposta feita por Pieter Post, para a construção da cidade de Maurícia.

Fonte: Neves e Mendonça, 2007.

12. O alto Conselho da Companhia das Índias Ocidentais doou terrenos à margem do rio Capibaribe para a implantação de 10 olarias. Estes estabelecimentos deveriam produzir tijolos suficientes para pavimentação das ruas de Recife, construção oficiais, como Casa do Conselho e o Palácio de Vriburg, de Maurício de Nassau (D’alalambert, 1993).

Outra influência holandesa – não arquitetônica – foi a do emprego do tijolo mais largamente do que era feito até então. Porque não se deseja negar que antes dos holandeses não se usasse este material – como parece ser o pensamento do Sr. Lúcio Costa – mas afirmar que, por intermédio deles, o tijolo passou a ocupar o lugar de um material mais caro e mais difícil – a pedra – e a substituir outro de qualidade inferior: o barro e a taipa (Mello, 2001, p. 82).

Nesse período, por influência dos holandeses, o tijolo foi muito utilizado nas construções. Ele era tão usado que começou a ocupar o lugar da pedra e da taipa. No entanto, o tijolo ainda não era fabricado no país - no início era importado da Holanda.

Com um aumento excessivo nas demandas, a importação já não era mais capaz de suprir as necessidades, “fazendo com que o governo holandês de Pernambuco favorecesse o estabelecimento de olarias, através de terrenos para a sua instalação¹²” (D’alalambert, 1993).

A produção local cresceu tanto que, em 1643, é feita a suspensão das importações.

A partir dos dados levantados, é possível ver como os holandeses influenciaram o modo de construir das cidades pernambucanas, especialmente em Recife. No entanto, esse meio construtivo era posto em destaque nas zonas específicas de dominação holandesa.

pag.27
[10]

11. Figura. 08 - Disponível em: Iphan/Programa Monumenta Rotas do Patrimônio – Uma viagem através da história. Página 04. Edição 10. Disponível em: <http://portal. iphan.gov.br/publicacoes/lista? categoria =&busca =Roteiros >, Acesso em: out. 2023

FIGURA. 11: Pequena casa térrea, localizada na Rua D.Geraldaem Paraty - perda do revestimento a vista, alvenaria de tijolo assentadas em flamengo. Detalhe da foto de Freudenfeld,s. XVIII. Fonte: Rocha, 2012, p. 95.

FIGURA. 12: Desenho sem escala, da empena encontrada em Paraty. Fonte: Rocha, 2012, p. 96.

FIGURA. 13: Empena com tijolos. Paraty, século XVIII. Fonte: Rocha, 2012, p. 96.

o brasil no século xviiI

Nas outras regiões do Brasil, o tijolo só vem a ter destaque na primeira metade do século XVIII, no qual é possível encontrar edificações que foram construídas completamente com tijolos.

Segundo Rocha (2012, p. 95), na Bahia, foram encontradas informações sobre a adoção de alvenarias de pedra e tijolo em igrejas. Já em Paraty, o tijolo foi adotado como elemento de vedação tanto nas fachadas quanto no interior das edificações (Figura. 11).

O mais notável nesse período é o surgimento de técnicas totalmente diversas do que era habitualmente usado. Ainda em Paraty, são encontradas casas com algo que se assemelha a um frontão. Conforme descrito por Ribeiro (2009, p. 57 apud rocha, 2012 p.96), é formada por um esqueleto de madeira composto de esteios entremeados com tábuas delgadas, inclinadas dispostas em ziguezague, formando triângulos preenchidos por tijolos, ora assentados em paralelo, ora perpendiculares às referidas molduras de madeira (Figura. 12 e 13).

Outros tipos de aplicações e técnicas foram encontrados na cidade do Rio de Janeiro. Segundo Barreto (1947, p. 86-100 apud Rocha, 2012 p.97), as casas de Câmara e Cadeia proliferaram no século XVIII e em suas edificações foram

contempladas “as técnicas da taipade- pilão; a do frontal; a de tijolo e a de pedra”. As dimensões eram variadas, mas, invariavelmente os tijolos eram do tipo “burro”, ou seja, retangular e maciço. Ainda no Rio de Janeiro, foram registrados alguns exemplares de fazendas que continham varandas, nas quais os tijolos eram produzidos especialmente para a construção das colunas cônicas.

pag.28
[13]
[11] [12]

Como vemos, o período de XVIII foi onde o uso do tijolo se espalhou por diversas regiões do Brasil, e novas técnicas e usos foram adquiridos por aqueles que possuíam o saber fazer.

o brasil no século xix

No século XIX, o uso do tijolo no Brasil ampliou-se chegando mesmo a superar no final do oitocentismo os tradicionais materiais de construção difundidos pelos primeiros construtores portugueses. Com a chegada da Corte Portuguesa e a abertura dos portos, em 1808, foi incentivada a importação dede material da França, Itália e Inglaterra.

Até o início do século XIX o único fornecedor de tijolos e ladrilhos da Corte era a cidade de São Sebastião em São Paulo. (D’alambert, 1993 p.21)

Entre 1840 e 1846, já se tinha o tijolo como material e sistema construtivo predominante na arquitetura urbana das cidades. O tijolo se torna um material consolidado e, por isso, se torna barato, assim como a mão-de-obra.

Além de ser utilizado na construção de edificação (figura. 14), outra empregabilidade que o material recebia era na construção de calçadas e áreas de passeio (figura. 15).

Em resumo, é possível notar que o tijolo se tornou um dos principais materiais de construção utilizados pelo homem.

No Brasil, apesar de sua introdução modesta no quinhentismo e do seu emprego restrito nos três primeiros séculos, o tijolo assumiu real importância no século XIX. É nessa época que ocorreu a generalização do seu uso em várias regiões brasileiras, nas quais foi adotado irrestritamente em diferentes tipologias de edificações – residências, edifícios religiosos, públicos, comerciais, industriais etc. A sua enorme assimilação deveuse, principalmente, às grandes transformações do panorama social, econômico nacionais, motivações que tiveram repercussão profundas na mentalidade do povo brasileiro, e seu modo de viver, de expressar culturalmente e, também no seu no de construir (D’alambert, 1993 p.23).

As novas possibilidades e melhorias deram maior conforto às construções, favorecendo, portanto, ainda mais o uso do tijolo, que na época foi a solução mais eficaz para solucionar problemas arquitetônicos e urbanos. Um dos motivos principais era a simplicidade do material e a facilidade de ensinar a prática construtiva para novos operários. A apropriação desse uso, com decorrer dos anos, fez com que a técnica e o

pag.29

FIGURA. 14: Exemplo do uso do tijolo em edificações - Local : Estação da Muda. ( Monte Serrat, Levy Gasparian, RJ, c.1861.).

Fonte: Rocha, 2012.

FIGURA. 15: Exemplo do uso do empregado na construção de calçamentos- Local: Estação da Muda. Monte Serrat, Levy Gasparian, RJ, c.1861. Fonte: Rocha, 2012.

saber fazer ganhassem valor e força, sendo eles diferentes em cada região, trazendo valorização estética e arquitetônica próprias.

pag.30
[14] [15]

edificação de uma nova cidade.

edificação de umanova cidade

a e.

são paulo em construção

A cidade de São Paulo seguiu um ritmo construtivo e técnico diferente das capitais e regiões nordeste. Durante os três primeiros séculos, a técnica que recebia destaque era a taipa de pilão, que era utilizada em todos os tipos de construção e, de forma ocasional, para construções especiais se utilizava a pedra. Os materiais cerâmicos, como tijolos maciços e telhas, não eram conhecidos.

A taipa era vista como um material barato e duradouro. A matéria prima era a própria terra e a mão de obra era escrava - com todos esses “benefícios”, usar tal técnica parecia muito mais rentável, gerando uma resistência a novas tecnologias e materiais. Outro motivo que fez com que São Paulo utilizasse tanto esse material foi a falta de recursos financeiros - na época a economia paulista configurava-se como agricultura de subsistência, não permitindo o acréscimo de capital para importação de matérias ou mão de obra especializada. Devido a todos esses fatores, a Taipa foi utilizada na cidade de São Paulo por mais de 300 anos, onde gradativamente foi substituída pelo tijolo.

É registrado que em meados da década de 1850 (começo do século XIX), o tijolo estava

sendo usado na cidade de São Paulo de forma sistêmica e auxiliar, muito utilizado em obras de todos os tipos como subsistema, na construção de chafarizes, encanamentos de água, água pluvial especialmente em bueiros e esgoto. Também foi utilizado de outras maneiras em obras públicas como incremento estrutural de grandes paredes de contenção de aterros, calçamento de ruas e meio fio, e em reformas ou consertos de edificações.

É preciso salientar que essas mudanças não ocorreram do nada: na década de 1850, São Paulo contava com engenheiros europeus e mão de obra imigrante que certamente conhecia a técnica da tijolaria, porém houveram três profissionais que tiveram grande destaque nesse período. O primeiro foi o francês Marcelino Gerard.

proprietário de uma importante olaria na cidade, era também seguidamente chamado a executar obras pelo governo da província e da câmara, muitas delas feitas em tijolo. Sua olaria ficava na chácara da Água Branca e suas telhas e tijolos eram comercializados na Rua do Rosário, número 7. (Baldin, 2014 p.02)

A segunda figura de grande importância foi engenheiro polonês Cristiano Wyzenski. Segundo Baldin (2014, p. 4), o engenheiro se destacava na construção paulista oitocentista, possivelmente

pag.33

13. Segundo documentos do Arquivo Municipal Washington Luiz, Wyzenski era engenheiro, com experiência profissional de doze anos em pontes e estradas na França. Teria sido contratado pelo governo provincial em 1848 (Baldin, 2014 p.4).

o engenheiro ligado às obras públicas de São Paulo na década de 1840¹³. Ele foi uma figura que deixou um grande legado no processo de mudança a referente a substituição da taipa para o tijolo.

Após uma grande inundação que ocorre em primeiro de janeiro 1850, provocada pela enchente do Anhangabaú, na qual os resultados foram a ruína de alguns cidadãos e comprometimento da riqueza de outros, com diversas moradias destruídas e ou danificadas, o engenheiro sugere à câmara municipal que utilizassem sua influência a favor do bem-estar público e da cidade. Explicando suas inquietações com as construções existentes diante de novos temporais, ele sugere que sejam feitas mudanças na forma de construir, proibindo a construção em taipa devido a sua fragilidade a imersão, além de outras restrições.

[Carta escrita por C. Wyzenski em 8 de janeiro de 1850, a câmara Municipal de São Paulo].

O método de construção geralmente seguido em S. Paulo, consiste em taipas, tanto para as casas de moradia, como para os muros de cercados. Verdade é, que as taipas apresentam uma economia nas despesas e facilidade de execução: mas estas vantagens são contrabalançadas por muitos inconvenientes e até perigos mui graves. O

defeito principal he, que as construções em geral são assentadas sobre o terreno natural, sem base, nem alicerces, pelo que sua solidez não pode senão ser mui imperfeita e se acha gravemente comprometida sempre que a parte inferior de uma construção está em contato com a humidade. Afora alguns casos particulares, que nem fazem exceção a regra geral, é pela base que se arruinam as casas, o que produz a ruptura ou a queda das paredes. As paredes de taipa podem por algum tempo resistir a uma torrente de água pluvial, por isso mesmo que esta água corre com rapidez; mas, nunca resistirão quando estiverem efetivamente mergulhadas por 3 ou 4 horas, sobretudo, como por ocasião da última trovoada, quando a água as mina e amolece simultaneamente. Seria portanto a desejar que na execução da taipa se empregue mais cuidado; que seu uso seja reservado tão somente para os muros de cercados, e que seu emprego na construção das casas da cidade não seja autorizado senão debaixo das condições seguintes:

1º - que nenhuma casa térrea de taipa, se construirá sem que tenha alicerces de alvenaria com tijolos ou pedras, que cheguem até o terreno vivo e feitas conformemente aos preceitos da arte;

2º - que, se a casa for de sobrado, o pavimento térreo será totalmente construído em tijolo ou pedra e cal.

A aplicação destas medidas exige a proibição de reparar-se as casas de taipa, de maneira a prolongar sua duração [...].

As observações supra, que tenho a honra de submeter ao juízo esclarecido da Câmara

pag.34

Municipal desta Imperial Cidade, não tem certamente nenhum mérito de novidade, visto que geralmente se reconhece o método vicioso seguido nas construções, sem todavia indicar-se o meio de remediar-se o mal existente. Parece-me porém, que o emprego dos meios por mim propostos poderá não somente impedir a repetição de semelhante desastre, como também atrair a atenção particular de V. V. S. Sªs sobre o complexo das medidas a tomar-se futuramente , a cuja aplicação he indispensável em uma cidade tão importante como a de Sª Paulo [...]. (Arquivo Histórico Municipal Washington Luiz, Fundo Cmsp,1850, apud Baldin, 2014 p. 07.)

Apesar das informações encontradas sobre Wyzenski serem insuficientes, seu legado, como percurso das discussões sobre os modos de construir, emprego de materialidades e busca por melhores moradias, fez com que as grandes entidades abrissem seus olhos para novas possibilidades.

A terceira figura de maior importância foi o engenheiro alemão Hermann Bestice, que ocupava o cargo de gestor de obras públicas. Com a compilação e análise dos dados foi possível aventar algumas hipóteses. Possivelmente, Hermann Bastide tenha sido um dos maiores incentivadores da introdução da alvenaria de tijolos nos canteiros de obras

paulistanas, nos primórdios da década de 1850. Talvez tenha sido o maior responsável por essa mudança, tanto pela sua categoria profissional, como pelo cargo influente que exercia. (Baldin, 2014 p.02)

Nos períodos iniciais do século XIX, os imigrantes, como as três figuras apresentadas, foram de suma importância para o crescimento da cidade de São Paulo, tanto em seu desenvolvimento econômico quanto urbano.

são paulo e expansão

A veracidade da cidade de São Paulo esta localizada em um ponto de entroncamento de caminhos para a circulação norte e oeste influenciou muito na configuração de seu entorno urbano. Outros motivos que colaboraram para que a cidade se tornasse no polo pela qual é hoje conhecida foram o crescimento ferroviário na década de 1880 e a imigração de estrangeiros, em especial alemães e italianos que colaboraram para que houvesse a disseminação da utilização da alvenaria de tijolos.

Apesar dos primeiros usos em construções urbanas serem um pouco receosos nas construções mais simples e do cotidiano, o tijolo começava a ser implementado principalmente

pag.35

14. Figura. 16 e 17 –Disponível em: <http://www. estacoesferroviarias.com.br/l/ luz.htm > Acesso em: out. 2023.

FIGURA. 16: Antigo pátio da Estação da luz datado de 18601870. Fonte: Web site: estações ferroviárias¹⁴.

FIGURA. 17: A segunda versão construída da estação da Luz. Atrás, prédio na atual rua Mauá - Foto datada aproximadamente em 1890.Fonte: Web site: estações ferroviárias¹⁴.

na construção de casas menores, calçamentos e muros.

“A falta de confiança inicial nas potencialidades estruturais e construtivas do tijolo fez com que muitas iniciações realizadas em alvenaria de tijolos, obedecessem ainda ao partido tradicional” (D’alambert, 1993 p.57).

As casas mantinham tanto o partido tradicional, que, embora fossem construídas em alvenaria de tijolos, por fora parecia uma casa de taipa de pilão. Eram vistas uma resistência que ainda não havia sido vencida e uma permanência nesse estilo paulistano que perdurou por mais de 300 anos.

Demorou muito para que houvessem relatos de construções feitas totalmente em tijolos, seguindo os padrões técnicos. Contudo, São Paulo só desenvolve um aspecto diferente em 1870, quando o tijolo realmente é adotado regularmente nas construções. Tais construções eram simples - possuíam poucas alterações de caráter arquitetônicos e eram ainda um tanto vernaculares, simples e despojadas. Pouco se distinguia entre casas de ricos ou pobres - a única distinção era sua dimensão.

Um grande exemplo de construção que influenciou o uso do tijolo e colaborou com a espação de São Paulo foi a primeira estação ferroviária da “The São Paulo Railway” na cidade.

A estação transitou por três versões até se tornar a Estação da Luz que conhecemos. A primeira (fig. 16) , inaugurada em 1865, era muito simples, construída ao longo da linha férrea. Em 1870, foi reconstruída (fig. 17), porém tornouse gradualmente obsoleta devido ao aumento do número de mercadorias e passageiros que chegavam à cidade. A terceira versão é a atual, construída no bairro da Luz (fig. 18), em um terreno doado pelo governo.

pag.36
[16] [17]

FIGURA. 18: Facha lateral da estação da Luz - edifício atual.Fonte: Web site: Foto de Zeafonso.¹⁵

FIGURA. 19: stação da Luz em construção, datada de 1899. Fonte: Web site arquivo.arq.¹⁶

FIGURA. 20: Trabalhadores em Obra, pode-se observar com facilidade o tijolo maciço empregado na construção. Fonte: Web site arquivo.arq.¹⁶

15. Figura. 18 – Disponível em: < https://www.freeimages. com/pt/photo/estacao-daluz-1224904> acesso em out. 2023.

16. Figura 19 e 20 - Disponível em : <https://arquivo.arq. br/projetos/estacao-da-luz> acesso em out. 2023

A ferrovia foi inicialmente construída com intuito de transportar mercadorias, principalmente entre Santos e Jundiaí. Ocupando uma área de 7500 m², projetada pelo arquiteto inglês Charles Henry Drive e construída por engenheiros ingleses, levou cerca de seis anos para ser construída (1895 - 1901). Todo material utilizado na obra foi especialmente importado da Inglaterra. A estação foi construída em estrutura metálica e alvenaria em tijolos maciços (Figura 19 e 20) .

pag.37
[20]
[18] [19]

17. Figura. 21 – Disponível em: <http://redeglobo.globo.com/ globociencia/noticia/2011/11/ construidas-no-seculoxvi-igrejas-de-olinda-saopatrimonio-da-humanidade. html>acesso em out. 2023.2023.

FIGURA. 21: Jornais que noticiaram o incêndio que ocorreu na estação da luz em 1946. Fonte: Globo.com.¹⁷

Depois de um incêndio que ocorreu em 1946 (Figura. 21), o prédio precisou ser restaurado e hoje abriga, além da estação, o Museu da Língua Portuguesa, que foi inaugurado em março de 2006. Um fato que vale destacar é que as três estações construídas tinham o tijolo maciço como material - se não fosse como estrutural, era de fechamento, mas ainda com um papel importante.

Com a grande expansão urbana, a cidade Paulista se encontrou necessitada de novas construções - tanto de moradias, onde foram feitas aberturas de novos bairros e loteamento, quanto de edifícios comerciais, administrativos, culturais e de serviços.

As novas construções eram feiras de tijolões e edificadas por mestres-deobras italianos, que difundiam o estilo eclético nas novas fachadas, imprimindo uma fisionomia renovada na cidade. A importação de materiais de construção (vidros planos lapidado, telhas de Marselha, pinho riga, chapas de zinco e cobre etc.), facilitada pela ferrovia, também ajudou a mudar a feição das edificações paulistanas. (D’ALAMBERT, 1993 p.59).

Além dos crescimentos urbanos e imobiliários, era vista uma progressiva oferta de serviços na área da construção e de mão de obra especializada.

No jornal “A província de S. Paulo” eram comuns notícias de profissionais estrangeiros dispostos a construir na capital, oferecendo desde o projeto e a execução da obra, até todo o material necessário para a construção inclusive tijolos. Ao mesmo tempo, mestre-deobras e pedreiros italianos ofereciam-se para empreitar qualquer obra. Além de construírem para as camadas médias e baixas da população. (D’ALAMBERT, 1993 p.60).

O tijolo constrói uma cidade nova e se torna símbolo de modernidade, cumprindo o seu papel de maneira formidável, reduzindo

pag.38
[21]

custos, economizando no tempo de construção e permitindo novas experimentações nas fachadas dos edifícios. Mediante a esse material a cidade paulista pode se expressar como sociedade de forma artística e arquitetônica. Outro fator que colabora com o êxito do tijolo é o ecletismo que, junto com a identidade paulistana, constrói um novo “saber fazer” a partir da alvenaria de tijolos.

Um exemplo que exprime essa mudança de paradigma e mostra de fato o novo estilo paulista da época é o Liceu de Artes e Ofícios (figura. 22 e 23), construído pelo arquiteto Ramos de Azevedo, que, na época, foi um arquiteto muito ativo na cidade de São Paulo que contribuí com a construção desde residências a edifícios públicos. O edifício Liceu tinha característica únicas.

Diferentemente da Estação da Luz, que tinha sua estrutura em ferro, ele era construído completamente com tijolos maciços desde a estrutura aos fechamentos. Foi inaugurado em 1896 para abrigar a escola de Artes e Ofícios, porém, no início do século XX, deixa de ter uso para o qual foi destino.

Desocupado, passa por reformas para possibilitar outras ocupações até ser restaurado para um uso fixo como como museu e galeria de artes. Inaugurado em 1905, agora como Pinacoteca (figura. 24), contempla a primeira exposição de belas artes do Brasil, e até hoje

FIGURA. 22 – Desenho contendo a elevação principal do edifício Liceu de Artes.

Fonte: Web site arquivo.arq.¹⁸

FIGURA. 23 – Foto da entrada do edifício Liceu De Artes e Ofício (data da foto não encontrada).

Fonte: Web site arquivo.arq.¹⁸

segue como núcleo artístico de São Paulo. Vale ressaltar que o restauro encabeçado pelo arquiteto Paulo Mendes da Rocha deixa ainda mais evidentes a técnica e a maternidade do edifício, onde propositalmente deixa as alvenarias expostas, evidenciando os métodos e o saber fazer utilizado na construção (figura. 25 e 26).

18. Figura. 22 e 23 - Disponível em : <https://arquivo.arq. br/projetos/pinacoteca-doestado#&gid=1&pid=2 ace> acesso em out. 2023. [22] [23]

pag.39
[24]
[25] [26]

FIGURA. 24 – Foto da atual fachada do edifico, já com nome Pinacoteca.

Fonte: Nelson Kon.¹⁹

FIGURA. 25 – Foto atual do edifício, com destaque ao restauro feito nas aberturas dos vãos. Fonte: Nelson Kon.¹⁹

FIGURA. 26 – Foto atual do edifício, com destaque ao restauro feito na cobertura e no pátio central.

Fonte: Nelson Kon.¹⁹

19. Figura. 24, 25 e 26disponível em: <https://www. nelsonkon.com.br/pinacotecado-estado/>, Acesso em: out. 2023.

pag.41

o tijolo com uma nova visibilidade.

tijolo com uma nova visibilidade

a .
o

a notoriedade do tijolo no periodo modernista

O início do século XX foi muito marcante para a arquitetura, já que foi um período em que o movimento modernista estava em seu auge. Diversos arquitetos aplicavam a metodologia dessa corrente em suas obras. Em contrapartida, outros arquitetos iniciavam discussões sobre outras formas de produzir arquitetura, não só com a metodologia formal, mas com as tecnologias que poderiam ser utilizadas e o público ao qual chegaria tais métodos.

É possível observar o século XX como um período em que nascem experimentações e discussões em busca de uma nova arquitetura. Mies Van Der Rohe, conhecido como um dos mestres da Arquitetura Moderna, nos anos 1920, propõe a si mesmo, de forma experimental - quase como se fosse um exercício -, a criar algo novo. É dessa maneira que nasce o projeto da Casa de Campo em Tijolo. Datada em 1923, nunca foi

FIGURA. 27 – Desenho da elevação do edifício feito por Mies van der Rohe, e maquete eletrônica de como ficaria a edificação construídas.

Fonte: Carlos Soares Ribeiro e Luís Soares.²⁰

20. Figura. 27 e 28; Disponível em : < https:// espacodearquitetura.com/ projetos/casa-de-campo-emtijolo-de-mies-van-der-rohe/> acesso em out. 2023

construída (figura. 27). Ela se resumia a dois ou três desenhos simples, que continham ilustrações de uma arquitetura simples e minimalista, onde as paredes e planos eram dispostos de forma fluida e ortogonal (figura. 28). Como materialidade, assim como o nome sugere, a casa era completamente feita em tijolos maciços, tendo somente a laje em concreto.

pag.43
[27]

Mies não foi o único arquiteto a fazer experimentações nesse período - muitos outros também fizeram, porém tiveram alguns que se destacam mais, pelo fato de inicialmente seguirem os preceitos do modernismo de forma dogmática. Com o passar dos anos, disseminaramse reflexões sobre as necessidades reais da arquitetura. Essas se assemelham por buscar a criação de obras que sejam mais humanas e funcionais, e não buscam somente o fator construtivo ou técnico. [28]

O arquiteto Alvar Aalto, de 1952 a 1954, produz a Casa Experimental Muuratsalo. Localizada na Finlândia, Jyväskylä, o local funcionou como residência de verão da família. O projeto, que em seu desenvolvimento acaba se tornando experimental, tem como materialidade principal a madeira e o tijolo, sendo utilizada uma diversa gama de tipos e modelos de tijolos, provocando cerca de cinquenta padronagens distintas ao convencional. É possível observar isso claramente nas paredes do pátio central da residência (figura. 29). A planta da casa é simples, com esquema de pátio que sempre proporciona uma vista direta para lago. Além do pátio central, deve-se ressaltar os muros externos, que mesmo em tijolos foram pintados em branco (figura. 30), parecendo quase uma provocação às obras modernistas que eram construídas de forma ortogonal com linhas retas e pintadas em branco. Apesar do muro externo ser pintado de branco, o arquiteto manteve os tijolos das paredes voltados para o centro da casa na cor original, criando um contraste marcante entre fora e dentro.

Em 1953, após quase 50 anos replicando a arquitetura modernista, até mesmo Le Corbusier cai nas graças da experimentação, produzindo as Casas Jaoul. Esse projeto foi único, onde as casas têm como materiais principais o concreto e o tijolo. A estrutura do edifício foi construída

pag.44
FIGURA.
28 – Desenho da planta concebida pelo arquiteto Mies van der Rohe . Fonte:
Carlos Soares Ribeiro e Luís Soares.²⁰

em concreto e o tijolo foi utilizado como material secundário como fechamento, sendo outro artificio pouco comum usado pelo arquiteto a cobertura em abobada catalã.

FIGURA. 29 – Desenho e Foto da elevação da vista principal ao entrar no pátio central. Fonte: Alvar Aalto Museum ²¹

FIGURA. 30 – Muros esternos, com pintura na cor branca. Fonte: Nico Saieh. ²²

21. Figura.29- Disponível em: < https://circarq.wordpress. com/2018/05/03/muuratsaloexperimental-house/ > Acesso em out. 2023.

22. Figura.30 - Disponível em: < https://www.archdaily.com. br/br/01-50705/classicos-daarquitetura-casa-experimentalmuuratsalo-alvar-aalto > Acesso em out. 2023.

Aparentemente, para as obras experimentais se resguardavam a construções de menor porte como residências de menor complexidade, em sua maioria localizadas longe do fluxo da cidade moderna. Talvez isso ocorresse devido ao fato dos arquitetemos produzirem obras em países Europeus, onde o tijolo era visto como material mais singelo ou eram projetos que só se encontravam no campo das ideias. Porém esse ritmo é quebrado por Louis Kahn, quando o arquiteto produz um grande projeto na Índia - esse não possuía caráter experimental, mas saía da zona de conforto do arquiteto, já que ele faz uso do tijolo como materialidade principal, diferentemente de suas obras anteriores, nas quais o arquiteto utiliza bloco de concreto e peças pré-fabricadas.

pag.45
[29] [30]

23. Disponível em: André Kroll. "AD Classics: Indian Institute of Management / Louis Kahn" 25 de outubro de 2010. ArchDaily.<https:// www.archdaily.com/83697/ ad-classics-indian-instituteof-management-louis-kahn> versão impressa ISSN 07198884. Acesso em out 2023

FIGURA. 31 – Edificio Trenton Bath House. Fonte: Site web: kahnTrentonbathhouse.

FIGURA. 32 – projeto Indian Istitute of Manegement. Fonte: Nico Saieh.

A Trenton Bath House (Figura.31), uma colaboração na qual ele produz uma casa de banho que fazia parte do Centro Da Comunidade Judaica, construído em 1952, Kahn pode, pela primeira vez, adotar suas impressões sobre a arquitetura antiga. Inclusive, o projeto foi muito importante para que o arquiteto acreditasse, que ao produzir tal edifício, ele pode entender e desenvolver suas características arquitetônicas. Construído nos EUA, era de caráter mais singelo. A obra possuía uma planta de menor complexidade, com uma malha ortogonal e paredes em blocos de concreto. Embora o projeto fosse construído em blocos de concreto, já transmitia um caráter semelhante ao das obras que depois são produzidas em tijolo, principalmente as características espaciais e organizacionais.

Já o projeto Indian Istitute of Manegement ( Figura.32) possuía um grau de maior complexidade contendo sessenta acres. Foi proposto a Kahn que projetasse um campos universitário.

“For Kahn, the design of the institute was more than just efficient spatial planning of the classrooms; he began to question the design of the educational infrastructure where the classroom was just the first phase of learning for the students.( André Kroll 25 de out. de 2010).” 23

“Para Kahn, o design do instituto era mais do que apenas planejamento espacial eficiente das salas de aula; ele começou a questionar o design da infraestrutura educacional onde a sala de aula era só a primeira fase do aprendizado dos alunos. (André Kroll 25 de out. de 2010 TRADUÇÃO NOSSA).”

pag.46
[31] [32]

Além de buscar um planejamento espacial eficiente, ele também utiliza a técnica de incorporar os matérias locais na construção. Nesse caso, é utilizado o tijolo e o concreto, além de implementar um artificio que utiliza a arquitetura tradicional Indiana, assim homenageando o método vernacular de construção da própria região. Kahn utiliza esse artificio principalmente na fachada do edifício, onde as aberturas são em padrões abstratos, posicionadas para que funcionem como meio de iluminação e ventilação.

“Unfortunately, Kahn was unable to see his design come to fruition as he had died in New York City in 1974 before the project was finished. However, there is no question whether or not his design had completely transformed the way in which modern architecture establishes itself in one’s culture (André Kroll 25 de out.de 2010).”

“Infelizmente, Kahn foi incapaz de ver seu design vir a se concretizar, pois ele morreu na Cidade de Nova Iorque em 1974 antes do projeto estar terminado. No entanto, não há dúvida se o design dele havia transformado completamente ou não a forma com que a arquitetura moderna se estabelece na cultura de alguém (André Kroll 25 de out. de 2019 TRADUÇÃO NOSSA)”

Essa Nova arquitetura, que era tão buscada, acaba recebendo o nome de Novo brutalismo, mas era vista como uma tendência entre os arquitetos. O termo era dirigido a obras construídas quase exclusivamente com tijolos em sua forma natural, totalmente aparente. Banham (1989, p. 125, apud Carmerin, 2016 p.38), classifica os brutalistas em tijolo como marginais, até duvidosos, uma vez que “o fator que os agrupa – o uso do tijolo – é somente o mais óbvio”, já que não compartilham “formas externas, detalhes e estética espacial”. Mais do que o tijolo, o que os une é a “erudição e refinamento decorrentes da própria evolução da Arquitetura Moderna”, além de prezarem pela ética e estética dos materiais da maneira como eles se encontram”. O interessante é que esse novo Brutalismo se espalhava de forma simultânea por várias regiões do mundo, principalmente na América Latina.

america latina e o novo brutalismo

Antes mesmo dos arquitetos Alvar, Corbusier e Kahn, o Engenheiro Uruguaio Eladio Dieste já vinha produzindo obras tijolos cerâmicos. Com suas produções, Dieste se torna uma das figuras

pag.47

24. Em 27 de julho de 2021 a obra se torna Patrimonio Mundial da UNESCO.

25. FIigura. 33 , 34 e 35; Disponivel em < http://www. fadu.edu.uy/eladio-dieste/ > Acesso em out. 2023.

FIGURA. 33 – Iglesia de Atlántida Cristo Obrero y Nuestra Señora de Lourdes

Fonte: Nico Saieh. Fonte: Web site:Fadu.edu. ²⁵

FIGURA. 34 – Casa de Eladio

Dieste. Fonte: Web site:Fadu. edu. ²⁵

FIGIGURA. 35 – Iglesia de San Pedro. Fonte: Web site:Fadu. edu. ²⁵

mais importantes para a arquitetura de tijolos cerâmicos - embora fora da América Latina suas obras não tenham o valor merecido.

Eladio Dieste se formou como engenheiro civil em 1946 e até percorreu um largo caminho, trabalhando como discente em universidades, no ministério de Obras Públicas da cidade do Uruguai e em escritórios de sua área, até finalmente abrir sua própria construtora. Tinha como sócio Eugênio Montañez para fundarem a empresa Dieste y Montañez S.A. Com a sua fundação, o arquiteto finalmente pôde explorar a construção com a alvenaria de tijolos armados.

Por meio de complexos cálculos estruturais, inserindo malhas de aço entre os tijolos, Dieste tornou possível que a alvenaria resistisse a esforços de tração – o que até então não acontecia, ela só era utilizada quando submetida exclusivamente à esforços de compressão. Dessa maneira o uruguaio construiu abóbadas, lâminas curvas e placas plissadas de inegável força plástica (Carmerin, 2016 p.39).

Por meio de tais técnicas, Eladio pôde produzir diversas obras utilizando sempre o tijolo como protagonista de suas construções. Uma de suas primeiras obras foi a Iglesia de Atlántida Cristo Obrero y Nuestra Señora de Lourdes (1958)²⁴ (Figura.

33). A construção, feita com intuito de emocionar, possui movimento das paredes ao teto, explorando a luz de forma sutil, e uma enorme técnica na manipulação do tijolo cerâmico. Até mesmo na construção de sua casa Eladio surpreendeudatada de 1961, em Montevideo, Uruguay, toda a construção foi feita em tijolos, nas paredes, lajes, escadas e nas abóbadas (Figura. 34). Na área interna, as paredes foram pintadas de branco com tinta cal, deixando somente as abóbadas e os muros externos permanecendo “à vista”. Outra obra que não poderia deixar de ser citada é a Iglesia de San Pedro (1967)(Figura. 35). Ela foi, na verdade, uma reconstrução sobre a antiga igreja que havia sofrido um incêndio. Eladio produz na obra a cobertura da nave central e das naves laterais, um conjunto de lajes dobradas em tijolo armado, planas e pré-fabricadas.

pag.48
[33]

[34]

A respeito da eleição do tijolo como material para construir suas estruturas, Dieste afirmou que havia optado pelo uso desse material por sua elevada resistência mecânica, leveza, pouca deformação, seu bom envelhecimento, capacidade de suportar reparos sem que eles apareçam, seu bom isolamento térmico e acústico, capacidade de absorver a umidade do ambiente, sua inércia térmica, e claro, seu custo baixo. (Carmerin, 2016 p.39).

Nesse período, diversos arquitetos latinoamericanos vinham produzindo obras com a mesma materialidade. Cada um tinha uma inspiração diferente: alguns tinham arquitetos e engenheiros como exemplos, outros tinham artistas plásticos e tendências. Mas, no fim, acabam produzindo obras que exploravam o tijolo cerâmico até seu limite máximo, trazendo sempre novas possibilidade ainda inexploradas Assim como Eladio, que conseguiu furar a bolha e ter seus projetos conhecidos internacionalmente, o arquiteto colombiano Rogélio Samona também produziu diversas obras. Formado pela faculdade dos Andes em arquitetura, trabalhou durante alguns anos no ateliê de Le Corbusier, o qual conheceu em uma de suas viagens em 1947. Durante o período em que esteve trabalhando no ateliê, Rogélio colaborou em projetos da fase Brutalista de Corbusier. Além disso, pôde estudar e desenvolver suas próprias habilidades. Suas obras, segundo Camerin Suelene ( 2016 p.43), são uma mistura de operações formais e livres com uma precisão quase que matemática. Normalmente, seus edifícios se caracterizam por uma predominância de massas fechadas e jogos

[35]

26. Figura.36 - Disponível em: < https://www.flickr.com/photos/ felipewc90/4743791728/ > Acesso em out. 2023.

27. Figura. 37 - Disponivel em : < https://simonbosch.nl/portfolio/ architecture/virgilio-barco/ > Acesso em out. 2023.

FIGURA. 36 – Projeto as torres do parque. Fonte: Flickr Felipe W. ²⁶

FIGURA. 37 – Projeto biblioteca

Virgilio Barco. Fonte: Simon Bosch. ²⁷

de volumes que são reforçados pela utilização do tijolo aparente. O arquiteto produz todas as suas obras na Colômbia, sendo as primeiros casas residências e edifícios comerciais. Como projetos emblemáticos, o arquiteto possui dois que se destacam: as torres do parque (1965 concluída em 1970) (Figura. 36), e a Biblioteca Virgilio Barco (1999 concluída em 2001)(Figura. 37).

Enquanto isso, nos anos 1960 e 1970, no Brasil, o tijolo começava a ser utilizado nas casas Paulistas. Joaquim Guedes projeta diversas casas em concreto armado e tijolos cerâmicos aparentes. Diferentemente de seus contemporâneos latinos, Guedes utilizava o tijolo como fechamento e revestimento, principalmente para cobrir estruturas em concreto armado. Entre suas obras residências, se destaca a Dalton Toledo, de 1962 (Figura. 38).

Construída na cidade de Piracicaba, essa obra é a primeira na qual Guedes “experimentou pela primeira vez a cobertura em abóbada catalã feita sem concreto, apenas com tijolo (Camargo, 2000, p.64).” Outra obra de destaque é a residência Fabrizio Beer, datada de 1975 (Figura. 39). Nessa obra, o arquiteto utiliza tanto o tijolo cerâmico maciço quanto o furado e com diversas variações de assentamento. Outro destaque é e a residência Anna Mariani de 1977 (Figura. 40), construída na cidade de Ibiúna - SP. Essa obra tem referência direta a Alva Aalto, que havia falecido no mesmo ano da construção do projeto e a quem Guedes admirava.

pag.50
[36] [37]

FIGURA. 38 – Residência Dalton Toledo, 1962.

Fonte: Acervo de Joaquim Guedes. ²⁸

FIGURA. 39 – residência Fabrizio Beer, 1975.

Fonte: Web site: Archdaily.²⁹

FIGURA. 40 – Residência Anna Mariani , 1977.

Fonte: Acervo de Joaquim Guedes. ²⁸

28. Figura. 38 e 40 - Disponivel em:

<https://www.facebook.com/ media/set/?set=a.60176437 9887812&type=3&comment_ d=1035735809823998> Acesso em Out. 2023.

29. Figura. 37; Disponivel em: <https://www.archdaily.com. br/br/01-139604/classicos-daarquitetura-residencia-fabriziobeer-slash-joaquim-guedes> Acesso em Out. 2023.

CANTEIROS COMO LABORATÓ- RIOS (NOS ANOS 80)

Já no período dos anos de 1980, o Novo Brutalismo se destaca por ser utilizado na construção de edifícios experimentais. Alguns arquitetos utilizavam os próprios canteiros para experimentar e desbravar essa nova arquitetura, porém o lugar onde ela ganha mais força é nas instituições de ensino de Arquitetura e Urbanismo. Isso ocorre porque, no início dos anos 1980, o ensino do curso de Arquitetura e Urbanismo da academia de Belas Artes de São Paulo reconhece certas deficiências na formação de seus alunos, principalmente para atuar na realidade que a população brasileira vivia nas periferias das cidades. Para suprimir essa deficiência no ensino, é sugerido um Laboratório de Habitação que inicia suas atividades em 1982, com sua primeira geração.

Contando com os seguintes professores: Joan Villà (coordenado), Carlos Roberto (Mancha), Nebil Bonduki, Marcos Oselho, Antonio Carlos Sant’Anna e com os alunos monitores: Jeferson Bunder, Jerônimo Lima, Marta Menzer, Pauloa Samira, Carlos Eduardo Miño, Paula Valeria e Silvana Rodrigues ( Dualibi, 2016, p.64).

O laboratório tinha o intuito de proporcionar

pag.51
[38] [39] [40]

30. com o passar dos anos o projeto pioneiro de laboratório vem a se tornar o que conhecemos hoje como escritório modelo, onde os estudantes prestam assessoria técnica as comunidades.

FIGURA. 41 – Desenho elaborado pelo arquiteto Joan Villa (set. 2012), o desenho demostra como o tijolo cerâmico furado poderia ser utilizado de forma armada, se diferencia do tijolo maciço que era usado nas produções do arquiteto Eládio Dieste. Fonte: Dualibi 2013.

aos estudantes contato direto com a população, principalmente a de baixa renda, buscando um convívio que proporcionasse troca de conhecimentos tanto acadêmico quanto empírico, além de prestar serviços técnicos para a população. Assim o Lab/Hab tinha como atribuições:

Desenvolver a experimentação do ensino e da pesquisa aplicada à realidade brasileira, promover orientação direta sob a forma de uma assessoria técnica remunerada a projetos comunitários ou cooperativas de consumo coletivo, em conjunto com organizações populares, associações de moradores, sindicato de trabalhadores, entidades civis e democráticas, constituírem [sic] os objetivos centrais e a proposta do LAB/HAB. Atuando sobretudo nos bairros operários da periferia urbana da Grande São Paulo, o LAB/HAB faz de sua intervenção prioritária uma opção consciente e possível do benefício social gerado pela expansão do seu trabalho... ( Modulo, 1969, p.69 apud Dualibi, 2016).

O projeto recebeu grande interesse da academia, onde todos os alunos queriam participar³⁰. Em 1984, após retornar de um encontro de cooperativas do Uruguay, o professor e arquiteto Joan Villà, depois de ter contato com painéis pré-moldados em tijolos de barro,

decide tentar experimentar soluções semelhantes aos das observadas, a fim de criar algo que pudesse proporcionar a construção de paredes e coberturas de forma rápida e com matérias mais leves do que o tijolo maciço (Figura. 41).

O arquiteto Joan Villà encabeça o projeto do Lab/Hab na faculdade de Belas Artes até 1985, quando, por certas divergências, deixa a faculdade. Porém, o arquiteto não fica parado por muito tempo, já que no ano seguinte ele se torna parte do corpo docente da faculdade Unicamp, local no qual funda o laboratório de habitação da Unicamp, palco da maioria dos trabalhos do arquiteto e sua equipe.

Já no laboratório da Unicamp, Joan Villà continha o desenvolvimento do sistema de painéis pré-fabricados cerâmicos, a primeira casa experimental utilizando tal sistema. É construída em 1987 (Figura.42), possuindo um andar e 40m². Prontamente, no próximo ano,

pag.52
[41]

é produzida a segunda casa, possuindo dois andares com um total de 60m². A maior diferença de uma residência para outra, além do número de pavimentos, é a utilização de um novo sistema de escada pré-moldada em tijolos cerâmicos (Figura. 43).

Com os projetos do laboratório se mostrando eficientes, a demanda começa a se expandir. Ela aumenta tanto que em 1995, o projeto já deixava de ser um laboratório e se tonava um escritório de arquitetura e assessoria técnica, que deixava

FIGURA. 42 – Primeiro protótipo de residência com painéis cerâmicos, desenvolvido na faculdade Unicamp em 1986. Fonte: Dualibi 2013.

FIGURA. 43 – Segundo protótipo de residência com painéis cerâmicos, desenvolvido na faculdade Unicamp em 1987. Fonte: Dualibi 2013.

de atingir só Campinas. Agora os trabalhos passavam a atender toda a região metropolitana. Os projetos variam de escala, sendo em maioria edifícios de interesse público, que compartilhavam especialmente o uso do sistema de tijolos prémoldados com os tijolos furados. Dos projetos que foram produzidos nesse período, existem alguns que se destacam mais, sendo o primeiro a icônica Moradia dos Estudante da Faculdade Unicamp, construído em 1988 e concluído em 1991 (Figura. 44). Esse foi uma das primeiras grandes experimentações, utilizando como método e tecnologia o tijolo pré-moldado. No mesmo ano, é construído o conjunto Residencial de Socorro – SP. Já em 1990, é construído o ateliê do laboratório da universidade. Considerado o terceiro experimento, essa obra tinha como peculiaridade o uso dos painéis cerâmicos prémoldados de forma curva (Figura. 45).

Ainda na região metropolitana temos a construção do Museu de Ciências e Tecnologia de Bauru – SP (1989) (Figura.46), tendo como destaque a construção da cobertura em cerâmica amada, mas em forma de abobadas. E na cidade de Sertãozinho- SP (1995) (Figura.47), é produzido um projeto que infelizmente não sai do papel. No entanto, a ideia do projeto era a produção de um condomínio Residencial que utilizaria todas as técnicas até então prosódias pelo laboratório.

pag.53
[42] [43]

31. Figura.44 - Disponivel em <https://www.nelsonkon.com. br/residencia-estudantil-daunicamp/> Acesso em Out. 2023.

FIGURA. 44 – Residência universitária da Unicamp - 1988.

Fonte: Nelson Kon. ³¹

FIGURA. 45 – Terceiro protótipo utilizando painéis cerâmicos curvos, desenvolvido na faculdade Unicamp em 1990.

Fonte: Dualibi 2013

FIGURA. 46 – Museu de ciência e tecnologia de Bauru datado de 1989.

Fonte: Dualibi 2013

FIGURA. 47 – Projeto não construído, proposta de condomínio residencial na cidade de Sertãozinho. Fonte: Dualibi 2013.

do regionalismo para o esquecimento

Foram anos bastantes experimentais e produtivos quando falamos de arquitetura Brutalista. Na busca pela nova arquitetura, além do uso do tijolo cerâmico como técnica e material, nas regiões interioranas, encontramos alguns exemplares arquitetônicos que merecem ser citados como a Residência Dos Padres Claretianos (1982-84) construída em Batatais – SP, pelos arquitetos Affonso Risi e José Mário, e algumas obras construídas na cidade de Ribeirão PretoSP, como a Residência Clotilde e Sérgio Ferreira

pag.54
[44] [45] [46] [47]

FIGURA. 48 – Residência

Clotilde e Sérgio Ferreira. Fonte: Acervo do arquiteto Joaão Batista.

FIGURA. 49 – Residência Anderson Gattás.Fonte: Acervo do arquiteto Valter Félix (1987). FIGURA. 50 – Residência Solon Fernandes. Fonte: Acervo cv.am.rp (2013).

(1966) (Figura.48), dos Arquitetos João Batista e Martin Tresca, a Residência Anderson Gattás (1970) (Figura.49), dos Arquitetos Francisco Segnini e Joaquim Barretto, e a Residência Solon Fernandes (1985) (Figura.50), do Arquiteto Eduardo Figuerredo.

Apesar de a maioria das residências da cidade de Ribeirão Preto não serem construídas 100% em tijolos, elas possuem a materialidade como um dos destaques da obra. Possuindo assentamento dos tijolos de formas diferentes e sempre o razendo à vista, são projetos que priorizam a sinceridade dos materiais e prezam pela utilização de boas técnicas de iluminação e ventilação.

Contudo, no início dos anos 90, temos uma queda nessas produções arquitetônica, as quais têm o tijolo como estrutura ou como fechamento à vista. Ele começa a ser deixado de lado e as produções passam a ser construídas em concreto armado e o tijolo, quase sempre utilizado como fechamento, é rebocado e pintado.

Diferentemente do Brasil, que vai deixando a nova arquitetura de lado, o Paraguai inicia uma forte iniciativa na produção arquitetônica com tijolos. Em 1990, o Paraguai é marcado pela expansão da capital e o desenvolvimento da Grande assunção. Nesse período, é retomado o olhar para a produção de obras em tijolos, em busca de utilizar processos construtivos locais. Essa arquitetura fica registrada principalmente por dois arquitetos - Javier Corvalán e Solano Benítez. O que unia e fazia esses dois arquitetos serem diferentes eram os pensamentos semelhantes sobre as práticas arquitetônicas no país - para eles, não havia modelo de escola a ser

pag.55
[49]
[48]
[50]

32. Figura.51 - Disponivel em: <http://www.federicocairoli. com/works/-capilla-san-miguelarcangel/> Acesso em Out. 2023.

33. Figura.52 - Disponivel em: < http://www.leonardofinotti. com/projects/solano-benitezstudio> Acesso em Out. 2023.

seguido, o que deu liberdade e autonomia para ambos criarem como quisessem.

O que surge a partir de então no Paraguai é uma arquitetura “menos imitativa e mais independente dos modelos preestabelecidos”, que busca “novas espacialidades e materialidades mais sinceras: tijolo comum, concreto aparente” (ELGUE, 2014, p. 74 apud Carmerin 2016).

As produções dos arquitetos paraguaios se destacam por obras utilizando sempre que possível o tijolo em sua totalidade, já que o material era abundante, acessível e possui mão de obra, além de gerar confiança na população. Outro fato que colaborou muito e foi determinante para que as obras fossem construídas e os arquitetos recebessem a confiança da população foi a preocupação e o cuidado que eles tinham com as questões econômicas na hora de construir. Eles eram realistas e entendiam os fatores econômicos atuais, levando isso para as suas produções e as tornando mais realistas e concebíveis.

Es libre pero no olvida ciertas necesidades asociadas. Antes un escenario en crisis, ahora también instalado en Europa, no podemos olvidar el presupuesto. Se trata de un detalle no menor em un proyecto. En

Paraguay, y creo que en cualquier parte del mundo, es la bisagra que permite transformar la teoria en práctica.

[...] El presupuesto es un elemento casi despreciado en la mayoria de las cátedras de arquitectura pero, si no le damos importancia a este aspecto del proyecto, ¿cómo pensamos educar estudiantes útiles en la sociedad? Aqui, en el “ fin del mundo, proyectamos de cero con una mano en los planos y otra en las planillas, tanto es así que las obras construidas tienen mucho más que ver con los presupuestos o estrategias de economia de obra com simpatías, teorías o referentes (CORVALÁN, 2013 apud Carmerin 2016, tradução nossa).

É livre, mas não esquece certas necessidades associadas. Perante um cenário de crise, agora também na Europa, não podemos esquecer o orçamento. Trata-se de um detalhe não menor em um projeto. No Paraguai, e penso que em qualquer parte do mundo, é a dobradiça que nos permite transformar a teoria em prática. [...] O orçamento é um elemento quase desprezado na maioria dos cursos de arquitetura, mas se não dermos importância a este aspeto do projeto, como poderemos formar estudantes que serão úteis à sociedade? Aqui, no “fim do mundo, projetamos do zero com uma mão nos planos e a outra nas planilhas, tanto que as obras construídas têm

pag.56

muito mais a ver com orçamentos ou estratégias de economia do trabalho com simpatias, teorias ou referências (CORVALÁN, 2013 apud Carmerin 2016, tradução nossa).

Solano e Corvalán produziram diversas obras durante suas trajetórias, entre as obras que se destacam estão Hamaca (2009), Gertopan (2007), Capela San Miguel Arcángel (2014) (Figura.51), produzidas por Corvalán. Já entre as obras produzidas por Solano temos o Gabinete de arquitetura (1994) (Figura.52), Quatro vigas ( 2000 a-2001), Residência esmeraldina (20022003), Residência Abu & Font (2004 – 2006), entre outras. Além de trabalharem como arquitetos, ambos ministraram palestras pela América Latina e foram docentes em universidades do Paraguai. A nova geração foi e é muito influenciada por ambos os arquitetos.

FIGURA. 51 – Capela San Miguel Arcángel - 2014. Fonte: © Federico Cairoli / Fotografía de Arquitectura.³²

FIGURA. 52 – Gabinete de arquitetura - 1994. Fonte: Leonardo Finotti (2013). ³³

Entre a nova geração de arquitetos, temos o arquiteto Luis Alberto Elgue, os arquitetos Sérgio Fanego, Larissa Rojas e Miguel Duarte - que juntos possuíam o escritório Taller de Arquitectura-, o arquiteto José Cubillas e também se destacava o Colectivo Aqua Alta – Grupo de estudantes e arquitetos, que se uniram para desenvolver pesquisas, inovações urbanas e experimentações arquitetônicas.

Muitos desses novos arquitetos foram alunos de Solano e Corvalán ou trabalhavam em seus escritórios. A única diferença que encontramos entre as duas gerações é que a velha tinha como objetivo a renovação e a busca por uma identidade (talvez até a identidade de um país) enquanto a nova busca uma arquitetura muito mais humana que possa proporcionar qualidade de vida para as comunidades, principalmente as mais carentes que vivem na periferia de Assunção. Para alcançar esse objetivo, produziram e produzem trabalhos de pesquisa, planos de recuperação, além de

pag.57
[51] [52]

construírem pequenas instalações que dão suporte para a vida cotidiana das comunidades.

Um dos desafios da geração de arquitetos que hoje atua no Paraguai é justamente transcender a barreira das obras privadas e de pouca metragem quadrada e ter oportunidade de projetar e construir obras públicas, de grandes dimensões, de programas mais complexos e diversificados, que cheguem a um número maior de pessoas e, consequentemente, que ajudem a difundir suas visões de mundo e de arquitetura. ( Carmerin, 2016 p. 80).

Observando todo o percurso que a construção com tijolos cerâmicos fez, é possível concluir que existe uma enorme qualidade e potencialidade sobre as técnicas concebidas já existentes e as inexploradas. O tijolo fez parte de todo o processo construtivo da humanidade, porém perdeu parte de seu valor com tantos avanços e tecnologias. O material foi se tornando algo alternativo, voltado para as construções de baixo custo. Além disso, em países americano estadunidense e europeus, o tijolo já deixou há muito tempo de ser uma técnica interessante - hoje buscam muito mais a praticidade e rapidez, muitas vezes criando construções heterogêneas sem nenhuma plasticidade ou qualidade. O Brasil não está em

um caminho muito diferente: apesar de usamos matéria que ainda necessitem muito mais da mão de obra humana, vemos um certo descaso nos canteiros de obras, onde a arquitetura é só um caminho para produção mais acelerada de edificações. O desejo por criar e renovar vem se perdendo - já não existem mais as trocas de ideias e as difusões, tudo caminha para a conclusão de mais uma obra, diferentemente do Paraguai que, talvez por ser um país com uma arquitetura mais jovial, vem produzindo obras muito mais regionalistas, com traços onde é possível reconhecer as características de uma população. Além de possuírem qualidades arquitetônicas e plásticas, eles não fogem dos desafios - eles buscam o desafio para que novas soluções surjam. Talvez o Brasil precise aprender com suas Hermanos, e sair da zona de conforto, desde os anos 90 após o Grande crescimento da arquitetura paulista não vemos uma nova pauta sobre uma nova arquitetura, entramos na zona de conforto e estamos estagnados, talvez buscar por solução que já fizerem parte de nossas vidas e agora com mais tecnologia possam ser renovadas seja um caminha interessante a ser seguido, como a utilização da taipa, ou de tijolos. Além de procurar ver a arquitetura com outros olhos, em vez de ver como uma mina de ouro, ver a arquitetura pelo seu lado social e humano.

pag.58
pag.59

uso e a técnica

entendendo o uso e a técnica

o
o
entendendo
a.

As análises de projeto de referência tem como intuito destacar as possibilidades construtivas a partir uso do tijolo. Para a investigação foram escolhidas três obras, as quais cada uma possui pelo menos uma característica distinta da outra em nível técnico construtivo.

Com o intuito de facilitar a verificação e análise, a autora optou por seguir um plano analítico igualitário para todas as obras, onde será utilizado o seguinte método:

Bibliografia: serão feitos levantamentos bibliográficos em diversos meios, como seminários, livros, revistas, sendo o principal meio teses de mestrado.

Coleta de fotos e desenhos técnicos: será dada prioridade para fotos feitas por fotógrafos especializados em arquitetura, e que foram publicadas em revistas, livros, e trabalhos acadêmico. Além de fotos tiradas pelo autor durante vistas inloco, os desenhos técnicos também seguirão o mesmo critério, e, quando necessário,

haverá o redesenho ou interferência nas imagens com intuito de uma melhor comunicação.

Dados projetuais contendo: Autores da obra – Colaboradores; Localização; Data de início e conclusão da obra; Execução; Metragem quadrada do terreno onde foi feita a edificação, e da própria edificação.

Memorial do projeto: Textos elaborados pelo autor da obra.

- Entorno e locação: Atributos do lote, buscando analisar todo o entorno da vegetação a topografia, assim como a vizinhança;

- Programa de necessidades: Análise sobre a organização da planta baixa e a relação com a volumetria da edificação;

- Técnicas construtivas: Diagnostico das estruturas utilizadas e dos métodos construtivos;

- Elementos da construção: Descrição dos materiais e sistemas adotados na edificação, assim como outras estratégias adotadas.

pag.61

Disponivel em: <https:// vitruvius.com.br/revistas/read/ projetos/20.233/7733>.Acesso em out. 2023.

residência dos padres claretianos

Arquitetos: Affonso Risi Jr. e José Mário

Nogueira de Carvalho Jr.

Localização: Rua Dom Bôsco - Bairro Castelo, Batatais, São Paulo .

Data: 1982 – 1984.

Colaboração: Renato Kaida e Engenheiros

Ugo Tedeschi e Haruo Hashimoto que fizeram a estrutura.

Construção: Empreiteiros locais – engenheiro

Luís Alberto Fantacini; mestre-de-obras Benedito Brunherotti

Área do terreno: 13 000 m²

Área construída: 1 000 m²

Memorial do projeto. O saber / o saber fazer.

A prancheta / o canteiro.

A síntese necessária e difícil.

De um lado, o “jogo sábio das formas debaixo da luz”, história -memória presentes em cada traço, muro, esboçado desenho mágico.

De outro, a lenta e medida acumulação de gestos, economia feita história, também, do homem construtor, no desafio amoroso ao material, no “jogo sábio” com o tempo desejo lógico.

A “história como amiga”.

O “canteiro como escola”.

pag.62
capela.
autor
[53] 34.
FIGURA. 53 – Vitral da
Fonte: Foto acervo do
2023

Duas belas utopias para a nova modernidade.

Pensar uma casa para padres, hoje, usando exaustivamente as possibilidades do tijolo (paredes, estrutura, tetos). Facilitar condições para uma participação criativa dos operários no canteiro de obras. Revisitar velhas técnicas construtivas buscando novos espaços. Essas foram ideias que nortearam o projeto de Batatais. Como nos antigos conventos, organizamos a construção ao redor de um jardim central, quadrado, com uma galeria – claustro – para onde se abrem os diversos espaços. Dois lados contêm os dormitórios, abóbadas parabólicas de tijolo levantadas sem nenhuma fôrma ou cimbramento. Articulando esses dois lados estão a estrutura com as placas coletoras de energia solar e a torre de água. Dela partem duas paredes perpendiculares às abóbadas, separando quartos de banheiros que, como aquedutos, levam os encanamentos hidráulicos. Na terceira ala, as áreas de serviço, cozinha e refeitório têm abóbadas semicirculares construídas à velha maneira romana, com cambotas de madeira deslocadas ao longo das paredes. Quatro abóbadas cobrem o refeitório, organizadas como um “catavento” e se encontrando no centro, no pilar monolítico de granito. O quarto lado, o da entrada, tem os espaços de estar e encontro, cilindros cobertos por cúpulas de tijolo,

construídas também sem o auxílio de fôrmas e com aberturas de iluminação zenital. Por essa ala se tem acesso à capela, único volume a invadir o espaço do jardim central, com sua parábola cerâmica contínua – chão, parede, teto – fechada nos dois lados por vitrais coloridos.

Na cobertura do claustro utilizamos uma técnica já quase esquecida: a construção de lajes planas feitas com tijolos de barro. Na galeria da entrada esse teto se apoia em generosos arcos e se abre para a luz através de vários rasgos zenitais circulares.

Foi intensa a participação do pessoal da obra na tomada de decisões de muitos elementos e operações da construção: desenhos variados na amarração dos tijolos, quase a assinatura de cada operário nas paredes, aprimoramento e transformação de técnicas, elaboração carinhosa dos detalhes. Assim, por exemplo, as chaminés “gaudianas” e as paredes de elementos vazados do mestre Benedito Brunherotti, o chefe da obra; a cruz em rebaixo modulado de tijolos com que nos surpreendeu, ainda, mestre Benedito quando da desforma da capela: o detalhe que faltava na abóbada que cobre o altar.

Outras mãos inspiradas trabalharam madeira, ferro, pedra, vidro.

A “história como amiga”, no dizer de Louis Kahn, foi o tema gerador desses espaços ( texto de Affonso Risi ).34

pag.63

1. Acesso; 2 .Recepção;

3.Galeria com arcos; 4. Biblioteca;

5. Estar;

6. Domo;

7. Dormitórios e sanitários;

8. Capelas; 9.Pátio;

10. Espelho de água; 11.Claustro;

12.Refeitorio; 13. Pilar de Granito; 14. Cozinha; 15. Serviços; 16.projeção da iluminação; 17. Garagem; 18. Coletor de energia solar; 19. Sanitários.

20. Sala de espera privada; 21. Apoio a capela;

Entorno e Locação.

O terreno no qual a edificação está locada fica em um complexo pertencente aos Claretianos. Além da residência Claretiana, o complexo abriga um centro esportivo com piscina e academia, uma unidade básica de saúde e o centro acadêmico claretiano.

O acesso é restrito, e a edificação não tem contato direto com a via pública.

A edificação construída no meio do terreno plano atualmente está cercada por árvores, fazendo com que exista a ilusão de que a residência está localizada em uma enorme área verde longe da cidade.

Programa de Necessidades.

A volumetria do edifício nos surpreende logo na entrada, onde encontramos um jogo de cúpulas de perímetros variados, onde se encontram a recepção, com uma sala de espera privada e uma pequena sala que hoje serve como apoio a capela. Na lateral esquerda, temos a Biblioteca, que também é utilizada como sala de reuniões, e a sala de estar. Distribuídos no lado esquerdo e na parte inferior do edifício se encontram os dormitórios - em quantidade são doze, segundo o Padre Brás, que hoje é um dos administradores da casa, o número doze foi escolhido de propósito com um certo sentido bíblico por trás. Os dormitórios

são pequenos e contêm um banheiro particular em cada um. O tamanho reduzido foi escolhido pensando nas atividades dos missionários, que normalmente eram realizadas fora da casa.

A planta organizada de forma perimetral é inspirada em antigos mosteiros, contendo um jardim (claustro) central, dormitórios do lado esquerdo e na parte inferior, e do lado direito apresenta a área de serviços, contendo copa, cozinha, despenca e lavanderia

Ocupando o local central da planta junto ao jardim encontramos a Capela. Construída em forma de parábola, é o cômodo destinado para meditação, oração e eucaristia. A capela possui um enorme vitral desenhado pelo próprio arquiteto. O lago externo transmite o tempo todo o som da água fluindo, o que torna a experiência no exterior da capela ainda mais significativa.

Em 2009, para comemorar os vinte e cincos anos da residência, ela passa por uma reforma de caráter litúrgico e artístico, onde são adicionados quadros e um painel de azulejos.

Outra reforma que foi feita na edificação é um novo anexo construído na lateral do lado direito logo atrás da volumetria da área de serviço. O novo anexo internamente se difere do restante da residência, com exceção da copa a área de descaço, que, a partir de análises, foi possível verificar que era um volume já existente que antes era utilizado

pag.64
1 2 20 21 19 3 6 8 10 9 18 7 7 4 5 11 11 11 13 12 15 17 14 16 16
[54]

como garagem. Essa teve seu uso modificado para ser utilizada junto ao anexo. De forma externa a construção se integra bem com o edifico e sua totalidade. Continuaram a mesma proposta do edifício original, mas a construção foi necessária já que a casa caritiana passou a abrigar idosos da comodidade dando assistência médica e moradia em momentos de necessidade.

Técnicas construtivas.

Convém observar que nessa obra, não há uma recuperação de técnicas tradicionais dominadas pela população, as técnicas são novas para os operários, apenas mais umas que a tecnologia do concreto: ”na construção pesquisou-se a possibilidade do tijolo como fechamento e estrutura, com paraboloides e cúpulas e até lajes planas, para o que foi necessário a praticamente descobrir as técnicas, não dormidas pela mão de obra local -Hugo Segawa” (Bastos, 2003, p.148).

Na construção da edificação são utilizados tijolos de barro cozidos. Parte das coberturas é feita em cúpulas e abóbadas (Figura.55 e 56 ) e lajes planas (Figura.57) de tijolos. Um detalhe interessante é que as lajes são transitáveis, facilitando a manutenção dos itens presentes na cobertura.

O assentamento dos tijolos é feito de forma variada, trazendo diversas paginações ao longo

FIGURA. 54 – Planta baixa com as indicações dos usos. Fonte: Web site: Archdaily.³⁵

FIGURA. 55 e 56 – Construção das coberturas em forma de cúpula e abobada, todos alto portastes em tijolos . Fonte: Acervo Affonso Risi.

FIGURA. 57 – Construção das coberturas planas em tijolos. Fonte: Acervo Affonso Risi.

35. Figura. 54 - Disponivel em: <https://www.archdaily. com.br/br/01-110643/ classicos-da-arquiteturaresidencia-dos-padresclaretianos-slash-affonso-risie-jose-mario-nogueira> Acesso em out. 2023.

de toda a residência. O tijolo também é utilizado como elemento de iluminação e ventilação. São utilizadas duas padronagens diferentes: uma com os tijolos deitados interseccionados criando aberturas maiores, que é utilizada nos corredores que compartilham espaço com a área do jardim central, e a outra com o tijolo utilizado em 90 graus, formando o desenho de brises. As aberturas são menores, proporcionando um certo resguardo, já que é utilizada em áreas que ficam de frente para a área externa buscando maior [55]

pag.65
[56] [57]

privacidade.

A capela é o único cômodo da residência construído em forma de parábola contínua, em que o piso vai do chão ao teto, até uma altura de mais menos cinco metros, onde repousa em uma viga revestida de tijolos. (lembrando o desenho de uma tenda) (Figura.58).

Já os dormitórios foram executados utilizando como cobertura abóbadas parabólicas.

Um dos destaques é a cozinha e o refeitório, construídos com abóbodas semicirculares apoiadas em um pilar central. O pila central foi construído em granito maciço possuído um diâmetro de 30x30 e é o único pilar de sustentação da residência (Figura.59).

Elementos da Construção.

A obra possui como acabamento os próprios tijolos à vista. Tanto no interior quanto no exterior, as esquadrias são feitas em madeira e ferro. Vale ressaltar a espera que tiveram ao produzir as esquadrias de madeiras, com tamanho adequado para os vãos e com detalhes de aberturas diferentes. Também foi previsto em sua estrutura o adicionamento de outros elementos como o arcondicionado. Outro detalhe que não pode passar despercebido é o vitral da capela desenhado pelo próprio arquiteto, o acabamento piso é feito em madeira e pedra.

[58] [59]

FIGURA. 58 – Capela, na imagem observamos o desenho em parábola do edifício e o momento em que a edificação descansa sobre a viga lateral . Fonte: Vitruvius 2011.³⁶

FIGURA. 59 – Refeitório, ponto perfeito onde a cobertura em abóbodas semicirculares se apoia no pilar central . Fonte: Foto acervo do autor 2023.

35. Figura. 58 - Disponivel em: <https://vitruvius. com.br/revistas/read/ projetos/20.233/7733> Acesso em Out. 2023

pag.67

37. Disponível em: <https:// vitruvius.com.br/revistas/read/ projetos/13.154/4895> acesso em out. 2023.

38. Disponível em: <https:// www.nelsonkon.com.br/en/ residencia-estudantil-daunicamp/> acesso em out. 2023

FIGURA. 60 – Residência universitária Unicamp.

Fonte: Nelson Kon 1192.³⁸

FIGURA. 61 – Maquete da Implantação geral – residência estudantil Unicamp.

Fonte: Dualibi 2013

moradia dos estudantes da unicamp

Arquitetos: Joan Villá.

Localização: Av. Santa Isabel, - Vila Santa Isabel, Campinas – SP.

Data: 1988 – 1991.

Colaboração: Paulo Milanez, Ana Lúcia Muller, Débora A. Doukan, Edson Takahashi João Marcos Lopes, Mario Braga, Roberto Pompéia.

Construção: Cálculo estrutural de Yopanan Rebello.

Área do terreno: 55 000 m²

Área construída: 28 000 m²

Memorial do projeto.

A residência estudantil da Unicamp, Universidade de Campinas (1992), foi construída sobre um terreno com ligeira inclinação e com grandes possibilidades ambientais. Ao mesmo tempo, se levou a termo um processo de participação com os estudantes que, em meados dos anos oitenta, haviam ocupado a universidade para reforçar suas reivindicações. Villà conseguiu unir os desejos que tinham os estudantes para as suas residências com a sua vontade como um arquiteto social de criar uma comunidade ao ar livre. Um sistema modular e escalonado permite criar

pag.68
[60]

1.Praça e Pátio;

2. Rua de Pedestre;

3. Rua de Veículos;

4. Habitações;

5. Salas de estudos;

6. Centro comunitário, comercio e Serviços;

7. Campus Universitário ;

8. Estacionamento; 9.Parques e recreação.

residências compartilhadas para dois ou quatro estudantes, com três cômodos e um pátio de acesso ajardinado. Esta combinação permite resolver a grande parcela triangular do recinto, com trânsito perimetral de veículos e toda a sorte de espaços livres em diversas escalas no interior: grandes parques, pequenos recintos arborizados para reunir-se a comer ou estudar, ruas para pedestres e pátios comunitários, terraços em cada unidade, além de muitos metros quadrados dedicados a usos comunitários da residência. Às qualidades dos novos sistemas construtivos modulares somem-se as qualidades ambientais do espaço aberto e as qualidades compositivas que se percebe na composição modular e escalonada, com pátios e parques que vão se abrindo em perspectiva e em diagonal, de maneira que esta arquitetura moderna, abstrata e de tecnologia de tijolo, evoca as composições clássicas e a harmonia do Renascimento.( Texto de Josep Maria Montaner e Zaida Muxí).³⁷

Entorno e Locação.

O tereno no qual a edificação está locada possui um desenho triangular com um suave declive. Para solucionar a divisão perimetral do

terreno, Villà decide dividir o terreno em dois com a implantação de uma via para veículos, que corta o terreno ao meio de forma longitudinal. Dessa forma, ela estabelece um diálogo com as vias internas de pedestres que são criadas nas quadras. Para as quadras que receberão as habitações são articulados espaços de 90x90 metros gerando um traçado regular.

Programa de Necessidades.

- A Quadra: Formada por uma reticula de 90x90 metros, o arquiteto decide criar agrupamentos triangulares que são colocados um em cada lado da quadra, deixando de forma proposital um dos lados vazios, no qual se tem uma vista direta do fundo de vale no sentido do campus. Esses agrupamentos foram posicionados com suas bases voltadas paras as áreas de circulação externa onde se encontram as vias de pedestres, já o vértice do triangulo fica direcionado para a área central da quadra que possui um pátio com uma praça ambiente criado para o convívio dos alunos. Vale ressaltar que para o desenho da praça foi criada uma divisão onde ela é dividida em dois, da parte superior para a inferior é criado um rebaixo de um piso. ( Figura.62)

[61]
1 1 1 2 2 2 3 8 8 8 6 6 6 5 5 5 7 9 3 3 5

FIGURA. 62 – Esquema organizacional da quadra.

Fonte: Dualibi, 2013.

FIGURA. 63 – Esquema organizacional do agrupamento.

Fonte: Dualibi, 2013.

FIGURA. 64 – Perspectiva isométrica de como se dá o agrupamento.

Fonte: Vitruvius (Acervo Joan Villà)

FIGURA. 65 - Desenho de uma única unidade habitacional.

Fonte: Dualibi, 2013.

- Unidade de habitação (agrupamento): Cada agrupamento (Figura. 63) contém quinze unidades habitacionais, estas organizadas sobre uma reticulam de 4,05x 4,05 metros, onde cada uma delas possui é formada por três quadrados, assim resultando em uma unidade de 64m². As unidades possuem duas possibilidades construtivas, sendo elas habitações Térreas e Assobradadas. Quando observado agrupamento se nota a divisão das unidades que ocorre por pequenos pátios centrais que servem como área de ventilação e acesso para as unidades.(Figura. 64)

Cada unidade é projetada para abrigar quatro pessoas, sendo distribuída em três ambientes, área intima (direcionada a dormitórios), área social e área de serviços (cozinha e banheiro) . (Fig. 65)

Partindo da modulação de cada casacom uma trama modular de 45x45 cm, assentada em toda a área a ser ocupada - , foi possível montar um “quebracabeças” complexo: tosos os painéis deveriam se encaixar perfeitamente da primeira à última casa de cada quadra. Ou seja, cada quadra era composta de um único edifício que continha 54 casas (sendo 21 delas no segundo pavimento), duas salas de leitura, que ficavam sobre área de uso comunitário e serviam de acesso entra as ruas de pedestres para o miolo das praças superiores e bem no centro do pátio (praça d quadra), o centro comunitário. Cada quadra era, ainda, interligada por dalas de leitura ( o que chWamávamos de ponte). Tais pontes, situadas no segundo andar da quadra superior, situavam-se bem no desnível entre os patamares do terreno: cobriam uma espécie de túnel

pag.70
[62]

que permeava os espaços no sentido longitudinal da implantação interligando todas as praças com seus respectivos centros de vivência na mesma cota de nível. No miolo mais denso, cuja volumetria chegava a três pavimentos, havia aberturas que permitiam iluminar partes do caminho: um ritmo que salienta a cadência equilibrada entres cheios e vazios, entre claro e escuro (Pompéia, 2006, p.123 apud Dualibi, 2013 p. 125). [63]

Técnicas construtivas.

Em todo o projeto são utilizados Painéis pré-moldados de tijolos cerâmicos e trilhos de concreto.

Os painéis cerâmicos são componentes construtivos desenvolvido pelo arquiteto Joan Villà. A ideias é desenvolvida quando o arquiteto ainda trabalhava na academia de Belas artes, porém só é desenvolvida e aplicada quando ele se junta à faculdade Unicamp. Tais componentes com o intuito de baratear e facilitas na construção e mão de obra possuía um sistema autoportante, sem a necessidade da construção de vigas ou pilares, os painéis poderiam ser utilizados de forma vertical ou horizontal construindo paredes e lajes, a montagem assim como a fabricação não precisava de mão de obra especializada.

Para otimizar o trabalho e a criação de projetos, foram desenvolvidos cinco componentes, divididos em: 1) Painel de parede (vertical); 2) Painéis de Laje (horizontal); 3) Painéis de instalação elétrica e/ou hidráulica; 4) Painéis cobertura; 5) Painéis escada. Construídos com tijolo cerâmico furado/ telha cerâmica , agrupados utilizando argamassa e ferro de forma padronizada e modular.(Fig. 66) A grande qualidade deste sistema de préfabricação está na sua simplicidade de execução, não necessidade de mão-de-obra especializada em nenhuma de suas etapas, bastando uma forma de madeira de obra feita com corte simples

pag.71
[65] [64]

e unidas entre si por encaixes tipo macho e fêmea, facilmente montadas e desmontadas. Colocadas sobre o chão de obra ( terra batida ou o contrapiso) sobre uma pequena camada de areia, os blocos são aplicados um ao lado do outro, deixando um espaço no centro onde será colocado o ferro de obra em posição gabaritada sore um furo na madeira. Posteriormente, todas as peças são aglutinadas em um todo único, através de argamassa de cimento e areia. O espaço central, onde se encontra a barra de ferro previamente colocada, é preenchido, configurado assim uma vigota armada que trabalha com uma coluna vertebral do sistema, garantindo a estabilidade e a união do conjunto ( Dualibi, 2013 p. 96).

Elementos da Construção.

Durante um grande período as edificações foram utilizadas com os Painéis pré-moldados à vista tanto internamente como externamente, porém com o passar do tempo fizeram uma pequena alteração na parte externa do edifício onde ele foi rebocado e pintado, porém ainda seguindo suas características originais.

Toda a tubulação de água e esgoto, foi feita utilizando os painéis de instalação, as tubulações que não foram colocadas no painel ficam aparentes.

Portas feitas de ferro e vidro, com um desenho quadriculado e janelas em dois formatos, um seguindo o modelo das portas e outras em venezianas.

pag.72
FIGURA. 66 -Foto dos cinco componentes desenvolvidos por Joan Villà. Fonte: Dualibi, 2013.
[66]
pag.73

37. Figura. 67 - Disponivel em: < http://comover-arq.blogspot. com/2012/08/tijolo-e-concreto2-casas.html> Acesso em Out. 2023.

FIGURA. 67 - Elevação posterior da educação. Fonte: Comover-arq.³⁷

residência abu & font

Arquitetos: Solano Benítez, Alberto Marinoni e Glória Cabral.

Localização: Rua Prof. Roque Saldivar, Assunção, Central, Paraguai

Data: 2004 – 2006.

Colaboração: Gabinete de Arquitectura

Construção: Engenheiro: Enrique Granada, Execução: Gabinete de arquitectura

Área do terreno: 480 m²

Área construída: 700 m²

Memorial do projeto.

Los números cuentan que en la América Sur, una familia, es victimizada por violencia e inseguridad a cada segundo. Si pesáramos esta secuencia de dolor, al medir en cercanía, la cantidad de veces que el tiempo en vidas interrumpe su transcurso, obtendríamos los totales que se demandan en su protección. Construir para proteger, una casa contra todas las intemperies, las del sol y las lluvias y las que arrecian indiferencia, miedo y soledades, una casa como herramienta de resistencia, donde de nuevo anide la vida.

Una Madre y de sus muchos hijos, y su vida en prolongación, otras 7 familias y veintitantos nietos, reunidos en un todos los sábados cualquiera, se presenta como primer programa, y tras el éxodo la nueva espera. La vida se añora persistente,

pag.74
[67]

la que se adapta y se transforma es la arquitectura.

Una planta baja libre que sólo guarda fragmentos del servicio, y que sus puertas abren el espacio, hasta que la casa y su inmueble sean uno. En rigor este espacio interior y su exterior coinciden al hacer que las aberturas cumplan con el mandato de su nombre. Dos vigas Vierendheel de 14 metros sostienen la casa que descarga su peso en cuatro pilares que descansan en los linderos, la separación entre una y otra es de 11 metros y viguetas longitudinales las ponen en contacto y las traspasan en voladizos para quilibrar sustensione s internas. Todo el conjunto se cierra adicionando una losa cerámica armada, que suplementa tensión en la parte inferior del conjunto.

Los otros dos pisos son el orden de la privacidad-dormitorios y estares íntimos- se preparan contra los calores paraguayos, un subsuelo nos acerca a la temperatura deseable de bajo tierra , sus grados de mas y de menos en invierno y verano respectivamente, son un buen deseo y una grati” cación de alivio, en un sitio donde las temperaturas oscilan entre los 47 y –2 grados centígrados. La planta superior al contrario busca en el aumento de la cantidad de volumen de aire, una contención a tanta inclemencia, su corte de 5 m de alto nosre” e re a una espacialidad que no coincide con la común del espacio contemporáneo, pero de conseguir y mantener este aire preservado, trata toda la energía puesta

en lo habitable.

Donde no hay mucho, la austeridad es mas que necesaria, y la estrategia para conseguirla, es operar sólo desde lo imprescindible, el ladrillo cerámico es el material de construcciónde mas bajo precio en nuestro pais, y es utilizado en el extremo de sus capacidades, como suelo, paredes y cielo, alisadas de cemento dan recubrimiento a todo lo que se pretende en contacto con el agua, los vidrios y metales en conjunto suman estructuras para sostener puertas de gran porte, y los cerramientos de madera contra-chapada, hermetizan o expanden las funciones y sus espacios.

Cada tema es abordado desde la misma óptica, solicitándole al material que los define, que haga al tiempo de estructura fundamental para resolverlos sin rellenos, lo demás no debe estar porque no hay dinero que lo pueda comprar, para todo lo demás está...Photoshop.

(Memorial do projeto escrito pelo Gabinete de arquitectura evitando à Camerin 2016 p. 141, tradução nossa.)

Os números mostram que, na América do Sul, uma família é vitimada pela violência e pela insegurança a cada segundo. Se pesássemos esta sequência de dores, medindo o número de vezes que o tempo interrompe o curso das vidas, obteríamos os totais que são exigidos para a sua proteção. Construir para proteger, uma casa contra todas as intempéries, as do sol

pag.75

e das chuvas e as da indiferença, do medo e da solidão, uma casa como instrumento de resistência, onde a vida se aninha de novo.

Uma Mãe e os seus muitos filhos, e a sua vida em prolongamento, 7 outras famílias e vinte e tal netos, reunidos num qualquer sábado, é apresentado como o primeiro programa, e despois do êxodo, a nova espera. A vida é persistentemente desejada, é a arquitetura que se adapta e transforma. Um térreo livre que guarda apenas fragmentos do serviço, e cujas portas abrem o espaço, até que a casa e o seu edifício se tornem um só. Em rigor, este espaço interior e o seu exterior coincidem fazendo com que as aberturas cumpram o mandato do seu nome. Duas vigas Vierendeel de 14 metros que sustentam a casa, que descarrega o seu peso sobre quatro pilares assentes nos limites, a separação entre uma e outra é de 11 metros e vigas longitudinais põem-nas em contacto e cruzam-nas em balanços para equilibrar os apoios internos. O conjunto é fechado pela adição de uma laje cerâmica reforçada, que completa a tensão na parte inferior do conjunto. Os outros dois andares são da organizados para a privacidade - quartos e salas íntimas - estão preparados contra o calor paraguaio, um subsolo nos aproxima da temperatura desejável da terra, seus graus de mais e menos no inverno e no verão respetivamente,

são um desejo bom e uma sensação de alívio, num lugar onde as temperaturas oscilam entre 47 e -2 graus centígrados. O piso superior, pelo contrário, procura no aumento da quantidade de volume de ar, uma contenção para tanta inclemência, o seu pé direito de 5 m é uma espacialidade que não coincide com o comum do espaço contemporâneo, mas para conseguir e manter este ar preservado, que trata toda a energia colocada no habitável. Onde não há muito, a austeridade é mais do que necessária, e a estratégia para a conseguir, é funcionar apenas a partir do essencial, o tijolo cerâmico é o material de construção de menor preço no nosso país, e é utilizado no extremo das suas capacidades, como pavimento, paredes e teto, o cimento alisado dão revestimento a tudo tenha contato com a água. Os o vidro e as ferragens juntos somam estruturas de suporte para as grandes portas, e os fechamentos de madeira compensada, vedam ou ampliam as funções e os espaços. Cada tema é abordado do mesmo ponto de vista, solicitando ao material que os define, que realizar o tempo de estrutura fundamental a fim de os resolver sem enchimentos. O restante não deve deixar de existir porque não existe dinheiro que o compre. Para todo o restante existe...Photoshop. (Memorial do projeto escrito pelo Gabinete de arquitectura evitando à Camerin 2016 p. 141, tradução nossa.)

pag.76

FIGURA. 68 - Desenho

volumétrico, sem escala. Fonte: Camerin, 2016.

FIGURA. 69 - Planta Baixa do Subsolo e Pavimento Térreo.

Fonte: Camerin, 2016.

FIGURA. 70 - Planta Baixa do Segundo Pavimento.

Fonte: Camerin, 2016.

Entorno e Locação.

O tereno no qual a edificação esta locada, fica localizado em um bairro residencial, de Assunção, a casa foi construída para a mãe de Benitiz.

O terreno tem formato trapezoidal, com a testada medindo cerca de 16m de largura, o lado esquerdo 35m, e o lado direito 32m, já o limite posterior tem 14m. Ainda existe uma ligeira irregularidade na topográfica de mais o menos 80 cm entre o início e o fim do terreno.

Programa de Necessidades.

A Residência está dividida em três andares: no térreo é onde se localiza a área de convivência com sala, lavabo, cozinha, despenca e área de serviço; o segundo andar é dividido quase que de forma individual como se fossem dois apartamentos - um contendo um quarto, closet e banheiro, direcionado à fachada noroeste, e o outro com espaço de estar, dois quartos, closet e banheiro, com vista para o sudoeste. O subsolo contém dois quartos e dois banheiros mais área de estar. No entanto, no início, o andar foi projetado para um dos familiares do arquiteto, hoje o local abriga a sede do Gabinete de arquitectura.

Técnicas construtivas.

A fim de liberar o máximo de espaço na área do térreo para a construção da sala de estar

integrada com os dois jardins, Benitez posiciona uma viga Vierandeel apoiada sobre quatro pilares construídos em concreto armado, que possuem um

pag.77
[69] [68] [69] [70]

40. Quando o subsolo se torna cede do escritório Gabinete de arquitectura, Benitz precisa fazer algumas alterações, para ajustar o espaço as necessidades do programa, para isso algumas paredes são removidas e são subistituidas por pilares. Os pilares são dispostos em um tipo de treliça vertical construído totalmente em tijolos.

41. Figura.73 - Disponível em: < https://divisare.com/ projects/305988-gabinete-dearquitectura-federico-cairoli-

gabinete-de-arquitectura> acesso em out. 2023

FIGURA. 71 - Lage curva já executada.

Fonte: Camerin, 2016.

FIGURA. 72 - Processo de montagem da laje curva.

Fonte: Camerin, 2016.

FIGURA. 73 - Subsolo, sede do gabinete de arquitetura, detalhe do pilar.

Fonte: Federico Cairoli. ⁴¹

FIGURA. 74 - Parede que divisa, em elementos vazados.

Fonte: Comover-arq.

intervalo de 11 metros entre um e o outro. Esses pilares e viga estão posicionados nas laterais de divisa do terreno, vencendo um vão de 14 metros. As vigas estão descoladas cerca de 3 metros da elevação frontal e posterior e são conectadas por vigas secundárias que se estendem além desta compensação. Vale ressaltar que as vigas também têm outro papel importante na construção: além de fornecerem uma espacialidade maior, são elas que vão sustentar toda a laje curva construída em tijolos cerâmicos armados (Fig. 71 e 72).

Esse conjunto de vigas sustenta uma laje curva de tijolo cerâmico armado, que paira sobre a sala de estar no térreo. Essa laje está tensionada e funciona como uma espécie de contrapeso para equilibrar o sistema. Os tijolos que a compõe são assentados em posição inclinada, de maneira que uma menor quantidade de tijolos consiga vencer um comprimento de laje maior. Cabos de aço ajudam a sustentar as bordas da laje, que estão em balanço (Carmerin, 2016 p.148).

Já no segundo pavimento, apoiadas sobre a parte superior das vigas Vierandeel e nas paredes das elevações, assim como nas paredes de divisória dos sanitários temos a cobertura principal projetada no modelo tipo borboleta feita em cerâmica armada. Já as paredes se dividem em

três modalidades as estruturais, estruturais duplas e simples. As paredes estruturais se encontram no interior do edifício e em suas elevações, que são reforçadas com armaduras. Com o intuito de

pag.78
[71] [72]

resistir melhor à força de flexão que recai sobre a estrutura, as paredes que levam o assentamento duplo aparelhado são as das elevações, já que recebem uma demanda maior da estrutura. O restante das paredes são construídas com tijolos. Segundo Carmin ( 2016 p,146), os tijolos na modalidade simples possuem um assentamento aparelhados ao comprido e inclinado, resultando em planos mais finos e com maior economia de tijolos cerâmicos e argamassa.

Essa casa, em especial, possui diversos elementos visuais e estéticos, desde o assentamento até os pilares (Fig.73). Um dos elementos mais interessantes é a parede de Cobogós (Fig.74) que separa a rampa da área de estar, onde todo um desenho novo é criado. Os tijolos são assentados de forma cúbica em pequenos módulos, transformando o espaço.

O cobogó de tijolos que separa a rampa da área de estar foi feito com peças pré-moldadas. Esses módulos fixos são compostos por oito tijolos unidos com argamassa, de maneira a formar um cubo aberto nas suas maiores faces .Depois, foram conectados uns aos outros a partir de seus vértices, formando assim uma sucessão de losangos, cujo posicionamento responde aos esforços de tração e compressão da superfície . Uma cinta de tijolos arremata a parede vazada, que é

à laje superior por uma junta de argamassa. (Carmerin, 2016 p.148).

Elementos da Construção.

Os Tijolos, usados de diferentes formas e em diferentes funções, é desafiado ao máximo de sua resistência. É possível identificar o seu uso nas paredes, lajes e pavimentação. O assentamento dos tijolos nas paredes é feito de forma inclinada e aparelhado de forma longitudinal com as juntas desconexas. O aparelhamento é feito sem a inclinação somente de forma longitudinal com as juntas desconexas.

Vale ressaltar que nessa obra foram utilizados materiais de outras construções com intuito de gerar economia

Os vidros utilizados nas aberturas do subsolo, dormitórios e no segundo andar nas portas do jardim, são restos descartados por fabricas de vidro. As esquadrias que separam o térreo do jardim são em madeira, assim como alguns mobiliários.

O piso interno de toda a residência foi feito em concreto alisado. Todas as instalações hidráulicas e elétricas foram mantidas aparentes, com as tubulações pintadas na cor preta.

unida [73] [74]

NOVO EXPERIMENTO

SERTÃOZINHO E UM NOVO EXPERIMENTO

SERTÃOZINHO E UM
M O.

o local e seus vínculos

Seguindo o objetivo do trabalho em mostrar as possibilidades construtiva e suas aplicabilidades, foi escolhido para esse trabalho como objeto, a criação (simulação) de uma residência universitária, para os estudastes do IFSP Sertãozinho ( Instituto Federal de Educação, Ciência e tecnologia de São Paulo – Sertãozinho).

O objeto ligado a universidade foi escolhido por dois motivos:

1) é uma demanda real da cidade, o instituto nos últimos anos vem crescendo e trazendo novos curso, mas a universidade ainda não tem uma residência direcionada aos alunos de baixa renda e que vem de outros estados para estudar na universidade.

2) O ambiente acadêmico é muito mais aberto para esse tipo de construção, que possui um viés mais exploratório e colaborativo, e o IFSP seria um espaço onde não só os universitários os alunos que fazem parte do ensino técnico poderiam participar da experimentação, mais a

própria população poderia aprender sobre essa nova técnica.

O Instituto Federal fica localizada no bairro Jardim Canaa, na região Sudoeste da cidade de Sertãozinho, próximo a Av. João Pignita. Para a produção das residências foram escolhidas três áreas diferentes, tendo como foco os estudantes e a interação com a comunidade, visando uma construção criativa e colaborativa dos edifícios, contendo um programa composto por usos diversificados, com intuito de criar uma identidade única para cada local. O primeiro terreno fica localizado no cruzamento das ruas Humberto Ortolan com a Cláuber Rocha; O segundo terreno também fica localizado na Rua Humberto Ortolan mais esse faz cruzamento com as ruas Luis Saran e Elis Regina Carvalho Costa; já o terceito terreno fica localizado sobre as ruas José Minto, com Augusto Coli e Antonio Schiavinatto. Todos as três áreas foram escolhidas pensando no percurso do estudante até a universidade, todos eles ficam em média a quinze minutos de caminhada da universidade.

pag.81

FIGURA. 75 - Lote 01 - R. Gláuber Rocha com R. Humberto Ortolan.Fonte: Acervo do autor 2023.

FIGURA. 76 - Lote 01 - R. Gláuber Rocha .Fonte: Acervo do autor 2023.

FIGURA. 77 - Lote 02 - R. Elis Regina Carvalho Costa, lote atualmente está murado. Fonte: Acervo do autor 2023.

FIGURA. 78 - Lote 02 - Foto tirada através de um buraco no muro, parte interna do lote. Fonte: Acervo do autor 2023.

FIGURA. 79 - Lote 03 - R. José Minto, imagem com foco na edificação existente.

Fonte: Acervo do autor 2023.

FIGURA. 80 - Lote 03 -R. Antônio Schiavinatto, área descampada do loto aberto.

Fonte: Acervo do autor 2023.

FIGURA. 81 - Imagem aérea das áreas, a partir de satélite. Fonte: Google Earth.

ÁREA 01 ÁREA 02 ÁREA 03

Aglutinação de quatro lotes

Área total de 1.498m²

medida total do terreno 32,59 x 36,30 x 35,36 x 41,33 e esquina com r = 5,70

Aglutinação de dois lotes

Aglutinação de dois lotes

Área total de 1.320m² Área total de 3.384 m²

medida total do terreno 2,55 x 23,55 x 53,45 x 45,68 x 18,24 e esquina com r = 6,17

medida total do terreno 25,20 x 73,82 x 40,15 x 61,29 x 38,23

pag.82
[76] [75] [78] [77] [80] [79]

topografia

Em relação à topografia da área de estudos, ela apresenta curvas de nível bastante espaçadas entre elas, criando um leve declive.

Nas áreas escolhidas para fazer o estudo de ocupação, temos uma curva de nível que passa em dois lotes, enquanto no outro se mantém no centro do lote. Essas características fazem com que os três lotes tenham de três a quatro metros de declive, podendo haver variações de acordo com a definição da locação do zero no lote.

legenda

LOTE DE ESTUDOS linhas topograficas

pag.84
FIGURA. 82 - Mapa Topografico

USO DO SOLO

Sobre o uso do solo, o perímetro de estudos se mostra predominantemente residencial, com diversos pontos comerciais próximos às vias principais de acesso, o que mostra que a área é bastante ativa. Além disso, há a predominância de equipamentos institucionais, tais como escolas de diferentes níveis de ensino, as quais também estão localizadas próximas às principais vias de acesso.

Uma peculiaridade encontrada na área são os diversos lotes vazios. Essa situação ocorre nesse perímetro porque a área mais a noroeste é um bairro novo em processo de expansão.

legenda

VAZIOS INSTITUCIONAL RESIDENCIAL PRESTAÇÃO DE SERVIÇOS COMERCIAL

LOTE DE ESTUDOS

pag.86
FIGURA. 83 - Mapa de Uso do Solo

FIGURA. 84 - Mapa de Ocupação do Solo (figura/fundo)

ocupação do solo

Em relação à ocupação da área estudada, nota-se uma grande ocupação na região norte e nordeste. Entretanto, nas regiões noroeste e leste, percebemos uma área bastante desocupada. Essa locação com menos ocupada corresponde a um bairro recém-loteado que vem sendo ocupado pela população gradualmente.

legenda

LOTE DE ESTUDOS áreas edificadas

pag.88

gabarito

Sobre o gabarito do perímetro estudado, nos deparamos com uma região com gabarito de baixa densidade, predominando residências de um pavimento. Em relação ao gabarito da área, existe uma peculiaridade: uma das quadras na Av. João Pignata possui todas as residências com gabarito de dois pavimentos. Fora essa quadra, os edifícios de dois pavimentos estão espalhados por toda a região. Os edifícios de três ou mais pavimentos são normalmente equipamentos ou estabelecimentos comerciais.

legenda

DOIS PAVIMENTOS UM PAVIMENTO

3 PAVIMENTOS OU MAIS

LOTE DE ESTUDOS

pag.90
FIGURA. 85 - Mapa de Gabrito (usos)

aspectos vegetativos

Referente à vegetação encontrada na área estudada, observação uma grande concentração de vegetação principalmente nas regiões Norte e Leste.

Na primeira grande concentração de vegetação, temos uma área de APP (Área de Proteção Permanente), em torno da nascente córrego sul.

legenda

LOTE DE ESTUDOS vegetação

pag.92
vegetativos
FIGURA. 86 - Mapa de aspectos

hierarquia viária

Sobre a hierarquia viária da região estudada, observa-se que os lotes ficam próximos às áreas de grande circulação. Este trecho estudado é um local onde há um encontro de bairros e é considerado um dos caminhos principais para o centro da cidade, o que cria diversas vias coletoras e expressas.

As vias arteriais nessa área ficam reservadas para as principais avenidas do bairro. Já as vias locais se desprendem por diversos locais, criando conexões entre as vias e os bairros.

legenda

LOTE DE ESTUDOS via local via coletora via expressa via arterial

pag.94
Hierarquia Viaria
FIGURA. 87 - Mapa de

equipamentos urbanos

A região escolhida para os estudos possui diversos equipamentos em seu entorno, sendo os principais as escolas, e o mais predominantes os equipamentos religiosos. Outro espaço que se destaca bastante são os equipamentos de lazer, que no perímetro são três praças, as quais são bastante utilizadas pela população no dia a dia, e um clube que, além de ser utilizada pela população, também disponibiliza as quadras para uso das escolas.

88 - Mapa de equipamentos urbanos.

legenda

LOTE DE ESTUDOS religioso lazer educacional infraestrutura

pag.96
FIGURA.

estudo preliminar r. estudo preliminar

memorial justificativo

O programa será dividido entre as construções necessárias (uso privado), que são as residências universitárias - o grande foco - e um programa especial (coletivo e/ou público) que dará a identidade ao lote.

As residências serão a parte privada, focada no estudante e seu dia a dia. Elas terão o mínimo necessário: área de estar, serviço, descanso e higiene. A intensão é produzir residências que possam abrigar até quatro estudantes, priorizando o convívio e a individualidade de cada um para que possam criar um vínculo de lar com o local. Os programas especiais vão se dividir em três. O primeiro é o bandejão. A escolha desse equipamento aconteceu através de conversas com alunos que têm uma rotina extensa no Instituto. Muitos alunos da faculdade e do curso técnico integrado ao médio fazem atividade extracurriculares, como iniciações científicas, dão aulas ou monitória. O atual núcleo da Universidade possui uma pequena cozinha que só distribui merenda seca para os alunos. Acreditase que funcione dessa forma não só por regras da Instituição, mas também por falta de estrutura para acomodar uma alta demanda. O espaço atual não conseguirá suporta um bandejão e o

deslocamento será necessário de qualquer forma. Por isso, foi integrado a um dos programas.

O segundo programa especial é o observatório. Esse local tem o intuito de apoiar as atividades acadêmicas feitas pelos alunos, funcionando como uma ferramenta para criação e troca de ideias de novos projetos. Além disso, assim como o nome sugere, funcionária como ponto de observação, já que o Instituto tem uma forte ligação com a área de engenharia. O local recebeu o nome de observatório pois, nos anos anteriores, um grupo de alunos produziu um telescópio como projeto de extensão, e hoje o telescópio é utilizado pra instituição em observações abertas ao público.

O terceiro programa especial será a área de lazer. Nessa proposta, faremos uso do edifício existente para criar um espaço voltado para uso dos alunos e do público. Terá uma área de biblioteca, estudos, convívio e outros, também servindo de apoio para a instituição e para os alunos. Ambos os programas terão características semelhantes: haverá o uso de pátios e áreas verdes, e serão construídos utilizando técnicas semelhantes, com foco no tijolo maciço e no cerâmico armado, levando em consideração os exemplos citados nas leituras projetuais e a descrição teórica deste projeto.

pag.99

IDEIA CONCEITO PROGRAMA

proposta qualidade espacial

MORADIA ESTUDANTIL

Economia para estudantes;

Nova rede de apoio;

Local de formação de novas identidades;

Uma moradia não só viver mais a identificação do local como um lar.

local + público

EXPLORAÇÃO DO CRIATIVO

ESTUDANTE UNIVERSITARIO

Integração maior da universidade com a cidade;

Aproximação com a paisagem urbana + verde.

Integração de espaços;

Patios e áreas de convivio;

Habitação + Conforto;

Individuo + Espaço;

Até 2 pavimentos.

PÚBLICO

Área de comercio ( Lazer, coorking, lojas, e bares); Observatorio; Áreas para eventos.

técnica e construção

Utilização do tijolo como material principal (intuito de uma costrução explorativa e colaborativa);

Tijolo maciço;

Tijolo ceramico de nove furos;

Aproximação com a comunidade já na construção. (Criação de um vinculo e uma troca de conhecimento).

PRIVADO

Unidades Habitacionais; Unidades Habitacionais PSD; Áreas de servoços (cozinha, lavanderia);

Área de estar; Higiene; Patios livres; Área de escanço (individual).

intenção

Explorar; Conviver; Morar;

Estudar; Compartilhar.

urbano

Edificios que conversam com a rua, trazendo a ideia de soleira.

Locais publicos ( Lazer, Coorking, Lojas, Bares ).

Percurso da faculdade até a habitação com no maximo 20 minutos de caminhada

COLETIVO

Acessos; Bandeijão; Patios Livres; Circulações; Bicicletario; Espaço para estudos

ESTUDANTIL QUALIDADE ESPACIAL INTEGRAçãO
HABITAÇÃO

CÓDIGO DE OBRAS

A legislação utilizada para dimensionar o projeto foi o Código de Obras e Edificações de Sertãozinho, Lei Complementar Nº 206/2008 e o Anexo 5 da Lei Complementar 350/2023.

Segundo regulamento, os três lotes estão localizados na Zona Mista 02 – ZM2, prevendo um gabarito máximo de oito pavimentos. Já no âmbito de recuos, como os lotes são de esquina, existe a possibilidade de escolha entre utilizar o recuo mínimo solicitado ou mantê-lo em zero.

A taxa de ocupação máxima para residências é de 80% (oitenta por cento), enquanto a taxa de permeabilidade deve ser de 5% (cinco por cento) da área total do lote.

Como as residências são para uso universitário, foi utilizada legislação que prevê o uso dos lotes e das edificações como local multifamiliar, além de utilizar parâmetros que definem as habitações como de interesse social.

Segundo a Lei Complementar nº 206/2008, Subseção II - Das Habitações de Interesse Social.

Art. 96 - Considera-se habitação de interesse social o imóvel residencial com área construída inferior a 69m² (sessenta e nove metros quadrados). Parágrafo Único. Será considerada como de interesse social a residência

unifamiliar com o máximo de 69m² (sessenta e nove metros quadrados) de área construída, segundo projetos elaborados por órgão da Administração Pública Federal, estadual ou Municipal designado para tal fim. (SERTÃOZINHO, 2008).

LOTE, TESTADA E GABARITO

Zona Mista 02 - ZM2

C. OCUPAÇÃO MÁXIMA

C. APVT. MÁXIMA

C. APVT. MÁXIMA (OUTORGA)

C. PERMEABILIDADE

LOTE MÍNIMO

TEXTADA MÍNIMA

GABARITO MÁXIMA

AFASTAMENTO MÍNIMO COEFICIENTES

FRENTE ATÉ 2 PAVIMENTOS

FUNDO ATÉ 2 PAVIMENTOS

LATERAL MÍN. 1 LADO (até 2 pav.)

LATERAL DIVISA RUA (até 2 pav.)

80 %

1,50

5 %

240,00 m²

10,00 5,00

8 0,00 ou 3,00 m 0,00 m

O Afastamento Lateral Mínimo de ambos os lados poderá ser 0 (zero)

No coeficiente de afastamento mínimo de esquina (divisa com a rua), as construções poderão ter recuo de 2,00 (dois) metros ou zero, não permitindo afastamento entre zero e 2,00 (dois) metros

pag.101

DIMENSÕES MNIMAS

Para definir as medidas mínimas dos ambientes, também foi utilizado o Código de Obras da Cidade, podendo ocorrer alterações mínimas, caso necessário, para melhorar a qualidade das habitações e a distribuição do lote.

SANITÁRIOS

Contendo somente chuveiro:

DORMITÓRIOS

Antecâmaras com ou sem lavatório: Contendo somente bacia sanitária: por leito

* com dimensão mínima de 1,00 m

* com dimensão mínima de 0,90 m

1,20 m² 0,90 m² 1,20 m²

* com dimensão mínima de 1,00 m

COZINHA

* Não há medida mínima para cada habitação, é somente necessário que no lote haja a quantidade de área permeável solicitada pelo regulamento.

pag.102
SALAS LAVANDERIA PÁTIO E ÁREAS VERDE CIRCULAÇÕES
4,00
8,00
2,00
0,90m²
COLETIVOS
m² A DEFINIR
5,00

ORGANIZAÇÃO

Dividido em duas etapas habitar ocupar +

HABITAÇÕES

MORADIA

ESTUDANTIL

HABITA 01

HABITA 02

HABITA 04

** Conjunto de possibilidades

IMPLANTAÇÃO NO LOTE

LOTE 01

LOTE 02

LOTE 03

HABITAÇÕES

CIRCULAÇÕES

Habitação para uma pesssoa, adaptada para PNE.

Habitação para duas pessoas.

Habitação para quatro pessoas.

EQUIPAMENTOS DE APOIO

* público

Em média 30 pessoas por lote.

Circulações privadas na área dos estudantes e interação do equipamento com a via publica.

EXISTENTE

BANDEJÃO

OBSERVATORIO

pag.103

etapa do habitar concepção das habitações

Para concepção do desenho das habitações, foi necessário pensar em soluções e caminhos que facilitassem a sua construção. Por isso, em primeiro lugar, foi levada em consideração a materialidade utilizada e os meios que ela disponibilizaria

Pensando nisso, para o processo construtivo das ideias, foi adotada uma malha de 8,00 metros por 8,00 metros, onde seria possível distribuir todos os programas das habitações e seus principais eixos de estrutura. Para espaços menores, sempre era feita uma redução na malha

de 8,00 metros para 4,00 metros e de 4,00 metros para 2,00 metros, sempre sendo a metade do perímetro anterior.

Após a criação da malha, foi feita a distribuição dos ambientes iniciais de acordo com a metragem quadrada exigida pelo código municipal.

O primeiro modelo criado foi a Habita 2, que serviu como base para os demais modelos. Para sua distribuição estrutural, foram escolhidos os eixos principais que serviriam como paredes estruturais e de sustentação para a cobertura. O método escolhido para as coberturas foi a abóbada de berço nas residências térreas, e para a que possui mais um pavimento, foi utilizada a abóbada catalã, com reforço em concreto e ferro no primeiro pavimento e, no segundo, a abóbada de berço.

pag.104

programa inserido

Estudo volumétrico

HABITA 02 40,98 m² HABITA 01 32,00 m² HABITA 04 69,00 m² PÁTIO PÁTIO PÁTIO ESTAR ESTAR HIGIENE HIGIENE HIGIENE LAV. LAV. COMER COMER COMER CIRCULAÇÃO CIRCULAÇÃO DORMIR ESTUDAR DORMIR ESTUDAR DORMIR ESTUDAR DORMIR ESTUDAR DORMIR ESTUDAR DORMIR ESTUDAR EXTERNO
pag.106

habita 1 habita 1

O módulo Habita 01 possui 32,00m² (trinta e dois metros quadrados), tendo como programa espaços de dormir/estudar, comer, higiene e um pequeno pátio em sua entrada. Vale ressaltar que este módulo é totalmente adaptado para PNE’s e idosos.

Para o método construtivo, foi utilizada uma estrutura autoportante de tijolos maciços e como cobertura abóbada de berço, que também é autoportante. Para as aberturas, foi utilizado o espaço do tímpano do arco, o que proporcionou grande entrada de luz e ventilação.

pag.107
PLANTA CORTE BB CORTE AA

GARGOLA

ESQUADRIAS FIXAS E PIVOTANTES PERSONALIZADAS PÁTIO

ABÓBADA DE BERÇO

ESPAÇO RESERVADO PARA CAIXA D`ÁGUA

ISOMÉTRICA EXPLODIDA SEMESCALA

pag.109
pag.110

habita 2 habita 2

O módulo Habita 02, possui 40,98m² (quarenta metros quadrados e noventa e oito décimos quadrados), tendo como programa espações de dormir/estudar (dois quartos individuais), comer, higiene, área de estar e um pátio externo. Como o nome sugere, a residência é designada para duas pessoas.

Para o método construtivo, foi utilizada uma estrutura autoportante de tijolos maciços e como cobertura abóbada de berço, que também é autoportante. Já para as aberturas, foi utilizado o espaço do tímpano do arco, o que proporcionou grande entrada de luz e ventilação. Outro ponto importante em relação ao conforto térmico são as aberturas em cobogó, criadas com o próprio tijolo, e as esquadrias personalizadas, onde podem ser de correr, pivotante e fixa, ou as três ao mesmo tempo, garantindo ventilação, iluminação e circulação

pag.111
PLANTA CORTE BB CORTE AA

ABÓBADA DE BERÇO

ESQUADRIAS FIXAS E PIVOTANTES PERSONALIZADAS

ESPAÇO RESERVADO PARA CAIXA D`ÁGUA

ELEMENTO VAZADO FEITO COM TIJOLO PÁTIO

ISOMÉTRICA EXPLODIDA

pag.113
GARGOLA
SEMESCALA
pag.114

habita 4 habita 4

O módulo Habita 04 possui 69,00 m² (sessenta e nove metros quadrados), tendo como programa espaços de dormir/estudar (sendo dois quartos individuais e um compartilhado), comer, higiene, área de estar e pátio externo. Como o nome sugere, a residência é designada para quatro pessoas.

Para o método construtivo, foi utilizada uma estrutura autoportante de tijolos maciços. Como a habitação possui dois pavimentos, no primeiro pavimento o método de cobertura utilizado foi a abóbada catalã armada, com reforço em concreto e ferro, e para o segundo pavimento, a abóbada de berço. Um diferencial nessa habitação são as áreas de terraço no segundo pavimento.

Em relação ao conforto térmico, assim como as outras habitações, ela possui aberturas em cobogó, criadas com o próprio tijolo e as esquadrias personalizadas, onde podem ser de correr, pivotante e fixa, ou as três ao mesmo tempo, garantindo ventilação, iluminação e circulação.

pag.115
A A B B B A A
PLANTA PRIMEIRO PAVIMENTO PLANTA SEGUNDO PAVIMENTO CORTE BB CORTE AA

ABÓBADA DE BERÇO

GARGOLA

ESQUADRIAS FIXAS E PIVOTANTES PERSONALIZADAS

PATIO EXTERNO

COBERTURA EM ABÓBADA CATALÃ ARMADA

ESCADA SANTOS DUMONT DE TIJOLO MASIÇO

ELEMENTO VAZADO FEITO COM TIJOLO PÁTIO

ISOMÉTRICA EXPLODIDA

SEMESCALA

ESPAÇO RESERVADO PARA CAIXA D`ÁGUA

ELEMENTO VAZADO FEITO COM TIJOLO

pag.117

etapa dE OCUPAÇão

ESCOLHA E CONCEPÇÃO

Conforme mostrado no levantamento de dados, para a simulação da implantação, foram escolhidos três lotes na cidade de Sertãozinho, todos os lotes próximos ao IFSP (Instituto Federal de Educação, Ciência e tecnologia de São PauloSertãozinho).

Para a escolha dos lotes, foi levado em consideração o percurso que os estudantes teriam que fazer da Instituição de ensino para as habitações. O mesmo vale para os equipamentos de apoio inserido no programa, que foram distribuídos de acordo com a necessidade de proximidade.

O primeiro lote fica localizado no cruzamento das ruas Humberto Ortolan com a rua Cláuber Rocha; o segundo lote se encontra na rua Humberto Ortolan, fazendo cruzamento com as ruas Luis Saran e Elis Regina Carvalho Costa; o terceiro pavimento fica localizado na rua, José Minto, com a Augusto Coli e a Antonio Schiavinatto.

Para a implantação e distribuição, foram levadas em conta o posicionamento das habitações em relação ao sol, a conexão entre os estudantes e convívio do dia a dia, circulações públicas e privadas para os estudantes com facilidade de acesso para aos equipamentos instalados no lote. Além das circulações para os estudantes, também é levada em conta a relação do equipamento com a via pública.

Uma escolha que influenciou muito na distribuição do lote foi escolher terrenos de esquina, o que possibilitou encaixar todos os requisitos necessários em um único local, diante de que a legislação vigente na cidade permite que não seja feito uso de recuos, garantindo uma metragem quadrada maior para criação e implantação no local. Outra qualidade que o lote traz, é a possibilidade de circulação/entrada no lote por duas vias diferentes, facilitando a divisão de público e privado.

pag.118

planta de situação

pag.119
Rua Gláber Rocha Rua Luis Saran Rua Algusto Coli Rua Antônio Schiavinato Rua Jose Minto
Rua Humberto Ortolan Rua AméricoAmbrósio 01 IFSP 02 03
Rua Elis Regina Carvalho Costa

etapa dE OCUPAÇão

distribuição e organização

Para a distribuição e organização dos módulos de habitar, a etapa de ocupação seguiu os seguintes padrões:

1. Primeiro, a escolha de lote (diagrama 1);

2. Segundo, a distribuição dos recuos necessários para a repartição e organização, foi utilizado um grid de 8,00 x 8,00 metros, sempre fazendo a diminuição de oito metros para quatro metros e de quatro metros para dois metros (diagrama 2);

3. Terceiro, foi feito um estudo solar para definir qual seria a melhor localização e implantação dos módulos habitacionais (diagrama 3);

4. Quarto, escolha e inserção do equipamento compatível com o lote (diagrama 4);

5. Quinto, verificação e compatibilização das áreas de circulação definidas e distribuídas com ajuda do grid. Nessa etapa, também é feita a verificação de acessibilidade e dos níveis de ligação (diagrama 5);

6. Sexto, elevação do plano de apoio (equipamento), e escolha de quais serão os módulos habitacionais inseridos. A escolha dos módulos foi deixada para a sexta etapa, já que o grid, da assistência para definir as circulações e a localização inicial das habitações. Desta forma, a definição do gabarito e disposição das entradas dos módulos torna-se mais simples (diagrama 6); É importante ressaltar que mesmo seguindo o padrão estabelecido podem ocorrer alterações, pois os módulos habitacionais são um modelo fixo, e o lote deve se adaptar às residências. O lote pode ter diversas peculiaridades, desde a legislação da cidade até a topografia e estudos solares. A ideia do padrão é facilitar a simulação das possibilidades de implantação

pag.120

1 - LOTE.

4 – INSERÇÃO DO EQUIPAMENTO.

2- DISTRIBUIÇÃO DO GRID, DE 8X8 E MARCAÇÃO DOS RECUOS NECESSÁRIOS.

5 - DISTRIBUIÇÃO DAS CIRCULAÇÕES.

3 – INSERÇÃO DAS FORMAS DE HABITAR E ESTUDO SOLAR. n

6 – ELEVAÇÃO DO PLANO DE APOIO E ESCOLHA DOS MODELOS DE HABITAR.

s l o

IMPLANTAÇÃO

O.
ANTEPROJETO.
ANTEPROJETO
RUA

HUMBERTO ORTOLAN

equipamento

RUA
RUA ELIS REGINA CARVALHO COSTA
pag.124 CORTE AA
equipamento a a b b
PLANTA
elevação

ELEVAÇÃO

BB
CORTE

O FAZER . . .

Na etapa do fazer, é onde se iniciam os detalhamentos específicos da construção, descrições e funções que são importantes para a execução e o entendimento mais complexo da obra.

Nas plantas e cortes, é possível visualizar a paginação e a forma como o tijolo foi assentado, possibilitando que a construção seja completamente autoportante. Foi escolhido como exemplo para mostrar os detalhes a Habita 04, já que ela possui o maior número de especificidades, tendo em sua construção as amarrações com aparelhamento inglês, laje utilizando o método de abóbada catalã e, como cobertura, a abóbada de berço.

O tímpano dos arcos foi utilizado por completo, onde são colocadas esquadrias que ocupam todos o vão, garantindo a iluminação e ventilação que a casa precisa.

Nos croquis, encontramos descrições dos usos das aberturas e esquadrias, além de detalhes que incorporam questões estruturais, como os métodos utilizados na construção das abóbadas catalãs e as paginações escolhidas para os muros, paredes e guarda-corpos

pag.130
pag.131
croquis de detalhamento
pag.132
a a b b
planta primeiro pavimento
pag.133
a
planta segundo pavimento
a croquis de detalhamento
b b b
pag.134 corte aa
pag.135 corte bb croquis de detalhamento

croquis de detalhamento

pag.136
pag.137 croquis de detalhamento
pag.139

considerações finais considerações finais

Ao reabrir o debate sobre as formas de arquitetura utilizando como material principal o tijolo, observamos que ele não só carrega uma história rica, mas também as histórias dos imigrantes que passaram pelo nosso país. Esse material incorpora as técnicas desenvolvidas por diversas gerações, a arte e a plasticidade arquitetônica de uma forma que antes achávamos impossíveis, porém que foram realizadas com êxito. Tais constatações nos relembrar que o material e quem cria a obra fazem com que tudo seja o conteúdo.

Após refletir e pesquisar profundamente sobre o material e a técnica, vemos sua brilhante trajetória sobre toda América Latina, e como nossos irmãos latino-americanos foram capazes de tornar o material uma expressão não só de arte, mas também uma expressão política, que falava sobre o direito de habitação das minorias. No Brasil, por um determinado tempo, o material tem a mesma historicidade, mas perde força dando espaço para outros estilos arquitetônicos.

Já na região de Ribeirão Petro (SP), durante

o período dos anos 80, a exploração e criação moderna brutalista abre espaço para que novas residências e edifícios sejam construídas a partir dessa ideia. As casas e obras que utilizaram tal meio para suas construções ainda carregam o valor esquecido em cada tijolo amarrado, em suas construções, que suportam o peso do tempo e da omissão do seu valor.

Desse modo, torna-se relevante a necessidade de relembrar as características profundas dessas obras. O objeto escolhido representa e mostra o potencial que o tijolo tem como material e que suas possibilidades são muito mais significativas e uteis na atualidade. A residência estudantil, em seu ensaio (proposta) de construção, visa o trabalho em comunidade e a troca de ideias durante sua execução. Dentre as diversas técnicas utilizadas, duas permaneceram em destaque: a paginação inglesa e a abóbada catalã. Sendo o mais importante a permanecia do tijolo à vista, o que valoriza não só o material, mas também a técnica e o trabalho do obreiro, deixando visível para que todos admirem a arte do saber fazer.

pag.146

Dessa forma, o trabalho evoca tais obras, revivendo o fazer, o construir e o saber fazer, onde o que constrói e o que cria, juntos, geram um desenho tão delicado quanto uma partitura, e unidos, constroem uma orquestra sinfônica, onde cada um tem um papel de destaque, revelando o árduo e extraordinário trabalho a qualquer observador, indiferente de seu conhecimento arquitetônico.

pag.147

bibliografia a. bibliografia

BALDIN, Adriana de Freitas Ecosta. A presença alemã na construção da cidade de São Paulo entre 1820 e 1860. Tese ( Doutorado ) – Área de construção: História e fundamentos da Arquitetura e Urbanismo – FAUUUSP. São Paulo, p.1-263, 2012. Disponível em: https://teses.usp. br/teses/disponiveis/16/16133/tde-26062012120300/pt-br.php. Acesso em: 18 set. 2023.

BALDIN, Adriane De Freitas Acosta. Tijolo a Tijolo - os imigrantes pioneiros no uso do tijolo na cidade de São Paulo em 1850. Artigo parte da tese de pós-doutoramento da autora, que está sendo desenvolvida na FAUUSP com financiamento da FAPESP. Santos, p.1-14, 2014. Disponível em: https://www.encontro2014.sp.anpuh.org/ resources/anais/29/1402945954_ARQUIVO_ anpuh2014,textointegral.pdf. Acesso em: 18 set. 2023.

BRANCANTE, E.F. O Brasil e a cerâmica antiga. São Paulo, p.741, 1981.

CAMERIN, Suelen. O tijolo em Solano Benítez Dissertação (Mestrado) - Universidade Federal do Rio Grande do Sul, Faculdade de Arquitetura, Programa de Pós-Graduação em Arquitetura. Porto Alegre, p.1-265, 2016. Disponível em: https://lume.ufrgs.br/

bitstream/handle/10183/143159/000995872. pdf?sequence=1&isAllowed=y. Acesso em: 05 out. 2023.

CAMPBELL, James W. P. e PRYCE, Will. História Universal do Tijolo. Portugal, p. 305, Caleidoscópio, 2005.

D’ALAMBERT, Clara Correia. O Tijolo nas Construções Paulistanas do Século XIX Dissertação de mestrado - Faculdade de Arquitetura e Urbanismo da Universidade de São Paulo, São Paulo, p.120, 1993. Disponível em: https://www. teses.usp.br/teses/disponiveis/16/16131/tde05102022-085707/pt-br.php . Acesso em: 15 ago. 2023.

DUALIBI, Jackson Antoni da Silva. Arquiteto Joan Villà: a construção da cerâmica armada. Dissertação (Mestrado) - Universidade Presbiteriana Mackenzie. São Paulo, p.1-183, 2013. Disponível em: https://adelpha-api. mackenzie.br/server/api/core/bitstreams/ bb383c60-6916-4107-9a47-2ee58651995a/ content. Acesso em: 20 ago. 2023.

FERRO, Sérgio. Arquitetura e trabalho livre: Coleção Face Norte. 1.ed. São Paulo, p. 456, Cosac & Naify, 2016.

pag.149

FLORENZANO, Luciana da Silva; ALMEIDA, Renata Hermanny; ANGÉLICA, Rômulo Simões . Arquitetura, matéria e historiografia: Interfaces entre investigação Tecnológica e Pesquisa Histórica, a Partir de tijolos cerâmicos em Santa Leopoldina [ES]. Pós, Revista. Programa Pós-Grad. Arquit. Urban. FAUUSP, São Paulo, v.24, n.44, p. 148-163, set-dez. 2017. Disponível em: https:// www.revistas.usp.br/posfau/issue/view/9802. Acesso em: 28 ago. 2023.

IPHAN/Programa Monumenta. Recife - Igreja de São Pedro dos Clérigos. Iphan/Programa Monumenta/ Banco Interamericano de Desenvolvimento (BID) –Recife. Ed.2010, p.1-16, 2010. Disponível em < http://portal.iphan.gov.br/publicacoes/ lista?categoria=&busca=&pagina=14> Acesso em set. 2023.

LOPES, Eduardo Verri. Aproximação sobre arquitetura Paraguai contemporânea Dissertação ( mestrado ) Programa de PósGraduação em Arquitetura e Urbanismo –UEM. Maringá – PR, p.1-155, 2016. Disponível em: http://repositorio.uem.br:8080/jspui/ handle/1/3375. Acesso em: 05 out. 2023.

MELLO, José Antonio Gonsalves de. Tempo dos Flamengos. Influência da Ocupação Holandesa na Vida e na Cultura do Norte do Brasil. Recife –Pernambuco: Editora Massangana, 2001.

NEVES, A. L.; MENDONÇA Júnior, J. L. Os edifícios religiosos e a estrutura urbana dos bairros de Santo Antônio e São José – 1654 -1800. Revista Eletrônica da Faculdade de Ciências Humanas ESUDA[s.l], v. 1, n. 1, p. 1-13, 2007. Disponível em: https://revistas.esuda.edu.br/index.php/ humanae/article/view/61. Acesso em: 18 set. 2023.

ROCHA, Isabel. Tijolo por tijolo: construindo alvenarias no Vale do Paraíba fluminense –1820/1890. Tese (Doutorado) UFRJ/FAU/PROARQ. Programa de Pós-graduação em Arquitetura, Rio de Janeiro, p.310, 2012. Disponível em: http:// objdig.ufrj.br/21/teses/787288.pdf. Acesso em: 15 ago. 2023.

SANTOS, Pérsio de Souza. Ciência e Tecnologia de Argila. 2. Ed. São Paulo, p. 708, 1989.

pag.150
pag.151

Turn static files into dynamic content formats.

Create a flipbook
Issuu converts static files into: digital portfolios, online yearbooks, online catalogs, digital photo albums and more. Sign up and create your flipbook.