A casa contemporânea em Brasília: João Filgueiras Lima e Atelier Paralelo - Natália Valladão

Page 1

Universidade de Brasília

Faculdade de Arquitetura e Urbanismo

A casa contemporânea em Brasília: João Filgueiras Lima e Atelier Paralelo

1
Aluna Natália Ferreira Valladão Orientação Profª. Dra. Elane Ribeiro Peixoto

Resumo

O presente artigo discute a produção arquitetônica moderna e contemporânea da cidade de Brasília. Desvia-se da arquitetura icônica dos edifícios públicos, símbolos da cidade, e focaliza na arquitetura residencial unifamiliar, em particular, nas casas construídas nas duas últimas décadas do século XXI para relacioná-las às casas do início da cidade. O recorte centrado nesta tipologia arquitetônica se justifica, pois permite a inclusão de diferentes gerações de arquitetos. As residências são estudadas a partir da perspectiva morfológica, cujas bases teóricas são dadas pelos autores Roger Clark, Michael Pause (1997) e Kenneth Frampton (2015). Serão apresentados os estudos de duas residências, cada uma representante de uma geração de arquitetos de Brasília, a moderna e a contemporânea.

PALAVRAS-CHAVE: Casas Unifamiliares, Brasília, Arquitetura Moderna; Arquitetura Contemporânea, Análise Morfológica.

Introdução

O presente artigo estuda a arquitetura residencial contemporânea em Brasília. Para isso, foram selecionados ateliês de arquitetura de jovens profissionais premiados e destacados em periódicos especializados. O horizonte temporal definido para a pesquisa foram as primeiras duas décadas dos anos 2000. O problema de pesquisa visa respostas para a indagação acerca dos vínculos possíveis entre uma produção arquitetônica contemporânea com aquela do início da cidade que, hoje, é parte da história não só de Brasília, mas da arquitetura brasileira.

Antes apresentar o estudo, é necessário esclarecer que ele foi desenvolvido pelas estudantes da Faculdade de Arquitetura e Urbanismo da Universidade de Brasília: Carolina Lira Araújo, Letícia Maria de Freitas Oliveira, Lorrany Arcanjo, Luiza Alencar Pascoal e a autora deste artigo, Natalia Ferreira Valladão. A doutoranda da mesma instituição Anna Luisa Portela de Deus Albano e a Professora Elane Ribeiro Peixoto lideraram o encaminhamento do estudo. O grupo se reuniu semanalmente durante a vigência da Iniciação Científica tendo como pauta discussões teóricas sobre a métodos de leitura de projeto arquitetônico e apresentação do desenvolvimento de cada trabalho individual, quando se produziu coletivamente um método próprio para os estudos morfológicos de arquitetura. A equipe selecionou oito ateliês de jovens profissionais, cabendo a cada estudante estudos específicos. O presente trabalho aborda as residências Casa dos Arcos, de João Filgueiras Lima (1978), e a Casa Cocuruto, do Ateliêr Paralelo (2007)

Metodologia

Para realizar as análises de interesse desta pesquisa foram desenvolvidos procedimentos metodológicos próprios a partir da leitura de diversos autores. As reflexões de Herman Hertzberger (1999), Kenneth Frampton (2015), Roger Clark e Michael Pause (2005), autores dedicados à análise da arquitetura, foram essenciais e conduziram ao método, aplicado. A partir da revisão bibliográfica desses autores, elencou-se categorias de investigação que, sintetizadas em mapas, expressam os atributos espaciais das obras. Vale salientar que antes de proceder as análises das obras, foi necessário redesenhá-las para as compreender minuciosamente.

Aberturas Hierarquia dos Espaços Articulação do Programa Relações de Permanência

Estrutura/ Membrana Proporção e Ritmo Soma Conotacional Estratificação

Simplificação

Fluxos

Tab. 1– Parâmetros gráficos para as análises morfológicas das residências contemporâneas de BSB. Fonte: desenvolvido pelas autoras.

O primeiro mapa foi dedicado a compreender a articulação do programa de necessidades das residências, servindo como base para todas as outras análises. Além de ser fundamental para a leitura do projeto, ele permite refletir a respeito das casas contemporâneas brasilienses, das famílias de nicho social privilegiado que as ocupam e suas formas de habitar. Em seguida, o mapa de hierarquia dos espaços se baseia fortemente na leitura de Hertzberger (1999) ao utilizar sua classificação de espaços “públicos” ou “privados” de qualquer tipologia arquitetônica.

2

Mesmo que à primeira vista pareça uma definição contraditória quando se trata de residências unifamiliares, os diferentes níveis de “privacidade” demarcados por gradações cromáticas permitem compreender as relações dos espaços de uma casa entre si e entre eles e o ambiente externo. Na sequência, as análises prosseguem para identificar o tempo de permanência nos ambientes, classificando-os como de uso prolongado, moderado e de passagem.

A relação entre meta e rota - proposta por Frampton (2015) - e que envolve também o conceito de passeio arquitetônico (a promenade architecturale, pensada por Le Corbusier), orienta a análise de fluxos, demarcados com diferenças cromáticas e setas. Próximo ao que foi pensado por Clark e Pause (1997), a análise de aberturas busca identificar entradas de iluminação e ventilação naturais, além de identificar a forma com que a arquitetura se conecta ao lugar. O diagrama de simplificação formal busca um retorno à geometria base que pode ter originado a arquitetura estudada. A demarcação estrutural, incluída como tópico essencial para uma análise arquitetônica por Clark e Pause (1997) e Frampton (2015), investiga a opção estrutural escolhida pelo arquiteto para verificar como ela se relaciona com a espaço e a forma – no entendimento amplo da tectônica da obra.

João Filgueiras Lima

Apresentação

do Arquiteto

João Filgueiras Lima nasceu em 1932 no Rio de Janeiro e faleceu em 2014 em Salvador. Sua trajetória foi marcada por obras que se tornaram grande referência da arquitetura moderna brasileira, especialmente em Brasília, a nova capital. Seus projetos, além de proporem novas tecnologias, se destacam por experimentações e atenção aos detalhes. Caracterizadas por diferentes materialidades e cuidados com o conforto ambiental, das obras de Lelé se destacam: Memorial Darcy Ribeiro – Beijódromo (Brasília DF) e a rede de hospitais Sarah Kubitschek

Casa dos Arcos

Ficha Técnica

Arquiteto: João Filgueiras Lima

Área construída: 4000 m²

Ano: 1978

Endereço: SMPW, Quadra 10, Park Way

A residência Nivaldo Borges ou Casa dos arcos, projetada por João Filgueiras Lima, localiza-se no bairro Park Way de Brasília (DF). Concluída em 1978, é propriedade de uma família, cujo pai e filhos trabalharam na sua construção. Essa residência é um exemplar incluído nos livros sobre história da arquitetura moderna, pode-se dizer que ela é um clássico da arquitetura residencial da cidade. Na ocasião do estudo, foi possível visitá-la na companhia de um dos seus proprietários.

A arquitetura de Lelé é reconhecida pelos detalhes: cada cômodo, móvel ou ponto de instalação foi pensado. Seguindo o itinerário da visita, a análise que se apresenta desenvolve-se em torno dos detalhes apresentados em imagens e desenhos. O Parkway é uma área de Brasília, cujo parcelamento é constituído por grandes terrenos, com o tempo, esses lotes foram desmembrados e configuraram pequenos condomínios. Apesar disso, a Casa Nivaldo Borges manteve a totalidade de sua gleba, na qual se entra por um acesso público. Está implantada no ponto mais alto do terreno em um platô que pode ser acessado pelo estacionamento posterior da casa ou por uma escada lateral.

3
Fig. 1 – Croqui Beijódromo. Autor: Lelé Fig. 2 – Croqui Sarah Kubitschek. Autor: Lelé Fig. 3 – Croqui Sarah Salvador. Autor: Lelé Fig. 4 - Casa dos Arcos; Autor: Joana França

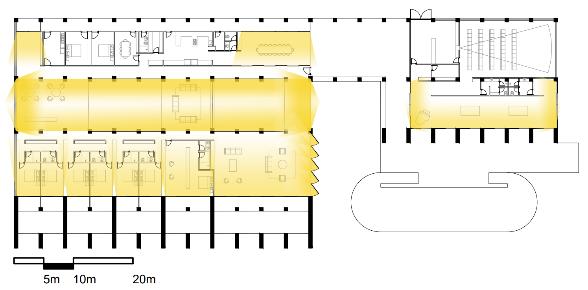
É térrea e seu programa de necessidades se distribui em três blocos, todos com acesso pelo estacionamento, sendo esses: o bloco de lazer, o do abrigo e a residência. O “abrigo” é o espaço de entrada da casa pela cobertura de abóbodas em tijolos aparentes. No bloco do “lazer”, os ambientes destinam-se à recreação. A “residência” é o maior bloco da casa, onde se instala o programa usual de uma moradia com as particularidades da numerosa família Borges.

BLOCO PROGRAMA

Bloco Abrigo Abrigo

Bloco Lazer Oficina, Cabine de projeções, Adega, Copa, Sala de projeções, Vestiário, Jogos, Piscina

Bloco Residência Hall, Jantar, Lavabo, Depósito, Cozinha, Despensa, Wc empregados, Quartos empregados, Lavanderia, Costura, Estudos, Banheiros compartilhados, Quartos filhos, Dormitório casal, Vestiário casal, Estar, Estar íntimo, Varandas íntimas

Nota-se de início a importância da estrutura na concepção do projeto, uma malha principal de 2x22 m ordena a locação dos pilares e a distribuição dos espaços. Os pilares são base para as abóbodas de berço, caracterizadas pela sua volumetria definida por arco pleno. As linhas da malha representam o ritmo da estrutura, e os eixos longitudinais delimitam os espaços que variam na forma

Partindo de um prisma retangular, a casa se organiza longitudinalmente em 4 partes que definem a diferenciação de altura dos volumes. As linhas 2 e 3 delimitam o volume mais alto da edificação (8 m), sendo a 1 e 2, 3 e 4 os limites dos outros volumes mais baixos e de mesma altura. O volume alto é coberto por uma cobertura translúcida que permite a incidência de luz no

da residência.

4
Figura 5 - Situação; Autor: João F. Lima Figura 6 - Conceitos; Elaborado pela autora Figura 7 – Implantação; Elaborado pela autora Figura 8 - Cortes; Elaborado pela autora Figura 9 - Estrutura; Elaborado pela autora. Figura 10 – Proporção e Ritmo; Elaborado pela autora centro

A estrutura é a chave para a compreensão da casa. Ela foi pensada em convergência com o material utilizado e determina a dimensão e fechamento dos espaços. O sistema estrutural é composto por vigas em concreto armado e pilares dispostos segundo a malha acima mencionada. Essas vigas de concreto que ancoram os arcos. Os vazios criados na concepção organizam as disposições dos blocos a partir dos 3 conceitos citados (residência, abrigo e lazer)

Detalhes – Estrutura

Percebe-se com os croquis detalhes que podem passar despercebidos apenas com as informações da planta. As vigas de concreto armado apoiam as abóbodas. Alguns dos pilares possuem tamanhos variados, devido à variação de altura da cobertura.

A cobertura, originalmente, era um jardim. Atualmente, ele foi substituído por um telhado, sem, contudo, causar prejuízos à volumetria. À época da construção da residência, as técnicas de impermeabilização ainda eram precárias, o que comprometeu a sobrevivência do jardim.

Detalhes - Jardim

O desenho do arquiteto é uma boa exemplificação de como funcionava esse jardim em conjunto com a estrutura da abóboda e das vigas de concreto armado. A imagem representa a casa antes da retirada do jardim suspenso

O primeiro contato que se tem com a casa é com sua materialidade: o tijolo, o concreto e a madeira. O tijolo é predominante, define o volume da casa, o concreto está presente nas vigas e na grelha de cobertura e a madeira nos brises em treliça que foram removidos. O vidro se destaca como vedação, fechando os vãos entre os arcos e permitindo a entrada de luz natural.

Detalhes - Vedação

O croqui representa a ideia inicial de Lelé para as vedações: “gabarito metálico móvel” com um desenho de linhas radiais. O esquema seguinte ilustra como a vedação foi feita em todos os fechamentos de ambientes, adaptadas às diferentes alturas e tamanhos de arcos.

5
Figura 11 - Estratificação; Elaborado pela autora. Figura 12 - croqui; Autor: Lelé Figura 13 - croqui; Autor: Lelé Figura 14 - maquete; Autor: Lelé Fig 15 –Materialidade; Elaborado pela autora Fig 16 – Brises e vedação; Autor: Joana França Fig.17 – Concreto e tijolos; Fotografado pela autora. Figura 18 - Vedações; Autor: Lelé / Figura 19 - vedações; Elaborado pela autora

Quase todos os ambientes são iluminados pelo sol, com exceção dos que necessitavam preferencialmente de luz artificial. A diferença de altura dos blocos da casa permite jogos variados de luz e sombra no seu interior durante o dia, a luminosidade é reforçada pela grelha do volume central, que suporta um conjunto domus que podem ser removidos para que o céu e a chuva entrem na casa.

O programa da Casa dos Arcos parece usual, mas se diferencia na área de lazer, que comporta piscina, bloco recreativo e uma sauna no subsolo. A escada com diferentes tamanhos de degrau conduz à piscina, que tem escada e rampa de acessos.

Detalhes – Piscina

As imagens representam os acessos para a piscina, sendo por uma escada e por uma rampa suave, que amplia e se torna a diferença de nível da piscina como um todo. Estes acessos se encontram juntos em um dos lados da forma oval

O bloco coberto da área de lazer abriga uma área de convívio grande e dois sanitários. Neste mesmo bloco surpreende, sobretudo, o cinema (pedido do proprietário) com sua cabine de projeção. Para esses espaços que demandam iluminação artificial, Lelé detalhou luminárias embutidas nas abóbodas. Durante a visita, pôde-se constatar alguns destes detalhes de instalações, adaptados devido ao método construtivo da casa: as instalações de energia e comunicação encontram-se escondidas nos rodapés de madeira em todos os ambientes.

Detalhes – Iluminação e instalações

As imagens exemplificam respectivamente: a instalação das luminárias projetadas pelo Lelé e as instalações presente nos rodapés. A figura 28 esquematiza os tijolos, que se apoiam em uma pequena viga de concreto com formato em “i” De um lado da viga passam as instalações elétricas e do outro passam as instalações de comunicação.

O bloco residencial possui espaços amplos e desimpedidos, por possuir poucas paredes, porém, quando o projeto ainda era utilizado como residência, eram mais delimitados. Elementos como o jardim e o espelho d’água também funcionavam como separadores dos ambientes, assim como o mobiliário projetado por Lelé.

6
Fig 20 – Luz Natural; Elaborado pela autora/ Fig 21 – Casa dos Arcos; Autor: Joana França/ Fig 22 - Casa dos Arcos; Autor: Joana França Figura 23 – Articulação do programa; Autor: Lelé Figura 24 e 25 Piscina; Fotografado pela autora Fig. 26 e 27 - instalações; Fotografado pela autora. Fig 28 - croqui; Elaborado pela autora.

As esquadrias de correr com vidros e os biombos treliçados de madeira também funcionam como separadores dos espaços. Todos os elementos de fechamento não chegam ao topo da cobertura, permitindo a apreciação das abóbodas em todos os ambientes. A circulação da casa é ampla, concentrando-se principalmente no eixo longitudinal. Outro detalhe especial são as portas de madeira, todas pivotantes, chegando algumas a pesar mais de 100kg. Mesmo vedado pela porta, a circulação dos espaços pode ser livre, principalmente em decorrência dos detalhes de pivô que permitem a movimentação delas sem esforço

Detalhes – portas As portas de madeira maciça, devido ao pivô detalhado pelo arquiteto, não pesam nada na movimentação

Apesar do tamanho desta casa, pode-se notar no decorrer da análise a sua simplicidade decorrente da compatibilidade entre espaços, sistema estrutural, materiais e soluções criativas de desenho para os detalhes. A configuração da família de Nivaldo Borges demonstrou a necessidade de 7 quartos principais de tamanhos usuais. Nos quartos dos filhos, os banheiros são compartilhados, no quarto do casal, o espaço amplo permite a instalação de um closet.

Detalhes – Ambientes

Detalhes existentes nos ambientes, desde armários no espelho dos banheiros, até a marcenaria do closet. As luminárias dos ambientes íntimos também foram desenhadas pelo arquiteto.

O último destino da visita realizada foi a área de serviços, presente também no bloco residencial, junto à cozinha e à sala de jantar, estando voltada para o estacionamento. Abriga os quartos de serviço, sanitários, depósitos e a cozinha. Ao sair do bloco, é possível ver o muro de cobogós que delimita este espaço. Entendendo a separação de ambientes da casa, pode-se idealizar como o convívio era quando ainda funcionava como moradia. Acredita-se que os ambientes de maior permanência seriam os públicos e recreativos, porém, na rotina ela deveria se concentrar no bloco residencial, principalmente nos ambientes coletivos (sala de estar e jantar) e, posteriormente, nas salas centrais, para momentos mais íntimos em família.

7
Figura 29 - croqui; Autor: Lelé Fig. 30, 31 e 32 – Casa dos Arcos; Autor: Joana França Fig. 33 – João F. Lima – Lélé (livro) Figura 35 e 36 - portas; Fotografado pela autora. Figura 34 - Fluxos; Elaborado pela autora. Fig 37 - Mobiliário; Fotografado pela autora.

Ao final da visita, foi possível compreender o projeto como um todo, resumindo em 3 partes principais: A base (1), composta pela estrutura e os eixos traçados na concepção do projeto. Os fechamentos (2), representados pelas paredes de tijolos (brancas), esquadrias e mobiliário (cinza). Os arcos (3) de estrutura abobadada que carregam a identidade principal da casa e criam um dinamismo com sua variação de alturas.

Atelier Paralelo Apresentação do escritório

O Atelier Paralelo é um escritório de arquitetura brasiliense fundado em 2009 por Thiago de Andrade. A organização do escritório é horizontal, todos podem participar da concepção dos projetos, porém, existe um foco da equipe de projetistas que não pensa o projeto de arquitetura dissociado da paisagem. A paisagem, conforme Thiago de Andrade, deve ser vista como um todo, tanto a parte a ser construída como o terreno e sua vegetação Os espaços criados procuram gerar experiências significativas por parte dos usuários. Caracterizados por experimentações, os projetos do Atelier Paralelo se inserem no nicho de residências, mas também abarcam diferentes tipologias, como capelas e comércios. O grupo participa de concursos de arquitetura, com resultados importantes. A casa Cocuruto, aqui apresentada, é exemplo da postura experimental de Andrade.

Casa Cocuruto

Ficha Técnica

Arquiteto: Thiago de Andrade Co-autor: Luis Otávio

Responsável Técnico: Thiago A. e Luis O. Chaves

Área construída: 180 m²; Terreno: 3000 m²

Ano: 2002-2004 (projeto); Conclusão da obra: 2007

Endereço: Jardim Botânico

8
Figura 38 – Hierarquia dos espaços Elaborado pela autora. Figura 39 - Permanência; Elaborado pela autora. Figura 40 - Isométrica; Elaborado pela autora. Figura 41, 42 e 43 - Capela São Francisco de Assis, Mini Shopping Guará, Residência D&P – Atelier Paralelo Figura 44 - Casa Cocuruto; Autor: Joana França

A casa Cocuruto, residência projetada pelo Atelier Paralelo, localizada em Brasília (DF) foi concluída em 2007, foi premiada com o 1º Lugar Geral, no prêmio Nauro Esteves, no concurso Nova Arquitetura de Brasília em 2007 e exposto na 8ª Bienal de Arquitetura de São Paulo (2009) e no Brazilian Design Perspectives em Singapura, (2008). A análise se organiza por palavras-chave que resumem o conceito da casa desde sua concepção até sua construção e vivência.

Um dos principais focos do projeto é a relação com a natureza apesar de estar localizada em um bairro majoritariamente residencial caracterizado por lotes fechados e casas grandes, um condomínio Ela é um abrigo e uma sombra para seus habitantes e este vínculo se apresenta já na sua implantação e nos seus espaços. O ponto a orientar seu partido foi a intenção de causar o menor impacto possível no terreno. Com o deck de madeira suspenso e as aberturas em vidro para o exterior, a casa se insere no contexto vegetativo e torna-se apenas mais uma parte do todo que é o terreno.

Thiago de Andrade esclarece que para ele a paisagem não é uma questão de enquadramento da arquitetura. Busca referencias nas questões da tectônica, envolvendo topografia, vegetação, opções construtivas e espaciais – articulados de forma a responder aos desejos de para quem ele projeta.

A planta da Cocuruto tem a forma de um “L” que abraça o entorno para transformar a natureza em um espaço da casa, em qualquer ambiente pode-se ter contato com a vegetação. O programa de necessidades não é usual, porque os espaços não são estanques e definidos funcionalmente, a não ser banheiro e a cozinha. Nos vãos livres, há lugar para biblioteca, lugar para dormir, armar redes e descansar.

Tudo é uma coisa só, o terreno, as árvores, os ambientes, a casa de tijolos, tudo está interligado. As funções são sobrepostas e os ambientes admitem qualquer tipo de uso. Esta escolha de projeto transforma não apenas a forma de se relacionar com a natureza, como também a convivência e a dinâmica de quem reside no local. Compartilhamento resume os vínculos a serem criados no espaço, que apesar de permitir a individualidade e a privacidade por sua disposição no lote, preza pelo convívio por meio da arquitetura.

9
Figura 45 - Implantação; Elaborado pela autora. Figura 46 - Isométrica Implantação; Elaborado pela autora. Figura 47 – Articulação do Programa; Elaborado pela autora. Fig. 48 – Cortes; Autor: Elaborado pela autora.

Quando a família se reúne todos dormem em colchões espalhados pelo chão da casa, discutindo sobre quem vai dormir no mezanino mais distante do banheiro. A palavra “privado” admite um novo significado na casa, se restringindo ao banheiro e como é compartilhado, não há exclusividade. Os espaços semiprivados são os ambientes comuns que podem ser utilizados individualmente e não são exclusivos. O “público” qualifica os espaços descobertos e de livre circulação, como o deck Além da hierarquia dos espaços que segue uma lógica diferente do usual, vale comentar a relação dos espaços de serviços e servidos. Todos os espaços são servidos e, consequentemente, não existem espaços inteiramente de serviço.

A estrutura híbrida da casa não se reflete apenas no uso dos ambientes, mas nos fluxos e nas permanências. Não existe um fluxo definido, principalmente em decorrência das grandes aberturas para o deck e integração de espaços internos da casa. Pode-se dizer, entretanto, que o mezanino permite um fluxo mais privado, apenas para quem quiser subir a escada que lhe dá acesso. O tempo de maior permanência dos ambientes realiza-se no pavimento térreo e nos espaços de maior caráter público e uso cotidiano. A cozinha é o coração da casa, nela encontram-se o forno a lenha, o forno de pizza e a mesa de madeira com bancos artesanais pintados à mão.

Uma outra palavra que resume o projeto seria experimentação. Além da implantação e espacialidade, a residência se destaca pela sua materialidade, proporção e volumetria. A estrutura principal é definida por uma malha cúbica de 9 módulos, juntos formam um cubo maior. Deste, subtrai-se um cubo menor sobrando dois módulos de 4,4 x 4,4m, que geram ritmo para o espaço.

A proporção é uma característica muito presente nos projetos do Atelier, apesar de se aventurar nas formas orgânicas, observa-se a opção por modular o espaço com grelhas ortogonais Na Casa Cocuruto, a madeira ergue as paredes de tijolos, permitindo diferentes relações plásticas. Assim como as paredes, os tijolos moldam a cobertura em abóboda de berço e pé direito duplo. A volumetria é ortogonal, a cobertura em abóboda exerce um contraste à planta quadrada.

10
Figura 49 – Hierarquia dos espaços; Elaborado pela autora. Figura 50 – Serviços e Servidos; Elaborado pela autora. Figura 51 – Fluxos; Elaborado pela autora. Figura 52 – Permanência; Elaborado pela autora. Figura 53 – Simplificação do Conceito; Elaborado pela autora.

Tanto a casa como a abóboda foram construídas com tijolos de 21 furos. As abóbodas cobrem toda a extensão da casa, se tornando um elemento protagonista tanto no exterior como no interior da residência. São inclusive o motivo do nome “Cocuruto”, pois diferente de um telhado convencional, não possui cumeeira, apenas a abóboda, como o cocuruto de uma cabeça.

A abóboda de berço define-se por um arco pleno e tem a configuração de meio cilindro. Foi um grande foco de atenção no projeto e na construção, sendo produzida manualmente, com a supervisão e auxílio do arquiteto Thiago de Andrade, que descreve a confecção da abóboda com uma frase engraçada proferida pelo vizinho da residência: “Esta casa muda de cor o tempo inteiro!”. As diferentes cores da casa variavam com as fases da construção da abóboda. Inicialmente, a fôrma de madeirite rosa que serviria de base para o formato da abóboda foi a primeira cor da cobertura. Com as intempéries o madeirite ficou dourado – segunda cor da cobertura. Posteriormente, os tijolos de 21 furos empilhados um a um, seguidos das ferragens que garantiriam o reforço na estrutura foram responsáveis pela terceira cor da cobertura.

Como técnica para combater a fissuração da argamassa, utiliza-se usualmente tela de galinheiro, esse material poder oxidar com o tempo, o arquiteto e o mestre de obras optaram por utilizar sacos de laranja de plástico na cor amarela costurados nas ferragens, um material elástico e resistente, outra cor da cobertura. Por último, aplicou-se a argamassa de cimento sobre os tijolos, após alguns anos foi coberta por uma manta impermeabilizada que vai completar 20 anos sem nenhuma manutenção ou problema.

A abóboda do projeto é um arco pleno, próximo de uma curva catenária, uma equação que garante apenas o esforço de compressão, ideal para um arco. Nos pontos onde haveria maior esforço de flexão, aumentou-se as ferragens da argamassa. Além da cobertura, a estrutura da casa funciona inicialmente como um sistema padrão de pilares e vigas de madeira, tensionados com tirantes metálicos que combatem os empuxos da abóboda.

11
Figura 54 e 55 - Residência água quente e Residência C&A – Atelier Paralelo Fig. 56 – Materialidade; Elaborado pela autora / Fig. 57 – tijolo 21 furos; Elaborado pela autora. Figura 58 – Detalhe construção cobertura; Elaborado pela autora. Figura 59 - Estratificação; Elaborado pela autora.

O arquiteto observa que uma das curiosidades da casa é a ausência de janelas. Um detalhe no assentamento dos tijolos permite a ventilação natural em todo o perímetro da residência. O vidro, fechamento da área voltada para o deck de madeira, além de permitir a iluminação natural no interior, reforça o contato com o entorno. Ao circundar a casa pelo nível do solo, nota-se a relação do terreno com o deck suspenso, além de exemplificar outros detalhes construtivos. Existe um assentamento tijolos acima da plataforma de sustentação da casa, que permite a ventilação do piso e evita a infiltração de umidade.

Conclusão

A análise das duas residências permite pensar sobre os elos que as conectam. São duas gerações de arquitetos; Lelé, quando projetou a residência Nivaldo Borges era um arquiteto experiente que havia vivido o grande canteiro de obras da capital federal; Thiago Andrade, como todo estudante da FAUUnB, conhecia o trabalho de Filgueiras Lima e ambos tinham interesse pelas pesquisas de Eládio Dietes. As duas casas lançam mão dos mesmos materiais, ambas se integram com a paisagem e se articulam com ela. Apesar da diferença de escala, elas compartilham lógicas, como a modulação, os espaços flexíveis e o cuidado com os detalhes. Com a oportunidade de visitar as obras, a equipe pôde ter contato direto com a poética que as fundamentou e cada detalhe da confecção, que colocam em jogo desejos e histórias de famílias. Pode-se contar com os esclarecimentos e vivências de quem projetou uma das casas e de quem viveu na outra: “o tempo que transforma o espaço insubstancial em espaço pessoal e, finalmente, em casa” (PALLASMAA, 2016, pag. 7).

Acredita-se que são estas convivências que fazem uma casa se tornar um lar, em cada projeto houve um cuidado para que o espaço fosse a um palco de histórias. Entende-se a casa como uma espécie de refúgio, privado e íntimo, mas também compartilhado e vivo: “A casa parece ser uma extensão e um refúgio da nossa constituição e do nosso corpo.” (PALLASMAA, 2016, pag. 7). Os projetos são e continuarão sendo locais de histórias de duas famílias, contadas pelas paredes de tijolos de 21 furos e pela cobertura de abóbodas que fazem parte do todo que são a Casa Cocuruto e a Casa dos Arcos.

REFERÊNCIAS

• COSTA, Ana Elisa; COTRIN, Márcio; GONSALES, Célia. Casa contemporânea Brasileira. Rio Grande do Sul, Editora: Nhamerica Press LLC, 2019.

• HERTZBERGER, Heman. Lições de Arquitetura. Tradução de Carlos Eduardo Lima Machado. São Paulo:Martins , 2006.

• FRAMPTON, Kenneth. A genealogy of modern architecture: comparative critical analysis of built form. Zurique: Lars Müller, 2015.

• HILLIER, B.; HANSON, J. The social logic of space Cambridge: Cambridge University Press, 200

• LINA Bo e P.M. Bardi, Instituto João Filgueiras Lima Lelé. São Paulo: Editora Blau, 2000

• PALLASMAA, Juhani. Habitar. Espanha: Editorial Gustavo Gili, 2016. E-book. Disponível em: CLARK,

• RIBCZYNSKI, Witold. Casa, pequena história de uma ideia. Tradução de Betina Vonstaa. Rio de Janeiro: Record, 1996.

• Roger; PAUSE, Michael. Arquitectura: temas de composición. Barcelona: Gustavo Gili, 1997.

12
Figura 60 - Estrutura; Elaborado pela autora. Figura 61 – Luz natural; Elaborado pela autora. Figura 62 – detalhe assentamento; Elaborado pela autora / Figura 63 – detalhe assentamento; Elaborado pela autora.

Turn static files into dynamic content formats.

Create a flipbook
Issuu converts static files into: digital portfolios, online yearbooks, online catalogs, digital photo albums and more. Sign up and create your flipbook.
A casa contemporânea em Brasília: João Filgueiras Lima e Atelier Paralelo - Natália Valladão by Natália Valladão - Issuu