PORTAFOLIO
DIBUJANTE DE REVIT Y AUTOCAD
ARQ. NATALIA CÁRDENAS

![]()

Lic. en arquitectura formada en la Facultad de Arquitectura y Diseño de la Universidad Autonoma de Guadalajara. Enfocada en diseño arquitectónico residencial, interiorismo y sustentabilidad.
MS Office
Modelado 3D y Renderizado
Postproducción gráfica
Maquetería arquitectónica
Dibujo mano alzada y perspectiva con acuarela I N
Diseño arquitectónico
Proyecto ejecutivo
Interiorismo y paisajismo
Representación de 3D y Renderizado
Sustentabilidad y sostenibilidad
A P T I T U D E S
Trabajo en equipo
Actitud y Compromiso
Comunicación
Perito Evaluador de Inmuebles | Julio 2023 - Abril 2024
Elaboración de avalúos comerciales y fiscales
Realización de proyectos arquitectonicos y ejecutivos habitacionales y remodelaciones.
Levantamientos arquitectonicos
Elaboración de permisos de división
Supervición de obra.
Desarrollo de diseño gráfico para venta de inmuebles para inmobiliaria.
Trato con clientes
Auxiliar Administrativo| 2022
Desarrollo de diseño gráfico para programa de arquitectura y diseño de Interiores


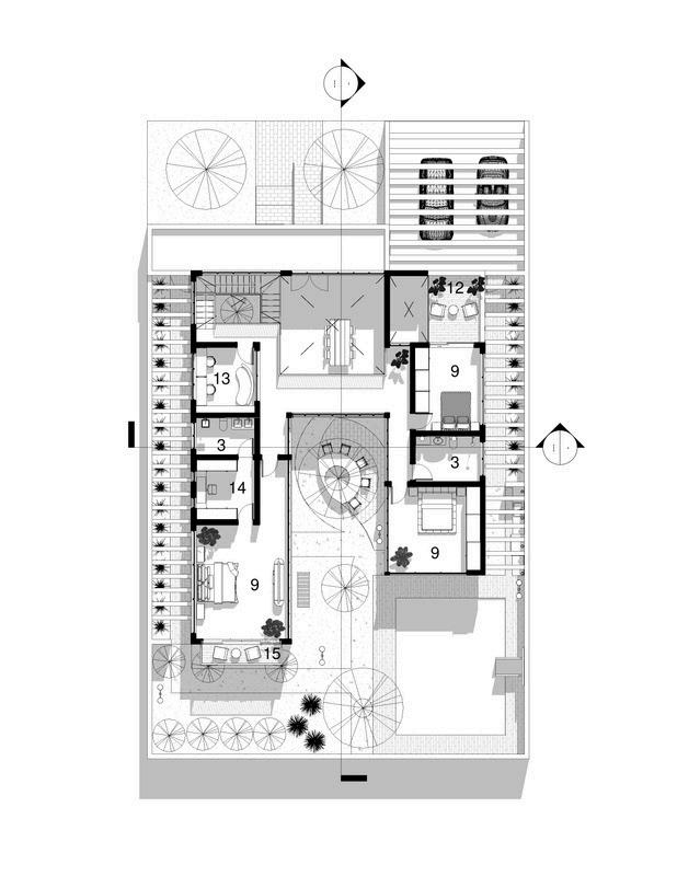
AÑO: 2022
LUGAR: Celaya, Guanajuato
ÁREA: 668 m²
AUTORES: Natalia Cárdenas
Casa Celana es un proyecto arquitectónico de vivienda unifamiliar que está compuesto por dos niveles del cual se hizo un estudio solar y sustentable del cual se investigó la vegetación origen, sistema de constructivos alternativos, captación de agua pluvial y huerto frutal. También debemos de añadir que unos de los integrantes de la familia usa silla de ruedas.




3. SERVICIOS 4. COMEDOR
5. PATIO DE TENDIDO
6. CUARTO DE SERVICIOS
7. SALA
8. COCINA
9. DORMITORIO
10. HUERTO
11. ALBERCA
12. TERRAZA
13. ESTUDIO
14. VESTIDOR
15. BALCÓN
NIVEL 1. PÓRTICO 2. COCHERA








PERSPECTIVA COMEDOR/SALA


AÑO: 2021
LUGAR: Guadalajara, Jalisco ÁREA: 2,425.26 m²
AUTORES: Natalia Cárdenas y Miriam Aguas
Sala exhibición “Luis Barragán” se diseñó debido a que no existe muchos espacios donde se pueda exponer las obras de cierto arquitecto, se tiene el propósito de construir la sala de exhibición basada en el arquitecto Luis Barragán, donde la gente podrá apreciar sus obras pero a la vez todo este conjunto se elaborar de una manera sustentable, ahorrando la mayor parte de energía posible , utilizando principalmente 3 energías para la edificación, de las cuales son: energía solar, energía geotérmica y energía biomasa.
Con este proyecto se gano el primer lugar del concurso del VI Coloquio de Investigación: Diseño, Arquitectura y Planeación Sustentable dentro de la categoría 1 “Investigación temprana”
1. INGRESO
2. ESTACIONAMIENTO
3. BAÑO DE HOMBRES
4. BAÑO DE DAMAS
5. RECEPCIÓN
6. ÁREA ADMINISTRATIVA
7. CASILLEROS
8. TIENDA
9. ÁREA DE DESCANSO

PRIMER NIVEL
10. SALA
11. ESPEJO DE AGUA
12. CAFETERÍA
13. SALA DE JUNTAS


14. ÁREA DE PASO
15. ÁREA DE EMPLEADOS
16. ÁREAS DE MAQUINAS
17. CUARTO DE MAQUINAS
18. JARDÍN
SEGUNDO NIVEL
20. TERRAZA



SECCIÓN TRANSVERSAL


ELEVACIÓN FRONTAL - DIAG. GOLFO DE CORTÉS

ELEVACIÓN POSTERIOR - AV. AZTECAS Y C. TARASCOS



PORTAFOLIO EJECUTIVO




PORTAFOLIO MAQUETAS

