PORTFOLIO
NAPATCHAWANATNUSORN
•WORKEXPERIENCE
2016–2019
THAINISSHINPLANT71
2019–2024
ITALIAN-THAIDEVELOPMENT9
24xSolution
•STUDYEXPERIENCE
2010–2015(UNIVERSITY)
TRI-ENGINEERING
2014–2015(INTERNSHIP)
THEARCHITIST
WORKEXPERIENCE
IdeaIcan(3Project)
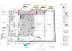
•CoordinatewithSurvey,Onsite,Office
•ApproveMaterial,Doc,Meeting,Powerpoint,PictureonSite
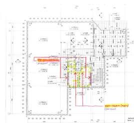
•ProblemSolvingtoRFI,Doc
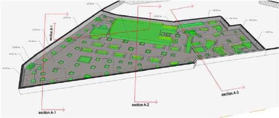
•3DModel,Sketchup
•Payment,VO,Powerpoint,PictureonSite,Excel
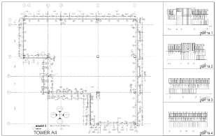
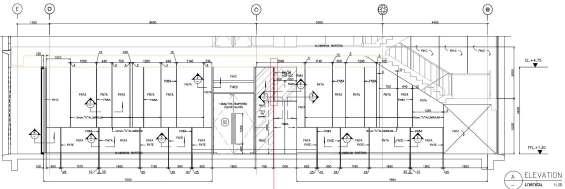
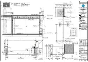
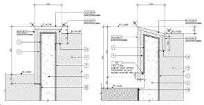
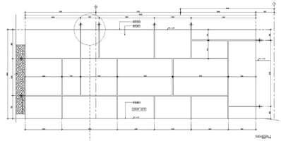
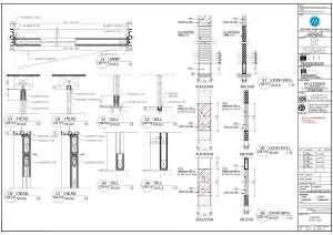
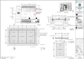
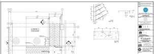
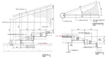
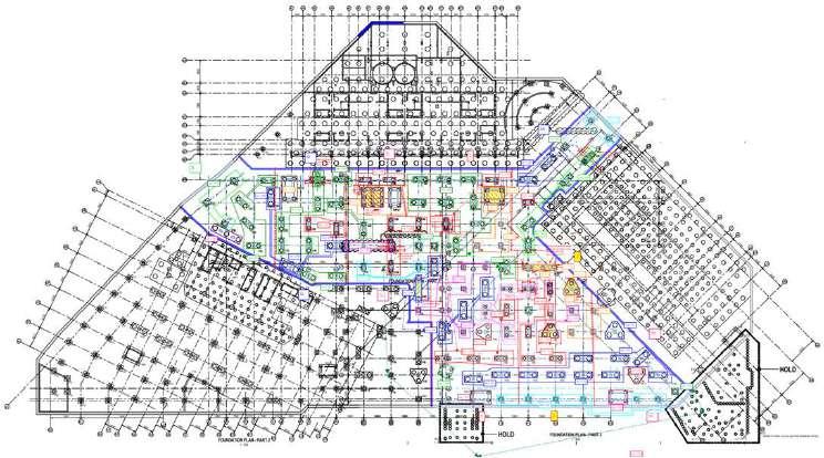
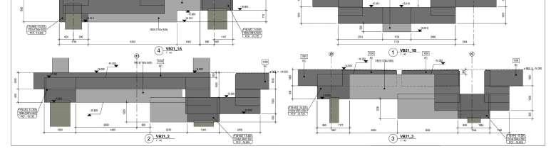
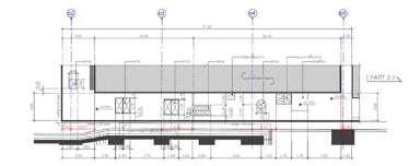
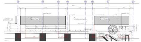
•ShopDrawing–Structure,Autocad,Sketchup
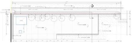
•ShopDrawing–Architecture,Autocad,Sketchup
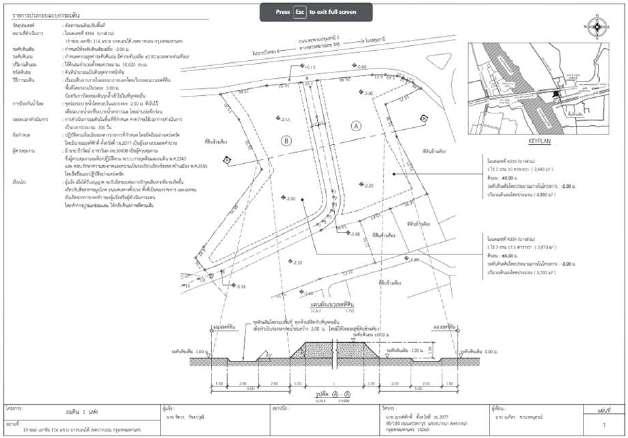
•Quantitiesandunits,Autocad,Excel,BOQ
WORKEXPERIENCE
TRI-ENGINEERING(1Project)
•CoordinatewithSurvey,Onsite
•Settinglevelleanoffooting,Onsite
•ShopDrawing–Structure,Autocad
KOTCHAKORNCONSTRUCTION(1Project)
•CoordinatewithSurvey,Onsite,Excel
•ShopDrawing–Structure,Autocad
•ShopDrawing–Architecture,Autocad
THAINISSHINPLANT(1Project)
•Workonsite,CoordinatewithSurvey,Onsite
•PileCutoff,Doc,Excel
•SettingLevelfooting,Column,Roof,Doc
•ShopDrawing–Structure,Autocad
•ShopDrawing–Architecture,Autocad
ITALIAN-THAIDEVELOPMENT(4Project)
•CoordinatewithSurvey,Onsite
•ApproveMaterial,Doc
•ProblemSolvingtoRFI,Doc
•3DModel,Revit
•ProgressExisting,Powerpoint,Revit,Excel
•MethodStatement,Sketchup,Autocad
•ShopDrawing–Structure,Autocad,Revit
•ShopDrawing–Architecture,Autocad,Revit
•Quantitiesandunits,Autocad
•ModelMethod3DView–Bidding,Sketchup
•Timemanagement,Revu,Notion




































































































































































































































































































































































































































































































































