

“As I delve deeper into the field of architecture, I’m beginning to see how it mirrors the art of storytelling— each structure have a narrative to tell. Though I am still on the journey to fully appreciate its complexity, I’ve realized that architecture is not just about building spaces but creating meaningful experiences. With every design challenge, I am learning to uncover its deeper meaning and am excited to continue growing in this discipline.”






Imagine arriving at a bus terminal that feels less like a transit station and more like a destination. This new interstate bus terminal in Jaipur is sleek and modern with open spaces that welcome you in. Picture yourself grabbing a coffee or doing some quick shopping while you wait for your bus—thanks to the shopping mall built right into the terminal. And for those with longer layovers or who just want a break, there are guest rooms that make you feel like you’re staying in a boutique hotel.
It’s more than just a stop along the way; it’s a place where modern design meets convenience, making travel smoother and more enjoyable.










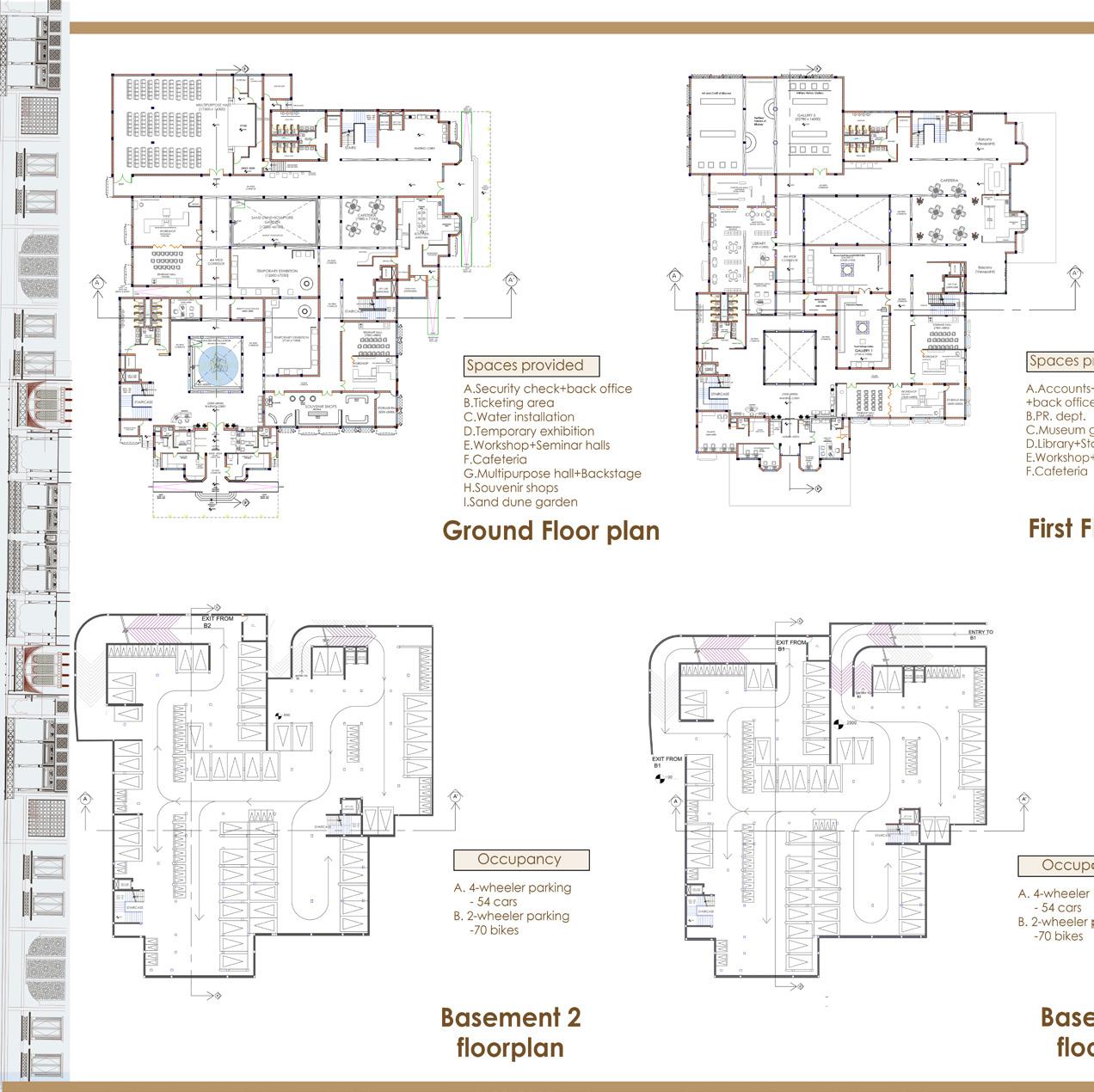
Stepping into a space that’s not just a museum but a portal to the rich history of Bikaner. The architecture reflects the grandeur of Bikaner’s heritage, with intricate jharokhas and sandstone facades that echo the old city’s charm. As you explore, you’ll find museum galleries filled with artifacts and multimedia exhibits, telling stories of Bikaner’s royal heritage, its vibrant culture, and age-old traditions.
In the workshop areas, you can witness artisans practicing age-old crafts— bringing alive the skills that Bikaner has nurtured over centuries. Need a break? The on-site café offers local delicacies with views of a thoughtfully designed sand dune garden, where native plants and sculpted landscapes recreate the Thar Desert’s unique beauty.
An open-air theater (OAT) invites you to immerse yourself in live performances under the stars, connecting modern-day audiences with the storytelling traditions of the region.

BLOCK ARRANGEMENT
Two rectangular blocks are rotated to create diagonal symmetry, forming a central atrium at their intersection.
DEFINING ENTRIES
The rotation of the blocks defines distinct entry points around the atrium, improving accessibility and flow.
VERTICAL EXPANSION
The structure is raised to three floors, accommodating various activities such as exhibitions and communty events. The atrium remains a vibrant focal point.

A circular landscape featuring a sunken stage at its center creates an intimate performance space, surrounded by sloping grass terraces for audience seating. Backstage facilities are seamlessly integrated behind the stage, ensuring functionality without disrupting the aesthetic.





The central hall features a serene pond with a stone installation at its center, engraved with the theme “Bikaner: Oasis in a Desert.”
This narrative captures Bikaner’s transformation

from arid land to a thriving cultural hub. The reflective water and engraved stone create a peaceful ambiance, symbolizing resilience and heritage at the entrance.

The heritage café boasts a charming balcony with a stunning view, blending traditional Bikaner aesthetics. Rich textures, intricate patterns, and local craftsmanship adorn the space, reflecting the region’s cultural
essence. The balcony offers a serene spot to enjoy refreshments while overlooking scenic surroundings. This café seamlessly merges history with relaxation, creating a warm and inviting atmosphere.

The auditorium, with 200 seats, offers a fully equipped space for performances, lectures, and events, featuring advanced acoustics, professional lighting, and AV capabilities.The adjoining multipurpose hall serves as a flexible venue for workshops, exhibitions, and gatherings. Both spaces are supported by attached facilities, including green rooms, storage, and technical rooms.
Features seminar halls with workshop spaces for hands-on experiences in local crafts, promoting skill development and cultural appreciation. Additionally, a souvenir shop offers visitors a chance to take home unique, locally made items, enhancing their connection.

Way towards two level basement offering around 300 ecs parking space to accomodate various vehicles of visitors , staffs and administration.
Entrance for multi-purpose hall | auditorium |cafeteria
A sunken OAT with stone seating for 150, encircled by trees, merges nature with performance. Behind the stage, a green room and storage blend seamlessly, adding function within this serene, natural setting.

A sanctuary for the senses unfolds, where fragrant pathways weave through lush zones dedicated to scent. This olfactory garden features vibrant plantations designed to awaken the senses and enhance well-being. Citrus groves release invigorating aromas, while a medicinal garden showcases healing herbs that invite exploration.
An endangered species zone fosters a connection with rare flora, highlighting our ecosystem’s delicate balance. The aromatherapy center offers a haven for relaxation amid soothing scents, and shops brim with fragrant products to take home.
The air is filled with the delicate notes of jasmine and water lilies, complemented by tranquil water features. A watchtower provides panoramic views of this sensory paradise, while a musical terrace comes alive with the gentle sounds of nature, featuring grass that produces melodic tones and strategically placed speakers. This garden is a celebration of fragrance and sound, inviting everyone to engage in an extraordinary sensory experience.


Incorporating the Vesica Piscis concept into the garden design not only enhances its aesthetic appeal but also deepens the understanding of life’s interconnectedness.

Developing an olfactory garden near the Jewel of Navi Mumbai presents a unique opportunity to create a distinctive sensory experience that complements the existing parks and enhances the urban landscape.




This highway motel is a modern oasis for travelers, offering everything needed for a refreshing break on the road.
The motel features cozy guestrooms designed for comfort, a lively restaurant serving local and international dishes, and shops with travel essentials and unique finds. With a spacious banquet hall for gatherings, a refreshing swimming pool to unwind, and a dedicated play area for children,
it’s an ideal spot for families and solo travelers alike. Supported by attentive staff facilities, this motel turns a quick stop into a memorable experience.
SUPREMATISM
In the motel design, Suprematism is applied through bold geometric forms in the plan, with spaces organized using squares and rectangles to create a dynamic, abstract layout. On the façade, clean lines and minimalist geometry, using contrasting colors like black, white, and primary hues.

The site layout creatively uses triangular divisions to maximize the irregular shape, ensuring every corner is efficiently utilized. This geometric approach not only optimizes space but also adds a unique architectural rhythm,
Planting surrounds each triangle, providing sunprotection and enhancing the site’s aesthetic appeal.
The largest triangle has the main building, while the smaller ones are designated for parking and a shopping complex.







The school showcases a harmonious blend of Rajasthani and modern architecture, catering to students from pre-primary to secondary. It features well equipped laboratories, co-curricular activity rooms, a playground, a multipurpose hall, and a canteen.
North-South facing windows optimize indirect natural light.




