
RUONAN WANG SELECTED WORKS
2023-2024
RISD | BARCH
OBJECTIVE
![]()

2023-2024
RISD | BARCH
OBJECTIVE
Seeking internship experience with architectural projects that explore innovation, hands-on fabrication and sustainability in designs.
EDUCATION
Rhode Island School of Design (RISD) Providence RI
Bachelor of Architecture | Class of 2026 | GPA: 3.8 | Student Honor Roll 2022-2024
Minor Concentration in Nature-Culture-Sustainability Studies (NCSS)
Minor Concentration in Drawing
CPHC (Certified Passive House Consultant): Phius ID:119676
Editor for RISD BEB. Archive Editor Team’s new Pod-cast with people across generation and cross related architecture majors
PROFESSIONAL WORK EXPERIENCE
3SIXO Architecture Providence, RI
Architecture Internship Jan.2025-Present
● Systematically gathered critical project data, including architectural drawings, site information, and project prerequisites, which aided in the refinement of project blueprints and creation of thorough debriefing presentations.
● Utilizing AutoCAD, Rhino, Adobe Creative Suites, Enscape and D5 Rendering software to produce technical drawings and renderings of the master bathroom, powder room and gutter system, which aided in the clearer visualization of the design to the clients and the construction team.
Ryall Sheridan Carroll Architects
New York, NY Internship as Model Maker for the firm’s Project Exhibition “Ghost Projects” Aug. 2024-Sept. 2024
● Utilizing Sketch up and projects’ plans to analyze the design’s dimensions and transform them into ⅛ scaled model sizes.
● Constructing 4 hand-made models using basswood, wooden dowels and wooden sticks.
EXHIBITIONS/ WORK FEATURES
The Envision Resilience - Designs for Living with Rising Seas | New Bedford Art Museum, New Bedford Jan. 2024 - Feb. 2024 Undergraduate Showcase Project Exhibition | Gelman Gallery, Rhode Island Dec. 2023 - Jan. 2024 Projects (Urban Ecology; Architectural Design Course Work- Research Centre) Featured on RISD Website under Architecture Department June 2024- Present Real life paintings and drawings of South Africa and Namibia Exhibited in U.S. Embassy in Namibia Jan. 29th.2024
ADDITIONAL SKILLS
Digital: Comfortable in using softwares of Rhino; AutoCAD; Sketchup; Grasshopper; MS Office Suite; Adobe Creative Suite (particularly Photoshop, Illustrator, Indesign);Vray; Enscape; D5 Render; Revit; Master Cam Designs: Abilities in Concept Sketching; Orthographic Drawings; Design Thinking; Renderings; Model Construction; Research Fabrication: Knowledge in operation of Laser Cutting; 3-D Printing; Metal and Woodworking; Printing; CNC Printing Language: Fluent in Mandarin, English
ON CAMPUS WORK EXPERIENCE
Architecture Anatomy Teaching Assistantship Feb. 2024- June. 2024
Play an active role in teaching, mentoring , and supporting students, as well as developing course content of building structure and wall assemblies.
BEB Print Lab Monitor
Feb.2023- Present
Aided in the printing workshop demonstration. Provide guidance to students who use the printers and scanners. Ensure the safe and right operation of the printers and scanners.
BEB Laser Cut Monitor
Sept. 2023- Present
Aided in the laser cutting workshop. Provide guidance to students who use the laser cutters. Ensure the safe and right operation of the laser cutters.
Academic
All About Clay Folding Ground Screen Stories told by Third Space
Breathing Workspace
Professional
Ghost Projects Exhibition, Ryall Sheridan Carroll Architects,2024
- a prefabricated rammed earth factory
The project centers on clay as a regenerative building material, featuring a facility that produces prefabricated rammed earth panels, complemented by a gallery, workshops, and a residency program for workers and artists. Situated along the Providence River, the design draws on the region’s deep historical connection to clay and its potential for sustainable construction.

Exploded oblique of the pre-phase artifact


section showing construction method of

The project envisions a full lifecycle for clay, moving away from the typical endpoint of landfill disposal. Research into regional clay deposits in New England and existing transportation routes highlights the material’s potential for efficient production, import, and export. Insights into contemporary rammed earth applications further inform the design approach.




The regional map illustrates the clay deposits across New England, integrated with the existing network of highways, ocean routes, and roadways. It provides the potential logistics and connectivity for production, as well as the import and export of materials, laying the groundwork for a cohesive and efficient supply chain strategy.

The site is located along the river of Providence, where it has the direct access to the ports and the 195 highway. This will provide a streamline of goods transportation

Key design strategies include using the thickness of rammed earth walls as both spatial organizers and connectors, creating layered, optical effects from east and west perspectives. A structural grid with columns spaced 20 feet apart organizes the space while supporting intermingled programs.










WOODEN STUD
GUTTER
REINFORCED TRASS-LIME RING BEAMN
METAL ROOFING
WOOD BATTEN W/ INSULATION
CLAY BOARD AND PLASTER CEILING
STUD
RIGID INSULATION
WATERPROFING
TRASS-LIME COATING
REINFORCED TRASS-LIME RING BEAMN
REED MAT INSULATION
CLAY PLASTER
FIRE BRICK EROSION COURSE, GROG MORTAR
WINDOW FRAME
DOUBLE PANED GLASS
RAMMED EARTH WALL
Enclosure Detail of Rammed Earth and Steel Roof Intersection

METAL ROOFING
WOOD BATTEN W/ INSULATION
DOUBLE PANED GLASS FOR LIGHTING NEEDS
I-BEAM EMBEDED, EARTHERN CLAY COATED SUPPORT
SOLID LOG SUPPORT
RIGID INSULATION
WATERPROFING
TRASS-LIME COATING
REINFORCED TRASS-LIME RING BEAMN
STEEL TRUSS SUPPORT
REINFORCED TRASS-LIME RING BEAMN
RAMMED EARTH WALL
FIRE BRICK EROSION COURSE, GROG MORTAR
RAMMED EARTH FLOOR W/ WAX COVER
TJI FLOOR JOIST LOAM LEVELING
CLAY BOARD AND PLASTER
Enclosure Detail of Rammed Earth and Skylight Intersection


the process of the construction phase of the factory using self made rammed earth pre-fab pannels

2023 | Architectural Design | professor Christopher Bardt
- a pathway, a bridge, an art museum

The subsequent three projects seamlessly weave together to create a cohesive journey, guiding individuals along an experiential pathway that culminates in the wooden footbridge and ultimately the environmental center. Collectively, these endeavors intimately engage with the surrounding environment, dynamically adapting to the interplay between atectonic and tectonic forces inherent in both the site and the designs.


Through the continuous adaptation and sensitivity to both the tectonic and a-tectonic dynamics of the site, the two diverging paths offer visitors the opportunity to engage with distinct modes of exploration.






Functioning as the gateway between an immersive journey through the nature and the entrance to a fully man-made art museum, the wooden footbridge offers a transformative experience akin to stepping out from the depths of the forest. This experience is achieved by mirroring the natural ambiance of the forest in the initial portion of the bridge, gradually revealing a panoramic vista as visitors progress along its length.





The environmental center integrates three primary components: a gallery, theatre and research center. Employing a concept akin to folding paper, the site undergoes experimentation through various cuts and folds, resulting in horizontal folds intersected by vertical cuts to shape circulation pathways. Embracing techniques such as overlapping, overlaying, sliding, and unfolding, the site evolves to provide shelter, accomadate diverse programs, and define distinct levels.

Process and Ideolgy of the Site Folds into Three Primary Programs

Step 1:
Treat the site as a folding paper

Step 2:
Draw regulating lines along the topography and determinethe folds and cuts.

Step 3:
Fold the cuts and define the locations of the three primary programs.











C the




4TH FLOOR PLAN

3RD FLOOR PLAN

2ND FLOOR PLAN

GROUND FLOOR PLAN

The staircases in the art museum continues the idea of folding

- a paper mill and living spaces

The project envisions a combined living and working space designed as a paper mill for artisans and their families, where they can create artifacts and artworks using kozo paper while also finding a sense of intimacy with home. Metaphorically conceived as a “screen,” the house uses the transparency of the papermill section as a literal and symbolic divider between two residential areas. As this “screen” comes to life through its function, it fosters a dynamic negotiation between living and working, questioning and redefining the residents’ relationship with daily routines and the balance


The paper mill in Echizen Village, Japan, is a space where artisans practice traditional Japanese papermaking techniques that have been passed down for generations. The mill itself is designed in a highly traditional style, incorporating architectural elements such as shoji screens, which are emblematic of Japanese design and craftsmanship. These screens not only serve functional purposes but also contribute to the serene and meditative environment of the space, reflecting the harmony between craft and setting



Building upon this tradition, my artifact explores the interplay between paper and structure, focusing on the transformative potential of materials. By hollow casting paper onto found objects and integrating it with the shoji screen frame, a unique spatial quality is created. The combination of the translucent paper and the structured frame introduces an interplay between penetrable and solid elements, crafting spaces that evoke contrasting sensations.














The project is situated at 63 Hudson Ave, Brooklyn, NY, where both residentail and industrial buildings exits in the same community. This brings the opportunity for the project that celebrate both characteristics of the site.
On the bird’s eye view, the project intended to have the building to appear humble on the site as it is still a dwelling. But the geometry itself plays with the roofs that are slanted in different angles but all coplane to each other and then eventually shapes the experience inside of the building.








Screen Operation I: when living and working spaces are completely separated by the screen doors

Screen Operation II: when the corridor extends and welcomes



welcomes visitors for small exhibitions Screen Operation III: when the living room extends to the corridor, proving opportunity for gathering

Cross section showing the relationship between the working and living space and how the corridor acts as the negotiation between working and living



2023
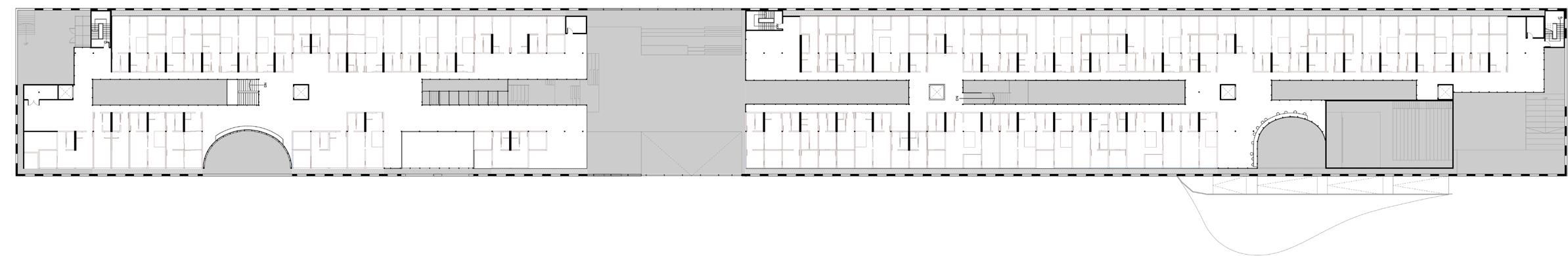
- adaptive reuse of a mill

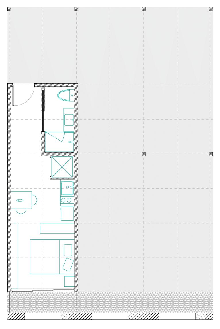
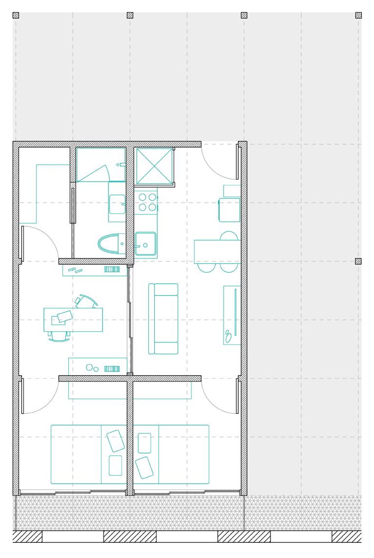
Located along the coastline, the northern waterfront of New Bedford isolates itself from other parts of the city with the 195 highway, route 18, and widely distributed industries on the selected site. Given the potential challenge of flooding issues and limitations of residential areas, the site requires a new urban plan that proposes a sustainable environment and at least one hundred accessible housing units for its inhabitants.
After analyzing the history, infrastructure, and current living conditions of the inhabitants, our proposal focuses on introducing the concept of the third space into the site to enhance a sense of community and accommodate both commuting workers and current residents. This involves categorizing spaces into distinct functions: the first space for living, the second for working, and the third space. With changing perspectives on both an industrial and environmental scale, the site conveys a sense of ephemerality that creates a vision of a push and pull among the three types of spaces. Continuing this observation of the site flow, the proposal includes several new third spaces on the site acting as a diaphragmatic fluid that negotiates with the other two spaces. In other words, the third space becomes the protagonist that questions the push and pull relationship among the various types of spaces





public park.























- enclosure design for a working space proposal
The project proposes a enclosure detail for a workspace located in Quonset Point Technology Park. Through an in-depth analysis of solar orientation and material thermal properties, including R-values and U-values, the design optimizes energy performance and occupant comfort. A 1:2 scaled physical model and a comprehensive set of enclosure drawings illustrate the assembly’s construction and performance characteristics, emphasizing its integration with the building’s overall thermal efficiency.



Scale: 1/8 SE





“Ghost Projects” Exhibition | 31st October 2024
A one day exhibit showcasing the practice’s unbuilt Projects including models, rendering and drawings



